The Plaza complex comprises a plethora of distinct sections, among which stand out the clothing and international brand stores section, the supermarket area, and the administrative facilities. Additionally, the complex features a food court, cafes, health services, a dedicated prayer room, and a children’s play zone.Interconnected Spaces: Emphasizing the visual connection between the interior and exterior spaces could enhance the overall flow and create a more engaging experience for visitors.
Material Continuity: Using materials that visually transition between the exterior and interior could reinforce the sense of interconnectedness and create a more unified aesthetic
The sharp angles can also evoke a sense of urbanity and strength, fitting well with the surrounding cityscap also The sharp angles create interesting contrasts with the surrounding curved forms of palm trees and the soft lines of the cityscape. This interplay of straight and curved lines adds depth and dynamism to the design.Material Continuity: Using materials that visually transition between the exterior and interior could reinforce the sense of interconnectedness and create a more unified aesthetic

The architectural design of the building adhered to the stringent standards set forth by the State of Saudi Arabia and the regulations stipulated by the Riyadh Municipality, ensuring strict compliance with a predefined set of guidelines. A thorough analysis of the architectural elements and design style was meticulously conducted to ensure harmony with the surrounding environment of the region. Notably, a central square adorned with palm trees serves as a nod to the ancient oases of the city, seamlessly integrating the concept of heritage with modern aesthetics. This design choice is further accentuated by the incorporation of expansive glass windows and light wood materials that resonate with the color palette of the neighboring structures.
In a nod to the rugged terrain of the encompassing mountains, fragmented lines were strategically utilized to evoke a sense of the region’s natural landscape. This architectural approach not only offers visitors a clear visual narrative but also enhances their overall marketing experience, all while maintaining a sense of continuity and familiarity without necessitating a complete overhaul.
Spaldington Eco Resort
• Luxury Holiday Business
• York, England
• 2022
Samhar Alkhateeb, Abdalelah Halwani, yousef Rajab, Fares Alsaleh
Project Description:
This project involves the comprehensive design and planning of a holiday resort located in the scenic countryside of York, United Kingdom. The development encompasses a thorough study of the surrounding environment, the integration of service streets, and the provision of ample parking facilities. The resort offers a variety of accommodation options, including two-bedroom, three-bedroom, and fourbedroom lodges, each meticulously designed to provide a comfortable and luxurious stay.
Landscaping and Environmental Study:
An in-depth analysis of the surrounding environment was conducted to ensure that the resort blends in with the natural landscape, minimizes environmental impact and preserves local flora and fauna.
Service Streets: Well-planned service streets ensure smooth internal traffic flow and easy access to all lodges and common areas, enhancing the overall guest experience.
Parking Facilities: Strategically located parking areas near the entrance provide easy access for guests while maintaining the aesthetic integrity of the resort. The parking lots also provide charging sockets for electric cars for each parking
The resort is conveniently accessible via a main road, ensuring ease of travel for guests and efficient service logistics.
Design Philosophy:
The design philosophy for this holiday resort emphasizes sustainability, luxury, and harmony with nature. Every aspect of the site plan and lodge interiors has been carefully curated to offer guests a peaceful and luxurious escape while maintaining a minimal environmental footprint. The use of natural materials and thoughtful landscaping ensures seamless integration with the surrounding landscape.
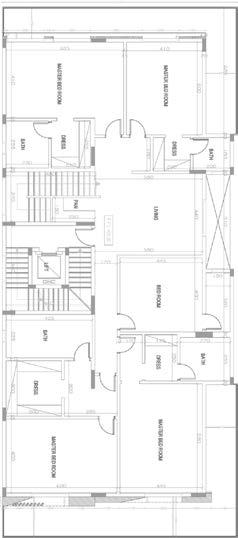
Two-Bedroom Lodges: These lodges are designed for small families or couples, offering a cozy and intimate setting with all modern amenities.
SITE
02 PLAN
03 Interior Design
Designe Team:
Location On Site:
On the northern side of the island
Close to the tourist trail
It extends over an area of 1.2 hectares
Bader Almaimone Elevation
• mustashar albenaa Construction Company
• Kuwait , al Kuwait
• 2023
Designe Team:
Samhar Alkhateeb - Abd Alaziz Alkhouja
Project Description:
This modern-style villa in Al Kuwait showcases a sleek and contemporary architectural design. The exterior features a minimalist aesthetic with clean lines and geometric forms, creating a sophisticated and elegant appearance.
• Wakeb Company For Artificial Intelligence
• Riyadh , Saudi Arabia
• 2022
Designe Team:
Samhar Alkhateeb - Yousef Rajab
Project Description:
Designed an interior for a collaborative workspace at an artificial intelligence company in Saudi Arabia. The project includes modern offices and meeting rooms, fostering teamwork and innovation. The space features ergonomic furniture, state-of-the-art technology, and flexible layouts to support dynamic work environments, enhancing productivity and creativity.
Plan Proposal
Material Selection: