Skip to main content

samgandhi_selectedworks_2026

Page 1


2024-2025

grid convergence........3-8

student project (spring 2025)

cauldron........9-13

student project (fall 2025)

shortstack........14-17

professional charette (summer 2025)

nerds poets........18-21

student project (fall 2024)

lighthaus........22-25

student competition (spring 2024)

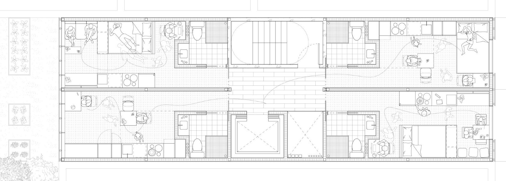
grid convergence

a library proposal located in West Philadelphia that addresses educational disparity while connecting two conflicting city grids

The triangular site for the library proposal is surrounded by a sprawl of traditional West Philadelphia rowhouses, the defining architectural fabric west of the Schuylkill River. The project adapts a narrow width, the key dimension of the rowhouse, to establish a structural order that extends the two city grids toward a central corridor, where they weave together. In some areas, the grids encroach upon one another, opening views across and producing interaction between the Northern and Southern zones. As these orders intersect from North to South, they generate courtyards that punctuate the main circulation. By translating the logic of its surrounding fabric into spatial and structural systems, the library becomes an extension of the neighborhood, deeply rooted in the scale of its site.

PROJECT NOTES:

type: design studio II

location: 5800 Cobbs Creek Parkway, Philadelphia, PA

duration: spring semester 2025

organization: University of Pennsylvania

instructor: Daniel Garcia

GRID CONVERGENCE is named after its structural organization, which is directly aligned to the repeating rowhouses to the North and South of the building. The project site is situated along a pike that separates conflicting grids. Linear circulation extracted from the Musashino Library precedent is used to weave the conflicting grids, creating a visual and circulatory transition between each side. On both sides, rowhouse datums are combined to form volumes that surpass the central axis.

rowhouses inform the structural grid:

birdseye view of grid encroachment:

structural grid:

While adjacent rowhouse datums inform the structure and dimension, programmatic organization was extracted from two precedents. The continual path of circulation found in Sou Fujimoto’s Musashino Library is unrolled into a straight line, which becomes the primary circulation. Giorgio Grassi’s Biblioteca Publica utilizes a series of bars that separate public and private space. The same method is adapted to GRID CONVERGENCE’s architectural form.

Musashino Library:
Biblioteca Publica linear circulation ground floor plan:
second floor plan:
viewing enclosed bookstacks: program bars

On the ground floor, the grid encroachment performs as a void, pushing past the primary axis and into the opposite side, creating a lightwell that is accessible from the central corridor

perspective facing northern lightwell:
detail view of western lightwell:

cauldron

a proposal for adaptive reuse of the Flatiron building, providing residence, public gathering, adaptive workspace, and respite among an otherwise busy corridor in New York City.

‘Cauldron’ addresses adaptive reuse of the Flatiron by first acknowledging its historical and aesthetic presence as an icon of the neighborhood in which it lies. Its cultural significance is coupled with its site, the Flatiron district, which is a neighborhood. sprinkled with all sorts of start ups, incubator spaces, and techforward industries. The sharpness of its prow and the filleting of its corners create strong physical presence, propelling visitors from the respite of Madison Square Park along Fifth Avenue and Broadway, where the streets become much more narrow and busy.

‘Cauldron’ utilizes a unit organization strategy that forces all facade alterations to the South, preserving the propulsion offered by the Flatiron prow, as well as its most iconic views. These units are grafted surgically onto the facade, and clad with a limestone veneer to match the existing, and create a seamless connection between the old and new. Public space offers a coupling of work and educational spaces adaptive to localized industries, and amenities that explore and revitalize the building’s history. Largely, publicness is addressed with professional development, and by encouraging a colloquial relationship between the building and its neighborhood.

PROJECT NOTES:

type: design studio III

location: 175 5th Ave., New York, NY

duration: fall 2025 semester

organization: University of Pennsylvania

instructor: Hina Jamelle

cauldron // needfinding

First and foremost, CAULDRON contends that a building facade plays an integral role in the character of its surrounding urban environment. In addressing the need for adaptive reuse of the Flatiron, complex geometry is used to respond the cultural and technological edge of our time. Since the primary role of this brief requires new housing, we began by designing individual apartment units, and then combining them into a larger composition on the Flatiron’s facade. In order to begin generating architectural techniques, we extracted organizational strategies from an early analysis of organic part to whole relationships. My partner and I studied the biology of bats as individuals, in interaction with one another, and as a swarm in the sky.

part extraction: bone structure, torso shape, and wing webbing

unit infill strategy (elevation):

interrelationship: attraction, compression, and repulsion during hunting

unit design: tapering, fanning, and protrusion become geometric techniques

unit interrelationship: horizontal compression, vertical repulsion

unit aggregation: consolidated unit formation, seams protruding from a solid body

*** bat drawings done in collaboration with Miles Feinknopf
whole: bat concentration in a full swarm

CAULDRON features a uniform distribution of small, medium, and large units - each containing combination of balconies, interior program, bespoke furniture, and overall square footage. The unit mix places all apartment types within proximity of each other to mitigate the social implication of compartmentalizing units by size or price. While all upper floors are occupied by housing, new geometry is concentrated toward the southwest corner of the building. All other units preserve the original limestone character of the Flatiron.

In section, the newly inserted units come equipped with custom furniture, designed using the same geometric techniques that were extracted from part to whole relationship studies. All large and some medium sized units are double height, with mezzanines looking toward informal living space on the first floor. Toward the prow (left), the historically preserved units provide the same general programming, delivered with the architectural style of the existing building.

The bottom six floors of CAULDRON (2 below grade, 4 above grade) there is a series of publically accessible adaptive workspaces. The Flatiron district is one whose economic buildup has consistently matched the forefront of contemporary technology and culture; throughout the twentieth century, the Flatiron building floors were mainly occupied by publishing offices. The surrounding neighborhood encapsulated similar business models, gradually changing to make space for the digital sectors that arised at the cusp of the early 2000s. Currently, the neighborhood is home to numerous media, tech, and other high-skill startups. The new insertion to the Flatiron also includes educational space that can be rented by anyone, with hope to give locals access to the skills required to keep up with the ever-expanding nature of their environment.

While complex geometry exists at the core of CAULDRON, creating a dialogue between the new and old facade is equally important. In order to accomplish this, the unit aggregation grafts itself upon the Flatiron, as if the existing limestone cladding melted into something unexpected. Currently, the walls are unnecessarily thick, allowing for partial removal of the Flatiron’s limestone, which is then crushed and re-applied as a thin veneer. This technique allows the new units to express the same material aesthetics of the existing facade.

remove portion of limestone from the interior crush into limestone aggregate
limestone demolition plan re-apply as veneer
perspective from afar:
detail perspective on new units:

shortstack

a micro-housing infill proposal for a vacant parcel in Park Slope, NY. designed in exploration of new methods to address the pressure for affordable and efficient housing strategies in New York.

During an internship this summer at BEYER BLINDER BELLE, I participated in a design charette geared toward creating micro-apartments apartments designed to aid New York’s housing shortage. Each unit comes with convertible furniture designed for its specific restraints, allowing residents highly efficient and program. Without exceeding 225 sq. ft. per unit, I was tasked with designing and fitting as many units as possible into a 20’ by 60’ vacant lot, while simultaneously following all zoning, setback, and egress requirements. SHORTSTACK holds a total of 18 residential units: 1 ADA accessible, 15 studios, and 2 lofts.

Because of Park Slope’s rich history of classical brownstone architecture, SHORTSTACK proposes an innovative approach to ornament that celebrates the history of its surroundings while maximizing daylight and building envelope efficiency. There is also an accessible rooftop and business lounge to be shared by residents. Furthermore, a rear yard urban farm was created in collaboration with Park Slope’s Food Co-op with hopes to reduce resource scarcity in the area.

PROJECT NOTES:

type: professional design charette

location: 28 7th Ave., Park Slope, Brooklyn, NY

duration: four weeks (summer 2025)

organization: Beyer Blinder Belle

final massing:

Among the studio apartments, there are two layouts- one appealing to an open plan, and one equipped with furniture for living, kitchen, and dining. The furniture is mechanically operated and highly efficient, allowing for several variations of social or leisure quality.

typical unit plan:

type A variations: type B variations: type A perspective:

SHORTSTACK features a rear lot yard which is converted into an urban farm, to which residents would agree to tend in exchange for a membership to the local food co-op, where they can buy fresh groceries at a reduced price. An interior lightwell acts as an exposed chase room, allowing daylight to seep into the building core while consolidating MEP requirements.

insulated outdoor mechanical system

Park Slope’s residents and historical association emulate a deep sense of pride in maintaining the character of its original brownstone architecture and Italiannate detailing.

SHORTSTACK engages a flower petal that is a typical detail of surrounding buildings, creating a pattern-based facade. The petal acts both in relief and perforation. In relief, the petal is backed to typical metal stud infill. In perforation, the petal maximizes light exchange, removing the need for exterior lighting at night, and maximizing daylight into the interiors. The split between relief and perforation arises along adjacent datum lines, seamlessely bridging the visual gap between the buildings to the left and to the right.

perspective:

daytime
evening perspective:

nerds poets

a three part analysis of the implications of art in science and science in art

At the beginning of the semester, we were each given a household object at random, from which we would derive a concept that would eventually materialize into an architecture. The project was split into three parts, with each building on what was learned from the preceding excersize. NERDS POETS studies the tangible and intangible counterparts of a spray paint gun. In project one, we were tasked with using analysis of the object to create a container designed to hold the object itself. In project two, we were tasked with extrapolating the logic of the container into a circulation system that connects two rooms with a stair. In project three, the same logic is carried into a 110,000 sq. ft. vertical extension to Philadelphia’s Institute of Contemporary Art, providing new galleries, public galleries, and an additional building core.

PROJECT NOTES:

type: design studio I

location: 118 South 36th Steet, Philadelphia, PA

duration: fall semester 2024

organization: University of Pennsylvania

instructor: Laia Mogas-Soldevila

PROJECT 1’s container imposes a sharp contrast between the mechanical and artistic duality of a spray paint gun, transitioning from a reconstructed assembly of the spray gun’s individual parts, into an organic celebration of the outputs of artistic expression:

What better explains the culmination of art and science than a paint spray gun? A technical interworking of mechanical parts, created with no exclusion of engineering, and refined to enable the most profound artistic expression that paint allows. Computer science’s acute attention to arbitrary user experience. Carbon dating to unravel the nature of our planet. Dance as an abstraction of metaphor and narrative. Using our gifts to encourage the exploration of another field. The beauty of creation lies in its interdisciplinary applicability. Here’s to the humans who combine the opposite brained.

To capture the holistic spirit of invention, one must consider the intersection between what is being created and the tools that made it possible.

PROJECT II extrapolates the visual and theoretical findings of project one using architectural means, proposing a three-room structure where visitors circulate through a dynamic stair system, which is semi-enclosed by a luminscent mesh. The facade is composed with graphic abstractions of the dichotomy between art and science, in which visitors are emerged as they navigate across rooms. The second adaptation of NERDS POETS aims to explore how ‘artistic’ and ‘scientific’ trains of thought can be combined with direction, lighting, graphics, and structure.

exterior perspective to the north:
exterior perspective to the south:

PROJECT 2’s circulation system transports visitors through a series of cantilevered structure, creating a dynamic path of movement through which project-specific artwork surrounds the entire enclosure.

viewing circulation system:

viewing circulation system: plan:

lighthaus

a net-zero apartment complex designed to eliminate resource scarcity for international students

LIGHTHAUS aims to eliminate resource scarcity for international students in Columbia. Most convenience and grocery stores are located downtown, where only the most affluent domestic students can afford rent. International student living is relegated to the outskirts of town, where students must drive to purchase food and other supplies. Our site is located within walking distance of MU’s campus, and has a global market filled with goods from local international vendors.

The project is a multi-family, mixed-use complex which is net-zero in energy and near net zero in carbon emissions. Because of the long term energy savings, we were able to offer more affordable rent than most other apartments in the area. Several other living amenities are included, such as rentable EVs and an ecogym. By way of its proximity to campus, and resource-rich programming, LIGHTHAUS addresses the challenges of international student life in Columbia, MO.

I was one of the team leads, along with Turma Asokan, and was primarily responsible for energy modeling, life cycle analysis, material sourcing, ecogym design, and completing deliverables. LIGHTHAUS was a finalist submission in the 2024 Department of Energy’s Solar Decathlon, placing 3rd overall in the multi-family category.

PROJECT NOTES:

type: Solar Decathlon competition entry

location: 210 Orr Street, Columbia, MO

duration: spring semester 2024

organization: University of Missouri

instructors: Lyria Bartlett, Michael Goldschmidt, Dr. Jayedh Aman, Jackson reeves

LIGHTHAUS employs HVRF and DOAS systems that connect via low refrigerant cooling to hybrid branch controllers on every floor, allowing each unit to maintain autonomy over its desired indoor temperature. The exterior envelope is assembled primarily using composite aluminum cladding, mineral wool insulation, a fluid applied membrane, light gauge sheathing, and dire rated gypsum board. Almost all materials are extracted, manufactured, and transported within a 500 mile radius, allowing embodied carbon to remain as low as possible.

LIGHTHAUS is net-positive in energy consumption, relying on a combination of active and passive design strategies to attain a net-negative EUI. This was proven with a parametric simulation, in which we calculated the various performance ratings of the conditioned, semi-conditioned, and unconditioned parts of the building. Because of the efficiency of our envelope, passive cooling strategies, eco gym, peak load energy avoidance, and several other strategies, LIGHTHAUS achieved an EUI of 32 before photovoltaics, and +9 with photovoltaics included.

EUI calculation script:
energy modeling logic:
*** rendering done by Milena Fischer

thank you (-:

Turn static files into dynamic content formats.

Create a flipbook