Sam Gandhi, Selected Works, 2025

Page 1


selected works, 2023-25

Thank you in advance for taking the time to view my work

I’m a first year M. Arch student at the University of Pennsylvania Stuart Weitzman School of Design.

I came from the University of Missouri-Columbia, where I graduated with a degree in Architectural Studies. Before that, I was a filmmaking student at Emerson College.

I also breakdance and love hip hop.

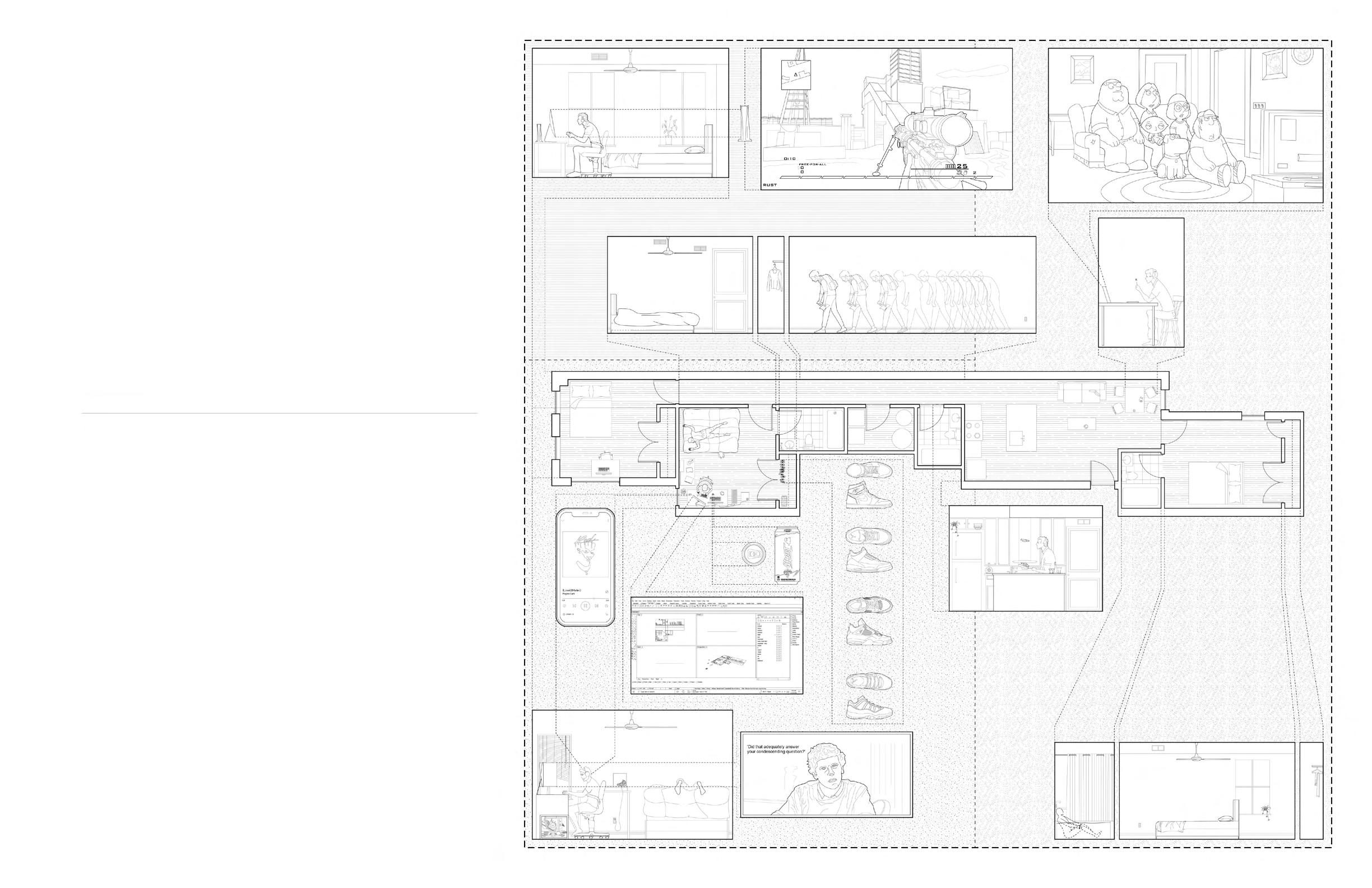
This is a depiction of my current living situation in Philly, and some of the typical actions and objects that define my apartment (and in extension, me).

Contents

Liminal Horizons (competition), January 2025

Nerds Love Poets (studio project), September 2024

Deeper/Bolder (studio project), October 2024

Elements (design intensive), August 2024

LightHaus (competition), January -April 2024

Disrupting Interruptions (studio project), August-December 2023

A PROPOSAL FOR AN OUTDOOR RECESS AREA SHARED BY TWO ADJACENT ELEMENTARY SCHOOLS IN WEST

PHILADELPHIA

SCHENK-WOODMAN is an annual design contest held by the University of Pennsylvania for first year M. Archs during the first week of the spring semester. This year, the brief requested an outdoor recess area with two sports courts, to be shared by a public and charter elementary school. We were given seven pavilion precedents to adapt into our proposal, with an emphasis on clear design intent and innovative use of the chosen pavilion precedent. We competed in teams of three, and placed third among twenty three teams.

PROJECT NOTES:

COMPETITION ENTRY:

2024 Solar Decathlon multi-family category (awarded 3rd prize)

PROGRAM:

5800 Cobbs Creek Parkway, Philadelphia, PA

1 basketball court and 1 volleyball court Manager’s office Equipment storage 2 restrooms

DURATION: One week

The site was a triangular patch of land between two intersecting grids in West Philadelphia:

ANDERSON ELEMENTARY SCHOOL

KIPP PREPARATORY CHARTER SCHOOL

TEAM:

Sam Gandhi

Jacob Geile Cindy Wang

INSTITUTION: University of Pennsylvania

Early iterations:

My team chose the Lakefront Kiosk, designed by Ultramoderne. Its radial structural system implies a focal point in the space, which we wanted to use in order to emphasize the most exciting conditions of the site’s existing slope and view corrdiors.

PRECEDENT:LAKEFRONT KIOSK (ULTRAMODERNE, 2015)

PROPOSAL:LIMINAL HORIZONS, 2025

5.Restrooms

1.Equipment storage
2.Basketball court
3.Manager’s office
4.Volleyball court

A 3 PART EXPLORATION OF THE IMPLICATIONS OF ART IN SCIENCE AND SCIENCE IN ART

At the beginning of the semester, we were each given a household object at random, from which we would derive a concept that would eventually materialize into an architecture. The project was split into three parts, with each building on what was learned from the preceding excersize. From project one to project three, each design grows in scale, beginning with a container for the given object and ending in an extension to the Institute of Contemporary Art near the University of Pennsylvania’s campus.

The object I was given was a paint spray gun:

3 rooms and a stair

PART I: container for the object
PART III: ICA museum extension (still in progress)
PART II:

POETS

What better explains the culmination of art and than a paint spray ? A technical interworking of parts, created with no exclusion of , and refined to enable the most profound artistic expression that paint allows. Computer science’s acute attention to arbitrary user experience. Carbon dating to unravel the nature of our planet. Dance as an abstraction of metaphor and narrative. Using our gifts to encourage the exploration of another field. The beauty of creation lies in its applicability Here’s to the humans who combine the opposite brained.

To capture the holistic spirit of invention, one must consider the intersection between what is being created and

DEEPER/BOLDER

In PROJECT I, the geometry of creativity (art) was seemingly more exciting than that of . I didn’t think this was fair. There’s such beauty in . This isn’t necessarily a secret, but its ability to inspire humans is often undermined by the instrinsic freedom of humanities-oriented fields. In PROJECT II, I used the given prompt to explore a creativity that is exclusive to , which resulted in a structural system in plan and overly cantilevered in section.

We were tasked with combining our PROJECT I containers with two colleagues, and deriving an aesthetic or abstract concept from the resulting stack.

ryan’s model: my model:

theme: re-imagined use of household objects

theme: intellect exploring creativity

yung’s model:

theme re-associated definitions of material

re-associating intellect by re-imagining creativity

A.
B.

...and we took our findings from both, hybridizing them into a new concept:

A

TWO WEEK SUMMER INTENSIVE RESULTING IN A PAVILION PROPOSAL IN THE HEART OF THE UNIVERSITY OF PENNSYLVANIA’S CAMPUS.

To start, we drew and analyzed two exisiting floor plans:

In the hybridization, a primary circulation path supports precise siteline access to views

Charles Gwathmey House

Circulation is intuitive, providing a clear path which consolidates various rooms

A central vestibule and fragmented circulation create site lines which expose public areas and hide private ones

This floorplan design was the framework for the pavilion concept.

Winton Guest House, Frank Gehry
CONNECT site lines to desired pavilion center
CASCADE lines outward to create ground plane
VOID remaining area for a lower level study space
skylight

1.Green wall

2.Circulation

3.Rooftop garden

4.Enclosure

5.Perimeter detail

LIGHTHAUS

A NET-ZERO APARTMENT COMPLEX IN COLUMBIA, MISSOURI, DESIGNED TO ELIMINATE RESOURCE SCARCITY FOR MU INTERNATIONAL STUDENTS

LIGHTHAUS aims to eliminate resource scarcity for international students in Columbia. Most convenience and grocery stores are located downtown, where only the most affluent domestic students can afford rent. International student living is relegated to the outskirts of town, where students must drive to purchase food and other supplies. Our site is located within walking distance of MU’s campus, and has a global market filled with goods from local international vendors.

The project is a multi-family, mixed-use complex which is net-zero in energy and near net zero in carbon emissions. Because of the long term energy savings, we were able to offer more affordable rent than most other apartments in the area. Several other living amenities are included, such as rentable EVs and an ecogym. By way of its proximity to campus, and resource-rich programming, LIGHTHAUS addresses the challenges of international student life in Columbia, MO.

I was one of the team leads, along with Turma Asokan, and was primarily responsible for energy modeling, life cycle analysis, material sourcing, ecogym design, and completing deliverables.

PROJECT NOTES:

COMPETITION ENTRY:

2024 Solar Decathlon multi-family category (awarded 3rd prize)

PROGRAM:

210 Orr Street, Columbia, MO

177,000 square feet

108 apartment units cultural market

agrivoltaic garden eco -gym

BIG TAKEAWAYS:

Net-zero in energy and near net-zero in carbon emissions

EUI: 32 before PV, 0 with PV

HERS Score: 38 without PV, 0 with PV

DURATION: One year

TEAM:

Sam Gandhi (team lead)

Turma Asokan (team lead)

Sydney Flowers

Asha Saifullah

Ben Hendricks

Milena Fisher

Tyler Hatten

Ezra Stimac

Jake Powers

Max Licktieg

FACULTY ADVISORS:

Lyria Bartlett

Dr. Jayedh Aman

Michael Goldschmidt

Jackson Reeves

INSTITUTION:

2. Rooftop PV array
3. Loose aggregate paving
4. Agrivoltaic garden
Perforated
42” smoke partition
Cross ventilation through apartments
1’ glass smoke curtain
Smoke evacuation fan
Stack ventilation in atriums

Sports Art

ecogym equipment Mukilteo, WA

TRANE HVAC equipment

La Crosse, WI

Superior Decks Hopkins, MN

WR Meadows wall/roof membranes Hampshire, IL

HALO LED lighting New Jersey
QCell PV panels Dalton, GA
Thermafiber Wabash, Indiana
USG Sheetrock Duke, OK Quaker Windows Eldon, MO
Kawneer curtain walls Kansas City, MO

We created a parametric script using contruction materials, quantities, window aperture, shading, and local climate data, and achieved a baseline EUI of 32 before adding any photovoltaic systems.

DISRUPTING INTERRUPTIONS

A THREE-PHASE MIXED-USE INFILL DESIGNED TO RE-ENHANCE BRENTWOOD’S SOCIAL ATMOSPHERE

Brentwood, MO is landlocked between two of St. Louis’s wealthiest neighborhoods (Ladue and Clayton). Its downtown is retail-focused and typically accessed by car. The jewel asset is the St. Louis Galleria, which attracts people from all over the city. Our project site is directly across from the Galleria.

Ladue and Clayton are host to several lucrative businesses. Because of this, affluent client needs for a centralized hub commodify some of Brentwood. There is every retail category that one could imagine, along with some restaurants and bars. That being said, everything is bound by cars. Therefore, interaction is naturally low. Due to the social atmosphere, Brentwood is a place of necessity. Unless you’re working or buying something specific, there’s little incentivization to visit.

Due to its unique and diverse retail, Brentwood is still frequently visited. With more streamlined access and interactive user experience, it has the potential to become an urban social hub as well.

Our project site is right next to a shopping mall which has an outdoor path designed for pedestrians (like an outlet). It’s filled with a coffee shop, restaurant, and some other retail and offices. THere is a medium-sized parking structure behind the mall. All of this is directly connected to the infill site.

The site is sandwiched between a busy street and an interstate exchange. To minimize noise pollution, the interior programs should be secluded.

The infill is a mixed-use development which will continue the existing pedestrian path and introduce collusive gathering spaces to energize downtown Brentwood.

1.St. Louis Galleria

2.Anderson Dog Park

3.Residential

4.I-170 inner belt expressway

5.The current focal point

6.Existing mixed-use development

7.New urban infill phasing plan

Turn static files into dynamic content formats.

Create a flipbook
Issuu converts static files into: digital portfolios, online yearbooks, online catalogs, digital photo albums and more. Sign up and create your flipbook.