Sameen Yousuf | Architecture Portfolio 2024 | Toronto Metropolitan University

Page 1

SAMEEN YOUSUF Architecture Portfolio 2024

An architect is sure to leave a great mark on the world. They build upon a foundation that births memories, creates experiences, and makes an impact on the lives of others. For generations or centuries, the human being and the building are not meant to exist alone. The spaces we bring to life are places we design for living.

My name is Sameen Yousuf. This portfolio is a testament to my growing values as an aspiring creative writer, engineer, and architect.

1

2

Education

BACHELOR OF ARCHITECTURAL SCIENCE, 2021-PRESENT

Toronto Metropolitan University, Toronto, ON

Extra Curricular

FREEDOM BY DESIGN DIRECTOR, 2023-PRESENT

American Institute of Architecture Students (AIAS)

Toronto Metropolitan University, Toronto, ON

• Curate and lead a team of 10 architecture students navigating the impact of small-scale and feasible design on the surrounding community

• Initiate and conduct design projects with a built-up network of professionals and student groups in and outside of campus

PUBLIC

RELATIONS

DIRECTOR, 2022-2023

American Institute of Architecture Students (AIAS)

Toronto Metropolitan University, Toronto, ON

• Communicated via email with guests and participants attending software tutorials, design charrettes, and events hosted by the team

• Photographed, videographed and managed the chapter’s Instagram, TikTok, and LinkedIn

Work

SOCIAL MEDIA INTERN, 2022

Vena Solutions, Toronto, ON

• Collected photo and video content, drafted captions, and created graphics to produce presentations and social media posts for the company’s LinkedIn, Instagram, Twitter, and Facebook

• Coordinated with colleagues from different teams to orchestrate summer projects (i.e., workplace all-inclusive language guide, Emancipation Day, etc.)

FRENCH TEACHER, 2019

Northlea Community Child Care Summer Camp, Toronto, ON

• Prepared activities and taught engaging French lessons catered to students from ages 4 to 11 in two classrooms

Languages

English

French Urdu

Rhino 7 Enscape Twinmotion SketchUp

Autodesk Revit Autodesk CAD Model Making Sketchbook

Adobe Suite

Google Suite Microsoft

Proficiency
01 02
3
THRESHOLD
ArcHIVE
03 FLOAT CURRENT 04 4
5

THRESHOLD

Main Square Community Transit Hub is the threshold between the bustling GO Station and dense high-rise apartments. Each arch is a gateway to different platforms, prompting the community and commuters to explore beyond a central terminal. The circular visual and physical thresholds between programs and levels define a journey through the hub. They are passages that initiate encounters between passengers and encourage activity. The hub invites those amidst their quotidian schedules to breathe and live at any hour of the day within a space that unites diverse people throughout the GTA and bridges the distance between them.

Fall 2023

Main Square, Toronto, ON

Rhino 7, Illustrator, Twinmotion, Sketchbook

01 6

THE CITY AS A THRESHOLD

THE BUILDING AS A THRESHOLD

THE SITE AS A THRESHOLD 8
9
MODEL
SOUTH ELEVATION
LASER CUT MASSING
10
VERTICAL VOIDS AS THRESHOLDS
OUTDOOR AUDITORIUM
PATHWAY
12
CONNECTING
COURTYARD

02

ArcHive is a multifunctional alcove that takes advantage of 60 degree geometry to create modular seating designed for flexibility and comfort. In what used to be a back entrance corridor, we built a dynamic seating arrangement that collaborates with the architecture building without blending into it. This results in a project that immediately welcomes and directs students to not only gather in a designated space, but interact with it.

Design Competition Winner

Summer 2023

325 Church Street, Toronto, ON

Rhino 7, Twinmotion, Illustrator

Project Leads: SAMEEN YOUSUF

VIOLETA ZURITA

ArcHIVE
13
CORK DESIGN VARIATIONS 15
PROJECT ASSEMBLY

COMPLETED PROJECT SEATING POSSIBILITIES

REMOVABLE CEILING FIXTURE

17

Current Pavilion is laid upon an existing pathway to follow the park’s flow of traffic so people may experience it however they desire. With its curving form, diverse seating conditions, and wooden structure, the pavilion will connect users with the space they are already in and add to the park’s central pathway by turning it into an axis of engagement.

Fall 2022

Greenwood Park, Toronto, ON

Rhino 7, Illustrator, Sketchbook

CURRENT
18
03
SOUTH ELEVATION
19
PHYSICAL MODEL ON SITE
20
RAINWATER FLOW ON UNDULATING ROOF EXISTING PATHWAY STUDY
21

FLOAT 04

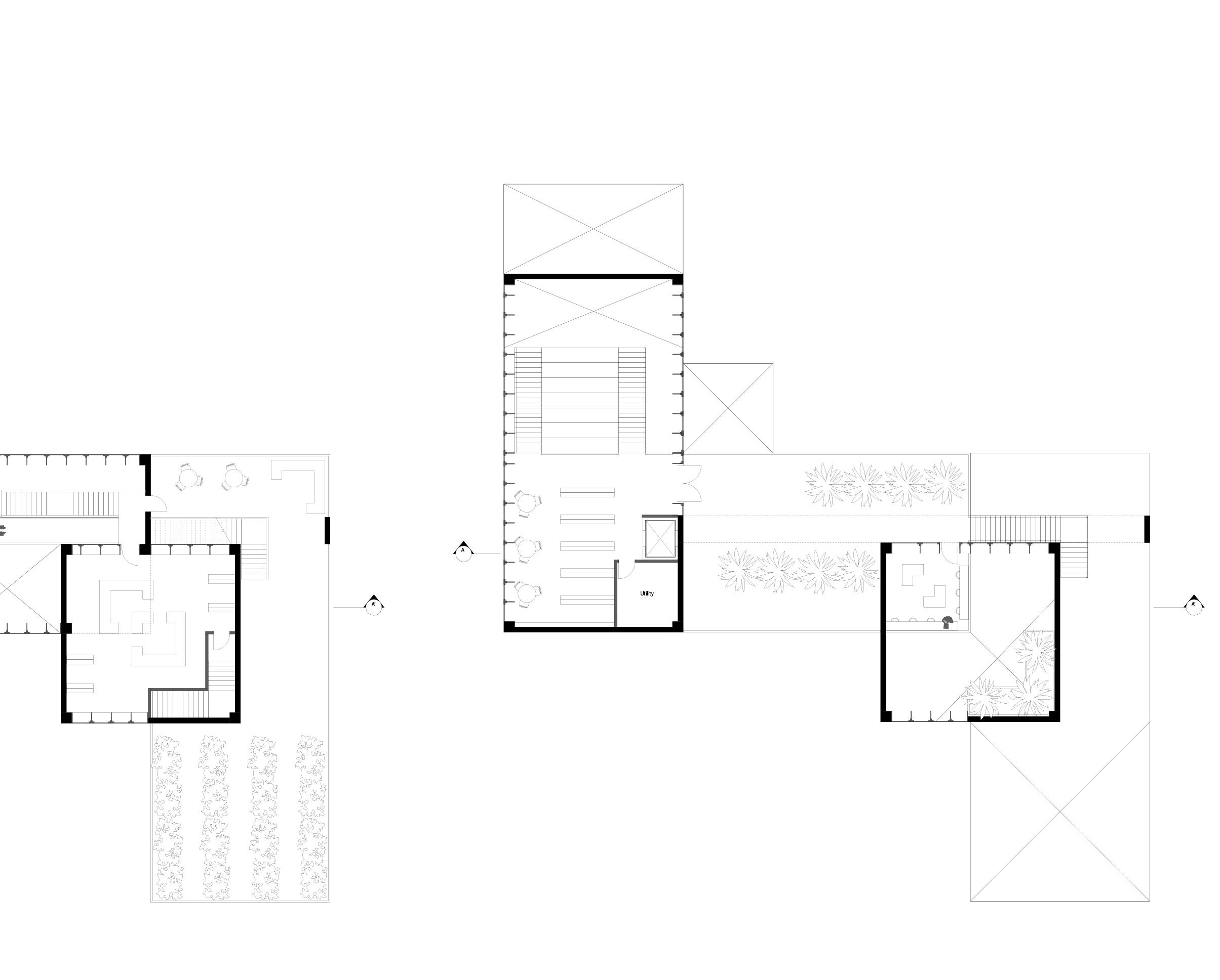
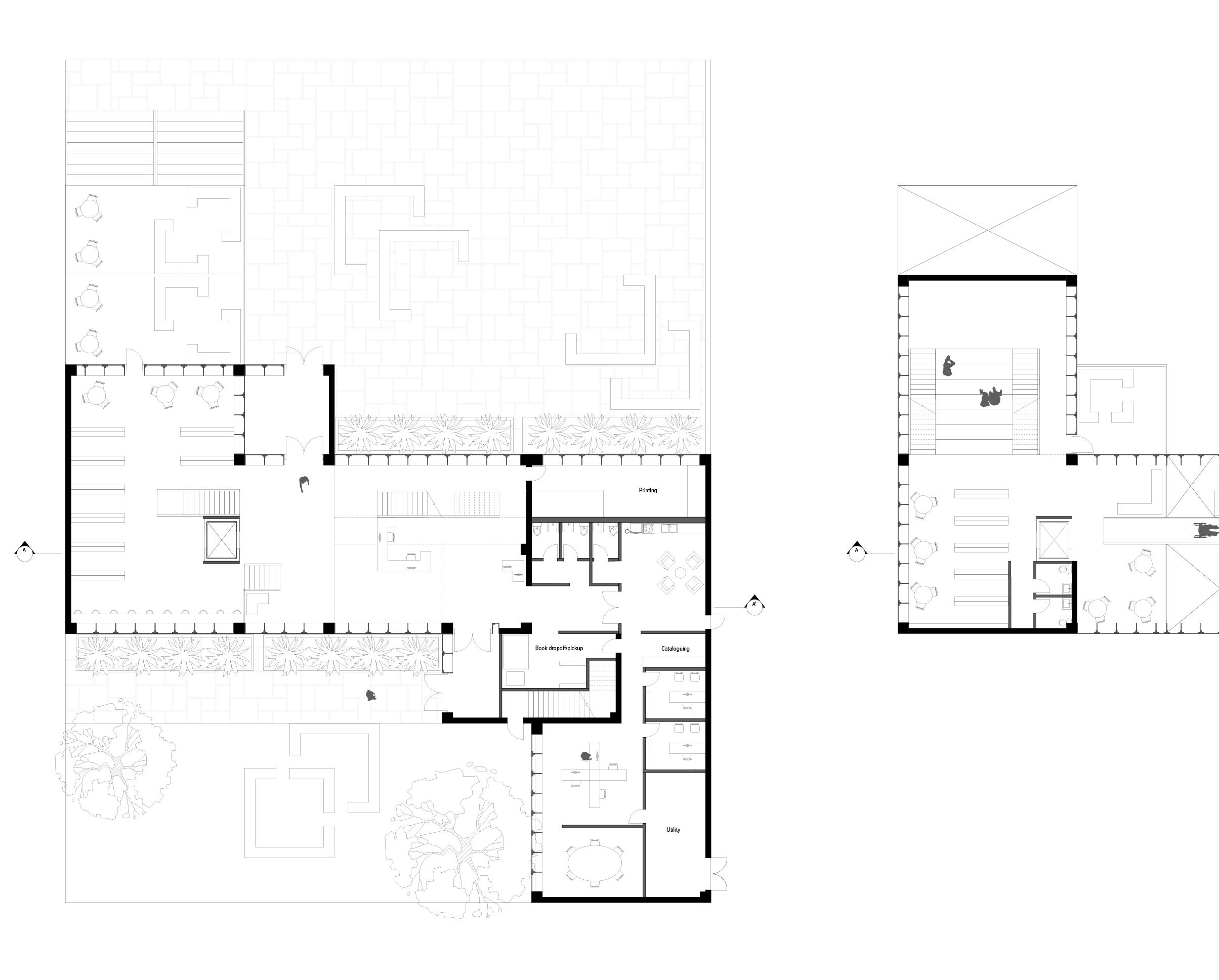
The library is a series of floating shelves linked harmoniously together to explore the bridge between the separation and connection of various and diverse programming in quiet, loud, public, and private spaces.

Winter 2022

Bond and Dundas, Toronto, ON

Rhino 7, Illustrator, Twinmotion

22
SHELVES ORGANIZED
23
BY PROGRAM
24
EXPERIENTIAL SECTION
FLOOR PLAN
FLOOR PLAN 25
GROUND
SECOND
THIRD FLOOR PLAN 26
27
NORTH ELEVATION
28
SECTION A
THANK YOU sameen.yousuf@torontomu.ca (647)425-9453

Turn static files into dynamic content formats.

Create a flipbook
Issuu converts static files into: digital portfolios, online yearbooks, online catalogs, digital photo albums and more. Sign up and create your flipbook.