Samantha Markiewicz Selected Works



Table of Contents







Carson’s Living Community
Adaptive Reuse
Media House
Hennessy Saloon
The Cantilever
Community
Tiered Stack


![]()










Carson’s Living Community
Adaptive Reuse
Media House
Hennessy Saloon
The Cantilever
Community
Tiered Stack


Summer 2024 Professor Gregory Stroh
Pittsburgh, Pennsylvania AIA Cleveland Design Merit Award Recipient
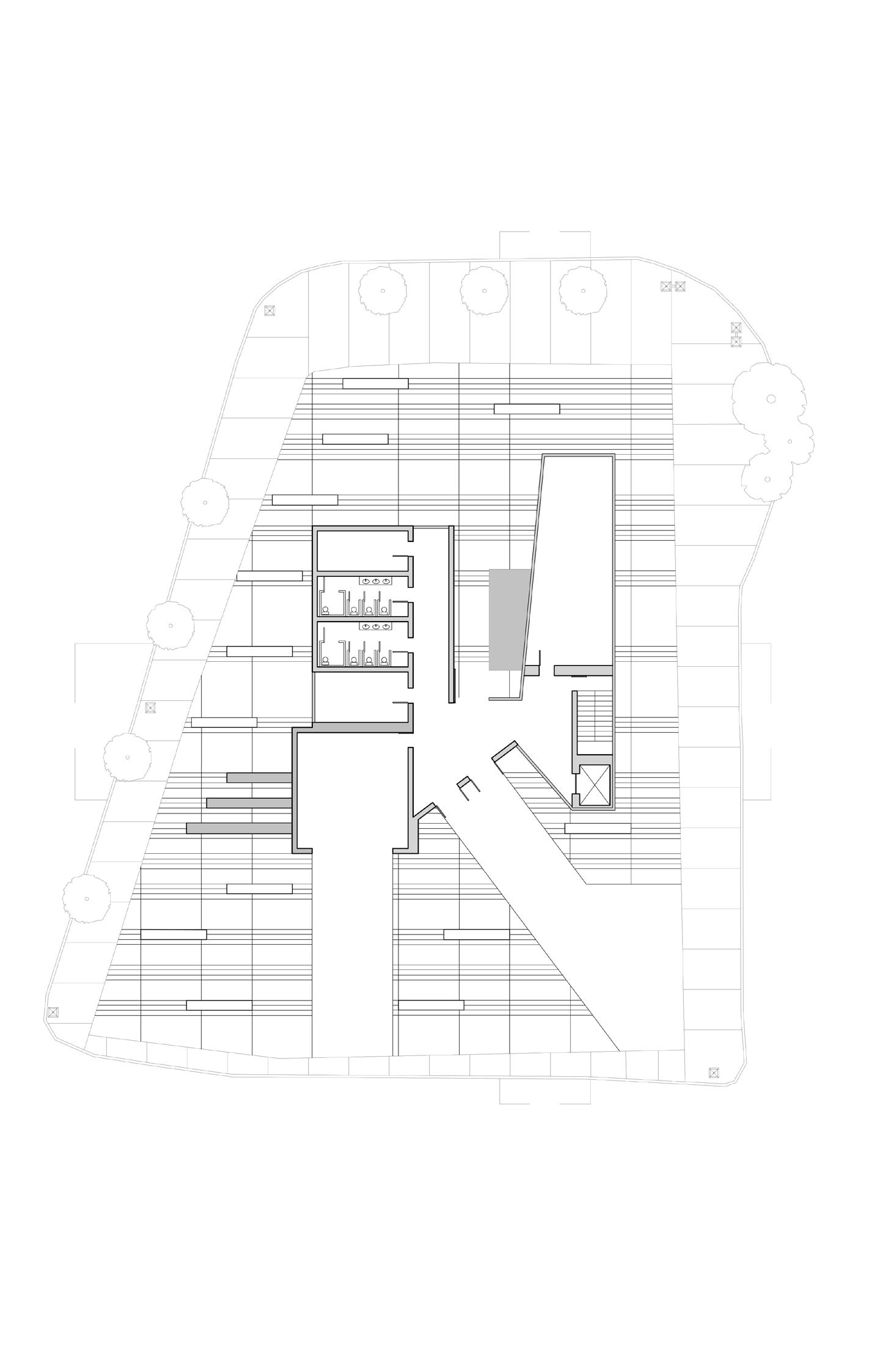
My interest is in the background work and reliance on infrastructure systems, both material systems such as buildings, roads, bridges, etc. to the im(material) systems like data networks and information flow. Housing is an integral part of this complex system. In this project I am exploring housing as a support system.
The project is located on Carson Street in the Southside neighborhood where the street is the central event. Carson Street is a bustling hub of activity. With family-friendly activities, a diverse array of shops, restaurants, bars, and a rich cultural heritage. This street is an essential part of Pittsburgh’s vibrant community.
The substitution for private space by diffused space of the amenities at the urban level. Thoughtfully designed public spaces serve as vital hubs where people congregate, connect, and engage in shared activities. These spaces play a crucial role in fostering a sense of belonging and collective identity, transcending social and cultural divides to cultivate inclusive communities.
The commerce is set back from the street allowing the ground floor park to create an inverse patterning to the courtyards in the urban site.
There is a bookstore, a bubble tea shop, and a yoga studio that can double as a dance studio. There is also a detached form that can house other programs like a market stall or two on the ground floor and a public viewing area for movies during the evenings on nice spring and summer nights on the second floor and roof. This will bring more people with similar interests to gather at the site, creating more communities for everyone in the neighborhood.
The upper floors consist of one- and two-bedrooms apartments. The stair cores throughout this project allow stagger as well to create double-height social spaces that stagger to join the spaces and floors to one another. Having the stairs this way will allow the residents to feel more connected to each other.
In the main core between the social spaces there is a glass atrium that houses some plants and grass, including a tall tree that extends to the top of the building. This allows the residents in social spaces to experience nature with the goal of having them in the spaces more. The building is made of concrete, glass with aluminum frames, and wood. The patterning of the wood façades is influenced by the rhythm of the urban density along Carson Street. It also helps provide shade and privacy for the residents on the upper floors. The use of all glazing on the main floor is to provide an open and inviting feel.











THE CLEVELAND CHAPTER OF

IN ACCORDANCE WITH THE JUDGEMENT OF ITS AWARDS JURY PRESENTS A

FOR ACHIEVEMENT OF EXCELLENCE IN ARCHITECTURAL DESIGN FOR

W. Daniel Bickerstaff, II, AIA, President
November 22nd, 2024




Fall 2023 Professor Adam Yaracs
Cleveland, Ohio
This project’s goal is to enhance shadows and different levels of surfaces. This is achieved by pushing and pulling diffferent surfaces to create depth within the plane of walls, windows, and floor and roof plates. Another goal was to find a solution to noise levels. As an occupant goes up the different stores of the stucture the noise levels decrease with the mezzanine being the quietest place. The North side/front of the structure is were the internet cafe is located. It is two stories, the more noisy area being located on the grooud floor with the less noisy, more focused, and relaxation area being on the second floor. As an occupant heads to the South side/back of the structure they are greeted with the Maker’s Space on the ground floor and then 2 stories and a mezzanine dedicated to Professional Offices, with the Mezzanine being a total soft seating area alloted to lounging and regaining energy. The look and material of the structure was based from the original brick structure. Most walls near the North/front facade of the structure use either the existing brick or a brick that is similar looking to it. At the South/back end of the structure the materials change to add warmth to the structure using wood planks and panels. To counter the warmth of the wood there is a facade/setback behind it that is a dark grey precast concrete located on the East and North facades around the Maker’s Space/the tallest point of the structure.
1.

E. 65TH ST.

Site Plan


A render looking at the project’s Northeast exterior side

































Fall 2021 Professor Gregory Stroh
Kent, Ohio
27,753 sq ft
The project goal is to create a vessel or space for the media program. The project is partitioned into three elements. It can be achieved through performance, events, and education. The above levels mostly consist of the performance areas, like the black box, or areas that have lots of activity like the cafe. The ground floor mediates this by giving a space to have a little more gallery space and some relaxing space in the benched grassy area. The below ground levels are intended for reflection and education, with the library, part of the gallery, the recital hall, and classrooms. From the ground, each program is visually connected to both the black box in the upper levels and the gallery area down below through the void.

















Spring 2023 Professor Ryan Scavnicky
Akron, OH
This project creates a beer festival for the people of North Hill during the second weekend in September. The festival will take place at the Hennessy Saloon. This is a building that blurs the lines between duck and decorated shed. A duck being a building that looks just as someone would expect, being more on the literal side like here, a saloon having the architectural shape of beer cans, a bottle, and a stein. A decorated shed being a basic shape like a box with some saloon like decorations stuck onto it. During the weekend of the festival the building changes. The front-left tab located on the roof, slides open and out pops a big woven net. Then over the weekend a bubble boiler runs and lets out foam and bubbles that looks like what people find on top of beer. This festival will bring the community together through drinks. More specifically though the consumption of beer and alcohol. When the North Hill Beer Fest is not going on Hennessy Saloon is just your standard Saloon. Above the bar on the second story, are two studio apartments for people that need a safe place to stay during the night. Anyone can rent one at any time if there are open spaces available.








3 Soap-In (What the foam is made out of) 4 Water-In
5 Temperature Control
6 Maintenence Door
7 Drain



Site Plan of North Hill After the Festival


Site Plan of North Hill During the Festival

EnlargedSite Plan of North Hill After the Festival
Enlarged Site Plan of North Hill During the Festival

Fall 2022
Florence, Italy
Professor Alberto Francini
Community Center
The Cantilever Community is a center for the occupants of Florence Italy. This structure was created to connect the two sides of Arno, the working class and the shotpping district. The goal was to bring some newer materials across the Arno so it felt like the two very different areas were bleeding together to make the line between them a little less apparent. Hence why my choice is to use steel, concrete, and glass. Concrete is the interior walls and the floor plates and the steel connecting all of the floors and holding it together on the outside. The glass is used to view the Arno as well as both areas to allow a 360-degree feel to the building. The structure I designed is 11 meters tall so that from the second floor you can see over the wall which allows the occupants to connect with more of the area beyond the wall. The Arno itself has also had its influence on my design. The flood of 1966 had made the relationship between the people of Florence and the Arno not great so this project also hopes to help build the relationship between them. This can be achieved through the 360-degree view and the circular glass floor plates running throughout the entire structure. Circular geometries are being used to break up the rectangular geometries that these areas have. These forms exist to allow the occupants to see above and below them, to make it feel like they are near the Arno, and during the rainy season, they are right above the Arno water.



Fall 2024 Professor Matthew Hutchinson
Los Angeles, California Design Partner: Timothy Coleman
Located within our site, in the Arts District of Los Angeles, California the overall form of our “Tiered Stack” sports complex is derived from a series of pushing and pulling of the main program spaces such as the basketball court, racquetball courts and multipurpose gymnasiums. We first utilized pushing or subtraction to create a stair stacking effect that continues up and down on the east facade. This allowed for some pulling out outdoor terrace spaces and creating cantilevers and jut outs. The pushing in of the program allows us to create a unique interior experience by offering the ability to see up or down into other major program spaces. The pulling provides an opportunity for the addition of outdoor terracing to our multipurpose gymnasiums.
The facade composition is made up of three different types of lightweight concrete paneling each highlighting different design aspects. The first type is the lightest in color and smoothest in texture, using strategic seam placement to show off the tiering effect. Next is the medium gray stamped brick texture used to focus attention on the cantilevers and just outs created from the pulling strategy. Lastly, the dark rough or noisy textured used to help elevate the flatter parts of the design. The sun is diffused by perforated lightweight concrete panels that help provide some shade from the California sun. The perforations are a gradient; the holes at the bottom of the panels are larger to let light through and get smaller towards the top.









