

CONTENTS
2025/ present
MA 4th year 2022-23
BA hons 3rd year 2019
BA hons 3rd year 2018
BA hons 2nd year 2018
2019 - 2022
Curriculum Vitae
Up-to-date resume and profile
The Drive Beyond Rationalism - Amsterdam, Netherlands
Design studio : on-going 4th year project
Die Tempelhof Schraube - Berlin, Germany
Final design studio module : designing a workshop & exhibition
Diogene : Micro-Home
Technology & environmental studies module : to design a 15m2 micro unit
Entropy [home made] - Leicester, UK
Design studio module : designing an adaptable housing unit
Lovell Ozanne & Partners
Professional Practice : Part 1 Architectural Assistant
Mille Fleurs - private residential dwelling alterations&extension
LesButteries-privateresidentialdwelling:new build
Rue des Monts - residential development & biodiversityresearchproject

DORRITY SAMANTHA
PART 1 ARCHITECTURAL ASSISTANT
PROFESSIONAL PROFILE
After spending three months travelling across Western Europe and gaining inspiration from diverse architectural styles and cultures, I have now returned to the Island eager to apply my broadened perspective to new professional opportunities in architecture.
During my four years at Lovell Ozanne & Partners (Chartered Architects), I was involved in a variety of high-end residential projects at varying scales, as well as taking on the role of Contract Administrator for several small commercial developments. Working within a small, well-established practice provided me with valuable exposure to all stages of the RIBA Plan of Work, with a particular focus on Stages 0–4, while also allowing me to shadow projects through their later construction phases. Throughout my time in practice, I have consistently maintained my Professional Educational Development Record (PEDR).
My Part 1 studies concluded in 2019 at the Leicester School of Architecture, De Montfort University, where I was awarded a First-Class BA (Hons) degree and nominated for the RIBA Bronze President’s Medal, along with several other prestigious awards.
I consider myself an organised and dedicated individual, with strong attributes in drive, creativity, and the ability to think beyond conventional boundaries. I am enthusiastic about contributing to a collaborative architectural team where I can continue to develop my skills and professional experience.
EMPLOYMENT
20/05/202404/07/2025
12/08/201918/08/2022
2020 - 2022
25/03/2021
Lovell Ozanne & Partners Ltd.
Island House, Grande Rue, St Martin, Guernsey
Self Employed
Guernsey
Leicester School of Architecture
De Montfort University, Leicester, UK
Part 1 Architectural Assistant

Commissioning Artist : logo design, album artwork, prints
Part 1 3rd Year Guest Critic
04/06/201813/07/2018 2021 - 2022
PF+A
Guelles Court, Guelles Lane, St Peter Port, Guernsey
EXTRA-CURRICULA/ VOLUNTEERING
Temporary Architectural Assistant & Consulting Artist
3rd year : Weekends : Weekly beach clean volunteer with the Guernsey Clean Earth Trust
Nominated to complete a section of the BA undergraduate year book and the videos which were presented at the end of year degree show
2nd year : Participated in a 24-hour competition to design a free standing versatile & flexible display unit, run by the Leicestershire & Rutland Society of Architects
1st year :
Exhibited my final design studio project alongside a select few other student projects
SKILLS & INTERESTS
My creative interests include artist commissions; writing and playing live music; modelling for creative collaborative art projects, including a Nessi Gomes music video and modelling for Specsavers and the GYOne Magazine. I also enjoy being behind the camera on various projects from commercial to assisting with music videos. My physical interests include skiing, skating, surfing, slack-lining and singing. While at university I was part of the DMU snow sports freestyle ski team, during the Varsity competition I placed 2nd for girls freestyle. I also participated in the girls 2016 relay marathon on behalf of Canaccord Genuity Wealth.



DORRITY SAMANTHA
PART 1 ARCHITECTURAL ASSISTANT

Guernsey, Channel Islands

GB : +44 (0) 7897 157418

samantha_dorrity@icloud.com

linkedin.com/in/saman tha-dorrity-799353180

@urban_salvation.studio

samantha_dorrity

Live: samantha_dorrity_1
Annalisa Spencer
Lovell Ozanne, Island House Grande Rue, St Martin Guernsey
GY4 6RU aspencer@lovellozanne.com
Frank Breheny De Montfort University
Leicester
United Kingdom
LE1 9BH
fb36b@hotmail.com


Nominatedforbestdesignprojectproducedat RIBAPart1orequivalent.
Awardedforachievinganoutstandinglevelof designworkwithintegratedtechnology.
Selectedasthemostoriginalandcreativework producedbyDMUstudents. AwardedbytheArtsdept.atGuernseyGrammar School&SixthFormCentre Christopherson Collection Prize
SUBJECTS GRADE
Short-listed designs combined & built over summer2019.Iparticipatedinearlyconstruction.
EDUCATION
The Bartlett School of Architecture University College London
Leicester School of Architecture De Montfort University
Guernsey Grammar School & Sixth Form Centre
St Sampson’s High Secondary School
Hautes Capelles Primary School




















RIBA Bronze Presidents Medal Nomination

Head mechanism concept - sketch notes .1


MIRROR MECHANISM MODEL .01
A photographic documentation





My project initiates with an investigation into the concept of a ‘mirrored reality’ and the threshold between realms. The research is driven by my curiosity and fascination with the unknown. The unknown, if interpreted as a tangible space, is a place to create and articulate - a space open to interpretation, endorsing subjective imagination.
How can a vague notion of the unknown become an accessible, tangible realm?
This route of questioning led me Chris Marker’s 1962 film; ‘LeJetée’, the male subject would wear a surgical mask while undergoing physical and psychological torture with the objective to time-travel into another period when the German’s aren’t about to loose the World War - the glimpse into this other realm was experienced through the subjects memories.
This is inspired me to create an experimental apparatus, ‘The Mirrored Mechanism’. The head device allows the subject to remain present in this realm, while simultaneously altering pre-conceived conceptions of how thing ‘should’ be.
The device manipulates the subjects vision, at first disorientating the subject until setting focus and stabilising - making the scene navigable. The mind initially feels uncomfortable and confused by the mirroring juxtaposition and varying levels of opacity. Thus, the image before the subjects eyes and what the brain is registering differ. An objects size, scale and mirrored geometries are warped while the mind legitimises the scene.



THE THRESHOLD TO A TANGENT REALITY

FRAGMENTING THE ‘FLAT’ IN AR
A









We become strangers in familiar environments, provoking an opportunity to rediscover the city and re-engage like never before. Something once taken for granted becomes the centre of attentionthe line between foreground and background diminishes. It is with this notion that my project seeks to encourage dwellers to re-discover the city and provide the apparatus to stimulate imagination in order for a new narrative to be told.
Sadler notes in his book ‘TheSituationistCity’ (1999, p.5) that “the benign professionalism of architects and design had led to a sterilization of the world that threatened to wipe out any sense of spontaneity or playfulness.”
My project aims to address the sterilization of modern society through a series of small scaled architectural installations spread across nine sites across the city of Amsterdam. These architectural installations will positively ignite “unitary urbanism (urbanisme unitare)”, re-establishing the very essence if the drifters voyage as they map the labyrinth which is Amsterdam.
Amsterdam is my chosen city for it has strong pre-conceived ideas of what can be discovered in the city and has become British tourist destination, attracting an increasing amount of so-called ‘lad’ culture. Amsterdam, unlike many British cities, is highly pedestrianised - making it the ideal candidate to drift and observe it’s tourists and local citizens alike. Sadler cites Debord explaining that “‘the mistake made by Urbanists is to consider the automobile... essentially as a means of transportation,’” (1999, p.25).
Thus, our commuting time is social-spatial time which is lost and only adds to the alienation and disconnection that is poisoning our society. Understandably this logic contradicts rationalist planning structures - then again, maybe it’s time to acknowledge how capitalistic development is ridding urban infrastructure of spontaneity.

Watch Me
Watch Me
Try Me

THE OPTICAL BOX
Rationalism - refining the ‘optical box’ - sketch notes .3



For true spontaneity to occur, the subject needs to be provided with the freedom ofchoice . The proposed architectural installations will effectively act as ‘follies’, seeking no capital gain from its passers - existing only as a moment in time where one can be present, an observatory tower of sorts and eventually, if possible, a ‘Thompson ’ . The instalments exist as a social-spatial architecture, serving spaces between places, inspiring a ‘ psychogeographic’intimacy between environment and human emotion, weaved into the city and its ‘LabyrinthineClarity ’ (a notion established by Van Eyck), facilitating chance encounters throughout the city intersections.

The Optical Box serves as a compositing device that enables chance encounters to be rein-acted through a theatrical type montage of the cities intersecting situations. The series of scenes have been extracted from the back alleys of Amsterdam, effectively unmasking the cities identifiable facade to discover what may lurk behind the curtain. It is through the use of the optical box that I am able to observe the city like a peep-show and access how and where my installations can best serve my purpose, society and the city.


THE OPTICAL BOX
A photographic documentation - working progress

The Optical Box exists both in the digital realm and as a carefully hand crafted device. The above is a digital render of the device composed in a photographic studio. The setup is both for scenic and practical purposes - the lights and their positioning are functional in the scene. This digital recreation serves the process of combining the hand made model with CGI effects. The two models then merge using Adobe Aero (AR - augmented reality), when holding the camera lens of a phone through the viewing lens, the application recognises images in the scene, effectively acting like a QR code.
SITUATION
Once the registered image falls into frame the scene will come to life through digital animation. Through this medium the theatrics can be experience in real-time, as well as in postproduction through stop-motion-animation. The stop-motion is still a work in progress and will be completely alongside the finalisation of my fourth year project. Click ‘Watch Me ’ or scan the QR code to view the animation introduction.
IDENTIFICATION









Intersecting waterways with drifting voyages throughout the city - points of intersection have been identified as sites of interest.





The craftsmanship that goes into making model boats and airplanes is an art which is often overlooked, nothing more than a hobby confined to a garden shed. Die Tempelhof Schraube celebrates creativity by collating communities, responding inventively to accessibility and encouraging learning through the use of working educational spaces.
The initial design developed from irrational shapes which were abstracted from images relating back to the building’s sole purpose: ‘the working shed’. These irrational forms transitioned into conceptual sections, rationalised through the use of the ‘Programme Plan Diagram’. The ‘PPD’ is an algorithm that calculates the number of functional spaces required and their corresponding areas using the following variables; machinery, materials, components, and workshop facilities.
The main architectural focus comes from an engineering perspective. A 28m tall Archimedes screw powers a spiral elevator that flows throughout the Vantablack exhibition space, using the art of kinetic energy to transfer surrounding pond water throughout the building. The transfer of water allows the surrounding landscape to become one with the architecture. The idea of kinetic energy stimulating the architectural response was derived from the craftsmanship in making the Pendulum Harmonograph - a drawing machine invented by Hugh Blackburn.

The conceptual section combines a variety of different outcomes of conceptual design solutions as a response to the site and programme. The complex section is made up of three sections merged together, they open the eye to more possibilities through overlaps creating interesting architectural spaces. It gave an essence of what the character of the spaces should be with regards to function, lighting, scale, materiality, above/below ground and the transition between spaces etc.
The use of light and dark shading allowed the two-dimensional drawing to be interpreted on multiple levels, giving hints at what its three-dimensional form could be in the early design stages of the project.

DECONSTUCTIVISM



The ‘Alter-Park’ transcript translates poetic reviews made in Tempelhof, Franckepark and corresponding Alter Park. This allowed for an honest interpretation of how people felt when within the perimeters of the park, as well as identifying how the park was used by both locals and visitors. “Ich nutze diesen Park, besser gesagt den großen Teich, um meine Modellboote fahren zu lassen” translates to; “I use this park, or rather the big pond, to drive my model boats” - it was from this translation that the basis of the project began.


‘The working shed’ is a photographic documentation of the chaos which is a Father’s hobby workshop. The working shed is located in a back garden and is primarily used as a recreational space to craft model airplanes. The documentation allows you to analyse the working environment, giving a greater understanding of what components, machinery, materials and facilities will be needed to create the programme.


‘An abstraction of line and form’ is a deconstructive process which breaks down an image and translates it into a working drawing. The first abstraction was based on directional lines visible in the scene, the second was to view the image as light and shadow, this created bold irrational forms.

‘Cut-out components’ - a process translating the extracted twodimensional lines into three-dimensional forms. The cut out components are composed differently to form the following 9 irrational iterations. The iterations will be processed through the irrational to rational converter, otherwise known as the ‘programme plan diagram’.





[1]
[2]
[3]
[4]


PROGRAMME PLAN DIAGRAM
The ‘Programme Plan Diagram’ is an algorithm that calculates the number of functional spaces required and their corresponding areas using the following variables; machinery, materials, components, and workshop facilities. In theory, formula sets up the equation so that form follows function.



FROM ITERATION TO IDEA




Three iterations were put through the programme plan diagram algorithm, iteration 5, 7 and 9. Starting as a shape, they are transformed into ideas, concepts and responses to both site and purpose. Each iteration illustrates a different interpretation of the requirements for the space. There are overlaps between the sketch sections, they each involve a connection to the water, whether it be under water viewing platforms or submerged walkways, the building always remains connecting to the surrounding pond water on site. Iteration 5 and 7 both demonstrate the need for a tall exhibition space which show cases hanging planes in a dark never ending void. Additionally, each sketch visions the building becoming somewhat of an obstacle course for the use of the models constructed in the workshop. Each workshop is positioned so that its views are framed over the pond, receiving north ideal lighting conditions. Finally, a glazed cafe is stretched above a waterfall, it represents the idea of tranquillity and creates a contrast between the loud heavy machinery and relaxing sound of trickling water. The plan (top left) starts to convey a solution to the combination of ideas.

THE GREEN ONE


Kinetic sculpture. Iteration 5, 7 and 9 transition from two-dimensional sketches and become three-dimensional viewing portals, each model is made out of water-jet metal sheets and cast into a plaster base to represent where the ground would sit, the metal off-set from the base would be either submerged or suspended over the ponds surface. The buildings form becomes clear in the two and a half dimensional section. Architecture does not exist without its inhabitants, the ‘green workshop’ populates the section with functionality and people, giving early suggestions into the spaces which are being created bringing the project to life.

The green workshop initiates the idea of kinetic energy becoming part of the architectural response. The Archimedes screw was of particular interest for this Archimedes screw, or Egyptian screw, is a machine used for transferring water from a low-lying body of water into irrigation ditches. Water is pumped by turning a screw-shaped surface inside a pipe. The green workshop takes the practicality of this instrument and uses it inventively and architecturally on a much larger scale.


THE VIEW FINDER
The collaborative process of combing ideas is not always the easiest. The metal cut-out sections functioned somewhat as a view finder. It provided a portal to see opportunities that weren’t visible without such a tool.
The four digital visualisations address the task of reconfiguring the section so that it can become a three-dimensional form.






FROM SWING TO SCREW


The idea of kinetic energy stimulating the architectural response was derived from the craftsmanship in making the Pendulum Harmonograph - a drawing machine invented by Hugh Blackburn.
A harmonograph is a mechanical apparatus that employs pendulums to create a geometric image. One pendulum moves the pen back and forth along one axis and the other pendulum moves the drawing surface back and forth along a perpendicular axis.
Energy in a pendulum : in a simple pendulum with no friction, mechanical energy is conserved. Total mechanical energy is a combination of kinetic energy and gravitational potential energy. As the pendulum swings back and forth, there is a constant exchange between kinetic energy and gravitational potential energy.
In physics, the kinetic energy of an object is the energy that is possesses due to its motion. It is defined as the work needed to accelerate a body of a given mass from rest to its stated velocity. Having gained this energy during its acceleration, the body maintains this kinetic energy unless its speed changes.
The 28m tall Archimedes screw uses kinetic energy to power a duel elevator system, the technology behind this apparatus was influenced by both elevator and roller-coaster systems, including “The Vessel” elevator in New York, designed by Heather Wick studios. The Vessel similarly moves on more than one axes. The elevator path spirals down through the exhibition space, this spiral formation is a direct reflection of the Archimedes screw on the exterior of the building.

The duel elevator system allows for the transfer of water through the two pods, without two pods, there would be no equilibrium and no transfer of weight. In theory, as one elevator is going down the spiral, its twin will be making its way back up.
The energy to power the Archimedes screw is out-sourced from a proposed macro-energy wind farm at Tempelhof airport air-field. The sustainable electrical energy produced gets converted to mechanical energy, which is finally transformed into kinetic energy.









A VISUALISATION


der workshop - the workshop


untergetauchter weg - submerged walkway

ansicht mit einer schraube - view with a screw
das dach cafe - the roof cafe
alle einsteigen - all aboard

THE BIG IDEA
The way one thinks. Throughout a project ones thoughts are somewhat disjointed and delusional, this photo/ drawing montage conveys how the different ideas were collaborating in thought. This is not a drawing for the eyes of others but more a tool of thinking.
The continuous repetition of water towers represents the industrial aesthetic that Die Tempelhof Schraube was inspired by. The drawing is divided into 3 triangles. The triangle on the right represents the buildings connection with the water, the left triangle illustrates the connection to the wider context and the idea of sourcing renewable macro energy from a proposed wind farm at Tempelhof air field; distributing the energy to the wider community. Finally, the large middle triangle highlights the history of Berlin and Tempelhof, identifying architectural styles and responses in the immediate area. Along the top of the collage are references to the 9 original iterations from which the project began.



Figure1.
TheBauhaus,aGermanwordmeaning“houseofbuilding”,wasa schoolfoundedin1919inWeimar,GermanybyarchitectWalter Gropius.Theschoolemergedoutoflate-19th-centurydesiresto reunitetheappliedartsandmanufacturing,andtoreformeducation. TheBauhausmovementischaracterisedbyeconomicsensibility, simplicityandafocusonmassproduction.
Figure2.
The establishment of the army’s airship division in 1885 made TempelhofafertiletestinggroundforaviationpioneersofallkindsthefirstGermanaerialphotosweretakenherein1886,andbetween 1888&1899,professorRichardAbmassoversawaseriesofmanned andunmannedballoonflightsfromTempelhof.Itwasfirstusedas aproperairportin1922-militaryheritage.Tempelhofwasused asaprisonwhentheNaziscametopower,in1934theoldmilitary detentionbuildingatthenorthofthefieldbecamethesiteofBerlin’s firstofficialconcentrationcamp.
Figure3.
Wohnbebauung/residentialdevelopmentTempelhoferDamm4446.
ThesetworesidentialbuildingsaresituatedoppositeTempelhof airport,whichwasdesignedbyErnstSagebielandbuiltfrom19361941. They form a new, striking and architecturally appropriate entrancesettingforthe>>Tempelhoffield<<residentialestatebuilt byvariousarchitectsbetween1920&1930toanurbanplanning designbyFritzBrauning.Theinitiallyirritating,apparentlycompact &monumentalappearanceofthetwobuildings,whicharearranged symmetricallytoeachother,iaresultofthedesignconceptwhich deliberatelyreactstothebusyTempelhoferDammandthedominant formoftheairportbuilding.Toprotecttheresidentsfromnoise &pollution,awidecorridororarbourisplacedinfrontofthe apartmentsonallstoreys.



TECHNICAL DETAILING








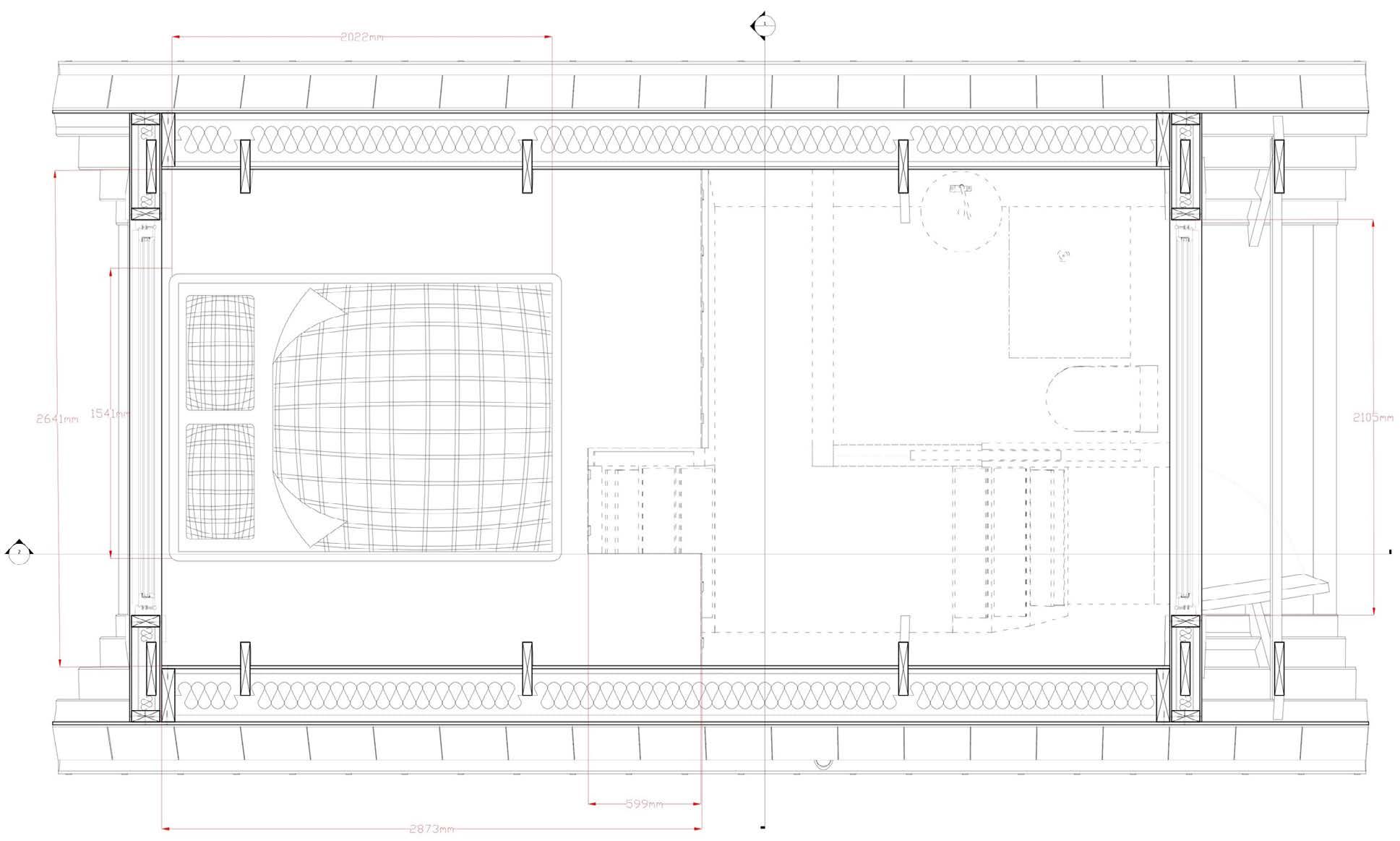
Technology & environmental studies module : to design a 15m2 micro unit. The unit has been designed for off-grid living that is also mobile. The most prominent design features are its pentagonal form which creates a more spacious feel and the oxides copper panels which has been used to clad the micro-home. The oxidisation process creates a very distinctive aesthetic, that is not only beautiful and authentic, but long lasting and resistant.
Inside the space is divides up so the shower space and kitchen are open entrance, with double height over the kitchen to promote ventilation in the small space, along side windows on both sides to allow for cross-ventilation. The back of the micro-home is where the living space will be, it has a lower ceiling to promote cosiness. Finally, above the lounge is a mezzanine level which takes you to the semi-private bedroom/ sleeping quarters, this will be accessed through a built in ladder.



GROUND FLOOR PLAN


M
ELEVATIONS



Front Elevation

Lap joints are used to hold the pentagon shaped frame-work together. These joints are stiffened with a steel plate and then bolted. The rigid joints support the structure, therefore minimise the amount of additional bracing required. Vertical and horizontal joints keep the framework sturdy. This timber frame is bolted into the floor joists and battens which are wedged between the four I beams which join into a rectangle at the bass. The I beam has wood layered on either side which allows for vibrations in the structure since it is mechanical. The trailer frame is attached to the I beam structure/ The steel trailer frame and its suspension provides extra support to the timber frame.
De-construction
Each part of the structure is bolted together. Therefore can easily be disassembled and reassembled. The internal dimensions of the space created (2.4m x 6m) allows for the dwelling to fit into the 20ft ISO container.
EXPLODED STRUCTURAL ISOMETRIC S







THE ADAPTABLE HOUSING UNIT

Entropy is commonly associated with the amount of order, disorder, or chaos in a thermodynamic. Chaos theory is a branch of mathematics focusing on the behaviour of dynamical systems that ‘chaos’ is an interdisciplinary theory stating complex systems, there are underlying patterns, loops, repetition, self-similarity, fractals, self-organisation and reliance on programming at the initial conditions. This theory is evident in the design which is reflecting upon the child friendly ‘jungle gym’impractical for people with disabilities, something to make a child go ‘wow’. The sampling diagram illustrates the strict order the programme of the building follows - it is not random.

Isometric - diagrammatic photo montage




Figure 2. Brother Dean in physio therapy
Figure 1. Children’s jungle gym

SAMPLING DIAGRAM










Perspective 1 : Travelling Through Tunnels

ADAPTABLE ROOM ITERATIONS












Existing Long Section A-A
Existing Long Section B-B
Proposed Section A-A
VISUALISATIONS




Perspective 2 : Green House Interior

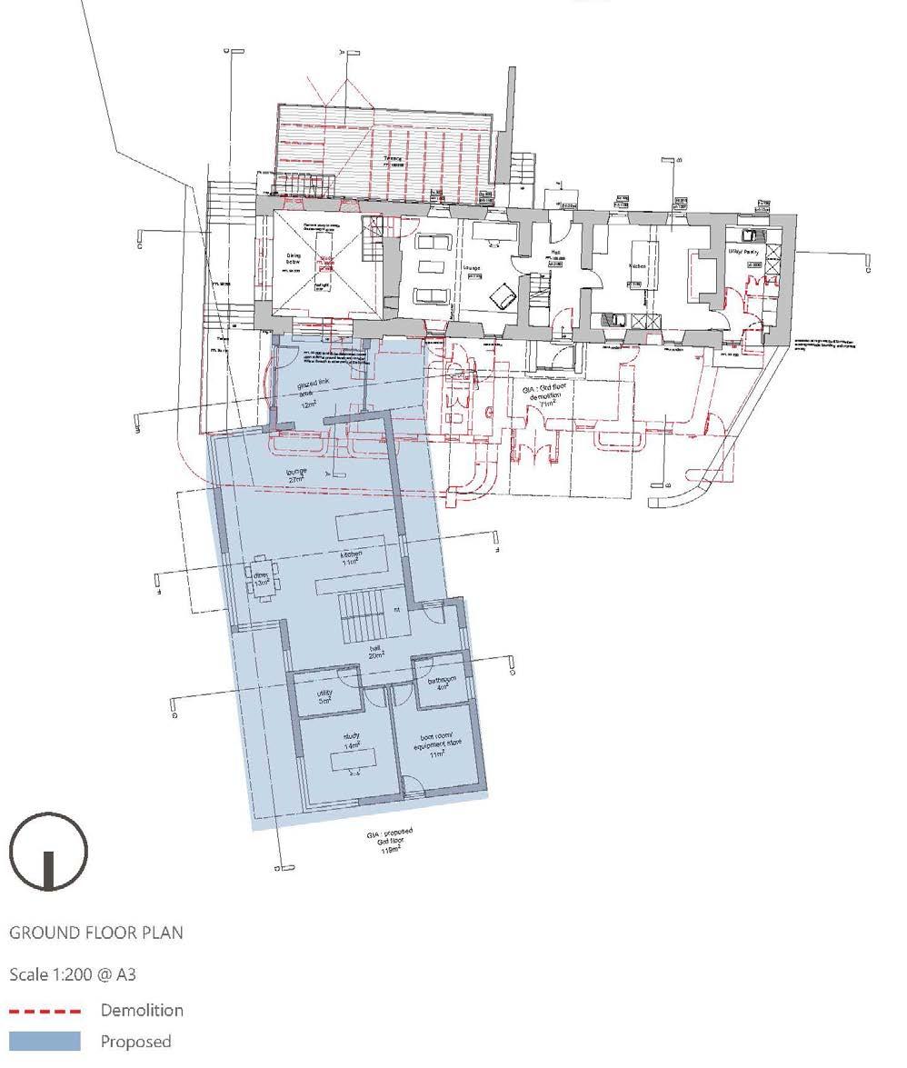
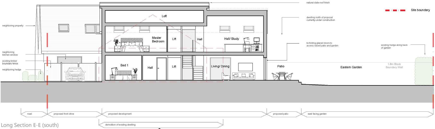
MILLE FLEURS
I have been working on Mille Fleurs for the past 3 years. We achieved planning permission for our first scheme. The client wishes to develop an old traditional Guernsey dwelling into a tall, spacious and liveable space. The scheme is to demolish a portion of the existing and extend out into the surrounding landscape to create an immerse ‘tree house’ feeling. I have been heavily involved in every stage of the project, including directly liaising with the client.



MILLE FLEURS

Proposed section







LES BUTTERIES






Les Butteries was my first project which I worked on independently from initiation to achieving planning approval. I directly liaised with the client when designing and developing the scheme, as well as writing the Island Development Plan policy comment. The proposal is now under construction.








RUE DES MONTS
Residentialdevelopment&biodiversityresearchproject
Biodiversity bat & bird boxes
BIODIVERSITY BAT & BIRD BOXES
The act of incorporating an “Animal Wall”, an ecologically artist feature, will not only increase the biodiversity of the site by restoring and creating habitats, but will also be an interesting architectural response to the north facade. It will break up the facade since the facade has no window or doors. The nakedness of the facade works in favour of the animal wall as doors and windows would hinder its effectiveness. Additional, the north facade provides ideal lighting conditions for birds, reducing the amount of solar gain their nests will receive.
The act of incorporating an “Animal Wall”, an ecologically artist feature, will not only increase the biodiversity of the site by restoring and creating habitats, but will also be an interesting architectural response to the north facade. It will break up the facade since the facade has no window or doors. The nakedness of the facade works in favour of the animal wall as doors and windows would hinder its effectiveness. Additional, the north facade provides ideal lighting conditions for birds, reducing the amount of solar gain their nests will receive.
Bat houses should be at least 10 feet above ground, and 12-20 feet is better. Best location on your house is the east or south for bats and north for birds.
Bat houses should be at least 10 feet above ground, and 12-20 feet is better. Best location on your house is the east or south for bats and north for birds. Bat and bird houses should not be installed above doors or windows where guano will fall or accumulate in an inconvenient location. Bat houses can be installed anytime of the year. The entrance hole size will be determined by the species: 25mm for blue, coal & marsh tits, 28mm for great tits, tree sparrows and pied flycatchers, 32mm for house sparrows and nuthatches, and 45mm for starlings. Bird boxes should be fixed 2-4 metres up a wall.
Bat and bird houses should not be installed above doors or windows where guano will fall or accumulate in an inconvenient location. Bat houses can be installed anytime of the year. The entrance hole size will be determined by the species: 25mm for blue, coal & marsh tits, 28mm for great tits, tree sparrows and pied flycatchers, 32mm for house sparrows and nuthatches, and 45mm for starlings. Bird boxes should be fixed 2-4 metres up a wall.
PRECEDENT IMAGE : GITTA SCHWENDTNER
Precedent image : Gitta Schwendtner


Examples of how Bat and Bird boxes are technically incorporated into architectural design - sourced from the RIBA Designing for Biodiversity book by Kelly Gunnell, Brian Murphy and Dr Carol Williams. Bird and bat homes can also be incorporated into Structurally Insulated Panel Systems (SIPS).
and Dr Carol

Source: https://www.dezeen.com/2009/08/28/animal-wall-by-gitta-gschwendtner/
Bird and bat homes can also be incorporated into Structurally Insulated Panel Systems (SIPS).




London designer Gitta Gschwendtner’s Animal Wall (a site specific ecological artwork) : large scale public art installation providing 1000 bird and bat boxes in Cardiff.
The 50 metre long wall separates a residential development of 1000 new apartments from the adjacent riverside path. The approach taken for this artwork is to assist wildlife in the area and encourage further habitation.
adjacent riverside path. The approach taken for this artwork is to assist wildlife in the area and Through consultation with an ecologist, four different sized animal homes have been developed, which have been integrated into a custom-made woodcrete cladding to provide an architecturally stunning and environmentally sensitive wall for Century Wharf. The animal wall also transcends the barrier between the private and the public, with the wildlife roaming freely between the two areas.
Through consultation with an ecologist, four different sized animal homes have been developed, which have been integrated into a custom-made woodcrete cladding to provide an architecturally stunning and environmentally sensitive wall for Century Wharf. The animal wall also transcends the barrier between the private and the public, with the wildlife roaming freely between the two areas.



Bird and Bat box 1MF. The 1MF contains two nesting chambers for swifts, each with its own entrance. A recess in the near panel creates a space between the wall of the building and the box for use by bats. The box is hung from a galvanised mild steel mounting plate. It can also be built into the brick work.




Examples of how Bat and Bird boxes are technically incorporated into architectural design - sourced from the RIBA Designing for Biodiversity book by Kelly Gunnell, Brian Murphy
Bird and Bat box 1MF. The 1MF contains two nesting chambers for swifts, each with its own entrance. A recess in the near panel creates a space between the wall of the building and the box for use by bats. The box is hung from a galvanised mild steel mounting plate. It can also be built into the brick work.
Swift Box Type 25. This box is for swift nesting and is installed into walls of buildings and structures.
