Samantha Samulis Interior Design Portfolio

Page 1

Interior Design Portfolio

Samantha Samulis

Bellevue College

Expected Graduation: June 2025

Public

Adaptive reuse of former brewery to an indoor marketplace and public passageway

Retail

Interior of the Northwest flagship for a surfboard company

Café

Train

Remodel of cafe with a focus on lighting design

Lounge and dining car for a slow-travel excursion

Chairs

Three chairs inspired by different genres of the Modernism design movement

12
1
24
33
38
INDEX

PUBLIC SPACE

Community through openness

01

PROJECT

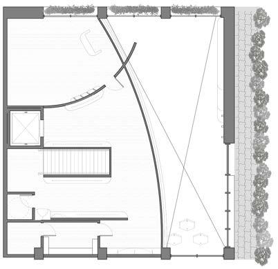
Repurposed a 16,000 square foot commercial building to serve the community as an indoor marketplace for small business owners to have a physical retail location. Merchants and makers build community with each other in the private breakroom and with the community via open passages, wide, welcoming storefronts, and abundant public seating areas. Shopping experience resembles an indoor farmer’s market with open, welcoming entrances to vendor shops.

DESIGN CONCEPT

Create safety and connection through an interplay of openness, movement, and balance with physical barriers yielding to a sense of expansiveness, allowing for seamless transitions and a fluid flow of energy. By prioritizing transparency and intentional circulation paths, the design enhances safety through visibility and accessibility, promoting a sense of connectivity.

Inspired by the balanced architecture of covered Parisian walkways and the fluidity of Art Nouveau and regularity in geometry of Art Deco. Curvilinear details in a soft palette guide movement and add whimsy, softening the elements of strength and safety such as wide columns, expansive arches, and solid materials.

02 PUBLIC SPACE
OVERHEAD RENDERING IN SITU ORIGINAL USE: BREWERY IN SEATTLE’S CAPITOL HILL

PARTI DIAGRAM

Wide circulation paths highly accessible from other spaces

SPACE PLANNING

Creating safety and connection through interplay of openness and movement.

Passages

Merchant Shops / Storage

Café

Visitor Restrooms

Merchant Refuge

Entrances

Classroom

Table Seating

Lounge Seating

HVAC and Storage

High ceilings in primary passageway creates sense of expansiveness

COLOR PALETTE

Openness achieved through visibilty between spaces and across pathways

The palette is anchored in light wood and earth tones to reduce visible distraction and allow products to be the focus.

High visibility from
Everyone Merchants Public High Separation Medium Separation Low Separation PROCESS PUBLIC SPACE 03
shops
FLOOR PLAN N SCALE 1/10” = 1’ 04 20' - 0" 10' - 0" Trash PROGRAM 1 2 3 4 5 6 7 8 9 10 11 12 13 14 Classroom Lounge Seating Food Vendor Display Window Café Seating Café Shops Outdoor Seating Public Restrooms HVAC Storage Staff Restrooms Staff Lounge Restroom Waiting 1 2 3.1 3.2 3.3 4 5 6 7.1 7.2 7.3 7.4 7.5 7.6 7.7 7.8 7.9 7.10 8 9 10 11 12 2 1 14.1 14.2
Amethyst tile inspired by glass insets in old neighborhood of Seattle inspire purple tile work in main passage.
SECTIONS
Interior walls covered in Olive Green powder-coated aluminum wall siding by Mcelroy Metal
TABLE SEATING / CAFE
1’ 10”
RENDERINGS & DETAILS PUBLIC SPACE 06
CUSTOM BRASS SCONCE in Passageways and Restrooms
RENDERINGS & DETAILS PUBLIC SPACE 07
MERCHANT BREAKROOM CUSTOM BRASS and QUARTZ TABLES in Breakroom, Lounge, Cafe, and Classroom. Various sizes Bernhardt Design Bardot Sofa and Chairs CUSTOM BRASS CHANDELIER 12’ 9” COFFEE BAR
RENDERINGS & DETAILS PUBLIC SPACE 08
Dropped ceiling element of Nordic Ash wood veneer and acoustic felt CUSTOM BRASS LINEAR PENDANT in Classroom and Coffee Bar 16’ 6”

Nordic Ash premium wood veneer by Parklex in style

Prodema on walls. Solid wood Nordic Ash on bench seating

CUSTOM CONCRETE and QUARTZ

OUTDOOR TABLE on Patio

CUSTOM BRASS and QUARTZ TABLES in Lounge

LOUNGE SEATING

Custom
coated steel pergola Craftex cement wall covering in Acero
PATIO SEATING
powder
L
H 15” D 18”
3’ 3”
RENDERINGS & DETAILS PUBLIC SPACE 09
L 7’ 3” H 3’ W 3’
CUSTOM TRUNK IN NORDIC ASH VENEER AND POWDER COATED ALUMINUM W 4’ 6” H 3’ 2” D 2’
RENDERINGS & DETAILS PUBLIC SPACE 10
STOREFRONT
PUBLIC RESTROOM
EcoTerr terrazzo slab flooring in Misty Grey throughout building
RENDERINGS & DETAILS PUBLIC SPACE 11
RESTROOM WAITING AREA Nordic Ash premium wood veneer by Parklex in style Prodema on walls throughout

RETAIL STORE

Harmony through meditation

12

PROJECT

Design interior of Channel Islands Surfboards retail store in downtown Seattle, satisfying established program requirements including a space for a non-sport activity that complements the brand.

DESIGN CONCEPT

Achieve harmony with nature through meditation and serenity. Creating moments of solitude with variations in scale, reflecting the human body compared to the natural world. The concept relfects the meditative and awe-inspiring experience of being alone on a surfboard, or climbing a mountain, surrounded by the power and strength of nature. Horizontality of a coastline or yoga mat balance promotes serenity. Large, vertical planes emphasize scale compared to the human body.

Yoga and meditation studios influence the clean design with smooth planes and a foundation of consistent, neutral colors seen in nature. Materials emulate textures found on Washington’s rocky beaches while cliffs along the coastline inspire vertical scale and forms.

13 RETAIL STORE
INSPIRATION & CONCEPT
Storied brand heritage with a focus on performance, quality, and design. Guided by precision through technology and innovation.

Large openings and waterfall, or cliff-like, structures explore scale within the two-floor existing building.

Horizontality of partitions balance vertical planes and divide space into quadrants.

PROCESS RETAIL STORE 14
1 2
3 MODELS 5 4

MATERIALS

BUBBLE DIAGRAMS

Ease of access to primary spaces such as retail and consultation.

Floor 1
Santa
Floor 2
Feature wall siding based on
Barbara flagship store exterior
PROCESS RETAIL STORE 15
SOUTH SECTION 3 N SECOND FLOOR PLAN 2 FIRST FLOOR PLAN 1 0 4 14 8 7 PLANS & SECTIONS RETAIL STORE 16 0 4 14 0 4 14 EAST SECTION 4 0 4 14 6 3 4 3 5 4 PROGRAM 1.1 1.2 1.3 1.4 1.5 1.6 1.7 1.8 1.9 1.10 1.11 1.12 2.1 2.2 2.3 2.4 2.5 HVAC I Storage Employee Restroom Elevator Fitting Room I Waiting Area Restroom Café Retail Area I Entry and Lounge Consultation & P.O.S. Workshop HVAC II Fitting Room II Yoga Studio Retail Area II Storage II 1.1 1.2 1.3 1.4 1.5 1.6 1.7 1.8 1.9 1.10 1.11 1.12 2.1 2.2 1.4 2.3 2.4 2.4 Open to Below 2.5 1.11 1.9 1.8 1.6 2.3 2.3 1.7 1.8 1.5 1.4 1.3 1.2 1.1 2.1 2.2 2.4
EAST ELEVATION 7 NORTH ELEVATION 8 0 2 6 4 0 2 6 4 ELEVATIONS RETAIL STORE 17
Red cedar shake wall Walnut veneer shelving
and
top LED illuminated acoustic panels
Hammered brass display bench Stacked
glass base
concrete
PERSPECTIVE VIEW OF EAST ELEVATION PERSPECTIVE RENDERING RETAIL STORE 18

Boardformed concrete displays

Floor 1 Floor 2
OVERHEAD AXONOMETRIC VIEWS RETAIL STORE 19
Cedar shake wall paneling

CONSULTATION & WORKSHOP

PERSPECTIVE RENDERINGS RETAIL STORE 20 Stacked glass partitions enclose the second floor and elevator shaft
C PERSPECTIVE RENDERINGS RETAIL STORE 21 ART INSTALLATION
Sculpture under stairs inspired by the tree of life on Washington’s Kalaloch Beach

An enclosed seat near the fitting room offers a quiet moment.

PERSPECTIVE RENDERINGS RETAIL STORE 22 RETAIL II
PERSPECTIVE RENDERINGS RETAIL STORE 23
YOGA STUDIO White oak ceiling slats Custom fluted travertine desk

CAFÉ

Gradual awakening

24

While maintaining general floorplan, redesign cafe including materials and architectural details, emphasizing lighting. Define brand with store name and logo.

Daybreak Café MATERIALS PALETTE

DESIGN CONCEPT

Gently guide visitors into the start of their day with a gradual increase in energy as they move further into the space. The simplicity of clean lines, uniformity, and solid forms create a peaceful environment. Stepped details emphasized by lighting represent a peacful transition from the calming first floor lounge seating to the more collaborative second floor.

Inspired by the sun rising over the city skyline or a mountain range and the solid form, movement, and lines of the Modern Streamline design movement. Horizontality of a sunrise inspires the shapes of lighting and architectural details. Materiality is industrial, anchored in concrete and plywood to reflect the solidness of city streets as well as light, neutral-toned wood to elicit the feeling of placing feet on a warm wood floor upon first awakening.

PROJECT
25 CAFÉ
INSPIRATION & CONCEPT
LIGHTING DIAGRAMS & INSPIRATION 26 FLOOR 1 STORAGE RETAIL COFFEE BAR STAIRS DOUBLE HEIGHT ENTRY CONFERENCE ROOM MEETING AREA
LOUNGE BOOTHS KITCHEN RESTROOM
FLOOR
2
1. Recessed LED striplight in millwork behind banquettes 2. Recessed LED striplights in concrete shelves 3. Recessed strip light grazing feature wall
5.
lighting 6. Integrated linear striplight illuminating glass 1 2 3 4 CAFÉ 5 6
4. LED Luminous surface light integrated with ceiling fixture Curved pop up cove
27 FLOOR 1 GLOW PLAN 1 SCALE 1/4” = 1’ A B B C
C A B Belux Cloud Pendant
F F CAFÉ N
Hollis + Morris Anchor Sconce with custom etching Lambert et Fils Mile 04 Linear Pendant
28
D E Allied Maker Axis Sconce Cooledge Luminous Flush Mount
D E F F F CAFÉ FLOOR 2 GLOW PLAN 1 SCALE 1/4” = 1’
F Dado Gridline Recessed Strip
SKETCHUP & PHOTOSHOP RENDERING 29 CAFÉ

Gradient of color temperatures, becoming cooler, encouraging energy and collaboration, as visitors transition to the 2nd floor.

SKETCHUP & PHOTOSHOP RENDERING 30 CAFÉ

Cove lighting with recessed linear strips on curved, hard lid ceiling in concrete veneer

Recessed linear strip lighting behind booth seating against concrete wall detail

ENSCAPE & PHOTOSHOP RENDERING 31 CAFÉ
FLOOR 2 COLLABORATION SEATING FLOOR 1 LOUNGE SEATING & RETAIL
FLOOR 1 FEATURE WALL & STAIRS Recessed linear strip lighting under glass blocks and on concrete feature wall ENSCAPE & PHOTOSHOP RENDERING 32 CAFÉ

TRAIN CARS

Discovery through expansion

33

PROJECT

Design a dining and lounge car for an excursion by train through a chosen route. Satisfy program requirements within a train cars 10’ wide and 71’ long. The cars are designed for a journey through the Norwegian Fjords for a clientele seeking luxurious adventure as a couple or with friends.

DESIGN CONCEPT

Sparking curiosity and encouraging discovery through compression and expansion. The narrow confines of the space are embraced by cozy nooks and soft curves guiding movement, reflecing solid mass of the mountains and dynamic waters seen outside the train window.

The Norwegian Fjords lining the winding inlets of the Atlantic guide travelers on a path of adventure, beauty, and old world charm. The nostaligic mode of travel inspires rich, classic finishes balanced with contemporary Scandinavian restraint, as the trip begins and ends in the trendy city of Oslo.

34 TRAIN CARS
INSPIRATION & CONCEPT

MODEL

Modeling experimented with compression and expansion to create an entry, feeding into a transition space, leading into defined secondary and primary spaces.

FLOOR PLAN & SECTION TRAIN CARS 35
PROGRAM 1 Pantry 2 Restroom 3 ADA Restroom 4 Satelite Kitchen
Bar Seating 6 Dining Seating 1 1 2 3 4 5 6 DINING CAR FLOOR PLAN 1 SCALE 1/5” = 1’ DINING CAR SECTION A
5
7 Pantry 8 Restroom 9 ADA Restroom 10 Bar w/ Standing 11 Lounge Seating 12 Two tops LOUNGE CAR FLOOR PLAN 1 SCALE 1/5” = 1’ 7 8 9 10 11 11 12 LOUNGE CAR SECTION A PROGRAM FLOOR PLAN & SECTION TRAIN CARS 36
37 TRAIN CARS ISOMETRIC DRAWINGS
POWDER ROOM ADA RESTROOM DINING CAR LOUNGE CAR

CHAIRS

Exploring Modernism

38
Barcelona Pavillion, Mies van der Rohe, 1929.
International
Villa Savoye, Le Corbusier, 1931. Weightless volume Sharp austerity
INSPIRATION , PROCESS, ENSCAPE RENDERINGS CHAIRS 39
Thin, curved planes

Rounded forms Simple shapes

Playful primary colors

INSPIRATION , PROCESS, ENSCAPE RENDERINGS CHAIRS 40
Peter Keler, Baby Cradle, 1923. Paul Klee, Red Baloon, 1922 Marianne Brandt, Model No. MT 49, 1927.
Bauhaus
Practical material

Organic forms

Intense movement

Repeating, sharp edges

INSPIRATION, PROCESS, ENSCAPE RENDERINGS CHAIRS 41
Gino Severini, Detail of Dynamic Hieroglyphic of the Bal Tabari, 1912. Umberto Boccioni, States of Mind I: The Farewells, 1911. Umberto Boccioni, Unique Forms of Continuity in Space 1913.
Futurism
Blurred Texture

Turn static files into dynamic content formats.

Create a flipbook
Issuu converts static files into: digital portfolios, online yearbooks, online catalogs, digital photo albums and more. Sign up and create your flipbook.