Interior Design Portfolio 2024

Page 1

PORTFOLIO INTERIOR DESIGN STUDENT

Samantha Milam - Selected Works 2024

01 02 03 04

URBAN OASIS RAILSIDE REVELRY

Commercial/Hospitality

Hospitality

UNION CONNECT PALOUSE ELEMENTARY

Workplace

Educational

CONTENTS

URBAN OASIS

Project Type: Multi-use I Commercial + Hospitality

Skills Utilized: Revit, Twinmotion, Photoshop,

Photoshop AI

Date Completed: Spring 2024 I 4th Year

Group Member: Sydney Obmann

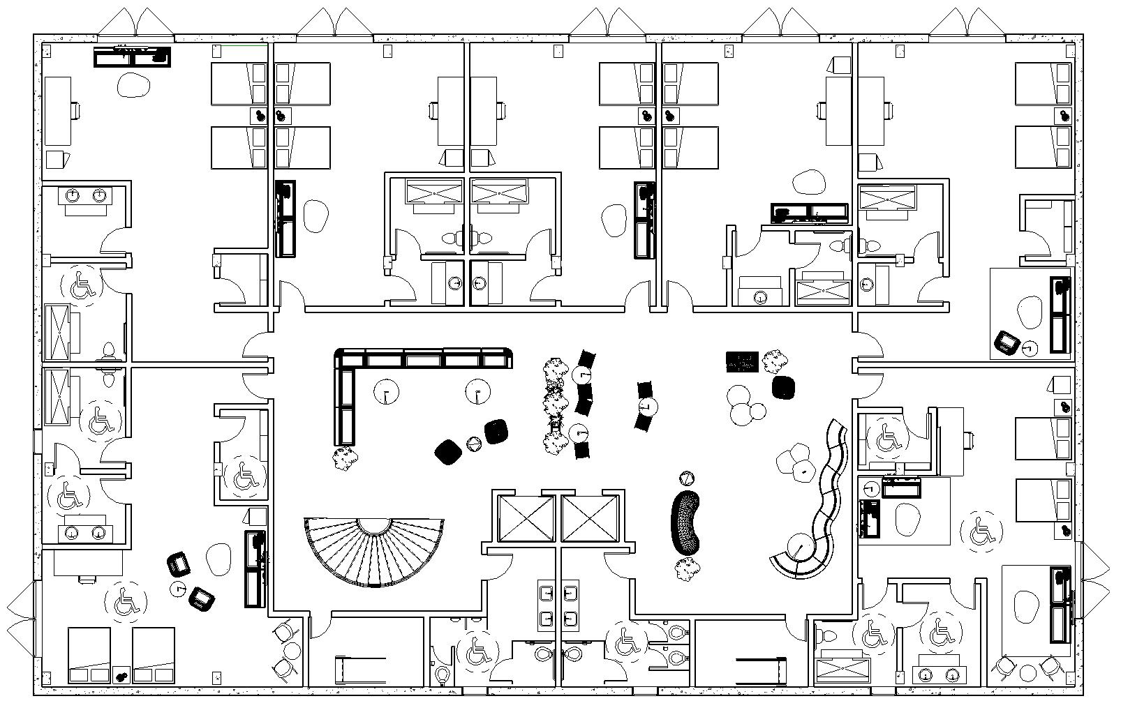
Urban Oasis is a research-driven project spanning four stories and featuring a diverse array of amenities such as a shopping center, yoga studio, fitness center, spa, dining areas, lounges, and hotel rooms.

Informed by extensive research on the Pink Tax and the link between fashion and mental wellness, this multifaceted design is dedicated to fostering equality, well-being, and inclusivity.

Research + Design Booklet

FOURTHFLOOR

THIRDFLOOR

SECONDFLOOR

01
FIRSTFLOOR
L1 Shopping Center Hotel Rooms L2 Shopping Center Spa Rooms Yoga Studio Bar + Restaurant Fitness Center Hotel Lounge 4
FIRST FLOOR LOBBY ENTRANCE 5

SECOND FLOOR SHOPPING CENTER

In Urban Oasis, biophilic design is a prominent feature, as it plays a crucial role in fostering user well-being by reducing stress and enhancing mood.

A centrally positioned planter bench by the main entrance on the first floor introduces biophilia and sets the tone for the user experience.

Throughout the multi-level shopping center, plants are seamlessly integrated, ranging from hanging foliage to a spiral plant feature that bridges the two floors.

N FIRST FLOOR PLAN
STUDIO MAIN ENTRANCE RECEPTION YOGA STUDIO CAFE LOUNGE EGRESS EGRESS RESTROOM RESTROOM L1 SHOPPING KITCHEN 6
YOGA

SECOND FLOOR RESTAURANT BAR

N SECOND FLOOR PLAN SECOND FLOOR
CENTER RESTROOM RESTROOM
SHOPPING
LOUNGE
BAR RESTAURANT OPEN TO BELOW OPEN TO BELOW
KITCHEN
7
L2 SHOPPING
SECTION B
A KEY PLAN N 8
SECTION

The third and fourth floors of Urban Oasis are designated as private areas. The third floor houses the fitness center and spa rooms, while the fourth floor is home to private hotel rooms.

In the pursuit of gender equality and inclusivity, the third floor features separate men’s, women’s, and gender-neutral locker rooms for users of the fitness and spa facilities. Additionally, each floor of the building is equipped with ADA-compliant restrooms.

The fourth-floor hotel rooms cater to diverse preferences, offering a range of accommodations from small to large rooms, including specifically designated ADA-compliant rooms.

To further implement an inclusive communal atmosphere, a spacious hotel lounge is situated outside the guest rooms, providing a private socializing space on this floor.

HOTEL LOUNGE N
PLAN N FOURTH FLOOR PLAN
SPA ROOM
THIRD FLOOR
RESTROOM RESTROOM RESTROOM RESTROOM EGRESS EGRESS RECEPTION FITNESS CENTER OFFICES
MEN’S LOCKER ROOM
GENDER NEUTRAL SPA ROOM SAUNA SMALL ROOM SMALL ROOM SMALL ROOM LARGE ROOM LARGE ROOM ADA ROOM ADA ROOM HOTEL LOUNGE 9
WOMEN’S LOCKER ROOM

02 RAILSIDE REVELRY

Project Type: Hospitality I Adaptive Re-use

Skills Utilized: Revit, Sketchup, Enscape, Photoshop

Date Completed: Fall 2023 I 4th Year

Railside Revelry is a bar and lounge nestled within the historic Steam Plant building on the campus of Washington State University. Using adaptive re-use, the basement level is transformed into a vibrant space and social hub, while still preserving Pullman’s heritage.

Fosusing on five main goals: design for Integration, Equitable Community, Economy, Well-Being, and Discovery, three main types of spaces were created, resulting in an open-concept bar, seating/dining, and various lounge areas.

Restroom Restroom Kitchen Multi-Purpose Rm. Storage Rm. Private Office N LEGEND - Bar Area - Seating/Dining - Lounge(s)
BASEMENT FLOOR PLAN FURNITURE + INTERIOR FINISHES 10
BAR FRONT VIEW

- Design for Integration

Weaving together history and inclusivity in the bar and lounge creates a social hub that celebrates Pullman’s heritage and fosters a sense of community.

- Design for Equitable Community

Equity is assessed by providing accessibility, offering educational avenues through culture and heritage, and ensuring spatial adaptability.

- Design for Economy

The bar and lounge offers new job opportunities for local residents and draws in visitors to Pullman, expanding on economic factors in the region.

- Design for Well-Being

Incorporates a diverse range of comfortable seating options, integrates biophilic design, and establishes a space for the community to unwind.

- Design for Discovery

The bar features a thematic design that sparks curiosity. Users are engaged with preserved artifacts that tell a story about the venue’s historical significance.

1 2 3 4 5
STEAM PLANT BASEMENT PLAN ANALYSIS
EAST LOUNGE VIEW
11
NORTH LOUNGE VIEW

03

UNION CONNECT

Project Type: Office Workplace

Skills Utilized: Revit, Twinmotion, LookX AI

Date Completed: Spring 2023 I 3rd Year

Group Members: Ingrid Noyes, Mia Pignotti

Sydney Obmann

Union Connect is an office space located in San Jose, Costa Rica, designed with a variety of spaces that allow for productivity and comfort within the workplace.

The circulation flow from second to third floor emulates the experience of Costa Rica, taking the user through two different atmospheres inspired by the region’s scenery.

SECOND FLOOR LOUNGE

CONCEPT DIAGRAM SECONDFLOOR THIRDFLOOR
12

Starting on the second floor, the vibrant colors of the flora are seen, encouraging a collaborative atmosphere for social interaction

One enters on the second floor and is welcomed by the reception desk and seating area, designed with a water feature on the back wall and surrounding colors that reflect the Costa Rican landscape.

RECEPTION SEATING
COMMUNAL KITCHEN MDF STORAGE OFFICE LOUNGE PATIO SEATING RECEPTION OFFICE LOUNGE COMMUNAL KITCHEN GENDER NEUTRAL RESTROOM
13
N SECOND LEVEL FLOOR PLAN

When one migrates to the third floor, the vibrant tones become neutral and toned-down to support independent quiet work.

With this change in environmental cues, Union Connect provides a diverse range of working styles for office employees.

Conference rooms on the third floor feature moveable technology and a range of seating choices to fit the needs of every employee.

CONFERENCE NORTH ELEVATION
ELEVATION N THIRD LEVEL FLOOR PLAN SMALL KITCHEN WORKSTATIONS WORKSTATIONS OFFICE LOUNGE COPY/PRINT AREA CONFERENCE DAY OFFICES IDF GENDER NEUTRAL RESTROOM/SHOWERS 14
CONFERENCE EAST

BLOCKING DIAGRAM

Costa Rica is known for its Pura Vida philosophy, which embodies a lifestyle of contentment, simplicity, and a deep connection to the joys of living.

Equipped with two employee kitchens, one on each floor, Union Connect celebrates the Pura Vida philosophy by providing a vibrant space for the intent of social dining.

THIRD FLOOR SMALL KITCHEN

A E F B C D G H I MATERIALS FLAT-LAY LEGEND A - Wallcovering B - Chair Fabric C - Sofa Fabric D - Table Laminate E - Tile
F -
Reed
G
H
I
15
Backsplash
Resin
Wall
- Painted Cabinetry
- Laminate Flooring
- Beige Wall Paint

Within the classroom, desks are arranged to converge towards the central presentation area, ensuring optimal engagement and promoting an inclusive learning environment. The teacher’s desk is strategically located to provide a comprehensive view of the entire classroom.

Ample storage solutions are available, including individual cubbies for each student. Additionally, both student desks and the kidney table for group activities are equipped with casters, facilitating effortless adjustments for a versatile classroom layout.

Document Package + Final Poster

04 PALOUSE ELEMENTARY

Project Type: 4th/5th Grade Educational

Skills Utilized: Revit, Lumion, Photoshop

Date Completed: Fall 2022 I 3rd Year

The Palouse Elementary School project includes the development of an Administration Office, Library, and 4th/5th Grade Classroom. Their designs were based around the study of Maslow’s Hierarchy of Needs, and research on the current practices of Elementary school design.

By incorporating modern technology, adaptable furniture, and a soothing palette of ambient blues and neutrals, Palouse Elementary school elevates both student and faculty experiences, providing spaces that support all occupants and foster a calming, tranquil environment.

N CLASSROOM FLOOR PLAN HIERARCHY OF NEEDS
4TH/5TH GRADE CLASSROOM
16

In the Administration Office, the reception desk is positioned to face every entrance, resulting in direct interaction with individuals entering and exiting.

The office layout ensures privacy behind the reception area, with enclosed faculty amenities and offices discreetly tucked away.

In line with fostering inclusivity and accessibility, both public restrooms are designated gender-neutral and adhere to ADA standards.

LEGEND

A - Reception Area

B - Gender Neutral Restrooms

C - Faculty Break Room

D - Book Storage

E - Locked Records

F - Principal’s Office

G - Finance Office

H - Conference Room

N ADMINISTRATION FLOOR PLAN
ADMINISTRATION OFFICE
A B C D E F G H
17

N LIBRARY FLOOR PLAN

LEGEND

A - Small Lounge

B - Reception

C - Librarian’s Office

D - Classroom Zone

E - Conference

F - Bookshelf Zone

G - Storytime Area

H - Storage

In the Library, interconnected areas offer both student privacy and easy supervision by the librarian. The layout ensures that the librarian’s desk overlooks high-traffic areas, providing visibility of student activities.

Student work zones are conveniently located next to bookshelves for quick and easy access. Bookshelves vary in height to accommodate different age groups and maintain visibility for supervision.

A B C D E F G H
18
LIBRARY ROOM 19

THANK YOU

Samantha Milam - Selected Works

Turn static files into dynamic content formats.

Create a flipbook
Issuu converts static files into: digital portfolios, online yearbooks, online catalogs, digital photo albums and more. Sign up and create your flipbook.
Interior Design Portfolio 2024 by samantha.milam - Issuu