Architectural Portfolio - Sam Fearon

Page 1


SAM FEARON

ARCHITECTURAL DESIGN PORTFOLIO

With an unwavering commitment to excellence and a passion for architectural design, I am a results-driven Staff Architect renowned for my diligent work ethic and creative prowess. Over the past several years, I have dedicated myself to honing my architectural skills, drawing upon a foundation established through a Master of Architecture degree from the TU Dublin School of Architecture, Planning, and Built Environment. In May 2024, I completed my examinations for my Professional Diploma in Architectural Practice Management at TU Dublin - awaiting registration as a professionally licensed architect.

My professional journey has been marked by an incessant pursuit of perfection, characterized by acute attention to detail and a sincere aspiration to leave an indelible mark on society. Through immersive experiences with esteemed architectural firms in both Europe and the United States, I have actively contributed to an array of projects spanning residential and commercial developments, as well as urban planning initiatives.

In addition to my technical proficiency and commitment to sustainable design, I am a natural collaborator, thriving in a team-oriented environment with like-minded creatives. I possess a proven ability to communicate effectively with interdisciplinary teams, clients, and contractors, recognising the pivotal role of clear communication in navigating the intricacies of design and construction phases.

My educational background, coupled with hands-on experience, has equipped me with a comprehensive understanding of architectural principles, history, and the latest industry technologies. Remaining abreast of technological advancements and industry trends, I am poised to leverage my expertise in an environment that values innovation and fosters professional growth.

Eager to contribute significantly to the architectural community, I am excited about the prospect of joining a dynamic team where I can channel my skills, imagination, and unwavering commitment to produce exceptional, sustainable designs that elevate communities and inspire others.

RESUME

Contact

Address: 42 Strand Road, Sutton Dublin 13, D13 KW60

Email: sam.fearon@hotmail.com.

Professional/Work experience

January 2024 - Current

OPTIMISE DESIGN. Staff Architect & BIM Designer

January 2023 - November 2023 Hickok Cole Architects. Staff Architect

February 2022 - January 2023

OPTIMISE DESIGN. Graduate Architect

June 2018 - May 2019: Ryan+Lamb Architects. Architectural Assistant

September 2016 - June 2022: Howth Studios. Freelance Architectural Designer/Drafter

May 2016 - September 2016: Brenta Forming and Framing. Concrete Forming labourer

Education

September 2023 - May 2024: Professional Diploma in Architectural Practice Management, (3.52 GPA) TU Dublin 7, Ireland.

September 2015 - May 2020: B.Sc Architecture (3.4 GPA) Dublin School of Architecture, TU Dublin, Linenhall, Dublin 7, Ireland.

September 2020 - January 2022: Masters of Architecture M.Arch (3.52 GPA) Dublin School of Architecture, TU Dublin, Linenhall, Dublin 7, Ireland.

September 2009 - May 2015: Belvedere College SJ, 6 Great Denmark St, Dublin 1, Ireland

Software Skills

Skilled in Revit, 3ds Max, Lumion, AutoCad, SketchUp, Adobe Photoshop, Illustrator, InDesign, Rhino, Bluebeam, Airtable and Microsoft Office.

Technical Skills

Excellent proficiency in hand-drawing, sketching, technical detailing and model-making.

Professional Work

Hickok Cole Architects

1201 L Street, Washington D.C.

Libbie Mill Garden Apartments, Virginia

Georgetown Park Mall Residential Configuration, Washington D.C.

450 5th Street Feasibility Study, Washington D.C.

Optimise Design

Maihide House, Dublin

Ryan + Lamb Architects

Clonterf Road House, Dublin

Academic Work

Masters of Architecture M.Arch:

Thesis: The Intimate Facade: Investigating Scales of Intimacy in a Housing Project for Common Ground, Bray.

Boutique hotel, (Converted to a Step-Down Medical Faculty) Dublin City Centre

Bachelors of Architecture B.Sc Architecture:

Thesis: University of the South-East, Leighlinbridge

Timber Accommodation for Music Festival

Freelance Projects & Other Interests

Freelance Projects

Roof Terrace, Howth Co Dublin

Other Interests

Deer Park Pedestrian Routes Objection

1201 L STREET, WASHINGTON D.C.

Agorsor Equity, purchased this brownfield site between Metro Center and McPherson Square for $14 million in 2021 and entrusted the design stewardship of this prominent site to my housing team within Hickok Cole Architects. The esteemed 1201 L St. NW building, envisioned as a 15-story residential high-rise tower with below-grade parking, 1,015 square feet of commercial space, and 2,050 square feet of shared amenity space, spans an expansive 133,000 square feet. Occupying a zoning area with a maximum allowable height of 130 feet, this project is on track for delivery in 2026.

As an integral member of the Hickok Cole Architects team, I played a pivotal role in overseeing the Design Development (DD) phase. I led a comprehensive fire audit starting with the conceptual design drawings, ensuring the plasterboard walls operated independently of the doors in terms of fire safety. This process defined extra fire protection between residential units, common areas, and amenity spaces. Notably, I identified two fire safety collisions on the ground floor that required additional fire rating, enabling the design to fully comply with the D.C. Fire Code.

In collaboration with external structural engineers, I successfully removed the need for vertical steel beams and columns by designing diagonal steel members, resulting in a significant $120,000 savings on materials. Additionally, I conducted thorough design audits and facilitated discussions with all sub-consultants, effectively minimizing risks arising from the schematic design phases. This meticulous approach led to zero incidents for the final DD completion set, setting the stage for the project’s current progress in the Construction Documents stage.

This ambitious project is dedicated to repurposing the space into housing for individuals with incomes ranging from below 30% to up to 80% of the median income. Central to its ethos is a steadfast commitment to long-term affordability, secured for an impressive 99-year duration. Aligned seamlessly with the broader vision, this project aspires to contribute to the realization of a sustainable and inclusive community, encapsulating the essence of progressive urban development. Status: Construction Documents Stage

LIBBIE MILL GARDEN APARTMENTS.

PHASE II VIRGINIA

During my tenure at Hickok Cole, I played a key role in the second phase of the Libbie Mill masterplan—a transformative project with a development cost exceeding $375 million. This phase is pivotal in redefining the urban community landscape of Midtown-RVA with townhomes and condominiums that seamlessly integrate living, working, and leisure. Nestled in the heart of the city, Libbie Mill fosters an authentic sense of connectivity, making it a vibrant and accessible community. This project stands as a testament to community design excellence in Central Virginia.

My dedicated team and I orchestrated the development of a dynamic, timber-framed multifamily community featuring a 5,460-square-foot clubhouse and three distinct building typologies, ranging from 3- to 4-story walk-up apartments and enclosed corridor buildings, with sizes ranging between 15,000 and 28,000 square feet. These diverse building types contribute to the community’s vibrancy, providing a variety of living options while maintaining a cohesive architectural identity.

In leading the design process, I deciphered, translated, and resolved the original design intent through creative problem-solving, multidisciplinary coordination, and information management. One of my most effective contributions was reducing 120 manually tagged bathroom types with separately modeled components to fewer than 20 nested Revit families with instance-based parameters, greatly enhancing the efficiency and standardization across the three building typologies.

Additionally, I ensured that all relevant codes from different jurisdictions were harmonized during the delivery of the Schematic Design Package. This included auditing both the Virginia State Fire Code and the Henrico County Fire Code. A critical issue was identified and resolved concerning the escape doors from the pool area, ensuring they were within reasonable egress distances from a dead-end corridor. I successfully identified an alternate location for an escape door, mitigating this conflict and ensuring smooth completion of the Design Development phase.

Strategically positioned in Midtown, Libbie Mill boasts convenient connectivity to key destinations ensures quick access to Downtown Richmond, Libbie & Grove area and The James River. This project is currently in the Construction Documents stage, with the clubhouse slated to begin construction at the end of 2024. Status: CD phase

LIBBIE MILL CLUBHOUSE - GROUND FLOOR PLAN

GEORGETOWN PARK MALL RESIDENTIAL

RECONFIGURATION, WASHINGTON DC

My work towards the 2023 filing with DC’s Historic Preservation Office marked a pivotal step in the reconfiguration of Georgetown Park Mall, a significant project within the Jamestown Group’s portfolio. This ambitious undertaking involves the transformation of 435,000 square feet of retail space into a vibrant mixed-use residential complex, adding 100 rental units while retaining 639 below-grade parking spaces for resident convenience. Positioned within a mixed-use zone and offering condominium units with canal views, the project aligns seamlessly with our strategic vision for the area’s revitalization.

I played a crucial role in documenting existing conditions and managing over 75 issues through on-site field verification and point cloud building scans. To enhance collaboration and information management, I implemented an interconnected database approach using Airtable, effectively tracking coordination items, decisions, tenant negotiations, and team workflows involving over 60 members. This structured approach ensured that the complex documentation and coordination of MEP systems, roof pop-ups for new loft units, and retail fit-outs were meticulously handled, navigating code and permitting requirements with precision.

A key highlight of my contributions was leading the design and acoustic optimization of the internal courtyard, a former atrium space within the mall. Collaborating with acoustic engineers, landscape architects, and material vendors, I helped balance the acoustics and aesthetics of this expansive area, ensuring the selected materials provided superior sound insulation and reverberation control, resulting in a harmonious and functional space.

Despite encountering challenges such as outdated MEP ducts and existing telecommunications infrastructure, I coordinated effectively with telecommunication companies and subcontractors to facilitate the removal, relocation, and integration of these systems into the new design. My efforts culminated in the production of a comprehensive 135-sheet Design Development set, establishing a clear roadmap for future phases of the project.

Though the project has been temporarily put on hold due to funding issues from the developer, it is poised to resume with the Construction Documents phase in late 2024, continuing its contribution to the dynamic landscape of Washington, DC. Satus : Construction Documentation phase

WEST COURTYARD PLAN | M Street & M+1

GEORGETOWN PARK MALL REDEVELOPMENT - FLOOR PLANS

WEST COURTYARD | Typical Bay

GEORGETOWN PARK MALL REDEVELOPMENT - FLOOR PLANS

EXISTING BRICK AND CMU WALL ASSEMBLY, ETR

EXISTING INTERIOR FACE BRICK, ETR

450 5TH STREET FEASIBILITY STUDY

As office buildings grapple with unprecedented vacancy rates and owners face mounting distress, architects are increasingly tasked with reimagining these spaces to prevent obsolescence. Located in the heart of Washington’s dynamic east end, the Judiciary Plaza—also known as Liberty Square—is an 11-story, 476,872 sq. ft. commercial complex built in 1982. The client sought innovative alternatives to pivot from its original commercial office use to incorporate both retail and residential elements.

Office-to-residential (O2R) conversions are not only a strategic response to rising office vacancies and the housing crisis but also offer a sustainable solution for developers aiming to enhance their portfolios and meet ambitious ESG goals. However, as highlighted in our company’s marketing video, these conversions require a nuanced approach, tailored to the specific asset class, market context, and floor plate of each building. For every ten potential conversion projects, only three might be viable, and only one will prove financially sensible.

During my tenure at Hickok Cole, I was an integral part of a close-knit team tasked with conducting feasibility studies for various buildings, including the 450 5th Street project. Our work involved analyzing the unique attributes of each structure and applying creative, data-driven strategies to determine their conversion potential. By leveraging our expertise in adaptive reuse, we played a crucial role in transforming underperforming office spaces into vibrant, multifaceted urban environments that meet the evolving needs of the community. Status: Schematic Design Phase

LOCATION

450 5th St NW, Washington DC

Downtown-East End’s 3 nodes

form an easily walkable “Loop” that encompasses 5th Street and is defined by the entrances to Gallary Place and Judiciary Square Metro Entrances.

FStreet Shopping Core

There are signs that retail is making a comeback on this traditional shopping street, though there are still patches of vacant retail. Museums and retail anchors like the former Woodies Building animate the street, which has good depths, although parcels like the Shops at National Place are underutilized.

7th Street Entertainment Core

7th Street’s lively entertainment and dining venues make it the most successful part of submarket. Its large-scale anchors, the Capital one Arena and Gallery Place, as well as numerous bars and restaurants make it one of the few areas in the downtown core that is active at night and on weekends.

Judiciary Square Federal Core

This 10-acre parcel is critical for the retail success of the downtown core.

This site represents a rare opportunity to add residential density into this submarket, which in turn can support significant development that provides enough critical mass for a vibrant shopping hub.

SITE ANALYSIS

450 5th St NW, Washington DC

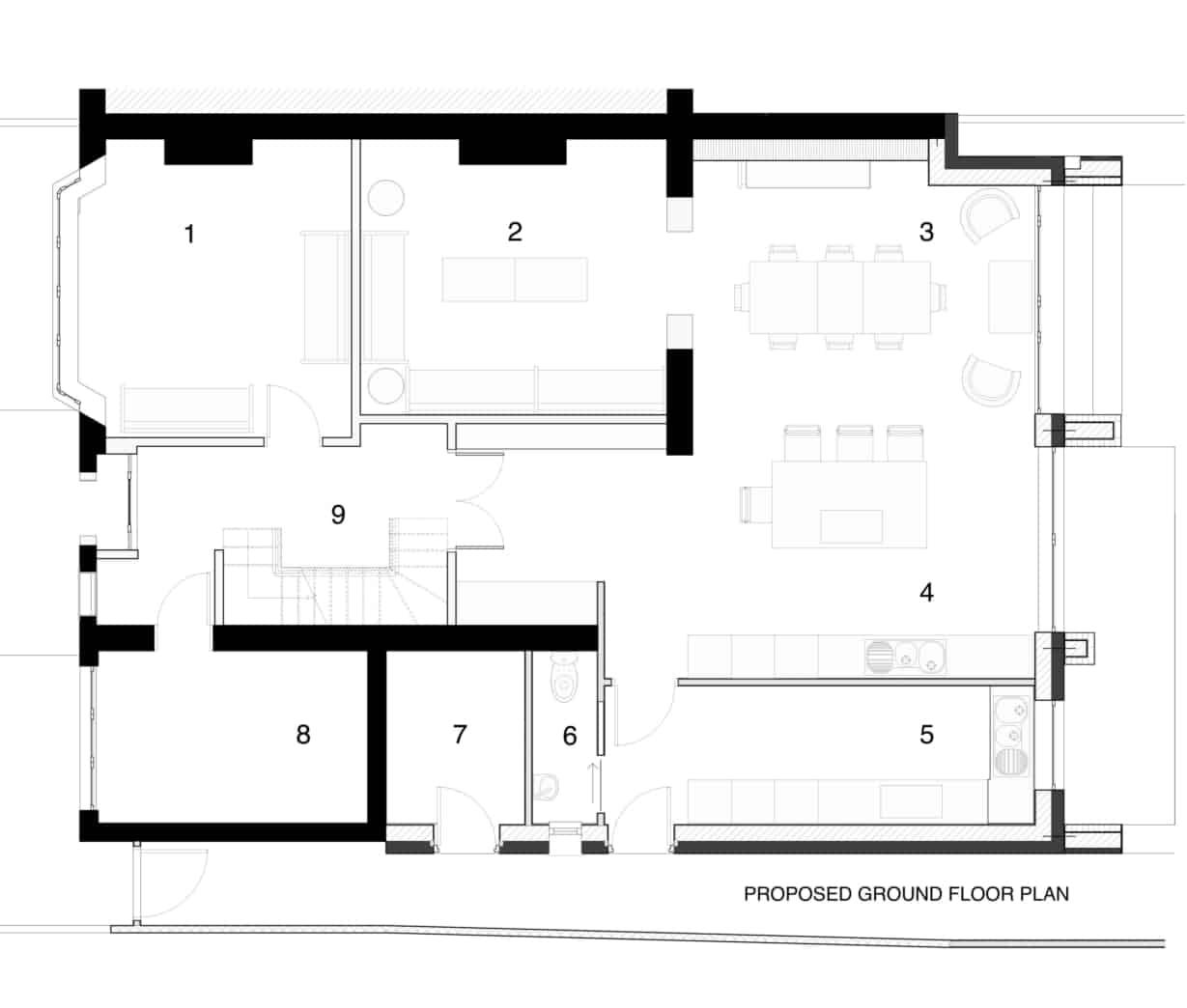
MALAHIDE HOUSE, DUBLIN

A substantial aspect of my design portfolio from my tenure at Optimise Design is characterized by a client-centric approach, particularly demonstrated in the Malahide House project—a Design & Build initiative in an affluent Dublin suburb. This project involved the addition of a 40-square-meter side extension to a new build property, requiring careful planning and client engagement. Regularly assuming the role of chairperson during client consultations, I facilitated comprehensive discussions, guiding clients through the formulation of their design briefs and ensuring their vision was accurately captured.

For this project, I developed and presented two design options in both 2D and 3D, meticulously incorporating all client feedback before final revisions. I led a pre-planning consultation with the local council, which was crucial in determining the classification of the extension due to its corner site location. After the council designated the project as a side addition, I independently completed a full permit application and coordinated with the quantity surveyor for general costing, ensuring smooth project progression without disruptions.

In addition to the design and planning phases, I championed the preparation of a full tender and fixture and fitting package, which was presented to the client and costed by the contractor. My involvement extended to on-site visits alongside the architectural director, where I addressed contractor requests, providing additional drawings such as a revised underfloor heating plan and a reflected ceiling plan.

This direct engagement with clients and hands-on involvement in all phases of the project have been invaluable experiences in my architectural journey. The ability to adeptly manage and address diverse client needs, even in challenging scenarios, underscores my capability as a valuable asset to any architectural team. The accompanying images illustrate the successful execution of this project and the satisfaction of the clients served during my tenure at Optimise Design.

PROPOSED SIDE ELEVATION (SOUTH)

CLONTARF ROAD HOUSE, DUBLIN

The Clontarf House project involved a significant extension to an existing two-storey, 3-bedroom terraced house with a converted attic. The main goal was to create an open-plan kitchen, living, and dining area, along with an additional utility and downstairs bathroom. This extension comprised a 50 sqm side rear addition to the house, situated in a flood-prone area with marshland conditions. As the lead architect, I managed the design and build, developing two design options in both 2D and 3D for client review. I conducted a comprehensive flood risk assessment and integrated flood-resistant materials and elevated design features into the plans to comply with strict flood mitigation building codes. This included raised foundations, permeable landscaping, and sump pumps. I coordinated with flood risk experts to develop a robust flood mitigation plan and obtained the necessary permits through detailed pre-planning consultations with the local council. During the construction phase, I supervised the project closely, ensuring effective communication with contractors to address design changes and adhere to the flood mitigation strategy. The project was completed on schedule and within budget, significantly enhancing the property’s resilience and compliance with local flood risk management requirements. The extension created a contemporary, well-lit open-plan living space that seamlessly integrates with the west-facing back garden, improving the home’s functionality and long-term sustainability. Status: Completed 2020

STATION ROAD, GLENAGEARY, CO. DUBLIN

I played a key role in contributing to the tender and technical specification drawings for a 45 square meter extension to a 1950s semi-detached house in Glenageary, South Dublin. This comprehensive project encompassed the construction of a part-single, part-two-storey extension, an attic conversion, as well as landscaping and associated site works.

Working in tandem with the project architect, my responsibilities included the development of window schedules and specification drawings tailored for on-site contractors. Utilizing advanced CAD and BIM programs, I ensured precision and adherence to design standards throughout the project’s documentation phase.

Status: Completed in 2019

THE INTIMATE FACADE: INVESTIGATING

SCALES OF INTIMACY IN A HOUSING PROJECT FOR COMMON GROUND, BRAY.

As architectural practices and paradigms become more technical, regulatory and sustainable, they become further removed from ideologies and scales identified by theorists. One of which is an architecture of intimacies. As many architects necessarily overlook the endless range of intimacies that can be exploited from particular drawing scales, I feel that this provides an opportunity for designers to utilise drawing at appropriate scales to best express this intimacy. This research project draws from an analysis of texts, ideologies, working methods and built projects of theorists and architects regarding the intimate relationship that bodies of inhabitants share with architecture. I used this research to critique an existing design project to determine in what factors and architectural scales this intimacy is lost. I will apply this research to produce refined drawings for this architectural scheme to address whether this intimate relationship between the body and architecture can be further enhanced across all architectural scales. Co-housing groups are changing the way housing is afforded, procured and lived in. This research project explores the potential architects have to contribute to this change in how housing is designed. Through communication with communityfocused housing groups, the creation of intimate architectural moments for the inhabitants can be achieved.

Research Area

Common Ground
Juliani Pallasmaa
Bruno Latour
Social Community focused Building Relationships
“Occularcentrism”
Body and Building Relationship
The body is not accounted for in modern architecture
Small objects can have an effect on the user, the building and wider scoiety
The bodies of the clients
Draws attention to particular intamcies rather than entire buildings
Designer and Client relationship
The research that I carried out focused on a study of the intimacies that the human body shares with architecture.
Multifamily
Multifamily
Multifamily

BOUTIQUE HOTEL, (CONVERTED TO A STEP-DOWN MEDICAL FACULTY) DUBLIN CITY CENTRE

As part of a collaborative design studio that involved the development of new approaches to Architectural Design that is focused on durability, flexibility and sustainability, We were provided with an existing building (Elizabeth O’Farrell House, Dublin ) and were tasked with developing a Bijou Hotel to an NZEB standard. We assessed the structure and building condition to develop a hotel by extending upwards and retaining the aspects of the building that had cultural and historical significance. These included the front facade and the Cumberland Street market which takes place weekly just outside the building. Towards the end of the semester a real world simulation of a change order scenario where client has instructed each team to explore an alternative arrangement. This consisted of the rearrangement from a hotel to a step down medical faculty in light of the recent surge of Covid 19 hospitalisations in Dublin.

This was followed up by an embodied carbon calculation and assessing the design under the BREEAM and LEED certifications. This project gave me an important insight into how to work as a team and provided me with many of the core skills that are required by practitioners today.

THE UNIVERSITY OF THE SOUTH-EAST, COUNTY CARLOW

In 2017 it was announced that Institutes of Technology Carlow and Waterford would begin the process of merging to form the Technical University of the South-East. The plan was to merge the two institutions to create a combined student population of 15,500 students, over 5,000 graduates per annum and 2,000 faculty staff. My design concept was to create a link between the two merging institutions by dispersing the new and existing faculties along the River Barrow, creating three new satellite campuses between the two-existing campuses. My goal was that the new campuses would contain a faculty that is inherent to the town’s history, industry and location. During this project, I drew inspiration from the town of Leighinbridge, 11km south of the Carlow campus. While researching this project, the site I chose was the historic malt-house facing the river. I selected this site to be the location for the Department of Sustainable Electrical Engineering. I investigated the connection between the university campuses using existing road networks and waterways. I also built upon existing infrastructure, utilising “The Barrow Way” to create a riverside cycle path between the campuses. In addition, I designed the feasibility for co-living student housing scheme on the banks of the River Barrow that is in close proximity to the campus and new routes which were designed to allow for flooding of the site.

TIMBER ACCOMMODATION FOR MUSIC FESTIVAL

The brief for this competition was to create a timber pavilion as an alternative to camping for festival-goers which is easy to erect, dismantle and transport. The Japanese origami collapsible cube inspires our concept. When assembled, the pavilion measures 2600mmx2600mm, which is a comfortable size which can quickly be loaded onto the back of a truck. When collapsed, the structure shrinks in height to less than 500mm. This allows for mass transportation of stacked units to and from festivals. My role in this collaborative competition was to aid in the building of the model, to utilise my photoshop skills to create an atmospheric render and to layout the competition sheet for final submission. Our proposal got an overall grade of 90/100, which was the highest awarded mark.

ROOF TERRACE, HOWTH, CO DUBLIN

The Roof Terrace project involved the addition of a 25 sqm roof terrace to a three-bedroom family home built in the late 1860s, located within the Howth Historic Core Architectural Conservation Area. This project included a vertical extension of the existing stairwell, featuring a modern staircase and a new glazed stairwell enclosure at the roof level, providing stunning views of Howth Harbour and Ireland’s Eye.

I conducted a comprehensive survey of the property and provided the client with both 2D and 3D design options that captured these picturesque views. To address concerns of overlooking and overshadowing, I produced detailed shadow studies and view analyses, ensuring compliance with conservation standards and addressing feedback from the local council and neighboring properties.

Despite a temporary hold in 2018, I managed the project timeline effectively and successfully obtained the necessary planning approvals in 2021. The final design seamlessly integrated modern amenities with the historic context of the building, enhancing the property’s value and living experience. Status: Planning permits obtained

HARBOUR

DEER PARK PEDESTRIAN

ROUTE OBJECTION DUBLIN

In late 2020, I collaborated with Councillor David Healy of the Irish Green Party to address a significant local issue involving Tetrarch Property Investment Company’s plans for the Deer Park grounds. The proposed development included closing popular pedestrian access points and erecting 2-meter high fencing along these routes. These access points, historically significant as routes used by monks and the St Lawrence family between Howth Church and Howth Castle, are deeply valued by the local community. My lifelong connection to Howth made this issue particularly personal, and I supported the stance that while additional housing is needed, it should not compromise the preservation of culturally and historically important lands.

I conducted extensive research on the historical and cultural significance of these access routes and provided comprehensive documentation to support a Part V planning exemption request. By emphasizing the importance of these routes to local heritage, I was able to advocate effectively for their protection. This effort led to the requirement for planning permission for the proposed fencing, ensuring that development plans considered both the need for new housing and the preservation of our cultural and historical sites. Status: Planning permission required for fencing.

Turn static files into dynamic content formats.

Create a flipbook
Issuu converts static files into: digital portfolios, online yearbooks, online catalogs, digital photo albums and more. Sign up and create your flipbook.