MIA Final Thesis Book-Salvi Shah_Boston Architectural College_Interior Designing

Page 1

A Little Steps of Hope

WELLNESS RETREAT FOR OBESITY

(ACTIVE EVERYDAY WITHIN YOUR COMMUNITY)

SALVI SHAH- 2023

ADVISING TEAM

To my committee and proffesor, who helped me and encouraged me at every step of my project.

Thank you!

Ann Marie Procopio Thesis advisor, Associate Director of Interiror design, NCIDQ Laura Tomlinson Denise Rush, FASID, IIDA, IDEC Dean, School of Interior Architecture

Research

Demogrpaphic Studies and Research Program

Demographics

Obesity is a chronic disease. It is started developing when a person has major percentage of fat and has minimum Physical activities. As per a study calculating mass index which is 30 or greater than that person has “obesity.” However, it is dependent on a person’s body weight and height. An average person usually has BMI between 20 to 25. So, it shows how thin the line is between a healthy person and an obese person.

Programming

• Wellness center

• Community Education center

• Fitness center

To give supportive Space for the community can meet and learn from others. The community wellness center can serve as an opportunity through education and the wellness center can interface with physical activity and education towards a healthy lifestyle

Who?

The target audience is adults and young adults in their struggling lifestyles between 20- and 59. Encouraging all the user members and giving opportunities to adults who cannot afford to have an education. Which will allow them to develop social connections and educate for self-awareness.

1 2

Precedent Study

Study #1: YMCA

Location: Greater Boston, MA, USA

Type of Space: Wellness center

YMCA is across the USA and their aim is to heal mentally and physically and community and their families. There is no barrier with any community and age group. Across Greater Boston they have delivered over $11 million in free programs and services. It was founded in 1851 in Boston to serve community development and a social healthy lifestyle. The Y is focusing on adults’ and children’s well-being and on supporting neighbors.

Study #2: Fit Farm

Location: North Nashville, TN, USA

Type of Space: Fitness center+ Resort

The fit farm is giving opportunities and places for adults where they can stay and get a fitness program weekly and rejuvenate. It has a beautiful scenic lake and landscaping which creates calmness in the space (Fit farm,2022)

3 4 Precedent Study

Study #3: Mashouf Center

Location: San Francisco, CA, USA

Type of Space: Wellness Center + University

Mashouf center is located inside San Francisco university and is part of the gateway for student life (Mashouf, 2018) It is used for recreational and competition spaces by promoting fitness activities and mental well-being by giving a Spa Program. Which is encouraging a healthy lifestyle from a young age. They are offering “student leadership” in the academic experience. The programs are structured in a way that can give experience on campus and thrilling experience inside too. There are various tasks that are provided in the space which are

PROBLEM STATEMENT

Obesity is a serious chronic disease. As per the survey of CDC in the USA for adults aging between 18-59 years old, around 38% of adults are suffering from being overweight and around 20% are suffering from Obesity. In this current sedentary lifestyle, the lack of access to resources, minimum wages income, healthcare benefits and education are the major contributing factors for adults to run into Obesity. This leads to multi factorial genetic diseases, and has socioeconomic impacts which raises risks for morbidity and mortality among adults and their families.

THESIS STATEMENT

The aim of this thesis is to create an opportunity for education towards a healthy lifestyle among adults and encourage them to exercise under supervision that helps caters to an environment of an active routine. This will help them understand to develop a healthy standard of living and acquire skills to manage obesity that could lead to a better quality of life and live longer. In order to give support and encouragement to them for their improved quality of life, an education on healthy lifestyle and means to resources will reflect better results among adults.

5 6 Precedent Study
Research Demogrpaphic Studies and Research Program

Site Selection

Criteria

Study Analysis

Parti Diagram

Space planning

7 8

SITE CRITERIA

1. Neighborhood: Located in the center of the community and accessible. The city of Boston of the metro area.

2. Building Type: Welcoming and supportive building for the community besides busy street.

3. Parking: On-site and garage

4. Walk-ability: Walking-friendly building that will feel welcoming to users.

5. Public Transportation: Maximum 5 minutes’ walk to bus or subways for transportation.

6. Neighbourhood: Location and buildings that are approachable and accessible for any person within the city feel like a comfortable environment to focus on an outer area for greener space for obesity treatment.

7. Orientation: Connected to greener space for meditation purposes.

8. Floor Plate: Size and shape would be flexible for the site selection.

9. Social: 24/7 accessible and secure for a treatment center.

10. Repeatability: Similar types of buildings are needed around the city.

11. Privacy: Space can be used for some parts of the large building In the private zone by using soundproofing walls and different entries for users.

12. Nearby Amenities: Nearby grocery stores and shops, and cafes.

Nearby Hospital

Retail stores for grocery and shopping

Transportation through T-line and Bus-station

Private parking space

Outdoor and green spaces

Society of athletic and sports

9
Site Criteria Scoring Potential Washington Park Mall, Boston,MA 15 Talbot Avenue Boston, MASSACHUSETTS Boys and Girls Club of Boston Neighborhood 10 8 8 Building Type 10 9 10 Parking 10 10 9 Walk-ability 10 8 9 Public Transport 10 9 9 Orientation 10 7 10 Floor plate 10 8 8.5 Social 10 9 9 Privacy 10 8.5 9 Nearby Amenities 10 9 9
10

ZONING STUDY

FITNESS ZONE:

PARTI CONCEPT DESIGN

ROOM

SPA AND MEDITATION SPACE:

SPA-SAUNA, MASSAGE ROOM DRESSING ROOM

MEDITATION SPACE LOCKER

WAITING AREA

COMMUNITY:

CAFÉ/ LOUNGE

CONSIGNMENT STORE

ORGANIC GROCERIES

FOOD PREP KITCHEN

ACTIVITIES:

SWIMMING

PARTI WORDS

RECEPTION AREA

COMMUNITY

FITNESS ZONE

DANCE

GUIDANCE

Support + Education = Awareness

Help + Community Growth= Learning

EDUCATION

SPA

MEDITATION

CONSULTATION

MEDICAL

CAFETERIA

CONSIGNMENT

STAFF

UTILITY

TRAINING: TRAINING ROOM

AREA

LOCKERS WITH TOILET

ROOM

Support Community Growth Education

Primary Adjacency

Secondary Adjacency

Undesired Adjacency

11 FITNESS + DANCE STUDIO FITNESS DANCE STUDIO RECEPTION AND WAITING AREA UTILITIES CAFETERIA ELEVATOR ELEVATOR MEDITATION SPACE WORKSHOP SPACE STAIRS MASSAGE ROOMS UTILITIES STAIRS RECEPTION CONSIGN MENT STORE SPA (SAUNA) LOADING ZONE MAIN ENTRY ENTRY FOR FITNESS MEDICAL CONSULTATION NURSES AREA MEDICAL CONSULTATION DOCTORS CABIN UTILITIES UTILITIES UTILITIES SWIMMING POOL Program sqft Space Pub c Pr va e Sqf approx ma e y Recep on a ea Pub c 2000 F ne s a ea Sem p va e 2500 Dance s ud o Sem p va e 1500 Spa P va e 3500 Med a on space P va e 1500 Med ca con u an P va e 2000 Ca e w h ook ng wo kshop Pub c 1000 S a and Adm n P va e 2000 Commun y ou doo a v e Pub c Con e ence oom P va e 250 U Pub c 2000 Se v ce NA 1000
YOGA FITNESS
SHOWER
DANCE CLASS LOCKER AND DRESSING
STAFF
10
BREAK
SUPPORT AWARENESS

ZONING STUDY

DETAILED SPACE STUDY

11 12
SITE CONTEXT STUDY

BUILDING INFORMATION

NUMBER OF FLOORS: LOWER LEVEL+1 LEVEL

PARKING: PARKING FOR 50-60 CARS

Nearby Hospital

Retail stores for grocery and shopping

Transportation through T-line and Bus-station

Private parking space

Outdoor and Green spaces

CONCEPT STATEMENT

A DESIGN WILL BE ACCESSIBLE AND INCLUSIVE FOR USERS

15

TALBOT AVE, BLUE HILL AVE, DORCHESTER, MA

Total Floor Area: 41,716 sq.ft

Num of Floors: 1 story + lower level

Floor to ceiling Height :13’-0”

Parking: Facilities in building for 25-30 cars

windows :Facade glass windows

Facade: RCC and Brick Structure

Central AC & Heat available

Ground level/ load in & out

Zoning: Group A-1 assembly for entainment

A-2 assembly food/beverages

Group B-Business

Zoning Distict: ADA acessbile

Medical Supervision

PLANTS WATER NATURAL

13
14
JOURNEY
Research Demogrpaphic
Fitness session
Studies and Research Program
Food Prep Workshop

SPACE PLANNING SPACE PLANNING

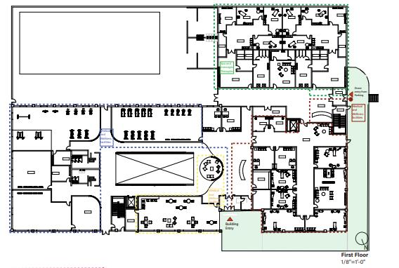
15 ROOM SPACES 01- VEST 02-SECURITY OFFICE 03-RECEPTION DESK 04-COMMUNITY CAFETERIA 05-KITCHEN-STORE 06-DANCE STUDIO 07-SMALL DANCE STUDIO 08-FITNESS AREA 09-FITNESS AREA 10-OFFICES 11-SINGLE TOILETS ADA 12-ELEVATOR 13-RECEPTION DESK 14-MEDICAL RECEPTION 15-NURSING- ROOM 16-EXAM ROOMS 17-DOCTOR’S OFFICE 18-PHYSIOTHERAPY 19-COMMUNITY GATHERING CORRIDOR 20-LAUNDRY/ PANTRY 21-STORE 23-CONSIGNMENT STORE 24-STORE 25-CORRIDOR 26-VEST 27-SPA RECEPTION DESK- WAITING 28-MALE WAITING FOR SPA 29-DRESSING 30-TOILETS/SHOWER 31-STEAM ROOM 32-LARGE SAUNA SPA 33-MASSAGE ROOM 34-FEMALE WAITING FOR SPA 35-HOT WATER POOL 36-DRESSING AND SHOWER 37-COMMUNITY OUTDOOR SEATING 38-WATERFOUNTAIN 39-SWIMMING POOL 16 ROOM SPACES 40-COOKING COOKTOP 41- MULTIPURPOSE ROOM 42-YOGA STUDIOS 43-YOGA ROOM 44-MEDITATION STUDIO 45-MEDITATION STUDIO 46-COMMERCIAL KITCHEN 47-COMMUNITY SEATING 48-RECEPTION DESK 49-TOILET 50-CUST 51-WELLNESS ROOM 52-MOTHERS ROOM 53-STAFF AREA-BREAKOUT SPACE 54-LOCKER AND STORE 55-CONFERENCE ROOM 56-ADMIN AREA 57-STORE FOR GROCERY 58-SECURITY 59-GANG TOILETS 60-DRESSING 61-COMMUNITY SEATING Lower Area Floor Layout Lower Area Floor Layout
17 18 Lower Area Floor Layout Upper Area Floor Layout Exams Rooms- Medical Guidance Fitness Area Fitness Area Fitness Area Yoga and Meditation Space Medical Waiting Area Learning Kitchen
19 20 Axonometric view
Physcio Therapy room Lobby Space Main Entrance
Spa Center for Mental Healing
21 22 Facade -Wellness Main Entry

DESCRIPTION: Belcrest 760

IMAGE

DESCRIPTION :Woodworks

IMAGE

MANUFACTURE : Belcrest 760

SIZE : 13 in x 13 in

MODEL NO

QTY

MATERIAL : Brick

FINISH : Modular

MANUFACTURE :Armstrong

SIZE: custom as per req

MODEL NO: Antique Oak (GAO QTY

MATERIAL :veneer and solid wood

FINISH: Acoustic wall panel

DESCRIPTION 5742 Wood Oak / Y = 27.8

IMAGE

DESCRIPTION: Thin Porcelain Tile

IMAGE

MANUFACTURE : Gerflor

SIZE:

MODEL NO: Antique Oak (GAO

QTY

MATERIAL :Sports flooring

FINISH: Made for heavy workout and Training

MANUFACTURE : Laminam sheets

SIZE : 1 meter x 3 meter

MODEL NO : Oro - F7467 QTY

MATERIAL Wall Panel

FINISH : Metalic

23
24 Living wall Detail Spec Book Design Development
Elevation Elevation Double Height Space Active chart for walking-lobby area

Turn static files into dynamic content formats.

Create a flipbook
Issuu converts static files into: digital portfolios, online yearbooks, online catalogs, digital photo albums and more. Sign up and create your flipbook.