Documentation Work Samples

Page 1


PORTFOLIO

20202025

ArchitecturalDocumentationDrawings

SalmaEl-Sayed

01 TypesofProjectsWorkedon

CommercialBuildings

ResidentialBuildings

TransportationBuildings

IndustrialBuildings

ReligiousBuildings

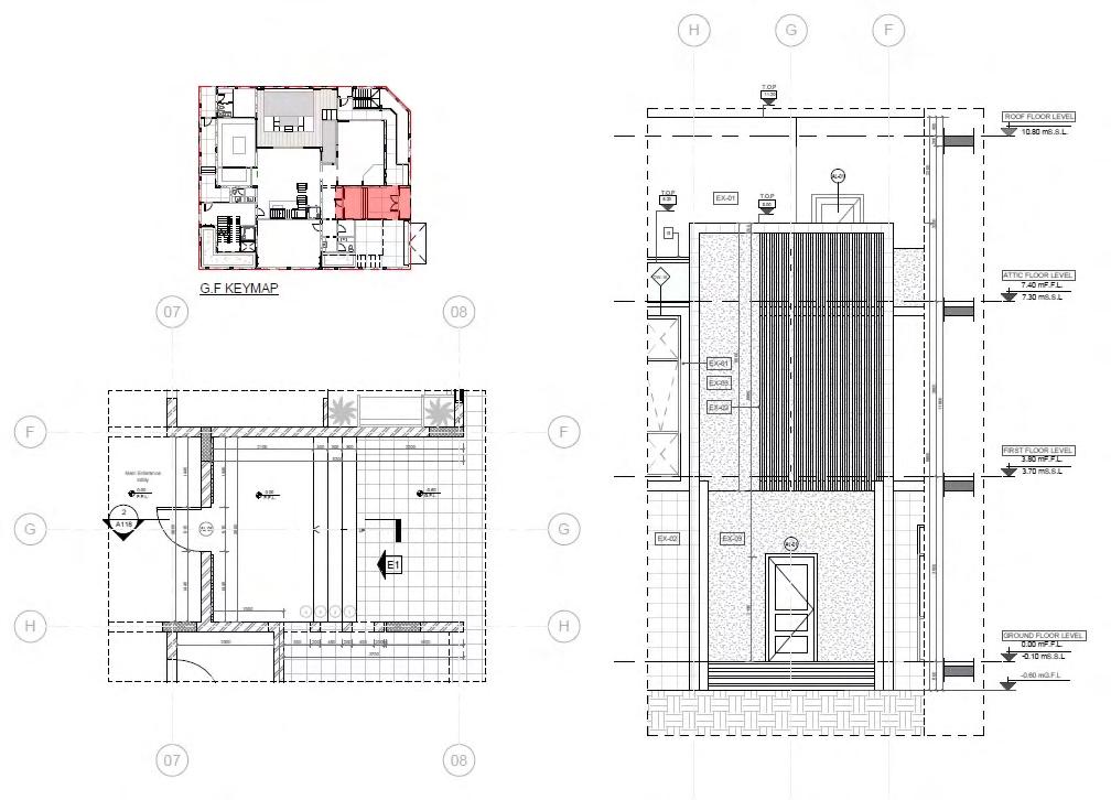
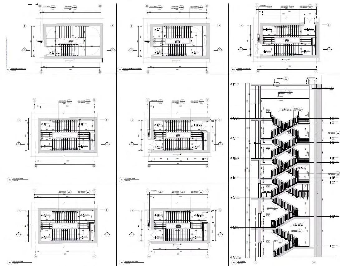
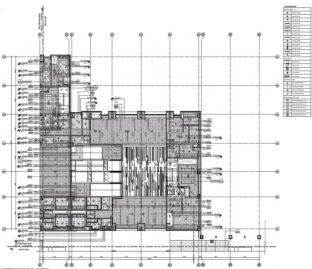
02 Documentationsamples

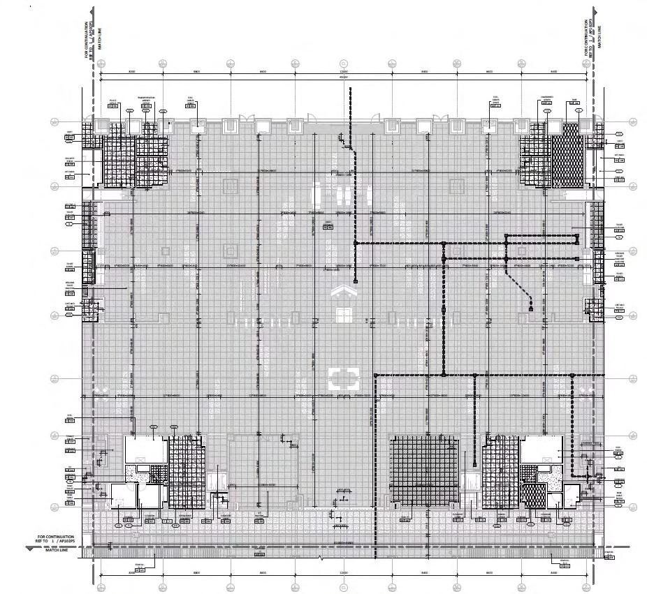
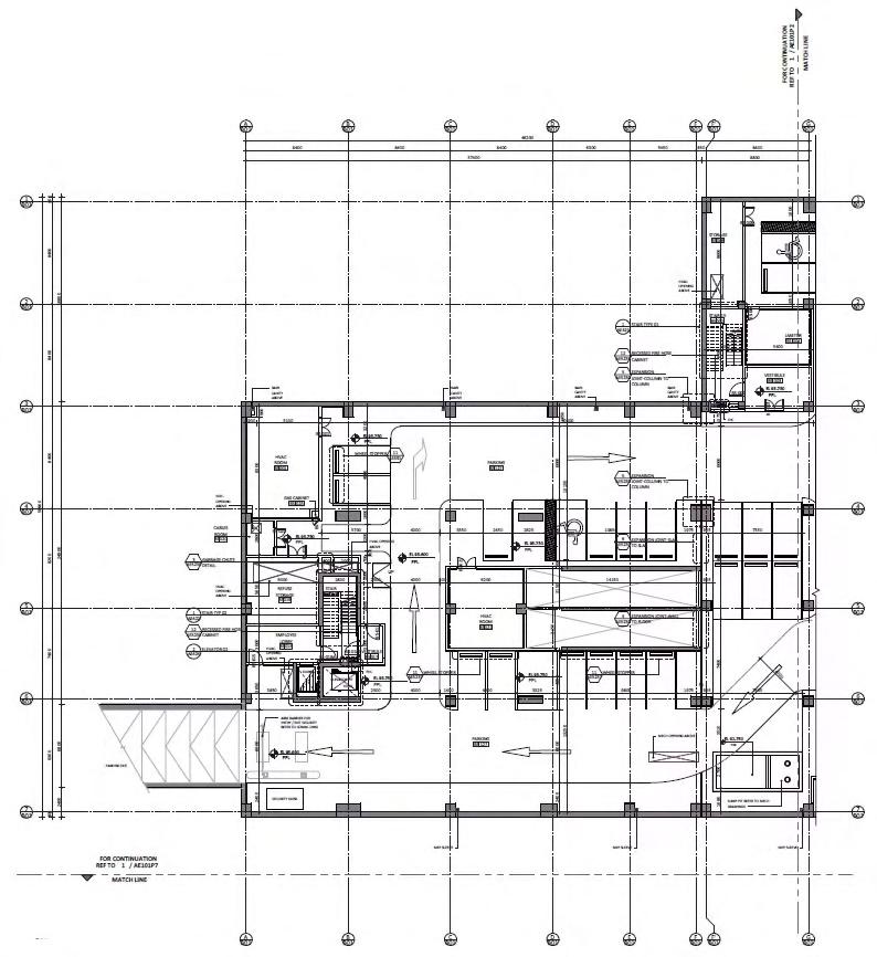
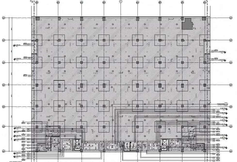
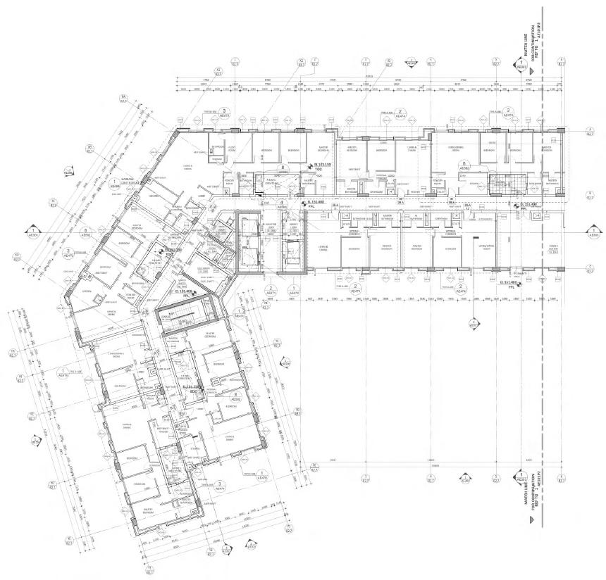
SiteLayouts

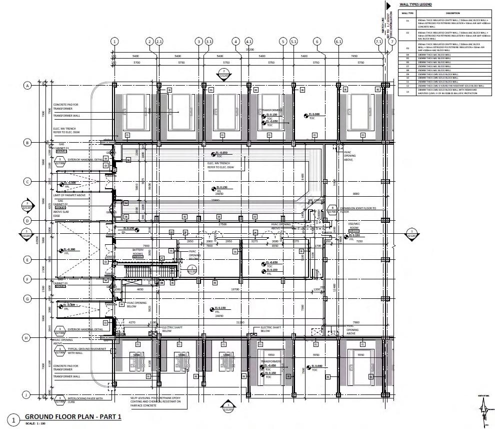
PlansandPartialPlans

FloorPatternPlans

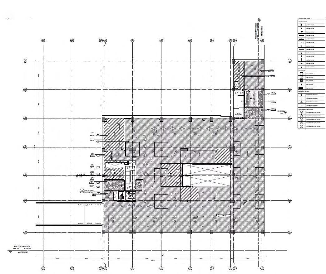
CeilingPlans

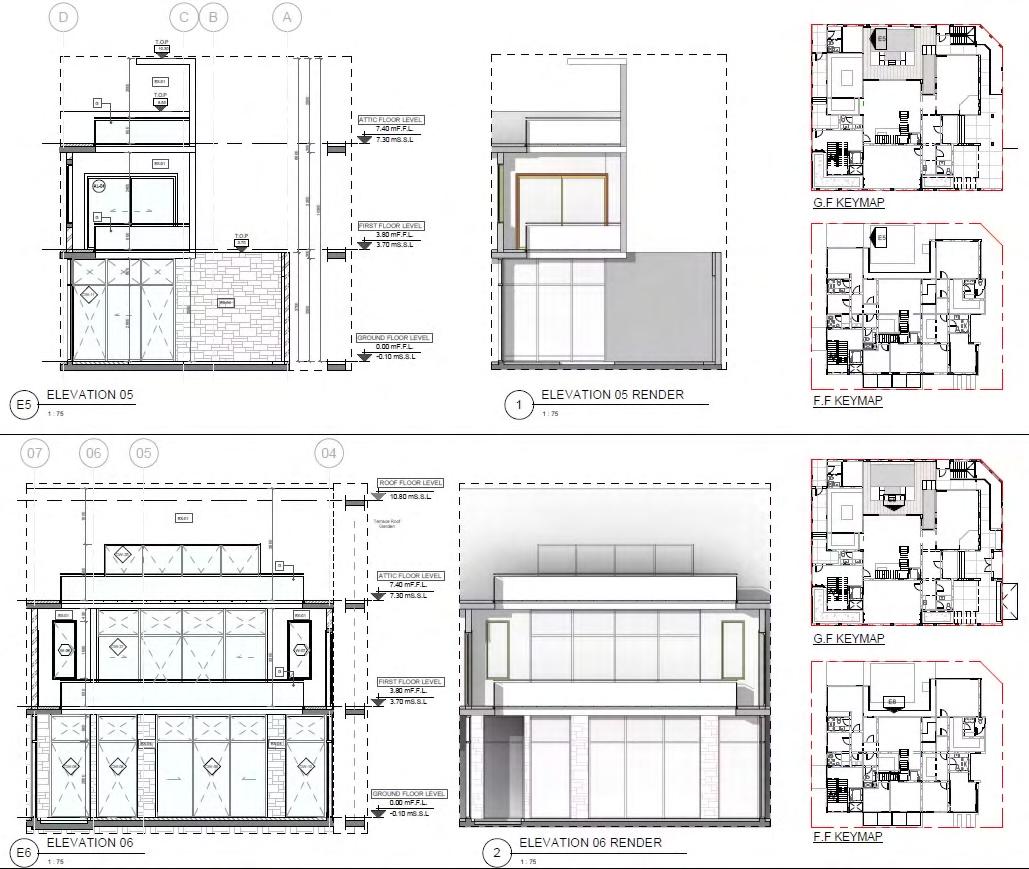
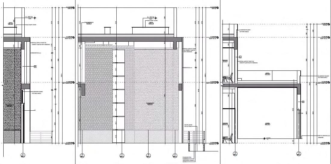
Elevations

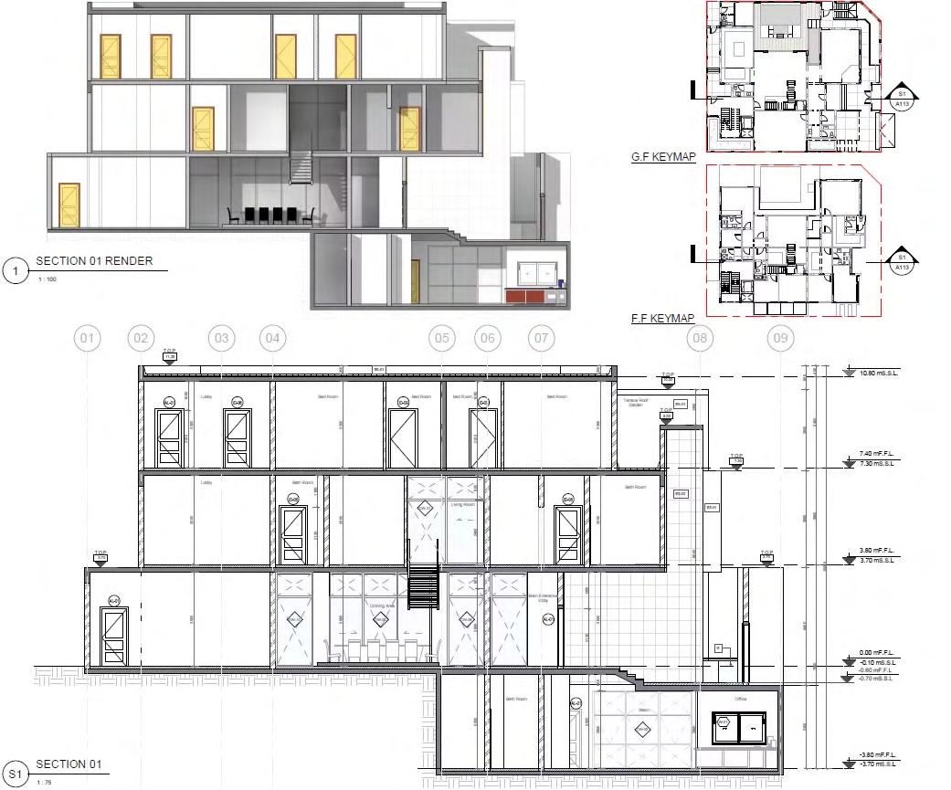
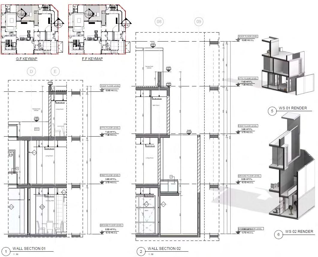
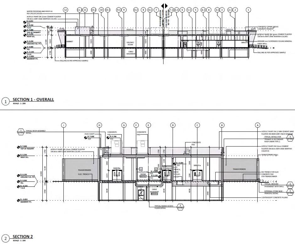
SectionsandWallSections

EnlargedDetailsStairs-ToiletDetails-InteriorDesignDetails-TypesandSchedulessamples)

TypesOfProjects

SalmaEl-Sayed

CapitalOneMall-Client:Namaa CommercialBuildings

CapitalOneisthelargestadministrativecompleximplementedinthe NewAdministrativeCapitalonanareaof86,000squaremeterstobethe firstintegratedbusinesscomplexsuitableforbusinessmenintheheartof theCapitalthatkeeppacewiththedevelopmentsofthecurrentera

CommercialBuildings

FifthSquareMall-Client:Marasem

TheprojectcomprisestheconstructionofstateoftheartmallinFifthSquareCompound,NewCairo.

TheMallhasauniquedesignfeatures,withacanopy(metalstructure)coveringthemallroofintheform ofadancinglight.Thetotalbuilt-upareaofthemallreaches180,000m2inadditiontoterracesof 23,000m2.Themallwillincludecinemas,restaurants,indoor,retailarea,andoutdoorretailarea.The Mallisbuiltonalandareaof63,000m2.Ithasapremiumlocation,7minutesfromtheAUCandabout 27minutesfromCairoAirport.

CommercialBuildings

HubBuilding-AttachedtoNew CapitalTrainStation

AHUBBUILDINGCONNECTEDTOTHENEWCAPITALTRAINSTATION

BUILDINGCONTAINSRETAILS,ADMINISTRATIONAREA.

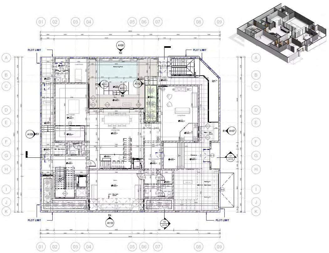
ResidentialBuilding

ResidentialClusters-Client:PalmHills

Theideaisthatthereisakindofmemoryinnature. Eachkindofthinghasacollectivememory.So,take asquirrellivinginNewYorknow.Thatsquirrelis beinginfluencedbyallpastsquirrels.

NewCapitalTrainStation TransportationBuilding

NewCapitalTrainStationisoneofthestationPlannedbyEgyptian transportationMinisterforthehighspeedraillines,May2022.1st segmentisunderconstructionwithcompletiondateof2027.2nd segmenthasbeenextendedtotheWesternDesertandhasbegun construction,withnoannouncedenddate.Constructionofthe3rd segment,whichiscurrentlyintheplanningstage,isreportedtobegin soon.

IndustrailBuilding

WaterTransmitionSystemFrom OxagontoGayal-

Client:NEOM

TotransferpotablewaterformNEOMdesalinationplanttoGayaltown;NEOMintendstoconstructapumpingstation(initialcapacity:1,200MLDandawater transmissionsystemthatincludestwocarbonsteelpipelinesDN2000mm)withinautilityculvert,inadditiontoathirdfuturecarbonsteelpipelineDN2000 mm).ThepipelinesrunfromthepumpingstationalongthewestcoastofSaudiArabiatoaHighPointReservoirHPR,wherethepotablewateristobe transferredfromtheHPRtoGayalbygravitywithatotallengthof110km.

ReligiousBuilding

MosquesatReemHills-Location:Abu Dhabi

ReemHillsisanislandlocatedinAbuDhabi,thisprojectconsistsof2Mosquestobe locatedinaResidentialClusteronthisisland,Themosquecontainsaresidential building,ground,firstfloorandaroof.

DocumentationSamples

SalmaEl-Sayed

TypesandSchedules

TypesandSchedules

SalmaEl-Sayed

THANKYOU

Turn static files into dynamic content formats.

Create a flipbook
Issuu converts static files into: digital portfolios, online yearbooks, online catalogs, digital photo albums and more. Sign up and create your flipbook.