Studio Perancangan 3

Page 1

DOSEN PENGAMPU :
14420176 - STUDIO PERANCANGAN ARSITEKTUR 3/ A
1. TIGOR WILFRITZ SOADUON P, S.T., M.T. 2.FEBBY RAHMATULLAH MASRUCHIN, S.T, M.T.
NAMA : 1442100019 - AHMAD SAIFULLAH PROGRAM STUDI ARSITEKTUR FAKULTAS TEKNIK UNIVERSITAS 17 AGUSTUS 1945 SURABAYA 2022 JUDUL : DESAIN RANCANGAN RUMAH TINGGAL MODERN TROPIS TAHAP LANJUTAN
3.IR. FARIDA MURTI, M.T
.

A. KONSEP DASAR

Pemilihan konsep Modern Tropis yang diterapkan karena indonesia memiliki iklim tropis. Konsep modern tropis ini dikenal tahan dan cocok untuk wilayah iklim tropis serta penggunakan material material alami yang memanfaatkan keadaan alam yang sudah cukup dianggap merepresentasikan nilai dari tropis. Penataan denah rumah dari ruang ruang yang ada pada bangunan di rancang sedemikian rupa agar sirkulasi udara dan pencahayaan, sampai penggunaan material semuanya harus mempertimbangkan iklim dan cuaca yang ada di daerah tropis. sedikit teks isi

B. KONSEP ARSITEKTURAL

1.GAYA EKSTERIOR

Berikut merupakan konsep modern tropis pada bagian ekterior yang di terapkan pada rumah tinggal tersebut, yaitu : Pada bagian fasad menggunakan pada atap yang memiliki bentuk miring, Fungsinya untuk melindungi bangunan dari cahaya matahari langsung atau terpaan hujan deras. Biasanya atap miring memiliki skala kemiringan 30 derajat.

Memiliki Ventilasi dengan skala yang banyak, Penggunan ventilasi di dinding rumah berfungsi untuk proses sirkulasi udara serta sebagai sumber cahaya alami yang masuk

Penggunaan material alami seperti kayu pada fasad rumah memberikan kesan yang alami

2. GAYA INTERIOR

Berikut merupakan konsep modern tropis pada bagian Interior yang di terapkan pada rumah tinggal tersebut :

Menggunakan konsep open space yang diterapkan pada ruang tamu, dan ruang makan, serta pada bagian kolam renang yang memiliki akses terbuka ke pantry dan ruang santai bertujuan lebih mementingkan unsur keleluasaan, kebebasan, keakraban tanpa dibatasi oleh sekat-sekat yang akhirnya akan membuat aktivitas terganggu.

prabotan di dalam ruangan menggunakan warna putih, cream, hitam dan abu-abu agar setiap

ruangan terlihat elegan

DOSEN PENGAMPU 1 : TIGOR WILFRITZ S. P, S.T., M.T .

DOSEN PENGAMPU 2 : FEBBY RAHMATULLAH M, S.T,. M.T.

DOSEN PENGAMPU 3 : IR. FARIDA MURTI, M.T.

NAMA : AHMAD SAIFULLAH NBI : 1442100019

MATA KULIAH : STUDIO PERANCANGAN ARSITEKTUR 3 / 14420112 TUGAS : DESAIN RANCANGAN RUMAH

KONSEP RUMAH TINGGAL MODERN TROPIS
SUB TUGAS : KONSEP
KE 2
LEMBAR
TINGGAL MODERN TROPIS

KONSEP RUMAH TINGGAL MODERN TROPIS

3, MATERIAL

Berikut merupakan material yang di gunakan seperti :

Penggunaan material batu bata merah pada dinding, bata ekspos pada bagian teras rumah serta penggunaan material

penggunaan matrial kayu dan kaca pada jendela dan pintu pada bagian dalam rumah serta beberapa perabot rumah

penggunaan material alumunium kaca pada bagian jendela rumah

4. PENCAHAYAAN

Pencahayaan ruangan pada siang hari, menggunakan cahaya alami seperti :

Pada bagian ruang tamu menggunakan pencahayaan yang berasal dari pintu depan sliding door dan void halaman samping kiri, ruang

makan dan dapur serta pantry dan kolam renang adanya bukaan di setiap ruangan

Pada bagian ruang tidur utama dan ruang tidur tamu juga memiliki jendela skylight dari atap yang mengarah pada ruangan

Pada kamar mandi utama maupun tamu memiliki pencahayaan alami menggunakan jendela skylight dari atap

5. PENGHAWAAN

Penghawaan berasal dari ventilasi udara yang terbuka atau pengunaan roster serta menggunakan sebagian jendela

MATA KULIAH : STUDIO PERANCANGAN ARSITEKTUR 3 / 14420112

DOSEN PENGAMPU 1 : TIGOR WILFRITZ S. P, S.T., M.T .

DOSEN PENGAMPU 2 : FEBBY RAHMATULLAH M, S.T,. M.T.

DOSEN PENGAMPU 3 : IR. FARIDA MURTI, M.T.

NAMA : AHMAD SAIFULLAH

NBI : 1442100019

TUGAS : DESAIN RANCANGAN RUMAH TINGGAL MODERN TROPIS

SUB TUGAS : KONSEP

KE
LEMBAR
3

SITE PLAN

SKALA 1 : 1000

MATA KULIAH : STUDIO PERANCANGAN ARSITEKTUR 3 / 14420112

DOSEN PENGAMPU 1 : TIGOR WILFRITZ S. P, S.T., M.T .

DOSEN PENGAMPU 2 : FEBBY RAHMATULLAH M, S.T,. M.T.

DOSEN PENGAMPU 3 : IR. FARIDA MURTI, M.T.

NAMA : AHMAD SAIFULLAH

NBI : 1442100019

TUGAS : DESAIN RANCANGAN RUMAH TINGGAL MODERN TROPIS

LEMBAR KE

TUGAS
SUB
: SITE PLAN
4 U

SKALA 1 : 500

MATA KULIAH : STUDIO PERANCANGAN ARSITEKTUR 3 / 14420112

DOSEN PENGAMPU 1 : TIGOR WILFRITZ S. P, S.T., M.T .

DOSEN PENGAMPU 2 : FEBBY RAHMATULLAH M, S.T,. M.T.

DOSEN PENGAMPU 3 : IR. FARIDA MURTI, M.T.

NAMA : AHMAD SAIFULLAH

NBI : 1442100019

TUGAS : DESAIN RANCANGAN RUMAH TINGGAL MODERN TROPIS

SUB TUGAS : LAYOUT

LEMBAR KE

LAYOUT
5 U

MATA KULIAH : STUDIO PERANCANGAN ARSITEKTUR 3 / 14420112

DOSEN PENGAMPU 1 : TIGOR WILFRITZ S. P, S.T., M.T .

DOSEN PENGAMPU 2 : FEBBY RAHMATULLAH M, S.T,. M.T.

DOSEN PENGAMPU 3 : IR. FARIDA MURTI, M.T.

NAMA : AHMAD SAIFULLAH

NBI : 1442100019

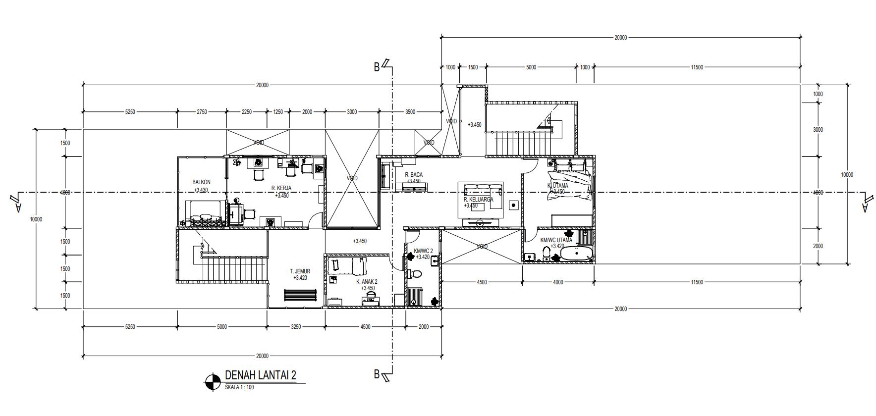
TUGAS : DESAIN RANCANGAN RUMAH TINGGAL MODERN TROPIS

SUB TUGAS : DENAH

LEMBAR KE

6 U

MATA KULIAH : STUDIO PERANCANGAN ARSITEKTUR 3 / 14420112

DOSEN PENGAMPU 1 : TIGOR WILFRITZ S. P, S.T., M.T .

DOSEN PENGAMPU 2 : FEBBY RAHMATULLAH M, S.T,. M.T.

DOSEN PENGAMPU 3 : IR. FARIDA MURTI, M.T.

NAMA : AHMAD SAIFULLAH

NBI : 1442100019

TUGAS : DESAIN RANCANGAN RUMAH TINGGAL MODERN TROPIS

SUB TUGAS : DENAH

LEMBAR KE

7 U

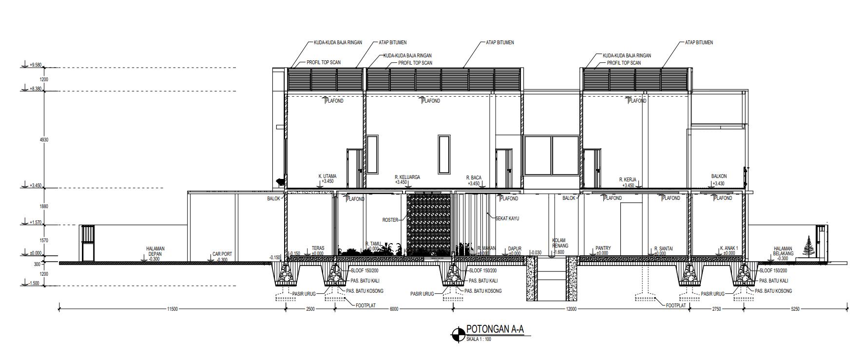
TAMPAK UTARA

SKALA 1 : 100

MATA KULIAH : STUDIO PERANCANGAN ARSITEKTUR 3 / 14420112

DOSEN PENGAMPU 1 : TIGOR WILFRITZ S. P, S.T., M.T .

DOSEN PENGAMPU 2 : FEBBY RAHMATULLAH M, S.T,. M.T.

DOSEN PENGAMPU 3 : IR. FARIDA MURTI, M.T.

NAMA : AHMAD SAIFULLAH

NBI : 1442100019

TUGAS : DESAIN RANCANGAN RUMAH TINGGAL MODERN TROPIS

SUB TUGAS : TAMPAK UTARA

LEMBAR KE

8 U

TAMPAK BARAT

SKALA 1 : 100

MATA KULIAH : STUDIO PERANCANGAN ARSITEKTUR 3 / 14420112

DOSEN PENGAMPU 1 : TIGOR WILFRITZ S. P, S.T., M.T .

DOSEN PENGAMPU 2 : FEBBY RAHMATULLAH M, S.T,. M.T.

DOSEN PENGAMPU 3 : IR. FARIDA MURTI, M.T.

NAMA : AHMAD SAIFULLAH

NBI : 1442100019

TUGAS : DESAIN RANCANGAN RUMAH TINGGAL MODERN TROPIS

SUB TUGAS : TAMPAK BARAT

LEMBAR KE

9 U

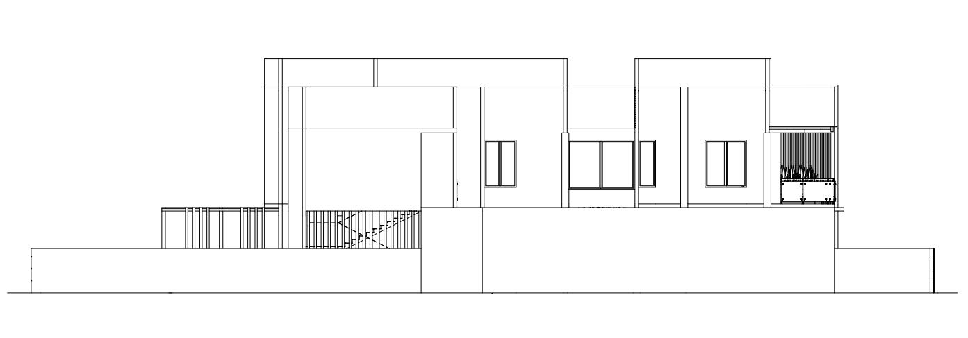
TAMPAK SELATAN

SKALA 1 : 100

MATA KULIAH : STUDIO PERANCANGAN ARSITEKTUR 3 / 14420112

DOSEN PENGAMPU 1 : TIGOR WILFRITZ S. P, S.T., M.T .

DOSEN PENGAMPU 2 : FEBBY RAHMATULLAH M, S.T,. M.T.

DOSEN PENGAMPU 3 : IR. FARIDA MURTI, M.T.

NAMA : AHMAD SAIFULLAH

NBI : 1442100019

TUGAS : DESAIN RANCANGAN RUMAH TINGGAL MODERN TROPIS

SUB TUGAS : TAMPAK SELATAN

LEMBAR KE 10 U

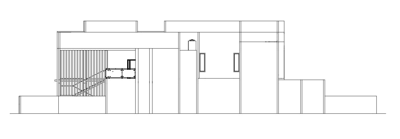
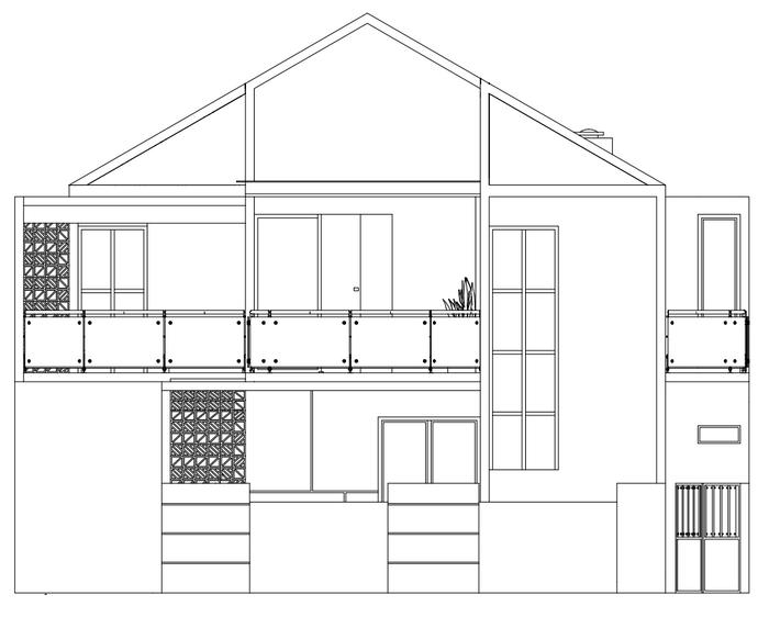
TAMPAK TIMUR

SKALA 1 : 100

MATA KULIAH : STUDIO PERANCANGAN ARSITEKTUR 3 / 14420112

DOSEN PENGAMPU 1 : TIGOR WILFRITZ S. P, S.T., M.T .

DOSEN PENGAMPU 2 : FEBBY RAHMATULLAH M, S.T,. M.T.

DOSEN PENGAMPU 3 : IR. FARIDA MURTI, M.T.

NAMA : AHMAD SAIFULLAH

NBI : 1442100019

TUGAS : DESAIN RANCANGAN RUMAH TINGGAL MODERN TROPIS

SUB TUGAS : TAMPAK TIMUR

LEMBAR KE

11 U

MATA KULIAH : STUDIO PERANCANGAN ARSITEKTUR 3 / 14420112

DOSEN PENGAMPU 1 : TIGOR WILFRITZ S. P, S.T., M.T .

DOSEN PENGAMPU 2 : FEBBY RAHMATULLAH M, S.T,. M.T.

DOSEN PENGAMPU 3 : IR. FARIDA MURTI, M.T.

NAMA : AHMAD SAIFULLAH

NBI : 1442100019

TUGAS : DESAIN RANCANGAN RUMAH TINGGAL MODERN TROPIS

SUB TUGAS : TAMPAK TIMUR

12 U
LEMBAR KE

MATA KULIAH : STUDIO PERANCANGAN ARSITEKTUR 3 / 14420112

DOSEN PENGAMPU 1 : TIGOR WILFRITZ S. P, S.T., M.T .

DOSEN PENGAMPU 2 : FEBBY RAHMATULLAH M, S.T,. M.T.

DOSEN PENGAMPU 3 : IR. FARIDA MURTI, M.T.

NAMA : AHMAD SAIFULLAH

NBI : 1442100019

TUGAS : DESAIN RANCANGAN RUMAH TINGGAL MODERN TROPIS

SUB TUGAS : TAMPAK TIMUR

13 U
LEMBAR KE

PERSPEKTIF EKSTERIOR Site (Bird Eye View)

MATA KULIAH : STUDIO PERANCANGAN ARSITEKTUR 3 / 14420112

DOSEN PENGAMPU 1 : TIGOR WILFRITZ S. P, S.T., M.T .

DOSEN PENGAMPU 2 : FEBBY RAHMATULLAH M, S.T,. M.T.

DOSEN PENGAMPU 3 : IR. FARIDA MURTI, M.T.

NAMA : AHMAD SAIFULLAH

NBI : 1442100019

TUGAS : DESAIN RANCANGAN RUMAH TINGGAL MODERN TROPIS

SUB TUGAS : PERSPEKTIF EKSTERIOR

LEMBAR KE

14

PERSPEKTIF EKSTERIOR Bangunan (Normal View)

MATA KULIAH : STUDIO PERANCANGAN ARSITEKTUR 3 / 14420112

DOSEN PENGAMPU 1 : TIGOR WILFRITZ S. P, S.T., M.T .

DOSEN PENGAMPU 2 : FEBBY RAHMATULLAH M, S.T,. M.T.

DOSEN PENGAMPU 3 : IR. FARIDA MURTI, M.T.

NAMA : AHMAD SAIFULLAH

NBI : 1442100019

LEMBAR KE

TUGAS : DESAIN RANCANGAN RUMAH TINGGAL MODERN TROPIS 15

SUB TUGAS : PERSPEKTIF EKSTERIOR

PERSPEKTIF INTERIOR RUANGAN LANTAI

1

MATA KULIAH : STUDIO PERANCANGAN ARSITEKTUR 3 / 14420112

DOSEN PENGAMPU 1 : TIGOR WILFRITZ S. P, S.T., M.T .

DOSEN PENGAMPU 2 : FEBBY RAHMATULLAH M, S.T,. M.T.

DOSEN PENGAMPU 3 : IR. FARIDA MURTI, M.T.

NAMA : AHMAD SAIFULLAH

NBI : 1442100019

TUGAS : DESAIN RANCANGAN RUMAH TINGGAL MODERN TROPIS

SUB TUGAS : PERSPEKTIF INTERIOR

LEMBAR KE 16

PERSPEKTIF

INTERIOR RUANGAN LANTAI 2

MATA KULIAH : STUDIO PERANCANGAN ARSITEKTUR 3 / 14420112

DOSEN PENGAMPU 1 : TIGOR WILFRITZ S. P, S.T., M.T .

DOSEN PENGAMPU 2 : FEBBY RAHMATULLAH M, S.T,. M.T.

DOSEN PENGAMPU 3 : IR. FARIDA MURTI, M.T.

NAMA : AHMAD SAIFULLAH

NBI : 1442100019

TUGAS : DESAIN RANCANGAN RUMAH TINGGAL MODERN TROPIS

SUB TUGAS : PERSPEKTIF INTERIOR

LEMBAR KE 17

viewhasilpenempatankanopigesesr

gambar di samping merupakan detail kanopi yang bisa di geser kedepandankebelakangyangditempatkandicarporbertujuan untukmelindungikendaraandisaatcuacahujan

MATA KULIAH : STUDIO PERANCANGAN ARSITEKTUR 3 / 14420112

DOSEN PENGAMPU 1 : TIGOR WILFRITZ S. P, S.T., M.T .

DOSEN PENGAMPU 2 : FEBBY RAHMATULLAH M, S.T,. M.T.

DOSEN PENGAMPU 3 : IR. FARIDA MURTI, M.T.

tiap penyanggah kanopi di tambahkan roda kecil agar bisa di geserkedepandankebelakang

NAMA : AHMAD SAIFULLAH

NBI : 1442100019

TUGAS : DESAIN RANCANGAN RUMAH TINGGAL MODERN TROPIS

TUGAS : PERSPEKTIF INTERIOR

DETAIL
LEMBAR
SUB
KE
18

RENDER EKSTERIOR

MATA KULIAH : STUDIO PERANCANGAN ARSITEKTUR 3 / 14420112

DOSEN PENGAMPU 1 : TIGOR WILFRITZ S. P, S.T., M.T .

DOSEN PENGAMPU 2 : FEBBY RAHMATULLAH M, S.T,. M.T.

DOSEN PENGAMPU 3 : IR. FARIDA MURTI, M.T.

NAMA : AHMAD SAIFULLAH

NBI : 1442100019

TUGAS : DESAIN RANCANGAN RUMAH TINGGAL MODERN TROPIS

SUB TUGAS : PERSPEKTIF INTERIOR

LEMBAR KE 19

RENDER INTERIOR

MATA KULIAH : STUDIO PERANCANGAN ARSITEKTUR 3 / 14420112

DOSEN PENGAMPU 1 : TIGOR WILFRITZ S. P, S.T., M.T .

DOSEN PENGAMPU 2 : FEBBY RAHMATULLAH M, S.T,. M.T.

DOSEN PENGAMPU 3 : IR. FARIDA MURTI, M.T.

NAMA : AHMAD SAIFULLAH

NBI : 1442100019

TUGAS : DESAIN RANCANGAN RUMAH TINGGAL MODERN TROPIS

SUB TUGAS : PERSPEKTIF INTERIOR

LEMBAR KE 20

MATA KULIAH : STUDIO PERANCANGAN ARSITEKTUR 3 / 14420112

DOSEN PENGAMPU 1 : TIGOR WILFRITZ S. P, S.T., M.T .

DOSEN PENGAMPU 2 : FEBBY RAHMATULLAH M, S.T,. M.T.

DOSEN PENGAMPU 3 : IR. FARIDA MURTI, M.T.

NAMA : AHMAD SAIFULLAH

NBI : 1442100019

TUGAS : DESAIN RANCANGAN RUMAH TINGGAL MODERN TROPIS

SUB TUGAS : BUKTI ASISTENSI

LEMBAR KE 21

Turn static files into dynamic content formats.

Create a flipbook
Issuu converts static files into: digital portfolios, online yearbooks, online catalogs, digital photo albums and more. Sign up and create your flipbook.