

Portfolio
SAGAR MULE ARCHITECTURE
Selected Work 2024


Everything that we do is an attempt of finding an expression for who we truely are.

Sagar Mule
Objective Qualities
INTROSPECTION
Permutations & Combinations
Calculated Risks Go First
Explorer
Sportsman
Problem solving
Rational / Reasonable
Physics
Geometry
Novelty
Perception
Philosopher
Sagar Mule
Architect
Engineer
Materials
Minimal
Subjective Qualities
Interpretation
Musician
Artist / painter
Organic
Nature
Abstract
Rhythm Harmoney
Pattern Arrangement Composition
Colours Aesthetics
Address Complexity by Simplifyieng & Rearranging


1) Centripetal House ( at Malshej ghat)
Design concept the project
3D views - Sketchup (rendering courtesy ARY Studios)
2D Illustrations - AutoCad, Vectorworks, Hand sketches
2) Project Oasis (at Bhachau - Gujrat)
Design concept
3D illustrations - hand-sketched, rendering- photoshop
2D illustrations - Vectorworks, ms powerpoint rendering - photoshop
Project phylosophy
3) Farm House (at Pali)
3D illustrations - google sketchup
2D illustrations - vectorworks
4) Art Institute (at Worli) (academic project)
3D illustrations - sketchup, rendereing - su-podium - photoshop
2D illustrations - auto cad, rendering - photoshop


1 Centripetal House
This is an inwardly oriented house. All the rooms open in a central courtyard which is the main interaction area.
Gradual transition from closed private spaces to semi covered areas to Open space drives every individual of the family to interact with each other as per everyone’s convenience and ease while maintaining the Integrity of the bonding among each other.
It is designed on the principle of traditional Indian courtyard. centered houses.



(rendering credit ary studios)

Design Development












Ground floor
First floor


Centripetal House

Hand sketch
Centripetal House


(rendering credit ary studios)


2 Project Oasis
Nature, in its own organic way attains equilibrium in a stable eco-system. By generating appropriate conditions, a self sustaining eco-system can be achieved in a controlled environment.
Organic Pool is one such concept, where an eco-system, similar to a Natural lake can be created, in a relatively smaller space. Water is slowly circulated with the help of low power airlift pumps to keep it fresh and oxygenated.
The flora and fauna naturally keep the PH level of water high (alkaline), making it beneficial for our health.



Airlift Pump
Swimming Pool
Waterfall
Gravels
Small Pond
Soil Layer
Airlift Pump
Gravels
Water Inlet
Organically Filtered
Water
Dirt trap
Dirt trap
Dirt trap
Filter

Water slowly circulates through array of ponds where it gets filtered through gravels and sand.
Project Oasis

Swimming Pool
Gazibo
Air Compressor
Air Compressor
Stones Granuels
Soil + Hydrogel
Bore Well
8” PVC pipe with replaceble filter
8. 53
Ground Level
Ground Level
Airlift Pump
Whirlpool overflowing in the pool
Bore Well
Oasis......an
Island of life
It is the hope in the adverse Environment...
In a Dessert where everything once flourished in the past has been perished and turned in to sand.....
A strong desire of life sustain against all odds and express The spirit of existence.

Project Oasis

3 Farm House
This structure was designed to be partially prefabricated in a ware house (superstructure) and partially on site (plinth) with an Idea of ease in replication and mass production.
The visual and physical openings are strategically designed as the structure can be oriented in any possible direction.
The substructure (plinth and 4ft walls) can be made in stones / rcc / bricks/ rammed earth.
The superstructure is made with steel framing lined with roofing on the external side and wooden panels internally sandwiching rockwool / glasswool / p.u. for insulation.



Ground floor

First floor
1” thk T&G
pine wood planks
2” thk T&G
epay wood planks
4” x 4” ms Beam
4” x 2” ms Joists
3” x 2” ms Purlins

Sectional View

Roofing Panel
Glasswool
Metal Framing
2” wooden Partition
Stone Base

View

Front Elevation
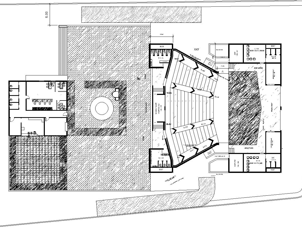
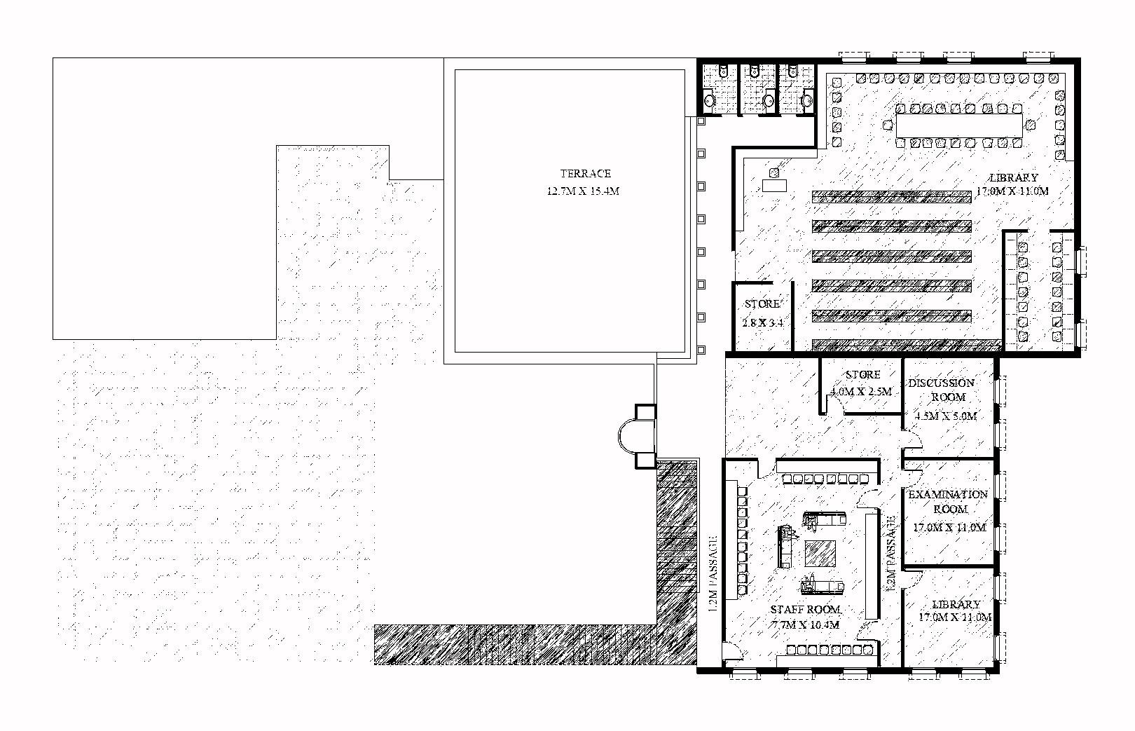
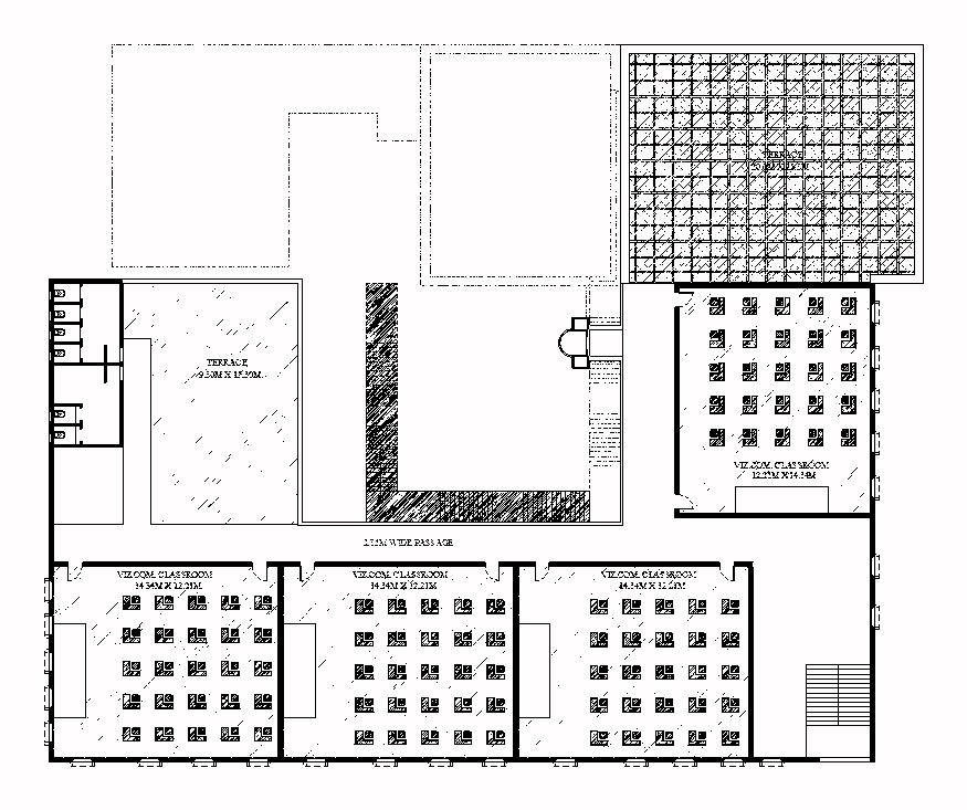
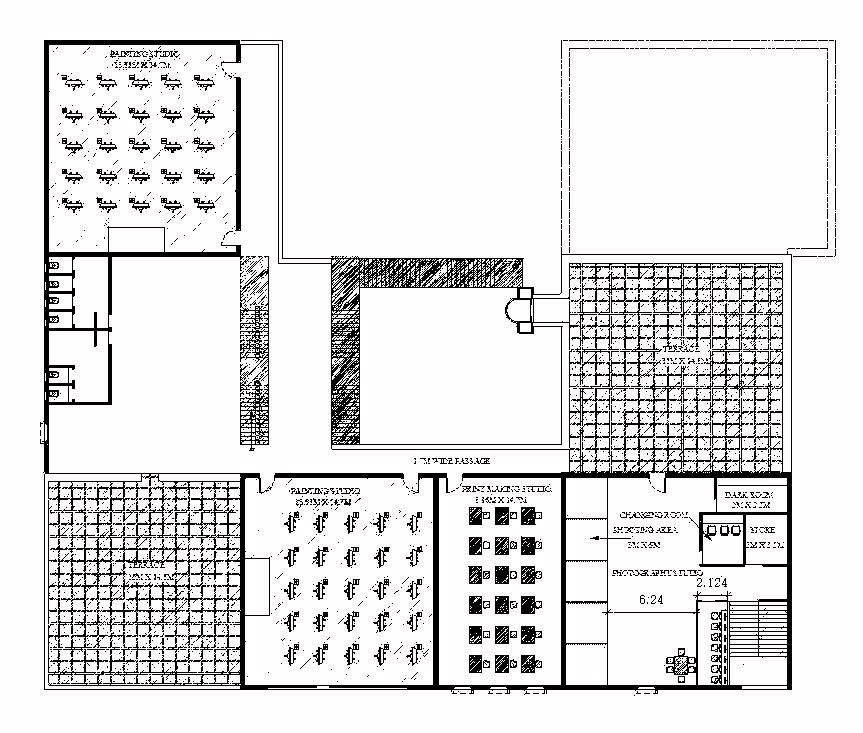
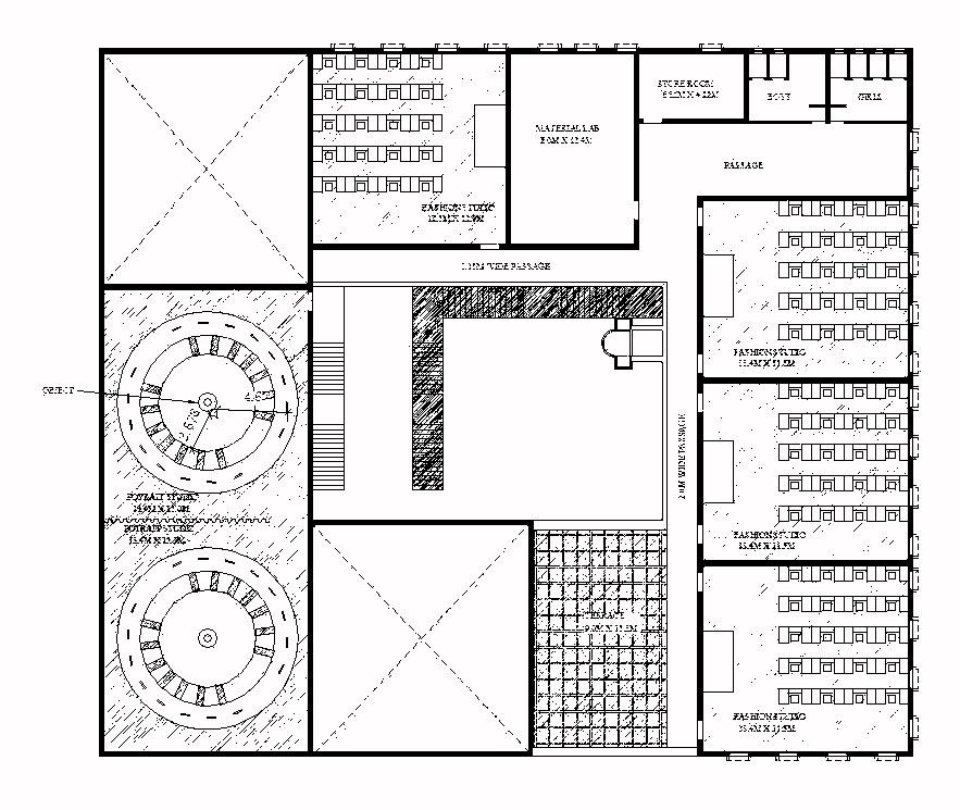
4 Art Institute
An Artist should not be enclosed within six planes. He / She need a sense of freedom to reach up to the maximum potential of creativity.
The building is designed in a spiral form around a central axis, which creates a matrix of covered and open spaces which creates a feeling of lightness & transparency. Terraces are designed in an informal way at each floor level to provide interactive spaces.


Design Development

The planning is based on mandala i.e. Navagraha yantra ( Nine planets)

By arranging these squares around a central axis in a spiral shape the basic form of the building is derived.

Addition and alteration is done in the basic form to match the requirement of spaces for the practical purpose.


Ground floor


First floor
Trustees
and Directors
Second floor

Terrace
Amphetheatre below
Terrace
Library
Staff room
Elevator
Elevator
Attrium
Attrium

Cafeteria / Amphetheatre Sketchup + su podium

Third floor
Architecture and Interiors
Fourth floor
Fine

Terrace

Library with Terrace
below
Anatomy study Studio access from fourth floor

Fifth floor Fashion institue
Painting studio
Painting studio below
Elevator
Attrium

Painting Studio (fine arts)
West side View

Sketchup + Photoshop


Thanks
Your attention is highly appreciated.
