Skip to main content

作品集Ⅳ

Page 1

About Me ······ P.1 01 關於我 DESIGN ········ P.3 DESIGN ········ P.7 02 03 CONTENT 大一設計 Ⅰ 點、線、面、體與空間構成 ··· P.3 Ⅱ「光箱」:光影的空間實驗 ····· P.5 大二設計 Ⅰ 住宅設計 ······· P.7 Ⅱ 餐廳設計 ······· P.9 Ⅲ 商辦設計 ······· P.11

大三設計

- 26 Nam Ngu Homestay

-福樂國小擴校評估規劃

DESIGN ········ P.13 04
Ⅰ 旅館案例分析 ···· P.13
Ⅱ 旅館設計 ········ P.19 Ⅲ 圖書館設計 ······ P.27 Ⅳ 團體規劃 ········ P.37
Ⅴ 團體設計 ······· P.43
Ⅵ 個人國小設計 ··· P.45
-毗鄰-以生活為起點,與水岸共生
-福樂X樂齡
個人資料 姓名 : 林藝融 生日 : 2001 / 06 / 13 信箱 : s520026@yrhs.en.edu.tw 手機 : (+886)931372366 1 About Me 擇善固執, 虛心學習, 細心取勝。

教育

永仁普通高中 ( 2017 – 2019 )

南華大學 建築與景觀學系 ( 2019 – )

學習經歷

大學開始接觸建築類型課程,練習基礎設計、學 術知識、基礎模型練習、實務應用。到了大三逐漸熟 悉設計手繪圖面的完整表現、進階學術考科、軟體集 電繪的基礎應用、建築模型及景觀模型操作等。

希望透過接下來的實習,學習更多建築實務上的 應用,並熟悉事務所工作方式及方法讓自己在進職場 前能先清楚此行業現實社會中的運作。

技能應用

Design

Adobe Photoshop

Adobe Indesign

Adobe Illustrator

Auto CAD

Sketchup

2
02 Ⅰ. 點、線、面、體與空間構成 → → → → → → 大林火車站 大林國小 大林產業文化館 分割圖 分割圖 分割圖 量體草模 量體草模 量體草模 3

設計理念:

設計從火車站延伸,車站內的旅客 人來人往,雖然彼此不相識,但卻 一同聚集在車站,並前往各自的目 的地。

設計說明:

火車站對我而言是有方向及指標性 的,所以主體以箭頭形符號呈現,

由於平面分割圖有許多三角形,所 以決定用大量三角形呈現,三角形 其中一角都指向中心,象徵旅客向 車站聚及,並發散。

→ → → 量體草模 紙模 正草模 正模 陌聚 point line plane
4
操作方式 體驗
→ 指認 → 描述 → 再現 → 故事

Ⅱ.「光箱」:光影的空間實驗 平面圖

南向立面圖 北向立面圖

L I G

02
透視圖
5

設計理念:

透過光影觀察,發現樹影錯落變化,結合案例中光照在水上產生的 波紋都有舞動之感,以此為設計理念。依照時間得變化雖看似相同 但卻截然不同,每一秒都有所變化。透過海的意象呈現一波波海浪 錯落,光線通過所交錯出的隙縫空間,產生強弱穿透的層次變化。

設計說明:

透過大量重複得片狀元素展現如一波波海水的層次感,表現海浪得 起伏,海水看似無邊,但卻具有深沉的方向性,故將設計呈現與平 時的海不同,而是具有方向性展現舞動知感。

Ⅱ.「光箱」:光影的空間實驗
6
G H T

以屋主(預設為夫妻)的視角思考設計,夫妻源自於不同家庭,用有不同生 活習性及個體的獨特性,為組成一個新家庭,兩人或許要經歷磨合、包容、習慣, 甚至是犧牲部份的自己奉獻於家庭。

設計說明:

以圓弧代表職業為歌手的女主人,亦表現女性的柔美圓融且呈現歌手感性的面 向。以方形代表職業為工程師的男主人,亦表現男性的剛毅堅忍,以及呈現工程 師理性的面向。

兩種量體相互結合但卻交錯,表現夫妻為愛結合,但仍保有自己獨特的一部 份,彼此磨合相處,創造獨一無二的家。

設計過程:

03 Ⅰ. 住宅設計 設計理念:
1F平面圖 2F平面圖 剖面圖 7 Residential
南向立面圖 北向立面圖 0.5 + 0.5 = 1 8 Residential
以屋主(預設為夫妻)的視角思考設計,夫妻源自於不同家庭,用有不同生 活習性及個體的獨特性,為組成一個新家庭,兩人或許要經歷磨合、包容、習慣, 以圓弧代表職業為歌手的女主人,亦表現女性的柔美圓融且呈現歌手感性的面 向。以方形代表職業為工程師的男主人,亦表現男性的剛毅堅忍,以及呈現工程 兩種量體相互結合但卻交錯,表現夫妻為愛結合,但仍保有自己獨特的一部

設計理念:

餐廳販賣中餐簡餐和剉冰,以冰塊的方形量體做延伸。剉冰的製作是 以機器旋轉冰塊,利用刀片刨出冰沙,故以冰塊旋轉過程作為餐廳外型。

材質方面是採冰塊的特性,冰塊剛拿出冰箱時是呈現結霜不透明的白 色,隨著時間從不透明到半透明最後變成透明的過程,以牆面,玻璃花磚

到玻璃表示。

03 Ⅱ.
餐廳設計
1F平面圖集景觀配置圖
西向立面圖 restaurant restaurant 9
2F平面圖 東向立面圖

A–A'剖面圖

B–B'剖面圖

南向立面圖 北向立面圖

材質方面是採冰塊的特性,冰塊剛拿出冰箱時是呈現結霜不透明的白
餐廳販賣中餐簡餐和剉冰,以冰塊的方形量體做延伸。剉冰的製作是 以機器旋轉冰塊,利用刀片刨出冰沙,故以冰塊旋轉過程作為餐廳外型。
色,隨著時間從不透明到半透明最後變成透明的過程,以牆面,玻璃花磚
restaurant restaurant10

設計理念:

由於基地旁的建物鄰近、樓層高,形成壓迫感,且缺乏植栽元素,故將基地

形狀內縮成為設計雛型,並在外圍和頂樓使用植栽環繞以綠化基地及周遭環境。

透過基地分析發現周遭住宅皆俱窗花、格柵等元素,故使用格柵元素於露台之上,

使其可讓植物攀附,以綠化且融入環境整體。

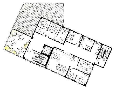
03 Ⅲ. 商辦設計
3F平面圖 4F平面圖 頂層平面圖 地下平面圖 11
+ 1F平面圖集景觀配置圖 2F平面圖
由於基地旁的建物鄰近、樓層高,形成壓迫感,且缺乏植栽元素,故將基地 形狀內縮成為設計雛型,並在外圍和頂樓使用植栽環繞以綠化基地及周遭環境。 透過基地分析發現周遭住宅皆俱窗花、格柵等元素,故使用格柵元素於露台之上, + A–A'剖面圖 B–B'剖面圖 OFFICE 12 南向立面圖 透視圖
13

暑假作業案例

26 Nam Ngu Homestay

14
PROJECT

設計理念

事務所決定為這個項目創造更多空間作為解決方案。在立面 上,靠近入口的大型木甲板是遊客休息和觀賞街道的地方。

甲板上種了一棵樹,作為建築物和人口稠密的社區的綠地。

在甲板後面,有一個寬敞的接待室和通向夾層樓和地下室酒 吧的通風樓梯。

在中心創建的空隙將建築物分成兩部分,由紅色走廊連接。 空隙的部分彎曲成漏斗狀,這意味著越高增強越多,允許更 多的光線和通風。

各種樹盆被放置在立面和空隙中,以獲得房間和公共空間的 綠色氛圍。背面完全自由的區域支持通風和光線穿過房屋。

設計者:Nemo Studio

年代:2020

座落位置:越南

面積:999㎡

房間數:20

04
15
26
Homestay
Nam Ngu
基本資料
16
517
18

hostel

19
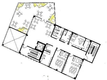
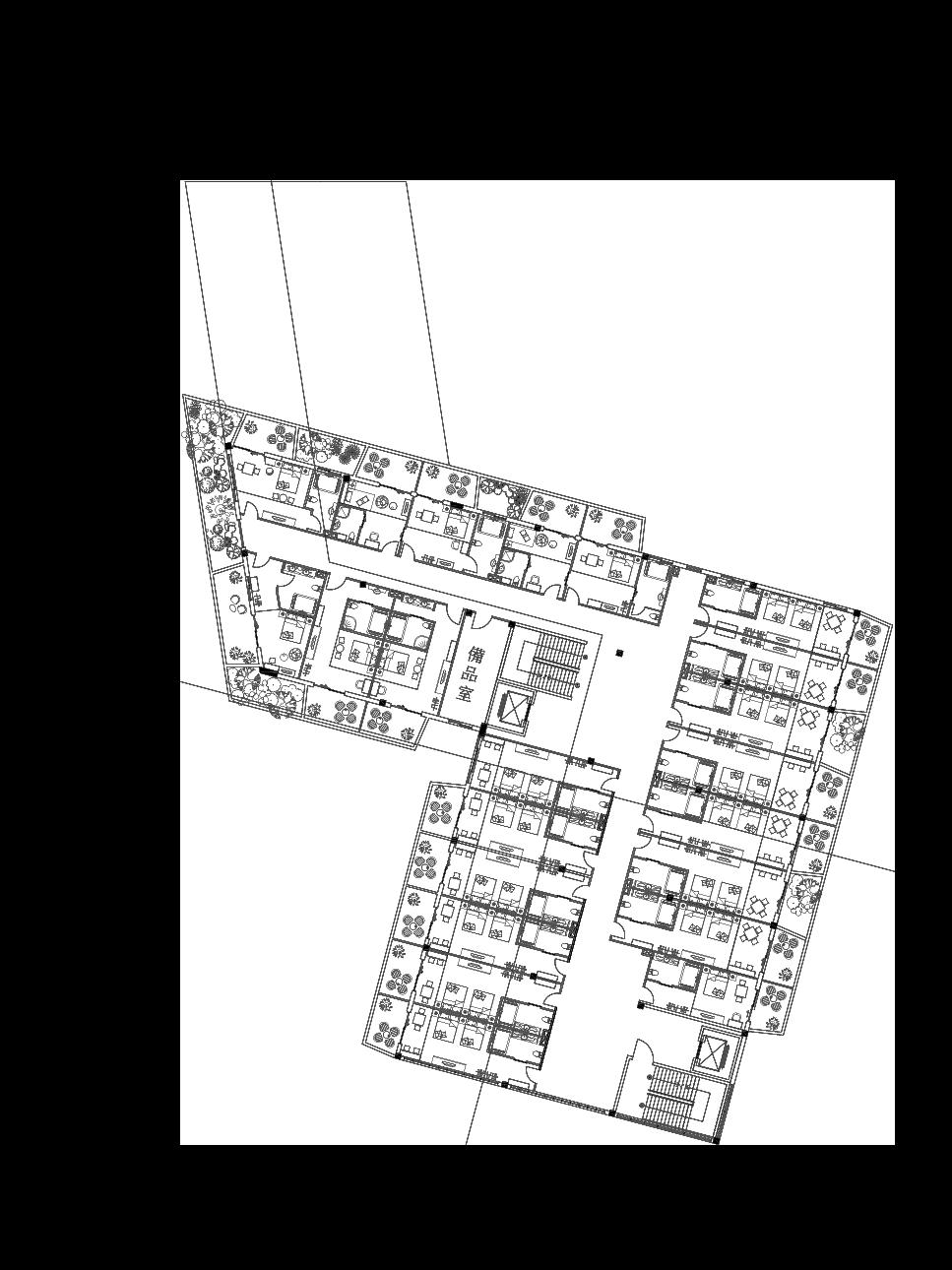
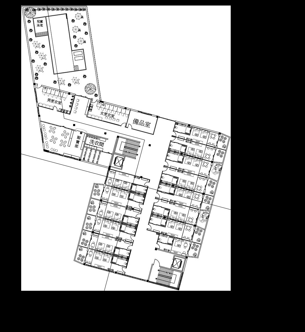
茶宴-觀光&商務旅館設計 20

機能與環境

1.交通:嘉北火車站(1.1km)、嘉義火車站(2.4km)

2.觀光:埤子頭植物園(2km)、森林之歌(1.5km) 、 嘉義市美術館(2.6km)、檜意森活村(1.1km)

3.購物:耐斯廣場(350m)、好事多(900m)

4.夜市:文化路夜市(1.9km)、家樂福夜市(3.6km)

5.醫療:嘉義基督教醫院(750m)

21
基地位置 : 600嘉義市東區忠孝路516號 綠地 文教 住宅 商業 機關 22

茶宴-觀光&商務旅館設計

概念與構想 :

以茶作為概念結合地處較安靜的地帶,希望創造在吵雜的都 市 中工作或旅遊的人 有個可以讓人 落 角休息的地方,靜下來喝口茶 沉澱自己的心情。

此基地位於市區西北部,靠近嘉北,離熱鬧的商圈有一小段距 離,相較安靜,但交通十分便捷之處。透過對附近住宅的分析多為 住家、小吃、補習班及機車行。

結合茶與餐廳打造一個以品嚐饗宴為主題的旅館,不僅品嘗茶 及餐點更結合了DIY的工作坊即將茶浴融入住宿體驗,從吃、住、 浴、樂全面體驗茶文化以及嘉義市得文化及步調。

量體發展 :

以茶園梯田發想,前端餐廳處1-3 樓,中段4- 5

房型空間6-7樓。使其成階梯形平台創造公共活動空間, 如泳池 及酒吧,可遠眺植物園美景。

樓,後段
23
04
24
全區及一層平面圖 地下平面圖 二層平面圖 三層平面圖 四、五層平面圖 A–A' 剖面圖 25

房間單元平面圖

房間單元剖面

東向立面圖

西向立面圖

南向立面圖

六、七層平面圖

北向立面圖

B–B' 剖面圖 26
LIBRARY 27
圖書館設計
28
- 停泊

圖書館設計 — 停泊

知識像海一樣又深又廣,無邊無際。以船作為發想,航行在知識 的海上拾起書本收藏於自身,帶著人們在這片海中探索、學習、旅行。

船的動能極重要的核心位於底部,而中層(包含甲板)為活動空 間,上層為管理的艙室。故設計內部機能時大致依此安排。一層為多 數人可用的重要且核心空間,往上則是一般閱讀使用空間及演講廳等 多功能使用空間。

設計說明

基地周遭學校繁多,甚至北興國中就位於基地對面,在商學及 放學的時間,學生流量非常大,故基地面欲設置可讓學生等待接送 區及休憩空間(如圖)與商店連接形成"學生得商店街"。

基地西側緊鄰民房,且封閉無路,故欲開發人、車皆可通行的 館區內通道(如圖),亦可連通下方基地。

將兒童設施設置於地下一層,一可隔音不干擾一般閱讀者,二 設置緩坡亦可創造兒童室外遊戲空間,製造從地面至地下友善的過 渡空間。

29 04
30

地下一層平面圖

地下二層平面圖

1.罕用圖書館

2.兒童閱讀室

3.小型兒童劇場

4.兒童學習、遊戲室

5.小劇場

6.兒童遊樂區

7.檔案館

8.日文書庫

9.館史室

10.國際會議廳

三層平面圖
一般圖書區
辦公室
館長、秘書辦公室 33
1.
2.
3.
10.志工室
全區、一層平面圖
二層平面圖 A–A' 剖面圖 34
1.商場、販賣部 2.樂齡專區 3.數位&查詢資訊區 4.青少年專區 5.漫畫區 6.期刊閱報區 7.展覽室 8.藝廊 9.儲藏室
11.整書區 12.員工休息室 13.餐飲區 14.預約書提取室 15.書店 16.團練室 17.舞蹈室 18.烹飪教室 19.咖啡廳 20.市集
1.影音區 2.自修室 3.一般圖書區 4.外文書專區 5.嘉義資料區 6.文創資料區 7.市政資料中心 8.本市作家專區
35
北向立面圖 東向立面圖

西向立面圖

南向立面圖

B–B' 剖面圖
36

福樂國小擴校評估規劃

一、 計畫範圍

1. 基地位於:621嘉義縣民雄鄉光明二街191號(福樂國小)

2. 以鴨母坔大排水流經基地

3. 以台1線及166縣道作為主要道路

4. 公園側邊則有小徑可連通對向住宅的小路

二、 計畫緣起

隨著時代變遷,交通工具的發達,一日生活圈也變得越來越大,改變了現今許多人的 生活方式,大多年輕人口選擇在市區工作,老年人口日益增加,鄰里社區的人口組成也 逐進改變,老舊社區的機能不再能滿足現在的需求

近年,社區慢活、小學型態的改變、居民幸福感及回歸自然生態等議題,逐漸頻繁 出現在各類雜誌及影音平台,成為社會熱烈討論的主題。

社會的快速變遷,使得人們生活備受壓力,進而不段追求科技與經濟的發展,忽略 了內心需求的富足,而另一種回歸自然、凝聚社區意識與關係的社區規劃意識的抬頭, 試圖解決並填滿空虛的心靈與失落的人際關係。

而福樂國民小學鄰近左岸公園及活動中心,背靠鴨母坔大排水,位處福樂社區的重 要位置,在建築與景觀上具備可操作的領域。且靠近民雄工業區,近年來,台商回流, 更預計會創造大量就業人口,政府也因應需求興建社會住宅,間接活化周邊生活機能。

嘉義縣位置 民雄鄉位置
基地位置 基地現況分析 內部設施 基地現況配置 39
福樂村位置

三、發展定位

公園:由東開始,經過基地並延伸至西側良好的藍、綠帶條件,因而使公園作為基地的主 要鋪陳,延續綠帶發展且包覆著小學與社區種種機能,再透過對鴨母坔大排規劃設計,達 到近水親水的活動產生,藉此來達到以自然銜接、建立由「綠塊—綠廊—綠帶」組成的「綠 色網絡」。

小學:現今福樂國小以圍牆區隔了小學生對外界的探索機會,因此除了以地貌形成自然的 校園邊界,更希望透過運用基地的優勢藍、綠帶延伸教學領域,且更進一步的達到親水食 農教育。

社區:社區活動中心與開放校園的機能整合與重疊,並透過社區教室,串聯了社區與小學 之間的橋樑,且進而促進居民彼此交流建立情感連結,使社區內的居民能夠凝聚一塊,用 學習的方式了解在地文化與多元文化,甚至是創造出社區內獨特的精神。

由上圖大致可分析出基地之於民雄市區及嘉義市區的關係,且主要節點皆沿著連接民雄 嘉義的台一線主要道路溢出,場所依賴主要分成兩種:場所依靠以及場所認同,基地本身依 靠基本民生機能如住宅區、學區、商業區及工業區等,屬於機能完備。

而學校和職業學校靠近與之相關的產業,更容易接受教育,各區域以道路相連結;而場 所認同透過感知、想法、價值觀等各種不同因素匯聚而成,主要以學校、社區、酒廠及工業 區構成地方場所的認同。

40
四、民雄市區與福樂村環境關係結構分析:

活動區域

聽覺、視覺:籃球場打球聲、小孩童嬉鬧聲

嗅覺:汗臭味強烈、排水溝味

空間感受:有規律性、強烈性、競爭性、好奇心

植栽分布

椰子樹、櫸樹、黑板樹、榕樹、桂花、小葉欖仁、烏心石及

臺灣肖楠等原生樹木30株,公園周邊七里香、厚葉石斑木、

光蠟樹。廣場附近的櫸樹,容易因陽光產生樹陰,使用者會 在這裡有活動;公園周遭的行道樹,引道公園出入口。

土地利用

未來可用走向:農產教學、販售及市集

41

基地北臨民雄市區,南至嘉義市,主要以台一線作為往來通路,周遭多為農地、住宅區、 工業區以及校園用地,現況因東部山脈延伸下來零散森林區塊、住宅區未妥善規劃、水文 及路徑錯綜複雜,且因工業區的增設,迫使住宅區的擴大擴張,未來基地周遭未使用區塊 將有可能首要擴增社會住宅之用地,帶動商業動機,延著台一線逐漸興建往北至民雄車站 商圈,成為主要幹道,另外縣166舒緩回堵的交通車流,而基地也正處於民雄—嘉義、民雄— 新港來往之要點。

主要以縣166連接各路徑產生節點,居民多以周遭傳統市場及中型販賣店為主,以外 則為以北的民雄市區與以南的嘉義市商圈,且鄰近工業區,有外籍移工人口加入,形成文 化及商業的帶動,而基地正相鄰著縣166,為各式活動經路徑聚集一塊,意味著由基地串 起了縣166、新生一街、光明二街、自強二街、中山路及之間各路徑,並將人們透過這些 路徑而帶入基地,成為「通路連結網」。

主要以光明二街連接各路徑,例如補習班放學接送帶隊路線前往光明二街;附近居民 延人行道行走、散步、遛狗與慢跑等活動,但卻發現校園外無家長與學生等候區及補習班 集合地,導致人行道停滿二輪車輛,甚至家長佔據道路一側。 此外,166縣為民雄和頭橋工業區的重要聯絡道路,為舒緩民雄和新港回堵的交通要道; 自強二街人行道過窄,且會有電桿擋住去路。

改善道路缺點供用路者安心使用外,應運用「通學路」讓孩童行走於上、放學路段中 能更安全的探索新事物,並符合各年齡層居民需求,成人本交通之地。

因周遭具備豐富公園系統以及農田土地,相互連接,可作為綠帶延伸使用,且發現附 近居民及放學的學生群,下午3點至6點為公園的活躍時段,所以當自然環境與人為活動 能夠共同一起探討時,或許可以讓福樂村成為以田園打㐀的鄉村。

以滿足社區居民及小學,提供鄰里休憩、森林校園及公共開放空間,以串聯生態廊道 及地景資源,提升居民生態生活的體驗。

住宅區自日治時期開始就鄰水發展,零散曲折的向外擴散,現今水道溝渠多已不再作 為灌溉使用,只具備排水之功能,都已失去了實際用途,也導致未經整治較為髒亂惡臭, 此外因鴨母坔流經穿越基地,使得大排兩岸居民聯繫上的不便利,缺乏之間的通路,因而 被區隔開。

目前上位計畫的民雄珠串以水圳為主軸,串接周邊公共機能空間達到水岸綠帶品質優 化,藉此希望除串連社區、公園與小學外,並就每河段之環境特性、相關機能對應及使用 需求,研擬改㐀構想,滿足社區所需,提升社區對於生態友善的態度。

一、結構 二、路徑 三、交通
整體分析 42
四、綠帶 五、水文

毗鄰 - 以生活為起點,與水岸共生

主旨

將鴨母坔兩旁河岸拉近距離,之間調整現況基地高程產生的邊界 效應,公共空間的帶入,使人產生活動、停留,以增強兩岸連結性。

順勢提取基地現有元素來帶動教學方面的多元化,更密切的聯繫 居民、環境、公共空間以及校園。

計畫構想

延續藍、綠帶銜接著周遭自然環境的條件,將公園遍佈基地

並扮演重要角色,串起了基地內小學與社區各種機能空間,甚至 到整個福樂村的居民,藉此將福樂國小作為社區塑㐀凝聚與歸屬 感的媒介,並透過親水及食農等活動設計,讓人身在其中能不只 得到感官上的體驗,發揮最大效益達到心靈層面的共鳴與滿足, 更透過將鴨母坔排溝兩旁拉近距離,不因分界㐀成的不便利而產 生距離,透過節點的設置、人群的聚集、活動的產生,使社區活 絡凝聚,重新復甦在地的發展及認同感!

45
46

福樂X樂齡 - 個人國小設計

設計理念:

將樂齡終身學習帶入校園,創造國小學童與附近居民長輩互相學習、參與彼此課堂, 透過參與以建立社區認同,創造社區核心。

打造一個社區的小學,而非是傳統以教室為主的教學法;像蒙特梭利教學法學習,使 學童能透過多元型態排列的教室、地景設計、走廊與學習角落等中介空間,親自用感官學 習如何獨立、創造力、動手學習、自我創造的過程。

設計手法:

1.劃分群落教室,增加類似角落、附屬空間、凹室等空間並考慮垂直空間關係。 2.結合基地內本有的藍帶、綠帶的地景設計,運用食農、親水等元素使學童從環境中學習。

3.建築空間中保留大量挑空空間,使同學不僅在寬大的走廊互動,走廊外亦有良好的景 觀品質及遊樂空間。

傳統教室單元 非線性單元連結 教室間際創造活動空間 將教室群落化
融入食農元素
45
46

地下一層平面圖

機房 輔導室 會議室 人事室、主計室 校長室 校史室 秘書室 會客室 整書區 +370 表演、舞蹈教室 表演、舞蹈教室 +720 全區配置圖
二層平面圖 三層平面圖 A-A'剖面圖 A-A'剖面圖 47
B-B'剖面圖 東向立面 西向立面 東向立面 西向立面 北向立面 北向立面
B-B'剖面圖 南向立面 B-B'剖面圖 北向立面圖 東向立面圖 西向立面圖 南向立面圖 48
A-A'剖面圖

模擬圖面

49
50

Turn static files into dynamic content formats.

Create a flipbook