Architecture Portfolio- Sawan Singh Negi

Page 1


Hello!

I am a newly graduated professional in the field of architecture , My concept of fun is to learn about places and the people that inhabit them through observation and study. Architecture has been a medium for me to pursue my dreams. This portfolio is a compilation of work that has been done in past five years.

CONTACT

sawannegi60@gmail.com

9910777227

Vaishali Sector-1,Ghaziabad ,India

https://www.behance.net/sawannegi

SAWAN NEGI
SAWAN SINGH NEGI

2005 - 2017

2017 - 2019 2019 - 2024

St Marys Public School, New Delhi

Secondary School

Amrita Vidyalayam, New Delhi

Higher Secondary School

Amity School of Architeture and Planning, Noida

Bachelor of Architetcure

Laurie Baker Trophy

Shortlisted in Top 3

Zonal NASA Design Competition

Reubens Exhibition

Annual NASA Design Competition

Shortlisted in Top 25

Annual NASA Design Competition

Team Coordinator (Shortisted in Top 25)

HUDCO Trophy

Shortisted in Top 3

Laurie Baker Trophy

Team Coordinator

120 HOURS

Solar Decathlon India

Team Coordinator

Erection of Iconic Structure

NHAI Competition (Intership)

Pencil Carving Workshop

Zonal NASA Convention

Lighting As an element of Design

Seminar by Ar.Ashish Baha

NTPEL (User Interface Design)

IIT Roorkee

Digital Illustration of Architec-

Udemy

Post-Production for Visualization

Domestika

Socila Vision

Mix use

Holly Cross Crurch

Institutional

Monsoon Salon

Interior

Interior

Competition

Deepti Ashram

Interior

Beu Salon Arcairon Iconic Structure

Interior

CAD & Modelling

Rendering Presentation

RESEARCH

MYSPACE ARCHITECTS- Internship

(9 th jan-15th may2023)

C onceptuatlization/Planning/ 3D Modelling/ Presentation & Architetcure Drawings

C onceptuatlization/Planning/ 3D Modelling/ Presentation Drawings

C onceptuatlization/Planning/ 3D Modelling/ Presentation & Interior Drawings/Product Design

C onceptuatlization/Planning/ 3D Modelling/ Presentation Drawings

C onceptuatlization/Planning/ 3D Modelling/ Presentation Drawings

Planning/3D Modelling/Interior Drawings

Planning/Interior Drawings

Freelancer

3D M odelling& Visualization, Logo Design, Plans Render, Product Design, Photo Editing

Autocad

Revit

Sketchup

Rhino

Vray

Photoshop Lumion

Enscape

Lightroom

Indesign

Illustrator

Premier Pro

Waterfront Developemnt a Backbone& Opportunity For The City

Ethos Of Indian Pedestrian Streets

Climate Responsive Architecture

ACADMIC

URBAN FOOD HUB SLUM REDEVELOPMENT

ARCHITECT THESIS URBAN DESIGN

PAGE: 6-15

PAGE: 16-27

INTERNSHIP OTHER WORK

03 04 05

SOCIAL VISION

INTERNSHIP WORK

PAGE: 28-33

MONSOON SALOON

INTERNSHIP WORK

PAGE: 34-41

MISCELLANEOUS

FREELANCING WORK

PAGE: 42-47

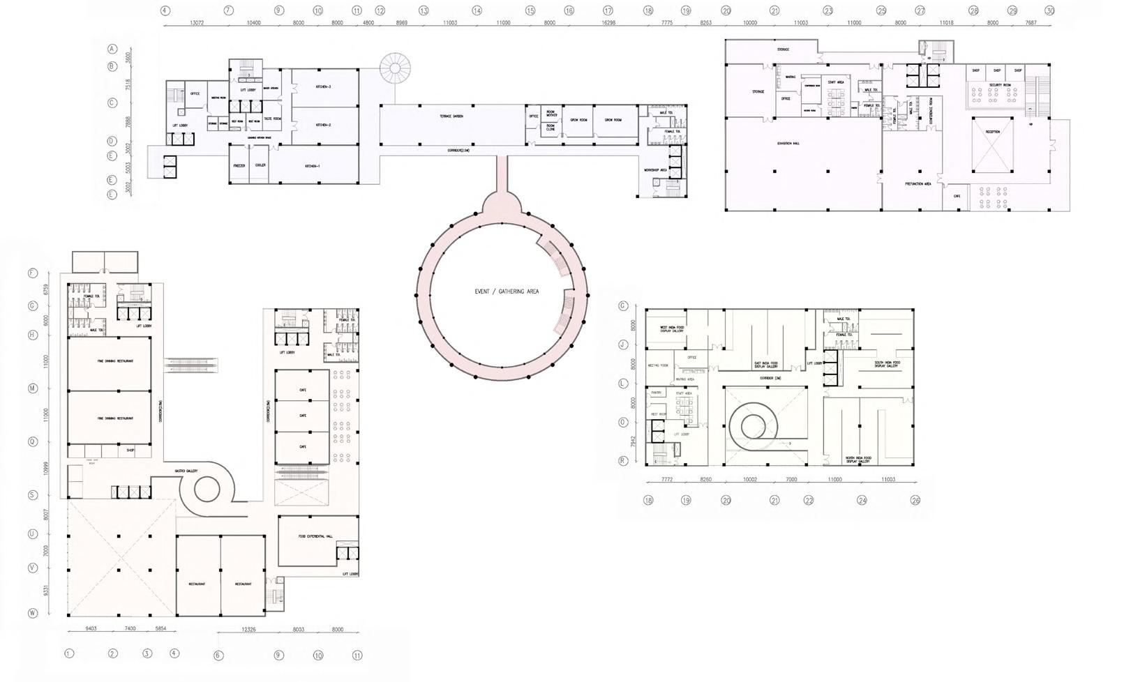
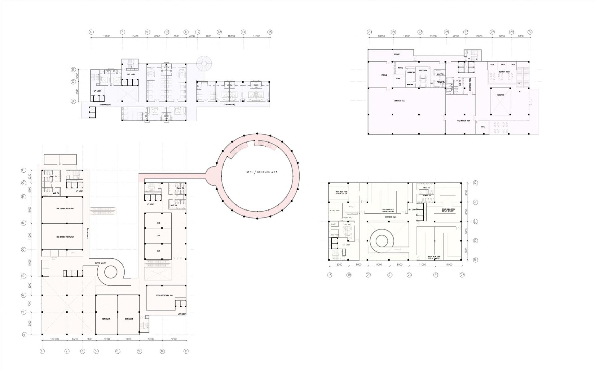
URBAN FOOD HUB

ARCHITECTURE THESIS

TYPE: MIXUSE

LOCATION: AZADPUR , DELHI

SITE AREA: 361548 SQ.FT

YEAR: 2024

An Urban Food Hub in India is a vibrant community space where local food is grown and shared. This thesis explores sustainable architectural design that supports local farmers, celebrates cultural diversity, enhances urban food security and community well-being.

“Food nourishes the body, architecture shelters the body, and culture nourishes the soul. All three are fundamental expressions of a society’s values and history.”

ISSUES

FOOD

Indian food in urban food hubs enriches cultural diversity, offers unique flavors, and supports local economies.

EXPERIENCE CULTURE

Experience in urban food hubs ensures efficient management, fosters community trust, and enhances food security.

Indian culture enriches urban food hubs by introducing diverse, vibrant flavors and promoting culinary diversity.

CENTRAL SPINE

LEARNING CENTRE

FOOD COURT EXHIBITION MUSEUM

Culinary journey begins with entering the lively plaza. The plaza at entrance to accomodate various public activities and events.

THE PLAZA
HOTEL

CENTRAL GREEN

Transition to a serene learning oasis at the green stage, where all central activities are seamlessly integrated. Verdant landscapes promote a healthy lifestyle.

THE MUSEUM ATRIUM: History of your favourite cuisines LIVE KITCHEN EXPERIENCE : Watch, taste and enjoy the fresh meals prepared infront of you

THE

FIRST FLOOR PLAN

SECOND FLOOR PLAN

THE MUSEUM OF CUISINES

It offers an immersive journey through India’s rich culinary heritage, showcasing the history, evolution, and diversity of its regional cuisines, celebrating the nation’s vibrant food culture.

Transitions seamlessly from an exhibition space to expansive central greens

Reimagined as a vibrant space fostering culinary experiences and social interactions, beyond mere dining.

THE CENTRAL VISTA
THE FOOD COURT

SLUM REDEVELOPMENT

URBAN DESIGN STUDIO

TYPE: MIXUSE

LOCATION: KIRTI NAGAR , DELHI

SITEA AREA: 544500 SQ.FT

YEAR: 2023

This project centers on redeveloping the slum in Kirti Nagar, Delhi. It aims to create dignified, sustainable living spaces with better housing infrastructure and community facilities, fostering a stronger sense of belonging and improving residents quality of life.

FIGURE GROUND MAP

The figure-ground map analysis revealed distinct patterns of built-up areas within the site. The slum area exhibited a dense configuration of built structures, indicative of a high level of occupancy.

LAND USE

The predominant land use in the area is residential, with instances of mixed-use zones where residential and commercial activities coexist. Numerous stand-alone commercial blocks are dispersed throughout the region, complementing the overall urban fabric.

ROAD SECTION

OPEN SPACES MAP

The site is characterized by a diverse array of open space systems, featuring expansive public areas of considerable scale, alongside private open spaces.

ROAD HERARCHY

The site is enclosed by a collector road, which faces challenges such as informal parking and congestion attributed to the prevalent commercial land use.

URBAN DESIGN STRATERGIES

TERRACING

EDGE ACTIVATION OPEN SPACE CONNECTION LINEAR CONNECTION

AXONOMETRIC DIAGRAM

URBAN PLACE MAKING

Central Green thrives as our community’s lively nucleus, fostering diverse events and interactions. While a hub for shared experiences, its universality might temper exclusive belonging.

Stilt spaces, housing various amenities, offer sheltered intimacy distinct from the open green. They foster belonging and diverse communal engagement within a protected environment.

Around the core, allocated floor spaces balance encroachment risk with social need. Positioned strategically, they foster floor-specific community engagement, offering residents a sense of ownership .

CENTRAL GREEN STILT ACTIVITY SPACES SPACE AROUND CORE 5. TERRACES

High-level terraces, shared among multiple floors, fulfill social needs for distant residents. Collectively owned and available for events, they provide dedicated communal spaces amidst elevated living environments.

MULTIPURPOSE TERRACES

Terraces foster vibrant community spaces, enhancing social interaction, relaxation, and environmental sustainability in both urban and residential settings.

Utilising stilts as multipurpose spaces. Introducing qualities like semi-open spaces, double height, spacious, well-lit, in vicinity to lively landscape

VIBRANT STILT

SITE CIRCULATION MAP

OPEN SPACE SYSTEM

BUILDING HEIGHTS MAP LANDUSE MAP

REIMAGINING THE REMUNERATIVE Remunerative component as a mix use building that caters to the needs of the context and highlights the craftsmanship of woodworkers in kirti nagar.

GROUND FLOOR PLAN

CREATING THRESHOLD SPACES

Multiple landscape pockets adjoining the central green for more welcoming spaces that encourage community interaction and connect with nature.

The central green acts as a lively space for community activities, bringing people together for events and socializing.

CENTRAL GREEN COURT

preserving the visual corridor ensures unobstructed views, maintaining a clear line of sight that enhances the architectural harmony and cultural significance.

CENTRAL VISTA

SOCIAL VISION

INTERNSHIP WORK

TYPE: MIXUSE

LOCATION: NAJAFGARH , DELHI

SITEA AREA: 1470 SQ.FT

YEAR: 2023

In this project, the client wanted the buildings form and facade to convey its use. The brief stated the requirement of an NGO with residence and multipurpose spaces. I got the opportunity to be involved in the project throughout its stages from client presentations, interior drawings, services planning to tender

FOURTH

SECTION-A

DOOR SCHEDULE

MONSOON SALON

INTERNSHIP WORK

TYPE: COMMERCIAL (INTERIOR)

LOCATION: AMRITSAR , PUNJAB

SITEA AREA: 2000 SQ.FT

YEAR: 2023

This luxurious salon was designed as a part of monsoon group. This is their biggest salon building located in amritsar. I got familiar with the general material palette of salons, their space planning. inferior layout etc.

FLOORING LAYOUT

ENTRANCE

CUTTING STATION

MISCELLANEOUS

FREELANCING WORK

TYPE:

PRODUCT DESIGN, INTERIOR, COMPETETION, RENDRING, 3D MODELLING, LOGO DESIGN

SKILLS: LEADERSHIP, MODELLING,PHOTOGRAPHY, TEAM MANAGEMENT, RENDERING,

YEAR: 2020-2024

BRIEF:

CONTRIBUTION:

BRIEF: Designing a mobile settlement for construction labourers

CONTRIBUTION: Team Coordinator, Research, Design, Graphics ,Renders

Designing a Bus Terminal considering the pandamic conditions

Design, Graphics ,Renders

BRIEF:

BRIEF: Generate innovative housing using vernacular techniques for a selected geo-climatic zone

CONTRIBUTION:

CONTRIBUTION: Research, Design, Composition , Graphics ,Render

Designing a Cohousing, envision an intentional community

Team Coordinator, Research, Design, Graphics ,Renders

PRODUCT DESIGN

LOGO DESIGN

UTOPIA & DISTOPIA : If UTOPIA=NOWHERE, then A PLACE WITH NO ONE =UTOPIA.

PHOTOSHOP RENDERING

“You can’t use up creativity. The more you use, the more you have.”
—Maya Angelou
SAWAN SINGH NEGI

Turn static files into dynamic content formats.

Create a flipbook
Issuu converts static files into: digital portfolios, online yearbooks, online catalogs, digital photo albums and more. Sign up and create your flipbook.