Architectural Portfolio

Page 1

PORTFOLIO

Ryenne Christa C. de Gorostiza

HELLO.

Welcome to my architectural portfolio.

Inside are six of my best digitally-created architectural projects with the last pages featuring some of my manual drawings. Each of the project will highlight my skills in designning, planning, and rendering - all of which I have acquired through the past three years I have spent in architecture school.

Concepts, forms, and space developments are shared; as well as floor plans, sections, elevations, perspectives, and a master development plan. So, dive in to see my works page per page.

ABOUT ME

As a 4th year architecture student from Mapua University, I have earned knowledge in both design and planning, as well as an understandding of different building systems used for buildings. I also had great training in multitasking and being ahead of the deadlines as time in Mapua is very limited per term. Hence, I am equipped to be an architectural internee.

OBJECTIVES

To exert my gained skills in design, planning, drafting, and rendering through hardwork, dedication, timeliness, and teamwork, for the benefit of the architectural firm; it is also my goal to be an impactful internee who would be able to contribute to the success of the project, and learn via careful observance and experience from my future mentor/s.

RYE DE GOROSTIZA

Ryenne Christa C. de Gorostiza

rccdegorostiza@mymail.mapua.edu.ph www.linkedin.com/in/ryechrista ryechrista@gmail.com

09687026234

EDUCATION

2020 - Present Mapua University

BS Architecture

Quarterm System, GWA: 1.75

2018-2020

San Pablo City Science Integrated High School

STEM Strand (Science, Technology, Engineering and Mathematics)

Graduated with Honors, GPA: 94

2014-2018

Scuola dei Bambini di Sta. Teresita International Montessori Inc.

Junior High School

- Graduated as Class Valedictorian

- Presented with the Sol Aragones Award for winning in the DSPC: Division Schools Press Conference Feature Writing - 3rd place

- Given the Multiple Intelligence Award Verbal Linguistic Intelligence Visual Spatial Intelligence Logical Mathematical Intelligence

EXPERIENCE

Architectural Work Immersion

Ark LMFB Development Inc.

Feb 2020 - Mar 2020

San Pablo, Calabarzon, Philippines

ORGANIZATION

UAPSA Mapua Chapter

Member, Aug 2021 - Present

Usbong Kalikasan

Founding Member, Aug 2022 - Present

The Graphics Club, MU Director of Advertisement and Promotion Committee, Oct 2021-2022

Members of the Mapúa University G-Club are amongst the Top 50 Students of the Batch (AR-ID-BE Department)..

Student Council of the School of ARIDBE (Architecture, Industrial Design, and the Built Environment)

Executive Secretary, Aug 2021-2022

Assistant Secretary, Aug 2020-2021

SKILLS Design

2D Autocad Sketchup Revit (beginner)

render

DRAFTING

ADOBE

Enscape Lumion

2D Autocad Revit (beginner)

Photoshop InDesign Lightroom

MICROSOFT

Word Excel PowerPoint

CANVA

SEMINARS

Presentations Posters Graphs

The New Normal: Architecture Matters - Online Archi Week Webinar via Zoom

Held by UP Diliman Architecture Student Council

October 17, 2020

Redefining Interiors: A Guide to Indoor Plants - Online Archi Week Webinar via Zoom

Held by UP Diliman Architecture Student Council

October 13, 2020

ACHIEVEMENTS

Revolutionary Leadership Award

Presented by Mapúa University Council of Presidents

November 2021

The Revolutionary Leadership Award honors an officer who redefines the genuine meaning of student leadership. The awardee strategically bridges the challenges encountered, maintaining a smooth, fresh and innovative way of developing the welfare of the student body.

CONTENTS Professional Practice 3 Final Project - August 2023 TOWNHOUSE 01 10-unit, 2-storey Townhouse at Versailles Alabang, Las Piñas (page 7 - 13) Architectural Design 5 Final Project - August 2023 CULTURAL CENTER 02 Cordillera Administrative Region (page 14 - 21) Architectural Design 6 Final Project - August 2023 POLICE HEADQUARTERS 03 at Batac City, Ilocos Norte (page 22 - 27) Architectural Final Project DOMESTIC AIRPORT 04 at Bohol, Central

Architectural Design 6 Project - August 2023

DOMESTIC AIRPORT

Central Visayas Region (page 28 - 31)

Professional Practice 3

Final Project - August 2023

at Nagsasa Cove, Zambales (page 32 -37)

Professional Practice 3 Final Project - August 2023

HIGH-RISE BUILDING

77-Storey, Mixed-use Building located at Mandaluyong (page 38 - 45)

Visual Communication 1 & 3

History of Architecture 3

Final Plates - August 2023

(page 46 - 49)

Beach HOTEl & RESORT 05
06
MANUAL DRAWINGS 07

TOWNHOUSE - 10-UNIT, 01

Being located at Versailles Alabang, the 10-unit Townhouse is designed to fit the subdivision’s french theme. Stucco-finished walls, sloping roofs, and arched windows, are incorporated into each unit.

A unit consists of two storeys with a total floor area of 201.56 sq.m. and sits on a 144 sq.m. lot area per unit. It has 3 bedrooms, 2 toilet and bath, and a 2-car carport. Other spaces found inside are the following:

- Powder Room

- Staff Quarters with its own Toilet and Bath

- Laundry Room

- Family Room

- Lanai

- Wood Accents

- Built-in Storage

- Premium Laminated Cabinetry (All Bedrooms, Kitchen)

10-UNIT, TWO-STOREY

Final Plate for Professional Practice 3 | Completed on August 2023 | Modeled in Sketch-up | Rendered using Enscape 07
08
EXTERIOR PERSPECTIVE OF TOWNHOUSE | Modeled in Sketch-up | Rendered using Enscape 09
10
09
12
13

TAWID - A CULTURAL 02

Design Concept

Tawid is a legacy designed after the woven threads passed down by the cordilleran master weavers to their succeeding generations. As a cultural center, the proposed project will serve as a statement promising that the art and traditions of cordillera will always be remembered and practiced.

Thus, the proposed project is named “tawid”, which is a cordilleran term for the act of inheriting.

To further emphasize cordilleran art and culture, elements seen on the plans and the structure’s exterior are patterns found in the region’s handmade textiles. Vibrant colors, such as red, yellow, and orange are used giving life to the building.

CULTURAL CENTER

Final
for Architectural
5 |
on October 2022 |
in
|
using
15
Plate
Design
Completed
Modeled
Sketch-up
Rendered
Lumion

SPACE AND FORM DEVELOPMENT

2 3
1
16
CONCEPT: WEAVING PATTERN SPACE FORM FROM CONCEPT ROOF DESIGN FROM CONCEPT
4
CONCEPT
17
FINAL FORM WITH EXTERIOR DESIGN FROM CONCEPT

CLOSE-UP PERSPECTIVE OF MAIN ENTRY |

18
Modeled in Sketch-up | Rendered using Lumion
19
21

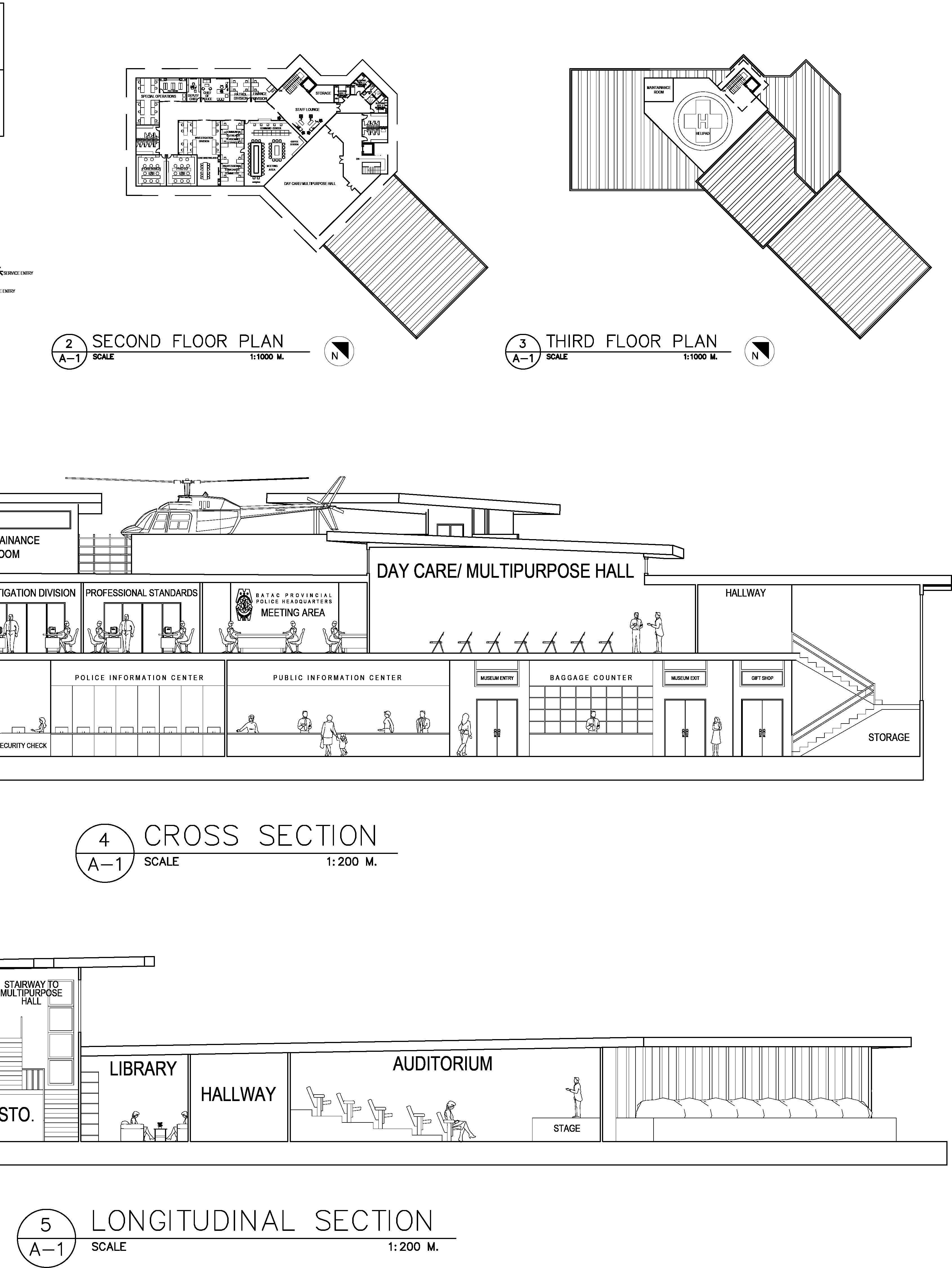
PROVINCIAL POLICE 03

Design Concept

Given their long history with violence and strict rulings, the presence of the police often intimidates people. Such impression creates a wall between officials and the general public resulting to conflicts and issues.

For this project, the concept is from the phrase “hand in hand”, which describes a police-people relationship that is healthy and sustainable.

The structure is envisioned to break the wall and introduce a police image that is respectable and approachable by creating a space that enables private work environment while maintaining open and welcoming spaces for the public to enjoy.

POLICE HEADQUARTERS

Final Plate for Architectural Design 6 | Completed on January 2023 | Modeled in Sketch-up | Rendered using Lumion 23

SPACE AND FORM DEVELOPMENT

1 2 3 4 5 6 24
25
26

CLOSE-UP PERSPECTIVE OF EXTERIOR DETAILS |

27
Modeled in Sketch-up | Rendered using Lumion

SUHIRON - BOHOL 04

Design Concept

Located in the province of Bohol, the proposed domestic airport is designed after a local fish in the region that is known as “bangsi” or the flying fish.

Bangsi came from the exocoetidae family, which name translates to “exploring the outdoors” - a phrase that all travelers are aiming for whenever they up to visit bohol. These flying fish may be seen rapidly leaping out all over the Bohol sea, making the building a mass that signifies how the waters of bohol is able to meet the sky.

Thus, the roof design imitates the form of a group of bansi leaping up from the airport structure; and its name, “suhiron” is a boholano term that translates to exploring.

DOMESTIC

29 BOHOL
AIRPORT Final Plate for Architectural Design 6 | Completed on December 2022 | Modeled in Sketch-up | Rendered using Enscape

SPACE AND FORM DEVELOPMENT

CONCEPT: BANGSI (FLYING FISHES)
2
ROOF PATTERN BASED ON THE CONCEPT
1 30
3 31
ROOF DESIGN BASED FROM THE PATTERN OF LEAPING FISHES

MODERN CHINESE 05

Project Abstract

A Chinese businessman will be opening a beach resort-hotel to highlight Pseudo-Traditional Chinese Recreational Facilities, that will cater to relaxation and escapism from the routine stress and pressure from the demanding city life. The complex will have calming Zen Gardens and Koi ponds, as well as a blend of Modern and Ancient Chinese practices leading individuals into the state of Zen.

The requirement for a blend of modern and traditional Chinese cultural leisure facilities will pave the way for cross-cultural cooperation. This facility would also serve to highlight the beauty of Chinese culture, influencing and enriching our own.

BEACH RESORT-HOTEL

Final Plate for Architectural Design 7 | Completed on March 2023 | Modeled in Sketch-up | Rendered using Enscape 33
34
35
INTERIOR PERSPECTIVE OF SPA LOBBY |
36
Modeled in Sketch-up | Rendered using Enscape
INTERIOR PERSPECTIVE OF RESTAURANT | Modeled in Sketch-up | Rendered using Enscape 37

HIGH-RISE BUILDING 06

Located at Brgy. Wackwack Greenhills, Mandaluyong City, the Sky City is a 77-storey mixed-use building. It has 8 levels of basement parking, 5 levels for the podium, roof decks and gardens, 20 levels of office space, and 47 levels of residential space.

Its site, being famous for the term “big hole”, is adjacent to both EDSA and Ortigas Avenue where many other malls are found like the Robinsons Galleria, Shangri-La Plaza, The Podium, and SM Megamall.

Once erected, the proposed building will be the tallest in the country.

BUILDING -
Group Plate for Architectural Design 8 | Completed on August 2023 | Modeled in Sketch-up | Rendered using Enscape 39
77-STOREY MIXED-USE
CROSS SECTION OF 40
OF CARRIAGEWAYS 41
42
EXTERIOR DETAILS OF TOWER | Modeled in Sketch-up | Rendered using Enscape

OF HIGH-RISE

43
FRONT ELEVATION
BUILDING | Modeled in Sketch-up | Rendered using Enscape
45

MANUAL - DRAWINGS 07

In this final chapter, some of my favorite manually-made drawings and renders are featured. All were done in the span of my first year in architecture school; with course subjects ranging from Visual Communication 1, Visual Communication

3, and History of Architecture 3.

Mediums used are the following:

1. Charcoal Pencils

2. Black Ball-Points

3. Blue Ball-Points

4. Unipins

5. Colored Pencils

6. Watercolors

7. Oil Pastels

Overall, these pieces exhibits my patience, perseverance, and attention to detail.

DRAWINGS AND RENDERS

Visual Communication 1 | Charcoal Pencil | Completed on September 2020 47
Visual Communication 3 | Oil Pastels 48
History of Architecture 3 | Blue Ball-point, blue colored pencil
Visual Communication 1 | Black Ball-point
49
Visual Comm. 3 | Watercolor and Colored Pencils
PORTFOLIO SCAN ME +639687026234 rccdegorostiza@mymail.mapua.edu.ph www.linkedin.com/in/ryechrista ryechrista@gmail.com Casa Consuelo, Intramuros, Manila

Turn static files into dynamic content formats.

Create a flipbook
Issuu converts static files into: digital portfolios, online yearbooks, online catalogs, digital photo albums and more. Sign up and create your flipbook.
Architectural Portfolio by Rye De Gorostiza - Issuu