RVG Portfolio 2024

Page 1


PORTFOLIO

Selected Works 2014-2021

01.

03.

04.

05.

06.

01. LGBT Centre
02. George Brown Pit Project
Residences at Bluffers Park
02. 1125 Markham Rd.
Sandalwood Square
10 West Go
Heartland Block 1 & 2
Kingdom Phase 2
07. P.M. Avas Yogna
01. Canvas Painting

Professional Work

01. Residences at Bluffers Park

02. 1125 Markham Road

03. Sandalwood Square

04. 10 West Go

05. Heartland Block 1 & 2

06. Kingdom Phase 2

07. P.M. Avas Yogna

08. Nagri Eye Hospital

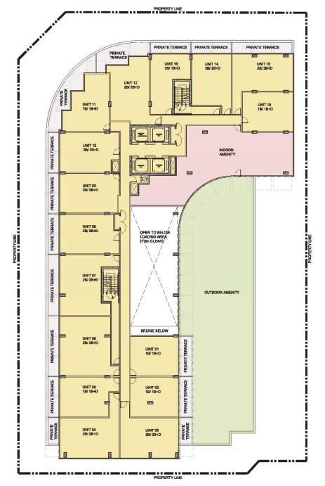
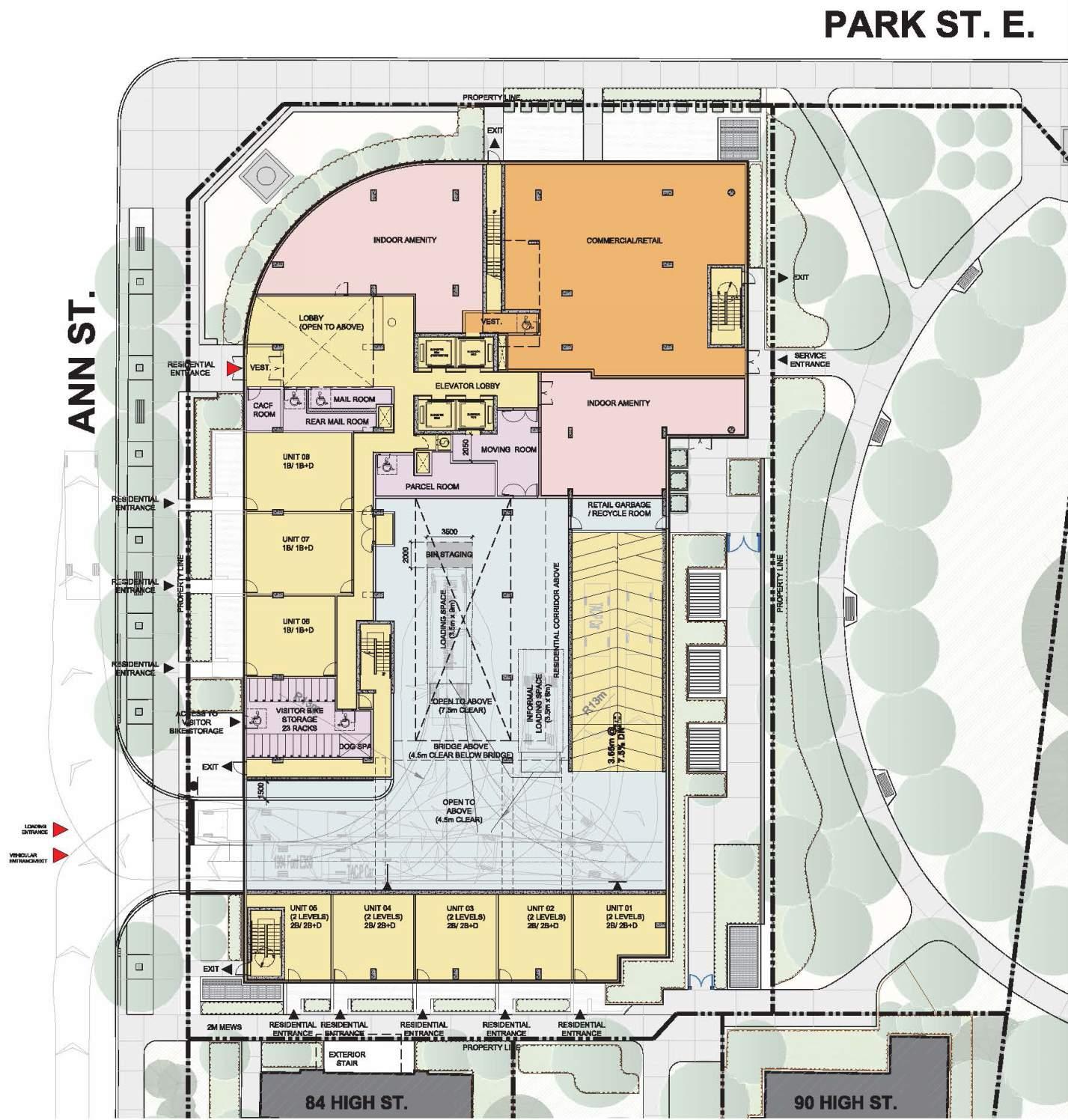
Residences at

Residential Development

Residences at Bluffers Park is a master-planned community comprising a 23-storey tower and a 13-storey mid-rise. The development comprises range of units from Studio to 3B+D with three storeys of underground. There are 551 units in this 71.50 m high proposal.

BUILDING B (WEST)

1125 Markham

Development

The proposal includes four towers ranging from 8 to 37 storeys in height. It features a total area of 1157 sq.m for retail and 70,250 sq.m for residential purposes, spread across studio to 3B+D units, with four levels of underground

MARKHAM ROAD

Sandalwood Square

Mixed - Use Development Mississauga, Toronto

The developed consists of 17 and 23 storeys sitting on 5 levels of podium and 3 levels of underground. There are 577 units with the range of studio to 3B+D. The ground floor comprises of townhouse style units of 2 floors and different amenity areas.

10 West Go

Mixed- Use Tower

Port Credit Village, Mississauga, Ontario

The proposed building features a mix of uses and a height of 22 storeys. A total of 350 residential units, 276 parking spaces and 1,675 sq.ms of combined indoor and outdoor amenity space will be provided.

The proposed building features a dynamic and playful architectural design. The tower will be visually distinguished into four distinct stacked volumes above the ground floor, with stepbacks incorporated at various levels to articulate the tower as it rises. Further articulation is achieved through a pattern of balconies which creates an visually interesting exterior facade.

Softwares Used AutoCad. SketchUp. Photoshop.

CURVE RESPONSING TO PARK

CURVE THE FACADE TO BETTER ADDRESS THE PARK

REDUCING BUILDING WIDTH TO ACHIEVE EFFICIENCY IN FLOOR PLATES

SCULPTURAL FACETED ENDS

ADD INTEREST TO STREETSCAPE & INCREASE VARIETY OF VIEWS

SLIDING VOLUMES

SEPERATION OF VOLUME

CREATE A VARIETY OF INTERESTING PRIVATE OUTDOOR SPACES

LARGE QUANTITY & VARIATION OF VIEWS

Heartland

Master Planning

Mississauga, Ontario

The proposal includes the rezoning of the present retail area into a lowmid rise residential neighboorhood. Different conceptual options are prepared keeping in mind the adjacent neighboorhood and the nearby airport. The idea of a central park has been introduced to help the community maintain a healthy work-play life.

Guidance: Daniel Lee (CORE Architects)

Used

Block 1 & 2

Softwares
AutoCad. SketchUp. Photoshop.

Kingdom Phase 2

High-Rise Residential Builiding Markham, Ontario

The proposal features 25 storey condo building of total 39,241 CGA in the downtown of Markham City. It consists of 512 units and amenities spread at different levels.

Softwares Used AutoCad.
TYPICAL PODIUM PLAN

BIM Projects (UofC)

01. LGBT Centre
02. George Brown Pit

From BIM

LGBT Centre, Rhino to Revit Dresden, Germany

Concept

To address the difficulties and challeneges of the LGBT community, the concept of Labyrinth is depicted in the centre. Labyrinth continues from the plaza to the centre to maintain its flow through public and private spaces.

The plan shows the Labyrinth pattern followed vertically through the floors as public spaces in a private building.

Softwares Used Revit. Enscape.

This project is a reproduction with a BIM model of a community centre designed earlier during my B.Arch. The process followed all the steps of a BIM model ( LOD 100 ) with some additional BIM plus factors like Path of Travel Analysis, Operable Louvers Family and Daylight Analysis.

...to Twin

3D VIEW OF
Louvers Family in Mullion Profile Template

George Brown

3D to 4D BIM Toronto, Canada

The focus of this project was to explore the 4D aspects of BIM. After modelling the project in Revit, different 4D BIM aspects like Construction Duration, Scheduling and Timeline were explored through the use of Navisworks.

The project is a proposal of a new tower in the central open space of George Brown College Casa Loma campus.

Softwares Used Revit. Navisworks. Endscape.

Instructor: Youness Yousefi

Append the architecture and strucrture model in Navisworks
Scan to watch the Construction Simulation video
01. Canvas Paintings
Canvas Painting
“I love painting and drawing for many reasons. One of them is that all it really require is me, a pencil and a canvas. It was something I was passionate about, and still am”.
MOM AND DAD
GUATAMA
PLAYFUL KRISHNA
ABSTRACT TRIPLETS
LORD GANESHA PLAYING VEENA BIRDS

Contact: +5877361996 / rutvigajjar@gmail.com

Turn static files into dynamic content formats.

Create a flipbook
Issuu converts static files into: digital portfolios, online yearbooks, online catalogs, digital photo albums and more. Sign up and create your flipbook.
RVG Portfolio 2024 by Rutvi Gajjar - Issuu