PORTFOILO

Page 1

School of Environment and Architecture(SEA)

Selected work

RUTHVEEK PRADIP GANGASAGAR

27.01.2000 (M) : +91 9689544277

Email ID College : a17ruthveek@sea.edu.in Personal : ruthveekgangasagar@gmail.com

EDUCATION

School - Kendriya Vidyalaya O.F Chanda.

UG(Ongoing) - School of Environment and Architecture Bachelors of Architecture

2

Workshops

2018 Material Sense | Samir Raut and Milind Mahale

2018 Virtual Reality | Kabir Punde

2020 Digital Anatomies and Material Autonomies | Dushyant Asher

2022 The Scribe And The Labyrinth | Apurva Talpade

Publication and Documentation

2017 Buhari : An Open Village

2017 History of Integrated Technology

2018 Mumbai Neighbourhood Studies vol.4

2018 Pune : Intervening the Inner City

2019 Managing Wetness and Adopting Lightness

2019 Mumbai Suburban Histories : An Investigation into Work Types

2020 Maheshwar Portfolio

2020 COVID Glossary

Skills Rhinoceros

Adobe Illustrator

Adobe Photoshop

Adobe Indesign

Adobe Premiere Pro Autocad Hand Drafting and Model Making Basic Carpentary and Masonry

QGIS

Language English,Hindi & Marathi Interests

Graphic Designing | Photography | Music composer

3

CONTENT

4
Wetness and Lightness ....... 2-7 Continuum of Landscape ....... 8-15 Working Drawings ....... 16-19 Spatiality of The Future ....... 20-27 Mass Inhabitations ....... 28-33 Arcanum ....... 34-37 Heritage ....... 38 -41 Intervening Typologies ....... 40-41 Long span (Music Studios) ....... 42-43 Concrete City ....... 50-51 1

Wetness and Lightness

Managing the lightness and the wetness together was a challenge that needed to be faced in this studio Designing a rescue cum community centre that is light visually, structurally materially economically and in many other terms like one would like to explore was one factor of designing whereas the other factor was that the structure should manage the wetness through the harsh climatic conditions of flooding.

Considering various factors like the basic necessities of the people labour locally available material environment Editional values of the community, etc on us to the designing of an octagonal form with extending fingers, where different kinds of activities of everyday life would be performed.

The structure is accessible in two directions and works like a distribution system de, the central unit distributing the people into smaller units The level difference between the central and peripheral unit is to create a distinction between public and private Various bamboo joineries were explored during the construction of this project.

2
WATER INLET FOR O.H. SHOWER AT 2000
WASH BASIN
INLET FOR FLUSH
FILL VALVE SYSTEM
MATS 1800 X 1000
TRAP FOR TOILET
WATER INLET FOR TAP WATER AT 500 INLET FOR
AT 900 WATER
WITH TANK
SLEEPING
NHANI
TAP WATER
1708 1043 1708 1314 1215 1215 1701
INLET FOR SINK AT 900 DORMITORY FOR WOMEN DORMITORY FOR MEN KITCHEN BATHROOM TOILET STORAGE SPACE BAMBOO MAT WOODEN PLANKS BAMBOO USED IS BAMBUSA BALCOA 1 2 3 4 5 6 AT 900 CUPBOARDS FOR STORAGE B B’ A’ A 1 4 3 2 5 EARTHEN POT DIAMETER 800 NHANI TRAP FOR BATHROOM FLOOR LEVEL PLAN ALL DIMENSIONS ARE IN MM SCALE:- 1:50 6 LVL LVL 1200MM LVL 900MM LVL 600MMLVL 300MM 1500MM LVL 0.00 MM DRISHTI (09) RUTHVEEK (10)3
WATER INLET FOR
AT 200
WATER

GI SHEET

02-THICKNESS

TEAK PURLINS 75 X 100

SINTEX WATER TANK 1000X1000X750

LOFT

TIMBER(TEAK) TRUSS

CENTRAL TEAK COLUMN DIAMETER 200MM

PERIPHERAL TEAK COLUMNS DIAMETER 150MM

TIMBER BRACKET 02-THICKNESS

DIAMETER 115MM GUTTER

BAMBOO BRACKET

BAMBOO BEAM DIAMETER 70MM

GI SHEET DIAMETER 150MM

BAMBOO COLUMNS

BAMBOO JOISTS DIAMETER 70MM

CROSS BRACING

BAMBOO TRUSS 3000X3000X3000

TIMBER(TEAK) JOISTS 50 X 100 ALL DIMENSIONS ARE IN MM SCALE:- 1:50

SECTION A-A’
30,000 LITERS 30,000 LITERS
FILTER FILTER PUMP PUMP 150 LITERS 500 LITERS 500 LITERS 1550 3000 1785 2040 5500 2635 2500 2600 110
UNDERGROUND TANK 1000 230400 RUBBER SOLING MURRUM 1500
4
30,000 LITERS FILTER 500 LITERS 500 LITERS PUMP PUMP 497
SECTION B-B’
5
1499 11300 56595642 TIMBER LOUVRES 20 X 50 2500 2600 5300 DOOR PANEL HEIGHT 2300 BAMBOO MAT MOSQUITO NET TIMBER STAIRCASE AT 2000 HEIGHT METAL SHOE MURRUM 400 OVERFLOW PIPE DIAMETER 25 AIR VENT
ALL DIMENSIONS ARE IN MM SCALE:- 1:50

JOINERY DETAILS

FISHMOUTH JOINERY - USED TO CONECT VERTICAL AND HORIZONTAL MEMBERS OF BAMBOOO WITH EACH OTHER

BEAM COLUMN JOINERY THROUGH CAPITAL

15 CM DIAMETER BIG BAMBOO

07 CM DIAMETER SMALL BAMBOO

07 INCH NUT WITH 9MM DIAMETER

COLUMN DETAIL OF THE BAMBOO

JOINING TWO BAMBOOS PARALLEL TO EACH OTHER

BAMBOO JOINERY USED FOR CROSS BRACING DIAMETER 7CM

TRUSSES JOINERY FOR TIMBER STRUCTURE METAL STRIPS SCREW LENGTH 5CM

BEAM COLUMN JOINERY IN TIMBER BEAM - 100 X 200 MM COLUMN - 150MM DIAMETER CAPITAL - 250 X 250 MM

DRISHTI D(09) RUTHVEEK G(10) 6
7

Continuum of Landscape

SEM 06 / Veti, Murbad Village, Dahanu

I started by looking at context through a very different lens of how environment evolves together in a symphony

My step was looking around murbad and studying environment there. I also looked at different agricultural cycle around so this become a important moving towards design i started build question how can i envelope the landscape around ,hence i decided not to disturb contour and how can my building respond to landscape land context around hence i decided to create a linear series of volumes which create a central linear courtyards with fruits ,medicinal plants and other trees nature can be a better teacher to the students.classroom face the food forest and learn about new species all volumes are open towards open to sky spaces student can come out and also work or watch other work they can learn among them also.

A different experience of learning and also experienced building of inside out is created. This is load bearing brick wall structure with concrete slabs and bamboo truss for the roof, the sloping roof with an overhang.

8
9
10
11 ZOOMED IN PLAN
12 AXO UNIT AXO

ANNOTATION

LONG SECTION

13 ZOOMED SECTION
14
ZOOMED SECTION
LONG SECTION
ANNOTATION
15
ZOOMED SECTION
LONG SECTION
ANNOTATION

Working Drawings

SEM 06 / Borivali , Mumbai

The module focused on designing a Old-age home. The socio-cultural details and the materials of construction were simultaneously looked at while designing the spaces.it also helped us in understanding the construction process,detail of the services and the materials and their characteristics to a greater extent and in dept.

16

ALL DIMENSIONS

OTHERWISE

ALL THE WRITTEN DIMENSIONS

DRAWINGS TO BE SEEN WITH RESPECT DRAWINGS. P.C.C. IS IN THE RATIO OF 1:3:6 (CEMENT COARSE AGGREGATE). ALL LEVELS SPECIFIED IN METERS. ALL DECISIONS REINFORCEMENT CALCULATIONS NEED TO BE TAKEN BY STRUCTURAL ENGINEER. DO NOT SCALE THE DRAWING. ALL DISCREPANCIES SHALL BE BROUGHT NOTICE TO THE ARCHITECT BEFORE THE COMMENCEMENT OF ANY WORK. RICHER CONCRETE MIX TO BE USED FOR FOUNDATION AND M:30 MIX TO BE USED THE SUPER STRUCTURE, ALL MIXES SHALL SUGGESTED, EXAMINED AND APPROVED THE STRUCTURAL ENGINEER. VERIFY FIELD CONDITIONS AND COORDINATION WITH THE PROJECT DOCUMENTS PRIOR PROCEEDING WITH THE WORK. WORK WITHIN THE FIELD BOUNDARIES IN THE PROJECT DOCUMENT AND COMPLY ALL THE APPLICABLE BUILDING CODES, AND ORDINANCE REQUIREMENTS.

OCCUPANTS ON THE ADJACENCIES TO AREA SHALL CONTINUE UNINTERRUPTED/UNDISTURBED OCCUPANCY THE CONSTRUCTION OF THE PROJECT.

SEA, MUMBAI

RUTHVEEK

2020 - 2021

ARCHITECTURE

C DA G 1 2 3 4 5 6 2 3 4 6 KHE C DA G KHE 30300 1420 1000 1625 1000 2655 4462 1000 1625 1000 1498 500 644 500 611 500 941 1000 2125 1000 1625 1000 1313 5465 6350 5885 6115 5885 1200 30253 3000 2585 3244 1551 679 6074 679 1551 3244 2585 3000 4805 4000 2706 1200 6906 4000 1805 3000 28362 28422 28377 28423 300025853244155167960746791551324425853000 815399417364000745584413141000961100022154000815 5885 5465 6350 6115 58853021530300 1313 1000 1625 1000 2125 1000 941 500 611 500 644 500 1554 1000 1625 1000 2125 1000 1973 1200 2020 1000 1683 1000 1363 W3 W3 W3W2 W2 W1 W1 W1 W1 W1 W1 W1 W1 W1 W1 W1 W1 W1 W1 W1 W2 W1 W1 W1W1 W1 W2W2 W4 W4 W4W4 W4 W4 D3 D1 D2 D1 D4D4 D5D5 D2 D2 D2 D2 D3 D3 D3 D2 D3 D3 4000585 2215 1000 961 1000 1069 1025 1000 1625 1000
GROUND FLOOR WD - SEA - F
GANGASAGAR SCHOOL OF ENVIRONMENT THIRD YEAR B.ARCH ROLL NO | A17 - 10
AND
ARE IN MILLIMETERS UNLESS
SPECIFIED.
ARE TO
DRAWING TITLE &
STAMP & SIGN GENERAL NOTES KEY PLAN
NORTH SCALE 1:100
ISSUED BY CHECKED
A'
DESIGN OLD AGE HOME 17
SR.NO. DATE REVISION DESCRIPTION SEA SIDE 5600497 1000 2125 1000 1625 1000 10831575 4000 1575 5605 1551 875 1000 849 5600849 1000 875 1551 5591 1575 4000 1575 1083 1000 1625 1000 2125 1000 497 1363 1273 1466 2758 2167 3806 977 1000 2125 1000 1625 8599 1083 1000 3859120057701025 1000 1625 1000 1190 4000 1729 4000 5851127 1000 1683 1000 10255770120038591025 1000 1625 1000 1190 515 1190 5355 3003 1466 1800 1273 13628599 2833 1000 1625 1000 1083
A B B'
1 2 3 4 5 6 1 2 3 4 5 6 18
5 6 5 6 1505 1505 4200 1505 3002 1505 1505 1350 700 1200 950 700 1200 950 700 1200 950 700 1200 2450 5235 900 900 900 900 2850 7202 7202 7202 7202 5 6 5 6 1505 1505 4200 1505 3002 1505 1505 1350 700 1200 950 700 1200 950 700 1200 950 700 1200 2450 5235 900 900 900 900 2850 7202 7202 7202 7202 RUTHVEEK GANGASAGAR THIRD YEAR B.ARCH ROLL NO | A17 DESIGN OLD SEA, MUMBAI STAMP GENERAL KEY ISSUED BY SR.NO. DATE REVISION SEA SIDE 700 1000 200 825 2025 550 1550 1925 540 450 1550 W4 D3 W4 W4 500 730 1810 5714 500 500 3211 1000 1675 900 1810 1810 750 D3 D3 W4W4 W4 RUTHVEEK GANGASAGAR SCHOOL OF ENVIRONMENT THIRD YEAR B.ARCH ROLL NO A17 TOILET WD AND ARCHITECTURE 2020 2021 DESIGN OLD SEA, MUMBAI DRAWING NORTH STAMP GENERAL KEY ISSUED BY SR.NO. DATE REVISION SEA SIDE 19

Spatiality

of The Future | SEM 07

The broad aim of this course is to develop an ability amongst students to speculate and predict scenarios of our collecve future life. Largely architectural pracces, planning and policy come to address urban condions as seen in a state of dysfuncon and vulnerability through technological and infrastructural projects and through the idea of a singular mass. A process of speculaon from the field, through its experiences and aspiraons of the complex social groups, allows to blur these narraves and intervenons that come to address neighborhoods en mass. The studio thus asks- How will rapidly transforming nature, aggressive economic acvies and quickly evolving technology shape our lives? How do we make room for mulple alternave unforeseeable scenarios based on present indeterminacies and incorporate them through an analysis of urban form? What are the ways in which spaal praconers could engage with these changes and emerging spaalies?

20
21
22
EXISTING SITE CHANGES

CHANGES

EXISTING SITE
23
24
25
26
27

Mass Inhabitations

Housing, The New Questions | Sem 7

There was a set of interviews done in order to analyze and understand the housing colony. The analysis summarized the building typology, the life and the living, aspirations, needs, and emerging conditions. There was a fair bit of speculation done as to what will be the situation of the people and the built form in the few years. This led to the idea that the existing crawl typology of the building is such a type, which affords various activities and interactions to happen and in turn mobilize a network of solidarity, friendship, and care. Thus, the intent was to primarily retain the existing typology but design such that the new built form responds to the existing one by also having a character of its own.

28
29
30
31
HOUSE FOR User Profile 32

10 FLOOR BUILDING PROFILE

7 FLOOR BUILDING PROFILE 13 FLOOR BUILDING PROFILE
33

LIBRARY OF ARCHEOLOGY LIBRARY AS VOID ARCANUM (secrets and mysteries)

So basically what I understand from this topic there is curiosity ,memories,for an lifetime existence the founders of arcanum can be trace down to many centuries the residents of colaba reflects the eco of arcanum,conversation happening between people about arcanum at parties or dinner all this conversation of arcanum such as snake licking at the ears of sleeping children and vengeful young god spitting in the mouth’s of prim young women this punishmens can be fabulous imagination and rumors. Stories heard by this new people into the space builts a different environment for pursuing that space . And the world turns many of them insane.

Library of archeology

The library will not only be of books but walls full of paintings of the evolution of humans, modern paintings, and sculptures, walls also used as space to kept books.

Library as void

The library becomes place where peoples come and used the space were they feel some type of historical mysteries and secrets.

The strategy was to build around the trees, underneath the ground level and levels to make the space interactive. build different units like discussion place, reading room, etc.

34
35
36
37

HERITAGE

“Stories of Maheshwar”-Fort Doumentation

SEM 4 Architecture Documentation

Instructor

The documentation took place in the historical town of Maheshwar.India documenting the fort complex uderstanding the Fort Complex with functional networks which have a subtle transcend of scales which further meet the Narmada river.Questioning How does the form of the river shapes the fort complex its realm of Public spaces? How Ghats function on a public scale?

38
39
40
41

Intervening Typologies | Sem 3

42
43

Long Span | Music Studios

SEM 5

Studying long spans, a steel prefabrication studio was designed on site situated in Hoston, Texas (USA).The idea of maker space was to create a space where people could come and collaborate in music and those did’t get chance to produce there music.

44
45
Site Analysis Houston,Texas (USA) Music Studio The idea of maker space was to create a space where people could come and collaborate in music and those did’t get chance to produce there music they can produce here. programmes : Music studio Office area Work space Recording room Performance area Wash room https://www.google.co.in https://www.google.co.in https://www.google.co.in https://www.google.co.in https://www.google.co.in https://www.google.com https://www.google.co.in https://www.google.co.in Texas Music Studios Session Music Recording Connection Studio Cactus Music Studio Live Nation Entertainment Wire Road Studio Site Area-5000 meter square KBR TowerChevron Building Auditorium 10_Ruthveek Gangasagar N Light and shadow during September 21st (Equinox)Light and shadow during March 21st (Equinox) Light and shadow during June 21st (Summer Solistice) Light and shadow during December 21st (Winter Solistice) Sunpath N N Wind Direction Site Site Access Road Climate-Subtropical Soil type-Loamy & clay Weather Highlights Summer High: the July high is around 93 degrees Winter Low: the January low is 43 Rain: averages 53 inches of rain a year Snow: averages 0 inches of snow a year AverageRainfall-1016mm Averagewindspeed-11km/h Relativehumidity-68% MaximumTemprature-36°C MinimumTemprature-5°C 10_Ruthveek Gangasagar Site & Climate Analysis Houston,Texas (USA) Gangasagar 46
47

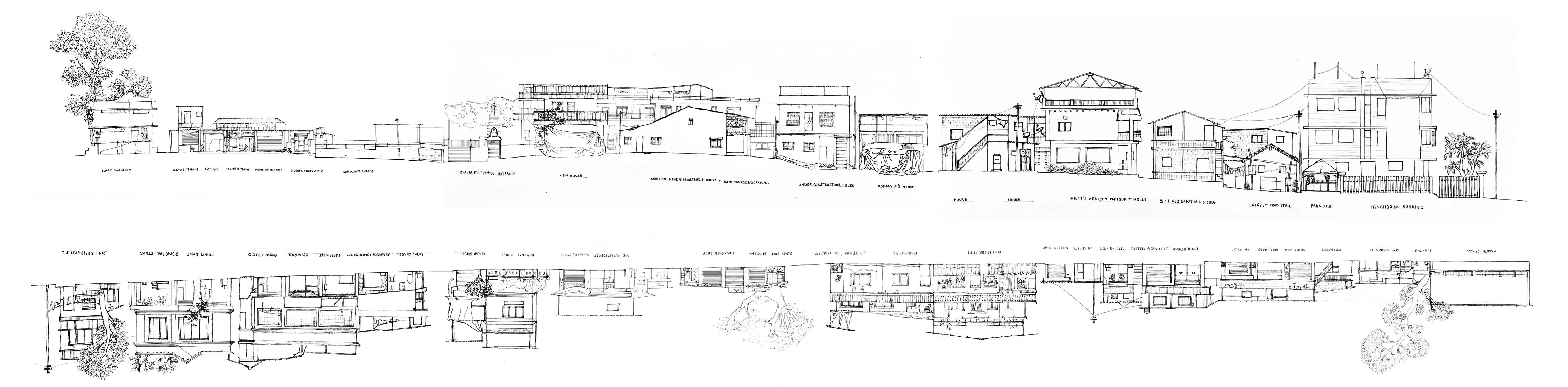
Nani Buhari , Gujarat | Semester 2

Documentation

48
49

Concrete | Semester 3

Concrete City

50
51
52
Ruthveek Gangasagar (M) : +91 9689544277 Email ID College : a17ruthveek@sea.edu.in Personal : ruthveekgangasagar@gmail.com

Turn static files into dynamic content formats.

Create a flipbook
Issuu converts static files into: digital portfolios, online yearbooks, online catalogs, digital photo albums and more. Sign up and create your flipbook.