

Rufus Wilson LANDSCAPE ARCHITECTUREPORTFOLIO
R ufus W ilson

Design Statement
I’ve always been fascinated with designing and building things. Since beginning my studies of Landscape Architecture I discovered the influence every detail has on the way we perceive a space, the details of design has the power to transform a place. The alliance of nature and the
built environment, abstract and technical is a crucial balance to keep in the art of landscape architecture. I strive to find the unity of both in every design, never satisfied with the grey areas. But sometimes, in landscape architecture I’ve realized, its important to know when to take a step back and allow nature to thrive.


Education Skills Bio
4th Year Student
University of Georgia pursuing
Bachelors degree in Landscape Architecture
3.93 GPA
UGA Deans list
Fall 2021, Spring 2022, Fall 2022
Presidential Scholar Spring 2023
Photoshop
Illustrator
InDesign
Auto-CAD
ArcGIS
Hand Graphics
Sketch Up


CONTENT
01 02
RESIDENTIAL DESIGN
Redeveloping a vacant lot for a single family home. Digital plan design, grading plan, section, sketches.

RESIDENTIAL DESIGN
Residential planting design, hand rendered plan, digitally rendered plan, CAD planting plan, sketches, section elevation.

03
APARTMENT GREENSPACE
Developing a community shared greenspace, digitally rendered plan, CAD planting plan, section elevation.





PROJECT01
Residential Design
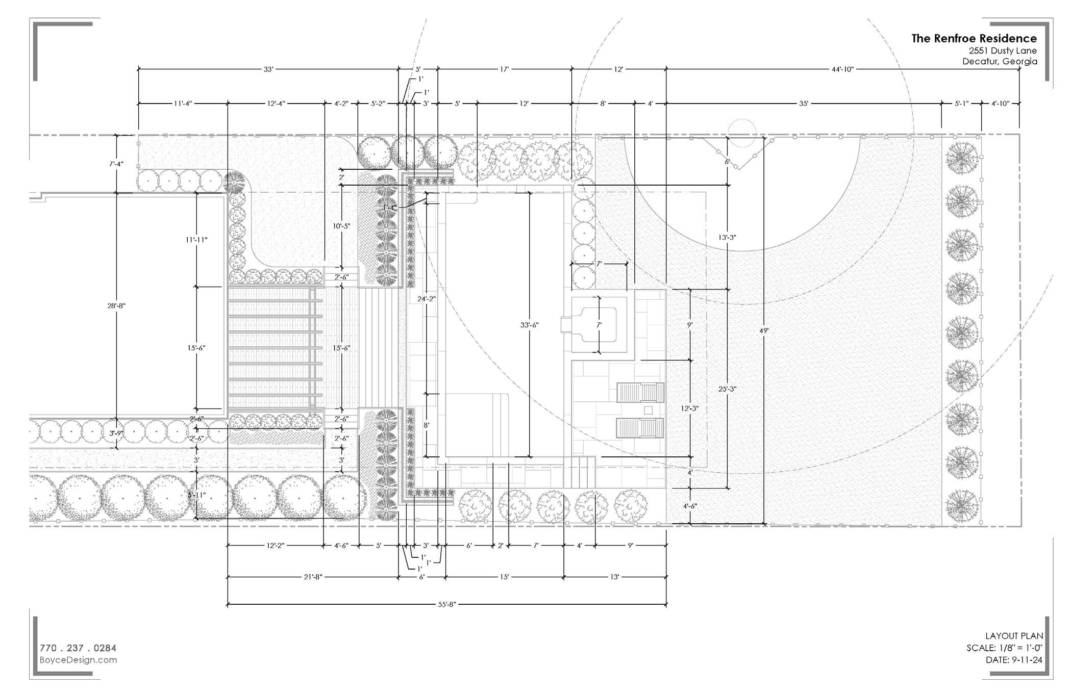
2024 Summer Internship at Boyce Design
This professional project was for a family looking to add a small swimming pool and patio area in their unused backyard. The site had strict impervious coverage and tree CRZ restrictions adding a challenge to the design.

Residential Design
This project I completed with my internship at Boyce Design. The project was a redesign of a backyard for a home in Atlanta adding a new porch and a pool and patio area. I was apart of the entire design process for the project and was a major contributor to the design and CAD work as well as constructing the Sketch Up model.
Rendered aerial perspective of the site.
Hard-scape materials needed to be limited due to city impervious restrictions

Rendered aerial perspective of the site.
Hard-scape materials needed to be limited due to city impervious restrictions

Large
Site Plans


PROJECT 02
Residential Design
2nd year Landscape Architecture Studio
This design focuses on planting design, including plant selection. The planting has a year round appealing appearance through the use of evergreen shrubs and trees. The plants selected compliment the buildings architecture and bring a balance to the site.

Residential Design
The curvilinear planting bed lines provide interest and different perspectives at all angles of the site. Strategically placed trees and shrubs bring a sense of unity to the estates front lawn. Both hand and computer graphic plans are shown of the same design.

Section elevation of the above master plan view

Planting Plan

A combination of trees, shrubs, and ground covers are used to provide variety in the planting and bring interest in all seasons. The use of different sizes of plants brings depth to the planting and maintains site lines from windows.


PROJECT03
Residential Design
2nd Year Landscape Architecture Studio
The project involved redeveloping a vacant lot in Athens, GA into a single family home. All walkways were required to be ADA accessible and the site had to feature the integration of a raingarden.

Residential Design
This project transformed a vacant lot into a single family home, while preserving the majority of the existing trees on site. The site features a rain-garden that doubles as storm water control as well as a attractive feature of the residence.

Preliminary grading plan sketch, focus on preserving the maximum number of existing trees.
Final grading plan included ADA walkways, positive site drainage.


Master Plan
ADA accessible front walkway and patio,
Raised garden bed, and raingarden



Residence


PROJECT 04
Shared Greenspace Design
2nd Year Landscape Architecture Studio
This project featured a existing building on a site that had limited plantings and developed green space. After a site visit and communication with the site owner a overall site plan and planting plan was developed for the owner to use to raise money to get the project built.


shared greenspaces
The main design to the east of the site is situated on a hill so creating a flat lawn area through retaining walls was a top priority. This design utilizes curvilinear walking paths on the east side of the site to provide a relaxing and interesting walk. The weaving paths create space for plantings
to be installed between the ajacent paths. A planting buffer is installed between the main lawn and parking lot to provide a soft barrier separating the two. The pavilion on the lawn is the main attraction, having sitelines to the playground and lawn space.


The planting plan uses a large variety of fragrant and flowering plants perfect next to walking paths. Large diciduous shade trees are placed between the lawn and parking lot to provide shade onto the lawn space in the summer and to allow sun in the winter time.

PROJECT 06
Community Design
2nd Year Landscape Architecture Studio
This project features a housing development design on a undeveloped site in Athens, GA. The design focuses on maximizing number of homes and bringing the community together through pocket neighborhoods shared green spaces, in addition preserving land for recreation

Community Design
The community is broken down into a series of pocket neighborhoods each complete with a shared green space featuring walking paths and space for recreation. The pocket neighborhoods provide a unique sense of community and encourages residents to spend more time outdoors.


1 2 3 1 2 3

Shared Greenspace
Project sketch displaying the lot boundaries in combination with road layout.

Shared front yard gives easy access to large turf area with a pond.
Driveways
Access road along the back of the houses so front has visual of greenspace.
Plantings
Greenspace plantings provide visual screening between houses while enhancing aestectics of the space.


Hand rendered section elevation of the pocket community planting and housing.

PROJECT07
Urban Design
3rd Year Landscape Architecture Studio
This project focused on developing a pedestrian streets in downtown Athens, GA while balancing the functionality of the existing shops in the area. The project identifies two streets that are ideal candidates for the project as they already see a high volume of pedestrian traffic and are not a major arterial roadway in the city. The project features development diagrams, a Auto Cad plan/planting plan, and Photoshop section perspectives.

Pedestrian Street Design
This 3rd year project at UGA focuses on creating car free pedestrian streets in Athens GA downtown. There will now be a seamless connection from block to block making pedestrian travel easier than ever. The new wider sidewalks make the navigation of pedestrians run smoothly with the high foot traffic the area sees. The businesses in the car free core wont lack efficiency in the update due to the addition of a lane for deliveries and trash pickup to ensure that they run smoothly.
Development Diagrams

Planting Plan
The planting plan will focus on using a combination trees, shrubs, and ground cover to provide lush plantings that enhance the street scape. There will be many flowering shrubs used to provide a nice fragrance to the landscape and add a pop of color to the plantings.
Section Perspectives
Utility Lane
A central 12’ wide utility lane runs through the site allowing a space for deliveries, emergency vehicles, and trash trucks. During most hours the lane will be utilized by pedestrians.
Master Plan



Flex Space
A space great for dining from the many restaurants on College Ave and socializing with friends all while enjoying the fountain in the middle of the plaza. Includes wheelchair accessible tables and benches.

Wheelchair Accessibility
Curb-less paving allow those in wheelchairs to access anywhere on the site, along with the very mild gradient on site its a perfect street for all to utilize.

