Skip to main content

Ruby Pasha Portfolio

Page 1

RUBY PASHA

Creative interior designer portfolio

Company - Studio International - Abu Dhabi UAE

Concept Design, Technical Documentation & Furniture/Material specification and selection

PRIVATE RESIDENTIAL VILLA Q01– DOHA, QATAR

Company - Studio International - Abu Dhabi UAE

Concept Design, Technical Documentation & Furniture/Material specification selection

PRIVATE RESIDENTIAL VILLA Q01 – DOHA, QATAR
MASTER BEDROOM FURNITURE LAYOUT PLAN SHOWING MASTERBEDROOM SUITE
DRESSING ROOM FORMAL MAJLIS HIS DRESSING
HER

Company - Studio International - Abu Dhabi UAE

Concept Design, Technical Documentation & Furniture/Material specification selection

DOHA, QATAR
PRIVATE RESIDENTIAL VILLA Q01 –
FF&E SELECTION FOR ENTRANCE
LOBBY
ENTRANCE LOBBY MOOD IMAGES REFERENCE

PRIVATE RESIDENTIAL PENTHOUSE - LONDON, UK

Company - Studio International - Abu Dhabi UAE

Concept Design, Technical Documentation & Furniture/Material specification and selection

PRIVATE RESIDENTIAL PENTHOUSE - LONDON, UK

Company - Studio International - Abu Dhabi UAE

Concept Design, Technical Documentation & Furniture/Material specification and selection

PRIVATE RESIDENTIAL PENTHOUSE - LONDON, UK

Company - Studio International - Abu Dhabi UAE

Concept Design, Technical Documentation & Furniture/Material specification and selection

FORMAL POWDER
ROOM
3D VISUAL FAMILY LIVING 3D VISUAL
FAMILY KITCHEN 3D VISUAL MASTER BEDROOM 3D VISUAL FF&E SELECTION FOR FAMILY LIVING FF&E SELECTION FOR MASTER BEDROOM

PRIVATE RESIDENTIAL PENTHOUSE - LONDON, UK

Company - Studio International - Abu Dhabi UAE

Concept Design, Technical Documentation & Furniture/Material specification selection

FORMAL LOUNGE 3D VISUAL FAMILY LIVING 3D VISUAL

Company - Studio International - Abu Dhabi UAE

Concept Design, Technical Documentation & Furniture/Material specification selection

Size: Project Value:5 Million AED Completion: On-going

PRIVATE RESIDENTIAL VILLA – ABU DHBAI, UAE
FOR
FF&E SELECTION
MAJLIS
MAJLIS 3D VISUAL DINING 3D VISUAL FURNITURE LAYOUT PLAN
BATHROOM 3D VISUAL

PRIVATE RESIDENTIAL VILLA - LOS ANGELES,USA

Company - Studio International - Abu Dhabi UAE

Concept Design, Technical Documentation & Furniture/Material specification and selection

ENTRANCE LOBBY 3D VISUAL GALLERY HALL 3D VISUAL FF&E SELECTION FOR MASTER BEDROOM

PRIVATE RESIDENTIAL VILLA - LOS ANGELES,

Company - Studio International - Abu Dhabi UAE

Concept Design, Technical Documentation & Furniture/Material specification and selection

FF&E SELECTION FOR FORMAL LOUNGE FORMAL LOUNGE 3D VISUAL

PRIVATE RESIDENTIAL PALACE - SAUDI ARABIA

Company: Areen Design – London, UK

Concept Design, Technical Documentation

Size: Project Value: Completion: On-going

GROUND FLOOR RENDERED FURNITURE PLAN

MAIN HALL 3D VIUSAL HIS OFFICE 3D VIUSAL

PRIVATE RESIDENTIAL PALACE - SAUDI ARABIA

Company: Areen Design – London, UK

Concept Design, Technical Documentation

Size: Project Value: Completion: On-going

PRIVATE RESIDENTIAL PALACE - SAUDI ARABIA

Company: Areen Design – London, UK

Concept Design, Technical Documentation

Size: Project Value: Completion: On-going

HAND SKETCH FOR FORMAL MAJLIS & DINING HAND SKETCH FOR MASTER BEDROOM

PRIVATE RESIDENTIAL PALACE - SAUDI ARABIA

Company: Areen Design – London, UK

Concept Design, Technical Documentation

Size: Project Value: Completion: On-going

GROUND FLOOR RENDERED FURNITURE PLAN PALACE MASTER PLAN EXTERIOR RENDER VIEW OF THE PALACE

PRIVATE RESIDENTIAL PALACE - SAUDI ARABIA

Company: Areen Design – London, UK

Concept Design, Technical Documentation

Size: Project Value: Completion: On-going

CONCEPT REFERENCE IMAGES FOR SALON/ DINING DESIGN

CONCEPT REFERENCE IMAGES FOR MASTER BEDROOM DESIGN

SALON / DINING 3D VISUAL HER MASTER BEDROOM 3D VISUAL

HOSPITALITY - HOTEL CAIRO, EGYPT

Company - HBA, London, UK

Concept Design & Technical Documentation

GUEST BEDROOM 3D VISUAL TYPICALGUEST BEDROOM HAND SKETCH PLAN GUEST BEDROOM INSPIRVATION IMAGES MATERIAL COLOUR PALETTE

HOSPITALITY - HOTEL CAIRO, EGYPT

Company - HBA, London, UK

Concept Design & Technical Documentation

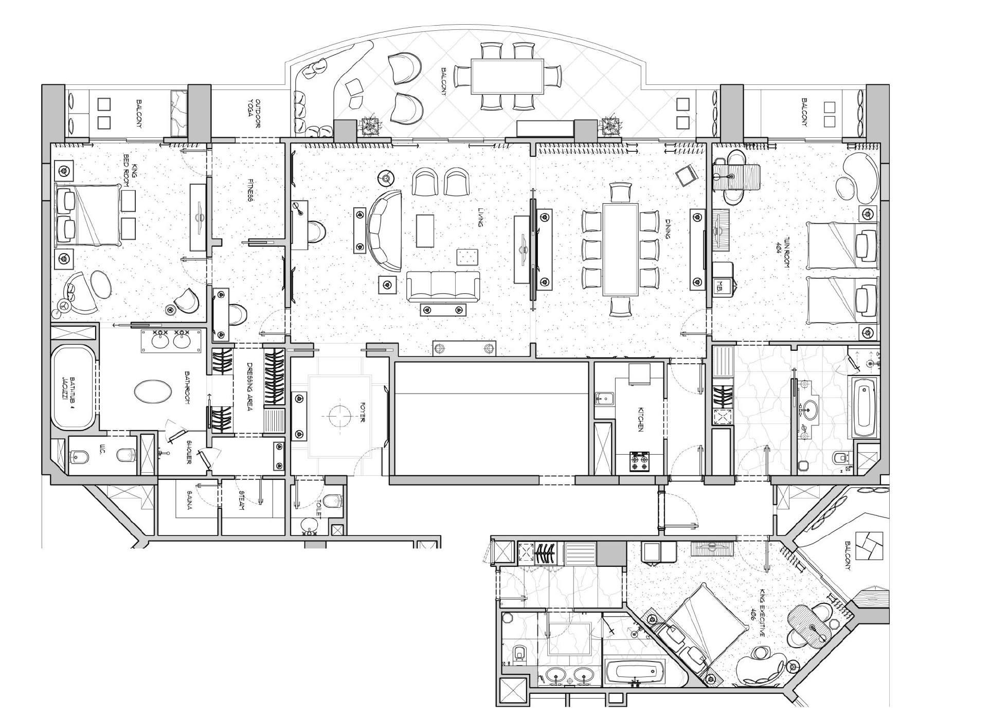
ROYAL
ROYAL SUITE INSPIRATION IMAGES
SUITE FURNITURE LAYOUT PLAN

HOSPITALITY – HUNTING LOGDES, AL AIN, UAE

Company – Broadway Malyan, Abu Dhabi UAE

Concept Design & Technical Documentation

VIEEW OF THE ARRIVAL BUILDING

EXTERNAL MAIN
GATE TO THE LODGES - HAND SKETCH

HOSPITALITY – WOODLAND LOGDES, AL AIN, UAE

Company – Broadway Malyan, Abu Dhabi UAE

Concept Design & Technical Documentation

TYPICAL LODGE FURNITURE LAYOUT PLAN TYPICAL GUEST BEDROOM HAND SKETCH TYPICAL BATHROOM HAND SKETCH ENTRANCE WAITING AREA TO THE ARRIVAL BUILDING NIGHT VIEW OF THE ARRIVAL BUILDING

HOSPITALITY – BEACH PROJECT, ABU DHABI, UAE

Company – Broadway Malyan, Abu Dhabi UAE

Concept Design & Technical Documentation

Turn static files into dynamic content formats.

Create a flipbook