INTERNSHIP PORTFOLIO SAI.G

Page 1

ARCHITECTURAL PORTFOLIO

A PIECE OF MY ARCHITECTURAL DESIGN WORKS

SAI DURGA RAO . GUTTULA

DECLARATION

This portfolio holds a collection of my works in architecture

Each project had its own means of presentation for convenience , they are all presented here , in this porfolio in a similarlayout while keeping the original presentation spirit

EMAIL:-

20111AR0009@email.com 8686638289

DATE OF BIRTH:- 04-01-2001

LOCATION:-

Yanam,East godavari dist,Andhrapradesh 533464

PLANNING DESIGN SKILLS

CONCEPTUAL THEMES

MANAGEMENT SKILLS

CONSTRUCTION TECHNIQUES

TELUGU:-

ENGLISH:-

HINDI:-

LANGUAGES

SAI . G DURGA RAO

DIGITAL SKILLS

HOBBIES

SOCIAL NETWORKS

ABOUT ME

My Self G.vvsm sai durga rao studying 4th year in Dr.ysr architecture and fine arts university ,kadapa I am an enthusiastic person with good enough knowledge in Architectural designs along with softwares aswell.I’m passionate student with a focus on management skills.i intend to fully engage and contribute my views in order to meet the demands of the today’s society

WORK EXPERIENCE

2017`

6months practical internship training HOUSE OF ARCHITECTURE FIRM,in vishakapatnam

Done some on site projects under the facualty in university `

EDUCATION

2020-2025`

BACHELOR OF ARCHITECTURE

DR.Ysr Architecture and Fine arts university ,Kadapa, A.P

2017-2020`

DIPLAMO IN ARCHITECTURE-84.5% Andhra polytechnic ,kakinada -kakinada,A.P

2006-2017`

SCC -10.0 POINTS

Sri sai high school,muramalla,mummidivaram, Andhra pradesh.

WORKSHOPS &SEMINARS

Attend seminars architect meeting IIA in vishakapatnam

Attend workshop IDAC-EXPO in school of planning architecture , vijayawada

ARCHITECT STUDENT Travel Playing Chess Cycling Reading Books Gyming
PHONE:EXPLORE & LEARN IN
TABLE OF CONTENTS
CONTENTS

YOUTH HOSTEL

A hostel is a form of low-cost, short-term shared sociable lodging where guests can rent a bed, usually a bunk bed in a dormitory sleeping 4–20 people, with shared use of a lounge and usually a kitchen. Rooms can be mixed or single-sex and have private or shared bathrooms

1.The concept is developed from the NET CONNECTIONS form developed merging of 2 blocks using SLOPE and designed nal form of building

2.The relation of concept in youth hostel or any public commercial building,using this connectivity and developes easy access and circulation movement will be reduced to entire building

ARCHITECTURAL
PROJECT - 1 150.46 120 25.33 134.85 BUILT UP AREA 3900 SQM SWIMMING POOL PLAY AREA A B C D E F G +1.2M -1.5M +5.5M +5.5M H I +5.5M 54.66 ENTRANCE GATE PATH WAY CAR PARKING BIKEPARKING LANDSCAPE K 6.33 143.56 6

YOUTH HOSTEL

2.0MWIDEPATHWAY

1.5MWIDEPATHWAY

1.Ground oor (block 1) oor starts belowfrom ground level (1.5m)

2.And ends with height 2.5m

3.Ground oor consits of total * 8 individual rooms and *kitchen and dinning *Library

*Waiting hall &receiption

ARCHITECTURAL
ENTRANCE -1.5M WAITING HALL 60 37.41 60 32.91 49.98 2.5M WIDE PATH WAY 2.5M WIDE PATH WAY UP 2.0M WIDE PATH WAY UP DINNING HALL 10MX15M KITCHEN 9MX10M COMMUNITY 9MX10M SEATING SPACE GROUND LEVEL PHC 4MX6M COMPUTER CAFE 7MX4.5M FIRST AID 6MX4M WARDEN 6MX4M REGISTER 4MX4M LIBRARY 6MX4.5M LIBRARY 2 6MX4.5M EMPTY SPACE +0.95M +0.75 +0.45 MULTI PURPOSE HALL 20MX6.5M ROOM 1 ROOM 1 ROOM 1 ROOM 1 ROOM 1 ROOM 1 ROOM 1 ROOM 1 -0.45M LVL +0.45M LVL CAFTERIA 8MX8M SMALL STORES 8MX8M LANDSCAPE BLOCK 2 BLOCK 2 1.5M WIDE PATH WAY
DN UP GROUND LEVEL BLOCK 2 A A'

1.First oor (block 1) oor starts from above ground level (1.2m)

2.And ends with height 5.5m

3.First oor consits of total

*12individual

* 4-10sharing beds

*10- 4 sharing beds

*Roof garden

PROJECT - 1 ) ROOM 1 ROOM 1 ROOM 1 ROOM 1 ROOM 1 ROOM 1 ROOM 1 ROOM 1 SETING LOBBY SPACE DN -0.45M LVL ROOF GARDEN WITH SEATING SPACE 2.0M WIDE PATH WAY COURTYARD LOBBY SPACE SPA 120SQM GYM 120SQM ROOM 1 ROOM 1 ROOM 2 ROOM 2 ROOM 2 ROOM 2 ROOM 3 ROOM 3 ROOM 3 ROOM 3 ROOM 3 ROOM 3 ROOM 3 ROOM 3 ROOM 3 ROOM 3 INDOOR PLAY 130SQM UP LOBBY SEATING SPACE -0.45M LVL VIEW POINT BLOCK 1 37.88 39.92 60 2.0M WIDE PATH WAY +0.95M +0.75 UP UP CIRCULATION LOBBY SPACE INDOOR PLAY 130SQM 45 DN DN +1.2M LVL

YOUTH HOSTEL

ARCHITECTURAL
2.35 4.01 1.65 2.5 4 19.84 6.51 2.78 BLOCK 2 BLOCK 1 SLOPE RATIO 1:15 ROOF GLASS WINDOW DOOR PRE CONCRETE SLAB 0.15M THK BAMBOO CEILING 0.1M THK 4.01 2.5 6.51 5 4 2.5 9 1 BLOCK 2 BLOCK 1 CURTAIN WALL UPVC WINDOW MAIN ENTRANCE BLOCK GROUND LEVEL SLOPE RATIO 1:15 19.86 2.52 BLOCK1

SITE

VIEWS

SECTIONS & SITE VIEWS

PROJECT - 1

CAFETERIA

A cafe is a type of restaurant which typically serves co ee and tea, in addition to light refreshments such as `baked goods or snacks. self-service restaurant in which customers select various dishes from an open-counter display.

ARCHITECTURAL

*This cafe was designed in the theme of rustic style and form developed by geometry shape ,

*FORM was developed is combination of one interior and exterior parts by using single simple rectangular plane

*Interior part should be done in the rustic style follow

- 2
PROJECT
32.3 42.8 3.5 31.2 8 RAMP 1:8 BIKE PARKING LANDSCAPE SITTING CAR PARKING WAY TO TOILETS TOILETS BIKE PARKING ENTRANCE OPEN ENTRANCE GATE +-0.0M LVL +1.2M LVL +1.2M LVL +-0.0M LVL ENTRANCE OPEN CIRCULATION SPACE ENTRANCE OUT DOOR SITTING AREA BUILT UP AREA 250 SQ.M 9M WIDE ROAD 12M WIDE ROAD 12M WIDE ROAD +1.2M LVL +1.2M LVL RAMP 1:8

CAFETERIA

1.This cafe is in the style of rustic style , and comes to oor plan this cafe capacity overall 180 to 200 peoples at a time to spend indoor and outdoor areas

2.And also oor rises 1.2m from ground level and access to ramp

ARCHITECTURAL
RAMP 1:8
LVL RAMP 1:8 CIRCULATION SPACE +1.2M LVL +1.2M LVL KITCHEN 4.0MX10.0M PANTARY 3.0MX3.0M SERVICE AREA INDOOR SITTING PLACE COUNTER 2.5MX3.2M SEMI PRIVATE SPACE ENTRANCE OUT DOOR SITTING OUT DOOR SITTING OUT DOOR SITTING ENTRANCE ENTRANCE 3.1 13.5 16.6 7.5 23.9 31.3
+1.2M
PROJECT - 2 1.2 2.7 3.9 1.2 4.7 5.9 FLOOR LEVEL CURTAIN WALL OLD WOOD CLADDING PROJECTION SLABS RAMP GROUND LEVEL 0.15M THK SLAB WHITE MARBLE CLADDING +0.15M +0.15M +0.15M +0.15M +0.15M +0.15M +0.15M +0.15M 1.2 2.7 3.9 1.2 5.9 FLOOR LEVEL CURTAIN WALL OLD WOOD CLADDING WOODEN BARS RAMP 1 GROUND LEVEL 0.15M THK SLAB +0.15M +0.15M +0.15M +0.15M ROOF WITH GLASS 0.15MTHK RCC SLAB 0.23M BRICK WALL 4.8 RECEPITION TABLE RAMP 2 0.7

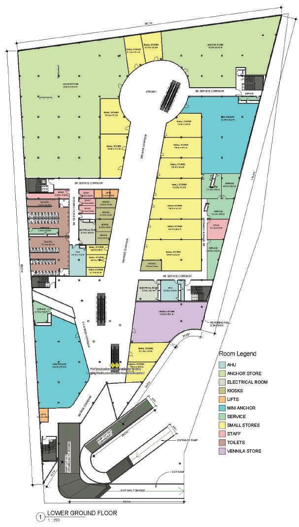
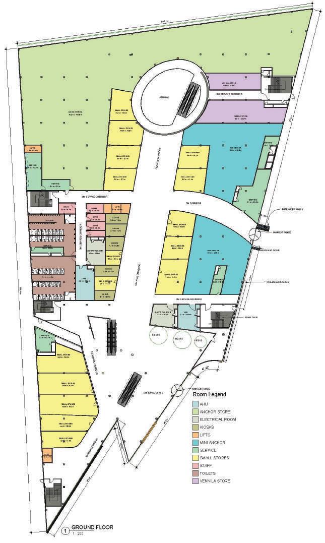
SHOPPING MALL

A very large building or buildings containing a lot of stores and restaurants, usually with space outside for parking: A shopping mall is no longer just a place to go to buy something, it's a community and entertainment center.

In this design we play two concepts in facade treatment and as well as form of builidng there is,

1. Form development are created through the triangular geometry formation and play stepped projection on facade treatment (to create some movement in facade elevation)

2. T0 use biomimicry in facades (we identyfy in facade wall elevation like some re rises forms are used in facade )

ARCHITECTURAL
113.7 171 61.5 104.5 88.61 RAMPGROUNDTOB1 RAMP B1 TO GROUND WAY TO EXIT WAY TO ENTRANCE DRIVE WAY 6M WIDE WAY TO ENTRANCE PATH WAY 10M WIDE PATH WAY 4.5 M WIDE LANDSCAPE LANDSCAPE SEATING BENCH 5.38 159.64 6.91 6.12 98.17 8.16 7.01 7.41 BUILT UP AREA 8500SQ.M 1:8RATIOSLOPE 1:8 RATIO SLOPE ARTIUM 18M WIDE ROAD A1 B C D E
PROJECT - 1

SHOPPING MALL

ARCHITECTURAL

VIEWS

PROJECT
-3

SHOPPING MALL

ARCHITECTURAL
PROJECT - 3
ARCHITECTURAL SHOPPING MALL b2 slab lvl -10.2 m lg slab lvl -4.2 m ground slab lvl -0.2 m TOP FLOOR 20.0 m first slab lvl 3.9 m second slab lvl 7.9 m third slab lvl 11.9 m forth slab lvl 15.9 m SEATING SECTION PROJECTOR ROOM SEATING SECTION FIRE EXIST DOOR 2M TOILETS THEATRES FIRE EXIST DOOR SERVICE DOORS RAMP B2 TO B1 RAMP GROUND TO B1 SERVICE DOORS SERVICE DOOR 1M PARKING AREA RAMP B1 TO B2 4.0 m 4.0 m 4.0 m 3.9 m 4.0 m 20.2 m STAIR CASES SERVICE DOORS CURTAIN WALL ACM PANNELS 0.7M RCC BEAM 2 SECTION DETAILS4 SECTION DETAILS10.0 m 2.0 m CEILING 0.15M RCC SLAB CAPITAL COLOUMN TOP FLOOR 20.0 m THEATRE SLAB 21.2 m third slab lvl 11.9 m forth slab lvl 15.9 m 9.3 m 5.6 m SCREEN 35MM FIRST PERSON POSTION 8.2 m 4.1 m 5.3 m PROJECTOR ROOM GANG WAY 2M WIDE 1.4 m 0.5 m 3.7 m EXIT WAY TOP SLAB LEVEL 2.1 m 12.0 m 13.3 m 14.1 m 15.9 m 35 25 ° b2 slab lvl -10.2 m b1 slab lvl -7.2 m lg slab lvl -4.2 m ground slab lvl -0.2 m TOP FLOOR 20.0 m THEATRE SLAB 21.2 m first slab lvl 3.9 m second slab lvl 7.9 m third slab lvl 11.9 m third ceiling lvl 15.2 m 7 ELEVATIONS DETAILS 8 SECTION DETAILS 0.7M DUCT DOORS SERVICE DOORS DUCT CUTOUTS FOOD COURT ESCALATORS 1.0M RAILING STAIR CASES 120MM PARTION WALL 4.0 m 4.0 m 4.0 m 3.9 m 3.0 m 3.0 m 2.0 m 20.2 m 10.0 m RAMP GROUND TO B1 EXIT RAMP TOWARDS GROUND ESCALATOR PARKING ZONE REVOLVING DOOR 3.5M WIDE AC PANNELS GLAZING GLASS WALL 0.15M Thk RCC SLAB 2.5MX2.OM FOOTING b2 slab lvl -10.2 m b1 slab lvl -7.2 m lg slab lvl -4.2 m ground slab lvl -0.2 m GROUND FLOOR LOWER GROUND BASE MENT 1 BASEMENT 2 3.9 m 3.0 m 0.2 m 2.9 m 0.2 m RAMP GROUND TO B1 CONTINUTION RAMP TOWARDS B1 ENTRANCE PARKING B1 RAMP TOWARDS B2 TO B1 1;8 RATIO SLOPE EXIT RAMP 1.0 m 22.8 m 28.4 m 0.15M Thk ramp first slab lvl 3.9 m second slab lvl 7.9 m 0.15M RCC SLAB CEILING LEVEL 2.1 m 0.7 m 0.4 m 0.5 m 0.8 m 75MM ALUMINIUM PARTION WALL DOOR WASH BASIN WC URINALS 0.2 m 0.2 Thk brick wall 3.3 m 0.6 m first slab lvl 3.9 m second slab lvl 7.9 m 0.2 m 2.1 m 0.7M WIDE DOOR CEILING 1.3M DUCT CUT OUT 0.15M SLAB 0.2M BRICK WALL 1.3 m first slab lvl 3.9 m second slab lvl 7.9 m 1.0 m 1.0 m 0.8 m 1.0 m 1.0 m 1.0 m FLOOR LEVEL 1.0 m 1000MM RUBBER SUPPORT GLASS RAILING ESCALATOR MACHINE BOX HAND RAIL 4.0 m 35 DEGRES INCLINATION ground slab lvl -0.2 m first slab lvl 3.9 m 1.1 m 1.1 m 0.6 m 0.7 m 0.6 m 300MM DIA SUPPORT PIPE 1MM GLAZING GLASS 300MM DIA SUPPORT PIPE 900MM DIA S.STEEL PIPE 900MM DIA S.STEEL PIPE GLASS 1MM thk 200mmX300mm VERTICAL SUPPORTS CEILINGS LIGHTING 1 300 Section 5 1 1 : 100 screen 1 call out 2 1 300 Section 7 7 1 : 200 RAMP 6 1 100 TOILETS 4 1 100 DUTS 8 1 100 ESCALATORS 3 1 : 50 RAILING 5
PROJECT - 3 ground slab lvl -0.2 m THEATRE SLAB 21.2 m first slab lvl 3.9 m second slab lvl 7.9 m third slab lvl 11.9 m forth slab lvl 15.9 m 4.0 m 3.9 m 3.9 m 4.0 m 4.2 m 20.0 m ADVERTISE DISPLAYS ACM PANNELS BRASS METERILA PANNALES ATRIUM STEEL MESH WITH TRAINGULAR PATTERNS ENTRANCE CANOPY CURTAIN WALL ACM PANNELS BRASS MATERIAL PANNELS ATRIUM 2 6 ELEVATIONS DETAILS 4 ELEVATIONS DETAILS THEATRE SLAB 21.2 m first slab lvl 3.9 m second slab lvl 7.9 m third slab lvl 11.9 m forth slab lvl 15.9 m ADVERTISE BOARDS ATRIUM BRASS MATERIAL PANNELS STEEL MEASH FACADE CURTAIN WALL ACM PANNELS ENTRANCE CANOPY 5.3 m 4.0 m 4.0 m 4.0 m DISPLAY BOARDS PROJECTING SLABS CURTAIN WALL 21.2 m COMPOUND WALL 5 ELEVATIONS DETAILS ground slab lvl -0.2 m first slab lvl 3.9 m first ceilng lvl 7.2 m 2.1 m 3.5m WIDE REVOLVING DOOR 1.5 m 1.5MX1.5M STEEL PLATE WITH TRAINGLE MESH 0.6 m 0.5 THK WALL WITH GYPSUM PLASTER CURTAIN WALL THEATRE SLAB 21.2 m first slab lvl 3.9 m second slab lvl 7.9 m third slab lvl 11.9 m forth slab lvl 15.9 m BRASS MATERIAL PANNEL GYPSM WALL STEEL MEAH WITH 1.5X1.5M TRAINGLE PATTERN CURTAIN WALL ACM PANNELS CURTAIN FRAME THEATRE SLAB 21.2 m forth slab lvl 15.9 m 900MM STEEL PIPE DOME SUPPORTS FIXING CLEAR GLASS BRASS MATERIAL PANNEL ACM PANNEL WITH CURTAIN WALL CURTAIN WALL first slab lvl 3.9 m second slab lvl 7.9 m 6.2 m 7.3 m 1.5 m 900MM DIAM STEEL PIPES STEEL MESH FACADE REVOLVING DOOR 3.5M WIDE FIXING MIRROR first slab lvl 3.9 m second slab lvl 7.9 m third slab lvl 11.9 m 0.4 m 3.2 m 0.4 m 0.4 m 3.3 m 0.4 m 0.2M THK ACM PANNELS GLAZING WITH GLASS ACM PANNELS WITH BRASS MATERIAL 1MM thk CURTAIN WALL WITH ACM PANNELS 1 300 FRONT ELEVATION 1 1 : 200 SIDE ELEVATION 2 1 100 FACADE 3 1 : 150 PROJESTION DETAILS 4 1 125 ATRUIM WITH GLASS 5 1 75 ENTRANCE DETAIL 6 1 : 100 CURTAIN WALL 7

SPORTS COMPLEX

This sports complex facade theme was inspired by the shape of shuttle cock By using the elements of shuttle cock to developed facade treatment like ,diagonal brassed curtain wall etc...

ARCHITECTURAL
318.3 335.6 161 113.7 96.2 38.3 121.4 BUILT UP AREA 12000 SQ.M
BADMINTION COURTS VOLLEY BALL COURTS GYM PARKING AREA CRICKETER ACCOMDATION SKATE BOARD LANDSCAPE
CRICKET GROUND
ARROW SHOOTING BASKET BALL GROUND SAND PLAY AREA 12.0M WIDE ROAD 12.0MWIDEROAD ENTRANCE MAIN GATE DRESSING ROOMS
SWIMMING POOLS

A sports complex is a group of sports facilities. For example, there are track and eld stadiums, football stadiums, baseball stadiums, swimming pools, and Indoor arenas. This area is a sports complex, for tness. Olympic Park is also a kind of Entertainment complex.

PROJECT - 4 PHYSICAL EXAM ROOM 10.0MX12.0M CLINIC ROOM 10.0MX12.0M STORE ROOM 7.0MX12.0M OUT DOOR WAITING HALL 12.0M X 6.0M OUT DOOR EQUIPMENT 12.0M X 6.0M BADMINTION PLAYERS ROOM 12.0M 6.0M SERVICE ROOM 12.0MX6.0M CHECKING ROOM 4MX4M LIFT LIFT LIFT RECIPTION ENTRANCE LOBBY WAITING HALL REGISTERS ROOM 6MX6M LOCK ROOM 6MX6M ACCOUNTANT ROOM 12MX12M MANAGERS ROOM 12MX12M SERVICE ROOM 12.0MX6.0M BASKET BALL EQUIPMENT 6.0M 12.0M OUT DOOR WAITING HALL 12.0M 6.0M CHESS ROOM 25.0M X 12.0M CARROM ROOM 25.0M X 12.0M TOILETS FEMALE 9.0M X4.0M TOILETS MALE 9.0M X4.0M DRESSING ROOM 10.0M X4.0M DRESSING ROOM 10.0M X4.0M DRESSING ROOM 10.0M X4.0M DRESSING ROOM 10.0M X4.0M DRESSING ROOM 10.0M X4.0M CLINIC ROOM 10.0MX12.0M SERVICE LIFT STAIR CASE 9.0MX8.0M STAIR CASE 9.0MX8.0M OUT DOOR BASKET BALL 20.0M 44.0M INDOOR TENNIS BALL 20.0M X 40.0M INDOOR VOLLEYBALL 20.0M 40.0M INDOOR THROW BALL 20.0M X 40.0M INDOOR BASKET BALL 20.0M 40.0M INDOOR BADMINTION 12.0M 40.0M INDOOR BADMINTION 12.0M X 40.0M SEATING SPACE SEATING SPACE SEATING SPACE SEATING SPACE SEATING SPACE SEATING SPACE CUT OUT 3.5M WIDE CORRIDOR 3.5M WIDE CORRIDOR 3.5M WIDE CORRIDOR 3.5M WIDE CORRIDOR 3.5M WIDE CORRIDOR 3.5M WIDE CORRIDOR UP UP 196.8 60 2.0M WIDE CORRIDOR 2.0M WIDE CORRIDOR SERVICE LIFT OUT DOOR VOLLEY BALL 20.0M 44.0M ENTRANCE A A'
ARCHITECTURAL SPORTS COMPLEX TOILETS FEMALE TOILETS MALE LIFT STAIR CASE STAIR CASE SERVICE 20.0M 40.0M 20.0M 40.0M INDOOR THROW BALL 20.0M 40.0M 20.0M 40.0M 12.0M 40.0M INDOOR BADMINTION OUT DOOR VOLLEY BALL UP CUT OUT FROM GROUND LEVEL TO UP TO TOP LEVEL CUT OUT FROM GROUND LEVEL TO UP TO TOP LEVEL COACH ROOM COACH MEETING ROOM 6.0M 4.0M MEETING ROOM 9.5M X14.5M 9.5M X14.5M 9.5M X14.5M 9.5M X14.5M 9.5M X14.5M 3.5M WIDE CORRIDOR 3.5M WIDE CORRIDOR 3.5M WIDE CORRIDOR 3.5M WIDE CORRIDOR CONFERENCE HALL LIFT LIFT SERVICE ROOM 4MX4M 4MX4M COACH ROOM 6MX4M CANTEEN FOR GIRLS 12.0M 14.0M A A' 16 43.7 196.8 INDOOR TENNIS BALL 30.0M 40.0M INDOOR TENNIS BALL 30.0M 40.0M STARTS FROM TH FLOOR STARTS FROM TH FLOOR CUT OUT WAITING HALL 12.0M X 6.0M DRESSING 10.0M 4.0M DRESSING 10.0M 4.0M SERVICE ROOM SERVICE ROOM 3.5M WIDE CORRIDOR 3.5M WIDE CORRIDOR GUEST ACCOMDATION GUEST ACCOMDATION VIP GUEST ACCOMDATION A A' 85.3 60.5 TOILETS FEMALE 9.0M X4.0M TOILETS MALE LIFT 9.0MX8.0M UP SERVICE INDOOR TENNIS BALL 20.0M 40.0M INDOOR VOLLEYBALL 20.0M 40.0M INDOOR BASKET BALL 20.0M 40.0M INDOOR BADMINTION 12.0M 40.0M OUT DOOR VOLLEY BALL 25.0M 12.0M CUT OUT FROM GROUND LEVEL TO UP TO TOP LEVEL CUT OUT FROM GROUND LEVEL TO UP TO TOP LEVEL 6MX4M COACH MEETING ROOM 14M 4.5M ROOM-1 ROOM-2 ROOM-3 ROOM-4 ROOM-5 3.5M WIDE CORRIDOR 3.5M WIDE CORRIDOR 3.5M WIDE CORRIDOR KITCHEN CONFERENCE HALL 12.5M X14.5M COACH ROOM 6MX4M 6MX4M SERVICE ROOM SERVICE ROOM CANTEEN FOR BOYS 16.0MX14.0M LOBBY LIFT A A' 196.6 60 INDOOR TENNIS BALL 20.0M 40.0M INDOOR THROW BALL INDOOR BASKET BALL INDOOR BADMINTION 12.0M 40.0M 20.0M 44.0M 9.0M X4.0M TOILETS MALE 9.0M X4.0M SERVICE LIFT STAIR CASE 9.0MX8.0M UP UP SERVICE LIFT CHESS ROOM CARROM ROOM 6MX4M 6M 4M 20M X12M MEETING ROOM INDOOR SPORTS ROOM 12M 12.5M MEETING ROOM 14M 4.5M 25M 12.5M INDOOR SPORTS ROOM RECIPTION WAITING HALL 3.5M WIDE CORRIDOR 3.5M WIDE CORRIDOR CUT OUT ENQUARY ROOM 6M 4.5M LIFT 60 196.8 A A' CUT OUT FROM GROUND LEVEL TO UP TO TOP LEVEL CUT OUT FROM GROUND LEVEL TO UP TO TOP LEVEL
PROJECT - 4 10.9 30.2 19.6 CURTAIN WALL WALL WITH PLASTER STEEL STRUSS ROOF BLACK COLOUR GLAZING GLASS 0.05M THK ALUMINIUM BARS 0.05M THK ALUMINIUM BARS EXTERIOR GLAZING GLASS 10.9 1.3 SPORTS COMPLEX SPORTS COMPLEX 11.5 3.5 3.5 3 30.2 STAIR CASE STEEL STRUSS ROOF LIFT SHAFT GROUND LEVEL OUT DOOR PLAY AREA STAIR CASE UP TO 4TH FLOOR UP TO 7TH FLOORS TYPICAL ACCOMDATION MID LANDING 0.15M THK RCC SLAB 0.1M THK STEEL BARS FOR ROOFING 30.2

SPORTS COMPLEX

ARCHITECTURAL
318.3 335.6 161 113.7 96.2 38.3 121.4 BUILT UP AREA 12000 SQ.M CRICKET GROUND BADMINTION COURTS VOLLEY BALL COURTS GYM PARKING AREA CRICKETER ACCOMDATION SKATE BOARD LANDSCAPE SWIMMING POOLS ARROW SHOOTING BASKET BALL GROUND SAND PLAY AREA 12.0M WIDE ROAD 12.0MWIDEROAD ENTRANCE MAIN GATE DRESSING ROOMS
PROJECT
- 4

HIGH RISE BUILDING

A mixed-use building is a property that blends residential, commercial, industrial, Mixed-use buildings can be as simple as a mom-and-pop retail shop in a storefront

The concept of towers is to create community in tower by mergimg of 4 individual blocks and make together by using space

2.To create and connect with nature by providing of roof public gardens in the centre

ARCHITECTURAL
3O M Wide Tirupathi Bypass Road 73.3 9 M Wide Road LAKE Farm lands 385.1 entrane 1 entrane 2 +-0.0m lvl +3.0m lvl ramp +-0.0m lvl +3.0m lvl ramp +.45mlvl +.75mlvl 9.0m wide main road 9.0m wide main road oat 9.0m wide main road 9.0m wide main road 9.0m wide main road 9.0m wide main road 9.0m wide main road restaurant path way sitting area set back area 12m wide path way sitting area 4.0m wide running track dressing area GT ROOM exit canopy with lawn retail shops commercial block office block entrance seating with lawn grand entrance water body 364.3 34.0 46.0 47.5 a b c d d e f g h h i j k l m n o 255.3

entertainment and even industrial uses into one space.

storefront building with an apartment or two upstairs.

individual blocks and develops open roof gardens for each individual centre of 4 individual blocks

PROJECT - 5

HIGH RISE BUILDING

ARCHITECTURAL
3O M Wide Tirupathi Bypass Road 255.3 9 M Wide Road Residential Area 385.1 entrane 2 +-0.0m lvl ramp to the ground floor SL TO B1 SL TO B1 entrane 1 8.5m wide main drive way 7.5m wide main drive way 10.0m wide main drive way 7.5m wide main drive way 7.5m wide main drive way SL TO B1 electrical room stp &wtp gt room electrical service gt room service service gt room w.r s.r w.r f.r t w.r s.r w.r f.r t w.r s.r w.r f.r fire tank water tank fire tank water tank lockers lockers lockers fire water harvesting tank 7.0m wide main drive way 7.0m wide main drive way lockers office room service core entrane 1 +-0.0m lvl office room site boundary site boundary site boundary boundary site boundary 351.3 49.4 46.0 34.0 194.3 commercial space parking only basement 1 3O M Wide Tirupathi Bypass Road 255.3 9 M Wide Road Residential Area 385.1 entrane +-0.0m lvl ramp to the ground floor SL TO B1 SL TO B1 B2 TO B1 B1 TO B2 GR B1 TO entrane 1 8.5m wide main drive way 7.5m wide main drive way 10.0m wide main drive way 7.5m wide main drive way 7.5m wide main drive way SL TO B1 stp &wtp electrical room stp &wtp gt room electrical service gt room service service gt room water tank and fire tank w.r s.r w.r f.r w.r s.r w.r f.r w.r s.r w.r f.r lockers lockers lockers harvesting tank 7.0m wide main drive way 7.0m wide main drive way lockers office room service core entrane +-0.0m lvl office room site boundary site boundary site boundary boundary boundary boundary 10.0m wide driveway 10.0m wide driveway 10.0m wide driveway 7.0m wide driveway 7.0m wide driveway 7.0m wide driveway fire pump room water pump room fire pump room water pump room fire pump room water pump room 351.3 47.5 46.0 34.0 194.3
PROJECT
I N T E R I O
V I E W
- 5
R
S
ARCHITECTURAL I N T E R I O R
PROJECT - 5 V I E W S
ARCHITECTURAL
B-1 0.0 G.F 3.00M B-2 -3.00M COMMON BALCONY FIRE STAIRCASE SERVICE CORE GLASS RAILING PRIVATE BALCONY SWIMMING POOL ROOF GARDEN SERVICE CORE SEATING SPACE RECREATIONAL SPACE F-1 6.00M F-1 9.00M F-1 12.00M F-1 15.00M F-1 18.00M F-1 21.00M F-1 24.00M F-1 27.00M F-1 30.00M F-1 33.00M F-1 36.00M F-1 37.00M F-1 40.00M F-1 43.00M F-1 46.00M F-1 49.00M F-1 52.00M F-1 55.00M F-1 58.00M F-1 61.00M F-1 64.00M F-1 67.00M F-1 69.00M F-1 71.00M F-1 74.00M F-1 77.00M F-1 79.00M SECTIONAL ELEVATION AA' PUBLIC GARDEN 15TH FLOOR SLAB 3.5M PROJECTION
HIGH RISE BUILDING
PROJECT - 5 STILT 0.0 G.F 3.00M F-1 6.00M F-1 9.00M F-1 12.00M F-1 15.00M F-1 18.00M F-1 21.00M F-1 24.00M F-1 27.00M F-1 30.00M F-1 33.00M F-1 36.00M F-1 37.00M F-1 40.00M F-1 43.00M F-1 46.00M F-1 49.00M F-1 52.00M F-1 55.00M F-1 58.00M F-1 61.00M F-1 64.00M F-1 67.00M F-1 69.00M F-1 71.00M F-1 74.00M F-1 77.00M F-1 79.00M GROUND LEVEL SLAB PROJECTION SWIMMING POOL ROOF GARDEN VERTICAL WOODEN STRIPS GLASS RAILING WATER BODY FOR 4BHKS GARDEN WITH SHADINGS BALCONY

SITE

VIEWS

ARCHITECTURAL
HIGH RISE BUILDING
PROJECT
- 5

HIGH RISE BUILDING

ARCHITECTURAL
3O M Wide Tirupathi Bypass Road exit retail shops commercial block office block entrance seating with lawn entrance water body 34.0 46.0 47.5 l m n o 233.0 p way to basement

VIEWS

PROJECT
- 5 SITE
ARCHITECTURAL
NORTH SHEET NO. SCALE: N FACULTY SIGNATURE: PROJECT NAME: RESIDENTIAL BUILING NOTES - ALL DIMENSIONS ARE IN MM - ALL DIMENSIONS ARE GIVEN FROM UNFINISHED SURFACE - ALL DRAWINGS ARE NOT TOBE SCALED OR MEASURED. PROJECT TITLE: BRICK MASONRY WORK GROUND FLOOR 09 SPECIFICATION: CODE OPENIING SILL LINTEL NOS. SIZE D W1 W2 KW KW V D1 D2 W 1200X2100 975X2100 775X2100 1500X1200 1000X1200 1500X600 2000X1200 1000X600 600X600 - 21002100 2100 2100 2100 2100 2100 2100 2700 7 5 1 1 900 900 900 2100 1200 1200 W3 600X1200 900 2100 5 CROCKERY POOJA ROOM STORAGE KITCHEN DINING AREA PORCH AREA DRAWING ROOM LIVING ROOM TOILET CLOSET BED ROOM TOILET 536 717 1156 2057 1428 1104 1064 2607 653 180 2850 86 664 1660 1278 2015 678 1403 709 667 846 857 1699 2206 D1 D2 KW W 6570 3995 1496 5448 4430 1150 2555 1270 1270 1193 3212 3368 4954 1550 1830 1350 5102 W1 KW W3 1270X2200 1270X2000 3200X4300 4700X4100 5600X4700 5100MX3800 5100X8500 2300X2800 2300X1800 4000X4800 1300X2000 150 150 90 460 83 471 NAME: G.SAI DURGA RAO ROLL NO.: 20111AR0009 SEMESTER: 6TH SEM COLLEGE: YSRAFU 1375 2948 2350 276 1974 17001 22994 3030 10741 22994 CLOSET TOILET CLOSET BED ROOM TOILET BED ROOM LIVING BALCONY HOME THEATRE STORAGE D2 D2 D2 D1 D1 2206 1699 450 640 678 1278 1660 1350 3130 200 479 5102 3637 3533 5102 7620 2850 1788 2350 2575 3020 6570 1350 1830 W W1 W2 W3 W2 1700X2500 2800X2500 4700X6000 5100X4600 4700X3800 5100X7600 1300X2000 2300X2800 2300X1800 4000X4800 4655 1219 3739 1963 172 96 1660 150 83 582 107 150 3228 2246 257 3000 1443 1567 2350 1550 729 1021 792 1278 3825 GROUND FLOOR FIRST FLOOR 1:100 B 4938 1860 1892 1580 4386 2344 1499 4881 3628 5079 4112 3794 o/c c/c c/c c/o c/c c/c o/c c/c c/c c/c c/c c/o 4938 1860 1892 1580 4386 2344 o/c c/c c/c c/o c/c c/c C D E A 51 SHIFT 49 SHIFT 10270 10270 17701 17700 17001 C1 C1 C1 C1 C2 C2 C2 C2 C2 C2 C2 C2 C2 A5 C5 D5 E5 E4 C4 A4 A3 B3 E3 E2 B2 A2 B1 E1 A1 4271 2606 B C D E A 1 5 C2 C2 C2 -450MM GROUND LVL +0MM GROUND FLOOR LVL +900MM GROUND FLOOR SILL +2100MM GROUND FLOOR LINTEL LVL +3000MM GROUND FLOOR ROOF LVL +4050MM FIRST FLOOR SILL LVL +5250MM FIRST FLOOR LINTEL LVL +6150MM FIRST FLOOR ROOF LVL +6300MM TERRACE LVL +7500MM PARAPET WALL LVL +9300MM HEAD ROOM LVL D1 D1 KW D W1 B C D E A B C D E A A LVL 0MM LVL +4039MM LVL +5683MM LVL +4037MM LVL +5338MM LVL +4037MM LVL -8735MM LVL +4037MM LVL +4137MM DETAILED ELEVATION - WEST 465 901 1204 895 900 1194 906 1190 1815 17001 23001 17001 13961 4270 5562 4938 23001 1350 2230 PROPERTY LINE ROAD 9M WIDE BIULT UP AREA 160 SQ.M DRIVE WAY PATH WAY PATH WAY PATH WAY 7690 1 2 3 4 5 1 2 3 4 5 -450MM GROUND FLOOR LVL +900MM SILL LVL +2100MM LINTEL LVL +3000MM LVL +3150MM FIRST FLOOR +4050MM +5250MM +6150MM +6300MM +7800MM PARAPET WALL LVL 11 11 W1 W W W W1 SECTION B-B CROCKERY POOJA ROOM 1270X2200 STORAGE 1270X2000 KITCHEN 3200X4300 DINING AREA 4700X4100 PORCH AREA 5600X4700 DRAWING ROOM 5100MX3800 LIVING ROOM 5100X8500 TOILET (T1) 2300X2800 CLOSET 2300X1800 BED ROOM 1 4000X4800 TOILET(T2) 1300X2000 ROAD 9M WIDE A A B B CLOSET 1700X2500 TOILET (T1) CLOSET BED ROOM TOILET (T3) 2800X2500 BED ROOM 4700X6000 5100X4600 LIVING BALCONY 4700X3800 HOME THEATRE 5100X7600 STORAGE 1300X2000 B B A A 2300X2800 2300X1800 4000X4800 GROUND FLOOR FIRST FLOOR
DUPLEX PROJECT
PROJECT - 6 NORTH SHEET NO. SCALE: N 1:100 FACULTY SIGNATURE: PROJECT NAME: RESIDENTIAL BUILING NOTES : - ALL DIMENSIONS ARE IN MM - ALL DIMENSIONS ARE GIVEN FROM UNFINISHED SURFACE - ALL DRAWINGS ARE NOT TOBE SCALED OR MEASURED. LEGEND: KEY PLAN : GROUND FLOOR PROJECT TITLE: COLUMN LAYOUT AND CENTRE LINE 04 C2 230x450 C1 230x300 22994 1 5 NAME: G.SAI DURGA RAO ROLL NO.: 20111AR0009 SEMESTER: 6TH SEM COLLEGE: YSRAFU 450 230 COLUMN DETAILS SECTION A-A STIRRUPPS 8mm Tor @200mm c/c 12mm Tor @100mm c/c 10mm Tor @125mm c/c SPECIFICATION: 1500 1500 150 1200 1200 1200 A A' 450 150 230 16mm Tor PLAN N FACULTY SIGNATURE: PROJECT NAME: RESIDENTIAL BUILING NOTES - ALL DIMENSIONS ARE IN MM - ALL DIMENSIONS ARE GIVEN FROM UNFINISHED SURFACE - ALL DRAWINGS ARE NOT TOBE SCALED OR MEASURED. PROJECT TITLE: DETAILED ELEVATION 16 CODE OPENIING SILL LINTEL NOS. SIZE D W1 W2 KW KW V D1 D2 W 1200X2100 975X2100 775X2100 1500X1200 1000X1200 1500X600 2000X1200 1000X600 600X600 - 2100 42100 2100 2100 2100 2100 2100 2100 2700 4 7 5 2 2 1 1 2 900 900 900 2100 1200 1200 W3 600X1200 900 2100 5 SILL LVL LINTEL ROOF LINTEL ROOF SPECIFICATION: NAME: G.SAI DURGA RAO ROLL NO.: 20111AR0009 SEMESTER: 6TH SEM COLLEGE: YSRAFU B C D E A B C D E A W3 W3 W2 W2 V LVL +70MM LVL 0MM LVL +600MM LVL -9103MM LVL -5554MM DETAILED ELEVATION-EAST 450 2100 3144 2556 -450MM GROUND LVL +0MM GROUND FLOOR LVL +900MM GROUND FLOOR SILL LVL +2100MM GROUND FLOOR LINTEL LVL +3000MM GROUND FLOOR ROOF LVL +4050MM FIRST FLOOR SILL LVL +5250MM FIRST FLOOR LINTEL LVL +6150MM FIRST FLOOR ROOF LVL +7500MM PARAPET WALL LVL +9300MM HEAD ROOM LVL 1:100 LVL 0MM B 4938 1860 1892 1580 4386 2344 1464 4916 3630 5164 4007 3828 o/c c/c c/c c/o c/c c/c o/c c/c c/c c/c c/c c/o 4938 1860 1892 1580 4386 2344 o/c c/c c/c c/o c/c c/c C D E A B C D E A 1 2 3 4 5 1 2 3 4 5 SHIFT SHIFT 10270 10270 17701 17001 C1 C1 C1 C1 C2 C2 C2 C2 C2 C2 C2 C2 C3 C3 C2 1000 1300 1000 1000 1300 1000 1300 1000 1300 1000 1300 1000 1300 1000 1000 1000 1300 1000 1000 1300 1000 1200 1000 1000 1200 1200 1000 1200 1200 1000 1000 1200 1200 1200 1500 1500 1200 1200 1500 1200 1500 1500 F1 F1 F1 F1 F2 F2 F2 F2 F2 F2 F2 F2 F2 F3 F3 F3 4938 1860 1892 1580 4386 2344 1499 4881 3628 5079 4112 3794 o/c c/c c/c c/o c/c c/c o/c c/c c/c c/c c/c c/o 4938 1860 1892 1580 4386 2344 o/c c/c c/c c/o c/c c/c 51 49 10270 10270 17701 17700 17001 22994 C1 C1 C1 C1 C2 C2 C2 C2 C2 C2 C2 C2 C3 C3 C3 C2 B B A A B G D E A 1 2 3 4 5 4938 1860 1892 1580 4386 2344 1499 4881 3628 5079 4112 3794 o/c c/c c/c c/o c/c c/c o/c c/c c/c c/c c/c c/o 4938 1860 1892 1580 4386 2344 o/c c/c c/c c/o c/c c/c 51 SHIFT 49 SHIFT 10270 10270 17701 17700 17001 22994 C1 C1 C1 C1 C2 C2 C2 C2 C2 C2 C2 C2 C3 C3 C3 C2 B1 B2 B2 B2 B2 B2 B2 B2 B2 B1 B1 B1 B1 B1 B1 B1 B1 B2 B2 B2 B2 SUNK 230 SUNK 2120 B G D E A 1 2 3 4 5 B B A A 1200 ELEVATION FFL LVL +/-0 MM SILL LEVEL LVL +900 MM LINTEL LEVEL LVL +2100 MM ROOM HEIGHT LVL +3000 MM SECTION A-A PLAN INSIDE 0UTSIDE 1200 INSIDE OUTSIDE eq eq A A A B C FRAME SECTION SASH 5 MM THICK GLASS EPDM GASKET REINFORCEMENT BEADING 230MM EXTERNAL WALL 10MM PLASERING MM THICK GLASS BRUSH EPDM GASKET REINFORCEMENT REINFORCEMENT BRUSH MM THICK GLASS SASH FRAME SECTION 150MM CHAJJA 230MM EXTERNAL WALL 10MM PLASTERING NATURAL STONE FISCHER FIXING DETAIL-A DETAIL-B DETAIL-C BEADING BEADING 54 32 SLIDING WINDOW SASH TRACK SIDE FRAME 50 42 22 14 25 11.6 2 SLIDE REINFORCEMENT TYPE1 SLIDE REINFORCEMENT TYPE2 DETAILS A B C A A SECTION A -A ELEVATION FRAME 30x50MM LOUVERS OUTSIDE INSIDE BRICK WALL 10MM PLASTER WOODEN FRAME 10MM PLASTER LINTEL WOODEN FRAME LOUVERS BRICK WALL 500 600 GLASS 500 PLAN 60 90 10 120 90 PLASTERING BRICK WALL HORN WOODEN JAMB 5MM GLASS SLAB 5MM GLASS SLAB 10MM PLASTER LINTEL 5MM GLASS SCALE 1:10 SCALE 1:10 SCALE 1:10 SCALE 1:5 SCALE 1:5 WOODEN JAMB
ARCHITECTURAL
LANDING LVL 450 MM GROUND LVL LVL +9400 MM HEADROOM LVL LVL +6750 MM TERRACE LVL LVL +3600 MM FIRST FLOOR LVL +/- MM PLINTH LVL 3630 HEAD ROOM 40 4 5 LVL 1500 MM FOUNDATION LVL SECTION-AA FLIGHT-1 FLIGHT-2 FLIGHT-3 FLIGHT-4 LANDING UP LANDING FLIGHT-1 FLIGHT-2 4511 2080 GROUND FLOOR PLAN UP LANDING FLIGHT-3 FLIGHT-4 4511 2080 FIRST FLOOR PLAN UP LANDING FLIGHT-5 D FLIGHT-6 4511 2080 C TERRACE FLOOR PLAN 4 5 4 5 D C D C STAIRCASE WAIST SLAB STRUCTURAL DETAIL 8Ø DISTRIBUTION BARS @ 200 C/C 8Ø DISTRIBUTION BARS 12Ø MAIN BARS @ 200 C/C 10 Ø MAIN BARS @ 300 C/C 12Ø MAIN BARS @ 200 C/C 450 230 8Ø DISTRIBUTION BARS 6 300 230 150 300 MID LANDING A INTERNAL HAND RAIL 8MM GLASS PANEL 50MM DIA ALUMINIUM FINISH BALUSTER ALUMINIUM CLIPS HOLDING GLASS 560 RAILING DETAIL DETAIL-A 12 MM PLASTER BELOW WAIST SLAB 18 MM GRANITE TILE 20MM NOSING CEMENT MORTAR THREAD RISER 150 300 230 PLINTH BEAM STRUCTURAL DETAIL 6 8 2650 3154 3150 450 SCALE: 1:10 SCALE: 1:10 SCALE: 1:10 4938 1860 1892 1580 4386 2344 1499 4881 3628 5079 4112 3794 o/c c/c c/c c/o c/c c/c o/c c/c c/c c/c c/c c/o 4938 1860 1892 1580 4386 2344 o/c c/c c/c c/o c/c c/c 51 SHIFT 49 SHIFT 10270 10270 17701 17700 17001 22994 C1 C1 C1 C1 C2 C2 C2 C2 C2 C2 C2 C2 C3 C3 C3 C2 B1 B2 B2 B2 PB2 B2 B2 B2 B2 B1 B1 B1 B1 B1 B1 B1 B1 B2 B2 B2 B2 SUNK 230 SUNK 2120 B G D E A 1 2 3 4 5 600MM SLAB PROJECTION@SLAB LVL 600MM SLAB PROJECTION@SLAB LVL 4938 1860 1892 1580 4386 2344 1499 4881 3628 5079 4112 3794 o/c c/c c/c c/o c/c c/c o/c c/c c/c c/c c/c c/o 4938 1860 1892 1580 4386 2344 o/c c/c c/c c/o c/c c/c 5 51 SHIFT 49 SHIFT 10270 10270 17701 17700 17001 22994 C1 C1 C1 C1 C2 C2 C2 C2 C2 C2 C2 C2 C3 C3 C3 C2 B1 B2 B2 B2 PB2 B2 B2 B2 B2 B1 B1 B1 B1 B1 B1 B1 B2 B2 B2 B2 B G D E A 1 2 3 4 5 400MM SLAB PROJECTION @BEAM BOTTOM LVL 400MM SLAB PROJECTION @BEAM BOTTOM LVL KITCHEN PLAN D2 D2 1270X2000 3200X4300 STORAGE KITCHEN D2 D2 3200X4300 SINK ELEVATION ELEVATION A ELEVATION A C D B BRICK WALL A -SLAB C UPPER CABINET D REFRIGERATOR E 12 MM PLASTER EARTH H PLINTH BEAM F STOVE G -EXHAUST FAN LEGEND 30MM THK PLYWOOD S.S HANDLE 15MM THK PLYWOOD UPPER CABINET DETAIL-SECTION 18MM THK SS HANDLE 15MM THK PLYWOOD SKRITING 18MM THK KOTA STONE CABINET DETAIL SECTION P.C.C FILLING DRAWERS DETAIL-SECTION 15MM THK SS HANDLE 18MM THK KOTA STONE P.C.C FILLING SS TROWLEY DETAIL 12MM THICK STONE CLADDING ADHESIVE CONCRETE SLAB PLASTERING GRANITE STONE 20MM CONCRETE SLAB SS BOWL SS HANDLE 15MM THICK PLYWOOD SKRITING 15MM THK ADHESIVE SINK DETAIL-SECTION B CONCEALED HINGE C GRANITE STONE 20MM CONCRETE SLAB DRIP MOULD DETAIL -B GRANITE STONE DETAIL-C CABINET SCALE: 1:10 SCALE: 1:10 SCALE: 1:10 TOILET PLAN (T1) 2300X2800 D N 150 K SLOPE 1:100 150 1:100SLOPE E F H B A C A B C D 1377 1489 778 CINDER FILLING 480 ELEVATION-A A WASH BASIN B WASH BASIN TAP C MIRROR D HAND FAUCET E WC F FLUSH G LEDGE WALL H GLASS PARTITION TAP CONVERTER J HEAD SHOWER K NAHIN TRAP L - HAND SHOWER M BATH SPOUT N HANGER ELEVATION-B CINDER FILLING 600 450 740 ELEVATION-C 600 ELEVATION-D BRICKWALL WATER PROOFING LAYER WALL TILE ADHESIVE PLINTH BEAM 15 DETAIL-A BRICKWALL INTERNAL PLASTERING WATER PROOFING LAYER WALL TILE ADHESIVE 15 12 DETAIL-B CINDER FILLING B B D GLASS TUCKED BETWEEN TILES ADHESIVE 75 DETAIL-C DRY AREA AND WET AREA SEPERATION E G G G H 450 450 N D2 CINDER FILLING B C H 2300X2800 RAIN WATER PIPE @50MM DIA SOLID WASTE PIPE @100MM DIA DRAIN WATER PIPE @100MM DIA BORE WATER PIPE @100MM DIA BORE WATER PIPE @30MM DIA CORPORATION WATER PIPE @50MM DIA BORE WATER PIPE @30MM DIA SOLID WASTE PIPE DRAIN WATER PIPE @100MM RAIN WATER PIPE @50MM DIA RAIN WATER PIPE @50MM RAIN PIPE RAIN WATER PIPE @50MM CORPORATION PIPE BORE PIPE BORE WATER PIPE(U.G.W.T) @30MM DIA MUNICIPAL WATER PIPE(U.G.W.T) @30MM DIA SLOPE SLOPE
DUPLEX PROJECT
PROJECT - 6 MUNICIPAL WATER TANK BORE WATER TANK 500 MANHOLE COVER MAN HOLE PLAN MS plate over opening (600/600mm) 10cm thick P.C.C plate WATER TANK ROOF PLAN opening (500/500mm) MS plate (600/600mm) opening (500/500mm) MS plate (600/600mm) slope slope slope slope slope slope 1 cm thick water proof plastering 15cm thick R.C.C wall A A WATER TANK PLAN Opening (500/500/100mm) MS plate (600/600/50mm) 10cm thick P.C.C plate Existing R.C.C slab (15cm thick) BORE WATER TANK 1 cm thick water proof plastering 15cm thick R.C.C wall WATER TANK DETAILS SECTION A - A slope MUNICIPAL WATER TANK slope MS plate over opening (600/600mm) SLOPE SLOPE SLOPE 13849 23739 CROCKERY POOJA ROOM 1270X2200 STORAGE 1270X2000 KITCHEN 3200X4300 DINING AREA 4700X4100 DRAWING ROOM 5100MX3800 LIVING ROOM 5100X8500 TOILET 2300X2800 CLOSET 2300X1800 BED ROOM 1 4000X4800 TOILET 1300X2000 M.H M.H MUNICIPAL WATER TANK BORE WATER TANK RAIN WATER TANK M.H M.H M.H/I.C G.T M.H I.C M.H I.C G.T M.H/I.C M.H/ I.C U.G.W.T TO O.H.W.T (MUNICIPAL) - 30MM U.G.W.T TO O.H.W.T (BORE) - 30MM BORE WATER SUPPLY - 50MM CORPORATION WATER SUPPLY - 50MM RAIN WATER TO TANK - 50MM RAIN WATER SUPPLY - 30MM HOT WATER - 30MM DRAIN SOLID WASTE - 100MM DRAIN WASTE WATER 100MM MUNCIPAL WATER SUPPLY RAIN WATER PIPE @50MM DIA RAIN WATER PIPE @50MM DIA SOLID WASTE PIPE @100MM DIA DRAIN WATER PIPE @100MM DIA RAIN WATER PIPE @50MM DIA BORE WATER PIPE @100MM DIA BORE WATER PIPE(U.G.W.T) @30MM DIA MUNICIPAL WATER PIPE(U.G.W.T) @30MM DIA CONNECT TO DRAIN BORE WATER PIPE@30MM DIA MUNICIPAL WATER TANK BORE WATER TANK PIPE @100MM DIA WATER @100MM DIA WATER @50MM DIA RAIN WATER @50MM DIA DIA CORPORATION WATER @50MM DIA BORE WATER @100MM DIA RAIN WATER PIPE @50MM DIA SOLID WASTE PIPE @100MM DIA DRAIN WATER PIPE @100MM DIA BORE WATER PIPE @30MM DIA BORE WATER PIPE(U.G.W.T) @30MM DIA MUNICIPAL WATER PIPE(U.G.W.T) @30MM DIA SLOPE SLOPE SLOPE CROCKERY POOJA ROOM 1270X2200 STORAGE 1270X2000 KITCHEN 3200X4300 DINING AREA 4700X4100 PORCH AREA 5600X4700 DRAWING ROOM 5100MX3800 LIVING ROOM 5100X8500 TOILET 2300X2800 CLOSET 2300X1800 BED ROOM 4000X4800 TOILET 1300X2000 SB2 SB5 SB11 SB6 SB11 SB13 SB14 SB1 SB9 EQ 1259 600 856 2183 1031 INDICATION SPECIFICATION SB1 SB2 SB3 SB4 SB5 SB6 SB7 SB8 SB9 SB10 SB11 SB12 SB13 SB14 SB15 SB16 SB17 SB18 SB19 SB20 SB21 SB22 SB23 SB24 5AMP.- NO, POINTS PROVISION FOR TATA SKY PLUS (REQUIRED TWO CABLE WIRES) AT HT 600 MM FRM F.FL.LVL AMP. NO.,POINTS, PROVISION FOR TELEPHONE INTERNET AT HT. 900MM FROM F.FL.LVL TILL THE BOTTOM OF SB AMP. NO POINTS, AT 1500MM FROM F.FLR.LEVEL TILL THE AMP. NO. POINTS AT 1500MM FROM F.FLR. LEVEL TILL THE BOTTOM OF THE SB AMP. AT 1500 FROM F.FLR. LEVEL TILL THE BOTTOM OF THE SB THE BOTTOM OF THE SB AMP. AT 1200MM FROM F.RISER. LEVEL TILL AMP. AT 600 MM FROM F.RISER. LEVEL TILL AMP. POINTS- AT 1500MM FROM F.FLR. LEVEL TILL THE BOTTOM OF THE SB AMP. POINTS- AT 1500MM FROM F.FLR. LEVEL TILL THE BOTTOM OF THE SB AMP, POINTS.AT 1500 FROM F.FLR. LEVEL TILL THE BOTTOM OF THE SB AMP. AT 600MM FROM F.RISER. LEVEL TILL THE BOTTOM OF THE SB SB25 AMP.- AT 1500MM FROM F.FLR. LEVEL TILL THE BOTTOM AMP.- AT 1500MM FROM F.FLR. LEVEL TILL THE BOTTOM OF THE SB AMP. NO.- AT 1200MM FROM F.FLR. LEVEL TILL THE BOTTOM OF THE SB AMP. NO.- AT 1200MM FROM F.FLR. LEVEL TILL THE AMP. AT 1500 FROM F.F.L. LEVEL TILL THE BOTTOM OF THE SB THE BOTTOM OF THE SB AMP. AT 1500 MM FROM F.FLR. LEVEL TILL THE BOTTOM OF THE SB AMP. NO.- AT 1200MM FROM F.FLR. LEVEL TILL THE BOTTOM OF THE SB AMP. NO.- AT 600MM FROM F.FLR. LEVEL TILL THE BOTTOM OF THE SB AMP, POINTS.AT 1500 FROM F.FLR. LEVEL TILL THE BOTTOM OF THE SB AMP, POINTS.AT1500 FROM F.FLR.LEVEL TILL THE BOTTOM OF THE SB SB26 SB27 SB28 SB29 AMP. NO. POINTS- AT 1200MM FROM F.FLR. LEVEL TILL THE BOTTOM OF THE SB SB30 AMP. POINTS- AT 600 MM FROM F.RISER. LEVEL TILL THE BOTTOM OF THE SB AMP, POINTS.AT 1200 FROM F.FLR. LEVEL TILL THE BOTTOM OF THE SB AMP,AT1200 FROM F.FLR.LEVEL TILL THE BOTTOM OF THE SB AMP. POINTS- AT 600 MM FROM F.RISER. LEVEL TILL THE BOTTOM OF THE SB CLOSET 1700X2500 TOILET CLOSET BED ROOM 2800X2500 BED ROOM 3 4700X6000 5100X4600 LIVING BALCONY 4700X3800 HOME THEATRE 5100X7600 STORAGE 1300X2000 2300X2800 2300X1800 4000X4800 SB20 SB19 SB21 SB18 SB28 SB29 SB25 CROCKERY POOJA ROOM 1270X2200 STORAGE 1270X2000 KITCHEN 3200X4300 DINING AREA 4700X4100 PORCH AREA 5600X4700 DRAWING ROOM 5100MX3800 LIVING ROOM 5100X8500 TOILET 2300X2800 CLOSET 2300X1800 BED ROOM 1 4000X4800 TOILET SB2 SB3 SB5 SB7 SB8 SB11 SB6 SB10 SB11 SB12 SB13 SB14 SB1 SB15 SB9 SB4 EQ EQ 1453 692 INDICATION SPECIFICATION SB1 SB2 SB3 SB4 SB5 SB6 SB7 SB8 SB9 SB10 SB11 SB12 SB13 SB14 SB15 SB16 SB17 SB18 SB19 SB20 SB21 SB22 SB23 SB24 5AMP.- NO, POINTS PROVISION FOR TATA SKY PLUS (REQUIRED TWO CABLE WIRES) AT HT 600 MM FRM F.FL.LVL TILL THE BOTTOM OF THE SB AMP. 5 NO.,POINTS, PROVISION FOR TELEPHONE INTERNET AT HT. 900MM FROM F.FL.LVL TILL THE BOTTOM OF SB AMP. NO POINTS, AT 1500MM FROM F.FLR.LEVEL TILL THE BOTTOM OF THE SB 15 AMP. 2 NO. POINTS AT 1500MM FROM F.FLR. LEVEL TILL THE BOTTOM OF THE SB AMP. AT 1500 FROM F.FLR. LEVEL TILL THE BOTTOM OF THE SB AMP. NO. POINTS- AT 1200MM FROM F.FLR. LEVEL TILL THE BOTTOM OF THE SB AMP. AT 1200MM FROM F.RISER. LEVEL TILL THE BOTTOM OF THE SB AMP. AT 600 MM FROM F.RISER. LEVEL TILL THE BOTTOM OF THE SB AMP. POINTS- AT 1500MM FROM F.FLR. LEVEL TILL THE BOTTOM OF THE SB AMP. POINTS- AT 1500MM FROM F.FLR. LEVEL TILL THE BOTTOM OF THE SB AMP, POINTS.AT 1500 FROM F.FLR. LEVEL TILL THE BOTTOM OF THE SB AMP. NO. POINTS- AT 1200MM FROM F.FLR. LEVEL TILL THE BOTTOM OF THE SB AMP. AT 600MM FROM F.RISER. LEVEL TILL THE BOTTOM OF THE SB SB25 AMP. AT 1200MM FROM F.RISER. LEVEL TILL THE BOTTOM OF THE SB AMP.- AT 1500MM FROM F.FLR. LEVEL TILL THE BOTTOM OF THE SB HAS A BELL POINT AMP.- AT 1500MM FROM F.FLR. LEVEL TILL THE BOTTOM OF THE SB AMP. NO.- AT 1200MM FROM F.FLR. LEVEL TILL THE BOTTOM OF THE SB AMP. NO.- AT 1200MM FROM F.FLR. LEVEL TILL THE BOTTOM OF THE SB AMP. AT 1500 FROM F.F.L. LEVEL TILL THE BOTTOM OF THE SB AMP. NO. POINTS- AT 1200MM FROM F.FLR. LEVEL TILL THE BOTTOM OF THE SB AMP. AT 1500 MM FROM F.FLR. LEVEL TILL THE BOTTOM OF THE SB AMP. NO.- AT 1200MM FROM F.FLR. LEVEL TILL THE BOTTOM OF THE SB AMP. NO.- AT 600MM FROM F.FLR. LEVEL TILL THE BOTTOM OF THE SB AMP, POINTS.AT 1500 FROM F.FLR. LEVEL TILL THE BOTTOM OF THE SB AMP, POINTS.AT1500 FROM F.FLR.LEVEL TILL THE BOTTOM OF THE SB SB26 SB27 SB28 SB29 AMP. NO. POINTS- AT 1200MM FROM F.FLR. LEVEL TILL THE BOTTOM OF THE SB SB30 AMP. POINTS- AT 600 MM FROM F.RISER. LEVEL TILL THE BOTTOM OF THE SB AMP, POINTS.AT 1200 FROM F.FLR. LEVEL TILL THE BOTTOM OF THE SB AMP,AT1200 FROM F.FLR.LEVEL TILL THE BOTTOM OF THE SB AMP. POINTS- AT 600 MM FROM F.RISER. LEVEL TILL THE BOTTOM OF THE SB
ARCHITECTURAL OTHER WORKS
up Seating relaxing space Pool adult 28'-3'x48'-9" Pool for child 28'-3"x8'-6" 5' Wide Granite flooring +0.9m +1.35m +1.5m Green land space Open lounge Open lounge Dressing room Dressing room +0.9m +1.35m +1.5m up Cafteria 27'-3''x15'-3" Closed lounge 27'-3"x23'-6" Closed lounge 27'-3"x34'-0" Seating benches Seating benches Seating benches 5'wide path way 5'wide path way 5'wide path way 24' wide gazebo 24' wide gazebo 24' wide gazebo 5'wide path way Garden space with shrubs Relaxing bed space 19' wide gazebo Garden space with shrubs 5' 7' 26'-7" 70'-5" 31'-3" 4' 5' 5' Relaxing bed Seating bench Seating bench Seating bench 3' Wide Green pathway Granite stone Seating bench up Seating bed with canopy 11'-7" NW W SW
PROJECT - 7 132'-2"
ARCHITECTURAL OTHER WORKS 10'
4'
PROJECT - 7

Turn static files into dynamic content formats.

Create a flipbook
Issuu converts static files into: digital portfolios, online yearbooks, online catalogs, digital photo albums and more. Sign up and create your flipbook.
INTERNSHIP PORTFOLIO SAI.G by saidurgarao guttula - Issuu