Skip to main content

Professional Practice Portfolio - The Sun Room

Page 1


Millie Wilkins

PROFESSIONAL PRACTICE PORTFOLIO

University of south wales

TASK 1: Professionalism and Work Remit ------------------------------------------

TASK 2: Design & Access Statement -----------------------------------------------

TASK 3: Specification & Sustainability Statement ---------------------------------

TASK 4: Regulations & Best Practice ------------------------------------------------

TASK 5: Professional Profile ----------------------------------------------------------

TASK 6: Reflection on Industry Engagement

TASK 1: Professionalism and Work Remit

The BIID Code of Conduct (2021) is a set of professional and ethical guidelines that interior designers must follow to ensure integrity, competence, and accountability in their work. The code covers client relations, legal compliance, sustainability, and upholding the profession’s reputation. By following this code, it ensures that designers commit to high standards of professionalism, honesty, and responsible design practices. It is important to follow the BIID code of conduct to ensure that I meet the necessary ethical requirements asa practicing designer.

1. Procure Work Honestly and Responsibly

I will ensure all statements about my qualifications and resources are truthful, accurate, and responsible. I will respect copyright laws and only take on projects where I am fully qualified and equipped to deliver high-quality work. I will regularly assess my capacity to manage projects and use the BIID appellation correctly, in line with BIID policy.

2. Act with Integrity and Avoid Conflicts of Interest

I will conduct myself with honesty, transparency, and fairness in all professional activities. I will identify and avoid conflicts of interest, declining projects that may compromise my impartiality. If a conflict arises, I will disclose it in writing, seek a resolution, or withdraw from the project if necessary, ensuring professionalism at all times.

3. Have an Agreed Written Scope of Services and Renumeration Method

Before beginning any project, I will establish a clear, written agreement with the client outlining responsibilities, scope of work, fees, timelines, intellectual property rights, and terms of engagement. Any changes to the agreement will be documented and approved before implementation.

4. Perform your Role Diligently

I will execute all work with care, skill, and professionalism, ensuring my advice is impartial and my expertise is appropriate for the project. I will maintain open communication with clients, document key decisions, and ensure all work is safe, practical, and aligned with project goals, budgets, and timeframes.

5. Be Responsible with Client’s Confidential Data and Finances

I will handle all client and professional data securely, following data protection laws. Confidential information will only be shared with explicit consent or when legally required. I will take proactive steps to prevent data breaches and act swiftly if one occurs.

6. Manage My Work and Business Professionally

I will manage my business responsibly, ensuring financial stability, fair employment practices, and compliance with employment laws. I will maintain strong relationships with clients and industry partners, provide employees with proper training, and have contingency plans in place for unforeseen circumstances.

7. Have Appropriate Insurance in Place

I will maintain adequate insurance coverage for my business, employees, and projects, ensuring financial protection against professional liabilities. I will also confirm that subcontractors and other professionals involved in my projects have the necessary insurance coverage.

8. Adhere to Relevant Regulations

I will stay informed of all legal and regulatory requirements, including Building Regulations, CDM Regulations, and Health & Safety laws. I will clarify my role as a Principal Designer when applicable and ensure compliance with all required approvals before starting work.

9. Maintain and Enhance the Reputation of the Interior Design Profession

I will uphold the integrity of the profession by acting ethically and responsibly. I will not engage in plagiarism, unfair competition, or bribery. I will respect other designers’ work and avoid conflicts when taking on projects where another designer is already engaged.

10. Commit to Continued Professional Development

I will actively pursue professional growth by engaging in CPD activities as required by the BIID, continuously improving my knowledge and skills.

11. Encourage Knowledge Sharing

I will contribute to the development of the interior design industry by sharing knowledge and best practices with colleagues, industry professionals, and the wider public to promote awareness and understanding of the profession.

CONTRACT DATE:

REFERENCE NO.

PROJECT REFERENCE:

PROJECT ADDRESS:

ATTN:

PROJECT BRIEF

16/01/2025

EH101

EH-20245

ENGINE HOUSE, FIRE FLY AVE, SWINDON, SN2 2EH HISTORIC ENGLAND

ROOM FOR MORE INTERIORS

Shrivenham, Swindon

Email: millie.wilkins@live.co.uk

Tel: 07500362915

The deliverables for the Engine House project will include a comprehensive interior design plan aimed at creating a calming and functional mental health space. The aim of this design is to provide a safe space for the people of Swindon, addressing the declining mental health in the area. This space consists of a communal zone, quiet zone and café/eatery on the second floor of the building.

BREAKDOWN OF WORKS:

STAGE 01: FEASIBILITY & DESIGN CONCEPT

- Site Survey

- Feasibility Study

- Concept Mood Imagery and Design Direction

DESIGN FEE: £160/DAY

FULL FRONT OF HOUSE (FOH) DESIGN INTENT DRAWING PACKAGE BASED ON AGREED FINAL LAYOUT AND CONCEPT, TO INCLUDE:

- Demolition Plans (agreed and signed off by contractor)

- Bulding Regulations (signed off by and the responsibility of the Building Control Officer)

- Outline Finishes & Material Mood Board

- F,F & E General Arrangement Plan

- Floor Finishes Layout

- Wall Finishes Layout

- Ceiling Fixtures & Lighting Layout

- Sanitary Specification

- Bespoke Joinery Drawing

STAGE 02: DETAILED DESIGN

- General Arrangement Plan*

- Builders Works Plan

DESIGN FEE: £3000 Total

SPECIFICATION SCHEDULES PREPARED FOR PROCUREMENT, TO INCLUDE:

- Furniture & Lighting Schedule

- Floor & Wall Specification Schedule

- Sanitary Specification Schedule

- Bespoke Joinery Drawing(s)

STAGE 03: ON SITE DELIVERY & IMPLEMENTATION (ONGOING THROUGH BUILD)

SITE MEETINGS

- Liasing with Appointed Contractors (10 meetings, 12 site visits)

- Building Regulations (discussions with Building Control Officer)

DESIGN FEE: £3400 Total

TOTAL DESIGN FEE: £8600 (EXCLUDING VAT.)

INCLUSIONS

ROOM FOR MORE INTERIORS

Shrivenham, Swindon

Email: millie.wilkins@live.co.uk

Tel: 07500362915

- 1 no. Set of minor revisions within reasonable tolerance (please refer to our standard terms & conditions)

- Initial briefing meeting & site visit

- Pre-start meeting and 3 no. Design review meetings

- Concept design development (mood boards and preliminary sketches)

- 2D floor plans and elevations

- 3D visualisations and/or renderings

- Preparations of detailed specification schedules

- Handover package

EXCLUSIONS

- Any preparation/submission of planning applications

- StructuraL/MEP drawings

- Procurement and purchasing of furniture, fixtures, and equipment (FF&E) unless otherwise agreed

- On-site project management or contractor supervision beyond scheduled meetings

- Any changes required due to unforeseen site conditions or regulatory updates

- Responsibility for delays or cost increases due to contractor performance or supply chain issues

- Any work outside of the agreed design scope or number of revisions

CLIENT COMMENTS:

CLIENT APPROVAL SIGNATURE: APPROVAL DATE:

*ANY STRUCTURAL / MEP DETAILS REQUIRED ARE TO BE CARRIED OUT BY SPECIALIST CONTRACTOR AND DRAWINGS INTEGRATED WITHIN OUR LAYOUT

PREPARED BY: MILLIE WILKINS

TEL: 07500362915

EMAIL: MILLIE.WILKINS@LIVE.CO.UK

INVOICE FOR PAYMENTS WILL BE ISSUED UPON COMPLETION OF EACH STAGE OF WORKS ALL PAYMENTS DUE WITHIN 14 WORKING DAYS UPON RECEIPT OF INVOICE VIA BANK TRANSFERWITH THANKS FOR THE OPPORTUNITY, WE HOPE THE PROPOSAL MEETS WITH YOUR APPROVAL.

TASK 2: Design & Access Statement

PROPOSAL

The Engine House, built in 1844, originally served as the headquarters for the Great Western Railway (GWR) and was a key industrial hub in Swindon, alongside the development of the railway village. Its strategic location made it one of the most significant sites in GWR’s contribution to the Industrial Revolution. The building was expanded into a four-storey structure in 1903 to accommodate drawing offices for the workforce residing in the railway village (Baker, 2020). However, as GWR’s influence in Swindon declined, the Engine House eventually ceased operations in 1986. In recognition of its architectural and historical importance, the building was designated as Grade II listed in 1895. Today, the building functions as office space for Historic England, serving the adjacent Archive Building.

A site visit revealed that there are facilities that employees require but currently lack:

• The café, which was closed in 2020 due to COVID-19, leaving workers without a designated eating area.

• The existing mental health space is small and clinical in appearance, and workers have requested significant improvements.

Given the Engine House’s prime location within the railway village, its proximity to Swindon train station, and its adjacency to Cardean House (residential flats), this proposal aims to enhance the local area as part of the railway village redevelopment project while also addressing community needs.

Extract from User Profile

“I’m 66 and work at the Historic England Archive Building, where I spend most days in a quiet office environment. Since the on-site café closed a few years back, I’ve often found myself eating lunch at my desk, but I’d love a place nearby where I can enjoy a meal and chat with others. A space to break away from work, have a proper lunch, and share a conversation would bring a welcome change to my day.”

Exampe of User in The Sun Room (Wilkins, 2025)

Selection of Images for Timeline (Refer to Bib.)

RESPONDING TO THE BRIEF

Recent research by the Wiltshire Community Foundation has highlighted the widespread issue of poor mental well-being in the Swindon area, with 13 areas in Wiltshire ranking among the most deprived 10% in England in terms of mood and anxiety disorders (Wiltshire and Swindon Sport, n/a). The proposal for the Engine House seeks to address the mental health crisis by fostering a sense of community and establishing a dedicated well-being hub. The project aims to create a restorative space to support mental health by offering various workshops and access to well-being resources.

Location Analysis

It follows the ‘Five Ways to Well-being’ approach (Swindon Gov, n/a), ensuring accessibility to the building by reinstating the connecting bridge from Cardean House, now used for residential housing. The proposal also contributes to the wider railway village redevelopment project. The design will prioritise well-being, functionality, and sustainability, incorporating choice and accessibility, carefully selected materials, and collaboration with local businesses and artists. Additionally, the project will remain sympathetic to the building’s Grade II listed status, preserving its architectural and historical integrity.

The Five Ways to Well-being (Mental Health Foundation,

2025)

DESIGN VISION

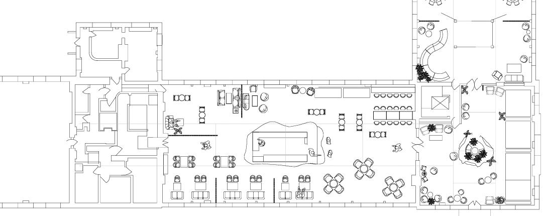
The new well-being hub will be located on the second floor of the Engine House, with three designated rooms, each serving a different well-being function. The layout from the entrance is as follows:

• Communal Room: This space will offer activities, workshops, and a gallery, fostering community engagement and social connections. A mezzanine will provide an alternative route, allowing individuals to bypass the communal area while also offering an enclosed private space for work or conversation.

• Quiet Space: Designed to provide a sensory-friendly environment, this room will feature bespoke organic elements, dedicated pods for privacy, and a continuation of the mezzanine, offering additional seating options. A second entrance from the Cardean House bridge ensures convenient access.

• Café/Eatery: This area will serve as both a dining space for workers and a social well-being hub. A variety of seating options will cater to different preferences, from social interaction to seclusion. A bespoke bar will help manage foot traffic, ensuring that private areas remain undisturbed.

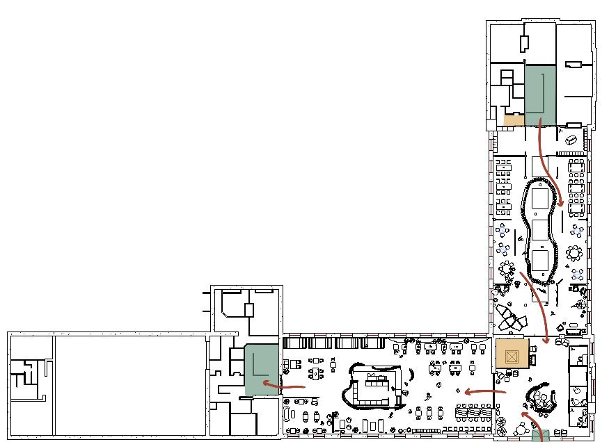
ACCESS & CIRCULATION

Ensuring accessibility and ease of navigation is a key consideration, given the size and complexity of the building. Multiple entrances provide access to the second floor, with the primary entrance located on the East/West facing side of the building, supported by clear signage. The main entrance features an accessible lift, one of several throughout the building, with an additional lift located in the quiet space.

Key

Entrance/exit

Accessible lift

Example route of circulation

All entrances will be fitted with fire doors and appropriate safety signage. The building’s enclosed staircases, originally designed for industrial use, are constructed from fire-resistant materials and remain suitable for emergency use. The lift in the East/West portion is also a service lift, usable in the event of a fire. The floor will include multiple unisex and accessible toilet facilities.

Location of Service Lift

Second Floor of Engine House (NOT TO SCALE, for visual purposes only)
Second Floor Main Entrance (NOT TO SCALE, for visual purposes only)
Example of Entrance/Exit Door with Appropriate Signage (Wilkins, 2024)
Example of Suitable Fire Escape Stairway (Wilkins, 2024)
Waypointing Sign for The Sun Room (Wikins, 2025)
Second Waypointing Sign for The Sun Room (Wikins, 2025)

DEVELOPMENT & IMPROVEMENT

The design of the Engine House mental health hub has evolved gradually, with improvements made at each stage. Initially, the café space and quiet space were positioned differently, but their locations were adjusted to enhance the flow, allowing access to the quiet space without passing through two busy areas. Plans to remove walls in the communal space were later revised to preserve the architectural significance of the building. The mezzanine, originally placed on the left side of the communal space, was moved to the centre due to ceiling pitch constraints that would have created unusable space. It was also extended to the quiet zone, allowing individuals to bypass the communal area and access the quiet room via the lift, which was subsequently extended to the mezzanine for improved accessibility. In the café, the bar was relocated from the corner to the centre to create better separation between seating areas and improve circulation. Additional accessibility features were incorporated, including a new lift on the East/West side of the building near the main entrance and the reinstatement of a connecting bridge from Cardean House for local access. Lastly, signage was added at the main entrance to help visitors easily locate the space.

Key Moves for The Engine House

Addition of Mezzanine (Wilkins, 2024)

(NOT TO SCALE, for visual purposes only)

Early Draft Stages of Sun Room Design
Secondary Draft Stages of Sun Room Showing Layout Changes
The Development of the Communal Organic Bespoke Element - Sections Showing the Different Designs Leading to the Change (Wilkins, 2024)
Final Layout Design of The Sun Room
Removing the Carpet (Wilkins, 2024)
Addition of Waypointing Signage (Wilkins, 2024)
Reistating Connecting Bridge (Wilkins, 2024)

Original Position of the Mezzanine at the Left Side of the Building (Wilkins, 2024)

Original Position of Cafe Bar in Draft Drawing of Space (Wilkins, 2025)

(NOT TO SCALE, for visual purposes only)

SPACE VISUALS

of Communal Space Showing Bespoke Element and How the Space May be Used (Wilkins, 2025)

Draft Demolition Plan Showing New Placement of Mezzanine (Wilkins, 2024)

New Position of Cafe Bar In Final Development Sheets (Wilkins, 2025)

Visual
Visual of Mezzanine Space Showing Private Pods and Choice of Seating (Wilkins, 2025)
Visual of Cafe Space Showing Bespoke Element and People Using the Facilities (Wilkins, 2025)
Visual of Quiet Space Showing Bespoke Organic Element, Pods and Mezzanine Above (Wilkins, 2025)

TASK 3: Specification & Sustainability Statement

SUSTAINABILITY STATEMENT

This Major Project is centred on the design and development of a dedicated mental health space within the historic Engine House in Swindon. The primary objective is to create a restorative, safe, and inclusive environment that actively supports mental well-being through thoughtful and sustainable design principles. By carefully selecting materials and adopting responsible sourcing methods, the project aims to foster a sense of tranquillity, comfort, and sustainability within the space with a low carbon footprint. Beyond simply choosing sustainable materials, it is equally important to consider the approach to sourcing. Ethical procurement ensures that materials are obtained responsibly, minimising environmental impact while supporting local businesses and communities. This approach aligns with both ecological and social sustainability goals, reinforcing the project’s commitment to a conscientious design process.

To reduce the project’s carbon footprint and contribute to the local economy, materials will be sourced from nearby suppliers who prioritise sustainability and ethical production. Locally sourced materials will not only lower transportation emissions but also support businesses that uphold environmentally responsible practices.

One such supplier is Ecomerchant, a Swindon-based company that specialises in ethically sourced, sustainable building materials (Ecomerchant, 2025). Their product range includes natural lime plasters and eco-friendly paints, such as timber stains and finishes. These materials enhance the aesthetic and tactile qualities of the space while also contributing to healthier indoor air quality by reducing the presence of harmful chemical emissions.

Images from (Ecomerchant, 2025).

Another key supplier is Prestige Wood and Reclamation, a company that repurposes salvaged timber for a variety of uses, including flooring, beams, and bespoke design elements (Prestige Wood and Reclamation, 2025). Reclaimed wood is an integral part of preserving the character of the Engine House while reducing waste and the demand for newly harvested materials. Prestige Wood and Reclamation will provide reclaimed wood for bespoke design features, such as the cladding on the sides of the pods, thereby lowering the project’s overall carbon footprint while maintaining a connection to the building’s industrial heritage.

Images from (Prestige Wood and Reclamaition, 2025).

Additionally, Ecological Building Systems will supply eco-friendly building solutions, including sustainable soundproofing materials designed to improve acoustics while promoting energy efficiency by choice of material and innovative design (Ecological Building Systems, 2025). By incorporating these products, the project will create a low-energy,high-performance indoor environment that prioritises comfort and sustainability.

Images from (Ecological Building Systems, 2025).

Furniture and interior finishes will be chosen based on their ethical and environmental impact. The focus will be on using low-VOC materials, such as paints and adhesives, to improve indoor air quality and create a healthier environment. VOCs contribute to indoor air pollution, which can have adverse effects on mental and physical health. By selecting low-emission finishes, the space will actively promote well-being while reducing its environmental impact.

Sustainability will be deeply embedded in every aspect of the project to ensure the space is both environmentally responsible and beneficial to mental well-being. Several key strategies will be implemented to achieve these goals.

Firstly, preserving existing materials will play a vital role in reducing waste and environmental impact. The original timber flooring will be retained, eliminating the need for additional materials and significantly reducing waste. This not only maintains the building’s historical integrity but also contributes to the overall sustainability of the project. Additionally, reclaimed and recycled materials will be used throughout the space to further reinforce its sustainable ethos. For instance, recycled fabric will be incorporated into bespoke upholstery and soft furnishings, reducing waste while adding character and uniqueness to the design. Biophilic design elements will also be integrated to enhance users’ connection to nature, which further improves mental well-being. The use of natural materials such as wood, stone, and plant-based textiles will create a calming atmosphere. A particularly innovative feature will be the plant-covered roof on the pods in the quiet area, which will provide a visual and sensory connection to nature while improving air quality and insulation.

Engine House in Early 2000s. (Historic England, 2025)

The selection of materials will be guided by their ability to create a peaceful and restorative atmosphere while also ensuring durability and functionality. Soft, natural textures will be prioritised to promote relaxation. Materials such as wood, cork, and wool-based acoustic panels will be used throughout the space to create a warm and inviting environment. Bamboo has been specifically chosen for bespoke elements due to its strength, sustainability, and natural aesthetic (Moso Bamboo Surfaces, 2025). As a rapidly renewable resource, bamboo provides an environmentally friendly alternative to traditional hardwoods while maintaining durability and versatility. Acoustic considerations will be central to the design, given the importance of sound management in mental health spaces. Sound-absorbing materials will be used to create a tranquil atmosphere, reducing noise and enhancing privacy. The bespoke bamboo panels will contribute to this by offering excellent acoustic properties, while the quiet room will feature recycled fabric lining on the interior of the element to provide an additional layer of soundproofing.

Maximising natural light will be another fundamental aspect of the design. Exposure to natural light improves mood and well-being, making it a key element in creating a positive and uplifting environment. Large windows and strategically positioned openings will allow daylight to flood the space, reducing the need for artificial lighting and supporting energy efficiency.

Bespoke Pod Plant Roof. (Wilkins, 2025)
Forbo Thatch Carpet Tile (Forbo, 2024).
Bamboo (Moso Bamboo Surfaces, n/a).
Reclaimed Wood (Prestige Wood and Reclamation, n/a).
Recycled Fabric (Ian Mankin, 2025). Cork (SPD UK, 2025).
Bespoke Element Using Recycled Upholstery. (Wilkins, 2025)

Muse High Back Acoustic Seating (BT Office, n/a).

Alongside creating a calming environment, the project will prioritise functionality and longevity in material and product selection. Ergonomic and adaptable furniture will be specified to accommodate a wide range of users with different needs. By incorporating adaptable seating arrangements and ergonomic designs, the space will ensure comfort and inclusivity for all visitors. Non-toxic, durable finishes will be selected to maintain the integrity of materials over time while safeguarding the health and well-being of occupants. This ensures that the space remains safe, sustainable, and resilient in the long term.

A core aspect of the project is collaboration with local artists and suppliers to create a space that embodies a strong sense of community and local craftsmanship. By integrating locally made elements, the design will reflect Swindon’s cultural identity and celebrate the skills of local craftspeople. Furthermore, accessibility and inclusivity will be fundamental to the project. Every aspect of the space will be designed to ensure it is welcoming and usable for individuals of all abilities, aligning with universal design principles. By removing barriers and enhancing accessibility, the project reinforces its commitment to inclusivity and social sustainability.

By prioritising ethical sourcing, sustainable materials, and biophilic design principles, this project seamlessly integrates well-being with historical preservation. Through mindful selection, responsible procurement, and energy-efficient solutions, the mental health space at the Engine House will provide a restorative and inclusive environment while honouring the rich heritage of the building. This holistic approach ensures that sustainability is not only a guiding principle but also a tangible and impactful feature of the space. By fostering an environment that is both restorative and environmentally conscious, the project sets a precedent for future designs that place well-being, sustainability, and historical integrity at the forefront.

EXAMPLE MATERIALS

BAMBOO

Bamboo is an excellent material choice for bespoke elements within the space due to its durability, strength, and aesthetic appeal. It provides a warm and natural texture that contributes to a calming and restorative environment, aligning with biophilic design principles.

Suitability: Bamboo is highly versatile, making it an ideal material for various bespoke features such as wall panels, privacy screens, and furniture. Its natural grain and smooth finish enhance the overall aesthetic, adding a contemporary yet organic feel to the space. Additionally, bamboo has excellent acoustic properties, which help absorb sound and create a more peaceful atmosphere - an essential factor in mental health environments.

Sustainability: Bamboo is one of the most sustainable materials available due to its rapid growth rate and ability to regenerate without replanting. Unlike hardwoods, which can take decades to mature, bamboo can reach full maturity in just three to five years. Furthermore, it absorbs large amounts of carbon dioxide and produces significant oxygen, contributing to a lower environmental impact. The use of bamboo in the project helps reduce reliance on less sustainable materials while ensuring longevity and minimal maintenance.

Profiled board type A – 38slat/12gap/9deep – 2400x1200mm (Moso Bamboo Surfaces, 2025).

Kitchen Cool - Slatted bamboo doors (Moso Bamboo Surfaces, 2020).

Bamboo breakout spaces (Moso Bamboo Surfaces, 2019).

Upholstery plays a crucial role in enhancing comfort and warmth within the space, making it an important design element. Recycled fabric has been selected for upholstery on bespoke furniture pieces to align with the project’s sustainability goals while maintaining a high level of comfort and aesthetic appeal.

Suitability: Soft furnishings contribute significantly to the overall sensory experience of the space, offering tactile comfort that enhances relaxation. The use of recycled fabric ensures that upholstery remains durable and resistant to wear and tear, making it suitable for high-use areas such as seating in quiet rooms and communal spaces. Additionally, upholstery in muted, natural tones complements the biophilic design approach, reinforcing a sense of calm and connection to nature.

Sustainability: Choosing recycled fabric reduces waste by repurposing materials that would otherwise end up in landfills. Many recycled textiles are made from post-consumer or post-industrial fibres, which significantly lower water and energy consumption compared to producing new fabrics. Additionally, opting for recycled fabric supports circular economy principles, promoting resource efficiency while reducing carbon emissions associated with textile production.

LIME PLASTER FINISH - PILLARS

The mezzanine level of the Engine House requires a durable yet breathable finish for its pillars to ensure structural integrity while complementing the historic nature of the building. Lime plaster has been selected due to its natural properties, sustainability, and ability to regulate indoor air quality.

Suitability: Lime plaster is highly suitable for use on the mezzanine pillars as it is breathable, allowing moisture to pass through and preventing damp-related issues. This characteristic is particularly important in historic buildings like the Engine House, where traditional materials such as lime were originally used. The finish also provides a smooth, elegant texture that blends seamlessly with both the old and new architectural elements of the space.

Sustainability: Unlike cement-based plasters, which have a high carbon footprint due to energy-intensive production processes, lime plaster is a more eco-friendly alternative. Lime absorbs carbon dioxide from the atmosphere during the curing process, making it a carbon-neutral material. Additionally, lime plaster is long-lasting and requires minimal maintenance, further contributing to its sustainability credentials.

Lime Green Ultra - Natural Insulating Lime Plaster Base Coat For Rendering & Plastering - 15 Litres (Ecomerchant, 2025).
Lime Green Natural Finish Lime Render - All Colours - 22Kg (Ecomerchant, 2025).
Arran Fabric (Ian Mankin, n/a).
Denny (Camira, 2025).
Staffa (Camira, 2025) .

LINOLEUM FLOORING (FORBO) - MEZZANINE

The mezzanine level requires a flooring material that is durable, easy to maintain, and contributes to a quiet, comfortable environment. Linoleum has been selected due to its resilience, acoustic properties, and sustainability.

Suitability: Linoleum provides a smooth, seamless surface that is easy to clean and maintain, making it ideal for a high-traffic area like the mezzanine. It is also naturally slip-resistant, ensuring safety for users. Additionally, linoleum has excellent acoustic properties, helping to reduce impact noise and creating a more peaceful environment - an important consideration for a mental health-focused space. The material is available in a range of natural tones and textures, allowing it to complement the historic and biophilic design of the space.

Sustainability: Linoleum is made from natural, biodegradable materials, including linseed oil, wood flour, and cork dust, making it a highly sustainable flooring option. It has a long lifespan, reducing the need for frequent replacements and minimising material waste. For this project, linoleum will be sourced from Forbo, a company known for its commitment to sustainable production and environmentally friendly flooring solutions. Linoleum products are carbon-neutral throughout their entire production process, from raw material sourcing to manufacturing.

4183 Pistachio (Forbo, 2025).
98507T4315 blue shaped wood (Forbo, 2025).
90706T4315 floral halo (Forbo, 2025).

TASK 4: Regulations & Best Practice

BUILDING REGULATIONS

This proposal ensures full compliance with the relevant sections of the UK Building Regulations to create a safe, accessible, and user-friendly environment. The design has been carefully considered to integrate the requirements of Part M (Access to and Use of Buildings), Part B (Fire Safety), and Part K (Protection from Falling, Collision, and Impact).

The regulations require:

PART M - ACCESS TO AND USE OF BULDINGS

Part M ensures that buildings are accessible and inclusive for all users, including people with disabilities. It covers:

• Entrance and circulation spaces: Providing step-free access, appropriately sized doors, and clear passageways.

• Facilities for disabled users: Including wheelchair-accessible toilets, seating arrangements, and lowered counters.

• Visual and tactile elements: Ensuring appropriate contrast between surfaces, signage, and lighting to aid visually impaired users.

• Accessible movement: Ensuring adequate turning space and ramp gradients for wheelchair users.

Extract from Part M - Approach routes, Referring to Accessible Ramps. (GOV, 2025)

Extract from part M - Communal Entrances.

Extract from Part M - Toilets within a Recreational Space. (GOV, 2025)

Extract from Part M - Communal Passenger Lifts. (GOV, 2025)

Extract from Regulations Sheet

Part M - Communal Door Width (mm). (Wilkins, 2025)

Extract from Regulations Sheet

Part M - Wheelchair Turning Circles (mm). (Wilkins, 2025)

In designing the building, careful consideration was given to the requirements of UK Building Regulations Part M to ensure accessibility and inclusivity for all users. The gallery space is designed to accommodate wheelchair users, with varying board heights for accessible viewing and setup. The workshop features multiple seating and table heights to suit diverse needs, including wheelchair users. All stairways exceed the minimum headroom clearance of 2m and have widths exceeding 2m to allow for easy movement, with landings maintaining an unobstructed length of at least 1200mm, in accordance with Part M. Handrails on all stairs also meet regulatory requirements. Accessible toilets are provided within the space, alongside unisex facilities, and sufficient turning space for wheelchairs in front of all lifts and toilets. The lift carriage size adheres to Part M requirements, ensuring accessibility, while no communal entrances or approach routes are narrower than 900mm. All communal doors are automatic, equipped with push buttons for ease of use.

Extract from Sanitary Specification showing Elevations of Disabled Bathroom Adhereing to Part M (Wilkins, 2025)

In the utility space, counters are designed for wheelchair accessibility, featuring multiple knee recesses and a maximum height of 775mm. The café bar counter has appropriate contrast for the visually impaired, with a lowered section and knee recess for wheelchair users. Seating options cater to neurodivergent individuals, offering sensory-friendly and quiet areas to prevent overwhelming experiences, while tables and chairs of varying heights ensure accessibility for all users. The communal bridge entrance exceeds the minimum width of 900mm for an approach route, and multiple Changing Places toilets comply with Part M regulations for recreational buildings. Flooring throughout the space has a high slip resistance, with timber rated at 60 PTV (minimum requirement of 39) and linoleum in the pods and mezzanine rated at R9. Fire safety signs are designed with adequate contrast for readability. All doors, including those leading to and from the kitchen, are fitted with footplates for easy opening, and multiple rest points are strategically placed to enhance accessibility. By integrating these features, the building ensures that all individuals, regardless of mobility or sensory needs, can comfortably and safely use the space in compliance with UK Building Regulations Part M.

PART B - FIRE SAFETY

Part B focuses on minimising fire risks and ensuring safe evacuation in case of an emergency. It includes:

• Means of escape: Ensuring safe exit routes with regulated travel distances.

• Fire-resistant materials: Using fire-rated doors, walls, and stairways to contain and slow down fire spread.

• Fire detection and alarms: Requiring smoke alarms, fire alarms, and emergency lighting.

• Signage and emergency lighting: Providing clearly marked escape routes and lighting in case of power failure.

Extract from Part B - Occupant Number in a Recreational Space. (GOV, 2025)

Extract from Part B - Number of Escape Stairs in a Mixed Use Building. (GOV, 2025)

Extract from Part B - Maximum Travel Distance to Fire Escape. (GOV, 2025)

PART B - INCORPORATION

Extract from Regulations Sheet Part B - Route to Fire Escape in Quiet Room. (Wilkins, 2025)

Extract from Regulations Sheet Part BEmergency Lighting in Stairway and Lift. (Wilkins, 2025)

Extract from Regulations Sheet Part B - Appropriate Fire Exit Sign at Contrast. (Wilkins, 2025)

In compliance with UK Building Regulations Part B, fire safety measures have been implemented throughout the building to ensure the safety of all occupants. All stairways have a minimum width of 2m and are equipped with mandatory emergency lighting to aid visibility and safe navigation in case of fire. Refuge points with wheelchair space and clear signage are provided at all staircases to ensure accessibility during emergencies. Escape routes within the building do not exceed the maximum travel distance of 45m for storeys with more than one exit or stairway. A service lift has been installed to accommodate wheelchair users in the event of an emergency evacuation.

All escape staircases feature dedicated emergency lighting to provide clear visibility during evacuations. The Sun Room has separate fire escapes for each area, in accordance with Part B’s guidelines for mixed use buildings. Additionally, all entrance doors to The Sun Room are designed as fire doors for enhanced safety. The designated assembly point in the event of a fire is located in the car park outside the main entrance. Numerous smoke alarms have been installed throughout The Sun Room, ensuring compliance with Part B regulations. Fire signage is designed with high contrast for easy identification, and a dedicated lift exit from the mezzanine is available for emergency evacuations. By incorporating these fire safety measures, the building meets the necessary requirements to provide a secure and accessible environment for all users.

PART K - PROTECTION FROM FALLING, COLLISION AND IMPACT

Part K addresses safety risks related to falls, collisions, and glazing by regulating:

• Staircases and balustrades: Setting standards for stair dimensions, handrails, and guarding where there is a risk of falling.

• Glazing safety: Requiring visible manifestations on glass doors and partitions to prevent accidental collisions.

• Slip resistance: Ensuring floor surfaces minimise slip hazards, particularly in public or high-traffic areas.

Extract from Part K - Permanent Glazing and Alternate Methods. (GOV, 2025)

Extract from Regulations Sheet Part B - Service Lift for Use in the Event of a Fire. (Wilkins, 2025)
Fire Assembly Point in Main Entrance Car Park. (Wilkins, 2025)

Extract from Part K - Critical Locations of Required Glazing. (GOV, 2025)

Extract from Part K - Permanent Glazing and Alternate Methods. (GOV, 2025)

PART K - INCORPORATION IN THE SUN ROOM

Example Method of Both Glass and Alternative Manifestation on

The design also incorporates UK Building Regulations Part K to ensure safety in relation to protection from falling, collision, and impact. All staircases are fitted with appropriate guarding to prevent falls, and slip-resistant materials have been applied to each step to enhance safety. The timber flooring used throughout the space has a slip resistance rating of 42 PTV, in compliance with Part K, while the Forbo linoleum flooring in the pods meets category R9 for slip resistance.

Visual of Lift in Quiet Space Showing Alternative Method of Manifestation. (Wilkins, 2025)
Pods. (Wilkins, 2025)

Large areas of glass, such as those used in the lift, incorporate alternative methods of manifestation by interrupting the glass with metal mullions, ensuring visibility and reducing the risk of accidental collision. Additionally, a contrast strip is applied at both the top and bottom of the glass to further improve visibility. Etched manifestations will be applied to the glass on the pod doors to create differentiation from open spaces, ensuring compliance with Part K regulations. These etched designs will be visible from both sides of the glass to meet safety requirements. The pods also incorporate alternative manifestation methods, such as mullions, to further enhance visibility and differentiation. By implementing these measures, the building ensures a safe and user-friendly environment that aligns with UK Building Regulations Part K.

BEST PRACTICE

WAYFINDING STRATEGY EXAMPLES

Accessible Grade 1 Braille Signage which States “The Sun Room Second Floor”.

Texture of Wayfinding Pathway - Raised and Tactile for Accessibility

Wayfinding strategies, such as colour contrasting visuals and clear signage, are crucial in making this mental health space accessible, inclusive, and stress-free. The Sun Room aims to serve a diverse range of people, including older adults, young people, students, exisiting employees, individuals with disabilities, those with mental health challenges, neurodivergent individuals, and those who are visually impaired or deaf.

Many visitors may already be experiencing stress or cognitive difficulties, and a confusing layout can add to their distress. Clear and intuitive wayfinding reduces this burden, helping people navigate confidently For older adults with dementia, visual cues such as colour-coded pathways and landmarks provide reassurance and prevent disorientation. Neurodivergent individuals benefit from structured, predictable navigation, minimising sensory overload. Visually impaired users need tactile pathways and braille signage, while deaf individuals benefit from well-lit visual cues and symbols.

By implementing inclusive wayfinding, mental health spaces become welcoming and accessible, allowing all individuals to use them comfortably. This creates a safe and supportive environment where people can focus on their well-being rather than navigating unnecessary obstacles.

Clear Wayfinding Signage to The Sun Room. (Wilkins, 2025)
Outside Building
Colour Contrasting, Tactile Wayfinding Pathway on the Floor of the Mezzanine to Guide People to Each Space. (Wilkins, 2025)
Main Entrance

TASK 5: Professional Profile

BRANDING ANALYSIS

Design companies play a crucial role in shaping how businesses present themselves through branding, signage, and commercial interiors. This report examines Benchmark Designs Ltd and Signbox, two UKbased design firms that specialise in signage and wayfinding but take contrasting approaches. While Benchmark Designs Ltd focuses on bespoke physical branding and high-quality craftsmanship, Signbox is known for technology-driven and sustainable architectural signage solutions. By comparing their branding, identity, and unique offerings, this analysis highlights how different companies cater to diverse client needs within the design industry.

BENCHMARK DESIGNS LTD

Benchmark Designs Ltd is a company that specialises in commercial interior branding, offering tailored solutions for businesses looking to enhance their corporate identity. Their services include custom-built branding installations, feature walls, and wayfinding signage that integrate seamlessly into office, retail, and corporate spaces. With a strong focus on bespoke craftsmanship, Benchmark ensures that each project is uniquely designed to reflect the client’s brand identity. Their expertise lies not only in signage but in creating a cohesive branded environment within physical spaces (Benchmark, n/a).

In terms of branding and identity, Benchmark Designs Ltd presents itself as a practical, results-driven company that prioritises functionality and high-quality materials. Their company colours, blue, grey, and white convey professionalism, trust, and clarity, reinforcing their corporate-focused approach. Their logo is a clean and simple wordmark, reflecting their structured and no-nonsense branding philosophy. While Benchmark does not have a widely known motto, however they provide many design quotes to show their ethos as a design company.

Examples of Benchmark’s design quotes

Waterfront Street Kitchen & Bar, Excel London. (Benchmark Designs Ltd, 2025)

What makes Benchmark Designs Ltd stand out is their commitment to customisation and expert interior integration. Unlike companies that focus solely on external signage, Benchmark blends branding within the physical environment, ensuring a seamless transition between signage and interior design. Their work is distinguished by durability, premium materials, and a strong emphasis on tailored aesthetics, making them a trusted choice for businesses seeking unique and high-quality branding solutions.

A great example of this is the refurbished EAT Central at the University of Sussex. Benchmark Designs Ltd seamlessly integrates branding with the physical environment, creating a space that feels both dynamic and welcoming. Drawing inspiration from the vibrant energy of Brighton & Hove, the design incorporates materials, textures, and spatial elements that naturally reflect the university’s identity. Rather than imposing branding onto the space, it is subtly woven into its very fabric, ensuring an authentic and immersive experience.

This extends to thoughtful design choices, such as the use of recycled materials, including ocean plastics, reinforcing the university’s sustainability ethos.

Colour plays a key role in shaping the atmosphere, with a carefully curated palette that enhances the lively, social nature of EAT Central. Bright, inviting tones energise the space, while natural and sustainable materials strengthen its connection to the university’s eco-conscious vision. The result is a space where branding is not just seen but felt - creating a cohesive and engaging environment where students can gather, eat, and connect.

All Images: EAT Central, University of Sussex. (Benchmark Designs Ltd, n/a)
The Chairman’s Lounge Plaza Development for The Leicester Tigers. (Spedding, n/a)
EAT Central - Gallery

SIGNBOX

Signbox takes a more technology-driven approach to signage and branding, setting itself apart through its focus on digital and architectural signage solutions. The company specialises in integrating signage within modern built environments, offering LED displays, interactive wayfinding systems, and smart signage solutions. Their work is particularly appealing to businesses that require innovative branding with a contemporary, high-tech aesthetic. (Signbox, n/a)

Signbox positions itself as an innovative and forward-thinking company, embracing both digital transformation and sustainability. Their company colours, pink, green, blue and grey, symbolise modernity, creativity, and efficiency, aligning with their cutting-edge approach. Their logo follows a minimalist, geometric design, reinforcing their sleek and sophisticated brand identity. Signbox operates under the tagline “Smart Solutions in Signage” (Signbox, n/a), which encapsulates their ethos of innovation, sustainability, and digital integration in commercial branding.

What sets Signbox apart from traditional signage companies is their pioneering work in digital and interactive signage. They are at the forefront of incorporating smart technology, LED displays, and energy-efficient materials into their designs. Furthermore, their strong commitment to eco-friendly solutions and architectural integration ensures that their signage not only enhances corporate identity but also aligns seamlessly with modern architectural spaces. Their ability to combine functionality, sustainability, and cutting-edge technology makes them a leader in the field of contemporary signage.

Harbour Exchange, Canary Wharf, London for MGPA. (Signbox, 2019)
Signbox’s Website, Case Studies. (Signbox, 2025)

A great example of Signbox’s approach to integrating signage with modern built environments can be seen in their work for Landsec’s Headquarters. Signbox expertly captures the essence of the space’s branding by blending smart technology and sustainable materials, creating an environment that is both dynamic and cohesive.

Their use of interactive wayfinding systems and digital signage displays provides an intuitive, modern experience, while the incorporation of LED lighting and eco-friendly materials ensures both energy efficiency and sustainability. Rather than simply adding branding to the space, Signbox integrates it seamlessly into the architecture, allowing the signage to reflect the building’s identity and ethos. With modular systems and smart technology integration, Signbox ensures the signage evolves with the space, capturing its branding in a way that is both functional and visually aligned with the building’s design.

This approach creates an environment where branding is naturally woven into the fabric of the space, enhancing its atmosphere and reinforcing the overall vision.

While both Benchmark Designs Ltd and Signbox operate in the branding and signage industry, their approaches are distinctly different. Benchmark Designs Ltd prioritises bespoke, handcrafted solutions, ensuring that branding is seamlessly incorporated into interior spaces. Their focus on high-quality materials and tailored designs makes them an ideal choice for businesses seeking a traditional, physical presence in their branding. In contrast, Signbox embraces digital innovation and architectural integration, offering technology-driven solutions that appeal to modern businesses looking for interactive and high-tech signage. Their emphasis on sustainability and cutting-edge materials makes them a leader in the evolving world of digital branding. A key difference between the two companies is in their branding identity. Benchmark’s blue, grey, and white palette conveys a sense of reliability and professionalism, while Signbox’s pink, green, blue and grey aesthetic reflects modernity and innovation. Additionally, Benchmark’s focus on craftsmanship contrasts with Signbox’s embrace of digital transformation and sustainability.

All Images: Landsec, London. (Signbox, 2020)
Landsec - Gallery

PERSONAL

LOGO DESIGN

BUSINESS CARD

ONLINE PLATFORMS

ABOUT SKILLS

I am a passionate and creative junior interior designer with a strong focus on well-being and biophilic design. Through placements at A’Bear & Ball and Benchmark Designs Limited, I have gained hands-on experience in both architecture and interior design, developing a deep understanding of the industry.

I am proficient in AutoCAD, Revit, SketchUp, InDesign, Photoshop, and Adobe Express, with ongoing training in Unreal Engine 5. Currently, I am collaborating with Historic England on a major project at the Engine House, addressing real-world design challenges while preserving historical significance. I am eager to apply my skills to innovative projects that enhance spaces and have a positive impact on people’s lives.

AutoCAD

Revit

Sketchup

Enscape

Adobe Creative Suite

Material/Finishes Selection

Space Planning

Furniture & Fixture Selection

Bespoke Element Design

Colour Theory

Communication

Attention To Detail

Collaboration

Presenting

PORTFOLIO

MILLIE WILKINS

INTERIOR DESIGNER

DESIGN EXPERIENCE

BENCHMARK DESIGNS LTD

2019

A’BEAR & BALL ARCHITECTS

UNIVERSITY OF SOUTH WALES

2022-2025

EDUCATION

UNIVERSITY OF SOUTH WALES

2022-2025

FARINGDON COMMUNITY COLLEGE

SIXTH FORM

2020-2022

FARINGDON COMMUNITY COLLEGE

GCSE 2015-2020

CONTACT

LINKEDIN

EMAIL

PHONE

www.linkedin.com/in/millie-wilkins millie.wilkins@live.co.uk

07500362915

• Created bespoke designs and built a professional portfolio.

• Presented design concepts to the company director, receiving and applying valuable feedback.

• Worked on a bespoke project, gaining a fundamental understanding of design, including site analysis.

• Participated in the Architect-lead design and the construction process of my own house.

• Presented design concepts to companies including Orange Box, IKEA, and Paramount.

• Lead designer on a major project with Historic England.

• Proficient in AutoCAD and Revit.

• Strong time management and organisational skills.

• Excellent critical thinking and writing skills.

• BA (Hons) Interior Design Degree.

• Developed key design skills through live projects and hands-on experience.

• Attended networking events, building connections with industry professionals.

• Strong foundation in art, design, and psychology, with a focus on fine art and the psychology of colour, with enhanced understanding of visual aesthetics and their impact on human emotions and behaviour.

• Volunteered for multiple projects and charity events, developing strong teamwork, leadership, and organisational skills.

• Participated in design competitions, achieving winning results and refining my ability to develop innovative and creative concepts under pressure.

OTHER EXPERIENCE

BLOOMFIELDS FINE FOOD

RETAIL ASSISTANT

FARINGDON COMMUNITY COLLEGE

• Developed my attention to detail by creating clear, visually appealing signage for a retail space.

• Good customer awareness and communication skills.

• Developed leadership skills from managing a small group.

• Strong organisational skills from supervisory role, keeping track of students’ movement.

CIRENCESTER

JUDO CLUB

JUDOKA SUPERVISOR

• Excellent discipline and perseverance, consistently training to improve technique.

• Strong problem-solving skills from adapting to different opponents and strategies.

TASK 6: Reflect on Industry Engagement

EXPERIENCE OF INDUSTRY ENGAGEMENT

Participating in the live group project with USW Estates was a valuable learning experience that presented both challenges and opportunities for growth. The externally set project brief was somewhat difficult to access, particularly through Blackboard, which created initial obstacles in fully understanding the scope and expectations. Additionally, delays in receiving key resources, such as the Revit file, impacted our ability to manage time effectively. This resulted in our team taking the initiative to create the necessary file ourselves, which, while beneficial for developing problem-solving skills, also added extra work that could have been avoided with better resource allocation.

Group dynamics played a significant role in the project’s progress. At one point, the person who originally set the brief was not present, and someone else from their team stepped in. This led to some miscommunication regarding key aspects of the brief, such as budgeting. Despite these hurdles, our structured week-by-week approach proved to be advantageous. Having a specific task to focus on each week kept us organised and on track.

One of the major benefits of this structured approach was that we managed to complete our presentation slides a week early. This allowed ample time to refine our content, practise transitions, and ensure clear and professional wording for the final presentation. The additional preparation time improved our confidence and delivery when presenting to industry professionals.

Collaboration within the group was generally effective. While communication outside of lessons was minimal, in-class discussions were productive and facilitated idea generation. Working on the presentation slides collectively ensured that all group members were familiar with the content, allowing us to handle questions more effectively during the presentation.

Throughout this project, I also learnt how valuable communication is within a team. At one point, a member of my group did not complete any work for a week, which worried me as I thought they were not going to contribute. However, in the following lesson, they explained the reason for the delay and subsequently completed all their work. This experience highlighted the importance of honesty and transparency in a group setting. Clear communication is beneficial for the integrity of the team and helps to avoid unnecessary stress during collaborative work.

REFLECTION OF EXPERIENCE

Reflecting on this experience, there are several strategies that could enhance future engagement in similar projects. Improved or earlier access to essential resources, such as project files and briefs, would significantly improve time management. Ensuring that all materials are available at the start of the project can prevent unnecessary delays. While in-class discussions were effective, maintaining communication outside of lessons could improve collaboration. Utilising group chats or shared online documents for updates and feedback would be beneficial.

Also, establishing clear roles and responsibilities at the beginning of the project would help prevent confusion when team members are absent or replaced. A document outlining each person’s tasks and progress could aid in smoother transitions. Completing tasks ahead of schedule, as we did with our presentation slides, proved to be advantageous. Additionally, time management was crucial in this project, as all groups had other presentations due around the same time. Keeping on track ensured that we did not fall behind on either project. Continuing this practice while also incorporating contingency plans for

potential delays (e.g. missing resources or team members) would further strengthen project management. Lastly, Having extra time to practise the presentation was beneficial. In future projects, conducting mock presentations with peer feedback could enhance confidence and refine delivery further.

Overall, the experience of working on the USW Estates project provided invaluable insights into teamwork, industry collaboration, and project management. By implementing these strategies, future projects can be approached with greater efficiency, improved communication, and enhanced professional presentation skills.

CONCLUSION

This Professional Practice Portfolio has provided a comprehensive opportunity to develop and demonstrate key industry skills essential for a successful career in interior design. Through each task, I have deepened my understanding of ethical practice, client relationships, sustainability, regulations, and professional branding. My Major Project at the Engine House has allowed me to explore complex, real-world challenges - from creating restorative mental health spaces to ensuring accessibility and preserving historic character.

The integration of sustainable material choices, compliance with building regulations, and the application of user-centred design have reinforced the importance of a holistic approach. The live project experience with USW Estates further highlighted the value of teamwork, time management, and adaptive problem-solving in professional practice.

Developing my personal brand and professional profile has also been a valuable process, enabling me to communicate my identity as a designer clearly and confidently. This portfolio represents the culmination of both creative exploration and practical application, and it has prepared me to transition from student to emerging professional with a clear sense of direction and purpose.

Moving forward, I aim to continue refining my skills, expanding my industry knowledge, and contributing positively to design projects that support well-being, inclusivity, and sustainability.

Bibliography

Baker, S (2020). The Engine House, Fire Fly Avenue, Swindon. Available at: https://artsandculture.google.com/asset/the-engine-house-fire-fly-avenue-swindon-steve-baker-historic-england/swGF02HhusSqfQ [Accessed 24 March 2025]

Benchmark Designs Ltd, (2018). Benchmark Designs Ltd Logo. Available at: https://www.benchmark-designs.co.uk/ [Accessed 20 March 2025]

Benchmark Designs Ltd, (2022). Design For The Present, With An Awareness Of The Past, For A Future Which Is Unknown. Available at: https://www.instagram.com/benchmarkbdl/ [Accessed 20 March 2025]

Benchmark Designs Ltd, (2022). We Strive to be Innovative. Available at: https://www.instagram.com/ benchmarkbdl/ [Accessed 20 March 2025]

Benchmark Designs Ltd, (2023). Design is Visual Thinking. Available at: https://www.instagram.com/ benchmarkbdl/ [Accessed 20 March 2025]

Benchmark Designs Ltd, (2025). EAT Central, University of Sussex. Available at: https://www.benchmark-designs.co.uk/projects/eat-central-university-of-sussex/ [Accessed 20 March 2025]

Benchmark Designs Ltd, (2025). The Chairman’s Lounge Plaza Development for the Leicster Tigers. Available at: https://www.benchmark-designs.co.uk/projects/thechairmanslounge-leicestertigers/ [Accessed 20 March 2025]

Benchmark Designs Ltd, (2025). Waterfront Street Kitchen & Bar, Excel London. Available at: https:// www.benchmark-designs.co.uk/projects/excel-waterfrontstreetkitchenbar/ [Accessed 20 March 2025] Benchmark Designs Ltd, (n/a). Benchmark Designs Ltd Logo. Available at: https://www.benchmark-designs.co.uk/ [Accessed 20 March 2025]

Benchmark Designs Ltd, (n/a). Transforming Your Projects. Available at: https://www.benchmark-designs.co.uk/ [Accessed 20 March 2025]

Bourne, J.,(1846). Coloured lithograph showing Engine House at Swindon. Available at: https://collection.sciencemuseumgroup.org.uk/objects/co65740/coloured-lithograph-showing-engine-house-at-swindon [Accessed 20 March 2025]

British Institute of Interior Design, (2021). BIID Code of Conduct. Available at: https://biid.org.uk/sites/ default/files/2024-07/BIID%20Code%20of%20Conduct%20-%201st%20April%202021.pdf [Accessed 24 March 2025]

BT Office Furniture, (2025). Muse High Back Acoustic Seating. Available at: https://btoffice.co.uk/product/muse-high-back-acoustic-seating/ [Accessed 20 March 2025]

Building Centre, (2013). Engine House, Swindon. Available at: https://www.buildingcentre.co.uk/product_finder/company/selectaglaze-ltd/article/engine-house-swindon [Accessed 20 March 2025]

Camira, (2025). EJ185 Staffa. Available at: https://www.camirafabrics.com/en-uk/contract/fabrics/ cara?srsltid=AfmBOorahBM_2AnBHCMhp7_0gJPM4Adw1y-D1ZuD3dXmSNczPJhGjRDu [Accessed 20 March 2025]

Camira, (2025). EJ196 Denny. Available at: https://www.camirafabrics.com/en-uk/contract/fabrics/ cara?srsltid=AfmBOorahBM_2AnBHCMhp7_0gJPM4Adw1y-D1ZuD3dXmSNczPJhGjRDu [Accessed 20 March 2025]

Ecological Building Systems, (2025). Diasen Diathonite Screed. Available at: https://www.ecologicalbuildingsystems.com/product/diathonite-screed [Accessed 20 March 2025]

Ecological Building Systems, (2025). Ecological Building Systems Logo. Available at: https://www. ecologicalbuildingsystems.com/?srsltid=AfmBOooaSE-5ALzChE42hmfznVwLp-h8gtTI2oWeAWzhK1DoSN--5Gnz# [Accessed 20 March 2025]

Ecological Building Systems, (2025). Solutions. Available at: https://www.ecologicalbuildingsystems. com/?srsltid=AfmBOooaSE-5ALzChE42hmfznVwLp-h8gtTI2oWeAWzhK1DoSN--5Gnz# [Accessed 20 March 2025]

Ecomerchant, (2025). Baumit DivinaReneo White One Coat, High Coverage, Solvent Free, Vapour Open, Internal, Silicate Paint. 5 & 14 Litre. Available at: https://www.ecomerchant.co.uk/?srsltid=AfmBOoo5Z5oX4p1IQRdevHHYjYCswsPq16rDhjBKKFrMR6EdNlm0WA-E [Accessed 20 March 2025]

Ecomerchant, (2025). Ecomerchant Logo. Available at: https://www.ecomerchant.co.uk/?srsltid=AfmBOoo5Z5oX4p1IQRdevHHYjYCswsPq16rDhjBKKFrMR6EdNlm0WA-E [Accessed 20 March 2025]

Ecomerchant, (2025). Ecomerchant. Available at: https://www.ecomerchant.co.uk/?srsltid=AfmBOoo5Z5oX4p1IQRdevHHYjYCswsPq16rDhjBKKFrMR6EdNlm0WA-E [Accessed 20 March 2025]

Ecomerchant, (2025). Lime Green Natural Finish Lime Render - All Colours - 22K Available at: https:// www.ecomerchant.co.uk/lime-plaster-natural-finish.html?srsltid=AfmBOorVrFCRgR0hE9UTqA3nX3yKc73rKPbbi8gJ7Ayx-RvQ4bqmbxq6 [Accessed 20 March 2025]

Ecomerchant, (2025). Lime Green Ultra - Natural Insulating Lime Plaster Base Coat For Rendering & Plastering - 15 Litres. Available at: https://www.ecomerchant.co.uk/ultra-natural-insulating-lime-plaster-base-coat.html?srsltid=AfmBOopJiuEMVmMeFeXUttJS7OvK17ZMJS6GnJu4GkiaJuXgM9256iFs [Accessed 20 March 2025]

Ecomerchant, (n/a). Ecomerchant are members of the following Groups and Associations. Available at: https://www.ecomerchant.co.uk/about-us?srsltid=AfmBOormjhhH5AYxrrtjE2CURQKg_JeDwgh1BEGGp6zFKkthB0bcEmI9 [Accessed 20 March 2025]

Forbo Flooring Systems, (2025). 4183 Pistachio. Available at: https://www.forbo.com/flooring/en-uk/commercial-products/marmoleum/furniture-linoleum/furniture-linoleum/bweo0r#4183 [Accessed 20 March 2025]

Forbo Flooring Systems, (2025). 90706T4315 floral halo. Available at: https://www.forbo.com/flooring/ en-uk/commercial-products/sarlon-acoustic-flooring/sarlon-15-db-acoustic-vinyl/sarlon-15-db-graphiccolour/b8row1#90706t4315 [Accessed 20 March 2025]

Forbo Flooring Systems, (2025). 98507T4315 blue shaped wood. Available at: https://www.forbo.com/ flooring/en-gl/products/heterogeneous-vinyl/sarlon-15-db-acoustic-vinyl/sarlon-15-db-wood/bfbk5b#98507t4315 [Accessed 20 March 2025]

Forbo Flooring Systems, (n/a). Meet the Building Requirements. Available at: https://www.forbo. com/flooring/en-aa/sustainability/what-we-do/pqfwo3#:~:text=Meet%20the%20building%20requirements,or%20A%2B%20ratings%20in%20BREEAM. [Accessed 20 March 2025]

Forbo Flooring, (2025). Forbo Tessera Chroma 3610 Thatch. Available at: https://floormart.co.uk/ forbo-tessera-chroma-3610-thatch/?srsltid=AfmBOooJU-LJcXj41cPO-BapGI9vOt_qdBR5mRUTuN1YY23yX3MWFTp1 [Accessed 20 March 2025]

Gov UK, (2025). Approach Routes. Available at: https://www.gov.uk/government/publications/access-toand-use-of-buildings-approved-document-m [Accessed 20 March 2025]

Gov UK, (2025). Approved Document B (fire safety) volume 2: Buildings other than dwellings, 2019 edition incorporating 2020, 2022 and 2025 amendments collated with 2026 and 2029 amendments. Available at: https://www.gov.uk/government/publications/fire-safety-approved-document-b [Accessed 20 March 2025]

Gov UK, (2025). Approved Document K: protection from falling, collision and impact. Available at: https://www.gov.uk/government/publications/protection-from-falling-collision-and-impact-approved-document-k [Accessed 20 March 2025]

Gov UK, (2025). Approved Document M: access to and use of buildings, volume 2: buildings other than dwellings. Available at: https://www.gov.uk/government/publications/access-to-and-use-of-buildings-approved-document-m [Accessed 20 March 2025]

Gov UK, (2025). Communal Entrances. Available at: https://www.gov.uk/government/publications/access-to-and-use-of-buildings-approved-document-m [Accessed 20 March 2025]

Gov UK, (2025). Communal Passenger Lifts. Available at: https://www.gov.uk/government/publications/ access-to-and-use-of-buildings-approved-document-m [Accessed 20 March 2025]

Gov UK, (2025). Critical Locations. Available at: https://www.gov.uk/government/publications/protection-from-falling-collision-and-impact-approved-document-k [Accessed 20 March 2025]

Gov UK, (2025). Headroom for Stairs. Available at: https://www.gov.uk/government/publications/protection-from-falling-collision-and-impact-approved-document-k [Accessed 20 March 2025]

Gov UK, (2025). Maximum Travel Distances in Small Premises. Available at: https://www.gov.uk/government/publications/fire-safety-approved-document-b [Accessed 20 March 2025]

Gov UK, (2025). Number of Escape Stairs. Available at: https://www.gov.uk/government/publications/ fire-safety-approved-document-b [Accessed 20 March 2025]

Gov UK, (2025). Occupant Number. Available at: https://www.gov.uk/government/publications/fire-safety-approved-document-b [Accessed 20 March 2025]

Gov UK, (2025). Permanent Methods To Indicate Glazing, And Alternative Methods. Available at: https:// www.gov.uk/government/publications/protection-from-falling-collision-and-impact-approved-document-k [Accessed 20 March 2025]

Gov UK, (2025). Toilets within a Recreational Building. Available at: https://www.gov.uk/government/publications/access-to-and-use-of-buildings-approved-document-m [Accessed 20 March 2025]

GWR, (n/a). History of the Railways. Available at: https://www.gwr.com/stations-and-destinations/travel-inspiration/blogs/history-of-the-railways [Accessed 20 March 2025]

Historic England, (1994). Interior Search Room Floor From North West Available at: https://historicengland.org.uk/images-books/photos/item/BB94/05760 [Accessed 20 March 2025]

Historic England, (n/a). Engine House in Early 2000s. [Unpublished]

Historic England, (n/a). Swindon Heritage Action Zone. Available at: https://historicengland.org.uk/advice/heritage-action-zones/swindon/ [Accessed 21 March 2025]

Ian Mankin, (2025). Crystalline Weave Fabric Moss Available at: https://ianmankin.co.uk/product/crystalline-weave-fabric/?attribute_pa_colour=moss [Accessed 20 March 2025]

Ian Mankin, (n/a). Arran Fabric. Available at: https://ianmankin.co.uk/product/arran-fabric/?attribute_pa_ colour=blue [Accessed 20 March 2025]

McCormick, J, (1986). Closure and dismantling of Swindon Works. Available at: http://www.swindonsotherrailway.co.uk/jasonm.html [Accessed 20 March 2025]

Mental Health Foundation, (n/a). Five Ways to Well-being. Available at: https://mentalhealth.org.nz/fiveways-to-wellbeing [Accessed 20 March 2025]

Moso Bambo Surfaces, (2019). Bamboo breakout spaces. Available at: https://www.mosobamboosurfaces.co.uk/bamboo-break-out-spaces/ [Accessed 20 March 2025]

Moso Bambo Surfaces, (2020). Kitchen Cool - Slatted bamboo doors. Available at: https://www.mosobamboosurfaces.co.uk/gilpin-lodges-c-o-qla-interiors-using-our-bamboo/ [Accessed 20 March 2025]

Moso Bambo Surfaces, (2025). Profiled board type A – 38slat/12gap/9deep – 2400x1200mm. Available at: https://www.mosobamboosurfaces.co.uk/product/profiled-board-type-a-38slat-12gap-9deep2400x1200mm/ [Accessed 20 March 2025]

Moso Bamboo Surfaces, (2025). Bamboo. Available at: https://www.mosobamboosurfaces.co.uk/ [Accessed 20 March 2025]

Moso Bamboo Surfaces, (2025). Moso Bamboo Surfaces. Available at: https://www.mosobamboosurfaces.co.uk/ [Accessed 20 March 2025]

Prestige Wood and Reclamation, (2025). Prestige Wood and Reclamation. Available at: https://www. prestigewoodreclamation.co.uk/ [Accessed 20 March 2025]

Prestige Wood and Reclamation, (2025). Prestige Wood and Reclamation Logo. Available at: https:// www.prestigewoodreclamation.co.uk/ [Accessed 20 March 2025]

Prestige Wood and Reclamation, (n/a). New elm parquet flooring. Available at: https://www.prestigewoodreclamation.co.uk/product-page/new-elm-parquet-flooring [Accessed March 20 2025]

Prestige Wood and Reclamation, (n/a). Reclaimed Wood. Available at: https://www.prestigewoodreclamation.co.uk/ [Accessed March 20 2025]

Signbox, (2019). Harbour Exchange, Canary Wharf, London for MGPA. Available at: https://www.signbox.co.uk/case-studies/harbour-exchange/ [Accessed 20 March 2025]

Signbox, (2020). Landsec, London. Available at: https://www.signbox.co.uk/case-studies/landsec-signage-project/ [Accessed 20 March 2025]

Signbox, (2025). Case Studies. Available at: https://www.signbox.co.uk/ [Accessed 20 March 2025]

Signbox, (2025). SignBox Logo. Available at: https://www.signbox.co.uk/ [Accessed 20 March 2025]

Signbox, (2025). SignBox. Available at: https://www.signbox.co.uk/ [Accessed 20 March 2025]

SPD UK, (2025). Cork. Available at: https://spduk.co.uk/?gad_source=1&gclid=Cj0KCQjwhYS_BhD2ARIsAJTMMQa37MgOXMVZot53j9B8Dnta_C_LHez3U1MkVAYX2c-98Vnnp5E_0EgaArG_EALw_wcB [Accessed 20 March 2025]

SwindonBoroughCouncil, (2024). The Swindon Heritage Action Zone. Available at: https://www.swindon. gov.uk/info/20181/the_swindon_heritage_action_zone/1316/the_swindon_heritage_action_zone/2 [Accessed 21 March 2025].

SwindonGov, (2024). Doing well with mental health. Available at: https://www.swindon.gov.uk/info/20228/ mental_health/1524/doing_well_with_mental_health [Accessed 20 March 2025]

Wilkins, M, (2024). Addition of Mezzanine. [Unpublished]

Wilkins, M, (2024). Addition of Waypointing Signage. [Unpublished]

Wilkins, M, (2024). Draft Demolition Plan Showing New Placement of Mezzanine. [Unpublished]

Wilkins, M, (2024). Original Position of the Mezzanine at the Left Side of the Building. [Unpublished]

Wilkins, M, (2024). Reinstating Connecting Bridge. [Unpublished]

Wilkins, M, (2024). Removing the Carpet. [Unpublished]

Wilkins, M, (2024). The Development of the Communal Organic Bespoke Element - Sections Showing the Different Designs Leading to the Change. [Unpublished]

Wilkins, M, (2025). Accessible grade 1 braille signage which states “The Sun Room Second Floor”. [Unpublished]

Wilkins, M, (2025). Bespoke Element Using Recycled Upholstery. [Unpublished]

Wilkins, M, (2025). Bespoke Pod Plant Roof. [Unpublished]

Wilkins, M, (2025). Colour contrasting, tactile wayfinding pathway on the floor of the mezzanine to guide people to each space. [Unpublished]

Wilkins, M, (2025). Example Method of Both Glass and Alternative Manifestation on Pods. [Unpublished]

Wilkins, M, (2025). Example of User in The Sun Room. [Unpublished]

Wilkins, M, (2025). Examples of activities in different Areas of the Well-being Hub. [Unpublished]

Wilkins, M, (2025). Extract from Regulations Sheet Part B - Appropriate Fire Exit Sign at Contrast. [Unpublished]

Wilkins, M, (2025). Extract from Regulations Sheet Part B - Emergency Lighting in Stairway and Lift. [Unpublished]

Wilkins, M, (2025). Extract from Regulations Sheet Part B - Route to Fire Escape in Quiet Room. [Unpublished]

Wilkins, M, (2025). Extract from Regulations Sheet Part B - Service Lift for Use in the Event of a Fire. [Unpublished]

Wilkins, M, (2025). Extract from Regulations Sheet Part M - communal Door Width (mm). [Unpublished]

Wilkins, M, (2025). Extract from Regulations Sheet Part M - Rest Points Throughout Space. [Unpublished]

Wilkins, M, (2025). Extract from Regulations Sheet Part M - Wheelchair Turning Circles (mm). [Unpublished]

Wilkins, M, (2025). Fire Assembly Point in Main Entrance Car Park. [Unpublished]

Wilkins, M, (2025). New Position of Cafe Bar in Final Development Sheets. [Unpublished]

Wilkins, M, (2025). Original Position of Cafe Bar in Draft Drawing of Space. [Unpublished]

Wilkins, M, (2025). Second Floor of Engine House. [Unpublished]

Wilkins, M, (2025). Second Waypointing Sign for The Sun Room. [Unpublished]

Wilkins, M, (2025). Texture of wayfinding pathway - raised and tactile for accessibility. [Unpublished]

Wilkins, M, (2025). Visual of Cafe Space Showing Bespoke Element and People Using the Facilities. [Unpublished]

Wilkins, M, (2025). Visual of Communal Space Showing Bespoke Element and How the Space May be Used. [Unpublished]

Wilkins, M, (2025). Visual of Lift in Quiet Space Showing Alternative Method of Manifestation. [Unpublished]

Wilkins, M, (2025). Visual of Mezzanine Space Showing Private Pods and Choice of Seating. [Unpublished]

Wilkins, M, (2025). Visual of Quiet Space Showing Bespoke Organic Element, Pods and Mezzanine Above. [Unpublished]

Wilkins, M, (2025). Waypointing Sign for The Sun Room. [Unpublished]

Wilkins, Q, (2024). Example of Entrance/Exit Door with Appropriate Signage. [Unpublished]

Wilkins, Q, (2024). Example of Suitable Fire Escape Stairway. [Unpublished]

Wiltshire and Swindon Sport, (n/a). Mental Health. Available at: https://www.wiltssport.org/physical-activity-and-mental-health [Accessed 20 March 2025]

Turn static files into dynamic content formats.

Create a flipbook