
p. 4
suna’s sauna
private project
2024

p. 10
rebuild rebild

p. 20
resilient university
AEC global teamwork thesis
2021 2022

p. 26
herzog&demeuron selected work 2023 - 2024

p. 32
writers retreat masters project 2021

p. 38
photography selected work
![]()

p. 4
suna’s sauna
private project
2024

p. 10
rebuild rebild

p. 20
resilient university
AEC global teamwork thesis
2021 2022

p. 26
herzog&demeuron selected work 2023 - 2024

p. 32
writers retreat masters project 2021

p. 38
photography selected work
Private project design and production
Building a mobile sauna from mainly reused or biodegradable materials.
An exploration into sustainable, adaptable design, this project centers on the creation of a mobile sauna built on a reclaimed bike trailer, using primarily reused and biodegradable materials.
The sauna’s structure is crafted from construction timber, reclaimed wood, and recycled metal, providing strength while reducing reliance on new materials. The walls incorporate reused polycarbonate panels and car insulation, with additional insulation provided by repurposed yoga mats. In its own small-scale way, the sauna emphasizes a commitment to sustainable material choices over conventional, resource-intensive options.
Constructed on a bike trailer, the sauna can be easily transported to various locations, inviting users to experience the beauty of the temporary while preserving the integrity of these environments.
As a building project, much learning has come from the process—not only through repeated reminders that materials have a life of their own beyond 3D models but also through the importance of proper facilities and tools for effective construction.
SIZE: 4 m2
LOCATION: Basel, Switzerland
TIME: 8 weekends (spanning over a year) Worked on the project with a fellow architect.








benches insulated with repurposed yoga mats
wood burning stove

A modest cloth sheet at the entrance creates a small changing area, lending a sense of ritual to the experience.




With semi-translucent polycarbonate walls, the sauna offers glimpses of movement within—suggesting activity but preserving a sense of privacy. From inside, users can look out, letting the colors and light of the surroundings filter softly through the walls, connecting the interior to its setting.
Inside, the compact layout provides seating for up to four, inviting a close, shared atmosphere.

Lists are used to secure the polycarbonate and cover areas where the raw use of handheld tools is most evident.

The sauna’s walls, crafted from reused polycarbonate, are secured with metal plates that hold the panels in place without penetrating the material, exemplifying a thoughtful design for disassembly.
The entrance features a simple door that rotates around a wooden rod. Upon entering, visitors are asked to bow down, creating a sense of entering a sacred space and emphasizing the transition from exterior to interior.
Master thesis Sustainable Architecture
Transforming an old farm into a sustainable settlement through a circular mindset.
A critical remark regarding the current take-make-waste culture prevailing in both the Danish building industry, as well as in the Danish lifestyle, concerning a transformation of an old farm located at a site central in the city Rebild, Denmark.
Selective demolition has been proposed by the municipality, which this thesis aims to challenge by introducing the advantages and possibilities of transforming the existing buildings into new functions, maintaining the history and integrity of the site.
The thesis proposes to develop new dwellings on the empty plot next to the existing farm, taking offset in the continued demand for housing in the municipality. The design of these new dwellings aims to push the current Danish building culture of larger and larger homes, by proposing that we can get more out of less with better-planned space and more shared facilities, which is inturn introduced in some of the existing buildings on site.
With a tectonic approach to the design, the thesis revolves around lowering the embodied energy in the new buildings, working mainly with biodegradable materials and reusing materials available from the site, sustaining a comfortable indoor climate while also proposing greener alternatives to some of the daily routines of a Dane.
SIZE: 8.400 m2
LOCATION: Rebild, Denmark
TIME: 4 months
Worked on the project with two costudents.






what do we have?

utility
integrity

material catalouge
what do we need?
tiny living sharing is caring
how do we combine it?
renovation
selective demolition
transformation
designing for dissasembly
building new - with the old
recreational area
orangery
recycle station
storage in basement
shared garden
waste water filtration plant
Housing 76 people 13 families and 12 empty-nesters
Each inhabitant having 21 m2 in average + 5,6 m2 shared heated facilities
Total shared facilities = 700 m2 heated + a large orangery + storage
common house guest rooms
workshop shared office
original diagonal road
right Between two columns tively demolished Stable kitchen and bedroom, inherent roughness and as thermal mass, together walls, ensuring a comfortable
Bottom right When opened the opposite more storage and a window occupants to let out excessive dining room, one can in place, understanding future reuse.
are reused bricks from the partly selecStable acting as a seperation between the bedroom, both decorating the space with their and uneven expression, but also acting together with the clay boards on adjacent comfortable indoor climate.
opposite way, the sliding doors reveal yet window in the bedroom wall, allowing excessive heat when going to bed. In the can see the bolts holding the clay boards understanding how these can be disassembled for


1. Claytec heavy clayboard (thermal mass)
2. 50 mm Gramitherm insulation
3. vapor barrier
4. 200 mm Gramitherm insulation
5. Hunton wood fibre board
6. wooden facade
7. reused metal sheets from site
8. three layered glass window
9.concrete pillars made of reused concrete from site
10. battens
11. base boards
12. sub floor
13. wooden flooring
14. board
15. sub roof
16. roof sheet
17. structure reused from selectively demolished larger shed.
18. sub terrace floor
19. wooden terrace floor


Due to an efficient building envelope, the new buildings have a total energy frame of 37,4 kWh / m2 / year and they, therefore, comply with the Energy frame BR18 of 38,3 kWh / m2 / year. If solar panels are added, the dwellings can reach the low energy frame of 27 kWh / m2 / year.
Since the reusable material from the site, was not enough to make up all new buildings, new materials were instead analysed, to find the most sustainable solutions. Here it was also taken into consideration, that the different procedures for reusing materials on site would result in different global warming potentials - as seen with the reused metal sheets which would be significantly more sustainable if reused directly.


Global warming potential (fossil)
Production phase (A1-A3) + transport from manufacturer to site
year added, consideration, reused

sections of the transformed barn scale 1:200
The old stable transformed into an orangery, replacing the old foodproduction with a new sustainable one. The old stable

common dining area in the larger barn with the old cereal grain as a centrepiece.
windows now providing light into the restrooms where the sink is embedded in the old drinking bowls.
Design project, 8th semester. AEC global teamwork project
Aim: To be resilient against hurricanes and earthquakes, self-sustaining with water and electricity and Eco-friendly using local materials such as bamboo and terrazzo.
This project is focused on providing a modern and resilient engineering faculty for the students of Puerto Rico.
This was an AEC Global Teamwork collaboration organized by Renate Frucher, lecturer at Stanford University. It involved structural engineers from China and Colombia, construction managers from Denmark and Turkey and an MEP engineer from Switzerland.
The innovative project aims to educate the next generation workforce by engaging with multiple disciplines internationally through Project-Based Learning (PBL) activities.
The course objectives include developing, implementing, testing, and assessing:
1) innovative learning and collaboration technologies such as Meet-in-VR and Prospect.
2) knowledge capture, sharing and use technologies, such as BIM360, Dynamo, Insight and other Revit plug-ins
3) complex processes involved in international collaboration work
SIZE: 3.000 m2
LOCATION: San Juan, Puerto Rico
TIME: 4 months
I contributed as the only architect in an interdisciplinary team.


footprint
vertical circulation
connection to park
natural vent.
private offices classrooms
solar panels
technical labs
water collection
living machine
protective facade
include vent. system
base isolators
2. floor
Faculty offices
Student offices
Chairs office
1. floor
Auditorium
Small classroom Seminar room
0. floor
Auditorium
Large classroom Seminar room Cafe
-1. floor
Makerspace
Instructional labs
Living machine

Large Classroom - Mobile furniture allows flexible layouts, with classrooms opening to exterior tribunes for an amphitheater-like stage. Rooms can also be cleared and repurposed, such as for testing during a pandemic.

Throughout the faculty, diverse study spaces are offered, with terrazzo zoning in the naturally ventilated areas. This design ensures effective functionality during a pandemic by supporting airflow and adaptable seating for social distancing.

its
This section illustrates how the atrium functions to allow light, air, and people to flow into the building, creating a transitional zone between the public street and the privacy of the classrooms.
The building is supported by base isolators, which protect the structure from earthquake damage. A protective facade, crafted from locally sourced bamboo, regulates the indoor climate while also shielding windows during hurricanes.
section of the building highlights the clear view through structure. Offices and classrooms are mechanically ventilated, while the rest of the building takes advantage thermal buoyancy, enabled by the large open atrium skylight supported by parametrically optimized trusses.
entrances, large rotatable doors can be closed in event of a hurricane to protect the interior.

Junior architect Sustainability consulting
Aim: To understand the processes of working in a bigger design studio, handeling different projects at various stages, always focusing on sustainability and building performance optimization.
As a Sustainability Consultant at Herzog & de Meuron, I developed workflows and strategies to optimize internal analysis and simulation processes, performed Life Cycle Assessments (LCA), conducted daylight and solar studies, analyzed thermal and visual comfort, and carried out wind studies. I also provided sustainability and performance consulting, formulated sustainability strategies for competition and early design phase projects, and supported team members in effectively using software tools for project work.
Additionally, I contributed to the firm’s knowledge base by documenting and sharing sustainability insights, as well as developing analytics processes. I enhanced the functionality of the Rhino toolbar, streamlining design processes for the team.
Finally, I conducted a research project on the carbon emissions of eight finalized projects, reverse engineering them to estimate embodied carbon during early design phases. All of which was showed cased to the rest of the office during the annual summerparty.
SIZE: 1.000 m2 - 100.000 m2
LOCATION: Worldwide
TIME: 1 year 3months
Sustainability consultant in the building analytics team.


Developing workflows
Team support
Knowleadge bank
Learning Carbon



Examining past projects to improve embodied carbon estimation during early design phases. Can reverse engineering This study analyzes eight H&dM residential projects of varying shapes and sizes, leveraging advanced tools like OneClick


Analyzing the sources of pollution across various projects to identify correlations and pinpoint opportunities for significant savings by prioritizing low-impact design in future initiatives.


Understanding how various energy of a building.

engineering be applied to predict embodied carbon at this stage?
OneClick LCA and Epic (now C.Scale), to explore these questions.



various factors correlate with the embodied

Exploring how different metrics can determin our perception of data.

ronja elisabeth carlsson | architectural portfolio.







Total Embodied Carbon = 16392 kg CO2 eq.
Payback Time = 1492 years
Return of investment = 3.4 times
Carbon Intensity = 4.5 %
Design project, 7th semester
Integrated Design of Sustainable Tectonic Architecture
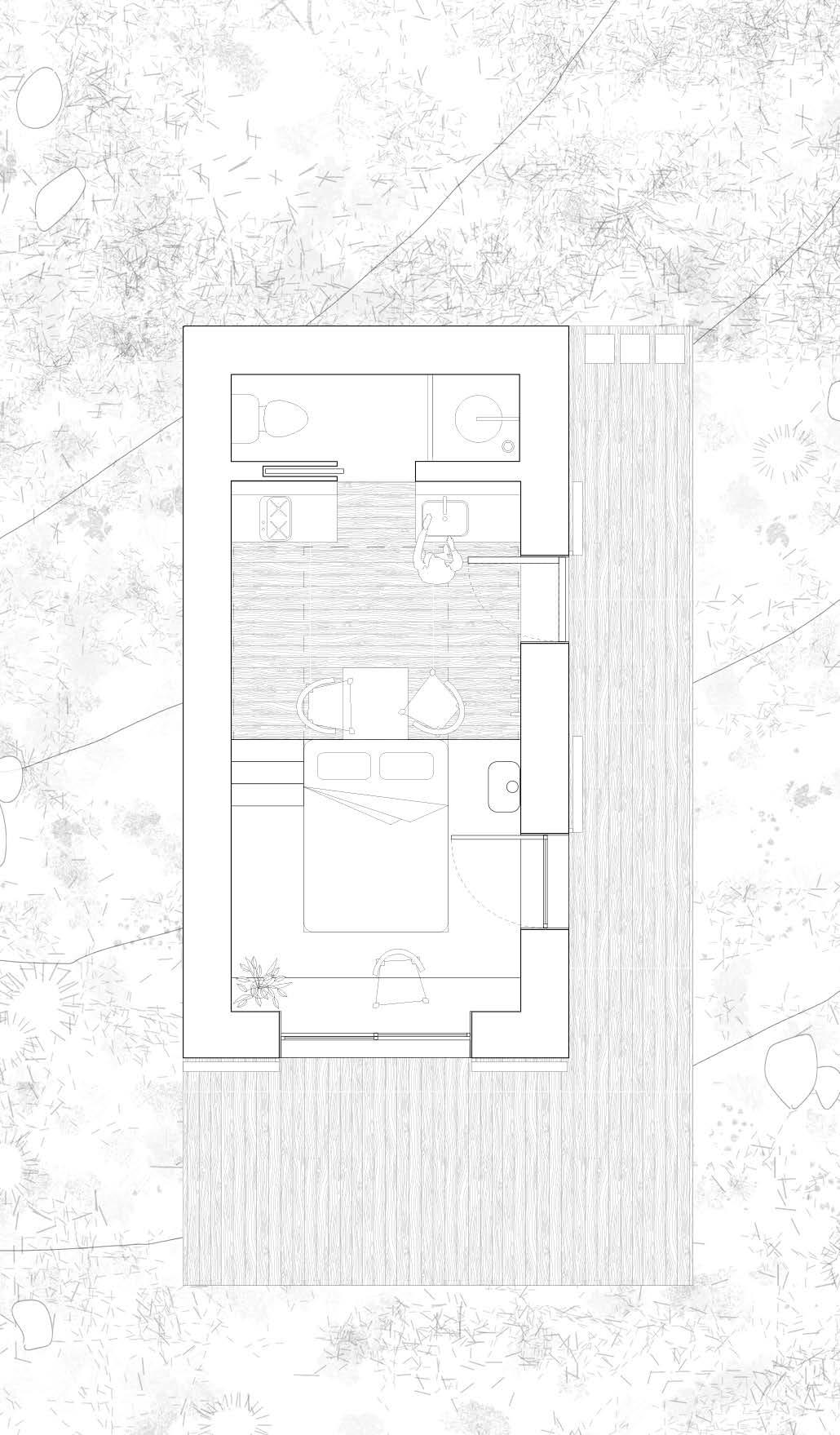
Off-grid cabin in the woods working with passive and active solutions, genius loci and the human sense of vision, touch, and movement.
Located in Vodskov, Denmark, nearby one of the lakes, tugged in between two pathways and into the slope of the hill, one finds this small cabin. The cabin functions as a writer’s retreat, where the writer can pull away from the noise of everyday life and focus of the nature with an undisturbed view of the forest through the window over the desk. A smaller excavation of the hill makes space for two concrete walls to lay the backbone of the cabin, while the main body is constructed in wood.
This main body is a furniture, where the occupant is offered different niches to retreat and occupy for whatever purpose they see fit. In that way the retreat relates both practically and poetically to the place it is situated, responding to the genius loci, and addressing the human sense of vision, touch, and movement.
With passive and active solutions and off-grid strategies the cabin can keep a low energy consumption while providing the visitors with a soothing indoor environment. Different DGNB requirements have been obtained, such as visual comfort, users’ possibility to control indoor environment and the use of drinking water and management of wastewater.
SIZE: 30 m2
LOCATION: Vodskov, Denmark
TIME: 1 month
Individual work


green roof - give area back to the forrest

When moving into filled space in two writer. The upper being the lower a living area. storage are hidden not to take up space
The large terrace invites move the small dining during warmer days. outside the cabin allow of trash during the stay transportation of it well.
section scale
The skylight running edge of the building relation to the forest daylight into the cabin, shutters are closed windows, to create writer. A freshwater drinking water for water and septic tank every second year and biogas, again used for the stove.
1:50
the cabin, a lighttwo levels greets the being a kitchen and area. Here a bed and under the plateau, space when not needed. invites the writer to dining table outside days. Smaller bins allow for easy sorting stay at the cabin and it when leaving as
running along the top building creates a direct forest outside, and lets cabin, even when the in front of the other more privacy for the freshwater well is providing the cabin. A grey tank will be emptied and used to produce in the cabin as fuel
Nsiteplan scale 1:1000
The writer has to walk through the forrest, first on the pathway following the lake, and then through the forrest bed, before getting met by a wooden cabin which warm facade resemble that of the trees. Here a wooden deck offers a homogeneus and safer base for the feet to step on and leads the writer around the side of the cabin, to the main entrance.


When moving into the cabin, the writer is met by one open room in two levels. The upper being the kitchen and the lover the living area. Here a bed and storage is hidden under the plateau, not to take space when not needed. The skylight running around the top eadge of the building creates a direct relation to the forest outside, and lets daylight into the cabin, even when the shutters are closeed in front of the other windows, creating more privacy in the cabin.
pebbles
drainage, water reservoir and root barrier growing medium
hempcrete insulation
CLT beam
concrete walls design for disassembly
hempcrete insulation
treated concrete
wall/roof detail 1:20
Photography From freetime In Denmark and doing travels.




