Part 1 Architectural Assistant Portfolio 2023

Page 1

Selected Works 2020-2023

Part 1 Architectural Assistant Portfolio

TABLE OF CONTENTS 01 [UP]CYCLING FASHION CENTRE INDIVIDUAL WORK 02 A HISTORY WITH A FUTURE INDIVIDUAL WORK 03 TECHNICAL STUDIES INDIVIDUAL WORK 04 ENRICHING ELLESMERE GROUP WORK 05 OTHER WORKS & CV 3 RONIN LIM | PART 1 ARCHITECTURAL ASSISTANT PORTFOLIO 2 9 11 12 13

[UP]CYCLING FASHION CENTRE

Location: Preston, Lancashire, UK

Date: Sep, 2022 - May, 2023

Individual Work

Tutor: Dr Johnathan Djabarouti, Michael Daniels

Manchester School of Architecture Third Year Academic Work

[UP]Cycling Fashion Centre aims to establish an inclusive fashion community in Preston that addresses the throwaway culture of fast fashion. Home to Preston’s local fashion designers and students, it weaves the community together to explore methods of repurposing used clothes and to educate the public on the ethical sourcing of garments for daily wear.

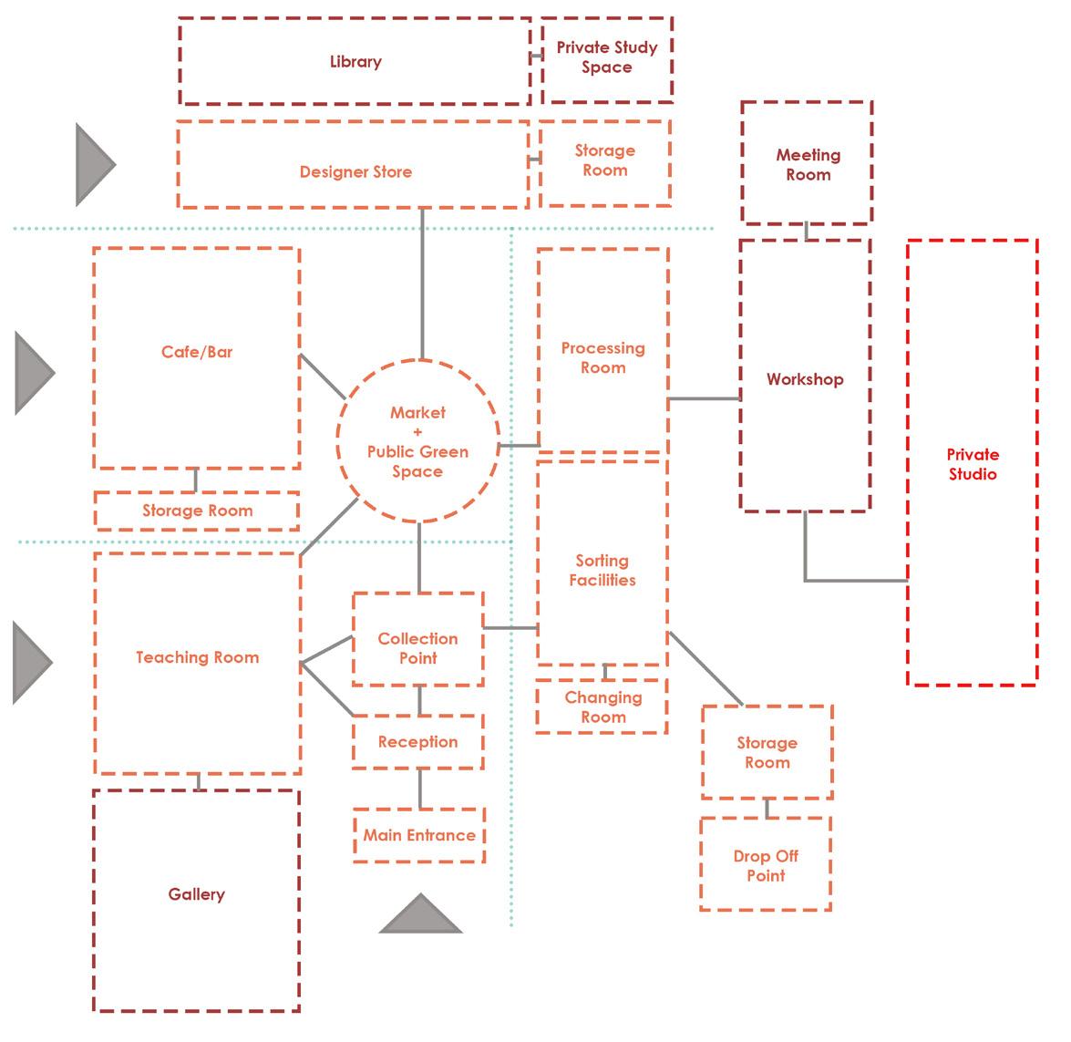
The programme comprises used clothes collection points, sorting and manufacturing facilities, workshops, studios, classrooms, galleries, café, shops, and libraries. These programmes are split into four main design fragments that are linked to each other. A one-way route is designed specifically for visitors to have an immersive and hands-on learning experience of the upcycling process that begins at the art gallery and ends in the building’s own clothes shop. Its strategic location nestled between Preston Town Hall and Preston Bus Station provides an extension to the town that is celebrated through a seamless public green space that cuts across the site.

My proposal focuses on creating a design scheme that has low-embodied carbon. This would be achieved by retrofitting the existing buildings and reusing existing materials in the new buildings to reduce the carbon emissions from the construction process. My design scheme emphasizes the use of the glulam structure, which offsets more carbon than it outsets. The motif of textile patterns has been a recurring theme throughout my design. These could be seen from the perforated exterior brick walls that mimic the overlaying and intersecting threads in knitting. Sculptured internal plaster wall panels in the art gallery space which portray folds of fabric induce the desire for touch from visitors. Atrium space with a top light and clerestory window will be applied to welcome more daylight into the space and increase the solar gain to reduce reliance on the mechanical system.

RONIN LIM | PART 1 ARCHITECTURAL ASSISTANT PORTFOLIO
01

The close proximity among the Guild Hall, Harris Public Library, Museum and Art Gallery, and my site lead me thinking of a possibility to form a dialogue between the past and present programmes of these places As I was reminiscing the relation of the once glorious trading industry in Preston Guild, the booming textile mill on my site, and the rich art history featured in the gallery, it induces me the idea of designing something that has to do with the current fashion scene.

ROUTE 1

JOURNEY FROM CROOKED LANE TO PRESTON BUS STATION

ROUTE 2

JOURNEY FROM LANCASTER ROAD TO THE MIDDLE OF THE SITE

ROUTE 3

JOURNEY FROM PRESTON BUS STATION TO THE MIDDLE OF THE SITE

Throughout the 18th century, cotton became the prime export of Preston and by the end of the Victorian era, the number of mills in Preston was at its climax. In this diagram, the map details the location of mills in Preston in the 1890s.

I argue not only that these Mills or; these Urban Artefacts (Rossi, 1966), should be considered as such simply based on their historic quantity, but rather, that they collectively form a reflection of Preston’s essence and that this is due to the social and cultural influence that the Industrial Capitalist held over urban development

RONIN LIM | PART 1 ARCHITECTURAL ASSISTANT PORTFOLIO 4
SITE ANALYSIS
PRESTON TOWN HALL PRESTON GUILD HALL
ROUTE 1 ROUTE 3 ROUTE 2 SITE
PRESTON BUS STATION 50-60 LANCASTER ROAD 1:200 Site facade model made up with paper, cardboard, wood 1890 map detailing the location of mills in Preston

IDEATIONS AND ITERATIONS

Arguably, one of the most pressing issues in today’s world is the wastage caused by fast fashion With 80 billion fashion apparels manufactured every year, the so-called ‘fast fashion’ allows consumers to buy more, but they are wearing these garments less often and disposing of them at an unprecedented rate. In Britain, more than 300,000 tonnes of clothes end up in landfill every year. My design aims to address on this throwaway fashion culture, while ensuring the programmes created benefit the community of Preston.

RONIN LIM | PART 1 ARCHITECTURAL ASSISTANT PORTFOLIO 5
Initial ideas of design through sketched interventions Initial massing models while brainstorming circulation paths Concept sketches of key interior spaces Adjacency diagram

ENVIRONMENTAL AND TECHNICAL STUDY

Structural strategies

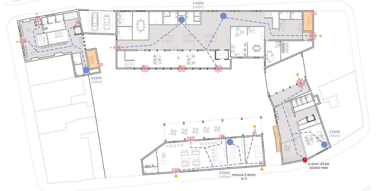
Fire escape strategies on plan

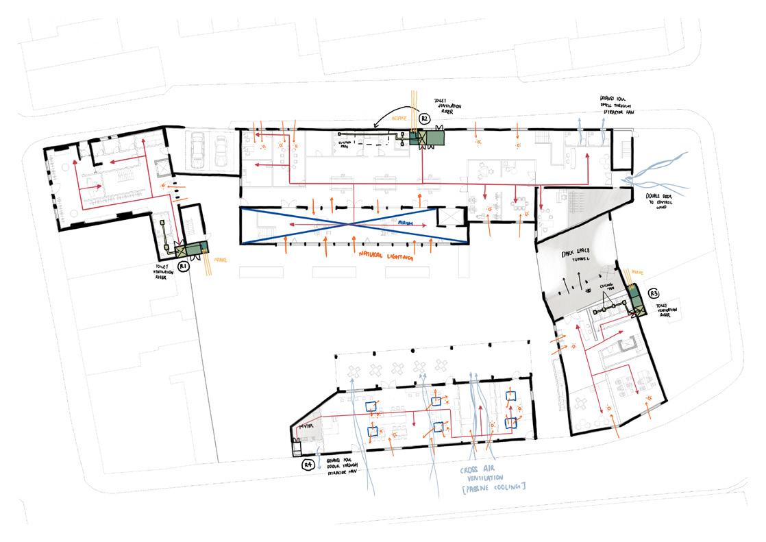
Environmental strategies on plan

Heating, cooling, daylighting and ventilation strategies

6
primary structure lateral stability provided by reinforced concrete slab and steel sections 300mm reinforced concrete ground bearing slab built off compacted sub base glulam column c27 240 x 405mm continuous over 2 storeys with spacing 4500mm glulam column c27 250 x 250mm glulam curved roof beam 150 x 500mm with span: 10500mm and spacing: 4000mm glulam roof beam 150 x 500mm steel c-section 500 x 210mm existing timber roof trusses
Facade study and ideation result

PHYSICAL MODELS AND PLANS

1:50 scale model of the facade

This 1:50 corner model features the corner part of the manufacturing building which includes the staircase and the balcony at the top. The curtain wall unit offers visitors and passerby an insight into the action of the manufacturing space Meanwhile, the perforated brick cladding on the top harmonises well with the glulam timber frame structure Visitor’s experience in the space is further enhanced with a light well in the entrance area with lights coming into the corridor of the first floor.

Brick tiles that are laid in between the manufacturing building and the restaurant building indicate a small open plaza that allows people to gather together and hold events such as a fashion show or a vintage clothes sale. This empty space holds potential to form an extension to the original programme of the design with the perforated brick wall facade acting as a backdrop.

An arched walkway forms a barrier between the open green space and the rear part of the existing shop lots along Lancaster Rd. Such an intervention echoes the design of the listed Miller Arcade nearby. Its brick build-up creates a continuation from the old to the new.

Interior wall design

As a continuation from my previous decision to use plaster as the interior wall material of the art gallery, I have made this 1:5 scale wall panel that is normally the size of 2000 x 1200mm. The design of this wall panel reinforces the notion of upcycling fabric with a sculptural form of fabric featured in the middle part of the panel. It is cornered with two circles with circular rims engraved on it which encourages visitors and users to touch these wall panels. Such a minute yet interesting detail could be an unexpected element for visitors to discover during their visit in the space.

PLAN

10.
11.
12.
13.
Existing
New
GROUND FLOOR
(1:100
on A0)
1. Designer Clothes Store 2. Arched Walkway 3. Parking Space 4. Meeting Room 5. Textile Processing Space 6. Open Workshop Area 7. Sorting Room 8. Office 9. Collection Point
BIke Shed
Reception
Teaching Room
Restaurant & Bar
Buildings
Buildings
1 2 3 4 5 6 7 8 9 10 11 12 13 RONIN LIM | PART 1 ARCHITECTURAL ASSISTANT PORTFOLIO 7
light enters through top light user and the space folded and crumpled fabric circular rings of rim intertwining

SECTION A-A (1:100)

SECTION B-B (1:100) ELEVATION C-C (1:100) SECTIONAL PERSPECTIVE VIEW EXTERIOR VIEW FROM OPEN GREEN SPACE
RONIN LIM | PART 1 ARCHITECTURAL ASSISTANT PORTFOLIO 15
INTERIOR VIEW OF WORKSHOP SPACE

A HISTORY WITH A FUTURE

Location: Manchester, UK

Date: Jan, 2022 - May, 2022

Individual Work

Tutor: Dominic Sagar

Manchester School of Architecture Second Year

Academic Work

Understanding the rich history of Ancoats in Manchester has given me revelations that the once glorious and most celebrated presence of Manchester’s history had once been on the verge of disappearing. Ranging from the 1960s’ compulsory purchase and clearance orders of the existing houses for many Ancoats streets, to the closure of the Daily Express Building in 1989, it must be uncertain to many on what the future held for the local commmunity in Ancoats. Nonetheless, it is with exciting hope and sheer resilience that this neighbourhood has once again found its momentum to rebuild and rebrand themselves into what it is today.

My housing scheme for the theatre performers will be a step forward for the Ancoats’ community to continue exploring the endless potential of this diverse and interesting neighbourhood. More importantly, the scheme will incorporate public space like amphitheatre and external recreation area to produce an opportunity for the locals to celebrate their vibrant homegrown performing arts and creative industry. Through this project, I had creatively explored the materiality and structural elements of the existing buildings in Ancoats to create a space that linked to its industrial past, while echoing long-established Mancunian performative art venues.

The keyword for my design is ‘hope’, and it is a coincidence that the name of the theatre adjacent to my site begins with the same word. I view the creative industry of Ancoats as a glimmer of hope for the local community to continue venturing their brand new identity because this area will always remain as a history with a future.

02
RONIN LIM | PART 1 ARCHITECTURAL ASSISTANT PORTFOLIO

Residents of Ancoats were staying in a shabby and dilapidated living condition due to the heavy air pollution caused by the heavy industry during the industrial revolution

Bad working environment and tight living space in back to back houses were prominent social issues back in the days.

The final cotton mill in Ancoats lasted until the mid-20th century and the closure followed by a series of demolition work spearheaded by the local city council.

After years of decline and dereliction in Ancoats, the local authorities and organization have worked together to lead a regeneration scheme in the area, which has consequently piqued the interest of many homegrown artists and creators

Living condition in Ancoats will improve tremendously by connecting the neighbourhood with nature through open public space, such as community kitchen, amphitheatre and edible garden

Better workspace and practice area will be crucial to ensure artists have good working environment provide adequate accommodation for their needs

The main highlight of this scheme will promote and celebrate the thriving community of performing artists, while giving reminiscence to occupants of glorious history of Ancoats through careful consideration of the usage of materiality and structure

RONIN LIM | PART 1 ARCHITECTURAL ASSISTANT PORTFOLIO 10 1
2
3 4 5 6 7 8
Iteration 4 DESIGN STRATEGIES
FINAL
AND NARRATIVE
PLANS FOR BEDROOM UNITS

Key design parameters of case study

Case Study of Cristalleries Planell in Barcelona, Spain

Date: Jan, 2023 - May, 2023

Individual Work

The case study project was to analyse the construction, environment, structure, and materiality of Cristalleries Planell by Harquitectes. The architect cleverly imposed a new structure while retaining two of the three facade sides on the site area that used to be a glass factory. The implementation of passive methods of ventilation through atrium and chimneys, and lighting strategies through ETFE membrane have helped to maintain favourable internal conditions. The building analysis required a strong understanding on mechanical and passive systems in the building to gauge their placement and functionality.

I have created a rhino model as a base on top of which hand drawings and annotations were created.

Floor Slab to External Wall Detail

1:20 Technical Drawings and Envelope Study

Structural design strategies in isometric exploded view

Thermal control diagrams of interior environment

Existing Wall and Window Opening Detail

Heating and cooling system in sectional view

Environmental design strategies in isometric view

Inner Wall to Ground Slab Detail

03 TECHNICAL STUDY RONIN LIM | PART 1 ARCHITECTURAL ASSISTANT PORTFOLIO 11
Wall to Roof Interface

ENRICHING ELLESMERE

Location: Ellesmere, Shropshire, UK

Date: May, 2022

Two Week Group Work

Throughout this two-week project, my project team and I have partnered with Ellesmere Yard in Shropshire, Sue Ball from MAAP, and Canal & River Trust to re-think, re-design, and re-vitalize a historic canal workshop with the aim of broadening social productivity and community involvement.

I was tasked specifically to generate ideas for the docking area of the canal building and to create proposals of workshops on the upper storey of the main building. This project has allowed me to:

- explore and develop principles in adaptive reuse, landscape design, and slow architecture;

- produce design proposals for a series of unique spaces within the site;

- create illustrative visuals, graphics, sketches, and drawings;

- provide an opportunity to express creative and artistic ideas along with analytical research in an exciting and locally valued site.

The drawings and diagrams shown here are the individual works that I contributed to the project team.

Concept sketches and brainstorming

04
RONIN LIM | PART 1 ARCHITECTURAL ASSISTANT PORTFOLIO 12
Final Diagrams of Workshop Space for Different Scenarios

RONIN LIM JING LII

Architecture Assistant Part 1

OTHER WORKS

LinkedIn www.linkedin.com/in/roninlim

PERSONAL STATEMENT

Uni Website msa.ac.uk/2023/profile/roninlim/

I am a graduate of Bachelor of Art (Hons) Architecture in Manchester School of Architecture. I would like to apply the knowledge I have learned at university and gain related work experience to enhance my understanding of the industry further. I am inspired to be a humble architect who is willing to learn new ideas constantly to be able to design spaces that will become symbols of inclusivity and identity, in order to bring light to the lives of many people around the world.

WORK/ RELATED EXPERIENCE EDUCATION

MAY-JUN 2022

PROJECT MEMBER OF ENRICHING ELLESMERE (MSA Live 2022 x Ellesmere Canal Yard)

Throughout this two-week project, my project team and have partnered with Ellesmere Yard in Shropshire, Sue Ball from MAAP, and Canal & River Trust to re-think, re-design, and re-vitalize a historic canal workshop with the aim of broadening social productivity and community involvement. I was particularly in charge of producing design proposals for the workshop spaces within the site through illustrative visuals, graphics, sketches, and drawings.

DEC 2021-MAY 2022

RIBA STUDENT MENTORING SCHEME at Chapman Taylor, Manchester, UK

The RIBA Student Mentoring Program has helped me massively, especially in understanding the future prospects of an architectural career and the pathways would take after graduating with my undergraduate degree. Through this opportunity, I have visited an architectural firm for the first time in person, and have a glimpse of what and how exactly an architect works.

DEC 2021-JUN 2023

INTERNATIONAL STUDENT AMBASSADOR at Manchester Metropolitan University, Manchester, UK

This role allows me represent my university to forge a friendly conversation with prospective international students who are interested in continuing their tertiary education in Manchester. was responsible to communicate with overseas students who have queries towards university’s life and assisted the university in answering applicants’ concerns.

MAY-JUN 2021

PROJECT MEMBER OF BIT BY BIT (MSA Live 2021 x Lifeshare) at Manchester, UK

This two-week project strives to overcome the inequality in the issue of digital inclusion through our collaboration with Lifeshare. This project has allowed me to design and gamify a learning app teaching essential digital skills to the homeless in such a way that the content can be easily digestible and enjoyable for use by all ages.

MEMBERSHIPS/ ORGANISATIONS

[1 & 2] MDF laser cut model of New Victoria Theatre, Preston | Group work | 2023

[3] Paper model of the facade of New Victoria Theatre, Preston | Group work | 2023

[4] Hand sketch work during lockdown | Individual work | 2020

[5 & 6] Graphic illustration work adopted for society’s hoodie design | Individual work |2020

[7] Site model made up of cake | Group work | 2021

2020-2021

REGIONAL DIRECTOR OF SALES AND MARKETING at AIESEC in Manchester, University of Manchester, UK

2019-2020

MARKETING OFFICER at iCUBE, University of Manchester, Manchester, UK

My experience working as a marketing officer in a UK student-led initiative allowed me to learn indepth skills in graphic design and acquired a better understanding of writing skills, which felt that was lacking on.

2019-2020

VICE CHAIRMAN/CO-FOUNDER OF CRAFT, HANDIWORK AND ART MEMBERS’ SOCIETY (CHARMS) at INTEC Education College, Shah Alam, Malaysia

Together with a good friend of mine, we founded this society with the aim to bring together students who are interested in craft, art and design. We held workshops fortnightly and gathered more than 20 students at the end of our term.

2019-2023

BA (HONS) ARCHITECTURE at Manchester School of Architecture, Manchester, UK

2017-2019

CAMBRIDGE INTERNATIONAL A-LEVEL at INTEC Education College, Shah Alam, Malaysia

2012-2016

SIJIL PEPERIKSAAN MALAYSIA (SPM) equivalent to GCSE at Maktab Sultan Abu Bakar (English College) , Johor Bahru, Malaysia

AWARDS AND ACHIEVEMENTS

2023

B.15 MODELMAKING AWARDS Longlisted BA (HONS) ARCHITECTURE Upper Second Class Honours

2019

CAMBRIDGE INTERNATIONAL A-LEVEL A*AA including Mathematics, Further Mathematics and Physics

2018

IELTS Overall Band Score: 8.0

JAPANESE LANGUAGE PROFICIENCY TEST (JLPT) N3 Level

2016

SIJIL PEPERIKSAAN MALAYSIA (SPM) equivalent to GCSE O-Level (11A*/A) including Malay, Chinese, English, Japanese as Foreign Language, Additional Mathematics, Mathematics, Biology, Chemistry, Physics, History, Moral

LANGUAGE AND SKILLS

ENGLISH

MANDARIN

MALAY

JAPANESE

AUTOCAD

SKETCHUP

RHINO

PHOTOSHOP INDESIGN

ILLUSTRATOR

LIGHTROOM

05
Personal Details Contact Details Name Nationality Date of Birth Age Location University Ronin Lim Jing Lii Malaysian 14 April 1999 24 Manchester, UK Manchester School of Architecture Email Phone Instagram roninlim.jinglii@gmail.com +44 77626 27719 roninlim.arch
My term working as a regional director of sales and marketing of AIESEC in Manchester has allowed me to manage promotion of the organisation’s products in the North West region of England. Some of the skills that have acquired include team leadership, new business development, sales promotion, data analysis, digital marketing, project management, communication.
RONIN LIM | PART 1 ARCHITECTURAL ASSISTANT PORTFOLIO 1 2 3 4 5 6 7

Turn static files into dynamic content formats.

Create a flipbook
Issuu converts static files into: digital portfolios, online yearbooks, online catalogs, digital photo albums and more. Sign up and create your flipbook.
Part 1 Architectural Assistant Portfolio 2023 by roninlim - Issuu