Skip to main content

Roniel Armas - Architecture Portfolio '23

Page 1

RONIEL ARMAS

ARCHITECTURE
2023
PORTFOLIO

RONIEL ARMAS

Hi! My full name is Roniel Vincent Cunanan Armas and I completed the Bachelor in Architectural Studies at Ara Institute of Canterbury. I consider myself a creative and passionate person who enjoys working either alone or in a team. I love learning new things. From my point of view, architecture is either driven by following a culture or developing another culture. It has the power to impose an activity through deep research and understanding of human behavior in relation with spaces.

PERSONAL INFORMATION

Address Date of Birth

Place of Birth

Nationality

Languages

CONTACT DETAILS:

Emails: Phone #:

LinkedIn:

armas.ronvince@gmail.com

armas.ronvince@hotmail.com

(+64) 0223988345

https://www.linkedin.com/in/ronielvincent-armas-b15a77242/

Kaiapoi, Canterbury, 7630

October 22, 1994

Tarlac City, Tarlac, Philippines Filipino

Filipino, English, Ilokano

PROGRAMS

Archicad

Sketchup

Autocad

Revit

Adobe Illustrator

Adobe Indesign

Adobe Photoshop

Twinmotion/Enscape

3DS Max

EDUCATION

2021-2023

BACHELOR IN ARCHITECTURAL STUDIES

ARA Institute of Canterbury

Christchurch, Canterbury, New Zealand

2011-2017

BACHELOR OF SCIENCE IN ARCHITECTURE

EXTRA CURRICULARS

Nov 2022

Jul 2022

PARTICIPANT PARTICIPANT

2016-2017

CHAIRMAN

2015-2016

2014-2015

BOARD MEMBER ON FINANCE GOVERNOR

WORK EXPERIENCE & INTERNSHIP

Jul 2022

Jul 2022

Aug - Nov 2022

2019-2020

SKILLS

Manual Drafting

Digital Drafting

Hand Drawing

Gib Fixing

INTERNSHIP (for a week)

INTERNSHIP (for a week)

ARCHITECTURAL TECHNICIAN (Part-time)

GIB FIXING/ PLASTERBOARD INSTALLATION

Tarlac State University

Tarlac City, Tarlac, Philippines

Detailing/ Documentation

3D Visualising/ Rendering

Scale Modelling

BIM

Writing/ Analysis

ArchEngBuild 2022

University of Auckland

Auckland, New Zealand

SAANZ 24-Hour Design Challenge 2022

University of Auckland

Auckland, New Zealand

TSU Committee on Student Elections

Tarlac State University

Tarlac City, Tarlac, Philippines

College of Architecture & Fine Arts Student Council

Tarlac State University

Tarlac City, Tarlac, Philippines

Fabric Architecture

Christchurch, Canterbury, New Zealand

Dalman Architects of Space

Christchurch, Canterbury, New Zealand

Summit Project Exponents, Ltd.

Canterbury, New Zealand

INTERESTS

Conceptual Process

Sketching & Graphic Design

Scale Model

Animation

Sustainability/ Hydrophonics

Landscape Architecture

Urbanization

Writing/ Literature

Dancing and Choreography

Contents I. Architectural Projects I.1 Raranga Ahurea I.2 Te Rere I.3 Timatanga Pavilion I.4 Tane II. Documentation III. Hand Drawings/ Group Projects III.1 Imaginary City III.2 Hand Drawings III.3 The 12 Summits III.4 The Barnacle III.5 Tangible Group Projects 1 5 9 11 15 23 25 27 29 31

Te Raranga Ahurea | 2022

This project aims to cater the projected increase of number of ethnic groups in Christchurch City. It will function as a one-stop-shop for the people who have something to do with immigration matters, meetings & small gatherings, and cultural festivities & celebrations.

Architecture was used to solved the challenge of using the vernacular culture, Maori, as a host for the Multicultural Building. “Te Raranga Ahurea” or The Weaving of Culture comes from a philosophical idea that diverse cultures, like interwoven fibres, makes a strong community. Raranga, or the Art of Weaving, became the central concept which linked the design considerations. Furthermore, this project acknowledges the significant history, not just of the site, but of the entire Christchurch.

Philosophical Context:

Like a woven ‘Ra’ or sail that is strong because of the intertwined fibers, the building will connect and link the people and their cultures. The sail moves the waka. Metaphorically, we are all riding in one waka, having the journey to find the land we are yearning for. Indeed, we came from different cultures, but we all want a better community to live in like Christchurch.

|
Hand drawn Sketches | Archicad | Adobe Illustrator/ Photoshop | Sketchup
Enscape
Views Existing trees Brutalist Style Building (CCC) Taking advantage of this building’s purpose Natural Views Wind Analysis Vehicular Traffic HISTORY How to acknowledge the history of Old Christchurch? And of the chosen site? FORM (SCULPTURAL QUALITY) How to use a form from the vernacular culture and still embraces multiculturalism? TYPOLOGY How to introduce the Multiculturalism in the heart of the city? That cultures can co-exist? That diversity is a strength? 1
A Proposed Multicultural Centre in Christchurch
Site context analysis Street access Space programming Access to building from the corner Open plan to ground level (Mana Whenua) Integration of sculptural form 2
3
4

Te Rere Performing Arts Centre | 2022

The main design driver of Te Rere (The Flow) is ‘The Continuous Flow’. The building performs and entertains the public, activating the Rourora Park at the north side, using a wind-driven kinetic facade that will interpret the ‘continuous flow’. The entire facade was inspired by two (2) important parts of the identity of Christchurch City showing ‘continuous flow’: The Avon River and The City Tram.

The two contrasting concept was being fused together to balance each other. The Kinetic Wall gives a visual resemblance of the fluidity and flowingness of the river, while being attached to an edgy and pointy frame. The vertical timber facade for the entry stairs resembles the straight lines of the tramway track, while being arranged to a circular path.

Hand drawn Sketches | Archicad | Adobe Illustrator | Twin Motion
5

SITE ANALYSIS

Sun and Wind Path

Site Context

The river continuously flowing and the Tramway continuously move to show and tell the history and culture of Christchurch.

The site is facing north. The prevailing winds are eastnortheasterly and from the southwesterly quarter.

Open Spaces and Greeneries

The site faces an Open Green Space in the north.

Boundaries and Limits

The site is adjacent to a building which is assumed to have the highest possible height for the certain area in the city.

Notable Surrounding Sructures

A residential area is located at the northeast of the side. A parking building is located at the east side (walking distance) while a Bus Interchange at the West direction (walking distance). Food establishments are surrounding the site --- some are active at night.

Access Roads and Laneways

The site is located near a “gateway” to the city. The north side of the site is along the Lichfield Street.

1. Site Analysis. Finding the sun path, wind flow, noise source, pleasant view, open green spaces, accesses and surrounding masses.

4. Bubble Diagram. Configuring the spaces and areas. the Core Spaces is at the very center of the site surrounded by the supporting spaces. The Green space is a public realm caused by the #3.

7. Attaching Facade. Integrating the concept visually through facade. The two concept will meet at some point. The Kinetic Wall at the left side to catch the prevailing wind.

8. Allowing light to come through. The utilisation

of glass and by shifting a bit of the entryway plan brings light more inside and in the Public Realm than the initial design. 9. Redesigning of facade. The final proposal of the main facade shows: the fluidity of the kinetic wall with an edgy contour while the vertical straight lines of the entryway facade is in a circular arrangement. 5. Giving Volumes. Reconfiguring the spaces considering the needs of height. 6. Locating Access. Identifying the best number and location of ingresses, egresses, and lifts. The Main Public Entry point is located at the corner where the laneway is perpendicular to the road. 2. Parking considerations. Parking for disabled and Loading dock were considered which caused the indention and shift of the pathway.
6
3. Laneway getting through the Site. This strategy minimizes the feeling of discomfort & uncertainty when you walk through a laneway & a wall is at the end blocking your view.
7
8

Te Timatanga pavilion | 2022

The Design Narrative is rooted in the story of creation in Maori Culture. The important characters were being abstracted and turned to building elements.

In the beginning, Ranginui (Sky Father) and Papatuanuku (Earth Mother) dwelt together in each other’s embrace. Their children living in darkness between them decided to separate them to see the sun/light. One of them, Tawhirimatea (God of weather) was against it but Tumatauenga (God of mankind) stood his ground about their decision. Tanemahuta (God of forests and birds) stop their argument and told Tawhi that the majority of them agreed. So with his full strength, Tane separated Ranginui and Papatuanuku. The father above, the mother below. The rain is the tears of the father longing for the mother.

To compensate, Tane dressed his father with stars while he covered his naked mother with greeneries.

The furious Tawhi accompany his father in the sky and sworn that the descendants of the other Gods will feel his fury. Tawhi sent storms and heavy winds. It is to remind the descendants about the sinful action of his siblings especially Tu and Tane.

Hand drawn Sketches | Sketchup | Adobe Illustrator | Twin Motion
9

Ranginui (Sky Father) Roof

Tumatauenga (God of Mankind) People/ Visitors

Papatuanuku (Earth Mother) Ground/ Floor

Tanemahuta (God of the Forest) Column

Tawhirimatea (God of the Wind and Weather)

Wind Chimes

Floor Plan Arrangements base on the focus of the people 10

The concept revolved in the story of Tane, the God of forest and birds in Maori myths and legends. The structure is being elevated from the ground to consider the unexpected flooding since the site is near a body of water, which is in line with the story of how Tangaroa, the God of the sea and brother of Tane, tried to attack the land since Tane give shelter to the children of Tangaroa who fled from the sea.

The Accommodation Units were inspired by the fusion of a “Cabin in the woods” and Biophilic Design. The roof of the units was inspired by the resembling shape of a feather (symbolizing birds) and a leaf (symbolizing forests).

A A B B COMMUNA KITCHE COMMUNAL ARE OUTDOOR DINING UNISEX PWD BATHROOM MALE SHOWER ROOM UNIT 2 DECK/ HALLWAY WORKSPACE BATHROOM SPACCOMMON E SLEEPING AREA WORKSPACE DECK/HALLWAY SLEEPING AREA RAMP U P
Hand drawn Sketches | Archicad | Adobe Illustrator | Adobe Photoshop | Twin Motion
An Estuary Research Accommodation Center | 2021 CABIN IN THE WOODS BIOPHILIC + 11
Tane:
PANTRY COMMUNAL N COMMUNAL DINING AREA DINING AREA/ DECK UNISEX TOILETS FEMALE SHOWER ROOM UNIT4 DECK/ HALLWAY UNIT 4 K/HALLWAY BIOPHILIC DESIGN MAORI CULTURE + 12
200 0 PARKING AREA PATHWAY 200 0 DOUBLE MALE SHOWER ROOM UNISEX TOILET COMMUNAL KITCHEN COMMUNAL DINING AREA OUTDOOR DINING DECK/ HALLWAY PARKING AREA PATHWAY HALLWAY PARKING AREA TRUSS DESIGN TRUSS DESIGN TRUSSTRUSSDESIGNDESIGN 13
0 GROUND LEVEL DOUBLE GLAZED TINTED GLASS OUTDOOR DINING DECK 200 0 TRUSS DESIGN COMMON SPACE BATHROOM DECK/ HALLWAY PARKING AREA PATHWAY 14

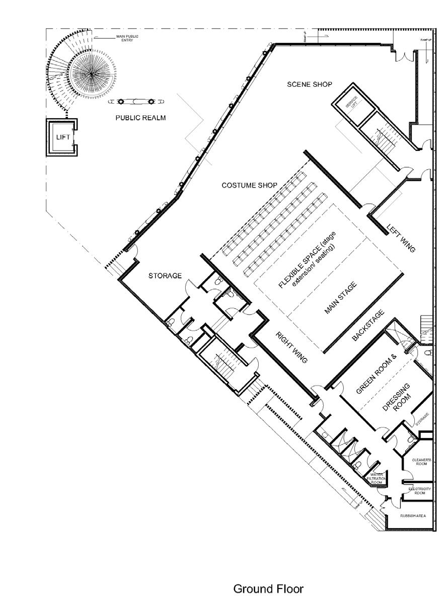
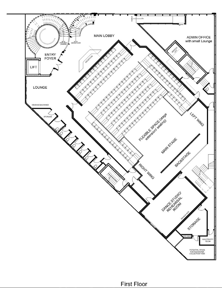
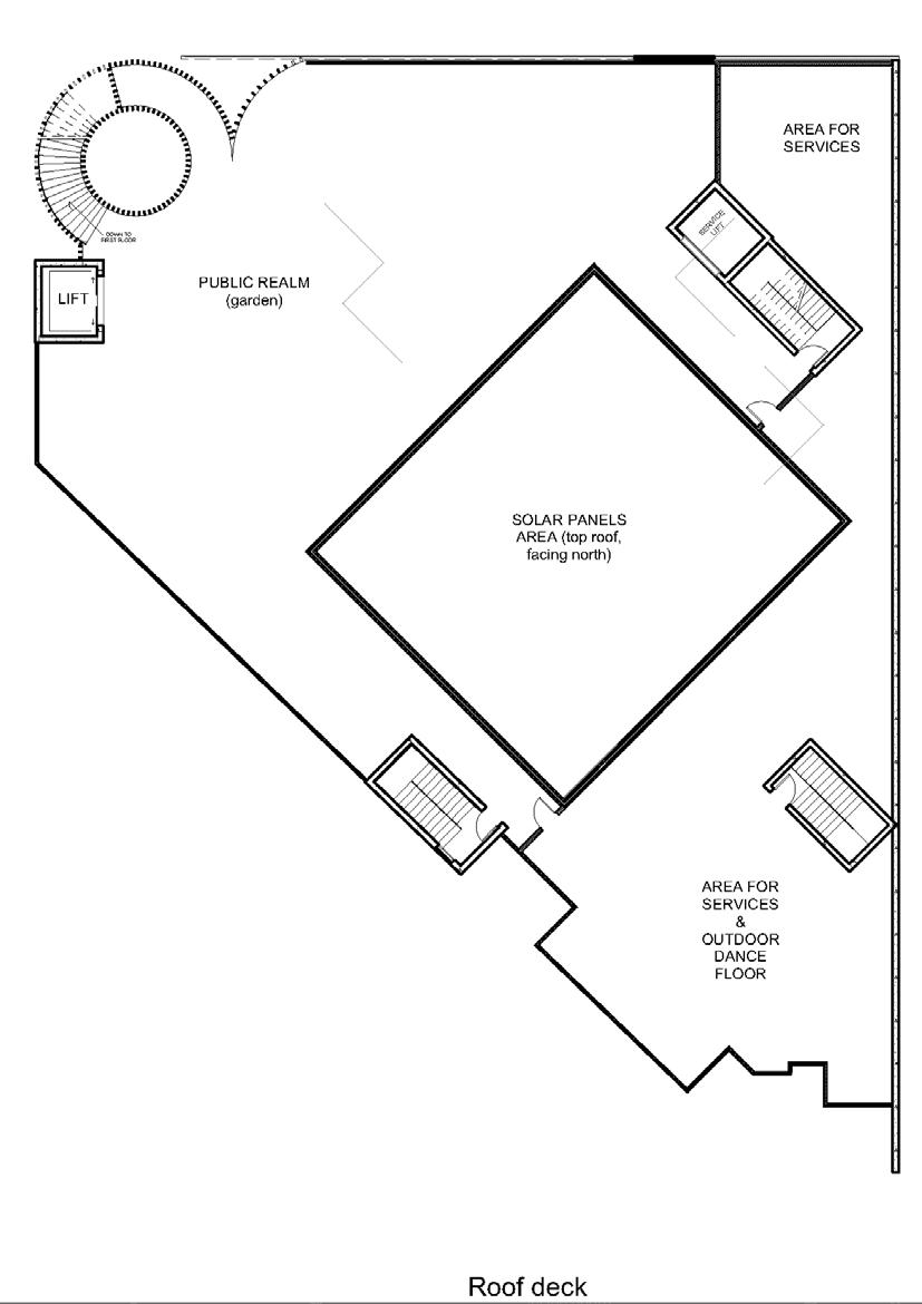
GROUND FLOOR PLAN

GSEducationalVersion ARA INSTITUTE OF CANTERBURY CLIENT: DEPARTMENT OF ENGINEERING AND ARCHITECTURAL STUDIES Student: RONIEL VINCENT ARMAS Student #: 99245201 mobile: 0223988345 email: armas ronvince@gmail com R DO NOT SCALE DRAWINGS CONTRACTOR TO VERIFY ALL DIMENSIONS PRIOR TO COMMENCING WORK PROJECT TITLE: SHEET TITLE: 1 2 3 4 5 6 7 8 10 11 12 13 1 3 4 5 6 8 9 10 11 12 13 D0 10 D0 07 D0 17 D0 16 D 0 13 D0 14 D0 15 D0 11 D0 05 D0 12 D0 01 W0 08 D0 04 W0 02 D0 D0 09 A B D E F G 1 1 4 4 3 10 7,955 1,525 2,410 4,300 7,955 1,525 2,410 4,300 4,520 4,500 1,090 3,410 3,620 900 220 90 130 1,817 90 711 90 449 90 788 530 3,970 132 90 308 1,520 89 710 190 1,461 265 103 162 3,955 90 210 140 50 220 130 17,700 210 140 350 15 11,825 50 140 165 90 5,665 90 2,145 90 1,005 90 2,365 45 300 1,917 90 1,773 50 2,509 3,172 1,058 2,557 2,594 1,405 1,620 810 50 305 90 5,665 90 884 140 536 245 1,280 45 200 2,025 190 195 90 100 90 1,937 90 1,773 T E N A N C Y 2 E N T R Y F O Y E R A C C W C ELECTRICAL / COMMS A C C S H R W C R E C Y C L E FLOOR OVER SOLID CANOPY OVER EXIT EXIT FAP SVR W A T E R F E A T U R E 1 3 1 1 3 2 S E R V C E S STAIR B 8 B 8 A 1 6-1 7 C 2 2 3 3 D0 06 D 0 18 D0 08 L I F T
15

CASHEL STREET BUILDING GROUND FLOOR PLAN

1:100

PROJECT NUMBER: DATE: SCALE: SHEET #:
PROJECT 1: PORTFOLIO FINAL 17/11/2021 1:50, 1:100 3 W0 05 W0 04 W 0 07 W 0 06 D 0 03 02 W0 03 W0 02 N A B D E F G 5 5 6 6 7 7 8 8 4,350 4,350 4,350 1,094 4,350 4,350 4,350 1,090 4,520 4,500 1,090 3,410 3,620 900 18,140 45 350 45 3,910 45 350 45 3,910 45 350 45 3,910 45 350 45 680 140 50 220 9,810 300 344 2,796 1,398 2,796 596 140 54 220 45 4,285 190 45 4,907 90 248 300 90 260 45 1,334 90 1,591 90 3,310 45 350 45 84 141 455 810 1,515 300 1,500 300 1,495 998 511 7,771 164 50 1,773 45 350 45 3,910 45 350 45 1,487 90 2,334 45 350 45 3,910 45 350 45 680 140 50 90 1,623 90 T E N A N C Y 1 GLASS CANOPY OVER EXIT CANOPY OVER P L Y M O U T H L A N E C A S H E L S T R E E T FSI HFSI FMP A 1 6-1 7 C
16

NORTH ELEVATION

WEST ELEVATION

GSEducationalVersion ARA INSTITUTE OF CANTERBURY CLIENT: DEPARTMENT OF ENGINEERING AND ARCHITECTURAL STUDIES Student: RONIEL VINCENT ARMAS Student #: 99245201 mobile: 0223988345 email: armas ronvince@gmail com R DO NOT SCALE DRAWINGS CONTRACTOR TO VERIFY ALL DIMENSIONS PRIOR TO COMMENCING WORK PROJECT TITLE: SHEET TITLE: D3 01 W3 06 W3 05 W3 04 D2 01 D2 02 W2 06 D1 02 D1 01 D W0 03 W0 02 W0 05 W0 04 STRATCO GOLD ALUMINIUM COMPOSITE PANEL WITH 50MM CAVITY ON 3M AIR BARRIER WITH PERMEABLE BACKING 3015VP ANODISED ALUMINUM DOUBLE GLAZED WINDOW JOINERY GLASS FRAMED TO CANTILEVERED CONCRETE BALCONY ANODISED ALUMINUM DOUBLE GLAZED SLIDING DOOR JOINERY ANODISED ALUMINUM DOUBLE GLAZED HINGED DOOR JOINERY ANODISED ALUMINUM DOUBLE GLAZED WINDOW JOINERY 12mm CATEGORY 5 SAFETY GLASS @ 5deg FALL GROUND FLOOR FIRST FLOOR SECOND FLOOR THIRD FLOOR ROOF 8 7 6 5 W2 07 W1 07 W0 07 D3 02* D0 03* GROUND FLOOR FIRST FLOOR SECOND FLOOR THIRD FLOOR ROOF G F E D C
BUILDING ENVELOPE RISK MATRIX NORTH ELEVATION RISK FACTOR RISK SEVERITY RISK SCORE WIND ZONE (PER NZS 3604) LOW RISK 0 NUMBER OF STOREYS MEDIUM RISK 2 ROOF/WALL INTERSECTION DESIGN LOW RISK 1 EAVES WIDTH LOW RISK 1 ENVELOPE COMPLEXITY LOW RISK 1 DECK DESIGN LOW RISK 0 TOTAL RISK SCORE 5 BUILDING ENVELOPE RISK MATRIX WEST ELEVATION RISK FACTOR RISK SEVERITY RISK SCORE WIND ZONE (PER NZS 3604) MEDIUM RISK 1 NUMBER OF STOREYS MEDIUM RISK 2 ROOF/WALL INTERSECTION DESIGN LOW RISK 1 EAVES WIDTH LOW RISK 1 ENVELOPE COMPLEXITY LOW RISK 2 DECK DESIGN LOW RISK 0 TOTAL RISK SCORE 7 17

STRATCO GOLD ALUMINIUM COMPOSITE PANEL WITH 50MM CAVITY ON 3M AIR BARRIER WITH PERMEABLE BACKING 3015VP

ANODISED ALUMINUM SINGLE GLAZED SLIDING DOOR JOINERY

SELECTED PERFORATED 2 5mm STEEL SHEET (POWDER COAT FINISH ) FIXED TO STRUCTURAL STEEL FRAME (PAINT FINISH ). REFER TO ENGINEERS DRAWINGS

ANODISED ALUMINUM DOUBLE GLAZED SLIDING DOOR JOINERY

GLASS FRAMED TO CANTILEVERED CONCRETE BALCONY

ANODISED ALUMINUM SINGLE GLAZED SLIDING DOOR JOINERY

STRATCO GOLD ALUMINIUM COMPOSITE PANEL WITH 50MM CAVITY ON 3M AIR BARRIER WITH PERMEABLE BACKING 3015VP

ANODISED ALUMINUM DOUBLE GLAZED WINDOW JOINERY

SELECTED PERFORATED 2 5mm STEEL SHEET (POWDER COAT FINISH ) FIXED TO STRUCTURAL STEEL FRAME (PAINT FINISH ). REFER TO ENGINEERS DRAWINGS

ANODISED ALUMINUM DOUBLE GLAZED WINDOW JOINERY

GLASS FRAMED TO CANTILEVERED CONCRETE BALCONY

ANODISED ALUMINUM DOUBLE GLAZED WINDOW JOINERY

ANODISED ALUMINUM SINGLE GLAZED SLIDING DOOR JOINERY

ANODISED ALUMINUM SINGLE GLAZED HINGED DOOR JOINERY

PROJECT NUMBER: DATE: SCALE: SHEET #: CASHEL STREET BUILDING ELEVATIONS PROJECT 1: PORTFOLIO FINAL 17/11/2021 1:100 5 04 W3 03 W3 01 W2 01 W2 03 D0 01 D0 04 W0 08 D0 02 W1 01 W1 03 W0 02
4 3 2 1
W3 02 B A
18
1:100 1:100

SECTION B-B

GSEducationalVersion ARA INSTITUTE OF CANTERBURY CLIENT: DEPARTMENT OF ENGINEERING AND ARCHITECTURAL STUDIES Student: RONIEL VINCENT ARMAS Student #: 99245201 mobile: 0223988345 email: armas ronvince@gmail com R DO NOT SCALE DRAWINGS CONTRACTOR TO VERIFY ALL DIMENSIONS PRIOR TO COMMENCING WORK PROJECT TITLE: SHEET TITLE: F E 2 9 2,400 2,150 2,400 1,200 2,400 1,200 2,400 4,520 4,500 13mm GIB AQUALINE (L4 PAINT FINISH ) ON RONDO 310 CEILING BATTEN SYSTEM @ 600 CRS ARDEX 1 5mm DOVE GREY BUTYL RUBBER ADHERED WITH ARDEX WA98 ON 18mm BORNE TREATED PLYWOOD ON DHS 250 400 CRS ENZO MICROGRIP 600X600mm STONE TILE (COAL) OVER COMFLOOR 110 CONCRETE FLOOR SYSTEM REFER TO ENGINEERS DRAWINGS ECOTHERM GLASSWOOL INSULATIONSUPPORTED ON POLYTHENE STRAPPING FIXED TO UNDERSIDE OF PURLINS ENZO MICROGRIP 600X600mm STONE TILE (COAL) OVER COMFLOOR 110 CONCRETE FLOOR SYSTEM REFER TO ENGINEERS DRAWINGS ENZO MICROGRIP 600X600mm STONE TILE (COAL) OVER COMFLOOR 110 CONCRETE FLOOR SYSTEM REFER TO ENGINEERS DRAWINGS 13mm GIB BOARD (L4 PAINT FINISH ) ON RONDO 310 CEILING BATTEN SYSTEM @ 600 CRS 13mm GIB BOARD (L4 PAINT FINISH ) ON RONDO 310 CEILING BATTEN SYSTEM @ 600 CRS D0 16 D0 10 13mm GIB BOARD (L4 PAINT FINISH ) ON RONDO 310 CEILING BATTEN SYSTEM @ 600 CRS 13mm GIB BOARD (L4 PAINT FINISH ) ON 70 X 45mm TIMBER WALL FRAMING (H1 2) @ 600 CRS ON DPC 40mm ECOTHERM GLASSWOOL INSULATION SELECTED FLOOR COVERINGS OVER CONCRETE SLAB FLOOR REFER TO ENGINEERS DRAWINGS ENZO MICROGRIP 300X300mm STONE TILE (MOON) ON 13mm GIB AQUALINE ON 90X45mm TIMBER WALL FRAMING (H1 2) @ 600 CRTS ON DPC ECOTHERM GLASSWOOL INSULATION ROOF ACCESS LADDER 250mm RISERS STAINLESS STEEL HANDRAIL FIXED TO 8mm STEEL BALUSTRADE FIXED TO INSIDE EDGE OF PRE CAST CONCRETE STAIR WITH COUNTER SUNK FIXINGS REFER TO ENGINEERS DRAWINGS ENZO MICROGRIP 300X300mm STONE TILE (MOON) ON 13mm GIB AQUALINE ON 90X45mm TIMBER WALL FRAMING (H1 2) @ 600 CRTS ON DPC ECOTHERM GLASSWOOL INSULATION ENZO MICROGRIP 300X300mm STONE TILE (MOON) ON 13mm GIB AQUALINE ON 90X45mm TIMBER WALL FRAMING (H1 2) @ 600 CRTS ON DPC ECOTHERM GLASSWOOL INSULATION S H R R E C Y C L I N G A R E A S T A I R W E L L V A L V E R O O M S T A I R W E L L S T A I R W E L L R O O F A C C E S S S T O R E S E R V I C E D U C T S E R V I C E D U C T W C S H R W C S H R W C G
19

CASHEL STREET BUILDING SECTION B-B

FORMAN BUILDING SYSTEMS ARMSTRONG PEAKFORM PRELUDE XL2 NOMINAL 24mm TWOWAY EXPOSED CEILING SUSPENSION SYSTEM IN 1200X600mm GRID WITH ULTIMA+ 1914m CEILING TILES INLAID WITH BEVELED SHEET EDGE DETAIL

SELECTED FLOOR COVERINGS OVER COMFLOOR 70 CONCRETE FLOOR SYSTEM REFER TO ENGINEERS DRAWINGS

FORMAN BUILDING SYSTEMS ARMSTRONG PEAKFORM PRELUDE XL2 NOMINAL 24mm TWOWAY EXPOSED CEILING SUSPENSION SYSTEM IN 1200X600mm GRID WITH ULTIMA+ 1914m CEILING TILES INLAID WITH BEVELED SHEET EDGE DETAIL

SELECTED FLOOR COVERINGS OVER COMFLOOR 70 CONCRETE FLOOR SYSTEM REFER TO ENGINEERS DRAWINGS

FORMAN BUILDING SYSTEMS ARMSTRONG PEAKFORM PRELUDE XL2 NOMINAL 24mm TWOWAY EXPOSED CEILING SUSPENSION SYSTEM IN 1200X600mm GRID WITH ULTIMA+ 1914m CEILING TILES INLAID WITH BEVELED SHEET EDGE DETAIL

SELECTED FLOOR COVERINGS OVER COMFLOOR 80 CONCRETE FLOOR SYSTEM REFER TO ENGINEERS DRAWINGS

FORMAN BUILDING SYSTEMS ARMSTRONG PEAKFORM PRELUDE XL2 NOMINAL 24mm TWO-WAY EXPOSED CEILING SUSPENSION SYSTEM IN 1200X600mm GRID WITH ULTIMA+ 1914m CEILING TILES INLAID WITH BEVELED SHEET EDGE DETAIL

SELECTED FLOOR COVERINGS OVER CONCRETE SLAB FLOOR REFER TO ENGINEERS DRAWINGS

PROJECT NUMBER: DATE: SCALE: SHEET #:
PROJECT 1: PORTFOLIO FINAL 17/11/2021 1:50 8 D B A 1 9 1 10 1 11 1,090 3,410 3,620 900 CANOPY WITH ARDEX 1 5mm DOVE GREY BUTYL RUBBER MEMBRANE ON 18mm H3 2 CCA WATER BORNE TREATED PLYWOOD SEE DETAILS RUBBER MEMBRANE H3 2 CCA WATER 250/18 PURLINS (H1 2) @ SELECTED PERFORATED 2 5mm STEEL SHEET (POWDER COAT FINISH ) FIXED TO STRUCTURAL STEEL FRAME (PAINT FINISH). REFER TO ENGINEERS DRAWINGS D0 06 D3 04 D1 06 D2 06 D3 06 D3 03 W3 02 D2 03 ANODISED ALUMINUM DOUBLE GLAZED SLIDING DOOR JOINERY MASON 4 5mm FIBRE CEMENT SOFFIT (TO BE INSTALLED WITH LAZER LEVEL OR SIMILAR TO ENSURE NO MORE THAN 1mm VARIATION IN HEIGHT ). STRATCO 4mm GOLD ALUMINIUM COMPOSITE PANEL WITH 50MM CAVITY ON 3M AIR BARRIER WITH PERMEABLE BACKING 3015VP
L O B B Y L O B B Y L O B B Y E N T R Y F O Y E R L I F T S E R V I C E D U C T S E R V I C E D U C T GROUND FLOOR FIRST FLOOR SECOND FLOOR THIRD FLOOR ROOF GROUND FLOOR C 1:50 20

600

PARAPET REAR FACE FIXED TO BUILDING BY 8GX1" min SS PAN SCREW BY STRATCO

ACP ANGLE FIXED TO BUILDING BY 10GX2" min SS CSK SCREW BY STRATCO

ARDEX 1 5mm DOVE GREY BUTYL RUBBER MEMBRANE RETURNED DOWN FRONT FACE OF BUILDING BY 50mm MIN

FIXING AT JOINT STANDARD FIXING DETAILS

18mm H3 2 CCA WATER BORNE TREATED PLYWOOD

4mm ALUMINIUM COMPOSITE PANEL BY STRATCO

150PFC STEEL BEAM

3M AIR BARRIER WITH PERMEABLE BACKING 3015VP

PARAPET DETAIL 1:10

ARDEX 1 5mm DOVE GREY BUTYL RUBBER MEMBRANE ADHERED WITH ARDEX WA98

18mm H3 2 CCA WATER BORNE TREATED PLYWOOD DHS 250/18 PURLINS @400 CRS

FILLET

ECOTHERM GLASSWOOL INSULATION

GSEducationalVersion ARA INSTITUTE OF CANTERBURY CLIENT: DEPARTMENT OF ENGINEERING AND ARCHITECTURAL STUDIES Student: RONIEL VINCENT ARMAS Student #: 99245201 mobile: 0223988345 email: armas ronvince@gmail com R DO NOT SCALE DRAWINGS CONTRACTOR TO VERIFY ALL DIMENSIONS PRIOR TO COMMENCING WORK PROJECT TITLE: SHEET TITLE: 35mm MIN 50mm MIN E1 GUTTER DEPTH 5°
50 mm CAVITY DRAINED & VENTED 30mm MIN
1
2
GUTTER DETAIL 21
INTERNAL

AIR SEAL

ECOTHERM GLASSWOOL INSULATION

3M AIR BARRIER WITH PERMEABLE BACKING 3015VP DRESSED INTO OPENING

MASON 4 5mm FIBRE CEMENT SOFFIT LINING LINE OF 4MM COMPOSITE PANEL (CLADDING) BEYOND

38 X 18mm TIMBER TRIM

MAGNUM 50 SLIDING DOOR INTO 100mm SHOPFRONT WITH DUO SLIDER

LINE OF 4MM COMPOSITE PANEL (CLADDING) BEYOND

12mm MINIMUM GAP BETWEEN FLOOR DECK AND THRESHHOLD

35mm MINIMUM GAP OF THE BASE OF COMPOSITE PANEL CLADDING FROM FLOOR DECKING

OUTDURE 138 X 23mm CASADECK COMPOSITE BOARD

OUTDURE QWICKBUILD 13 X 45mm PROFILE JOIST @ 450mm CTRS

OUTDURE QWICKBUILD 90 X 45mm PROFILE BEARER @ 450mm CTRS

ARDEX 1 5mm DOVE GREY BUTYL RUBBER MEMBRANE

OUTDURE QWICKBUILD HEIGHT ADJUSTABLE PEDESTAL

COMFLOOR CONCRETE SYSTEM

PROJECT NUMBER: DATE: SCALE: SHEET #: CASHEL STREET BUILDING DETAILS PROJECT 1: PORTFOLIO FINAL 17/11/2021 1:10, 1:5 9
BORNE CRS
BUTYL ADHERED
35mm MIN 12mm MIN
1:5 3 DOOR DETAIL 1:5 22
23

Imaginary City

A project in Year 1 for Architectural Communications showing One, Two, and Three Point Perspectives of an imagined city. An imaginary Clock Tower became the landmark in all the drawings. The tower was inspired by a “Bamboo Shoot”, reminding people that “Growth and progress needs time. Eventually, the bamboo will grow strong and resilient against typhoons but still know how to bow, a humble gesture.”

24
25
26

The 12 Summits: ArchEngBuild Challenge | 2022

Archicad | Adobe Illustrator | Enscape

WITH: ALEX KIRBY (Engineer) and ELLIE GRAHAM (Construction Manager)

Theme:

Creating high performance low carbon medium density housing for the future:How can we get better performing buildings with a smaller carbon footprint at the same or lower cost, and that facilitate lower carbon lifestyles?

Purpose:

In order to help the New Zealand built environment contribute to obligations as outlined in the Zero Carbon Act and the United Nations Framework Convention on Climate Change (UNFCCC) Paris Agreement, the purpose of ArchEngBuild 2022 will be to design a high-performance Medium Density Housing (MDH) building

• with a low embodied carbon and operational energy demand

• that facilitates the occupants to live lower carbon lifestyles.

While the focus of this challenge is reducing the building’s operational and embodied carbon footprint, you should remember that people are at the centre of design.Your building design should be:

• pleasant to live in,

• accessible,

• affordable,

• warm,

• dry,

• healthy,

• and facilitate lower carbon living.

4,000 8,000 12,000 ENTRY DINING AREA RECEIVING AREA KITCHEN BATHROOM OFFICE DEN BEDROOM 1 SERVICE GARAGE FOYER 1 Ground Floor 1:50 MASTERS BEDROOM BEDROOM 2 W- -C BATHROOM LIVING AREA DECK LAUNDRY STORAGE BALCONY 1 First Level 1 50
27
Greywater filtration system and Rainwater catchment system ‘smart HWC’ LED Lights Natural Lighting and heating through sun path orientation 15 degree pitch gable trusses Permeable Concrete Driveway LVL Joists Gib EzyBrace for bracing N CRANBROOK PL CROSSFIELD ROAD 1 Master Site 1:500 Prevailing Winds in Summer Location for supporting facilities: 1) Recycling Facility 2) Potential HomeBiomass 3) Compost Facility 1) Water Tank for Rainwater catchment and greywater storage Bicycle storage and E-bike charging shed. Vehicular access Community Garden 28

Barnacle: SAANZ 24hr Design Competition | 2022

WITH: Estefania Mondaca, Bethany Ngui, Will Chomchoei and Holly Barry

Theme:

The year is 2040. Tamaki Makaurau Auckland has been ravaged by sea level changes and mega storms hit the city every other week, turning it from a sunny utopia into a waterlogged wasteland. Supreme Leader of the Republic, Jacinda Ardern, is commissioning a new city on the storm-ravaged remnants of Auckland.

Oh, and did we mention you have to cohabitate with aliens?

Hand Drawn | Archicad | Adobe Illustrator | Adobe Photoshop | 3DS Max
29
30

A 3D Model of The Cathedral of Christ the Light (New Zealand, 2022)

One of the requirements for a Case Study in Year 3 at ARA Institute of Canterbury. It is a group research and analysis of an existing Architectural Building, which for us was The Cathedral of Christ the Light located in Oakland, California.

Christmas Lantern Design Competition (Philippines, 2017)

I was invited in a group of creative people with my brother to create this Christmas Lantern that will represent our Municipality in the Provincial Christmas Lantern Competition. We were awarded as the First Placer.

31
One of the projects I worked on within a group back when I was studying Architecture in the Philippines. This scaled model was one of the requirements for a Design Studio Project.
32
College of Architecture & Fine Arts Building Proposal (Philippines, 2015)

“Architecture is either driven by following a culture or developing another culture. It has the power to impose an activity through deep research and understanding of human behavior in relation with spaces.”

Turn static files into dynamic content formats.

Create a flipbook
Roniel Armas - Architecture Portfolio '23 by Roniel Vincent Armas - Issuu