rfrm_cv+portfólio_arq+dsg_2024

Page 1


MATA, Ronald Fonseca Ribeiro

23 OUTUBRO 1993

RJ / rua júlio de castilhos 56 copacabana rio de janeiro rj brasil

arquiteto trabalhador, altamente motivado, capaz de trabalhar de forma independente ou em equipe Sou uma pessoa comunicativa e engenhosa habituada a adaptar-me a diversos ambientes mantendo-me participativo, criativo e preciso.

a hard-working, highly motivated professional, able to work independently or as part of a team. I am communicative and resourceful person used to adapting to different environments whilst remaining participative, creative and precise.

atuação profissional

2017

2019 GSD1x: The Architectural Imagination – Harvard University Graduate School of Design – Harvard-X EDX / USA; Graduação em Arquitetura e Urbanismo - Centro Educacional Nossa Senhora Auxiliadora, CENSA, Brasil;

2017 REVIT 2017 (Carga horária: 16h).

2014

2021 - ATUAL

Autodesk Autocad 2010. (Carga horária: 40h). ArqLux, ARQLUX, Brasil;

FEU Arquitetura, Brasil

Enquadramento Funcional: Arquiteto; Arquiteto com experiência em exexutivo, projeto para legalização, LICIN e estudo e concepção de arquitetura 2D e 3D com conhecimento em coordenação de equipe e execução

2021 FINGERS DESIGN, Brasil

Enquadramento Funcional: Arquiteto Júnior / Duração: 06 meses

Arquiteto na equipe de Arquitetura atuando no desenvolvimento de projetos do escritório Estudos de arquitetura comercial, anteprojeto, projeto executivo, compatibilização e detalhamento, apresentações, contato com fornecedores e planejamento

FEU Arquitetura, Brasil

Enquadramento Funcional: Arquiteto Júnior / Duração: 06 meses

- 2019

prêmios

trabalhos+ atividades extracurriculares

- 2015

Arquiteto na equipe de estudos diretamento ativo na criação de projetos, representação 2D e 3D com estudo de materiais, formas, maquetes fisicas e virtuais, apresentações para reuniões, estudos de viabilidade e direção estética

Studio+2 Arquitetura, Brasil

Enquadramento Funcional: Estagiário (2015-2017); Arquiteto (2017-2019) Entrei como estagiário e fui contratado como Arquiteto em 2017, logo após graduação Atuava no desenvolvimento de projetos do escritório Estudos de viabilidade, anteprojeto, projeto legal, executivo, compatibilização e detalhamento, além de representação gráfica 2D e 3D

Coordenadoria de Avaliação da Prefeitura Municipal de Campos, Brasil

Enquadramento Funcional: Estagiário / Duração 07 meses

Gestão de arquivos, laudos e ofícios, levantamento as built, confecção de memoriais, organização e planejamento 2019 - 2020

1º Lugar / Projeto Vencedor – Fachadas

Concurso Juntos se Monstram / Mostra Virtual Brasil

Voluntário no TETO Brasil – Rio de Janeiro/RJ

Núcleo de Habitação (NUHAB), ISECENSA, Campos/RJ

Artigo Publicado – Participante

Análise dos Espaços Urbanos Destinado ao Assentamento de Habitação de Interesse Social: Políticas, Temporalidades e Evidências sócio-espaciais

Monitor_ Projeto Integrado de Arquitetura, Urbanismo e Paisagismo

ISECENSA Campos dos Goytacazes / RJ

Exposição IAB – Novas Centralidades Sócio-Espaciais: Lugar de inserção dos pobres na habitação de interesse social (NUHAB)

Artigo Publicado – Equipe

O planejamento da habitação de interesse social e seu reflexo no meio urbano: algumas prática e suas articulações.

V CICC - Congresso Internacional do Conhecimento Científico do ISECENSA Sustentabilidade na Habitação Social: Valorização na Reciclagem e Racionalização de Recursos Naturais

Concurso – URBAN 21 Equipe

Windows / Mac OS, Microsoft Office, Adobe (Photoshop & Illustrator)

pink caffè

2019 / MATZ Arquitetura, + J.RIBEIRO Arquitetura Projeto de uma cafeteria em uma loja comercial. Jardim Botânico, Rio de Janeiro, Brasil.

O PINK CAFFÈ, foi projetado com base em duas vertentes: uma, na ideia de criar uma atmosfera acolhedora, como um abraço de mãe, promovendo um ambiente com calmaria e tranquilidade, capaz de despertar empatia e aliviar sentimentos como solidão, efeitos estes comprovados cientificamente A outra visa dar destaque a localização no Rio de Janeiro, uma grande cidade que além de ter toda sua beleza natural possui uma vida muito agitada e turbulenta, muitas vezes caótica, representada pelo concreto, a iluminação industrial e o neon

O partido do projeto foi setorizar toda a parte de serviço dentro de uma caixa rosa, abrigando esta: a estação de preparo, o balcão de atendimento, o caixa e os banheiros Para gerar contraste, foi criado no salão um conjunto gráfico, representado tanto pelo ladrilho hidráulico que compõe o piso, quanto pela malha pop de vergalhões sobrepostos em tijolos existentes caiado Um grande banco pré-moldado de concreto cria um extenso lounge que convida o público para o convívio coletivo A partir disso, a escolha do mobiliário segue uma linha mais simples e informal, em tons amadeirados, onde o verde musgo das banquetas realçam o contraste com a caixa rosa

A estrutura da fachada da cafeteria em madeira plástica encapsulada impressa em 3D tem dupla utilidade: além de trabalhar como um estilo de fachada ventilada criada para barrar a insolação direta e prover a ventilação entre o elemento e a face do vidro, é de excelente custo-benefício e é proveniente de material reciclado com co-extrusão.

casa mb

2020 / MATZ Arquitetura, Projeto de uma residência unifamiliar. Quissamã, Rio de Janeiro, Brasil.

Buscando uma linha mais moderna e tentando integrar ao maximo o ambiente externo com o interno porem ainda com privacidade, a proposta para o projeto foi apresentar uma planta com layout social totalmente voltado para o jardim Esquadrias de vidro iluminam o ambiente naturalmente, que possui pe direito duplo na area de jantar

A sala de estar possui esquadrias em vidro do piso ao teto para o espaco gourmet e piscina, que se integram completamente quando abertas A proposta da cozinha busca tirar proveito da iluminacao e ventilacao natural, possuindo acesso pelo corredor de entrada assim como pela area social, sendo possivel seu isolamento com portas de correr embutidas no painel

2020 / MATZ Arquitetura, Projeto de um bangalô na regiao serrana. Itaipava, Rio de Janeiro, Brasil.

Projeto busca simplicidade em linhas retas e planos abertos em vidro para aproveitar a iluminação natural e dar destaque para a serra carioca A simplicidade do projeto busca colocar em destaque o mobiliario Por exemplo, a sala e ocupada pela Chaise-Longue Rio, um classico do mobiliario brasileiro com quase quatro decadas de existencia. O projeto visou deixar o espaço mais inclusivo com a natureza possível, tendo abertura nas quatro fachadas para o exterior E para o banheiro, que foi criado no modulo central, um jardim interno cria o mesmo link, possuindo abertura na cobertura para entrada de luz e ventilação natural

cosmopolitan

O Bar e Restaurante The 1920 se inspira na década de 20, como seu nome já sugere, possuindo aspéctos ds movimentos Art Noveau, Art Deco e Modernismo Seu espaço interno foi projetado de forma elegante e luxuosa, em tons sóbreos, aproveitando a iluminação natural e também utilizando alguns recursos de iluminação artificial. O bar se encontra logo na entrada com um total de quinze assentos junto ao balcão de design original

A “casca” , elemento desenhado para ficar atrás do bar e causar uma ligação entre o inicio do Modernismo e o tempo contemporâneo é iluminado por iluminação LED que fica na parte posterior do balcão, iluminação esta que permite variação de cores, criando um efeito interessante A casca se baseia em uma estrutura de aço parcialmente revestida com placas ACM em uma cor clara, para que a parte voltada para o bar seja iluminado dependendo da cor proposta

2015 / ISECENSA.

Projeto de Interiores II / Bar e Restaurante

Orientador: Professor Luís Gustavo de Souza Xavier Nota Final: 9.3/10.0

PlacasACMnacorbrancacortadasa laserepresasnaestruturadeaço.

Estruturadeaçocriadaparadarsuportee criaraformade“onda”nacasca.

apto jc

Com 40 m², situado no centro do Rio de Janeiro, a habitação tinha como premissa principal continuar sendo a moradia de um jovem advogado A localização do apartamento está de acordo com as necessidades do morador, próximo do trabalho, das atividades culturais que o mesmo gosta de fazer como museus, teatros e cinema O apartamento apresentava uma planta mal distribuída e com pouca iluminação, pois, respeitava uma tripartição burguesa que setoriza área íntima, de serviço e lazer

O conceito Inicial da reforma se descreve no novo modelo de moradia, onde começamos a projetar o apartamento pelas atividades que o morador precisava fazer, entre elas receber; dormir; comer; estudar e assim por diante e não setorizando áreas Traduzimos esta proposta em uma grande marcenaria do início do apartamento até o final, a qual embutimos lavanderia, guarda-roupa, home office, cozinha e um banco/baú, que atenderia a mesa de jantar O conceito da habitação híbrida foi firmado pela utilização do piso laminado em todo o apartamento e pelo projeto luminotécnico resolvido com um grande trilho, onde o morador tem a mobilidade de movimentar os focos de luz conforme as atividades necessárias.

2019 / MATZ Arquitetura + j.ribeiro Arquitetura projeto de reforma para apartamento de 40m² centro, rio de janeiro / BRASIL

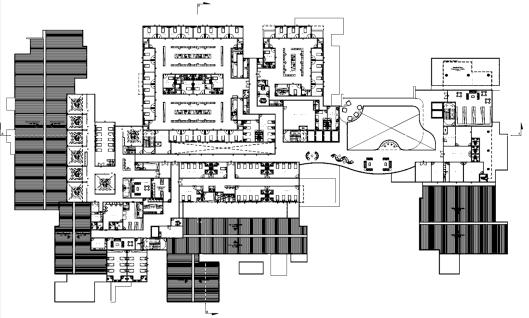
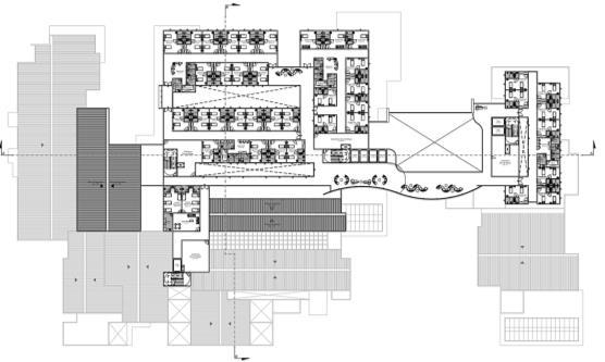
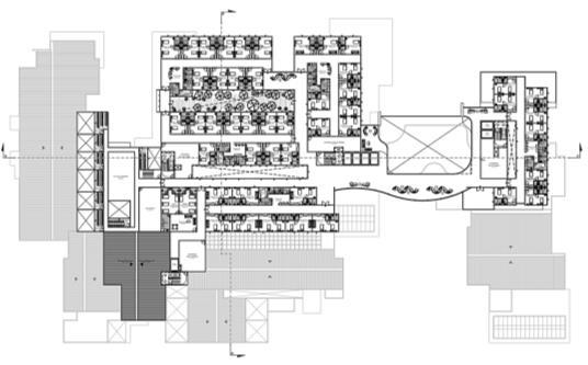
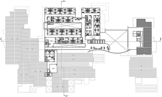
hospital universitário

A importância deste trabalho é o estudo sobre o tema Hospital Universitário, no qual visa atender as necessidades de modernização e estruturação de hospitais no Brasil, os quais tenham capacidade de dar assistencia à população sem torna-los carentes de serviços e caóticos Um dos casos mais frequentes relatados pela população é a falta de leitos e equipamentos para serviços de direito que merecemos receber.

O Hospital Universitário na Zona Portuária, que se encontra localizada no centro da cidade do Rio de Janeiro, em uma área de requalificação e reestruturação urbana, teria o benefício de trazer uma maior rotatividade de pessoas para o ambito no qual é a principal proposta do projeto do Porto Maravilha Além disso, sua integração com os novos sistemas de transporte público que estão sendo instalados naquela área traria um beneficio à população, que poderia usufruir da locomoção mais facil e rápida, já que esta é integrada com os transportes públicos existentes

2017 / ISECENSA.

Trabalho de Conclusão de Curso

Orientador: Professor Carlos Eduardo M. de Barros

Nota Final: 9.4/10.0

O terreno fica em área de grande fluxo, fazendo ligação com avenidas e vias expressas que circulam para várias regiões importantes da cidade, como a Avenida PresidenteVargas,AvenidaBrasil,CentraldoBrasil, Rodoviária Novo Rio, dentre outras, além de pontos turísticos como o Museu do Amanhã, Boulevard Olímpico e grandes hospitais como o INTO

+36,10 m

9th FLOOR / 9º PAV. Heliponto.

+32,10 m

8th FLOOR / 8º PAV. CoberturaeTelhado

+28,10 m

7th FLOOR / 7º PAV. Internações– 57Leitos

+24,10 m

6th FLOOR / 6º PAV. Internações– 57Leitos

+20,10 m

5th FLOOR / 5º PAV. Internações– 57Leitos

+16,10 m

4th FLOOR / 4º PAV. Internações– 57Leitos

+12,10 m

3rd FLOOR / 3º PAV. Internações– 73Leitos

+8,10 m

2nd FLOOR / 2º PAV. Internações– 89Leitos

+4,10 m

1st FLOOR / 1º PAV. UTIeCTI,SetorCirúrgicoeEducacional

+0,10 m

GROUND FLOOR / TÉRREO SetorLogísticaeAtendimento EmergênciaeAmbulatório

Turn static files into dynamic content formats.

Create a flipbook
Issuu converts static files into: digital portfolios, online yearbooks, online catalogs, digital photo albums and more. Sign up and create your flipbook.