Portafolio Tamara Romero Barrientos

Page 1


TAMARA ROMERO B.

Perfil Profesional

Proyecto Container

Proyecto Casino Toyota

Proyectos Display’s / Retail 03 04 05 06 07 08 09

Proyectos Choros y criollos

Proyectos Campañas Gráficas

Proyecto Punto de Venta

Con 5 años de experiencia en diseño de espacios comerciales, me he especializado en Retail gastronómico y Retail convencional. Mis competencias abarcan la generación de propuestas de diseño, levantamientos de espacios, planimetrías, modelos 3D y renders.

He supervisado la ejecución de proyectos gastronómicos y he desarrollado propuestas de material P.O.P, adaptando gráficos y mobiliario. Mi portafolio incluye el diseño de espacios diversos como cafeterías, casinos corporativos, puntos de venta, displays, exhibidores de productos, stands y mobiliario.

Además, como Diseñadora ArquiFoam, he creado exhibidores y P.O.P innovadores con el material sostenible Pta Ecoprint, priorizando la funcionalidad y la sostenibilidad. Mi enfoque se centra en la creación de experiencias visuales efectivas y amigables con el medio ambiente para resaltar la marca y satisfacer a los clientes.

Tamy.romero.barrientos@gmail.com

+56986292437

Tamara Romero Barrientos

www.behance.net/tamaromerob

Intereses

Habilidades

Autocad

Brandisplay

Como Diseñadora ArquiFoam, diseñé una amplia variedad de exhibidores y P.O.P, utilizando técnicas innovadoras y el material sostenible Pta Ecoprint. Este material, hecho de polipropileno, se caracteriza por su sostenibilidad. Los exhibidores que diseñé y se produjeron no solo eran visualmente atractivos, sino también altamente funcionales, fáciles de armar y respetuosos con el medio ambiente.

Experiencia

Grupo Gourmet

Con Grupo Gourmet obtuve 4 años de experiencia en el Retail gastronómico. Mi labor como diseñadora, consistía en ser encargada de proyectos, en los cuales realicé levantamientos planimétricos, diseñé, modelé en 3d y rendericé propuestas de diversos tipos. Como por ejemplo: casinos corporativos, cafeterías, puntos de ventas y mobiliario. Supervisé directamente la fabricación e implementación del proyecto. Además instruí y enseñé los software de modelado y renderizado.

Partner Display / Holding Partner

En esta empresa generé 1 año de experiencia en Retail convencional.

Fui la encargada del área de diseño en partner display. En la cual desarrollé diversas propuestas de Stands, mobiliario, puntos de venta, material gráfico, material P.O.P para varios clientes. Desarrollé planos de construcción de mobiliario y adapté piezas gráficas para la implementación de estos mismos.

Proyecto Container Propuesta cafetería

Propuesta de cafetería modular, lo cual le otorga un plus, al ser un punto de venta fácil de instalar y de implementar en diversos lugares.

Al ser un container diseñado específicamente para uso de cafetería, cuenta con las conexiones adecuadas para su funcionamiento apropiado, entrada y salida por la parte posterior, dos aberturas en el frontis, por la cuales se encuentra la venta y entrega de productos

En su interior posee muebles, con guardado para mantener el espacio de trabajo en orden.

Cuenta con equipos como mantenedor caliente sobre mesón (BredenMaster), plancha doble contacto, máquina de jugo natural, máquina de café barista, Horno convector, lavamanos doble, visicooler doble, vitrina fría.

Cuenta con un mobiliario de alto tráfico, acorde a la línea de diseño de la cafetería modular. Además, posee unos separadores con flores para embellecer el espacio para que los comensales se sientan a gusto en el lugar. Las tonalidades usadas son negro, blanco y amarillo, los cuales se complementan para destacar a la cafetería y su mobiliario como tal. Se complementó con maderas oscuras para continuar con la línea del diseño generando una armonía en este.

Paleta de colores

Mobiliario sugerido

Paleta de materiales

Propuesta de diseño para los siguientes espacios: casino, isla autoservicio y terraza para Toyota Chile.

En cuanto a la ambientación usamos como inspiración al diseño moderno japones. En el cual predomina el uso de concreto, la madera clara o natural, acero y tonos neutros, para darle más realce, se decidió implementar el color rojo como adicional, para mantener una armonía, haciendo un guiño a la bandera japonesa y color utilizado por la marca Toyota.

Proyecto Casino Toyota Propuesta

Los equipos gastronómicos fueron propuestos con sus respectivas cubiertas de acero a la vista, mientras que el cuerpo fue empotrado en los muebles, para darle un aspecto más limpio y ordenado.

En este casino se utilizó mesas altas para darle más dinamismo a los espacios para los comensales, como también un sector de terraza con el mismo fin.

Propuesta realizada bajo la empresa Grupo Gourmet.

Paleta de colores

Propuesta de diseño para la sanguchería peruana, Choros & Criollos.

Al igual que con el casino Toyota este proyecto fue realizado e implementado bajo la empresa Grupo Gourmet.

Actualmente la sanguchería se encuentra ubicada en la región de Valparaíso, Chile. Y tiene un Instagram con el mismo nombre.

Proyecto Choros & Criollos

Propuesta Sanguchería

Para la propuesta de diseño para la sanguchería peruana. Se utilizó un diseño industrial para la ambientación, en la que destaca el uso de enchape de ladrillos, sillas tólix, uso de gráficas tiza, lámparas en tonos cobre, entre otros.

Los equipos gastronómicos fueron propuestos empotrados bajo mesón, para darle un aspecto más limpio y ordenado, fuera de la vista de los comensales. Inicialmente se propuso que la sanguchería tuviera solo mesones barra para los comensales.

Paleta de colores
Paleta de materiales
Mobiliario sugerido

/

En cuanto al área de Display / Retail desarrollé diversos tipos de propuestas.

En las cuales se buscó generar la mejor opción para el cliente, que fuera funcional, limpio y con excelentes terminaciones, dependiendo del requerimiento solicitado, manteniendo y/o generando una línea de marca.

La mayoría de las propuestas consistían en: traseras, góndolas, exhibidores de productos, muebles, glorificadores, stands, material gráfico, material P.O.P y propuestas para campañas.

Algunos de estos clientes son: Canon, TCL, Eufy, Philips, Ecogar Outlet, Royal Canin, Asics, entre otros.

Renders de proyectos propuestos y realizados bajo Display, los cuales pertenecen a Partner Display.

Dentro de la misma área de display, tuve como desafío desarrollar gráficas como también material P.O.P, modificar y adaptar diversos tipos de material gráfico para las implementaciones. Ya sea para mobiliario, pendones, letreros volumétricos, cajas de luz con publicidad, glorificadores, entre otras, para los diversos clientes que tenía el área de display.

También tuve que realizar propuestas para las campañas de Ecogar Outlet: Fiestas Patrias, primavera, navidad y año nuevo 2023. Además del stand de la feria materia prima.

Así mismo desarrollar exhibidores y mobiliario para sus productos, con sus respectivos artes (Originales), manteniendo la línea gráfica de la marca en cuestión.

Propuesta Flejeras Asics

Campañas y gráficas

Propuesta campaña navidad Ecogar outlet

Propuesta campaña año nuevo 2023 Ecogar outlet

Propuesta Alzador IPL lumea, Ecogar outlet

Proyecto Macarons

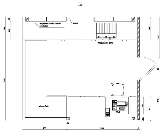
Propuesta punto de venta

Cafetería modular ficticia, diseñada para estar en lugares con alta afluencia de público, como por ejemplo centro comerciales, aeropuerto, terminales de buses, entre otros.

Punto de venta compacto, equipado con lo necesario para tipo de venta caliente e impulsiva. Su especialidad será el café junto con postres como macarrones, pasteles y jugos naturales.

Equipado con máquina de café barista y una vitrina fría diseñada a medida, para conservar los macarrones y postres a temperatura ideal.

Las tonalidades usadas son blanco y gris claro, los cuales se complementan para destacar a la cafetería dándole un aspecto más limpio y sofisticado.

En el antepecho de los muebles se utilizó un patrón con triángulos con tonos amarillos, azules y gris, para darle un dinamismo al punto de venta. Se complementó con maderas claras y naturales para continuar con la línea de diseño generando una armonía.

Paleta de colores y materiales

Turn static files into dynamic content formats.

Create a flipbook
Issuu converts static files into: digital portfolios, online yearbooks, online catalogs, digital photo albums and more. Sign up and create your flipbook.
Portafolio Tamara Romero Barrientos by Tamara Romero - Issuu