

ROMARIO BRITO
Brasileiro | 30 anos Belém britoromario3@gmail.com instagram.com/britoromario3
![]()


Brasileiro | 30 anos Belém britoromario3@gmail.com instagram.com/britoromario3
Mestrado em Arquitetura e Urbanismo | Universidade Federal do Pará, 2023.
Graduação em Arquitetura e Urbanismo | Universidade Federal do Pará, 2019.
Bolsista PIBIC | Estudo de processos de modernização em Belém como subsídio para a História Urbana (1896 - 1960), 2017.
Bolsista CAPES | intercâmbio internacional | Olivier Gerval Fashion + Design Institute, Paris, 2014 - 2015.
Curso de representação arquitetônica e urbana | Curso [CURA] online, 2022.
Curso de representação gráfica de projetos arquitetônicos, online | PALMA Arquitetos, 2020.
EBOOK | Entre travessias e atravessamentos: um pouco sobre a realidade das ilhas de Cotijuba e do Combu em Belém (PA). Universidade Federal do Pará, 2022 (coautor).
ARTIGO | Espacialidades da várzea amazônica: os casos de Afuá, Mocajuba e Belém. Revista Paranoá, 2021 (coautor).
OUTROS IDIOMAS
Autocad, Saketchup, V-Ray, Indesign, Illustrator e Photoshop, Rhinoceros 3D. Inglês Francês Espanhol
DETALHAMENTO DE ESTRUTURA PARA LOJA
CASA NO GUAMÁ
RESIDÊNCIA UNIFAMILIAR
LOFT DO ARTISTA

Disciplina:
Autores: Lobato
Ano: Minha boração
Programas: tor.
Descrição: uma pessoa mercial já reduzido, tes: sala ampliado baseada que remetessem
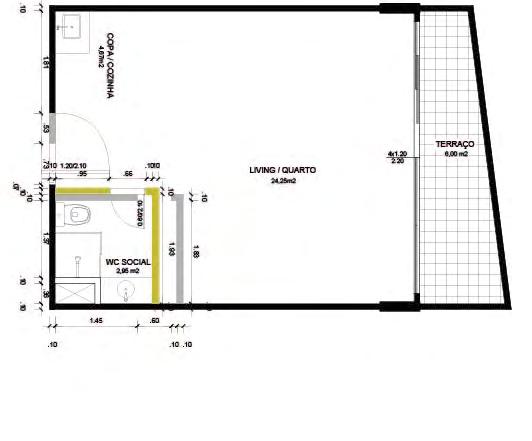
do piso: 39 m².
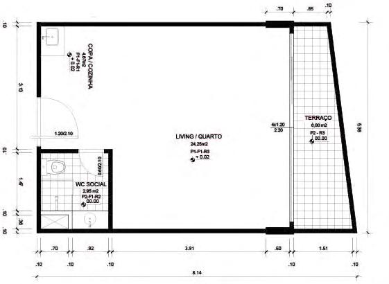
Disciplina: Tecnologia das Construções V.
Autores: Romario Brito, Glenda Assunção, Filipe Menezes, Manoel Lobato e Edjan Carvalho. 2016.
Minha contribuição: Participação na concepção do projeto e na elaboraboração dos layouts, dos cortes, diagrama e redenrização. Programas: Autocad, Sketchup, V-ray, Indesign, Photoshop e Illustra-
Descrição: Anteprojeto de interiores para um flat hipotético destinado a pessoa solteira. A proposta incial era converter uma antiga sala comercial para esse tipo de unidade habitacinoal. Para otimizar o espaço reduzido, o programa de necessidades se dividiu em quatro ambiensala de estar, mais quarto integrado; cozinha, banheiro — que foi ampliado no seu lugar de origem — e varanda. A decoração proposta é baseada em cores neutras, estrutras metálicas leves e texturas de objetos remetessem à madeira.




do geral do flat.

geral do flat.















Layout.

Planta baixa construtiva.

ALVENARIA A PERMANECER.
ALVENARIA ELIMINADA.
ALVENARIA EM BLOCO CERÂMICO.
F1 - FORRO EM GESSO ACARTONADO.
R1 - PASTILHAS RITMOS SAMBA 12.
R2 - PORCELANATO CRAYON BEGE.
R3 - PINTURA ACRÍLICA.
P1 - PORCELANATO OFF-WHITE BOLD, 45X45CM
P2 - PORCELANATO DURAMAX WHITE, 45X45CM



Área Área
Disciplina:
Autoria
Ano:
Programas:
Descrição: de uma dessem um centro boração desses
do piso: 17 m² (o módulo). do mezanino: 13 m² (do módulo).
Disciplina: Projeto Arqutetônico IX. Autoria própria. 2018.
Programas: Autocad, Sketchup, Vray, Indesign, Photoshop e Illustrator.
Descrição: A intenção é fazer o detalhamento arquitetônico executivo uma estrutura modular para estabelecimentos comcerciais que pudessem ser facilmente implantadas, alteradas ou removidadas em/de centro comercial proposto. Esse detalhamento perpassa pela elaboração de plantas baixas, layouts, detalhes contrutivos, cortes e vistas desses módulos em madeira e placas de gesso laminadas.

Implantação da loja no interior do centro comercial.

3D do exterior da loja.
Placa de gesso laminada revestida com película de cartão amadeirada.
Prateleira metálica para depósito de produtos.
Provadores de gesso acartonado amadeirado.
Escada helicoidal metálica.
Laje de concreto armado.












Elevação 1.





Localização:
Autoria
Ano:
Programas: tor.
Descrição: existente tro pessoas demanda pouco reunir, adequada hóspedes.
Localização: Passagem Napoleão Laureano, Guamá, Belém.
Terreno: 98 m².
Construída: 152 m².
Autoria própria.
2018
Programas: Autocad, Sketchup, V-ray, Indesign, Photoshop e Illustra-
Descrição: a ideia deste estudo é reimaginar uma moradia unifamiliar já existente nessa localização. Os moradores são uma família de por quapessoas - a avó, mãe e dois filhos adultos. Os usuários tinham como demanda que a casa fosse de dois pavimentos e que a cozinha fosse um pouco maior, pois é onde as pessoas da família e visitas costumam se reunir, mais até que na sala de estar. Outros foram: uma área de serviço adequada para lavar e estender roupas e um escritório reversível para hóspedes.

Fachada.


Setorização térreo e 1o pavimento.

Social Íntimo
Social + serviço
Circulação linear
Circulação vertical
Jardim interno
Situação.
Layout térreo.
Layout 1o pavimento.







Localização:
A. Terreno:
A. Construída:
Disciplina:
Autores: Ano: Minha raboração
Programas: tor.
Descrição: casa fillhos ela deveria mentos
Localização: Condomínio Água Cristal, Mangueirão, Belém.
Terreno: 1083,00m²
Construída: 585,23m²
Disciplina: Projeto Arquitetônico III
Autores: Romario Brito e Caroline Oliveira. 2013
Minha contribuição: Participação na concepção do projeto e na elaboraboração dos layouts; redenrização.
Programas: Autocad, Sketchup, V-ray, Indesign, Photoshop e Illustra-
Descrição: realizado para a disciplina de Projeto Arquitetônico III, esta seria destinada a uma familia composta por um casal, seus dois fillhos adultos e um adolescente, e mais a mãe da esposa. Além disso, deveria comportar um compartimento para hóspdes e todos os elementos necessários para o cultivo do lazer familiar e com amigos.



Perpesctiva do jardim central.



Layout do 2o pavimento.
Layout do térreo.



Disciplina: Autoria Ano:
Programas: tor.
Descrição: tético. internas é garantida ternamente plástico cliente tante
do piso: 56 m². do mazanino: 33 m².
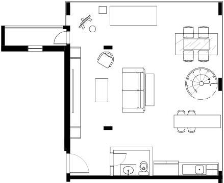
Disciplina: Tecnologia das Construções V. Autoria própria.
2016
Programas: Autocad, Sketchup, V-ray, Indesign, Photoshop e Illustra-
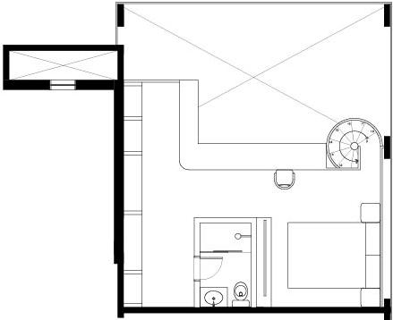
Descrição: Estudo preliminar de um projeto de loft residencial hipotético. Este apresenta o pé-direito alto, a planta aberta, sem divisões internas e um mezanino, convertido em quarto. A iluminação natural garantida por grandes janelas. O imóvel foi planejado e adequado internamente para atender às necessidades e à conveniênica de um artista plástico (pintor e escultor), divorciado, e com um filho adolescente. Ele cliente não costuma receber amigos em casa, além disso, precisa de basespaço para desenvolver seus trabalhos no próprio loft.

Layout do piso.

Layout do mazanino.



do geral do loft.


Imagens elaboradas como exercício no curso de representação arquietônica, ministrado, virtualmente, pelo escritório mexicano de arquietura PALMA. 2020.


