Memorial Book - example

Page 1

Our Legacy…

You will be enriched in every way to be generous in every way, which through us will produce thanksgiving to God. 2

Most Reverend Jeffrey M. Monforton, BA, STB, STL, STD, Bishop of Steubenville Rev. Thomas R. Nau, Cathedral Rector James Piazza, Director of Buildings and Property Rolf R. Rohn, Liturgical Designer
-1953
-
Mark Viola AIA, Architect 1957-2014
1900
2015
T O N OURISH THE F AITH OF M AN y G ENERATIONS
Corinthians 9:11

TABLE OF CONTENTS

Page 20

Blessed Virgin Mother Chapel Memorial Opportunities - Renovation, Liturgical Furniture & Artwork Page 21

Blessed Sacrament Chapel Memorial Opportunities - Renovation, Liturgical Furniture & Artwork Page 21

The Nave Memorial Opportunities - Stations of the Cross - Restoration & Renovation Page 22

The Baptistry Memorial Opportunities - Liturgical Furniture, Stained Glass, Appointments Page 23

The Nave Memorial Opportunities - Pews and Holy Water Fonts Page 24

The Nave Memorial Opportunities - Flooring Center Isle and Place of Honor Page 25

Stained Glass Windows - Facade Memorial Opportunities - Facing 5th Street Page 26

Stained Glass Windows - Facade Memorial Opportunities - Facing 5th Street Page 27

Stained Glass Windows - North Elevation Memorial Opportunities - Tower, Side Entrance, Confessionals, Sanctuary, Blessed S. Chapel Page 28

Stained Glass Windows - South Elevation Memorial Opportunities - BM Chapel, Above Baptistry, Bishop’s Annex & New Gathering S Page 29

Stained Glass Windows - East Elevation Memorial Opportunities - New gathering space - restoration of faceted glass Page 30

Sacristy and Bishop’s Annex Memorial Opportunities - Expansion and furniture Page 31

Auditorium Memorial Opportunities - Expansion, restrooms, ADA, Mosaics & Artwork Page 32

Building Committee Building Committee details Page 33

Page 2 Holy Name Cathedral Renovation, Restoration, and Renewal DIOCESE OF STEUBENVILLE, OH MEMORIALS Preface Our Legacy… Please
Page 3 Site Plan Identification of Areas Page 4 First Floor Plan & Expansion Identification of Areas Page 5 Balcony Floor Plan Identification of Areas Page 6 Auditorium Floor Plan Identification of Areas Page 7 Exterior Façade Memorial Opportunities - 5th Street & Facing 6th Street Page 8 Exterior Façade Memorial Opportunities - Slack Street & Rectory Side Page 9 Exterior Memorial Opportunities - Steeple Details - Statuary - Female Saints Page 10 Exterior Memorial Opportunities - Steeple & Slack Street Stone Artwork Page 11 New Gathering Space Front View Narthex Memorial Opportunities and Artistic Interpretation of proposed design Page 12 New Gathering Space Memorial Opportunities and Artistic Interpretation of proposed design Page 13 The Balcony Memorial Opportunities and Artistic Interpretation of proposed design Page 14 The Sanctuary Artistic interpretation proposed design Page 15 The Sanctuary Memorial Opportunities - Liturgical Furniture and Relief Mural Page 16 The Sanctuary Memorial Oppostunities -
Page 17 The Sanctuary Memorial Opportunities - Liturgical Furniture, Statuary, Appointments Page 18 Clerestory Memorial Opportunities - Stained
Diocese Page 19 The Nave Memorial Opportunities -
Shrine Page 20 The Nave Memorial Opportunities - Confessionals, Carved Glass & Artwork
join us
Screen with Statuary (12 Apostles & their Symbols)
Glass: Saints of all Parishes of the
BVM & St. Joseph
INDEX

Our Legacy... PLEASE j OIN US

This booklet is organized to allow you the opportunity to join in the renovation, restoration, and renewal of Holy Name Cathedral.

The original Cathedral, 1885 - 1942, is remembered fondly in the Diocese of Steubenville. Its large spires, reminiscent of many of those on great cathedrals in Europe, are still talked about. Because of structural deficiencies, much of the original church had to be demolished and rebuilt.

With the planned renovation, restoration, and renewal of Holy Name Cathedral, its majestic presence will be visible, once again. The physical reconstruction of the Cathedral, also, will breathe new life into the city of Steubenville. Holy Name Cathedral will be a beacon of the Catholic Church in the Ohio Valley.

Each parish and mission in the 13-county diocese will be represented in the renovated Cathedral.

Much of what is familiar in the Cathedral will be restored or redesigned; as well, new art will be introduced that completes the theological story of this church, making it a tool for teaching this generation and those that will follow.

As God calls everyone to continuous renewal, our bishop, Most Rev. Jeffrey M. Monforton, echoes the call for renewal through the renovation of Holy Name Cathedral as a sign of individual holiness and collective unity and hope in the diocese. This is an invitation to join in the effort to elevate a Cathedral that will honor the history of the Diocese of Steubenville and nourish its faithful.

You, the donor, will be recognized for your contribution to the renovation, restoration, and renewal in the narthex. An area will be dedicated just to honor donors and people memorialized by donors.

Each page of the booklet is numbered and each item on the page identified with a memorial number that corresponds to the Memorial Index booklet. Browse the pages and open your hearts to be part of this renovation, restoration, and renewal of the Cathedral and the Catholic Church in the Diocese of Steubenville. The Memorial Index booklet contains a postage paid envelope with a Memorial Reference Sheet attached. Please designate the amount of your donation, contact information, and the person or persons you want memorialized on the Memorial Reference Sheet, place it in the envelope, and drop it in the mail. The bishop and faithful in the diocese appreciate whatever gift you are able to give.

May God bless you for your generosity and expression of the love of your faith.

Page 3 Holy Name Cathedral Renovation, Restoration, and Renewal DIOCESE OF STEUBENVILLE, OH MEMORIALS
PREFACE

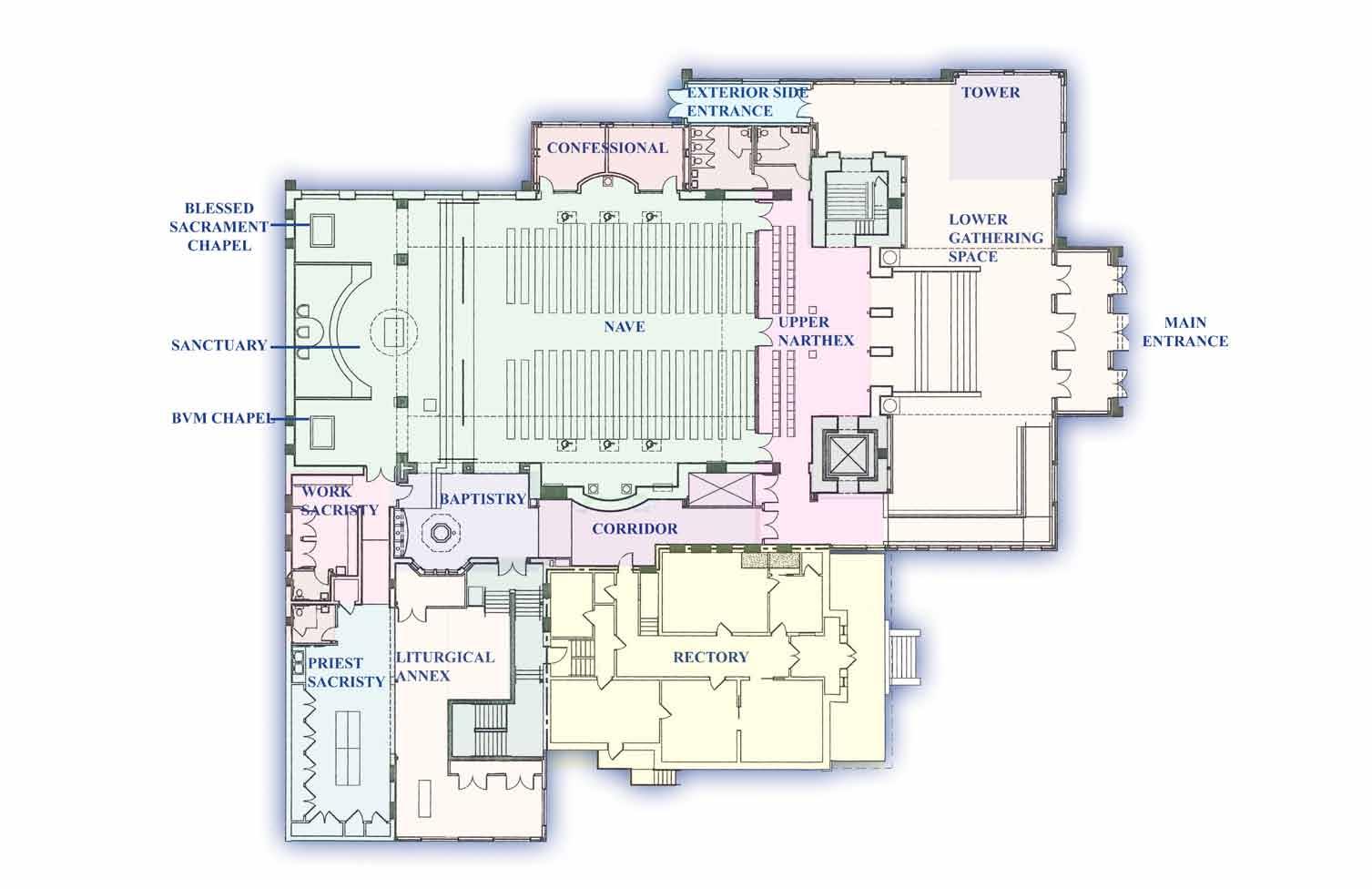
FIRST FLOOR PLAN & EXPANSION

IDENTIFICATION OF AREAS

Page 5 Holy Name Cathedral Renovation, Restoration, and Renewal MEMORIALS

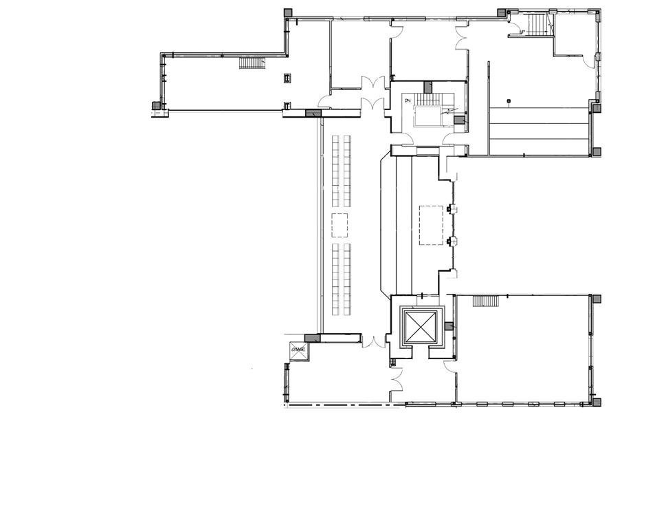
BALCONy FLOOR PLAN

IDENTIFICATION OF AREAS

SOUND & VIDEO CONTROL CENTER

CHOIR’S OFFICE

INSTRUMENT STORAGE

REHEARSAL AREA

ORGAN CHOIR SEATING

MUSIC ROOM VESTIBULE

MINISTRY

ELEVATOR AREA

Page 6 Holy Name Cathedral Renovation, Restoration, and Renewal DIOCESE OF STEUBENVILLE, OH MEMORIALS

AUDITORIUM FLOOR PLAN

IDENTIFICATION OF AREAS

Holy Name Cathedral Renovation, Restoration, and Renewal DIOCESE OF STEUBENVILLE, OH MEMORIALS

EXTERIOR: MEMORIAL OPPORTUNITIES

The grand history of the Cathedral will be preserved by enclosing the existing façade to create a new gathering space in a way that beautifully joins the old with the new. Stained glass windows depicting the life of Christ will be a witness to all who enter or pass by.

A new bell tower will once again ring out the awareness of the presence of the transcendent in the world.

New Gathering space expansion

$750,000

STEEPLE: New Bell Tower

New Gathering Space Exterior Doors

Tower Exterior Cross with IHS

4 Bells

Facade Exterior Cross

Spire Steeple Symbol: Diocesan symbol

St. Maria Goretti - High relief scuplture w/symbol

St. Thérèse of Lisieux - High relief scuplture w/symbol

STAINED GLASS FACADE:

The Resurrection of Christ - Art glass

The Assumption - Facade Art glass

STAINED GLASS GATHERING SPACE:

The Hand of God symbol - Art glass

Life of Christ - The Annunciation - Art glass

STAINED GLASS TOWER:

The Lamb of God symbol - Art glass

Life of Christ: The Nativity - Art glass

The Holy Spirit symbol - Art glass

Life of Christ: The Holy Family - Art glass

STEEPLE:

Proverbs 18:10

Spire Steeple Symbol: Pelican symbol

St. Elizabeth Seton - High relief scuplture w/symbol

St. Catherine Labouré - High relief scuplture w/symbol

Exterior Cross

Easter Fire Pit Memorial $10,000

ITEM #: 2

Cathedral Corner Stone (time capsule) Memorial $25,000

Page 8
Holy Name Cathedral Renovation, Restoration, and Renewal DIOCESE OF STEUBENVILLE, OH MEMORIALS
FACING 6TH STREET 5TH STREET VIEW
Memorial
ITEM
Memorial
ITEM #: 1
#: 23 Updates to Parking Lot
$85,000
The Name of the Lord is a strong tower the just man runs to it and is safe
ITEM #:
3

EXTERIOR: MEMORIAL OPPORTUNITIES

STEEPLE

Spire Steeple Symbol: Chi-Rho symbol

St. Catherine of Siena - High relief scuplture w/symbol

St. Cecilia - High relief scuplture w/symbol

STAINED GLASS TOWER:

Symbol: Cardinal Virtues - Prudence - Art glass

Life of Christ: Baptism - Art glass

Symbol: Cardinal Virtues - justice - Art glass

Life of Christ: jesus in the Temple - Art glass

STAINED GLASS SIDE ENTRANCE:

Symbol: Cardinal Virtues - Fortitude - Art glass

Life of Christ: Let the children come to me - Art glass

Symbol: Cardinal Virtues - Temperance - Art glass

Life of Christ: The Wedding feast of Cana - Art glass

TYMPANUM:

Tympanum Exterior Cross

Immaculate Heart of Mary Patroness of Steubenville

Theological Virtues: Faith - Stone Low relief

Theological Virtues: Hope - Stone Low relief

Theological Virtues: Charity - Stone Low relief

STAINED GLASS CONFESSIONALS:

Life of Mary, 6 French panels in the confessionals - Art glass

STAINED GLASS SANCTUARY:

Symbol: Fisher of men symbol - Art glass

Life of Christ: The multiplication of the loaves and fish - Art Glass

Symbol: 3 nails and Crown of Thorns - Art glas

Life of Christ: The Crucifixion- Art glass

STAINED GLASS BLESSED SACRAMENT CHAPEL:

Symbol: Eucharist (Bread and wine) - Art glass

Life of Christ: jesus is taken down from the Cross - Art glass

Symbol: Eucharist (Grapes and wheat) - Art glass

Life of Christ: The Ascension of the Lord - Art glass

STEEPLE

Spire Steeple Symbol: Ship symbol

STAINED GLASS WINDOWS MARIAN CHAPEL

Stained glass window - Marian Symbol (MA)

Stained glass window - Marian Symbol (IHM)

STAINED GLASS WINDOWS ABOVE BAPTISTRY

Stained glass window - Baptismal Symbol (St. john)

Stained glass window - Baptismal Symbol (St john’s Coat)

STAINED GLASS WINDOWS NEW GATHERING SPACE

Existing French glass stained glass windows with border modificaitons (Marian):

Panel 1 - Life of Mary: Mary’s life in the temple, the Presentation & the Nativity of Mary

Panel 2 - Life of Mary: The Visitation, The Marriage of Mary and Joseph & the Annunciation

Panel 3 - Life of Mary: The Nativity, the Presentation in the Temple, Jesus among the doctors of the Temple

Panel 4 - Life of Mary: Jesus meets His Mother, Jesus dies on the Cross, Jesus is taken down from the Cross

Panel 5 - Life of Mary: Jesus appears to the Apostles, The Ascension & Pentecost

Panel 6 - Life of Mary: The Assumption, The Coronation of Mary, the Blessed Virgin is seated at the right hand of Chris

Page 9 Holy Name Cathedral Renovation, Restoration, and Renewal DIOCESE OF STEUBENVILLE, OH MEMORIALS
SLACK STREET VIEW RECTORy SIDE VIEW

EXTERIOR - STEEPLE DETAILS - STATUARy

Artistic interpretation proposed design

MEMORIAL OPPORTUNITIES

St. Maria Goretti

High relief statue

Memorial $45,000

ITEM #: 10

St. Maria Goretti

Low relief symbol

Memorial $10,000

ITEM #: 11

St. Thérèse of Lisieux

High relief statue

Memorial $45,000

ITEM #: 12

St. Thérèse of Lisieux

Low relief symbol

Memorial $10,000

ITEM #: 13

St. Elizabeth Seton

High relief statue

Memorial $45,000

ITEM #: 14

St. Elizabeth Seton

Low relief symbol

Memorial $10,000

ITEM #: 15

St. Catherine Labouré

High relief statue

Memorial $45,000

ITEM #: 16

St. Catherine Labouré

Low relief symbol

Memorial $10,000

ITEM #: 17

St. Catherine of Siena

High relief statue

Memorial $45,000

ITEM #: 18

St. Catherine of Siena

Low relief symbol

Memorial $10,000

ITEM #: 19

St. Cecilia

High relief statue

Memorial $45,000

ITEM #: 20

St. Cecilia

Low relief symbol

Memorial $10,000

ITEM #: 21

Page 10 Holy Name Cathedral Renovation, Restoration, and
DIOCESE OF STEUBENVILLE, OH MEMORIALS
Renewal

EXTERIOR - STEEPLE AND SLACK STREET STONE ARTWORK

Artistic interpretation proposed design

MEMORIAL OPPORTUNITIES

Steeple Exterior Gold Gilded Crosses

(4 Available)

Memorial $50,000 ITEM #: 22

A majestic image of the Immaculate Heart of Mary, patroness of the Diocese of Steubenville, will portray her profound maternal love for all who pass by the side of the Cathedral. She models how unwavering obedience to the Holy Spirit results in eternal life with the angels.

Memorial $50,000

Diocesan Symbol Sculpture

Memorial $10,000 ITEM #:7

Exterior Artwork “Theological Virtues of the Catholic Church” High relief stone cast. Memorial each $ 25,000

Page 11
Holy Name Cathedral Renovation, Restoration, and Renewal DIOCESE OF STEUBENVILLE, OH MEMORIALS
(LOVE) ITEM #: 154 FAITH ITEM #: 152 HOPE ITEM #: 153
CHARITy

NEW GATHERING SPACE FRONT VIEW - NARTHEX

Artistic interpretation proposed design

MEMORIAL OPPORTUNITIES

The statues of St Peter and St Paul that originally adorned the Cathedral will be restored and once again welcome the faithful to enter into the sacred worship of the universal Church. They will emphasize the continuity of the teaching of the Church handed down from the apostles to the current shepherds through union with the three symbols over the entry doors: the crest of the Diocese, Pope Pius XII papal coat of arms, and the coat of arms of Bishop john King Mussio, first Bishop of Steubenville.

ITEM #: 32

Page 12
MEMORIALS
Holy Name Cathedral Renovation, Restoration, and Renewal DIOCESE OF STEUBENVILLE, OH
Coat of Arms
ITEM
Most Reverend Albert H. Ottenweller, DD, STL.
#: 53
Coat of Arms Most Reverend R. Daniel Conlon, DD jCD, PhD. Coat of Arms of Bishop jeffrey Marc Monforton, BA, STB, STL, STD. Coat of Arms
ITEM
Most Reverend Gilbert I. Sheldon, DD DMin.
#: 54
Coat of Arms
ITEM
Most Reverend john King Mussio, DD CD.
#: 56
Saint Paul statue and pedestal Memorial: $25,000
RESERVED
RESERVED
ITEM #: 57 ITEM
55 RESERVED RESERVED RESERVED RESERVED RESERVED RESERVED
Saint Peter statue and pedestal Memorial: $25,000
ITEM #: 33
ITEM #: 58
#:

NEW GATHERING SPACE

Artistic interpretation proposed design

MEMORIAL OPPORTUNITIES

Two strikingly beautiful mosaics grace the gathering space representing the presence of the Holy Family joining with all families as they answer the call of Vatican II to be small domestic churches. The first of fifty seven windows representing the saints of all of the parishes of the Diocese past and present will look down upon the gathered faithful just as the Church Triumphant watches over us from heaven.

A lovely statue of the Immaculate Heart of Mary, Patroness of the Diocese, will bring everyone together under Mary’s protective mantle. A large plaque next to Mary will honor all those who make memorial donations.

Immaculate Heart of Mary statue and backdrop for new gathering space

Memorial $50,000

ITEM #: 27

Blessed Mother mosaic for new gathering space

Memorial $50,000

ITEM #: 28

St. joseph mosaic for new gathering space

RESERVED RESERVED

Memorial $50,000

ITEM #: 30

Top Angels - Memorial $ 20,000

ITEM #: 29

Flower Shelf - Walnut - Memorial $5,000

ITEM #: ___

Top Angels - Memorial $ 20,000

ITEM #: 31

Flower Shelf - Walnut - Memorial $5,000

ITEM #: ___

Page 13
Holy Name Cathedral Renovation, Restoration, and Renewal DIOCESE OF STEUBENVILLE, OH MEMORIALS
RESERVED

THE BALCONy

Artistic interpretation proposed design

The choir loft will be enlarged two-fold, allowing for further development of the music ministry, expanded use of instrumentals, video recording, and seating. It will include a music office and storage. Access will be available from the main floor through both an elevator and stairwell. The balcony railing will be completely new to allow for a more open design that utilizes the symbolism of the circle for eternal life intersected by a simple cross. Heaven is only arrived at by way of the cross. A glass wall will divide the narthex from the nave for ease of viewing. The organ will be restored.

Holy Name Cathedral Renovation, Restoration, and Renewal DIOCESE OF STEUBENVILLE, OH

MEMORIAL OPPORTUNITIES

Choir Loft Railing

Memorial $30,000 ITEM #: 156

Seating in Choir Loft (30 Available)

Memorial each $500 ITEM #: 158

Sound System

Memorial $50,000 ITEM #: 169

Video System for internet and broadcast of the mass and special celebrations Memorial $100,000 ITEM #: 170

Lighting, lighting control, lampage (8 available)

Memorial each $100,000 ITEM #:168

Glass Partition between Narthex and Nave Memorial: $ 100,000 ITEM #: 26

Marian Symbol from existing choir loft Memorial: $15,000 each

The Annunciation ITEM #: 159

The Visitation ITEM #: 160

The Presentation at the Temple ITEM #: 161

The Holy Family ITEM #: 162

The Baptism of Mary ITEM #: 165

The Assumption of Mary ITEM #: 163

The Coronation of Mary ITEM #: 164

Pope Pius XII Coat of Arms ITEM #: 166

Cincinnati Archdiocese Seal ITEM #: 167

St. Anthony Shrine

Memorial $ 50,000 ITEM #: 79

Our existing statue of St Anthony of Padua will be restored. He will be placed in his own shrine to honor this beloved Doctor of the Church. He was known for his inspiring preaching and used the holy name of Mary to combat heretics.

Organ Restoration ITEM #: 155

Memorial $50,000

Page 14
MEMORIALS
4
RESERVED
R
RESERVED

THE SANCTUARy

Artistic interpretation proposed design

The main wall of the sanctuary will be dramatically transformed with a larger than life relief mural of the Transfiguration of Christ with a mural of the Holy Spirit. The new Cathedra with Bishop Montforton’s coat of arms and the deacons’ chairs will harmonize with the spirit of the sanctuary. Statues of the Apostles will be worked into a new walnut screen on either side of the Sanctuary. The redesigned Communion rail will be a reminder of Christ creating an opening in the veil that separated the common people from the holy of holies in the Temple when His side was pierced on the cross.

Page 15
Holy Name Cathedral Renovation, Restoration, and Renewal DIOCESE OF STEUBENVILLE, OH MEMORIALS

Altar marble - Mensa with crosses (base is separate) Memorial $100,000 ITEM #: 111

MEMORIAL OPPORTUNITIES

Reliquary. The front of the Altar will have a grill gate to show the Reliquary in bronze, gold plated. Memorial each $50,000 (1 available) ITEM #:XXX

Ambo, marble Memorial $100,000 ITEM #: 113

Altar Base Marble with Angels holding symbols of the 7 Sacraments Memorial each $25,000 (7 available) ITEM #: 112

Ambo stone cast carvings The Evangelists Memorial $20,000 ITEM #: 114

Front symbols: Baptism

Holy Orders and Holy Matrimony

Facing Baptistry: Reconciliation

Facing Confessionals:

Facing Cathedra:

Annointing of the sick, Eucharist and Confirmation

Page 16 Holy Name Cathedral Renovation, Restoration, and Renewal DIOCESE OF STEUBENVILLE, OH MEMORIALS
interpretation
design
THE SANCTUARy Artistic
proposed
RESERVED
The Transfiguration
RESERVED
Relief mural Memorial $250,000 ITEM #: 130

THE SANCTUARy - SCREEN WITH STATUARy (12 APOSTLES AND THEIR SyMBOLS)

Artistic interpretation proposed design

St.PeterSymbol:Upsidedowncross&keys (heholdstheKeystotheKingdomofHeaven)

StAndrewSymbol:X-shapecross (wasafisherman)

St.johnSymbol:Chalicewithasnake (“thedisciplewhomjesusloved”)

St.jamestheLesser Symbol:Saw(hisbodywassawedintopieces)

St.BartholomewSymbol:3swords (flayedaliveandcrucified)

St.SimonSymbol:FishlyingontheBible (formerfishermanwhobecameafisherofmen)

MEMORIAL OPPORTUNITIES

St.judeSymbol:Ship(missionarythoughttobeafisherman)

St.MatthewSymbol:3bagsofmoney (usedtobeataxcollector)

St.PhilipSymbol:BasketandCross (presentatthefeedingofthe5000, crossasasignofChristianity&victory)

St.ThomasSymbol:Carpentersquare&spear (thespearisasignofthepurportedmannerofhisdeath)

St.jamestheGreat Symbol:3shells(theyrepresentpilgrimageandjames’smissionaryzeal)

St.PaulSymbol:Openbook&spear (thenewLawhepreachedand theswordoftheSpirit)

Statues of the Apostles arranged by Roman Canon will reside in the sections of the current screen on the walls on either side of the sanctuary. A symbol of the holy life of each apostle will be represented on their individual pedestal. The wood statues wil have antique finishes and glazes to match the rest of the statuary of the Cathedral. The screen is open to the Blessed Mother Chapel and Blessed Sacrament Chapel. Memorial each $50,000 (2 available) ITEM #: 128

Page 17 Holy Name Cathedral Renovation, Restoration, and
DIOCESE OF STEUBENVILLE, OH MEMORIALS
Renewal
L EFT OF S ANCTUARy: RIGHT OF S ANCTUARy:

THE SANCTUARy

Artistic interpretation proposed design

Processional Cross (Glory Cross)

Memorial $15,000 ITEM #: 126

Mural - Holy Spirit Memorial $15,000 ITEM #: 122

Presider chair (1 Available) $25,000 ITEM #: 120

Deacon’s Chairs (3 available) $5,000 ITEM #: 124

Server’s chair (8 Available) $5,000 ITEM #:121

Cathedra - Memorial $ 50,000 ITEM #: 115

RESERVED

Coat of Arms carving in the Cathedra Memorial $10,000 ITEM #: 117

Backdrop of the Cathedra chair

Memorial $15,000 ITEM #: 116

Carvings in Cathedra (2 Available) St. Peter $10,000 ITEM #: 118

St. Paul $10,000 ITEM #: 119

Holy Name Cathedral Renovation, Restoration, and Renewal DIOCESE OF STEUBENVILLE, OH

MEMORIAL OPPORTUNITIES

Tester - Crown of Thorns above Crucifix, (carving/gilded)

Memorial $50,000 ITEM #: 129

Hanging Crucifix restoration/antiqued as the rest of statuary with gold inner loin cloth

Memorial $150,000 ITEM #: 125

Communion Railings (2) Memorial each $20,000 ITEM #: 123

Sanctuary Flooring Memorial $75,000

ITEM #: 127

Page 18
MEMORIALS
R
RESERVED
RESERVED RESERVED

CLERESTORy ART - SAINTS TO REPRESENT ALL OF THE PARISHES OF THE DIOCESE

Artistic interpretation proposed design

MEMORIAL OPPORTUNITIES

Following Bishop Monforton’s concept of a living archive, the fifty seven saints of the Diocesan parishes and Mission churches, begin in the narthex, will be artistically represented along both sides of the upper level of the nave. “Since we are surrounded by so great a cloud of witnesses, let us also lay aside every weight, and sin which clings so closely, and let us run with perseverance the race that is set before us” Hebrews 12:1.

The deep sense of the vertical flow between man and God that was beautifully evident in the form of the original Cathedral will be restored.

Page 19
MEMORIALS
Holy Name Cathedral Renovation, Restoration, and Renewal DIOCESE OF STEUBENVILLE, OH
Clerestory Artwork - Saints representing all 54 Parishes and 3 Mission churdhes of the Diocese of Steubenville. Memorial, each $20,000 (57 Available to Parishes) ITEM #: 80

NAVE - BLESSED MOTHER & ST jOSEPH SHRINE AND RECONCILIATION ROOMS

Artistic interpretation proposed design

MEMORIAL OPPORTUNITIES

Lower Gathering Shrines (Mary and St joseph Shrine): The current statues of the Blessed Virgin Mary and St joseph will be moved from above the entryways of the Blessed Sacrament Chapel and Our Lady Chapel to a place of honor in a beautiful shrineom the side of the nave. They will be restored and finished in warm skin tones with golden garments to reflect their interior spirit glowing with love for God and His people.

Devotional space

Blessed Mother & St. joseph shrine

BVMother Statue Restoration $25,000 ITEM #: 82 St. joseph Statue Restoration $25,000 ITEM #: 83

RESERVED RESERVED

Reconciliation Rooms (2 available)

Memorial each $ 50,000 ITEM #: 145

Includes: furnishing, artwork for reconciliation rooms, walnut finish doors and interior doors with carved glass, scripture and pattern on top panels.

Memorial: $100,000 ITEM #: 81 R

Saint Rocco Statue Restoration $15,000 ITEM #: 86

Saint Lucy Statue Restoration $15,000 ITEM #: 85

Divine Mercy mural Memorial $50,000 ITEM #: 146

jesus and the Woman at the Well - Carved Glass Memorial $50,000 ITEM #: 148

The Prodigal Son - Carved Glass Memorial $50,000 ITEM #: 147

Saint Anne Statue Restoration $15,000 ITEM #: 84

Saint Padre Pio New statue $25,000 ITEM # 87 (statue and bases) RESERVED

Proverbs 18:10

Page 20 Holy Name Cathedral Renovation, Restoration, and Renewal DIOCESE OF STEUBENVILLE, OH MEMORIALS
The Name of the Lord is a strong tower the just man runs to it and is safe

BLESSED VIRGIN MOTHER CHAPEL

Artistic

RESERVED EUCHARIST CHAPEL

Artistic

Tabernacle

Page 21
Name Cathedral Renovation, Restoration, and Renewal DIOCESE OF STEUBENVILLE, OH MEMORIALS
Holy
interpretation proposed design
interpretation proposed design
Sacrament Chapel Renovation (design and construction) Memorial $150,000 ITEM #: 135 RESERVED The Last Supper - relief mural Memorial $150,000 ITEM #: 136
Blessed
/ Refinish Memorial $50,000 ITEM #: 137
Throne Memorial $10,000 ITEM #: 138 Sanctuary Lamps Memorial $10,000 (2 available) ITEM #: 139
Lights Memorial $2,500 (2 available) ITEM #: 140 Blessed Mother Chapel Renovation (design and construction) Memorial $150,000 ITEM #: 104 The Coronation of Mary relief mural Memorial $150,000 ITEM #: 105 Restoration of Tryptic Memorial $15,000 ITEM #: 106
Marble Base Memorial $10,000 ITEM #: 107 Votive Lights Memorial $2,500 (2 available) ITEM #: 108
Tabernacle
Votive
Tryptic
RESERVED
MEMORIAL OPPORTUNITIES RESERVED

STATIONS OF THE CROSS

Artistic interpretation proposed design

MEMORIAL OPPORTUNITIES

The current Stations of the Cross will be beautifully restored, glazed with gold leaf, and mounted on walnut wood panels that will include a description of each one in order to encourage all to accompany Christ on His journey to Calvary. The finish will emphasize the sacredness of this devotion.

Stations of the Cross (14 available)

Memorial: Each $ 5,000

Page 22 Holy Name Cathedral Renovation, Restoration, and Renewal DIOCESE OF STEUBENVILLE, OH MEMORIALS
1- jesus is condemned to death 2 - jesus carries His cross 3 - jesus falls the first time 4 - jesus meets his mother 5 - Simon of Cyrene helps jesus carry his cross 6 - Veronica wipes the face of jesus 7 - jesus falls the second time 8 - jesus meets the women of jerusalem 9 - jesus falls a third time 10 - jesus is stripped of his garments 11 - jesus is nailed to the cross 12 - jesus dies on the cross 13 - The body of jesus is taken down from the cross 14 - jesus is laid in the tomb
R
RESERVED
RESERVED RESERVED
RESERVED RESERVED
RESERVED RESERVED
RESERVED RESERVED RESERVED
RESERVED RESERVED RESERVED
ITEM #: 65 ITEM #: 66 ITEM #: 67 ITEM #: 68 ITEM #: 69 ITEM #: 70 ITEM #: 71 ITEM #: 72 ITEM #: 73 ITEM #: 74 ITEM #: 75 ITEM #: 76 ITEM #: 77 ITEM #: 78 RESERVED

THE BAPTISTRy

Artistic interpretation proposed design

MEMORIAL OPPORTUNITIES

The Baptistry will be placed in the current processional gathering place. The font will be eight sided to symbolize how each person becomes a new creation through baptism due to Christ’s resurrection on the eighth day. Each side will illustrate a baptismal scene. There will be five stained glass windows related to Christ’s baptism in the jordan by john the Baptist with an area for a memorial at the bottom of each. The ceiling will be deep royal blue with gold stars. Next to the Baptistry, a completely new Ambry for the display and safekeeping of the sacred oils of chrism, anointing of the sick, and catechumens will have a marble background and walnut trim.

Stained Glass Windows (5 Available)

Memorial $15,000 each ITEM #: 94

1 - Angel with Baptismal Symbol:Water

2 - Angel with Baptismal Symbol: Paschal Candle

3 - The Baptism of Christ, Baptismal Symbol: White Garment

4 - Angel with Baptismal Symbol: Oil of the Catechumen

5 - Angel with Baptismal Symbol: Sacred Chrism Oil

Ambry $XX,000 ITEM #: 90

Holy Oil Vessels (3) $10,000 each ITEM #:___

The Oil of Catechumens (Oleum Catechumenorum)

The Holy Chrism (Sanctum Chrisma)

The Oil of the Sick (Oleum Infirmorum)

Page 23 Holy Name Cathedral Renovation, Restoration, and Renewal DIOCESE OF STEUBENVILLE, OH
$15,000 ITEM #: 93
$10,000 ITEM #: 91 Marble
ITEM #: 92 and
ITEM #: 89 Symbols
the
$10,000 ITEM#
$500,000 ITEM #: 88 RESERVED
MEMORIALS Paschal Candle
Ceiling painting
flooring $25,000
Pattern Baptismal Font $50,000
in
base
Baptistry
R
R
RESERVED RESERVED

THE NAVE - PEWS R

The pews will have deeper spacing to allow for more accessibility and flow of movement. They will be handsomely refinished with new upholstered kneelers.

The nave and sanctuary will be easily accessible for wheel chairs.

R

Nave Pews (38 Available)

Memorial each: $ 2,500 ITEM #: 60

MEMORIAL OPPORTUNITIES

HOLy WATER FONTS

Upper Gathering Space

Holy Water Fonts (4 Available)

Memorial each: $ 5,000 ITEM #: 63

R

Wall mounted - Holy Water Font (1 Available)

Memorial each: $ 5,000 ITEM #: 64

Page 24
Holy Name Cathedral Renovation, Restoration, and Renewal DIOCESE OF STEUBENVILLE, OH MEMORIALS
1 RESERVED

THE NAVE - FLOORING (CENTER ISLE & PLACE OF HONOR)

Artistic interpretation proposed design

MEMORIAL OPPORTUNITIES

Flooring: Center Aisle and Place of Honor Memorial $100,000 ITEM #: 61

Dicoesan Symbol in place of honor

Flooring: Diocesan Seal Mosaic Memorial $100,000 ITEM #: __

The walls and columns presently separating this area from the Nave will be removed. The balcony area will be extended and a new glass partition created with doors into the nave. The new restroom, elevator, bride’s and ushers’ rooms, ADA exits, and other Cathedral spaces will be in this area. There will be a cozy reading area for pamphlets, bulletins, etc. It can also be used for a parents’ room.

The center aisle is symbolic of the sacred journey from Baptism to Eucharist. It will be widened and accented with the same stone that accentuates the base of the sanctuary. The crest of the Diocese will be emblazoned on the central aisle of the nave as a sign of foundation in unity.

Flooring, Nave Memorial $50,000 ITEM #: 62

Flexible seating Memorial $1,000 each ITEM #: __

Page 25
Name Cathedral
and
MEMORIALS
Holy
Renovation, Restoration,
Renewal DIOCESE OF STEUBENVILLE, OH
Marble Bottocino Classico Marble Verde Oriental Dark

STAINED GLASS WINDOWS

Artistic interpretation proposed design

EAST ELEVATION - FACADE

FACADE

Window A Rosette The Resurrection $150,000 ITEM #: 34 Angels with Musical instruments

RESERVED RESERVED

Window B Main The Assumption of Mary $100,000 ITEM #: 35

Window C Main Pattern $200,000 ITEM #: 36

Page 26 Holy Name Cathedral
and
MEMORIALS
Renovation, Restoration,
Renewal DIOCESE OF STEUBENVILLE, OH
MEMORIAL OPPORTUNITIES 2 3
A B C Memorial Detail

STAINED GLASS WINDOWS

Artistic interpretation proposed design

EAST ELEVATION

MEMORIALS

Holy Name Cathedral Renovation, Restoration, and Renewal DIOCESE OF STEUBENVILLE, OH

MEMORIAL OPPORTUNITIES

These original stained glass interior windows, are the only items of the original Cathedral and from 1957 to 2015 were located in the narthex doors and now they will be reused in the top part of the new stained glass windows in the facade. Memorial

Window 1 Top: Symbol: The Hand of God $35,000 ITEM #: 40

Bottom: Life if Christ: The Annunciation $50,000 ITEM #: 39

Window 2 Top: Symbol: The Lamb of God $35,000 ITEM #: 42

Bottom: Life if Christ: The Nativity $50,000 ITEM #: 41

Window 3 Top: Symbol: The Holy Spirit $35,000 ITEM #: 44

Bottom: Life if Christ: The Holy Family $50,000 ITEM #: 43

The top part of the window will be made of the center panel of the Narthex doors, with a new background in the same style. The scenes of the Life of Christ will be new stained glass.

Page 27

STAINED GLASS WINDOWS

Artistic interpretation proposed design

NORTH ELEVATION

TOWER

Window 4 Top: Symbol: Fortitude $35,000 ITEM #: 50

Bottom Life of Christ: The Baptism of Christ $50,000 ITEM #: 49

Window 5 Top: Symbol: Prudence $35,000 ITEM #: 48

Bottom Life of Christ: Jesus in the temple $50,000 ITEM #: 47

SIDE ENTRANCE

Window 6 Top: Symbol: Justice $35,000 ITEM #: 48 Bottom Life of Christ: Let the Children $50,000 ITEM #: 47 come to me

Window 7 Top: Symbol: Temperance $35,000 ITEM #: 52

Bottom: Life of Christ: Miracle: $50,000 ITEM #: 51 Wedding feast of Cana

MEMORIAL OPPORTUNITIES

CHAPEL

CONFESSIONALS

Window 8 Marian $60,000

From existing french glass (each of the 3 panels $20,000)

Our Lady of Vilnius, Patroness of Lithuania

Our Lady of Kewlar, Patroness of Germany

Our Lady of Knock, Patroness of Ireland

Our Lady of Guadalupe, Patroness of the Americas

Our Lady, Patroness of Czechoslovakia

Our Lady of the Miraculous Medal

Our Lady of Czenstochowa, Patroness of Poland

Our Lady of Lourdes

Window 9 Marian $60,000

#: 150

From existing french glass (each of the 3 panels $20,000)

Our Lady of Pompey, Patroness of Italy

Our Lady of the Rosary

Our Lady, Patroness of Hungary

Our Lady of Fatima

Immaculate Conception

The Blessed Virgin, Queen of the Universe

Immaculate Heart of Mary

Our Lady, Queen of the Clergy

Page 28 Holy Name Cathedral Renovation, Restoration, and Renewal DIOCESE OF STEUBENVILLE, OH MEMORIALS
4 5 6 7 8 9 10 11 12 13 SANCTUARY Window 10 Top: Symbol: Fish $35,000 ITEM #: 132 Bottom: Life of Christ: The Miracle $50,000 ITEM #: 131
Loaves and Fishes Window 11 Top: Symbol: Nails & crown of thorns $35,000 ITEM #: 134 Bottom: Life of Christ: The Crucifixion $50,000 ITEM #: 133
SACRAMENT
Window 12 Top Symbol: Bread and Wine $35,000 ITEM #: 142 Bottom Life of Christ: Jesus is
$50,000 ITEM #: 141
Window 13 Top Symbol: Grapes and Wheat $35,000 ITEM #: 144 Bottom Life of Christ: The Ascension of the Lord $50,000 ITEM #: 143 Memorial Memorial
of the
BLESSED
taken down
from the Cross
ITEM
#: 149
ITEM

Holy Name Cathedral

Renovation, Restoration, and Renewal DIOCESE OF STEUBENVILLE, OH

OPPORTUNITIES

B LESSED M OTHER C HAPEL

Memorial

Window 14 Top Marian Symbol - MR $35,000 ITEM #: 109

Window 15 Top Marian Symbol - IHM $35,000 ITEM #: 110

ABOVE BAPTISTRY

Window 16 Top St. John The Baptist Symbol $35,000 ITEM #: 95

BISHOP’S ANNEX & PRAYER ROOM

Window 18 $40,000 ITEM #: 101

From existing French glass - Currently in the Sanctuary (4)

Crucifixion and Jesus meets His Mother

Last Supper and return from 40 days

Praying at the Garden and Washing of the feet

Jesus is given his cross and Jesus is whipped

Window 19 $40,000 ITEM #:102

From existing French glass - Currently in the Elevator Tower (3)

Baptism of Christ

Out of Paradise

Unknown theme

From existing French glass - Currently in the stairwell to Choir Loft (4)

Emmaus

Out of Paradise

Christ in Glory

In Honor of the Military forces

Window 20 $30,000 ITEM #: 103

From existing French glass - Currently in the Blessed Sacrament Chapel (4)

Angel with music instrument trumpet

Angel with music instrument cello

Angel with music instrument ziter

Angel with music instrument violin

From existing French glass - Currently in Saint Anthony’s shrine (2)

St. Anthony and the donkey

St. Anthony brings a child back to life

NEW GATHERING SPACE BY ELEVATOR

From existing French glass with new border - Currently in the Nave

Window 21 Marian window $30,000 ITEM #: 38

Mary’s life in the temple

The presentation of Mary in the Temple

The Nativity of Mary

Window 22 Marian window $30,000 ITEM #: 38

The Visitation

The Marriage of Mary and Joseph

The Annunciation

Window 23 Marian window $30,000 ITEM #: 38

The Nativity

The Presentation in the Temple

Jesus among the doctors of the Temple

Window 24 Marian window $30,000 ITEM #: 38

Jesus meets His Mother on the way to Calvary

Jesus dies on the Cross

Jesus is taken down from the Cross

Window 25 Marian window $30,000 ITEM #: 38

Jesus appears to the Apostles at the Resurrection

The Ascension

Pentecost

Window 26 Marian window $30,000 ITEM #: 38

The Assumption

The Coronation of Mary

The Blessed Virgin is seated at the right hand of Christ

Page 29
MEMORIALS
15 16 17 20 21 23 22 24 26 25
Memorial RESERVED MEMORIAL
Window 17 Top St. John’s Coat Symbol $35,000 ITEM #: 96 14 18 19

STAINED GLASS WINDOWS

Artistic interpretation proposed design

MEMORIAL OPPORTUNITIES

Restoration Exterior Stained Glass Windows (44 panels)

Existing facade, future gathering space

Memorial $50,000 ITEM #: 37

Page 30
Holy Name Cathedral Renovation, Restoration, and Renewal DIOCESE OF STEUBENVILLE, OH MEMORIALS
R
EAST ELEVATION

SACRIST y & BISHOP’S ANNEX

Artistic interpretation proposed design

MEMORIALS

Holy Name Cathedral Renovation, Restoration, and Renewal DIOCESE OF STEUBENVILLE, OH

MEMORIAL OPPORTUNITIES

1/3 RESERVED

Bishop’s Annex and Sacristy: Includes: Expansion area, renovation of Sacristy, Bishop vesting area, exit to outside. Memorial $150,000 ITEM #: 98

Furniture and Cabinets

Memorial $25,000 ITEM #: 99

Table with Drawers (2 Available) Memorial each $15,000 ITEM #: 100

Page 31
R
The Bishop’s Annex will be an extension of the Sacristy; the existing French windows depicting the life of Christ will be reused to create floor to ceiling windows in the Bishop’s prayer room. Two large murals will be installed: The Transfiguration and an image of the first Cathedral. Above the Bishop’s Coat of Arms inlayd in the carpet, there will be an image in medium blue sky with a constellation of day the diocese was founded (1944)
R

AUDITORIUM

Artistic interpretation proposed design

MEMORIAL OPPORTUNITIES

Relocating and replicating painted background Memorial $25,000 ITEM #: 173

RESERVED $ 25,000

Mosaic of jesus with the youthful saints: Maria Goretti, Agnes, Don Savio and Lucy.

Relocating and replicating painted background Memorial $25,000 ITEM #: 172

Blessed Mother statue and base Memorial $15,000

ITEM #: 174

Saint joseph statue and base Memorial $15,000

ITEM #: 175

An expanded multi-purpose auditorium, updated kitchen, and expanded restrooms will fill the current basement area, supplying much needed facilities well into the future.

The mosaics of St Anthony of Padua and jesus with the youthful saints Maria Goretti, Agnes, Don Savio, and Lucy will be relocated from the nave to the auditorium as models of lives offered completely in service to God.

There will be an ADA connection to the lower rectory offices to bind the two areas together

Auditorium & Annex

Memorial $800,000 ITEM #: 171

Restrooms Memorial $100,000 ITEM #: 176

Page 32 Holy Name Cathedral
and
STEUBENVILLE, OH MEMORIALS
Renovation, Restoration,
Renewal DIOCESE OF
Mosaic of Saint Anthony of Padua Blessed Mother Statue St. joseph Statue
R
R

HOLy NAME CATHEDRAL

February 2015

Most Reverend Jeffrey M. Monforton, BA, STB, STL, STD, Bishop of Steubenville

Rev. Thomas R. Nau, Cathedral Rector James Piazza, Director of Buildings and Properties

Rolf R. Rohn, Liturgical Designer Consultant Mark Viola, AIA, Architect

411 S 5th St. Steubenville, OH 43952 Phone (740) 264-6177

ARTISTIC DESIGNS & ILLUSTRATIONS PREPARED BY ROHN & ASSOCIATES DESIGN, INC.

© Rohn & Associates Design, Inc. 2015. All rights reserved

Turn static files into dynamic content formats.

Create a flipbook
Issuu converts static files into: digital portfolios, online yearbooks, online catalogs, digital photo albums and more. Sign up and create your flipbook.