ARCHITECTURE PORTFOLIO.


![]()


Hyderabad, Telangana, 500075.
rohanreddygandra@gmail.com +91 9030966177 @rohan_reddy
I am a detail-oriented architecture student eager to contribute to a collaborative design environment. My portfolio highlights my problem-solving skills, ability to learn, and a strong foundation in architectural principles. Beyond technical skills, I possess a genuine enthusiasm for designing. This passion fuels my initiative to learn new techniques in design in real world industry.
Rohan Reddy Gandra
DOB: 13-04-2002
Email: rohanreddygandra@gmail.com
Contact: +91 9030966177
EDUCATION:
2020-Current :JBR Architecture College I Hyderabad, Telangana I Bachelor of Architecture (B. Arch.)
2018-2020 :Narayana Junior College I Hyderabad, Telangana I Higher Education
2010-2017 :Tejaswi High School I Secondary Education
WORKSHOPS/ EXPERIENCES:
Annual NASA Design Competition 2022
Toilet design trophy 2022
Earthen bag construction by Ar. Yeshwant I LiDHA
Wattle and straw daub by Ar. Gayatri maithani
Haath Paon Maati by Ar. Dheeraj
Street Photography workshop by Harnish Mehta
Drone Technology in Architecture I NDA
SKILLS:
Design : Auto-cad, Sketch-up, Revit
Rendering : Lumion, Enscape, V-Ray
Post production : Photoshop, In-Design, Illustrator
LANGUAGES:
Telugu Native
English
Hindi
INTERESTS:
Photography
Movies
Traveling





DESIGN DRAWINGS

MISC. WORKS

“Harmony Living” optimizes G+5 apartment living for families. It prioritizes space efficiency, natural light, and safety. Flexible layouts cater to families of all sizes. Dedicated common areas foster a sense of community. This design creates a comfortable and secure environment for families to thrive.


Addition And Subtracting Of Rectangular Forms To Form End Design
Extrusion Of Spaces Left After Setbacks
Proposed Site





TYPICAL FLOOR PLAN
A. Flat A 2BHK Unit
B. Flat B 2BHK Unit
C. Flat C 3BHK Unit
0. 2.1 M Wide Corridor
1. Drawing Room
2. Dining
3. Kitchen
4. Bedroom
5. Toilet
6. Utility
7. Balcony
8. Living Room
9. Tot-Lot




+16.45M

+12.45M
+8.45M
+4.45M
+0.45M





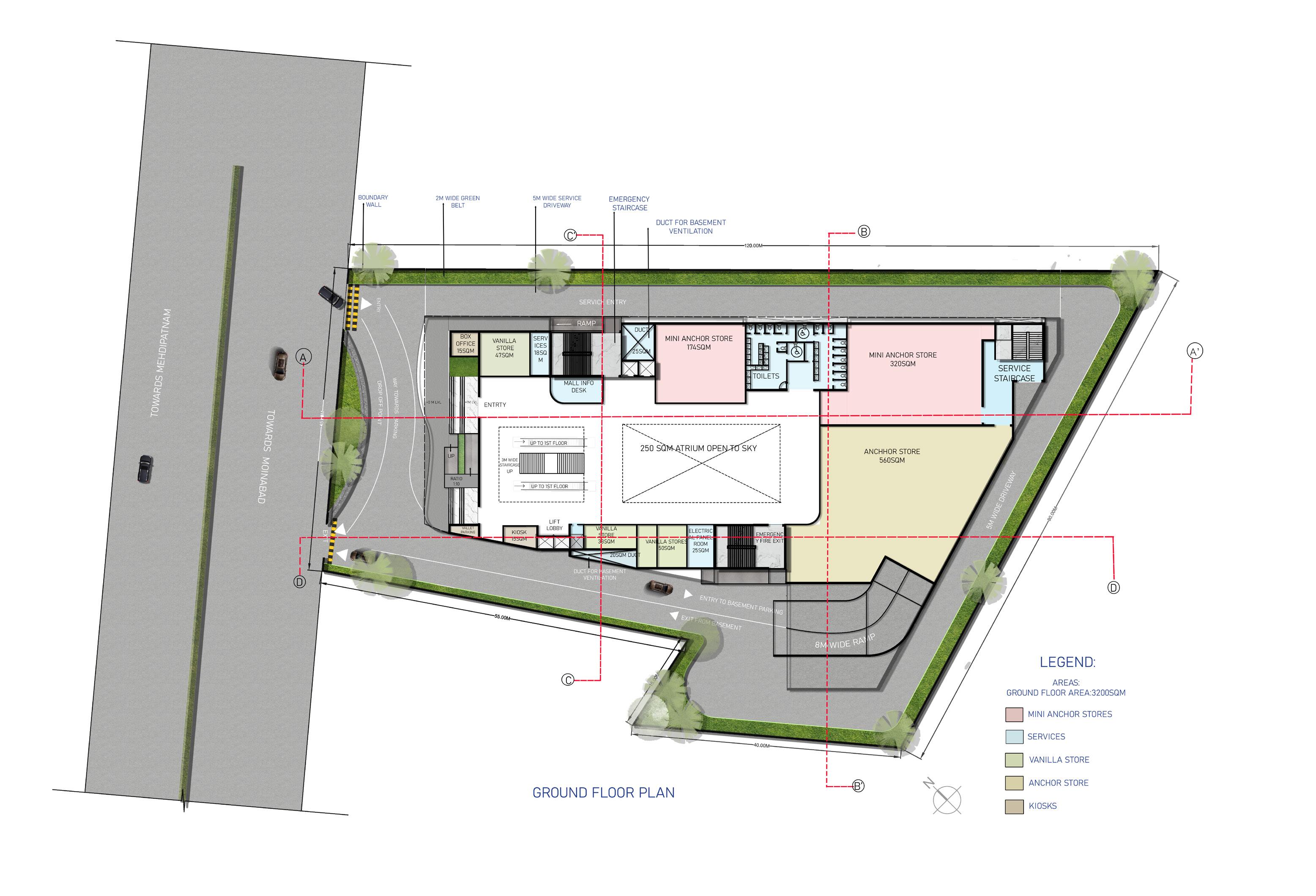
Shopping malls serve as prominent centers for commerce and leisure in the modern retail landscape. These enclosed environments provide a convenient and controlled space for a diverse array of businesses to operate under one roof.


SCALE: 1:250


AREA STATEMENTS:
SITE AREA -6200SQM
BUILT-UP AREA- 24400SQM
GROUND FLOOR AREA- 3200SQM
FIRST FLOOR AREA - 3450 SQ M
SECOND FLOOR AREA- 3450 SQ M
THIRD FLOOR AREA -3450 SQ M
FOURTH FLOOR AREA- 3450SQM
BASEMENT ONE -3500SQM
BASEMENT TWO- 3700SQM
SETBACKS:
TOWARDS ROAD ABUTTING SIDE-12M
REMAINING SIDES -7M
1. Mini Anchor Stores
2. Vanilla Stores
3. Services
4. Emergency Staircase
5. Toilets
6. Service Staircase
7. Anchor Stores
8. Kiosks
9. Atrium

LEGEND
A. Restaurant
B. Outdoor Seating
C. Emergency Staircase
D. Mini Anchor Stores
E. Corridors
F. Food Court
G. Service Area
H. Vanilla Stores
I. Toilets
J. Atrium




1. Fun Zone
2. Emergency Staircase
3. Screen 01
4. Screen 02
5. Screen 03
6. Exit From Theatre
7. Box Office Area
8. Vanilla Stores
9. Atrium
This state-of-the-art multiplex boasts 3 screens (A, B, and C) with a combined capacity of 800, offering a dynamic movie-going experience for the whole community.
LEGEND
A. Pub
B. Emergency Staircase
C. Vanilla Stores
D. Theatre Exit
E. Atrium




1. Car Parking
2. Bike Parking
3. Emergency Staircase
4. Ramp Towards Basement 01
5. Ramp Towards Basement 02
6. 6m Wide Driveway
Basement 01: This basement provides ample space for 34 cars and 60 bikes, perfect for those arriving on two wheels or with larger shopping sprees.
Basement 02: This basement caters more towards car parking with a capacity of 65 cars, while also offering 10 bike spaces.
LEGEND
A. Car Parking
B. Emergency Staircase
C. Bike Parking
D. Lift Lobby
E. 6m Drive Way
F. Ramp Towards Basement 01




A-A’


+24.6M
+20.6M
+16.6M

Working drawings, also called production drawings or construction drawings, are detailed technical documents used to communicate the design specifications of a product or structure. They provide all the information needed to manufacture, assemble, or construct something according to the intended design.

EXHAUST FAN
VENTILATOR WALL
TILE CLADDING
WASHBASIN
300MM BLACK BAT COBA
RCC SLAB
University Campus Master plan Summary
Site Area: 83.4 Acres
Setbacks: 12 Meters Wide Setback (all around the perimeter)
Built-up Area: (Details will be finalized later)
Future Expansion: Space allocated for future campus growth.
Parking: 12,150 Total Parking Spaces
350 Cars
420 Two-Wheelers
6 Bus Parking Units
Key Facilities:
1. Site Entry: Grand entrance with a width of 30 meters.
2. Parking: Ample parking distributed across the site.
3. Administration Building: 840 sq m dedicated to administrative functions.
4. LIG Quarters: Separate housing for staff in two phases:
Phase 1: 1500 sq m
Phase 2: 1600 sq m
5. Faculty Housing: Dedicated living space for faculty in two phases:
Phase 1: 7768 sq m
Phase 2: 3884 sq m
6. Retail Complex: Convenient amenities including a supermarket, ATM, and salon (300 sq m).
Educational & Recreational Facilities:
7. Recreational Space: Dedicated area for outdoor activities and relaxation.
8. Auditorium: Multi-purpose auditorium with a capacity of 3230 sq m.
Academic Buildings:
10. Fine Arts College Block: 6000 sq m
11. Business College Block: 5846 sq m
12. Fashion Communication College Block: 5062 sq m
Central Amenities:
13. Central Library: 1000 sq m, a hub for academic resources.
14. Central Canteen: A central dining facility for the campus community. Student Housing:
15. Girls Hostel Block: Dedicated housing for female students (19497 sq m).
16. Boys Hostel Block: Dedicated housing for male students (7947 sq m).
Sports Facilities:
17. Indoor Sports Block: 2800 sq m for various indoor sports activities.
18. Outdoor Sports Grounds: Cricket ground, football court, basketball court, and volleyball courts for outdoor recreation.







School of Business Management- Sectional view


Informal spaces in Fashion Block

School of Fashion Technology- Sectional view




Apartment Detailed Plan




This section showcases my diverse skill-set beyond core projects. It features:
Photography : My eye for capturing compelling visuals. (Briefly mention your style or subject focus if applicable) ANDC Project: My design thinking process in action, as seen in my entry for the Annual NASA Design Competition (mention the year if relevant).
Workshops: My commitment to continuous learning, demonstrated through participation in workshops focused on (mention a few key skill areas covered in the workshops).


























• The former harbor for several buses serving the residents of the Twin Cities, the old Charminar bus stop, was constructed in 1989. 2018 saw the later demolition of the bus stop.
• It was eventually utilized as a dump yard by people, which caused a lot of trouble for the nearby homeowners.
The plot is 3379.89 Sq. M in size and is surrounded by more than just residences, shops, and colleges.
This location was chosen because there isn’t much parking at this tourist hotspot.
• The characteristics of on-street and off-street parking were examined in light of parking statistics, including accumulation, occupancy, load, average waiting time, and parking index/ efficiency.
• To enhance urban transportation and make this area more livable and effective, automobile parking solutions are not an aim in and of themselves but rather a means of attaining more general community goals.
• The Charminar area’s high density of on-street parking spaces along the main road has an impact on local traffic operations, especially when there is heavy traffic.
• Given that the location is in the center of the action in the city, it offers a fantastic opportunity to design a building that can benefit the populace.
• In addition to having a beautiful view of the historic Charminar, the site is the closest location to attractions.





















The methods opted and the strategies used are: Using the Vertical gardening to keep the air and its quality intact.



• Use of the solar panels that are reverting with respect to suns directions contributes in the energy conservation.
• Use of non-reflective glass in the structure to protect birds nearby and lower heat transfer into the structure

• Giving disabled people access to a ramp that serves as a barrier-free design.
• Terracotta lattice screens are used to support passive cooling and their usage of environmentally friendly materials.







































The organizer of the Competition is the Ministry of Housing and Urban Affairs (MoHUA), Government of India and is being conducted through the Council of Architecture, Ministry of Education, Govt. Of India
The design competition is being launched by MoHUA with support from the Council of Architecture through which design entries are invited for public and community toilets from architects and students of architectural institutions.
It is a Design Ideas competition, where MoHUA shall advise replication of design Solutions suitably for the construction of public and community toilets in different cities and regions all over India.








































