UNIVERSIDADNACIONALDEINGENIERÍA
          FACULTADDEARQUITECTURA,URBANISMOYARTES
          Licenciadeedificación
          ExpedienteTécnico
          Gestióndeobras
          Integrantes
          CristianRodrigoArangurenBautista
          NoeliaLuceroMedinaCastillo
          Cátedra
          Arq.ArmandoDurandMauricio
          2022-2
          
    Introducción
          I. Memoriadescriptiva
          A. Generalidades
          
    B. Ubicación
          C. Linderosdeterreno
          D. Característicasdelproyecto
          1. Descripcióndelproyecto
          2. Descripciónformal
          3. Descripcióndeflujos
          4. Descripcióndeestructurayacabados
          II. PresupuestodeObra
          1. CuadrodeValoresUnitarios
          III. Expedientedelicenciadeedificación
          1. AnexoIIFUE.FormularioÚnicodeEdificación
          2. CertificadodeparámetrosUrbanísticos
          3. CertificadodePartidaelectronica
          4. Certificadodefactibilidaddeservicios
          5. DeclaracionJuradadeHabilitacionProfesional
          6. CertificaciónAmbiental(CA)
          7. EstudiodeimpactoVial(EIV)
          8. EstudiodeMecánicadeSuelos (EMS)
          IV. Anexos
          GESTIÓN DE OBRAS
        2
        UNIVERSIDAD NACIONAL DE INGENIERÍA Facultad de Arquitectura, Urbanismo y Artes
          ÍNDICE
        
              
              
            
            MEMORIA DESCRIPTIVA I
          
    Introducción
          En el presente expediente se estudiarán y desarrollarán los distintos requisitos necesarios para realizar y posteriormente obtener la licencia de edificación de acuerdoalanormativavigenteenelaño2023.
          El proyecto presentado se realizó durante la materia de Diseño Arquitectónico 6A duranteelciclo2022-2
          UNIVERSIDAD NACIONAL DE INGENIERÍA Facultad de Arquitectura, Urbanismo y Artes
          I. Memoriadescriptiva
          
    
    A. Generalidades.
          La memoria descriptiva comprende la información de una edificación de tipocultural,siendoespecíficamenteunCentroCulturalparaladifusiónde lasArtesEscénicas.
          B. Ubicaciónylocalización.
          El proyecto se encuentra en el Centro de Lima y está definido por las siguientesvías:Av.NicolásdePiérola,Jr.Azángaro,Jr.ApurímacyJrSandia.
          
    El terreno en el que se encuentra el proyecto antiguamente estuvo compuestoporuncúmulodepredios,loscualeshoyendíanoexistenyen cambiohayunparqueadministradoporlaMunicipalidaddeLima. LOCALIZACIÓN
          
    GESTIÓN DE OBRAS
        5
        UBICACIÓN
        C. Linderosdelproyecto
          El proyecto posee cuatro (04)
          frentesdeloscualeslimitaporel:
          NorteconelJr.Apurímac
          EsteconelJr.Sándia
          SurconlaAv.NicolásdePiérola
          OesteconelJr.Azángaro
          Fondo:Jr.Apurímac
          Frente:Av.NicolásdePiérola
          C. Característicasdelproyecto
          
    1. Descripcióndelproyecto
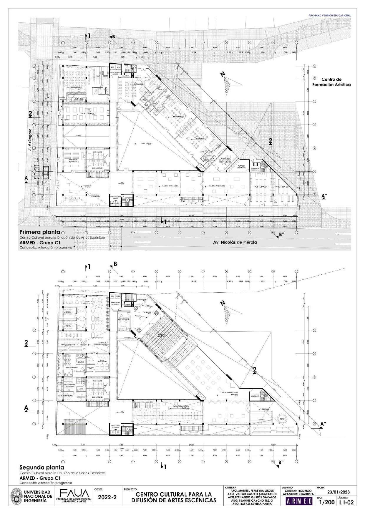
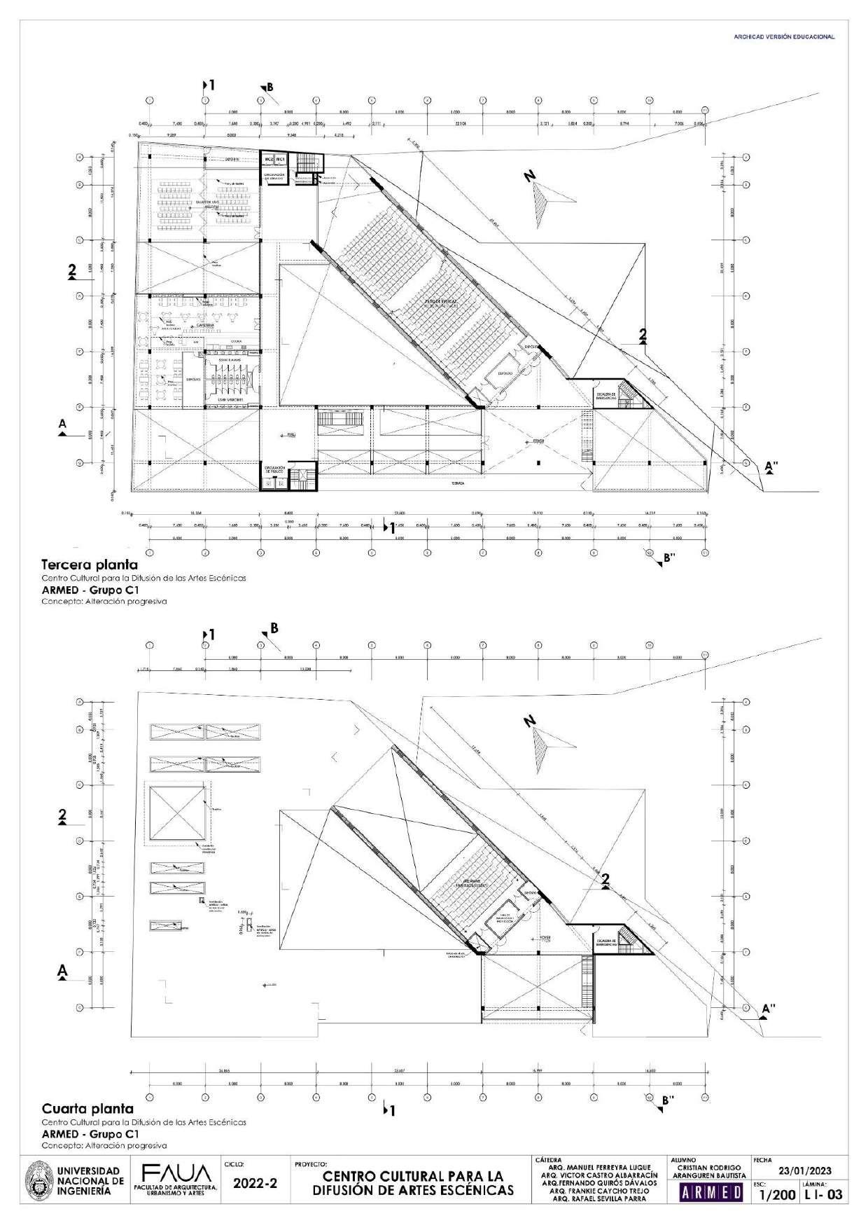
          El proyecto es un Centro Cultural de alcance metropolitano el cual cuenta con un área de 3068.82 m2, el cual entrega ambientes de carácter social-cultural y comercial distribuidos en 4 plantas y 2 sótanos.
          Busca,atravésdesuvolumetría,devolverlamanzanaqueexistíaen la zona la cual formó parte del imaginario y morfología urbana. Así como,mediantesufunción,animaryrevitalizarlascallesaledañas.
          GESTIÓN DE OBRAS
        UNIVERSIDAD NACIONAL DE INGENIERÍA Facultad de Arquitectura, Urbanismo y Artes
          DELTERRENO 3068.8151m2 Perímetro 315.6166,ml LADO Frente 129.19ml LateralDerecho 63.26ml LateralIzquierdo 50.37ml Fondo 114.74ml Lat. izq.: Jr. Azángaro
        ÁREA
        Lat. Der. Jr. Sándia
        6
        
    CÁTEDRA: ARQ. ARMANDO DURAND ALUMNOS: RODRIGO ARANGUREN BAUTISTA NOELIA MEDINA CASTILLO
        
    CÁTEDRA: Arq. Armando Durand ALUMNOS: RODRIGO ARANGUREN BAUTISTA NOELIA MEDINA CASTILLO
        
    
    
    
    CÁTEDRA: Arq. Armando Durand ALUMNOS: RODRIGO ARANGUREN BAUTISTA NOELIA MEDINA CASTILLO
        
    CÁTEDRA: Arq. Armando Durand ALUMNOS: RODRIGO ARANGUREN BAUTISTA NOELIA MEDINA CASTILLO
        2. Descripciónformal
          
    Mediante su volumetría ofrece una transición entre las edificaciones antiguas de la zona oeste de la Av. Nicolás de Piérola y la parte este de la misma, buscando en todo momento la progresión de volúmenes.
          3. Descripcióndeflujos
          Los flujos de las calles del Jr. Azángaro y la Av. Nicolás de Piérola son recogidos por el vestíbulo que se encuentra en el punto de convergencia de ambas vías, el vestíbulo está conectado a un núcleo de circulación vertical de la cual se desprenden 2 circulacioneshorizontalespornivel.
          4. Descripcióndeestructuras yacabados
          Respecto a las estructuras, de manera general, se utiliza el sistema dual conformado por pórticos y placas estructurales. Los pórticos salvanlucesdehasta8metroslineales,mientrasquelasplacasson utilizadas en algunos casos para los núcleos de escalera, mientras que de manera particular se usa como sostén de una estructura de tijeralesmetálicos.
          GESTIÓN DE OBRAS
        11
        UNIVERSIDAD NACIONAL DE INGENIERÍA Facultad de Arquitectura, Urbanismo y Artes
          
              
              
            
            PRESUPUESTO DEOBRA II
          
    El presente Cuadro de Valores Unitarios ha sido actualizado con el indice de precios al Consumidor de Lima Metropolitana, acumulado al mes de enero 2023: 1.0023%
          UNIVERSIDAD NACIONAL DE INGENIERÍA Facultad de Arquitectura, Urbanismo y Artes
          CuadrodeValoresUnitariosOficialesdeEdificacionesparaLima Metropolitanay ProvinciaConstitucionaldelCallao
          
    Vigentedesdeel01al28deFebrerodel2023 Res.MinisterialN°309-2022-VIVIENDA,modificadaporlaRes.MinisterialN°425-2022-VIVIENDApublicadaenelDiarioElPeruano:30-dic-2022 ResoluciónJefaturalNº033-2023-INEI (01febrero 2023)IPCmesdeEnero2023:0.23%
          El valor unitario por m2 para una edificación determinada, se obtiene sumando los valores seleccionados de cada una de las 7 columnas del cuadro de acuerdo a sus característicaspredominantes.
          (1) Referidoaldoblevidriadohermético,conpropiedadesdeaislamientotérmicoyacústico.
          (2) Referido al vidrio que recibe tratamiento para incrementar su resistencia mecánica y propiedades de aislamiento acústico y térmico, son coloreados en su masa permitiendolavisibilidadentre14%y83%.
          (3) Referidoalvidrioquerecibetratamientoparaincrementarsuresistenciamecánicaypropiedadesdeaislamientoacústicoytérmico,permitenlavisibilidadentre75%y92%.
          (4) Referidoalvidrioprimariosintratamiento,permitenlatransmisióndelavisibilidadentre75%y92%.
          (5) Sistemadebombeodeaguaydesagüe,referidoainstalacionesinterioressubterráneas(cisterna,tanqueséptico)yaéreas(tanqueelevado)queformanparteintegrante delaedificación.
          (6) ParaestecasonoseconsideralacolumnaNº2.
          (7) Seconsideramínimolavatorio,inodoroyduchaotina.
          
    GESTIÓN DE OBRAS
        13
        
              
              
            
            UNIVERSIDAD NACIONAL DE INGENIERÍA Facultad de Arquitectura, Urbanismo y Artes
          1. PresupuestodeObra
          En el siguiente listado especificamos los tipos de estructura y acabados conlafinalidaddeclasificarlosenelintervalocorrespondienteyobtenerel presupuestodeobra.
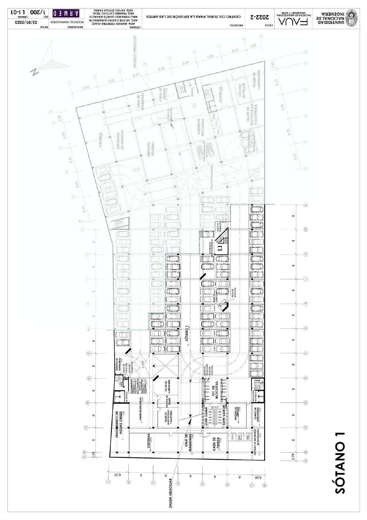
          EnSótanos:
          a. Murosycolumnas………………………………………………………………………………………………………………………..B Columnas,vigasy/oplacasdeconcretoarmadoy/ometálicos
          b. Techos……………………………………………………………………………………………………………………………………………………A
          
    Losaoaligeradodeconcretoarmadoconlucesmayores de6m Consobrecargamayora300kg/m2
          c. Pisos………………………………………………………………………………………………………………………………………………………….B
          Mármol nacional reconstituido, parquet fino (olivo, chonta o similar), cerámicaimportada,maderafina.
          d. PuertasyVentanas…………………………………………………………………………………………………………………..…B
          Aluminio o madera fina (caoba o similar) de diseño especial, vidrio y curvado,laminadootemplado.
          e. Revestimientos………………………………………………………………………………………………………………………………..C
          Superficiecaravistaobtenidamedianteelencofradoespecial,enchapeen techos
          f. Baños…………………………………………………………………………………………………………………………………………………….B
          Baños completos (7) importados con mayólica o cerámico decorativo importado.
          g. Instalacioneseléctricasysanitarias……………………………………………………………………………..A
          Aire acondicionado, iluminación forzada, sistema hidroneumático , agua calienteyfría.intercomunicadoralarmas,ascensor,sistemadebombeode aguaydesagüe,teléfono,gasnatural.
          GESTIÓN DE OBRAS
        14
        UNIVERSIDAD NACIONAL DE INGENIERÍA Facultad de Arquitectura, Urbanismo y Artes
          PisosSuperiores:
          a. Murosycolumnas………………………………………………………………………………………………………………………..B
          Columnas,vigasy/oplacasdeconcretoarmadoy/ometálicos
          b. Techos……………………………………………………………………………………………………………………………………………………A
          
    Losaoaligeradodeconcretoarmadoconlucesmayores de6m Consobrecargamayora300kg/m2
          c. Pisos………………………………………………………………………………………………………………………………………………………….B
          Mármol nacional reconstituido, parquet fino (olivo, chonta o similar), cerámicaimportada,maderafina.
          d. PuertasyVentanas…………………………………………………………………………………………………………………..…B
          Aluminio o madera fina (caoba o similar) de diseño especial, vidrio y curvado,laminadootemplado.
          e. Revestimientos………………………………………………………………………………………………………………………………..C
          Superficiecaravistaobtenidamedianteelencofradoespecial,enchapeen techos
          f. Baños…………………………………………………………………………………………………………………………………………………….B
          Baños completos (7) importados con mayólica o cerámico decorativo importado.
          g. Instalacioneseléctricasysanitarias……………………………………………………………………………..A
          Aire acondicionado, iluminación forzada, sistema hidroneumático , agua calienteyfría.intercomunicadoralarmas,ascensor,sistemadebombeode aguaydesagüe,teléfono,gasnatural.
          GESTIÓN DE OBRAS
        15
        Paralaobtencióndelalicenciadeedificación requerimosdelpresupuesto del proyecto a ejecutar, por lo cual se ha hecho uso de el Cuadro de Valores Unitarios de Edificaciones para la costa (Vigente del 01 al 28 de febrerodel2023).paracalcularelcostoparcialdelaobra.
          Fuente:Elaboraciónpropia
          
    
    PRESUPUESTODEOBRA Segúncuadrodevaloresunitariosdelmesde NIVEL ÁREA COSTO UNITARI O/M2 COSTO PARCIAL CATEGORíA Murosy columnas techos Pisos Puertas y Ventana s Revesti miento Baños Instalaci ones eléctric asy sanitari as SÓTANO 3 3593,506 1443,35 5186686, 885 B A H B F B A 381,72 359,6 27,92 169,36 72,44 88,85 343,46 SÓTANO 2 6290,681 1443,35 9079654, 421 B A H B F B A 381,72 359,6 27,92 169,36 72,44 88,85 343,46 SÓTANO1 6290,681 1443,35 9079654, 421 B A H B F B A 381,72 359,6 27,92 169,36 72,44 88,85 343,46 NIVEL1 2047,052 1727,99 3537285, 385 B A B B C B A 381,72 359,6 190,34 169,36 194,66 88,85 343,46 NIVEL2 1699,772 1727,99 2937189, 018 B A B B C B A 381,72 359,6 190,34 169,36 194,66 88,85 343,46 NIVEL3 1969,575 1727,99 3403405, 904 B A B B C B A 381,72 359,6 190,34 169,36 194,66 88,85 343,46 NIVEL4 660,761 1727,99 1141788,4 B A B B C B A 381,72 359,6 190,34 169,36 194,66 88,85 343,46 TOTAL 8260,256 34365664,44 16
        
              
              
            
            EXP.LICENCIADE EDIFICACIÓNIII
          
    La licencia de edificación del proyecto en cuestión será gestionada mediante la modalidad C, la cual de acuerdo a la ley de licencias y habilitaciones urbanas y licencias de edificación 29090, comprende lo siguiente.
          Según el capítulo III, artículo 65, para las modalidades C y D se debe presentar documentos específicos. Además de la documentación requerida para todas las modalidades expresadas en el Artículo 61 (FUE, Certificado de parámetros urbanísticos, documento de propiedad, Certificado de factibilidad de servicios, Declaración jurada de habilitación profesional.Derechoderevisión)sesolicitalosiguiente:
          ● CertificadoAmbiental
          ● EIV
          
    ● EMS
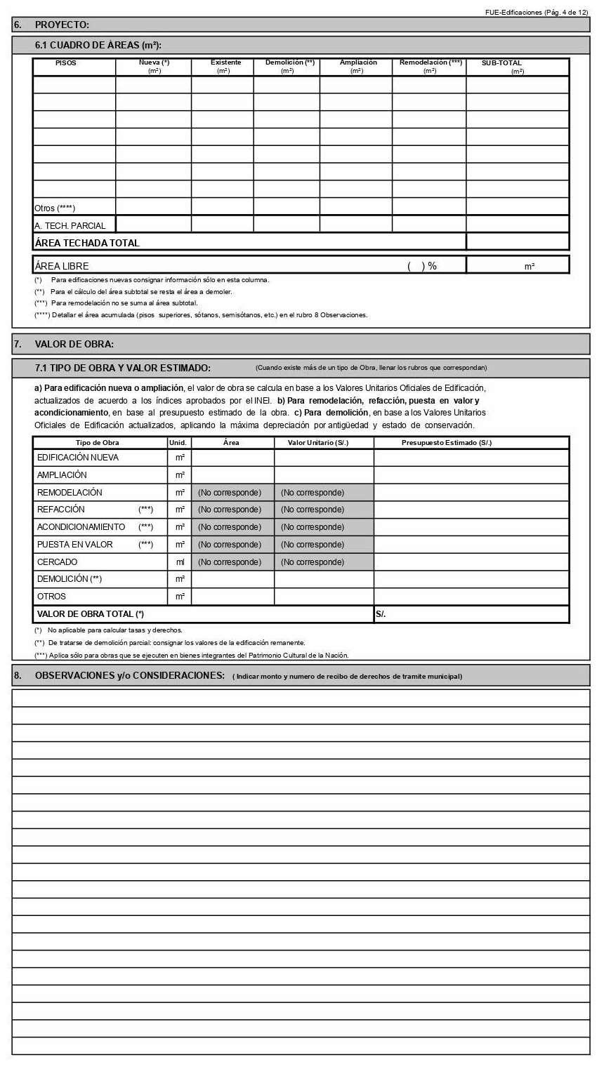
          1. FormularioÚnicodeEdificación(FUE)
          GESTIÓN DE OBRAS
        UNIVERSIDAD NACIONAL DE INGENIERÍA Facultad de Arquitectura, Urbanismo y Artes
          18
        
    
    GESTIÓN DE OBRAS
        X X X X X Municipalidad
        19
        UNIVERSIDAD NACIONAL DE INGENIERÍA Facultad de Arquitectura, Urbanismo y Artes
          metropolitana de Lima
        
    
    GESTIÓN DE OBRAS
        X Medina Medina NoeliaLucero 75004425 Angamos Callao Ventanilla LIMA LIMA Av,NicolásdePiérola 1216 Av,NicolásdePiérola 12 3068.8151 129.19 50.37 114.74 63.26 CercadodeLima 992291153 nmedinac@uni.pe ARMED.SAC 107503344251 Lima Callao Lima SanIsidro Urb.Lasflores 3 13 CalleLasFlores 326 R13 psB1 8 138 2 0
        UNIVERSIDAD NACIONAL DE INGENIERÍA Facultad de Arquitectura, Urbanismo y Artes
          
    
    GESTIÓN DE OBRAS
        X X X X X X X X X X X X X X 1602 23 21
        UNIVERSIDAD NACIONAL DE INGENIERÍA Facultad de Arquitectura, Urbanismo y Artes
          UNIVERSIDAD NACIONAL DE INGENIERÍA Facultad de Arquitectura, Urbanismo y Artes
          Porelfrenteconunalíneacontinuade129.19metros.Porladerecha con una línea continua de 50.37. Por el fondo una línea continua de63.26.yporlaizquierdaunalíneacontinuade114.74metros.
          
    
    GESTIÓN DE OBRAS
        (30)%
        3593,506 6290,681 6290,681 2047,052 1699,772 1969,575 660,761 8260,256 SOTANO 3 SOTANO 2 SOTANO 1 PISO 1 PISO 2 PISO 3 PISO 4 3593,506 6290,681 6290,681 2047,052 1699,772 1969,575 660,761 8260,256 22
        
    
    
    GESTIÓN DE OBRAS UNIVERSIDAD NACIONAL DE INGENIERÍA Facultad de Arquitectura, Urbanismo y Artes RodrigoArangurenBautista 23511 CristianoGómezRonaldo MagalyQuicañoMontoro 23311 19151 19151 14 9 9 9 9 23311 NoeliaLuceroMedinaCastillo PlanosArquitectura(Detalles) MagalyQuicañoMontoro 15 02 2023 23
        
    
    GESTIÓN DE OBRAS 19
        UNIVERSIDAD NACIONAL DE INGENIERÍA
        UNIVERSIDAD NACIONAL DE INGENIERÍA
          
    Facultad de Arquitectura, Urbanismo y Artes
          
    25
        GESTIÓN DE OBRAS
        
    
    
    UNIVERSIDAD NACIONAL DE INGENIERÍA
        Arquitectura,
        MedinaCastillo
        x 75004425 992291153 Jalvarez@gmail.com CALLAO CALLAO VENTANILLA ANGAMOS R13 8 Ps.B 1 12 1 14 15 /02/2023 GESTIÓN DE OBRAS 26
        Facultad de
        Urbanismo y Artes
        Noelia Lucero
        UNIVERSIDAD NACIONAL DE INGENIERÍA
          
    
    
    Facultad de Arquitectura, Urbanismo y Artes
          MedinaCastilloNoeliaLucero
          CALLAO CALLAO
        OficinaRegistraldeLima
          VENTANILLA 75004425 15 /02/2023 27
        ANGAMOS R13 8 Ps.B 1
          GESTIÓN DE OBRAS
        UNIVERSIDAD
          
    DE INGENIERÍA
          
    GESTIÓN DE OBRAS
        28
        NACIONAL
          Facultad de Arquitectura, Urbanismo y Artes
          
    
    
    GESTIÓN DE OBRAS
        UNIVERSIDAD NACIONAL DE INGENIERÍA Facultad de Arquitectura, Urbanismo y Artes
          CALLAO CALLAO ANGAMOS R13 8 Ps.B 1 VENTANILLA 75004425 29
        MedinaCastilloNoeliaLucero
          
              
              
            
            UNIVERSIDAD NACIONAL DE INGENIERÍA Facultad de Arquitectura, Urbanismo y Artes
          2. Certificadodeparámetrosurbanísticos
          Estedocumentoesimportanteparadeterminaryconocerloslineamientos de diseño que se deben seguir en el proyecto arquitectónico, así como las especificacionesdemedidasydimensiones.
          Procedimiento:
          Se realiza el trámite en la municipalidad del distrito donde se encuentra el predio, en este caso se realiza en la Municipalidad Metropolitana de Lima (MML). La guía para el trámite en la municipalidad del distrito donde se encuentra el predio, en este caso se realiza en la Municipalidad de Lima (MML). La guía para el trámite la podemos encontrar en la siguiente dirección: Municipalidad Metropolitana de Lima > Trámites y servicios > Directoriodetrámitesyservicios>Certificadodeparámetrosurbanísticos.
          ● Lo puede realizar una persona jurídica o natural propietaria del predio.
          ● SerealizaenMesadepartesdelInstitutoCatastraldeLima
          
    ● Se debe presentar un formato de solicitud, plano de ubicación referencialypagarelderechodetrámite(s/69..30)
          ● FormlarioÚnico
          Luego de haber realizado el trámite, se procede a esperar una cantidad de días hábilesyseobtendráuncertificadocomoelsiguiente:
          GESTIÓN DE OBRAS
        30
        UNIVERSIDAD NACIONAL DE INGENIERÍA
          
    
    GESTIÓN DE OBRAS
        31
        Facultad de Arquitectura, Urbanismo y Artes
          UNIVERSIDAD
          DE INGENIERÍA
          
    
    GESTIÓN DE OBRAS
        32
        NACIONAL
          Facultad de Arquitectura, Urbanismo y Artes
          
              
              
            
            UNIVERSIDAD NACIONAL DE INGENIERÍA Facultad de Arquitectura, Urbanismo y Artes
          3. Certificadodepartidaelectrónica
          Este documento permite conocer los datos de título de un bien o derecho inscritoenlaSuperintendenciaNacionaldeRegistrosPúblicos(SUNARP).
          Cualquier persona puede solicitar este documento si requiere conocer mayor información sobre un bien en particular siempre y cuando tenga el númerodepartidaregistraldelbienoderechoaconsultar.Deberállenarun formulariogratuitoypagarlosderechoscorrespondientes.Elpagosueleser des/13(doshojas)+s/6(hojaadicional)ylaentregaesinmediata.
          Procesoparaobtenerelcertificadoes:
          ● Ingresaalaplataformadeserviciosenlínea.
          ● Accede al Servicio de Publicidad Registral en Línea (SPRL) con tu usuarioyclave.
          ● Eligelaopción:Solicitarcertificadoliteraldepartida(copialiteral).
          
    ● Indicarlaoficinaregistralyelnúmerodepartidaquedeseassolicitar.
          ● Si desea la partida registral completa, elige la opción: Todas las páginas.Derequerirunasientoenparticular,hazcheckenelnúmero del asiento de su interés, calcula el costo y realiza el pago en línea conelmonederoSPRLocontarjetadecréditoodébito
          ● Finalmente, la copia literal de la partida será remitida a tu correo electrónico.
          ● A continuación se muestra un ejemplo de un Certificado de Partida Registral:
          GESTIÓN DE OBRAS
        33
        UNIVERSIDAD NACIONAL DE INGENIERÍA Facultad de Arquitectura, Urbanismo y Artes
          
    
    GESTIÓN DE OBRAS
        34
        4. Certificadodefactibilidaddeservicios
          Es un documento que otorgan las empresas prestadoras de servicios que permiteconocerquesecuentaosepuedecontarconlainfraestructurade servicios de agua o electricidad necesarias para el nuevo proyecto planteadooexistente.
          AGUAYALCANTARILLADO
          Losrequisitosparaeltrámitedelasolicitudson:
          ● Copia simple de título de propiedad del terreno inscrito en registros públicos.
          ● Copia simple de ficha registral de acumulación de lotes (de ser el caso)
          ● Documento de identidad del propietario o representante de la empresa.
          ● MemoriadescriptivafirmadaporIng.SanitarioProyectista.
          
    ● VerificacióndeHabilidaddelColegiodeIngenierosdelPerú.
          ● Doscopiasdelplanodeubicaciónaescala1/5000o1/10000.
          ● Planodeinstalacionessanitarias.
          ● Resumen del sistema de tratamiento y evacuación de aguas residuales.
          ● pagoporconceptodecertificadodefactibilidad(s/186.84).
          GESTIÓN DE OBRAS
          35
        UNIVERSIDAD NACIONAL DE INGENIERÍA Facultad de Arquitectura, Urbanismo y Artes
          UNIVERSIDAD NACIONAL DE INGENIERÍA Facultad de Arquitectura, Urbanismo y Artes
          
    
    
    
    
    GESTIÓN DE OBRAS
        36
        Reddeelectricidad
          
    Silapotenciasuperalos9.9kw, losrequisitosparaeltrámitedelasolicitud son:
          ● Documentodeidentidaddelpropietario
          ● Documentodepropiedad
          ● Plano de distribución eléctrica de toda la propiedad firmado por un Ing.eléctricoomecánicoconcolegiaturavigente.
          ● Mapa(croquis)deubicación
          ● Númerodesuministrodelosvecinos(izquierdoyderecho)delpredio.
          ● Foto de ubicación de la cajuela, líneas internas y rotulación del predio.
          ● Cuadrodecargas.
          ● Licenciadefuncionamiento.
          ● Constanciadenoadeudo.
          GESTIÓN DE OBRAS
        UNIVERSIDAD NACIONAL DE INGENIERÍA Facultad de Arquitectura, Urbanismo y Artes
          37
        UNIVERSIDAD
          DE INGENIERÍA
          
    
    GESTIÓN DE OBRAS
        38
        NACIONAL
          Facultad de Arquitectura, Urbanismo y Artes
          
    
    5. DeclaracionJuradadeHabilitacionProfesional Es un documento que permite conocer a los encargados de cada especialidad, de modo que se verifique si se encuentran habilitados para ejercersuprofesiónyresponsabilizarsedelproyectoadesarrollar. Acontinuaciónsemuestraunformatocomoejemplo: GESTIÓN DE OBRAS UNIVERSIDAD NACIONAL DE INGENIERÍA Facultad de Arquitectura, Urbanismo y Artes CristianRodrigoArangurenBautista 71996562 719956 04/11/2005 23 febrero 23 CristianRodrigoArangurenBautista rodrigoaranbau@gmial.com (01)3054358 39
        5. Derechoderevisión
          
    Es un trámite en el cual se presenta el proyecto al Colegio de Arquitectos delPerúparasurevisiónyaprobaciónporpartedediferentesespecialistas, de modo que confirme el cumplimiento de las normas edificatorias establecidas.Esuntrámiteopcionalyaquesirveparafacilitarlosprocesos de aprobación de proyectos en la municipalidad del lugar donde se está realizando el proyecto. El costo es del 0.05% del valor de la obra, en este casoseríades/17182,8322.
          SegúnelCap,parahabilitaciónurbana,losrequisitossonlossiguientes:
          A. Solicitud llenada correctamente con datos técnicos (puede escanearseelFUE)
          
    B. Original o copia del plano de ubicación del proyecto y el FUHU firmadoyselladoporelarquitectoproyectista.
          C. Paralapre-revisiónenviaralcorreoderechorevision@limacap.orgen pdf.
          GESTIÓN DE OBRAS
        UNIVERSIDAD NACIONAL DE INGENIERÍA Facultad de Arquitectura, Urbanismo y Artes
          40
        6. CertificaciónAmbiental(CA)
          Esta certificación es un instrumento previo a cualquier proyecto de inversión, con una finalidad de prevenir un posible impacto ambiental negativo.
          Estedocumento sepuedeconsiderarunahojaderutaparaelproyecto,la cual presenta ciertos requisitos y obligaciones del titular, además de las medidasparalareduccióndeimpactonegativo.
          Este documento lo puede solicitar cualquier persona natural, Jurídica , públicaoprivada,einclusounextranjeroqueestérealizandoelproyecto.
          El certificado lo otorga el Ministerio de Vivienda, Construcción y Saneamiento (MVCS). El proceso de certificación puede durar aproximadamente20díashábilesysuvigenciaesdeunplazode3años.El trámite se da de forma gratuita, con excepción a los proyectos que pretenden desarrollarse en regiones que se han suscrito a un convenio de delegacióndecompetenciasenmateriaambientalconelMinisterio.
          Antedesolicitarelcertificado sehacenlasconsideracionesdelosiguiente, según la Plataforma de evaluación y seguimiento a la gestión ambiental sectorial:
          ● Elproyectotieneunapoblaciónmenora15000habitantes.
          ● El proyecto no se encuentra dentro de una Área Natural Protegida(ANP)oZonadeAmortiguamiento.
          ● ElproyectoContemplaPTRAmenora15000habitantes.
          Si se cumple con estas consideraciones se debe registrar la Ficha Ambiental,encasocontrariosedebesolicitarelCertificadoambiental.
          LosRequisitosparalacertificación
          ● Solicitud virtual del Titular del Proyecto cumpliendo con el llenado del aplicativo virtual para la Clasificación Ambiental.
          
    GESTIÓN DE OBRAS
        UNIVERSIDAD NACIONAL DE INGENIERÍA Facultad de Arquitectura, Urbanismo y Artes
          41
        ● Copia del certificado o Constancia de compatibilidad emitidoporelSERNANP,decorresponder,soloparaaquellos proyectos ubicados en área natural protegida de administración nacional o su Zona de amortiguamiento o delÁreadeConservaciónNacional.
          ● Presentar según la categoría del proyecto de inversión lo siguiente:
          CategoríaI:DeclaracióndeimpactoAmbiental-DIA
          CategoríaIIYIII:PropuestadeTérminosdeReferencia.
          Según la Ley del Sistema Nacional de Evaluación de Impacto Ambiental y su Reglamento (Ley N° 27446), Artículo 6°, el proceso solicitar la certificación ambientalconstadelassiguientesetapas:
          ● PresentacióndelasolicitudenLínea
          ● Admisibilidad(revisiónderequisitos)
          
    ● Evaluación(evaluacionesyobservaciones20díashábiles)
          ● Cierre (registrar EIA por mesa de Partes de Dirección de partesdeAsuntosAmbientales(DGAA)
          GESTIÓN DE OBRAS
        UNIVERSIDAD NACIONAL DE INGENIERÍA Facultad de Arquitectura, Urbanismo y Artes
          42
        UNIVERSIDAD
          DE INGENIERÍA
          
    
    GESTIÓN DE OBRAS
        43
        NACIONAL
          Facultad de Arquitectura, Urbanismo y Artes
          7. EstudiodeimpactoVial(EIV)
          LaordenanzaN°2087querevisalosprocedimientodeaprobacióndeEIVen Lima Metropolitana explica que para proyectos de edificación ubicados frente a vías locales y vías metropolitanas que amplien sus instalaciones modificando accesos y/o incrementando la generación de viajes, es obligatorioelaborarelEIAparaobtenerlaLicenciadeEdificación.
          ● Requisitos
          Segúnlaordenanza2087,Articulo11,losrequisitosparalaaprobación de los EIV deben ser presentados ante la Subgerencia de Planeamiento y Habilitaciones Urbanas de la Gerencia de Desarrollo URbano,ysonlossiguientes:
          A. Solicitudconinformacióndelsolicitante(RUCoDNI)
          
    B. Copia simple de la vigencia de poder en caso de persona jurídica, con una antigüedad no mayor a 30 días calendario, de corresponder.
          C. Estudio de impacto vial firmado por el profesional responsable (ingenierodetransporteoingenieroconespecialidadacreditadaen lamateria)habilitado.
          D. Copia de la partida registral del predio con una antigüedad no mayora30díascalendario.
          E. Copia de la resolución de autorización y plano de distribución (visado), emitidos por OSINERGMIN (estaciones de servicio, grifos o EstablecimientosdeVentaalPúblicodeGNVy/oGLP-Gasocentros).
          F. Copiadelalicenciadefuncionamientoodelaconformidaddeobra, según sea el caso (sólo cuando dicha documentación no haya sido expedidaporlaMunicipalidadMetropolitanadeLima).
          G. Declaración jurada de implementación de las medidas de mitigación consignadas en el EIV y de aquellas medidas complementariasquepuedaseñalarlaMML.
          H. Pagodelderecho.
          GESTIÓN DE OBRAS
          44
        UNIVERSIDAD NACIONAL DE INGENIERÍA Facultad de Arquitectura, Urbanismo y Artes
          UNIVERSIDAD NACIONAL DE INGENIERÍA Facultad de Arquitectura, Urbanismo y Artes
          ● ContenidodelEIV
          SegúnlaOrdenanza2087,Artículo12.2,paraobtencióndeLicenciade Edificación.
          A. Memoria descriptiva (situación actual, usos, áreas, localización, valor estimado,etc.)
          
    B. Áreadeinfluencia
          C. Compatibilizacióneinfluenciadeproyectosfuturosenlazona.
          D. Estudio de transito (datos de campo no mayores a 6 meses pasados)
          E. Estudiodetransporte(tiposdetransporte,paraderos).
          F. EscenarioActualyfuturodelEIV
          G. propuestademitigacióneneláreadeinfluencia.
          H. Relacióndeplanos.
          8. EstudiodeMecánicadeSuelos (EMS)
          SegúnelArt.6deobligatoriedaddeEstudiodeSuelosenlaNormaTécnica
          E.O.35delRNE,lasedificacionesquealojenunagrancantidaddepersonas como salas de espectáculos, auditorios, etc , deben contar con un estudio de mecánica de suelos. El edificio tiene como principal uso el de Centro cultura de las Artes Nuevas, este posee un auditorio que aloja aproximadamente700personas,ademáscuentacon3sótanos.Porloque requiereobligatoriamenteunestudiodemecánicasdelsuelo elcualposee elsiguientecontenido.
          ● Memoriadescriptiva
          1. Condicionesdecimentación
          2. Parámetrosdecimentación
          3. áreadeestudio,accesos
          4. evaluacióngeológica
          5. evaluacióngeomórfica
          6. niveldenapafreática
          7. diagnósticodepresenciadealgúnriesgogeotécnico
          ● Plano de Ubicación y distribución de puntos de investigación (no menosde3)
          ● Perfilesestratégicos(diferentesestratosqueconformanelsuelo)
          GESTIÓN DE OBRAS
        45
        UNIVERSIDAD NACIONAL DE INGENIERÍA
          Facultad de Arquitectura, Urbanismo y Artes
          FUENTEDEINFORMACIÓN
          TextoÚnicoordenadodelaley29090
          
    CAPcuadrodevaloresoficialesdeedificaciones
          FormularioÚnicodeEdificación
          MMLTrámitedecertificacióndeparámetrosUrbanísticos
          Sunarp.Certificación departidaRegistraloelectrónica
          SEDAPALrequisitosdeFactibilidad
          SEDAPALCostodeCertificadodefactibilidad.
          Enel.RequisitodeFactibilidaddeservicioseléctricos
          CapRequisitosdeDerechodeRevisión
          GESTIÓN DE OBRAS
        
              
              
            
            ANEXOS IV