PORTFOLIO ARCHITECTURE DESIGN

![]()

Hello! I’m Rizki Imanullah, an architectural designer who has recently completed the Professional Program of Architecture in 2025. In addition to architectural design, I am also passionate about interior design and landscape planning. I consider myself enthusiastic, responsible, disciplined, adaptable, and collaborative in every project I undertake. One life philosophy that inspires me is “The future belongs to those who prepare for it today.”
This reminds me that consistent effort and purpose-driven work are key to meaningful success.
Pekalongan | muhammadrizki383@gmail.com | @rizkimanullah
2024 | PT Mitra Gutama Lima (Tratama)
Asisten Pemula Arsitek
2024 | Proyek Kos & Interior Unit Perumahan
Asisten Pemula Arsitek
2023 | Xenix Interior
Desainer Interior & Content Marketing
2022 | Milenial Mengabdi 1.0 Lombok by KAMI Foundation
Pengabdian Masyarakat Skala Nasional
2022 | Koordinator Divisi Kaderisasi PAMIY
Paguyuban Masiswa Arsitektur Yogyakarta
2025 | SAKAPARI 15
Peserta
2024 | Sayembara Rumah Nusantara BTN Peserta
2022 | SAKAPARI 10
Presenter & Publikasi
2022 | Architecture Blue Ribbon Award VIII
Nominasi 10 Besar Studio Desain Arsitektur 2
2022 | Architecture Blue Ribbon Award VII
Nominasi 10 Besar Studio Desain Arsitektur 1
I Architecture Design Portfolio by Rizkimanullah - Selected Designs
Program Studi Pendidikan Profesi Arsitek (Ar.)
Universitas Islam Indonesia 2024 - 2025
Sarjana Arsitektur (S.Ars)
Universitas Islam Indonesia 2019 - 2023


Architecture Design Portfolio by Rizkimanullah - Selected Designs
01
Apartment & Co-Working Space
Seturan, Yogyakarta Page 1-6

02
Rumah Sakit Akademik
Alma Ata Yogyakarta Page 7-12


03 Sayembara Rumah Nusantara BTN Page 13-18

04
Kos Putra D’Jawara Sleman, Yogyakarta Page 19-24

05
Interior Fullset Unit Perumahan Pekalongan Page 25-28

Architectural Designer & Visualization : Muhammad Rizki Imanullah
Year : 2024
Project Type : Academic Project
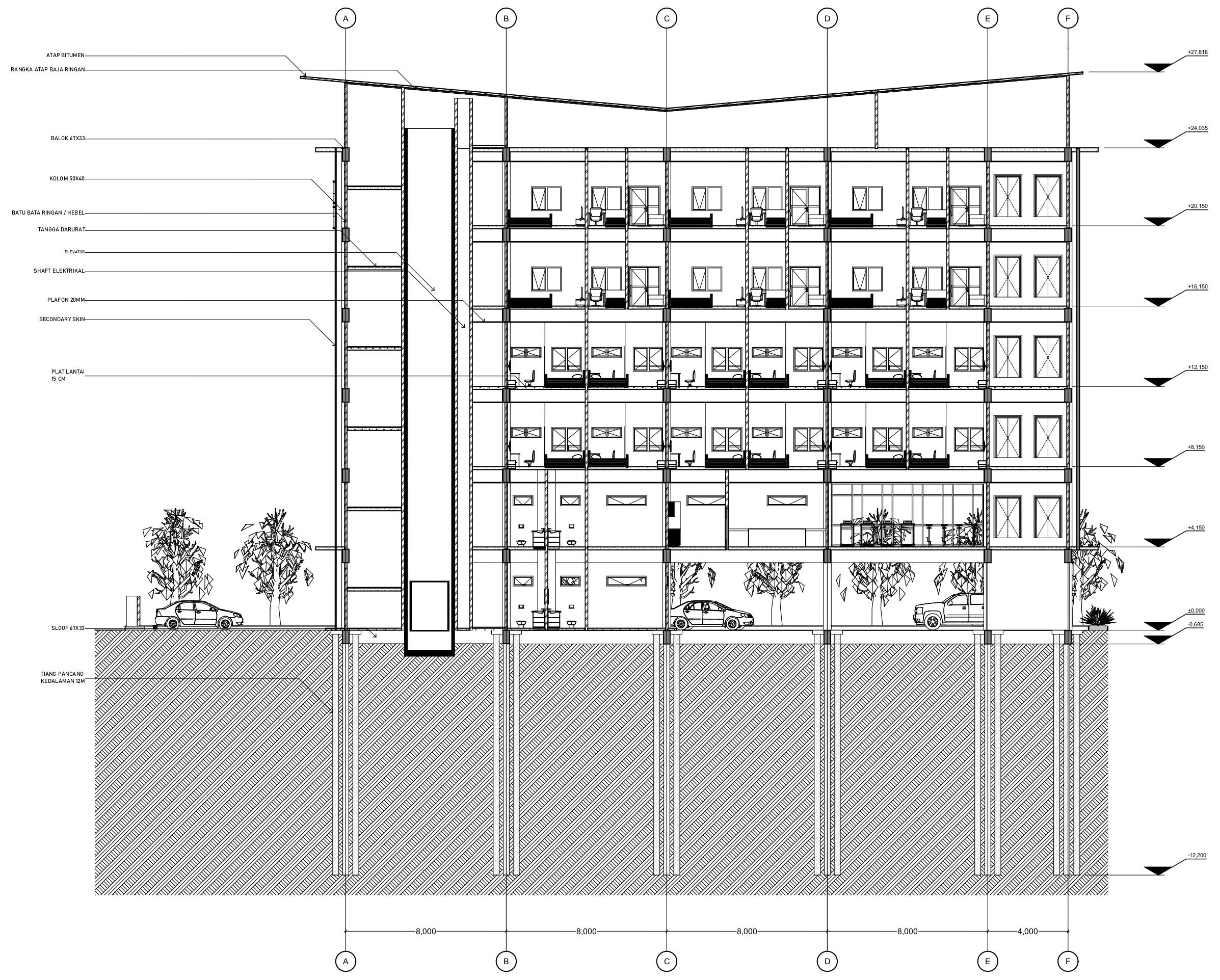
Rancangan apartemen 6 lantai dengan fungsi bangunan untuk perdagangan dan jasa. Berlokasi di Jalan Seturan Raya, Sleman, memiliki: Lantai 1-2 untuk parkir, komersial, coworking space, dan servis. Lantai 3-4 untuk studio 20-24 m2, lantai 5-6untuk apartemen 2 kamar 30-36 m2. Lantai atap sebagai area utilitas. Total luas 3000-3600 m2 dengan setiap lantai 500-600 m2.





Co-Working Space Indoor
Co-Working Space Outdoor



Architectural Designer & Visualization : Muhammad Rizki Imanullah
Year : 2025
Project Type : Academic Project
Rumah Sakit Alma Ata, yang berlokasi di Jl. Tamantirto, Kasihan, Bantul, Yogyakarta, dirancang untuk memenuhi kebutuhan pelayanan kesehatan masyarakat dan mendukung pendidikan kedokteran di Universitas Alma Ata. Rumah sakit Tipe C ini akan dilengkapi dengan Skill Lab untuk penelitian dosen dan mahasiswa kedokteran menjadikannya pusat pelayanan kesehatan dan pengembangan ilmu medis. Perancangan mencakup fasilitas untuk 100 kamar inap, mengutamakan efisiensi ruang, aksesibilitas, dan kenyamanan. Rumah sakit ini diharapkan memberikan kontribusi positif bagi masyarakat Bantul serta pendidikan dan penelitian kesehatan.








Architectural Designer & Visualization : Muhammad Rizki Imanullah
Year : 2025
Project Type : Competition Project
Dalam menghadapi tantangan pembangunan rumah tinggal sebesar 3.000.000. (tiga juta)/ per tahun yang telah dicanangkan oleh Kementerian Perubahan Kabinet Merah Putih dan pembiayaan perumahan pada tahun-tahun mendatang dan mengembangkan pasar khusunya kepada masyarakat umum, generasi milenial, dan generasi Z (anak muda) dengan penghasilan sesuai sasaran, BTN untuk melahirkan desain rumah yang dapat terjangkau oleh segala kalangan dan dengan desain yang inovatif dan mengandung unsur lokalitas budaya arsitektur Nusantara.







Architectural Designer & Visualization : Muhammad Rizki Imanullah
Year : 2024
Project Type : Professional Project
Proyek nyata berupa Kos Putra di Daerah Kimpulan Sleman Yogyakarta (belakang Kampus Universitas Islam Indonesia). Konsep dari bangunan ini yaitu “Rumah Tumbuh”, dimana desain yang terbangun untuk saat ini hanya 1 lantai, namun struktur bangunannya sendiri sudah menggunakan struktur 2 lantai untuk ke depannya bisa ditambahkan bangunan lagi diatasnya. Klien menghendaki kos-kosan dengan budget yang terbatas, oleh karenanya konsep rumah tumbuh ini diterapkan untuk sewaktu-waktu klien dapat mengembangkan bangunannya secara vertikal. Struktur pondasi (dengan Pondasi Footplat) dan dimensi kolom sudah mempertimbangkan untuk bangunan 2 lantai.







Architectural Designer & Visualization : Muhammad Rizki Imanullah
Year : 2024
Project Type : Professional Project
Desain interior ruang makan dengan konsep modern klasik mengikuti konsep keseluruhan interior full satu rumah. Produk interior pada ruang makan ini diantaranya Wall Moulding; Plafon dropdown; Wardrobe dengan finishing material HPL kayu dan white marble serta Panel WPC warna abu-abu gelap. Meja dan kursi makan juga dipilih model modern klasik dengan warna kursi hijau serta meja makan dari frame kaca yang membuat interior ruang makan terlihat estetik.

Desain interior kamar tidur utama dengan beberapa produk interior diantaranya kasur dengan pemilihan colortone monokrom putih dan abu-abu dengan pencahayaan LED strip pada sekeliling kasur; Wall moulding serta wallpanel WPC warna abu-abu gelap; Plafon flat dengan strip warna abu abu gelap dan pencahayaan downlight di setiap sudut; Meja rias dengan finishing material HPL kayu dan abu-abu ditambah pencahayaan LED strip pada bagian dalam kabinet; serta Wardobe pakaian. Elemen pendukung juga ditambahkan seperti lukisan dinding dan hiasan pada backdrop meja rias ini.

Desain interior dapur dengan produk interior berupa full kitchen set dengan finishing material kombinasi HPL warna abu-abu dan panel WPC warna abu serta keramik warna krem pada bagian top table dan backsplash. Terdapat 4 layer seperti biasa dengan bagian-bagian diantaranya kabinet bawah, top table beserta backsplash, kabinet tengah, dan kabinet atas. Tambahan pada sisi kanan kitchen set dibuat rak untuk peletakan kebutuhan laundry serta mesin cuci yang ditambahan pada sisi tersebut. Model dari daun pintu seperti sendok dengan aksen warna emas dipadukan dengan model daun pintu frame kaca membuat estetika dari ruang dapur juga terlihat indah dan rapi.
