ARCHITECTURE MIXED USE

BY RIYA BODHE



![]()

BY RIYA BODHE




02
03 PRESTIGE SHANTINIKETAN, WHITEFIELD, BENGALURU
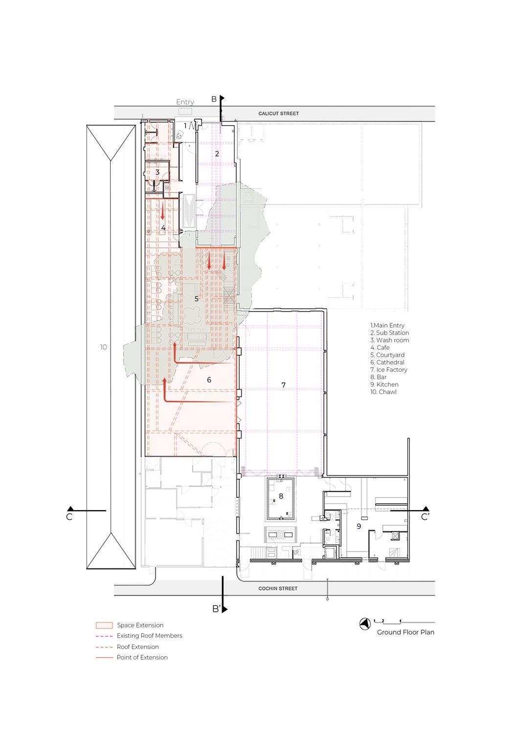
IF.BE. ICE FACTORY BALLARD ESTATE, MUMBAI








• Residential Zone: East and West Towers with luxury apartments and private amenities.
• Retail Zone: Central Park Mall with shops, cafes, restaurants, and essential services.
• Public Zone: Chippendale Green park and public spaces for recreation and events.
• Sky Garden Zone: Private outdoor spaces for residents, including terraces and gardens.
• Sustainability Zone: Water recycling plant, energy-efficient systems, and green facades.
• Art and Cultural Zone: Public art installations, heliostat light features, and cultural events.



• EAST-WEST
TOWER
• RETAIL ZONE
• RESIDENTIAL
ZONE
• GREEN PUBLIC SPACE
• COMMERCIAL
ZONE





1.East and West Towers
Residential Apartments: The development consists of two towers, East and West, offering luxury apartments with stunning views of the city and nearby parklands.
Vertical Gardens: Both towers are adorned with vertical gardens, designed by Patrick Blanc, featuring a diverse array of plants that cover the building facades.
2. Sky Garden
Exclusive Access: Located on the upper levels of the East Tower, the Sky Garden is a private outdoor space for residents. It offers panoramic views, lush greenery, and a tranquil environment above the bustling city.
Sky Terraces: These terraces provide outdoor living spaces for penthouse apartments, blending indoor and outdoor living.
3. Heliostat (reflective panels) and Sky Garden
Heliostat: A system of motorized mirrors on the roof of the West Tower that reflects sunlight down into the shaded areas of the development, including the Sky Garden.
Public Art Installation: The heliostat also features an artwork by Yann Kersalé, creating a dynamic light show during the evening.
4. Central Park Mall
Retail and Dining: The lower levels of One Central Park are home to Central Park Mall, a vibrant retail space with shops, cafes, and restaurants. It serves as a social hub for both residents and visitors.
Supermarket and Convenience Stores: The mall includes a supermarket and other essential retail outlets, providing everyday conveniences.

5. Chippendale Green
Public Park: Adjacent to One Central Park, Chippendale Green is a large public park that offers open green space for relaxation, picnics, and community events.
Art and Installations: The park often features public art installations and hosts cultural events, enhancing the community atmosphere.
6. The Hanging Gardens
Innovative Greenery: Extending from the facades of the towers, the Hanging Gardens consist of a series of cantilevered planters filled with vegetation, creating a lush, living landscape that enhances the building’s aesthetic and environmental impact.
7. Public Art and Lighting
Artworks: The development includes various public artworks integrated into the design, including light installations and sculptures, adding to the cultural value of the space.
Night Lighting: At night, the building is illuminated with artistic lighting, including the heliostat’s reflective light, creating a vibrant and dynamic appearance
8. Communal Amenities
Pool and Gym: Residents have access to a swimming pool, gym, and spa facilities, promoting a healthy lifestyle within the development.
Function Rooms: There are communal spaces available for events, meetings, and social gatherings.




PODIUM ROOF
(WHICH IS ABOVE
PARKING
BASEMENT AND RETAIL SHOPS)








• Green Facade: Vertical gardens act as a natural insulating envelope with vertical irrigation.
• Environmental Control: Facade adapts to climate, regulating light, heat, and air quality.
• Light Redirecting System: Heliostat mirrors enhance natural lighting and energy efficiency.
• Nature Integration: Building "envelops" inhabitants in nature, blending urban and natural environments.










The heliostat at One Central Park uses 40 motorized mirrors to redirect sunlight into shaded areas and enhance natural lighting. It reduces the need for artificial light and features an artistic light display at night, combining environmental efficiency with modern design.





























• A clubhouse with indoor badminton courts, tennis courts, squash courts, party area, pool table, table tennis, coffee shop, jogging track, a children's play area and separate health clubs for men and women
• Party halls
• Recreational rooms like the card/chess/carrom room.
• A lounge library
• A restaurant
• A large swimming pool.
7. 100% power back-up,
• High speed elevators,
• Jogging tracks and
• Security system.



























NORTH LIGHT ROOFING
TURNING INTO EAST LIGHT
INSULATED ROOF
EXISTING
SUBSTATION
CAFE, COURTYARD
CHAWL HOUSING

WOODEN NORTH LIGHTS OF THE HERITAGE ICE FACTORY CATHEDRAL
BLACK BOX FOR EXPANSION
KITCHEN

ICE FACTORY













Within the courtyard, an old banyan tree sits alongside the chimney of the factory. The recovery of the courtyard, restoring clarity to the original structure, allowing the Banyan tree to breathe and finding a way to shelter the new/additional cultural spaces through a dialogue with the original structures was critical.




