River Town Times - May 7, 2025

Page 1


Parking and traffic concerns voiced, praise also offered for proposal

Continued from Page 1

Dan Soleski, design principal from Architecttura, told town council the tower along Sandwich St. S would have 79 units though some could be hotel rooms. The tower proposed to run east-west would have 68 units. He said there would be an effort made to set residential blocks to the northeast corner of the site away from existing residential areas to mitigate shadow impact and to reconstruct historic facades at both the south and north portions.

Tracey Pillon-Abbs, principal planner with Pillon Abbs Inc., pointed out buffering and landscaping would be utilized to minimize impacts to neighbouring property owners. Aaron Blata from RC Spencer and Associates spoke of traffic impacts from their own research and measurements, stating there were 335 trips daily from the site when it was a high school, predicting there would be 271-294 trips if it were redeveloped.

Councillor Linden Crain asked if the project was still feasible if the towers were lowered to five to eight storeys. Valente stated they are trying to achieve 140 units to make it feasible and that they would have to make the buildings wider and not as attractive if they were to lower them.

Councillor Diane Pouget addressed the parking issue and was told there would be 262 spots on site. She also questioned where construction workers would park and what the staging area would be during demolition.

Valente said it was too soon to tell where the staging area would be, noting that would come up during the site plan process. He added it would be an

approximately three-year process before people could move in.

Pouget said she recognized the fact the meeting was to discuss proposed Official Plan and zoning bylaw amendments but said it was important for all questions to be answered due to provincial legislation that results in site plans no longer going before town council.

“We want you to be successful but we want the residents to be OK with it too,”

Pouget told the proponents.

Councillor Peter Courtney questioned the traffic study, noting counts were done on a Tuesday in November. He suggested doing one on a busier day, such as when a festival or event is being presented. Courtney indicated he liked a lot of what he saw but “height is scary to people.” One of the things he liked was the proposed residential towers were brought in closer to the centre of the property.

Blata said traffic data is not usually gathered on a worst-case scenario day. He added there should be a “healthy” split of people using various different modes of transportation from vehicles to cycling to walking.

Parking was also brought up by Courtney, wondering where overflow parking would end up. He also wondered if they could go one level further down in a parking garage.

Valente said their proposal exceeds town parking requirements at 1.5 spaces per unit, adding such a development would likely attract empty-nesters, retirees and first-time home buyers.

“We’ve done multiple condominium developments across Essex County and 1.5 is more than sufficient parking,”

said Valente.

There is some parking for commercial units, added Soleski.

“Those 40 spots should satisfy those entities,” he said.

Councillor Don McArthur wanted to know about visitor parking, wondering if was rolled into the 1.5 space equation. Valente confirmed it was rolled in.

Councillor Molly Allaire asked about the fire department’s capability to deal with an 11-storey building. Deputy Fire Chief Dan Monk said the department is prepared to deal with a fire at an eightstorey building and it would be the same for an 11-storey building.

Residents were allowed to address the special planning meeting to voice their questions, concerns or comments pro or con.

Phil Kasurak said it is recognized the school site requires redevelopment and that the province encourages “building up instead of building out.” His issue was what shape and form that would take.

Kasurak noted sections of the Official Plan about height restrictions, stating the streetscape of Sandwich St. S. has been a long-standing issue. Council is also required to get input of the heritage committee and is subject to public consultation.

Sandwich St. S. is considered “a gateway” and should reflect “historic architecture” with uses not impacting the neighbouring residential area, he said, based on previous efforts he was part of.

Traffic and parking were addressed, with traffic on Laird Ave. adding concerns regarding safety and parking. Parking spots “are already at a premium” in the

area, he said, adding there are events at nearby Fort Malden National Historic Site that include noise and vibration such as musket firing and cannon firings.

“We need assurances and agreements with the developers and the new residents that they are aware of these activities and will not object, simply like we have on Simcoe St. surrounding the active quarry land,” said Kasurak. “That needs to be part of this.”

Daryll Fogal, another Laird Ave. resident, said the development process has been “really good” and liked the “increase in transparency.” Fogal said the proposed structures are “quite large” and planning is needed for both peak and daily use regarding traffic and parking.

Fogal said many events are hosted in the area of Laird Ave. and there are “a lot of moving parts” to the proposal that need to be addressed. That part of town is also “a mecca for children” such as River Lights, the splash pad, parks and other amenities. He suggested turning the ramp to the proposed parking garage and primary ingress and egress to the site to go off of Sandwich St. S., with a traffic light being placed at Fort St. Traffic calming measures on Laird Ave. such as bollards were suggested by Fogall.

Ed Debevc, another Laird Ave. resident, said he has been waiting the redevelopment of the former General Amherst High School site and said Valente showed what is possible at the site. Debevc said he was overwhelmed by the size and breadth of the proposal. It may be possible, he said, but it doesn’t show “community common sense” to reflect long-standing desires.

Continued on Page 4

Information gathered at public meeting will be part of future

Continued from Page 2

“It doesn’t say ‘historic town’ on the entrance,” he said.

The 262 parking sites were of concern for Debevc.

“The square footage for the proposed town hall, whether it is a town hall or other, requires 93 parking spaces, not provided for on this property. A town theatre square footage would most likely require 200 spaces, not provided for on this property,” he said.

Residents would likely bring two cars or more to the site, he stated, believing the height and size of the proposal should be scaled back.

“Simple math and community common sense says it’s not workable,” Debevc contended.

Planning officials should apply “community common sense” and their planning expertise to arrive at a decision, he added.

Elm St. resident Jack Ziriada was concerned over having a “dump truck city” if construction were allowed to begin. He said Laird Ave. wasn’t built for construction vehicles and also asked where construction vehicles would park.

Ziriada also wanted to know if some residential didn’t sell, would they become rental units. He said his concern is what would occur in case of the latter.

Ingrid Heugh addressed town council in favour of the development. General Amherst High School was “the heart and centre of Amherstburg for decades.”

“Today, the building sits empty without purpose. I think we need to bring this beautiful building back to life,” she said.

Heugh added she trusts the Valente team to create a vibrant building in the core of town.

“This beautiful building is conveniently located for future residents to shop and increase sales in our town,” she said. “I believe new businesses will look at it to open their doors. It will add more vitality to our downtown since it is walking distance to many of the shops.”

Heugh added Valente “really cares about this building because of his family connection.” She said an opportunity exists to “bring this building back to life and make it a home for many.”

“The importance of the building’s past is the inspiration for its future. I believe it will become a source of pride in our community if we allow Valente Corporation to develop it,” she added.

Alex Dale, interpretive officer at Fort Malden National Historic Site, said he had similar comments in relation to parking issues. He said the last time there was major construction in the Laird Ave. area, visitation to the site “plummeted” and wanted to know about mitigation to traffic, parking and construction issues.

Dale added “we do like to blow stuff up and make loud noises,” and that is part of their programming. He believed it needs to be made clear to future residents.

Fort Malden is a treasure and one of the most important sites within the Parks Canada system, Dale told town council.

Laura DeJersey said she supports thoughtful development and that growth is vital but it must respect the character of the community and the liveability of the residents. She said the town and its heritage means a great deal to her.

DeJersey said active transportation is important to her, with traffic and parking issues also being a concern for her. She also was concerned about the scale of the development, stating a town hall debate could create issues over conflict of interest.

Mackenzie James, a Laird Ave. resident, said while traffic is an issue, so is noise pollution from more vehicles. He believed traffic on Sandwich St. S. will increase.

“If you try and go down Sandwich on a Saturday, good luck. Now we’re going to increase it by another 200 cars,” he said.

James said he is not opposed to development, but the size of the buildings raises other questions such as the ability for them to look into back yards.

A letter from Sandwich St. S. resident Pat Palumbo was read into the record, noting he was against to all traffic diverted onto an already busy Sandwich St. He believed multiple ways should be used to allow traffic on and off the site.

“Dilution is the solution, so to speak,” he wrote.

Palumbo said he would rather have town hall owned by the town, saying the “mere optics of getting town hall into this development baffles me.”

“Why rent when we can own?” he asked.

Wanda King, who also lives near the

LETTERS TO THE EDITOR

school site on Laird Ave., said she spoke with project officials to get concerns addressed. She believed it would be a huge adjustment and adjoining properties were being respected. She believed the project offers many uses, provides housing and jobs and saves the façade. She endorsed having the town hall there.

“All in all, I’m happy with this type of development that is being proposed compared to other possible solutions,” said King.

Deputy Mayor Chris Gibb wondered if the town could hire a third party planner to review a possible town hall move, so the residents could see “there is no undue influence within town hall.” Deputy CAO/director of development services Melissa Osborne said administration could obtain costs associated with that if directed by council.

Mayor Michael Prue suggested offering the town-owned lot across Sandwich St. S. as a rental opportunity for construction worker parking. He added a question on whether the overall proposal would go back through the heritage committee, with heritage planner Adam Coates saying it is currently a property of interest with designation expected in the future. Coates added the development application would then be worked on. He noted the façade is an item on the property of interest list and is being taken into consideration by the developers.

The feedback will be received and summarized into a future report to town council.

Resident confident we will never allow Canada to be the 51st state

In view of the recent upheaval that our world is going through; I thought I would share some thoughts.

It is times like this that we must never forget just how much we have been given.

I think of both of my parents, who experienced the tumultuous times during the Second World War. My father enlisted when he was only 18. Being a Gunner, his travels would also take him to North Africa, Sicily, The Netherlands, Germany

and England. My mother was a Corporal in the Royal Air Force. Together they met in Britain and when the war was over, married and began a new life in Canada.

After many years in Quebec, they would transfer and move our family to Amherstburg. We will never realize the emotional magnitude of what the war did to them.

I so remember that my dad would often talk about how people in the Netherlands were being invaded by another country

Reader gives nuclear considerations

The recent distribution of potassium iodide pills brings to mind our proximity to two nearby nuclear power plants: Fermi

2 at Newport, Michigan, and the DavisBessie plant near Oak Harbor, Ohio, both on the Lake Erie shore.

and yet, we would drop food down to them via airplanes. The Netherland people still take time out to show their appreciation for this help, and show affection that they have for our Country.

Let us never forget what Canada has so fiercely given through years of combat. I am so proud that we have “Powers To Be” such as our Premiers and our new Prime Minister that have proven and demonstrated their commitment, to honouring the sovereignty of our great

The U.S. Nuclear Regulatory Commission (NRC) defines two emergency planning zones around nuclear plants: a plume pathway zone with radius of 16 km (10 mi), concerned with exposure to and inhalation of airborne radioactive contamination, and an ingestion pathway zone of 80 km (50 mi), concerned primarily with ingestion of food and liquid contaminated by radioactivity.

nation.

This is my family story. We need to hear more of them.

I am confident and feel very strongly that we will never allow our Country to become someone else’s 51st state!

O Canada, We Stand on Guard for Thee!

Respectfully Submitted,

—Kathy Hay Amherstburg

Amherstburg is 19 km from Fermi 2 and 60 km from Davis-Bessie. Each plant has suffered past accidents. In Canada, the regulator is the Canadian Nuclear Safety Commission (CNSC), which collaborates with the province to designate around a nuclear plant a primary zone in which preparedness plans are required. For instance, the zone around the Chalk River plant near Ottawa is a 9 km radius. According to regulators, nuclear plants release very small amounts of radiation into the air and water and do not pose a risk to the health and safety of persons or the environment. As reported by studies conducted by respected scientific organizations, such as the American Cancer Society and the National Cancer Institute, living near nuclear plants has “no adverse impact on cancer rates.”

LETTERS TO THE EDITOR POLICY

—Terry Hall Amherstburg

Garage Gym “can carry” aids local mission

A local gym did its part to not only give its members a workout, but to help those in need as well.

The Garage Gym held its first-ever “can carry” event last Friday with approximately 1,500 pounds of cans and other non-perishable food items carried from the gym on Murray St. to the Amherstburg Food and Fellowship Mission. The goal was 1,000 pounds.

Shawn LeBlanc, one of the organizers and an “ambassador” for the campaign at the Amherstburg location, said that food banks need to be replenished this time of year.

Much of the food collected in the Christmas season has been distributed, so now is the time to re-stock the shelves, he indicated.

LeBlanc, who is with Shawn & Roxi Real Estate, teamed with Mark Scherer of Century 21 and Tyler Male from Motor City Chrysler to help sponsor the Garage Gym event. LeBlanc is also a gym member.

“We’re pitting all three gyms against each other to see what they can come up with,” said LeBlanc.

The Garage Gym also has locations in Kingsville and Windsor with those gyms also raising canned goods

Stella’s Got Talent!

Stella

and non-perishable food items for food banks in their communities.

Between the three Garage Gym locations, approximately 10,000 pounds of food were collected.

Austin Tilson, facility leader at the Amherstburg location, said the “can carry” capped a six-week program that also concentrated on nutrition and training. Carrying the cans on foot to the mission was also part of their training.

There are about 130 Garage Gym members in Amherstburg, 90 in Kingsville and 50 in Windsor. About 75 people in Amherstburg took part in the challenge.

Amherstburg Food and Fellowship Mission president Tim McAllister said volunteer board member Jill Kanwischer worked with the Garage Gym on the fundraiser, so he was surprised with how much food was brought to the mission last Friday evening.

“I now see all of the cans and I am excited,” said McAllister.

McAllister thanked the Garage Gym and said it will help keep the mission going and inspire them going forward.

“This will motivate us and give us a jump start,” said McAllister.

Job Requirements for Reception/Dispatch:

• Welcome and assist visitors

• Answering and directing incoming calls while managing a multi-line phone system

• Support office operations with administrative tasks such as filing, maintaining records, scheduling bus rides and basic data entry

• Computer skills required

• French language skills an asset

• Permanent Part-Time Monday through Friday ACS is strongly committed to diversity and inclusion within our community. We welcome applications from all qualified individuals.

GOD LOVES YOU AND HAS PROVIDED FOR YOUR SALVATION THRU HIS SON JESUS CHRIST

Will you accept Jesus Christ as your Saviour & Lord today?

The Bible says: That if thou shalt confess with thy mouth the Lord Jesus and believe in thine heart that God hath raised him from the dead thou shalt be saved Romans 10:9

Pray this prayer from your heart today: Dear Jesus, I believe you died for my sins and rose again the third day And I accept you now as my Lord and Saviour By believing this in my heart, I know that I am now saved and am a child of God Thank you for hearing me, and your love for me I know you will keep me by your spirit thru your word the Holy Bible

Thank you, Amen

Welcome to hear the Gospel of Jesus Christ at:

246 King St, Amherstburg

Sunday Service - 11am

Bible Study Tuesday 6pm Pastor Maynard Hurst 519-736-4110

REJOIGNEZ NOTRE ÉQUIPE!

Exigences du poste pour Réception/Expédition:

• Accueillir et assister les visiteurs

• Répondre et répartir les appels entrants tout en gérant un système téléphonique multiligne

• Soutenir les opérations administratives du bureau avec des tâches telles que le classement, la tenue des dossiers, la planification des trajets en autobus et la saisie de données.

• Compétences informatiques requises

• La maîtrise du français est un atout

• Poste permanent à temps partiel du lundi au vendredi

SCA s’engage en faveur de la diversité et de l’inclusion au sein de sa communauté. Nous encourageons les candidatures de toutes les personnes qualifiées.

Si vous êtes intéressé(e), veuillez envoyer votre CV à : Services communautaires d’Amherstburg 100-320 rue Richmond, Amherstburg N9V 1H4 ATTN: Kathy DiBartolomeo ou par courriel: execdirector@amherstburg-cs.com Pour toute question, veuillez appeler le 519-736-5471 Date limite de candidature :

Saturday, May 10th

Members of the Garage Gym start carrying bags and boxes of food to the Amherstburg Food and Fellowship Mission (left) and helped unpack them once they arrived, with the help of mission volunteers (right).
Maris Catholic Elementary School presented their “Stella’s Got Talent” talent show last Wednesday with performances done for the students during the day and an evening performance for parents. More photos are on the River Town Times’ social media pages.
RTT PHOTOS BY RON GIOFU

Town council gets update on new fire hall progress

The subject of the new Amherstburg fire hall was brought up at the most recent council meeting with members of council relaying concerns.

The town is claiming there were changes that were needed for the foundation and those issues will not be paid for by residents. There are also issues with the ability to obtain structural steel.

Councillor Diane Pouget said she was getting “a lot of concerns” with the new fire hall, to be built along Simcoe St. at the Libro Centre property. Pouget asked for a complete report on the progress of the new hall, though information was given verbally at the most recent meeting.

Councillor Peter Courtney said he had also heard concerns, stating he heard rumours about foundations and things have to be redone. Courtney said council needs to be brought up to speed and whether contingency funding is needed to address any issues that may have arisen.

CAO Valerie Critchley said she had advised town council there were some changes that had to be made to the foundations that were caught by town building staff and fire engineering staff.

“That’s being taken care of. That’s at no cost to the town. That’s been dealt with,” said Critchley. “We have had some delays with respect to structural steel and we’re working through that with the supplier and the contractor now. If we need to bring anything back to council with respect to additional costs – right

now we are anticipating being able to deal with it within the contingency –we would, of course, bring that back to council.”

Courtney said “it shouldn’t be a contingency thing” and that he “didn’t want to blow taxpayers money, which is contingency money on hiccups which is solely the responsibility of the tender winner, the architect or whoever.”

Critchley responded the town always carries a contingency for items that may come up and the town has the ability to deal with that within contingency. She reiterated if costs were outside of the original project costs, they would bring that back to council.

The CAO emphasized the town isn’t paying anything extra regarding the footings, and that she noted the conversations are being held with regard to structural steel and that is the issue being looked at possibly through contingency.

Councillor Molly Allaire asked about timing of the project, with Critchley adding while September or October was the original move-in date, the completion will likely have to be pushed back due to the structural steel issue.

Pouget said she visited the site and large equipment was being removed from the site. She said constituents are very concerned with a lack of action at the site and the removal of equipment.

Critchley noted the issues around the structural steel and footings, but said she could not speak to the matter of removal of equipment.

Strong turnout at Mercato job fair, store opens May 8

The town’s newest grocery store opens its doors May 8 and a large number of people attended its recent job fair.

Mercato Fresh co-owner Jonathan Reaume estimated at least 300 people attended the job fair in late April at the Libro Centre.

The store is looking to fill approximately 40 positions in various departments, with Reaume estimating 80 per cent of them will be full-time.

“It’s a very good turnout,” he said. “It’s typical for when we run a job fair. The lineup was all the way outside the building. It’s great. I think we’ll satisfy just about every position we need for the store.”

Reaume and partner Marc Romualdi are prioritizing Amherstburg residents when making their hires, Reaume noted. He said they want to showcase a “hometown

family business vibe” and that he was amazed by how many people told him and other management staff on hand that they were brought up in Amherstburg.

“I love the fact Amherstburg supports local as much as they do,” said Reaume. “You see a lot of investment coming in.”

While operating a restaurant on Boblo Island in 2009, Reaume said at that point he wanted to do business in Amherstburg at some point in the future. Stating the town “is really starting to grow,” he said he loves the people here.

“It’s a tight-knit community,” he said. “Everyone knows everybody.”

Having a lineup of people come to the Mercato Fresh job fair makes them feel like the Amherstburg community is embracing the store, he added.

The stores are known for having chefs creating prepared foods, items baked and cooked to order, some of the best sushi in the area, high quality goods and low prices.

Reaume described them as “an independent, neighbourhood grocery store.”

The new store will be located at 365 Sandwich St. S., across from Canadian Tire. Signage went up on the building last week.

The Amherstburg location will be their fourth store, with Mercato Fresh having locations in Chatham, east Windsor and south Windsor.

The new Mercato Fresh grocery store is scheduled to open May 8.

Amherstburg Fire joins HMCS Hunter’s “Border Sentinel”

The Amherstburg Fire Department joined a training exercise on the water on the weekend.

HMCS (His Majesty’s Canadian Ship) Hunter hosted the small boat Exercise Border Sentinel recently. Naval reservists from across Ontario participated in the handson training exercise to strengthen their emergency response skills, ensuring they are ready to support provincial and local authorities during natural disasters and emergencies. A wide range of organizations and agencies were involved in this multi-agency exercise with the Amherstburg Fire Department being one of them.

Other agencies included the Windsor Police Service, the LaSalle Police Service, the LaSalle Fire Department, Essex-Windsor EMS, the Canadian Coast Guard Auxiliary, the Royal Canadian Mounted Police (RCMP), the Windsor Port Authority and the U.S. Coast Guard. Lt. Chris Walkinshaw, the public affairs officer, pointed out it was the tenth year for the exercise.

“It brings together the Royal Canadian Navy with partners both federal and local,” said Walkinshaw.

The exercises had numerous scenarios on the water, including a “man overboard” scenario and a “mass casualty” scenario. Lt. Commander Chris Elliott, commanding officer with HMCS Hunter, added it was important to bring everyone together to work on drills and to get everyone ready in case there is an actual

emergency on the water that require a multi-agency response.

“We cross-train and work together,” he said. “It’s a way to make sure we know everyone’s names and faces on the water.”

District Chief Jason Durocher of the Amherstburg Fire Department added they are learning a lot through such exercises.

“This is perfect timing for us,” he added, noting the fire department’s marine unit is getting ready for the boating season locally.

Elliott added they see a lot of high school co-op students come through and they progress through the ranks to where they become key in planning training exercises like the one in late April. He added that HMCS Hunter is actively recruiting.

Local man wins second prize in Lotto 6/49 draw

Special to the RTT

Pasquale Mazzei of Amherstburg can “find his possible” after winning a Lotto 6/49 second prize worth $105,904.20 in the March 19 Lotto 6/49 draw. Pasquale, a retiree, has been playing the lottery with OLG since he was old enough to do so. He

plays Lotto 6/49, Lotto Max, and Lottario each week, using his own number selections and always adding Encore to his tickets. The father of two is now thrilled to share the news of his first big win!

“In the morning, after finishing my coffee, I checked my tickets using the OLG app on my phone,” Pasquale said. “When I saw the numbers I’d matched, I was frozen with shock, but still managed to scan my ticket and confirm my win. I called out for my wife, who was upstairs, saying, ‘We won the lottery!’ She screamed in shock and amazement.”

Mazzei said they shared the news with close friends and family and “everyone was so happy for us.”

Pasquale plans to share his winnings with his children, pay off bills, and save for retirement.

“Being a winner feels amazing! I’m still trying to take it in, as it’s not something you ever expect will happen to you,” he concluded.

The winning ticket was purchased at Shoppers Drug Mart on Sandwich St. S. in Amherstburg.

REJOIGNEZ NOTRE ÉQUIPE!

Exigences du poste pour d’aide-cuisinier/boulanger:

• Expérience en préparation culinaire ou en cuisine

• Effectuer des tâches sous la direction du chef de cuisine

• Aider à la cuisson

• Aider au nettoyage et à l’entretien des installations de cuisine

• Capacité de soulever jusqu’à 13 kg (30 lb)

• Poste à temps partiel du lundi au vendredi

• Certificat de manipulateur d’aliments et maîtrise du français est un atout

SCA s’engage en faveur de la diversité et de l’inclusion au sein de sa communauté. Nous encourageons les candidatures de toutes les personnes qualifiées.

envoyer votre CV à : Services communautaires d’Amherstburg 100-320 rue Richmond, Amherstburg N9V 1H4

ATTN: Kathy DiBartolomeo

Objet : Aide-cuisinier/boulanger ou par courriel: execdirector@amherstburg-cs.com

Pour toute question, veuillez appeler le 519-736-5471

Date limite de candidature : 23 mai 2025

Nous remercions tous les candidats, mais seules les personnes qualifiées seront contactées.

The family of Mary Louise Mayville would like to thank everyone that came to support us during the loss of our Mom.

Your kind words and support during this difficult time meant a great deal to us.

Thank you for all of the floral arrangements, donations, phone calls, visits and messages that we have received. Your kindness will not be forgotten. Thank you, Kelly, David, Kathy and family.

PHOTO COURTESY OF THE AMHERSTBURG FIRE DEPARTMENT
The Amherstburg Fire Department’s boat was part of a recent training exercise in Windsor put on by HMCS Hunter.
Pasquale Mazzei of Amherstburg won $105,904.20 in a recent Lotto 6/49 draw. Photo courtesy of the OLG.

WETRA hosts volunteer appreciation dinner

A lot of work requires a lot of helping hands.

The Windsor-Essex Therapeutic Riding Association (WETRA) in McGregor knows that and without its 120 volunteers would not be able to provide the valuable services that it does.

On Sunday, as part of National Volunteer Week, WETRA held its volunteer appreciation dinner. It was a chance to thank those who gave of their time.

“They get to know our clients and our clients know them,” said volunteer co-ordinator Jon Casey.

WETRA offers a safe environment for those with special needs to gain confidence in a farm atmosphere that, over the years, has become more than horses. While 26-year-old Charlie stands tall in his stall, there are four-legged friends including goats, a rabbit, chickens, a duck and the well-behaved pigs.

WETRA is known for its animals, but it was the volunteers who were recognized. According to Casey, more and more people of all ages come to the farm to lend a hand, whether it be sweeping out the barn, maintaining the property or walking alongside a gentle horse.

“We have been getting more volunteers over the last year or so. A lot of them are students from high school but there are some retirees.”

One person who has no desire to walk away from WETRA is board president Sue Klotzer from Amherstburg.

As part of the appreciation dinner, Casey presented her with a special recognition from Essex MPP Anthony Leardi for her dedication and leadership.

“It takes a village to run this place and

it takes volunteers,” said Klotzer, who has been with WETRA since 1982. “Even the person who does the littlest thing here to help is greatly appreciated.”

Casey said that her impact on WETRA cannot be overrated.

“Her vision has transformed WETRA into a community hub. She inspires and mentors new leaders,” he said.

After the dinner and accolades were given out, visitors to WETRA made their way to the stables. There is Cody, who was born in 2002 and is a big eater, Arneigh, one of the newest members to the farm, and Dixie who has been at WETRA since 2018.

WETRA has some great ways to connect with the community, including an ultimate horse lovers gift package where up to five visitors can have a 30-minute tour, have their pictures taken and help with grooming and feeding.

Volunteers go through an orientation session and usually sign on for up to 12 weeks.

For information, call 226-758-8857.

UP STARTING MAY 19TH

Annual Bob Meloche Father’s Day

Kids Fishing Derby

Sunday, June 15th

Kids ages 0 to 12 years. Everyone welcome. Fish must be at the club by 12 noon sharp. Child must be accompanied by adult. Free hotdogs, chips and pop.

Prizes for age groups: 0-4 yrs • 5-8 yrs • 9-12 yrs SIGN UP STARTING MAY 19TH Canadian Tire & The AMA Sportsmens Club LAST DAY TO SIGN UP IS JUNE 7TH

Take your child/grandchild fishing

The Navy Yard park will be open for this fishing event.

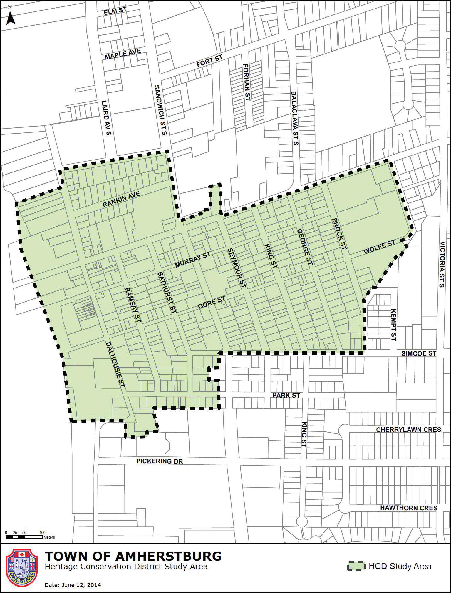
CORPORATION OF THE TOWN OF AMHERSTBURG

NOTICE OF STATUTORY PUBLIC MEETING TO CONSIDER A HERITAGE CONSERVATION DISTRICT

STATUTORY PUBLIC MEETING:

TAKE NOTICE that the Council of the Corporation of the Town of Amherstburg will hold a public meeting on Monday, May 26, 2025 commencing at 5:00pm in the Town of Amherstburg Council Chambers, 271 Sandwich Street South, Amherstburg, Ontario in accordance with Section 41.1 (6) (b) of the Ontario Heritage Act, R.S.O. 1990 Chapter 0.18, as amended.

ANY PERSON who wishes to attend and address Council by electronic means, must register with the Clerk’s Office no later than 4:00 pm on Thursday, May 22, 2025. To register for electronic participation please email the Clerk’s office at clerk@amherstburg.ca Once you register, you will be given information on how to make your submission at the electronic meeting by electronic participation. To participate, you will need access to a computer or tablet with internet service or a telephone.

ANY PERSON who wishes to watch the meeting proceedings only, please visit http://video.islive.ca/amherstburg/live.html

PURPOSE OF THE MEETING

The purpose of this meeting is to review the Amherstburg Heritage Conservation District Plan and By-law 2025-036.

ADDITIONAL INFORMATION:

ANY PERSON may make written representation in support of or in opposition to the proposed Heritage Conservation District Plan and by-law by email to the Clerk’s Office at clerk@amherstburg.ca or in person by appointment for drop-off at the Clerk’s Office, located at 271 Sandwich Street. Comments must be submitted by 4:00 p.m. on Thursday, May 22, 2025 before the meeting and will be read aloud prior to the application being heard by Council.

ANY PERSON attending the public meeting shall be given opportunity to make oral representation with respect to the proposed Heritage Conservation District Plan.

IF A PERSON OR PUBLIC BODY does not raise objections to the adoption of a proposed heritage conservation district plan by making oral representations or written submissions may be later denied an opportunity to appeal the passing of a by-law adopting the plan under subsection 41 (1) of the Ontario Heritage Act.

The proposed Heritage Conservation District Plan is also available for review on the Town of Amherstburg Website: www.amherstburg.ca and hard copies are available for viewing at Town Hall, 271 Sandwich Street South, Amherstburg, Ontario. Further information relating to the proposed Heritage Conservation District Plan is available for inspection by calling or emailing the Planning Department Office during normal office hours, 8:30 a.m. to 4:30 p.m. If you wish to be notified of the adoption of the proposed Heritage Conservation District you must make a written request to the Town Clerk

The meeting will be available for viewing by livestream by visiting www.amherstburg.ca

DATED at the Town of Amherstburg this 29th day of April 2025.

KEY MAP Adam Coates

Information will be gathered in accordance with the Municipal Freedom of Information and Protection of Privacy Act (MFIPPA). All comments and communications received will become part of the public record unless you expressly request the Town to remove it. If you want to learn more about why and how the Town collects your information, write to the Town Clerk's Office, 271 Sandwich Street South, Amherstburg, ON N9V 2A5 or call 519

Town of Amherstburg Libro Centre 3295 Meloche Road

Amherstburg, Ontario N9V

Sue Klotzer accepts an award from Essex MPP Anthony Leardi, presented by volunteer co-ordinator Jon Casey.

Turn static files into dynamic content formats.

Create a flipbook
Issuu converts static files into: digital portfolios, online yearbooks, online catalogs, digital photo albums and more. Sign up and create your flipbook.