Interior Design Portfolio

Page 1


Sanghavi
“Design is not just what it looks like, Design is how it works.”
-Steve Jobs

Professional Practice

Creu Concept, Doha

Arab Engineering Bureau (AEB), Doha

RSP Design Consultants Pvt.Ltd., Bangalore

Kembhavi Architecture Foundation, Hubli Architecture Paradigm, Bangalore

Independent Projects

Clark’s Inn – Bar Lounge An exclusive handbag Store – Ricca Got Office Tech – Office Interiors

Furniture Design

Dining Table

Console Unit

Planter Box

Shoe Stand

Creativ e

Sketching Painting Dot Rendering Photography

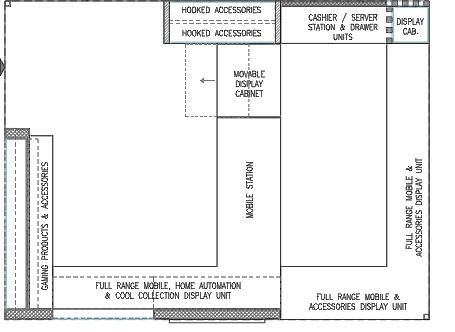
CLIENT : STARLINK

PROJECT : COMMERCIAL INTERIORS

LOCATION: 13 STORES & 4 KIOSKS ACROSS DOHA RETAIL CONCEPT

INSPIRATIONAL COMPONENTS

• Experiential, Global, Innovative & Dynamic.

• Exploration is the vehicle to realize an experiential model with universal appeal, which may be replicated anywhere in the world.

• Exploration concept accommodates key old/current elements with the new, fresh, dynamic direction to ensure success of rebranding approach.

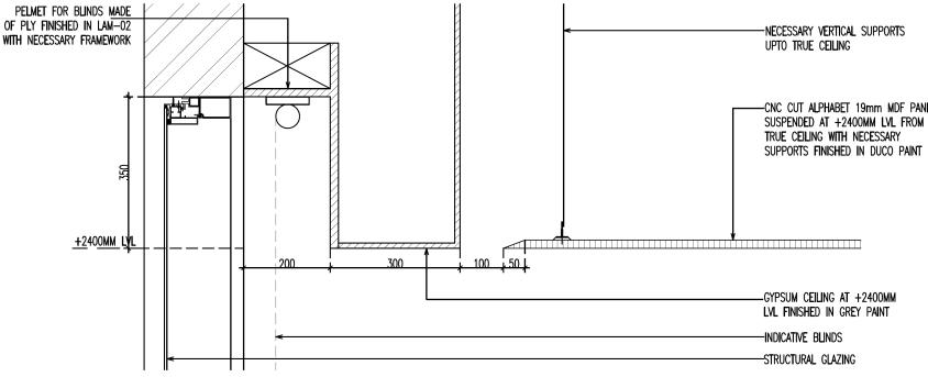
CREUCONCEPT

Wall mounting detail Cabinet-Plan

RCP

Figure 14.6
Figure 14.5
Figure 1.3
[POR-1]*
[POR-2]*
Entrance
Marvel & Comfort Entertainment
Convenience & Café Connectivity
Figure 14.1
View of the transition space at the store entrance
Layout
Furniture Layout- Upper floor
Display Cabinet Detail- Kiosk

The Kiosk design is derived from Starlink retail medium size store design theme, finishes, colours and layout. Depending on the available space, permitted heights, and the location, the design of each kiosk can vary.

Accordingly, there are mainly two types that follow the design of kiosk:

1.Closed kiosk type

2.Semi Open type: Open & Accessible on 4 sides

CLIENT : STARLINK OFFICE HEADQUARTERS

PROJECT : COMMERCIAL INTERIORS

LOCATION :DOHA

Design Intent

– To turn a traditional Office setup into an efficient, motivating, interactive and experiential work place. Cognitive mapping Open Interactive spaces Functional Design Experiential design Standing Flamingoes Socialisers Lonely stars

Cafe Meeting rooms Offices/ Cubicles Storage areas

Collaborators

Core Design of office revolves around Activity based working

• Open office areas

• Privacy areas

• Quiet Focus areas

• Meeting areas

• Lounge/Rest areas

Industrial Office design elements incorporated in Design

• High & Exposed ceiling- Ducts, Pipes, Beams

• Exposed Concrete/Brick walls

• Lack of Interior walls with large windows resulting in more open space

• Natural wood & Concrete floors

• Overhanging light fixtures with exposed light bulbs

• Bringing nature into workspace

• Glass Walls & Doors

Socializers
Typical Meeting room
Reception
Lonely Stars
Quiet Room
Quiet Room
Product Experience Suite
Training Room
Break room

Meeting/Interaction zones - Draft

Standing Flamingo’s/ Collaborators

Lonely Stars
Quiet room - Draft
CEO Office
Carpet
Metal Mesh
Brick Wall Cement look tile
Wood look tile Fabric
Indoor landscape
Material Palette

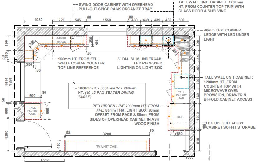
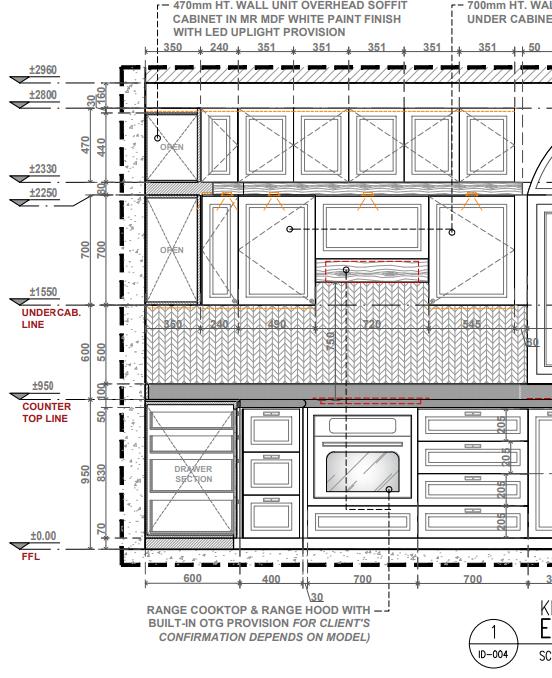
CLIENT : EMAN AL MALKI

PROJECT : KITCHEN RENOVATION

SOURCE : CREU CONCEPT, DOHA

Design Intent – A modern functional kitchen in contrast to the existing set-up. This included maximizing storage and inclusion of planters alongside a TV unit & central dining table in an area of 29sq.m. with existing openings.

Original Kitchen set-up
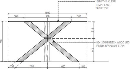
Dining Table edge detail

CLIENT : NAWAF AL HAJRI

PROJECT : ROYAL CUP CAFE

SOURCE : CREU CONCEPT, DOHA

Design Intent – To design a café with European theme, bringing in floral & green spaces without compromising on the exterior façade of the café.

Main Cafe signage with store front design

Bench sitting with floral/ plants wall climbing to ceiling

Front Kitchen with display counter

Stand alone floral/ plants arc for privacy

Conceptual Furniture Layout

Details – Back counter

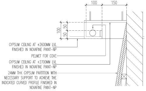
Wall section - Moulding

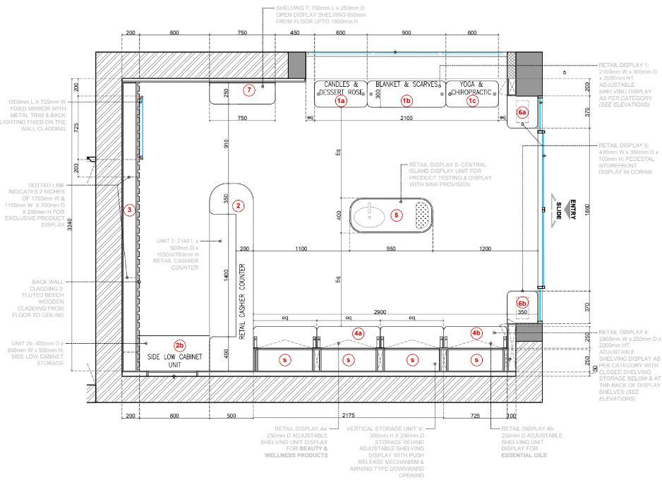
CLIENT : MSHEIREB PROPERTIES

PROJECT : ZULAL RESORT & SPA SHOP INTERIORS

SOURCE : CREU CONCEPT, DOHA

Design Intent – To design interiors of two retail stores connecting to the exclusive experience of tranquility offered through resort’s architecture blending with the serenity of sea & sand.

ASouk 1: General Merchandise Store

BSouk 2: Exclusive Beauty, fitness & Wellness Store

Wall & ceiling paint-Off white finish: Skylight/similar

Beech wood-Natural with clear 10% gloss finish (Shelving Units)

Corian-White Jasmine (for Cashier counter)

White wood claddingWhite wash with clear 10% gloss finish (Wall cladding & Back wall cabinet unit shutters)

Flooring-Porcelain tile Marvels gems: Terrazzo cream (matt & rectified)

Solid White wood-Natural with clear 10% gloss finish (Ceiling battens)

Metal-Bronze satin/polished finish

Flooring-Porcelain tile Arkshade white lappato (polished & rectified)

CorianVenaro white

Contemporary & Minimalistic theme for the two Souqs that highlight luxury, fluidity & timeless design style.

Materials & Colours are based on existing interior palette. Proposed materials will pave way for elegant & sophisticated interiors with an influence of local elements that create a harmonious, closer to nature experience for the guests.

• Natural Stone

• Metal

• Neutral paint tones

• Mirrors – To create an illusion of bigger space

Zulal Colour ratio
Execution upon completion Souq - A
Souq - B
Proposed design – Souq A

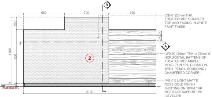
DETAIL-01

SHELVING 2b: 750mm L x 250mm DOPEN DISPLAY

SHELVING 650mm FROM FLOOR UPTO 1600mm H WITH RECESSED STRIP LIGHTING FIXED ON WALL

10x10mm PROVISION FOR LED STRIP LIGHTING

6mm thk. CORIAN WITH 12mm thk MDF BACKING 20mm thk LEDGE WITH MDF BACKING & CORIAN ON BOTH SIDES

6mm thk. CORIAN WITH 12mm thk. MDF BACKING 10x10mm PROVISION FOR LED STRIP LIGHTING (WARM)

20mm thk LEDGE WITH MDF BACKING & CORIAN ON BOTH SIDES

6mm thk. CORIAN WITH 12mm thk. MDF BACKING 10x10mm PROVISION FOR LED STRIP LIGHTING (WARM)

20mm thk. LEDGE WITH MDF BACKING & CORIAN ON BOTH SIDES

ARAB ENGINEERINGBUREAU (AEB)

CLIENT : ALFARDAN

PROJECT : OFFICE INTERIORS

LOCATION: DOHA

My work is based on the philosophy that Interior Design is the art and science of understanding people’s behavior to create functional space within a space.

Space Line Forms Colour Light

Texture Pattern

Elements that make a space

CLIENT : QATAR PETROLEUM DISTRICT

PROJECT : OFFICE INTERIORS

AREA : 45500 sq.m.

Design brief was to develop luxurious modern office space for the client

CLIENT : ASIAN MALL & MSHEIREB

LOCATION : DOHA

PROJECT : RECREATIONAL & OFFICE INTERIORS

AREA : 45500 sq.m.

Contemporary while rooted in the past. Energetic and cooperative Experience. Enhance the Productivity. Sense of Belonging.

Transformation of sketch to design

CLIENT : CROWNE PLAZA HOTEL

PROJECT : RESTAURANT

SOURCE : AEB

LOCATION : DOHA

Design brief was to give shape to cozy restaurant & develop design based on Brazilian theme.

CLIENT : BEEMA INSURANCE

PROJECT : OFFICE INTERIORS

SOURCE : AEB

LOCATION : DOHA

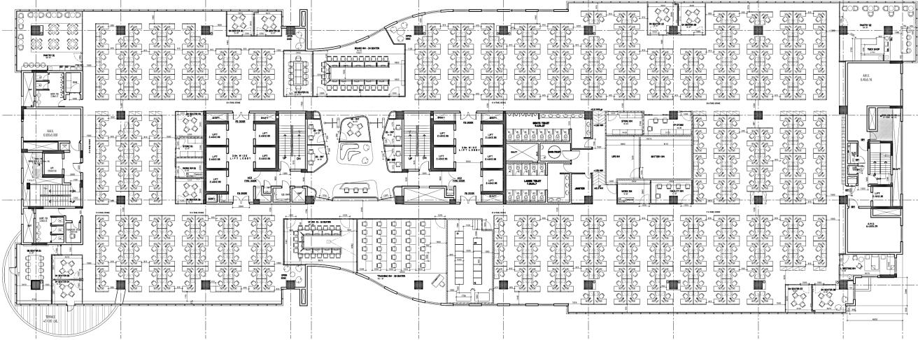
RSP DESIGNCONSULTANTS

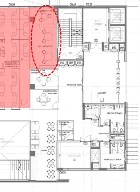
CLIENT :HEXAWARE

LOCATION: PUNE

PROJECT : OFFICE INTERIORS

Total Carpet area - 1.2 lakh sq.ft.

Design concept revolves around bringing the local culture into a global arena. The colour concept is derived from the FIVE BASIC ELEMENTS of nature.

Zoning SITE
3D Massing

GROUND FLOOR LAYOUT

Collaboration space

Carpet combination
Accent colours

Integration of Indo-European culture is Roadside café with street lights and footpath colorful graphite on wall put together to bring out the

1. Satvario marble flooring
Rugs 3. Grey sandstone wall cladding 4. White marble/solid acrylic reception table
Green pockets on sandstone wall cladding
Artwork
Reception

captured in the cafeteria from street cafe concept. landscapes, directional sign boards and colorful character of design as intended.

Recreation area
Discussion arena
Entrance Lounge

RSP DESIGNCONSULTANTS

CLIENT : IBM

LOCATION: CHENNAI

PROJECT : OFFICE INTERIORS

Total Carpet area - 40,000 sq.ft.

Interior fit-out devised with a central core keeping in mind ease of movement in general spaces and workstation area around it.

Reception (part plan)

Marble flooring-White Amazona

Alps-Elements II from Interface

Cafeteria Ceiling section

Corridor elevations morphed into a Puerto Rican streetscape to break the monotony of a typical work-place.

Only the core wall elevations are splashed with colours to bring in the originality of the streetscape concept. The remaining spaces are very subtle and minimalistic so as to enhance the design feature.

Section across Concave partitions

Cafeteria

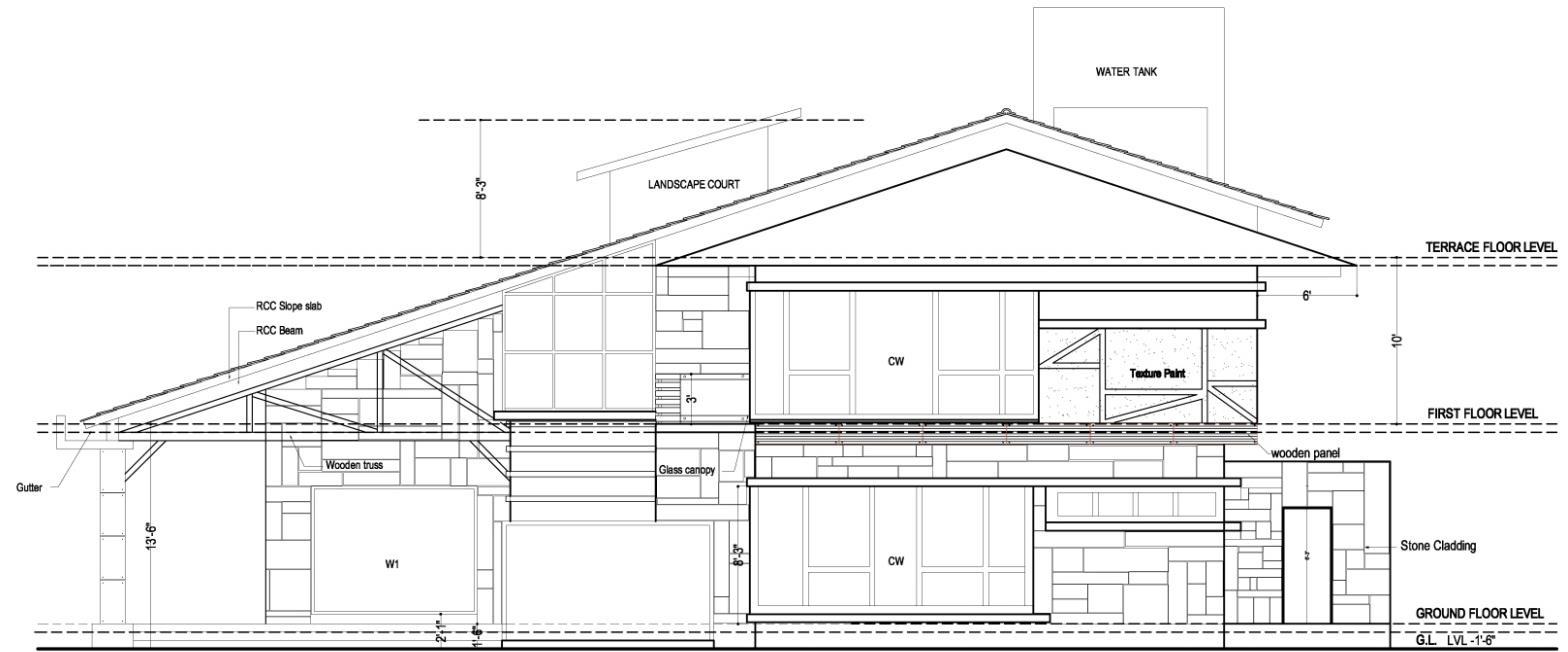
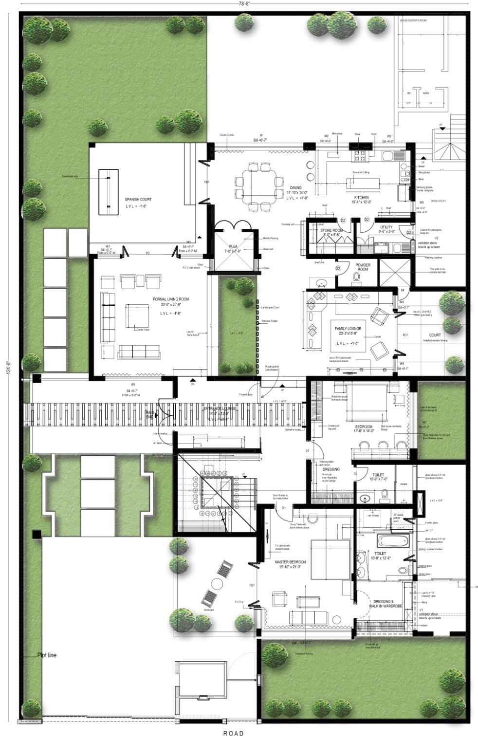
NIRANJAN NARAYAN R esidence

LOCATION: HUBLI

SOURCE : KEMBHAVI

ARCHITECTURE FOUNDATION

Site area - 9809.50 sq.ft.

Total Built up area - 7977.96 sq.ft.

Ground floor - 4623.80 sq.ft.

First floor - 3354.15 sq.ft.

Landscape forms an integral part of the design.

Partitions of Rough Granite, Balinese screen for Landscape, Natural stone paving at the Entrance and Wooden seating for the Bar Deck; these are all inculcated to give a very Rich and Rustic appearance to their Abode.

Material Palette

Flooring : Cork, Hardwood flooring, Italian Marble and Ceramic tiliing.

Wall : Wooden Panel, Natural stone cladding, FunderMax/Shera board, Texture paint

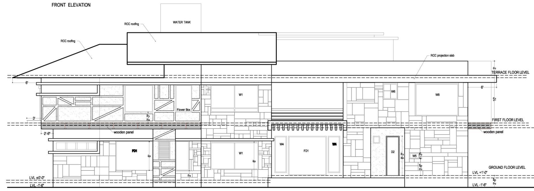
SOUTH ELEVATION (Right side)
WEST ELEVATION

ARCHITECTUREPARADIGM

INDEPENDENT PROJECTS

PROJECT : Bar lounge

CLIENT : Clark’s Inn Hotel

AREA : 450 sq.ft.

LOCATION : Hubli

MY ROLE : Interior Designer

The interior of Bar Lounge is designed minimalistically on the lines of a traditional English pub. Fabricated Barrels, intricately carved wooden furniture, fireplace surrounded by high chairs and soft carpet, the bar counter resting on three solid wooden pillars and London’s telephone booth converted into smoking booth as required for the setting. Smallest details like the signature flower basket and awnings at the entrance and windows has been incorporated in the design.

INTERIOR design of an exclusive handbag store-RICCA

LOCATION: HUBLI, INDIA

MY ROLE : INTERIOR DESIGNER

STATUS : COMPLETED

Design brief

Making the most of available materials on site as well as dealing with the existing false ceiling laid were the major challenges for planning.

The concept of geometry is emphasized by the use of wood along with mirrors and glass giving the stacking unit a bold look. Where as the walls are finished with subtle wallpapers resulting in a modest and rich ambience.

OFFICE LAYOUT - Got Focus Tech

LOCATION: HUBLI, INDIA

MY ROLE : INTERIOR DESIGNER STATUS : COMPLETED

DESIGN BRIEF

This project aimed at designing Interiors of an IT based office. The client required a layout that could devise a Reception and lobby area, 3 Cabins, a Conference room, Locker room, Server room, Pantry and a Work Station accommodating 25 people; in 1600 sq.ft. of area.

FURNITUREDESIGN

WALL HUNG SHELF- PLAN
VERTICAL

CREATIVE aspirations

Twilight with Soft Patels
Landscape in Colour Pencils
Visual Sketching – Hampi – Dot Rendering
Village Landscape in Water Colours
Twilight in Colour Pencils
Visual Sketching – Hampi – Colour Pencils
Creative Art – Soft Pastels
Architecture - Sketching
Landscape at Dusk in Soft Pastels
Mono colour Landscape with Water Colours
Abstract Art – Soft Pastels
Play of Light & Shadow - Photography

Turn static files into dynamic content formats.

Create a flipbook
Issuu converts static files into: digital portfolios, online yearbooks, online catalogs, digital photo albums and more. Sign up and create your flipbook.