PORTFOLIO JUAN P. RIOS

Page 1

PORTA

Juan P. Rios designs

JuanPabloRios

Soy un arquitecto con énfasis en creación de diseños arquitectónicos sostenibles, que utiliza tecnologías como la domótica para diseñar hogares inteligentes y eficientes, así como automatizar hogares existentes. Ven conmigo a dar una mirada al futuro.

rk arquitectos juanpariosren@gmail.com 01

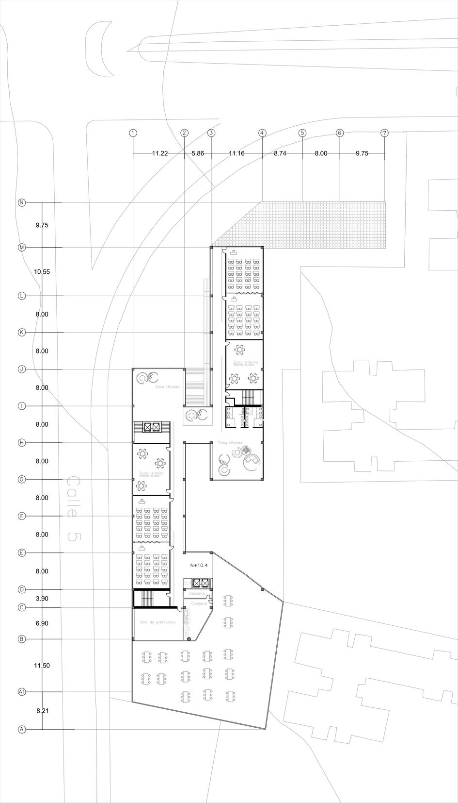
PUJ CALI SEDE CAPRI

Este proyecto fue diseñado como una nueva sede de la universidad javeriana, con capacidad para aproximadamente 200 estudiantes y con la implementación de espacios híbridos. Consta de auditorio, biblioteca y una galería en primera planta, oficinas y un sistema de aulas que se alza hasta el 6 piso

Fachada norte

Las fachadas constan de una serie de elementos que se adaptan a las condiciones ambientales

Fachada oeste

02

Corte transversal Planta 4 Aulas zona hibrida

Corte transversal

Corte longitudinal

Corte longitudinal

03

ESPACIO HIBRIDAO: ACACIAS

Juan P Rios

Arquitectos:

Juan José Saavedra Sarah López

Este proyecto fue desarrollado en conjunto con otros dos arquitectos, y consta de adaptar una sección del edificio Acacias de la Pontificie Universidad Javeriana en un una zona híbrida. Para ello se tienen en cuenta variables como las posibles actividades, e nivel de ruido y las condiciones ambientales ideales en relación a las actividades. Es importante recalcar la materialidad, y los diferentes espacios y muebles planteados

Corte longitudinal 1

04
Corte longitudinal 2
05
Corte transversal
2
Corte transversal
2

Vendrán nuevas generaciones después de nosotros. Como residentes actuales, no podemos cortar las raíces de su futuro.

Turn static files into dynamic content formats.

Create a flipbook
Issuu converts static files into: digital portfolios, online yearbooks, online catalogs, digital photo albums and more. Sign up and create your flipbook.