空間
―ふるまいと空間の思考―

―ふるまいと空間の思考―
―ふるまいと空間の思考―
Riku Miyazaki Portfolio 2023
・里山(都市農村交流拠点)の整備
・卒業論文「別府鉄輪地区における源泉を利用するための設え」
NAME :
DATE OF BIRTH :
1999 / 06 / 06
BRIEF HISTORY :
2018/03 大分県立大分上野丘高等学校 卒業 2018/04 東京工業大学 第 6 類 入学 2021/04 塚本由晴(アトリエ・ワン)研究室 所属 2022/03 同大学 環境・社会理工学院 建築学系 卒業 2022/04 同大学大学院 環境・社会理工学院 建築学系 入学
Lumion Archicad Rhinoceros
SKILLS :
PASTIME :
Adobe : Indesign , Illustrator , Photoshop , Fresco
温泉 / イラスト
2019 設計製図第一 「集まる家」 学内誌掲載 設計製図第二 「relay」 学内誌掲載
2020 設計製図第三 「捩れ漂う」 学内誌掲載 設計製図第三 「学習の循環」 学内誌掲載
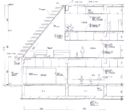
設計製図第四 「古く新しき階層」 学内誌掲載
設計製図第四 「胞の団塊」 学内誌掲載
2021 卒業設計 「湯煙のたなびき」 あ 大岡山建築賞・銀賞
AWARDS :
第 45 回学生設計優秀作品展 掲載・展示
00-1 デザインルール
『デザインはファンタジアのごとく自由で、発明のごとく精密であるにも関わらず、1つの問題のあらゆる側 面をも内包する手段である。デザインとは、オブジェ、シンボル、環境、新しい教育法、人々に共通の要求を 解決するためのプロジェクト・メソッド等々を企画設計することだと言ってもいいだろう。』
ブルーノ・ムナーリ(「ファンタジア」より)
20世紀の概念が先行したビルディングタイプは、箱を作りその中で決まった要素がある規制の中に存在する ような空間だった。これからの空間デザインはどうなるべきか。箱が先行したデザインからふるまいが先行す るデザインへと変えてみる。固い外角にしばられることなく自由に・楽しく・創造力のままにふるまうことが 許される将来。こんな未来は魅力的だと僕は考える。
ふるまいから考え、 自由に・楽しく・創造力を発揮できる
a-2 別府市鉄輪地区の湯けむりの景観
a-4 分化ダイアグラム
a-5 源泉-設え-ふるまい連関図
a-6 資源と設えダイアグラム 図中央の横軸から離れるほど利用温度は下がる。上 の象限は蒸気の領域、下の象限は湯の領域。
a-7 源泉-設え-ふるまい連関図 敷地投影
対象敷地は、幹線道路沿いで大型観光施設が多い地帯と伝統的な民宿や小さな住宅が多くある地帯、100℃近 くあり色鮮やかな湯が自然に湧き出ている地獄地帯の3つの地帯に接する土地とする。
主要歩行動線から派生するように歩行路を敷地内に導き、源泉を中心として設えを配置していく。源泉から の標高が低くなる方へ湯の設えを、高くなる方へ蒸気の設えを。源泉から離れるほど利用温度の低い設えを設 定する。それら設えはデッキによって標高に沿うように滑らかに繋がり湯・蒸気の連関を感じさせる。南側か らはそれぞれの設えでふるまう人々の姿がファサードとなり街に活気をもたらす。
砂湯/蒸気/約40℃ 活動が外に見える窓の配置
足蒸 a-13
地獄釜/蒸気/約 誰もが
足蒸/蒸気/約70~80℃ 源泉へ設えを向けることで、鉄輪の 山々を背景に全活動を視認
蒸し湯/蒸気/約70~80℃ 低い天井で体感温度上昇
/蒸気/約100℃ もが利用可能な蒸し調理釜。
蒸気吸入/蒸気/約100℃ 蒸気を吸い、健康維持。
池/湯/約100℃ 量的に利用できない湯の涵養を促す。
足湯/湯/約40℃ 蒸気は捉えず、光をある程度さえぎるネットを 屋根に採用。心地の良い空間へ。
風呂 打たせ湯/湯/約40℃ 開放的な湯上りを設け、 人々の交流を促す。
/蒸気/約90℃ されるカフェ。
湯夢竹/湯/約100℃ 湯を落とし、次の設えへ繋げる。
温水ラジエーター/湯/約90℃ 仕事をしながらも湯治を 可能とするワークスペース。
飲泉所/湯/約90~40℃ 段差を作り、次の設えの 温度まで湯を冷ます。
ナルコレプシー 〘名〙【narcolepsy】
別名「居眠り症」。間脳の障害により、時、場所、状況にかかわらず突然眠ってしまう睡眠発作や、目がさ めるが体を動かせない状態、いわゆる金縛りの覚醒発作を起こす疾患。
01. 問題提起 02. 構成要素 03. 分析
倒れる衝撃/どこで眠りに落ちるか予測できない ➡ 日常への不安 場所 / 衝突/人 ふるまいを観察する
b-1 ふるまいのスケッチ
「いつ・どこで眠気に襲われ倒れてしまうかわからない」
この空間は主に、衝突を和らげるパラボラ型のネットと、ふるまいを操作する2種類の斜めの壁から構成さ れ、住宅の最小限の機能は小さなボックスに納められ、カートリッジの様に取り付けられている。ふるまいを 操作する2種の壁は傾きが異なっており、ネットのある中央に倒れさせような壁と逆に倒れてもネットの方向 へと体を運ぶ様な壁である。これらがランダムに4階建ての空間を構成することでジグザグと特徴的な断面形 状となり内部空間での上下のスラブ位置にリズムを与えている。
01. 問題提起 02.
創造力
様々なスケールとスピードの混在の危険性 人々を巻き取る『捩れ』
人の量、滞在時間、ボリューム の差が大きな問題
四辺からの利用者、様々な速度、 幅広い年齢層を受容する
狭い街路と小規模店舗群を用いて 自由が丘の一部としての建築
劇場の形式
滞留 街路の性質 捩れ漂う
多様な世代に対し様々な演目、 多くの講演機会を設けることのできる 小規模実験劇場がいいのではないか
四辺から人々の視線と動線を 引き込む造形
ボリュームの乱立による 街路と店舗の表現
レベルが上がるにつれ街路が 区切られた空間になるような建築
速度と用途と高さの関係 高層階 長期滞在型の店舗 (レストランなど) 中層階 実験劇場
遅い 速い動線 40
イメージスケッチ
c-3 思考整理ダイアグラム
c-2 敷地図兼標高図
四面からの様々な速度を持つ人を建物へと引 き来むために、様々なボリュームを配置。
上に向かって捩じれさせることで、人々の視線と 動線を引き込む。
捩じれたボリュームに沿って鉄骨をいれる。 スラブとホワイエを鉄骨により支える。
建物と同様の「幾何学」というデザイン言語を用いて作成したこの建物のための椅子。幾何学的な細いフレー ムが自由が丘の高級感を表現し、集合することでより複雑な表情を見せる。座面に斜めにかかるゴム性の材が 人々の臀部を受け止め、スチールで作られたフレームがたわむことで人の背部を受け止める。
経験
具体的な経験をする 自分で気づく
Reflective Observation
Concrete Experience 省察 経験を多様な観点から振り返る
自分で考える
概念化
他でも応用できるように概念化する
自分で教訓とする
Active Experimentation
Abstract conceptualization 試行 新しい場面で実際に試してみる
自ら行動を起こす
・高低差による、 身近な発表の場(試行)
学習の動機欠如
四当五落 一浪は当たり前
d-2 経験学習サイクルのふるまい解釈とゾーニングコンセプト
それぞれの要素に必要な分の ボリュームを考え、配置する 小さなサイクルを実現するため、 縦横のズレを作り出す
ガラス屋根によって内側と外側の 境界線を薄くする
・ズレにより仕切りがなく 広々とした教室
ステージ 更衣室
給食室 配膳スペース
体育館
更衣室 倉庫
体育館と隣接し多様な 利用法のあるエリア
多目的エリア
モノづくりの性質を持った エリアをまとめ、 より柔軟な授業へ対応
グラウンド
商店街の終わりにあり 児童の活気が伝わる 休憩場
休憩所
小学校の外でありながら 学校の構造が落ち 大屋根のかかる空間
優秀な作品に 感化される入口
倉庫
図画工作エリア 家庭科エリア
全方位視線の通る空間
動線が絞られ 管理のしやすい 教室配置
より広々と使える配置
EV カウン セラー室 展示スペース コミュニティスペース
学んだことを 発表できる場
縦も横も視線の通る 開放的屋外
開放的な職員室 教師と児童で作る 復習の工程
屋外も勉強の場に
平面的ずれによる 発表の場
d-5 2階平面図
d-8 パース①(3階経験棟より中庭を見る) d-9 パース②(商店街を俯瞰する)
塚本研究室では、台風により被災した千葉県の里山集落にある茅葺屋根の古民家を改修することを契機に、 都市農村交流の場として釜沼北集落の整備を行っている。そこでは、材料・メンバー・時期など様々な要素の 繋がりを考慮したデザインを学び実践することができる。研究室として毎週土曜日曜日に現地へ出張し様々な 整備を行っている。この活動により、ふるまいのデザインへの関心と見分が深まった。
製図板を支えるのに 使えそうなもの
→垂直方向が推し:加藤・物部・藤島 以上に展示壁を利用してもらい、その分製図板を増やす 渕野には黒板を利用し主役とし て展示してもらう ・修士制作は最初に壁面と製図板を それぞれ利用し展示してもらう 会場内のキャプションや会場外の看板の デザインを広報班と行う。
課題:利用可能壁面に差がある →推し図面や模型の大きさの方向性を考慮 →結果的に学内のもので完成できた(表1)
毎年、卒業制作で最終講評に残った10名と修士制作にて賞を獲得した2名のために卒業制作展を開催して おり、その運営を最終講評の10名が担うこととなった。僕は展示班班長に任命され展示計画を任された。今 年は毎年使われている場所を利用することができず、予算も少ないという様々な問題がありながらも作品の良 さが引き立ち、東工大生がどのようなことを考えているのかがわかるような展示計画を目指した。この経験は かなり小規模ではあったが、空間をデザインすることの達成感と喜びを改めて感じる機会となった。
源泉 温泉 ふるまい 事物連関 フィールドサーベイ 別府鉄輪地区
1.序 別府市の北部に位置する鉄輪地区は、国の重要 文化的景観に指定された全国有数の温泉観光地であり、 高温の源泉が多く湧出している。地区内には、これら の湯を利用した風呂や足湯はもとより、蒸気を直接調 理に用いる地獄釜や熱源として利用する温室など様々 な設えが存在し、源泉を利用する人々の多様なふるま いが生まれている。本研究は、同地区におけるフィールドサ ーベイにより、こうした源泉とその温度等を調節する装 置、さらにそこから分配される複数の設えの連関及び そこに生じるふるまいを明らかにすることを目的とす る。
2.研究方法 鉄輪地区には、12の自然湧出泉のほかに、 温泉台帳 1) に78の人工掘削泉の記載がある。これらの 源泉について実地調査をしたところ、所在が確認でき ないものが14、湧出していないものが7、垂れ流して いるものが8あり、利用されているものが61あった。 このうち調査許可が得られた41の源泉について装置と 設えを抽出した。源泉の種類には、 沸騰泉(蒸気と湯 B)、蒸気泉(蒸気のみS)、高温泉(80度以上の高温の 湯のみHh)、低温泉(80度未満の湯のみHl)があり(表 1)、沸騰泉と蒸気泉、高温泉は自噴し、低温泉は動力 を用いて温泉を湧出させていた。設えの種類には、湯 を直接利用する 風呂・足湯・飲泉所・打たせ湯・湯夢 竹・泥湯・湯冷滝、蒸気を直接利用する 地獄釜・蒸し 湯・蒸気逃がし・足蒸・砂湯・蒸気吸入・低温蒸し器、 湯または蒸気の熱を利用する 水道・蒸気ラジエーター・温水 ラジエーター・床暖房・水槽・足岩盤浴・掘り炬燵・冷暖房・ 温室、湯と蒸気をともに直接用いる 池 が見られた(図 1)。装置の種類は表2の通りである。これらの設えと
装置を源泉ごとにまとめ設え連関図を作成した。分析 例(図2)では、沸騰泉から高温の蒸気と湯が100℃で 湧出し、気液分離装置で湯と蒸気に分けられたのち、 100℃の蒸気は地獄釜133、100℃の湯はさらに二手に 分かれ、40℃の風呂132と熱交換器へと繋がり、30℃ の風を出す温水ラジエーター136の循環水を温め、その過程 で熱を受け渡し90℃になった湯が風呂134,135となる。 3.設え連関図 全41源泉について、設え連関図を比 較検討したところ温泉資源の分配方法には、1つの源 泉が1つの設えのみに繋がる 単独、蒸気や湯を複数の 設えに供給する 量分配、蒸気や湯の熱だけを水道水な どの媒体に伝えて供給する 熱分配、ある設えを経由し 温度の下がった蒸気や湯を別の設えに供給する 熱減衰 分配がみられた。これらの分配方法の組み合わせから、 設え連関図を 単独・量分配のみ・量分配+熱分配・熱 減衰分配あり に大別し、代表的な設え連関図をまとめ た(表3)。
単独の11事例は、装置を介さないものが多い。沸騰 泉と高温泉から直接作られた修景用の池が9事例見ら れたほか、蒸気泉S3は地獄釜100に、低温泉(Hl1)で は風呂40に使われる。源泉同士が近接している、ある いは個人宅に源泉があり湧出量が少ないことなどが、 単体の設えにのみ使われている要因であると考えられ る。
量分配 のみは8事例あり、源泉の種類によって用い られる設えの種類が異なっている。蒸気泉S2は、修 景としての蒸気逃がし295、食材を高温で蒸す地獄釜 118、蒸気量を調整し室温50℃で蒸気を浴びる蒸し湯 117、蒸気を混ぜた40℃の砂の上に寝転ぶ砂湯116、と
※()内は個数
沸騰泉B(28) 蒸気泉S(7) 高温泉Hh(4) 低温泉Hl(2)
表1.源泉の種類 ※()内は個数
いうように1つの源泉から異なるふるまいを生み出し ている。その一方で沸騰泉B6は、風呂の数が11あり、 地域内の異なる場所で同じふるまいを生み出している。
量分配+熱分配には13事例が該当する。なかでも蒸 気泉は全7事例のうち5事例が該当しており、蒸気の もつ温泉と熱の両方の特性が生かされている。他方で 該当する10事例の沸騰泉のうち4事例は蒸気を直接利 用する設えと湯を直接利用する設えのどちらかにしか 繋がっておらず、蒸気または湯の片方を利用しないも のもみられた。沸騰泉B16では、気液分離装置で分け た湯を風呂などに量分配し、蒸気も複数の地獄釜へ量 分配するのに加え、100℃の蒸気を蒸気ラジエーターに流し、 熱のみを部屋の空気へと伝えている。蒸気泉S5では上 記の熱のみを熱交換器により水道水へ伝え、そのお湯 をポンプアップ装置でマンションの各戸の水道42へ送り出して いる。
熱減衰分配あり には9つが該当し、他の分配方法の 組み合わせと比べて設えの種類が多い。最も多い熱減 衰分配の設えのセットとしては、湯を冷ます過程を修景 として用いる湯夢竹や池から、直接人々が湯に触れる 足湯や風呂へと繋がるものが多い。他には足蒸へパイ プを用いて蒸気を供給する道のり上に足岩盤浴を作る ような、本来なら捨ててしまう温泉資源を使おうとす るものもある。さらに、9つのうち8が沸騰泉であり、 そのすべてに湯を直接利用する設えと蒸気を直接利用 する設えの両方が繋がっているため、連関図内の熱減 衰分配部分以外でも温泉資源を活用しつくしている傾 向にあると言える。高温泉Hh2では、自然に湧出した 源泉が池70となり、観光名所として人々を集めてお り、同時に温度を下げる役割を担ったのち、観光施設 内の足湯と家庭用の風呂へ注がれる。沸騰泉B20は湯 を冷ます工程を修景として用いる湯夢竹287のあとに 足湯247へ繋がっているほか、蒸気の熱を発電に用い、 湯の熱を吸収式冷温水発生器により温室246や床暖房 250、冷暖房251として利用している。また沸騰泉B1 では、蒸気の熱を掘り炬燵や蒸気ラジエーターで用いたこと で発生する冷めた湯を風呂に用いる熱減衰分配、熱交 換器を通し水道や温水ラジエーター、風呂の熱源として利用 される熱分配などにより、多様なふるまいが生まれて いる。
4.結 以上、本研究では設え連関図の検討から、別府鉄輪 地区における温泉地のふるまいは温泉資源の可能性を尽 くすように多様化されていることを明らかにした。 註1)温泉台帳とは保健所作成の源泉掘削終了時の調査に基づく人工掘削泉の記録である。
*2東京工業大学 助教・博士(工学)
*3東京工業大学 補佐員・修士(工学)
*4東京工業大学大学院博士課程・修士(工学)
*5株式会社NAP建築設計事務所・修士(工学)
*6東京工業大学大学院修士課程
B6 風 B9 風、打湯、 足湯
B19 釜、風
S2砂湯、蒸湯、 釜、蒸逃
S7風 打湯 蒸湯 蒸逃
S7
泥
[118.地獄窯]100
B3 水槽、蒸逃
B4釜、蒸ラジ、 蒸逃
B7,8池、風、
B10風、釜、 温ラジ
B2風 B15風 B16風、釜 蒸ラジ 蒸湯、飲
B15 16 風、蒸湯
B18 釜、蒸ラジ、 風 低蒸 足蒸 蒸湯
S1風、釜、 床暖、蒸ラジ
S4水槽、水道、 釜、蒸逃 S6 釜 蒸逃 足湯
S5蒸湯、打湯、 風、蒸逃、 釜、水道、砂
(混タ) (混タ)
(蒸タ)
(湯タ) (湯タ) (湯タ)
[150.風呂]40
[211.蒸し湯] [210.蒸気ラジエーター] [208.地獄窯]100
[215 216.217 218 風呂]40 (ポ) (分) (分) (湯タ) (湯タ) (湯タ) (湯タ) (湯タ) 水道水 100 100 80 40 100 60 90 20 水道水 20 80 90 100 100 S2 100
[212.213.214.風呂]40 [209.飲泉所] [220.地獄窯]100 [221.地獄窯]100 [222.風呂]40
(分)
(熱) (熱) (湯タ)
B2 60
*1 Prof, Tokyo Institute of Tecnology, Dr.Eng.
*2 Assistant Prof, Tokyo Institute of Tecnology, Dr.Eng.
*3 Research Assoc, Tokyo Institute of Tecnology, M.Eng.
*4 Doctor, Tokyo Institute of Tecnology, M.Eng.
*5 Hiroshi Nakamura &NAP , M.Eng.
*6 Graduate School, Tokyo Institute of Tecnology,B.Eng.
60 [31.水道]60
80 [29.風呂]40 80 [28.風呂]40 [30.温水ラジエーター]30
[24.水道]80
65 リサーチ
1 How is life?に展示されたパブリックドローイング
8 「古く新しき階層」アイソメ(学内誌Ka掲載)
9 「relay」矩計図(学内誌Ka掲載)
10 「Gap of Space」パース(学内誌Ka掲載)
Thank you for viewing till the last one.
〒 666-666 東京都陸区六が丘 6-6-6 TEL 66-6666-6666 FAX. 66-6666-6666
E-mail : riku0606060@Rmail.com URL : http://www.riku66.com
上記記載住所・電話番号・ファックス・メールアドレス・ホームページ、下記バーコードは実在しません。ご了承ください。
令和3年7月発行