Architectural Portfolio of Selected Works

Page 1


Portfolio

“Urban Retrofitting” Series #202401: A Vision Created using ImagineArt AI

About Me:

“Architecture is the most adventurous journey that suits my kind.”

From a young age, I was captivated by the idea of creating habitats, inspired by the ingenuity and resourcefulness displayed in Robinson Crusoe, where he constructed a selfmade, self-sufficient living space with what was available in his environment. This early fascination led me to immerse myself in both art and STEM studies, ultimately dedicating my career to architecture.

Recently, I graduated with a Master of Architecture from the University of Waterloo, ON, Canada. My current focus is on the adaptive reuse of existing structures to reduce carbon footprints, while integrating indigenous knowledge with global influences to create culturally sensitive and socially responsible designs. I also envision self-sufficient communities that harmonize with their natural and cultural environments. While shrinking built spaces is beneficial for the environment, we must integrate food-growing terraces into designs to ensure human and community evolution over time.

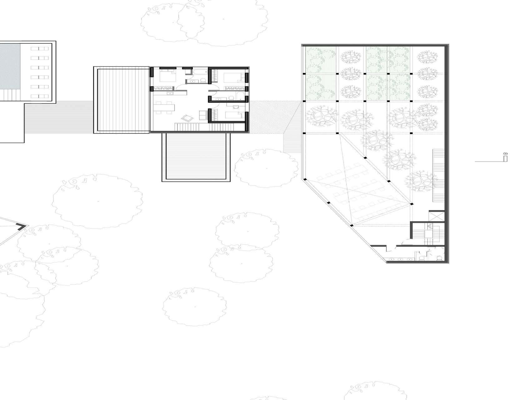
The BarnYard

Status: MB Thesis Practice | University of Waterloo

Studio Instructor: Lola Shepperd

Location: Wabana, Bell Island, NL, Canada

Date: Winter 2022

Typology: Institutional | Adaptive re-use | Repurposing Media: Rhino, Revit, Illustrator, Twinmotion

My Position: Schematic Design, Drawing Illustration

Problem and Idea

In response to the socio-economic challenges faced by Bell Island, the Neary’s Barn Transformation project was conceived with the primary objective of offering a sustainable alternative to address issues related to unemployment, addiction, and the aging population. By repurposing the historically significant Neary’s Barn, the project aimed to create a space that fosters healing, self-discipline, and a renewed sense of purpose through agriculture.

Lifecycle of The BarnYard

Inside Green House
Beets Spinach Carrots Onions Pumpkins
Inside Part Shade
Potatoes Green Beans Corns
Outdoor Garden
Brocoli Bell Peppers Eggplants Tomatoes
Labrador Tea - Nordic All Spice

Planting Calender

Garden Musing

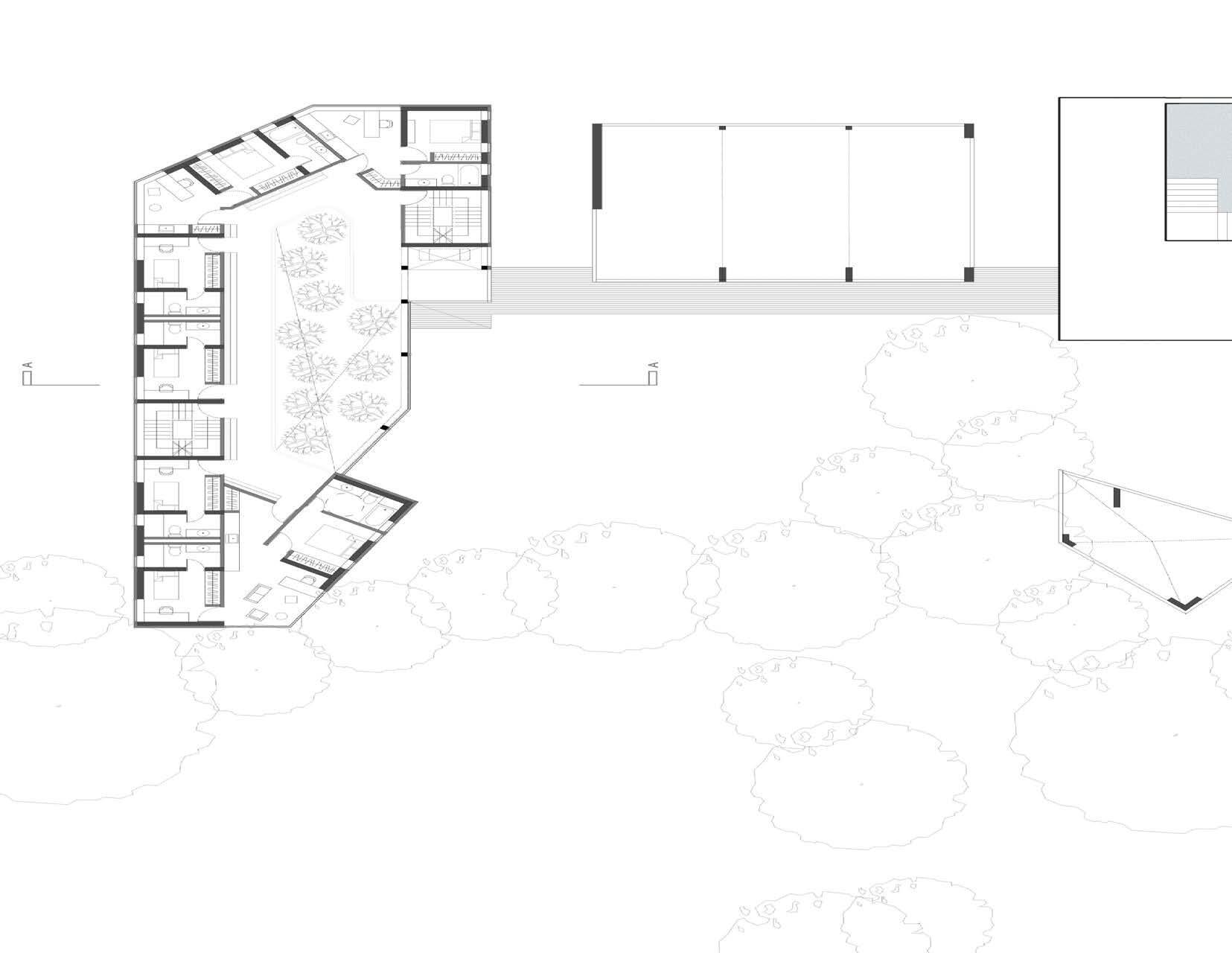
Status: MA Comprehensive Design | University of Waterloo

Studio Instructor: Val Rynnimeri

Location: Cambridge, ON, Canada

Date: Fall 2021

Typology: Residential | Co-Housing | Healthcare | Adaptive re-use

Media: AutoCAD, Illustrator, Rhino, Revit, Sketchup, Twinmotion

My Position: Architectural Design, Construction Details, Technical Report

Problem and Idea

This project is a co-housing facility for long-hauler COVID-19 patients, aiming to manage the endgame of the pandemic with minimal damage. Many people with long COVID feel that science is failing them, as treatments are still experimental and based on many assumptions. In contrast, nature has always had a healing power that can help cure various ailments. A simple walk in the woods and exposure to the forest, regardless of the season, is therapeutic. Therefore, my intention was to design a holistic environment that preserves existing trees in the area while incorporating curative and rehabilitative treatments. A major collective activity involves managing a medicinal garden to produce energy-boosting herbal tea. Additionally, ample exposure to the sun and forest is provided to boost the immune system, lower blood pressure, reduce stress, increase focus and energy levels, and improve sleep. Ultimately, the goal is to rejuvenate the health and minds of long-hauler COVID patients, helping them return to normal life.

Grand River
Trinity Park
1st
North Elevation [co-housing building]

Passive Design

Renewables: Geo Thermal and PV Glass

Public Appearance

Status: 2GBX Design Studio | Southern California Institute of Architecture

Studio Instructor: Elena Manferdini

Location: Downtown Los Angeles, CA, USA

Date: Spring 2016

Typology: Public | Justice | Highrise | US Courthouse

Media: Rhino, Illustrator, Keyshot, AutoCAD, Photoshop

My Position: Schematic Design, Animation, Drawing Illustration

Video Link: https://vimeo.com/421893644

Website Link: https://www.rifataraislam.com/highrise

Problem and Idea

Many people suffer for years because of monotonous practice of courthouses. The intention was to break the monotony of its usual practice and create a warmrelationship between public and justice through this new courthouse which will be sited in an undulated site and its four corners has three different height. So the orientation and Shape of the building was derived from different angles of site lines facing all directions. For the grounds, use of fuzzy reflective material was to get the image of the changing society. People get it while in looking and walking as soon as they enter the premise.

Building is enveloped by colorful textured glasses. The purpose of glass surface is to get maximum natural light in entire space. The reason of using colors is that it has always played an important role in the process of human evolution. It’s psychological influence and effects on the surface are aspects of our perceptual judgement system. Colors can speed up our thinking. When Orange, Blue, Beige colors are mixed together on glass surfaces it gives greenish effect to the environment. Which makes the ambience soothing and calm that is essential for a federal building. Also, it gives the new building visual separation from the neighboring gray buildings of the city.

Annex to the Bibilotheque

Status: 2GAX Design Studio | Southern California Institute of Architecture

Studio Instructor: Florencia Pita, Project Partner: Kun Wang

Location: Downtown Los Angeles, CA, USA

Date: Fall 2015

Typology: Public Library | Heritage Conservation | Speculative Intervention

Media: Rhino, Processing, 3D Coat, Keyshot, Maya

My Position: Schematic Design, Animation, Narration

Video Link: https://vimeo.com/421892855

Website Link: https://www.rifataraislam.com/public-library

Problem and Idea

The project site for the Annex for the Bibliothèque Sainte-Geneviève Library is at the corner of Rue Valette and Place du Panthéon in Paris, a location rich in historical context.

For this project, elements in the alpha images were references taken from the site. Photographs of a candy jar were combined with the alpha images to create an abstract form. The jar gives the building its main shape, characterized by a sharp curvature profile.

The envelope textures also reference the site, incorporating details of windows, building façade colors, and their shadows, merged with the candy jar’s texture to enhance visual aesthetics.

The project addresses site and context issues by maintaining a mundane form and blending the size and scale of solids and voids with neighboring buildings. The building’s corners are cut to fit the site accordingly.

There are several openings in the building. The major ones follow the shape of the façade, while the smaller ones follow the texture. Vertical and horizontal mullion lines are visible through the windows.

These features reflect the abstract aesthetic of Parisian architecture.

1 Bibliothèque Sainte-Geneviève Library

2 Church of Saint-Étienne-du-Mont from 15th entury

3 Lycée Henri-IV

4 Panthéon - Colonaded Neoclassical Mausoleum

1 Cafétéria du Lycée Louis le Grand

School of Architecture, Planning and Landscape

Status: BArch Thesis | North South University

Supervisor: Haroon Rashid

Location: CUET, Chittagong, Bangladesh

Date: Spring 2012

Typology: Institutional | Campus Design

Media: AutoCAD, 3D max, Photoshop

Distinction: Exhibited at the National Museum of Bangladesh, as part of Commonwealth Association of Architects event CAA Dhaka’ 2013 and was Published in the CAA Handbook of undergrad thesis projects of that year.

Website Link: https://www.rifataraislam.com/institution

Problem and Idea

The objective of the project was to contribute to creating an environment for nurturing young minds in the art and science of designing built environment for living, recreation and work.

CUET campus is remarkable for its ambient natural beauty. Undulating land, rippling streams, lush green vegetation comprising plants of rare and precious varieties make the area a natural arboretum. The guiding principle was designing with nature with minimal interruption to the existing eco system.

Creating continuous indoor outdoor spaces that interact with each other; a balance between nature and built environment was the focus. Curved lines of the corridors create virtual axis and rhythmic movement from one level to the other. Open terraces provide users a breath and punctuation for reflection and regeneration of the body and the spirit.

Studio modules, classrooms and other spaces bathe in soothing daylight. The studios open up to embrace nature; and the clerestory windows allow in the warm winter sun and keep out the hot summer heat..

Conceptual Plan and Section Following

“Urban Retrofitting” Series #202403: A Vision Created using ImagineArt AI

I am continually driven by a deep passion for creating meaningful and sustainable spaces. Inspired by Robinson Crusoe’s challenging journey to create a self-sufficient habitat, I understand that thriving alone is difficult and that a strong, self-sufficient community is essential for long-term success. My vision is to design communities that evolve and sustain themselves over time, fostering resilience and growth. I believe that architecture has the power to shape communities and improve lives, and I am excited to bring my skills, vision, and enthusiasm to new challenges and collaborations.

Thank you for taking the time to explore my portfolio. I look forward to the opportunity to make a positive impact in the realm of architecture.

Turn static files into dynamic content formats.

Create a flipbook
Issuu converts static files into: digital portfolios, online yearbooks, online catalogs, digital photo albums and more. Sign up and create your flipbook.