RVMD PORTFOLIO

Page 1


ricardovalladaresarquitectos@gmail.com

I’m Ricardo Valladares, architect

specializing in multifamily & single-family housing, integrating BIM, sustainability, and energy performance to deliver efficient and innovative living spaces.

EDUCATION

UVAQ

08/2010 - 08/2015

Bachelor's degree

Architecture

ADDITIONAL COURSES

AA London/Tec de Monterrey

01/2022-06/2022

Certification program

Metropolitan Landscape

Universidad Anáhuac México

01/2023-08/2023

Certification program

BIM Revit

SOFTWARE

HOUSING DESIGN WORKFLOW

AutoCAD

ArchiCAD

Revit

D5 render Autodesk forma

Others: Illustrator, rhinoceros,grasshopper, twinmotion, dynamo, sketchup, indesign, photoshop, stable difusion, mid journey.

Hand Sketches – Preliminary concepts and spatial ideas.

TestFit / Finch 3D – Massing studies and apartment distribution.

Revit – Detailed architectural documentation.

Autodesk Forma – Climate,noise, wind, sunlight, and performance analysis.

D5 Render & Sora – High-quality visualizations and animations.

Illustrator & InDesign – Final presentation boards and layouts.

WORK EXPERIENCE

Ricardo Valladares Architects

Role:founder & principal architect

Date: 08/2017-07/2025

freelancer

Main task list:

● Lead the design and strategic development of multifamily and single-family housing projects.

● Conduct preliminary concept design through hand sketches, TestFit, and Finch 3D for massing and space distribution.

● Develop full BIM documentation in Revit, ensuring accuracy across architectural, structural, and MEP coordination.

● Perform environmental performance analysis using Autodesk Forma to optimize sunlight, ventilation, and energy efficiency.

● Create high-quality renders and animations with D5 Render and Sora for client presentations.

● Prepare final presentation boards and project documentation in Illustrator and InDesign.

● Coordinate with clients, consultants, and contractors from concept to construction phases.

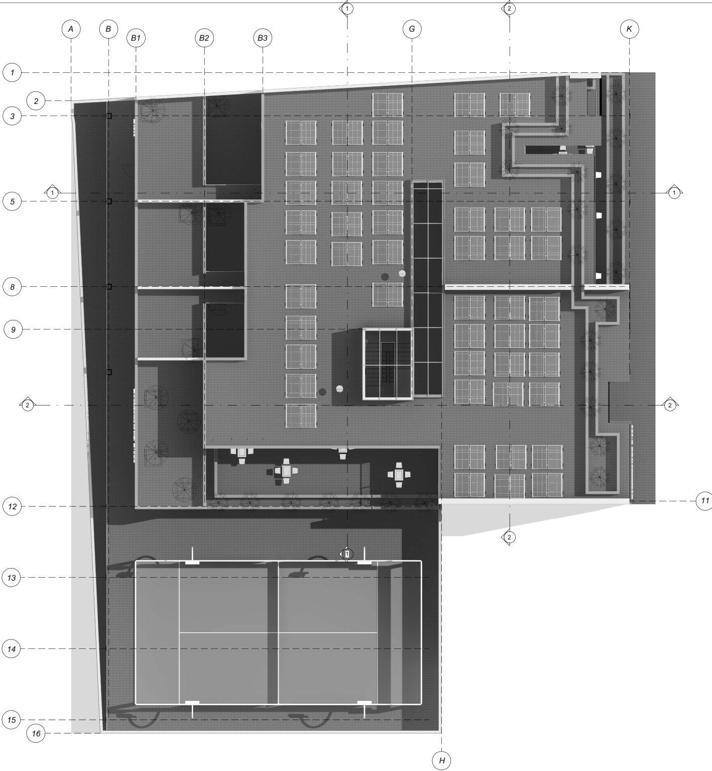
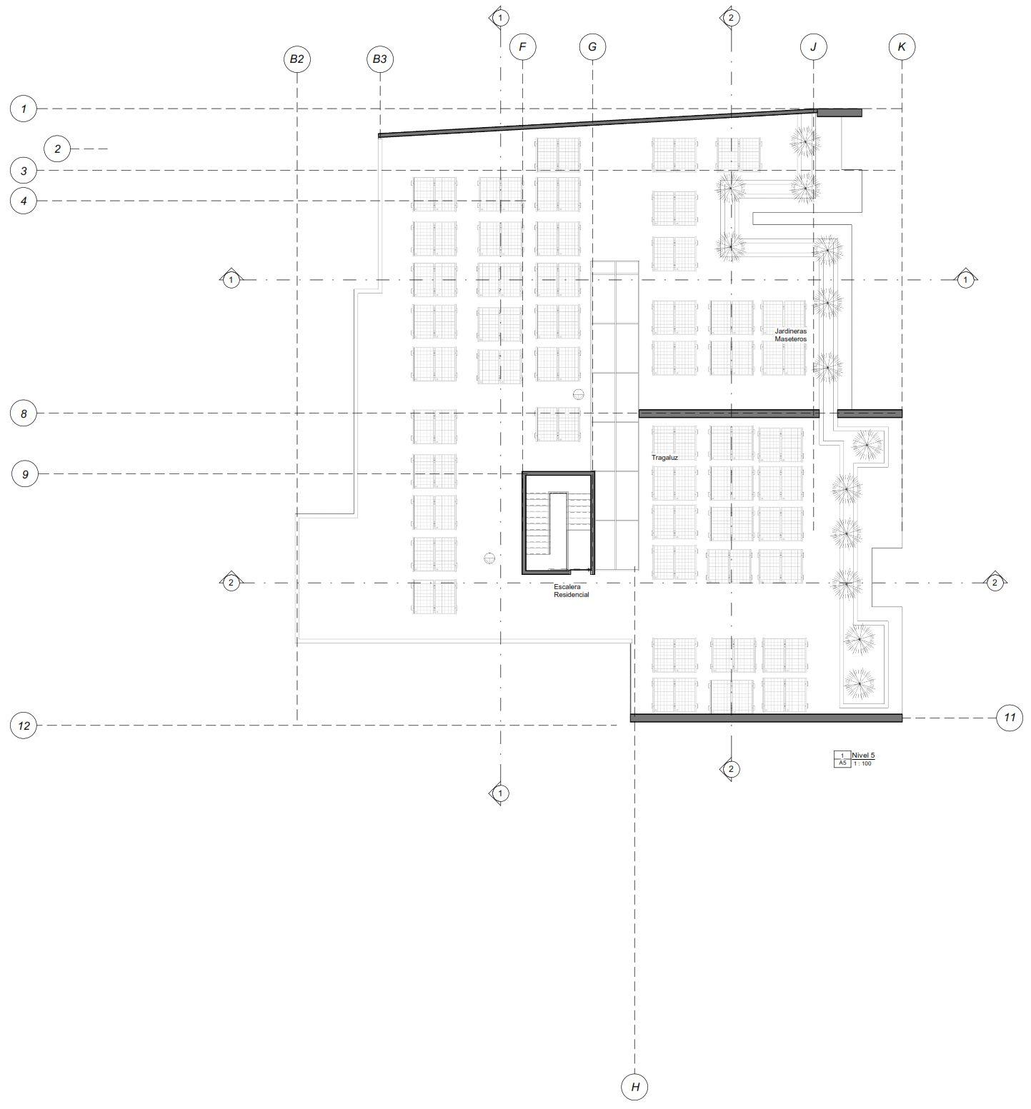
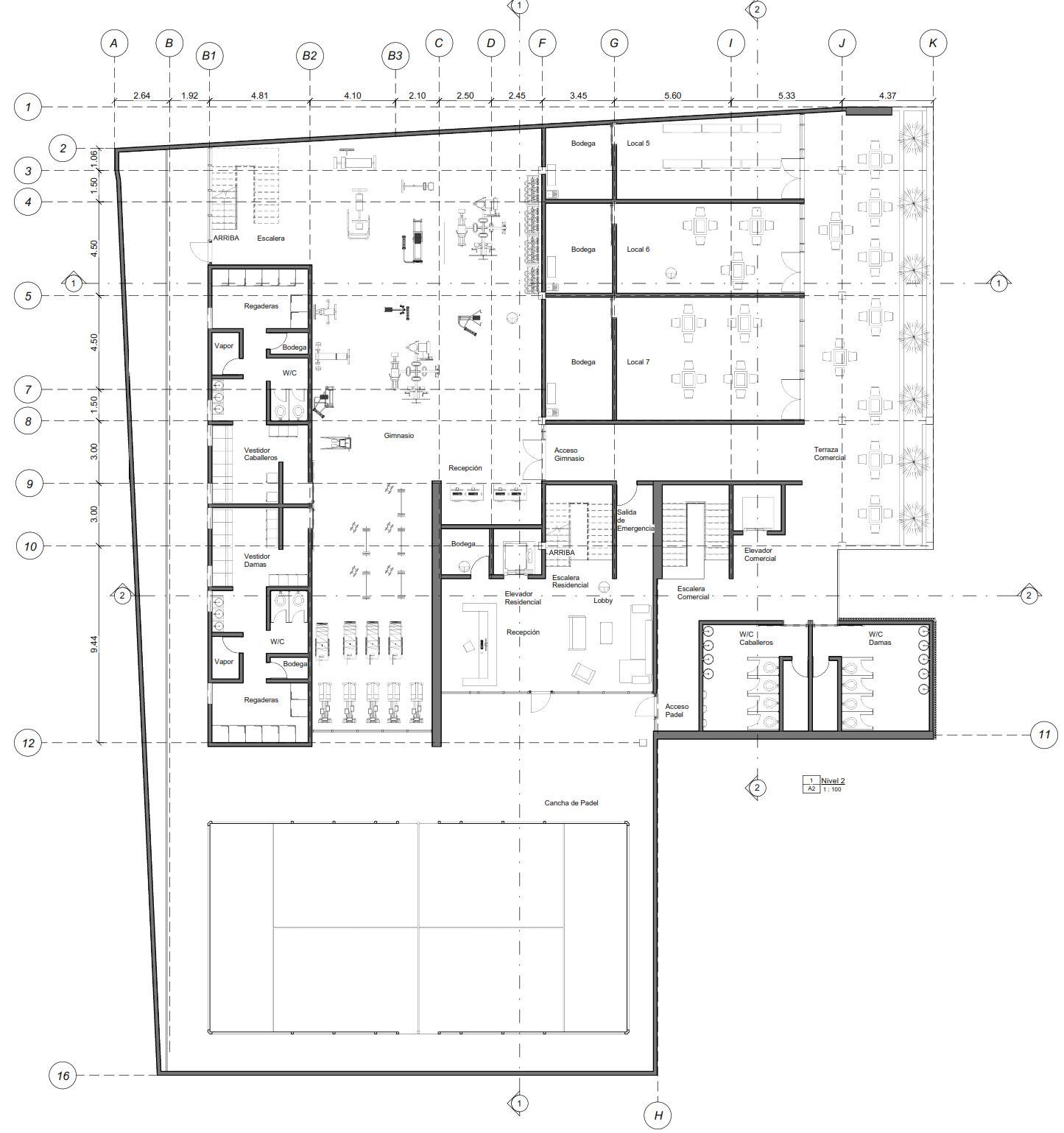
Multifamily

PANDORA MIXED-USE BUILDING

Type of Project: Mixed-use building/Multifamily

Location: Morelia Mexico.

Software: autodesk forma, autocad, revit, d5 render, sora ai.

Pandora Multifamily & Mixed-Use Building originated from a client’s request to develop a residential and commercial building in the city of Morelia, Mexico. The project aims to serve students from a nearby university located within a 1 km radius, as well as providecommercial spaces for the surrounding area.

The site is located in a mixed industrial and residential zone along the highway to Mexico City, which serves as the main access point between both cities. The existing plot currently houses an unused warehouse.

The design constraints were as follows: preserve the existing steel columns and their foundation, align the new structural columns to a functional grid, designate the ground floor as parking to meet the number of spaces required by local regulations, allocate the building’s front façade for easily accessible commercial spaces, generate the required number of studios and apartments, ensure the building’s design achieved energy efficiency and was planned from a climate-responsive perspective, and create comfortable and sufficient common areas for the users.

This concept originates from the idea of blending the building’s materiality, color palette, and geometry with its industrial surroundings. The design employs materials such as steel, reclaimed wood, exposed concrete, and earthy tones to achieve a harmonious integration within the industrial context. The aim is not to evoke a sense of luxury, but rather to foster a feeling of community and empathy with the environment, while simultaneously contributing to an improved quality of life in the area.

Daylight analysis

Sun hours analysis

Wind confort analysis

Wind direction analysis

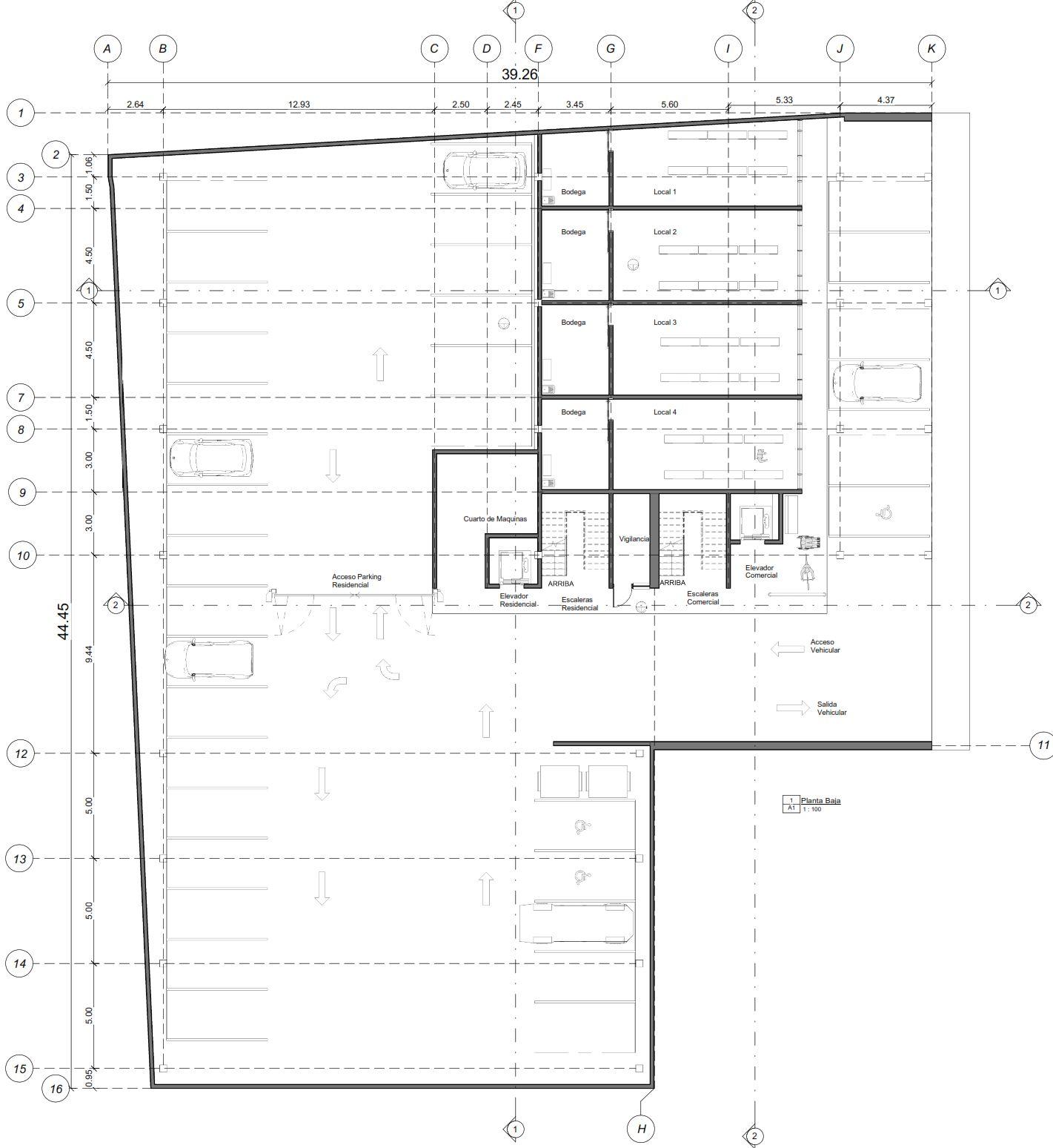
PANDORA MIXED-USE BUILDING

Type of Project: Mixed-use building/Multifamily

Location: Morelia Mexico.

Software: autodesk forma, autocad, revit, d5 render, sora ai.

PANDORA MIXED-USE BUILDING

Type of Project: Mixed-use building/Multifamily

Location: Morelia Mexico.

Software: autodesk forma, autocad, revit, d5 render, sora ai.

Level 3

Level 2

PANDORA MIXED-USE BUILDING

Type of Project: Mixed-use building/Multifamily

Location: Morelia Mexico.

Software: autodesk forma, autocad, revit, d5 render, sora ai.

4

Sections

East facade

Single-family homes

Barnard Residence

PROJECT: HOUSING.

AREA: 315M2 FLOORS:2 FLOORS.

YEAR: 2024

LOCATION: MORELIA, MEXICO.

STATUS: PRIVATE PROJECT/UNDER CONSTRUCTION. ARCHITECTONIC PROGRAM:

1. GARAGE.

2. LIVING ROOM.

3. 1/2 BATHROOM.

4. STUDIO.

5. KITCHEN.

6. DINNING ROOM.

7. MAIN ROOM/BATHROOM.

8. ROOM 2/BATHROOM.

9. ROOM 3/BATHROOM.

10. ROOF GARDEN.

Altair Residence

PROJECT: HOUSING.

AREA: 250M2 FLOORS:2 FLOORS.

YEAR: 2024

LOCATION: MORELIA, MEXICO.

STATUS: PRIVATE PROJECT/DESIGN PROCESS. ARCHITECTONIC PROGRAM:

1. GARAGE.

2. LIVING ROOM.

3. 1/2 BATHROOM.

4. STUDIO.

5. KITCHEN.

6. DINNING ROOM.

7. MAIN ROOM/BATHROOM.

8. ROOM 2.

9. ROOM 3.

10. TERRACE.

11. BATHROOM.

Becrux Residence

PROJECT: HOUSING.

AREA: 850M2

FLOORS:2 FLOORS.

YEAR: 2024

LOCATION: PLAYA DEL CARMEN, MEXICO.

STATUS: PRIVATE PROJECT/DESIGN PROCESS.

ARCHITECTONIC PROGRAM:

1. GARAGE.

2. LIVING ROOM.

3. 1/2 BATHROOM.

4. STUDIO.

5. KITCHEN.

6. DINNING ROOM.

7. MAIN ROOM/BATHROOM.

8. ROOM 2/.

9. ROOM 3/.

10. TERRACE.

11. BATHROOM.

12.POOL.

13.GYM.

14.CINEMA.

Alfa Centauri Residence

PROJECT: HOUSING.

AREA: 435M2 FLOORS:2 FLOORS.

YEAR: 2020

LOCATION: MORELIA, MEXICO.

STATUS: PRIVATE PROJECT/BUILT PROJECT ARCHITECTONIC PROGRAM:

1. GARAGE.

2. LIVING ROOM.

3. 1/2 BATHROOM.

4. STUDIO.

5. KITCHEN.

6. DINNING ROOM.

7. MAIN ROOM/ BATHROOM-WALK IN CLOSET.

8. ROOM 2.

9. ROOM 3. 10.ROOM 4.

10. BATHROOM. 11. ROOF GARDEN.

Spica Residence

PROJECT: HOUSING.

AREA: 745M2 FLOORS: 3 FLOORS.

YEAR: 2024

LOCATION: MORELIA, MEXICO.

STATUS: PRIVATE PROJECT/DESIGN PROCESS. ARCHITECTONIC PROGRAM:

1. GARAGE.

2. LIVING ROOM.

3. 1/2 BATHROOM.

4. STUDIO.

5. KITCHEN.

6. DINNING ROOM.

7. MAIN ROOM/BATHROOM.

8. ROOM 2/BATHROOM.

9. ROOM 3/BATHROOM.

10. TERRACE.

11.BAR.

12. YARD AND POOL.

13. STORE. .

Spica Residence

PROJECT: HOUSING.

AREA: 745M2 FLOORS: 3 FLOORS.

YEAR: 2024

LOCATION: MORELIA, MEXICO.

STATUS: PRIVATE PROJECT/DESIGN PROCESS. ARCHITECTONIC PROGRAM:

1. GARAGE.

2. LIVING ROOM.

3. 1/2 BATHROOM.

4. STUDIO.

5. KITCHEN.

6. DINNING ROOM.

7. MAIN ROOM/BATHROOM.

8. ROOM 2/BATHROOM.

9. ROOM 3/BATHROOM.

10. TERRACE.

11.BAR.

12. YARD AND POOL.

13. STORE. .

Sports complex

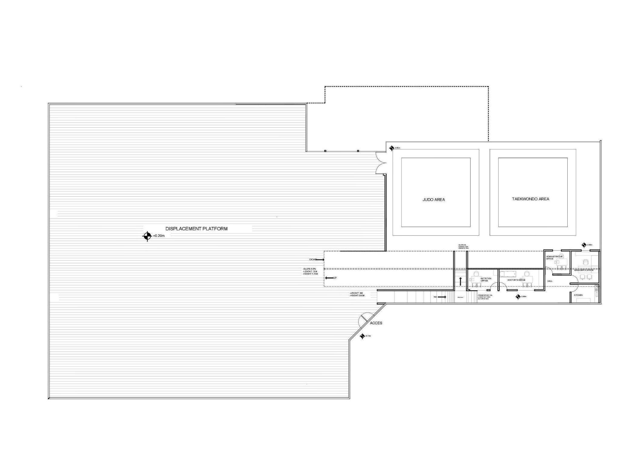
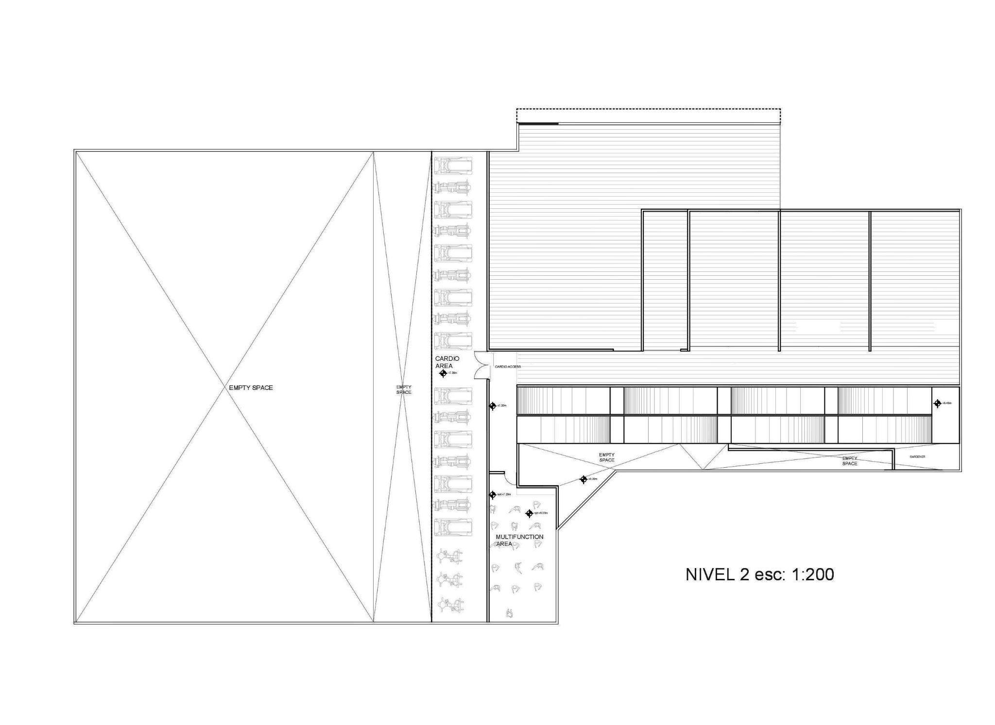
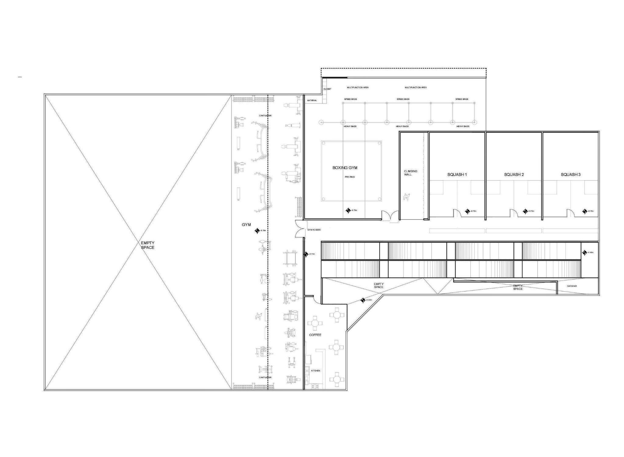
SPORTS HALL MORELIA RETROFITTING

PROJECT: LANDSCAPE RETROFITTING & NEW BUILDING.

AREA: 9,400M2. FLOORS: 4 FLOORS.

YEAR: 2015.

LOCATION: MORELIA, MEXICO.

STATUS: ACADEMIC/PROPOSAL TO THE STATE GOVERNMENT.

Physical activity and sport are an important part of the social sciences, since they function as a system of relationships, coexistence, and psychological and motor development. They generates a teaching of different favorable social behaviors and non violent behaviors.

ARCHITECTONIC PROGRAM:

1. MAIN RESTROOMS.

2. MULTIFUNCTION COURT.

3. DRESSING ROOMS.

4. JUDO & TAEKWONDO AREA.

5. DOCTOR'S OFFICE, NUTRITIONIST¨ OFFICE.

6. ADMINISTRATIVE OFFICE & KITCHEN.

7. RECEPTION.

8. COFFEE & BAR.

9. BOXING GYM.

10. CLIMBING WALL.

11.3 SQUASH COURTS.

12. GYM.

13. CARDIO AREA.

14. MULTIFUNCTION ROOM.

To the west of the center of Morelia, in the heart of the city, there is a municipal sports space that is active but in terrible conditions.This project sought to generate a mobility proposal, landscape retrofitting and a sports hall that could provide more than 10 disciplines for the benefit of the community.The sports area, although it is still in use, is in a situation of abandonment.

No infrastructure, only neglected gardens, poor accessibility andlack of paving on the access road, as well as a lack of drainage system, which causes flooding in the area.

It is necessary to generate a regeneration of the area to provide correct use of the facilities and be able to generate a positiveimpact on the urban image, security of the area and closer coexistence between the inhabitants of the area.

To generate an improvement of the space its necessary 2 main proposals:

1.A new sports hall that can provide more than 5 sports disciplines for a better use of space.

2.Retrofitting of landscape.

Current Situation.
Level 2
Level 3
North facade
South facade
West facade

Axonometric

Thank you

Turn static files into dynamic content formats.

Create a flipbook
Issuu converts static files into: digital portfolios, online yearbooks, online catalogs, digital photo albums and more. Sign up and create your flipbook.