Skip to main content

Portafolio de Arquitectura

Page 1


Ricardo Arias Villalobos Arquitecto
PORTFOLIO

En este portafolio se reune varios años de mi camino por la Arquitectura, en donde te mostrare una recopilacion y sintesis de algunos trabajos que eh considerado relevantes para enseñar gran parte de mi recorrido que eh logrado a través del aprendizaje de conocimientos y tecnicas que han hecho de mi el profesional que soy. Aqui se muestran desde mis primeros trabajos hasta los ultimos que eh realizado dentro del ambito academico de la universidad, como tambien trabajos externos y colaboraciones en diferentes proyectos. En las siguientes paginas que le mostrare vera un reflejo de lo que me dedico y lo que hago .

INFORMACIÓN BÁSICA

Fecha de nacimiento: 2 junio 1995

Ubicacion actual : Chiclayo - Peru

Idioma : Castellano - Ingles (intermedio)

Telèfono : (051) 941 973 226

E-mail : ricardoav_95@hotmail.com

Facebook: ricardo.ariasvillalobos

Behance : behance.net/ricardozce

Issuu : issuu.com/ricardo897

FORMACIÓN ACADEMICA

Pregrado/Universitario 2014-2019

Universidad Particular de Chiclayo UDCH. Escuela de Arquitectura y Urbanismo.

Titulación

Universidad César Vallejo

EXPERIENCIA LABORAL

Colaboraciòn en el proyecto: “SERVICIO DE CONSULTORIA PARA EL DESARROLLO DEL ANTEPROYECTO ARQUITECTONICO DEL PLANTEAMIENTO TECNICO DEL ESTUDIO DE PREINVERSION DEL PROYECTO “CREACION DE SERVICIOS ADECUADOS DE LA VILLA PANAMERICANA DE LIMA” UBICADO EN EL DISTRITO DE VILLA EL SALVADOR - REGION LIMA.

Colaboracion en el proyecto: MEJORAMIENTO Y AMPLIACIÓN DE LOS SERVICIOS DEPORTIVOS DEL COMPLEJO DEPORTIVO ANDRES AVELINO CACERES, DISTRITO DE VILLA MARIA DEL TRIUNFO, PROVINCIA Y DEPARTAMENTO DE LIMA.

Colaboracion en el proyecto : “PROYECTO DE MALECON PARA EL DISTRITO DE LAGUNASPUNTASAL “

Asistente de proyectos en ADN Aquitectos del Norte

Colaboracion en el proyecto : “MEJORAMIENTO, AMPLIACION DE LOS SERVICIOS DE EDUCACION PRIMARIA I.E.N° 10916 DEL CASERIO SAN FRANCISCO, DISTRITO CONCHAN, PROVINCIA CHOTA-CAJAMARCA”.

Freelancer arqutiecto : DISEÑO Y ELABORACIÓN DE EXPEDIENTES TECNICOS DE VIVIENDAS, ASESORAMIENTO A ESTUDIANTES DE ARQUITECTURA, ELABORACIÓN DE EXPEDIENTES EN LA ESPECIALIDAD DE SEGURIDAD PARA CERTIFICACIÓN DE INDECI, VISUALIZADOR 3D.

Consorcio Mi Perú: ASISTENTE DE PROYECTISTA EN LA ESPECIALIDAD DE ARQUITECTURA PARA EL EXPEDIENTE TECNICO: “MEJORAMIENTO Y AMPLIACIÓN DE LOS SERVICIOS DEPORTIVOS EN EL ESTADIO MUNICIPAL DE MI PERÚ, DISTRITO MI PERÚ, PROVINCIA CONSTITUCIONAL DEL CALLAO, REGIÓN CALLAO”.

Consorcio San Miguel: PROYECTISTA EN LA ESPECIALIDAD DE SEGURIDAD Y RIESGO PARA EL EXPEDIENTE TECNICO: “MEJORAMIENTO Y AMPLIACIÓN DE LOS SERVICIOS REGISTRALES DE LA OFICINA REGISTRAL DE MOQUEGUA, PROVINCIA DE MARISCAL NIETO, DEPARTAMENTO DE MOQUEGUA”

WORKSHOP

Workshop : Arquitectura, memoria y territorio

Maraton de diseño arquitectonico : 17 Maraton Apisek Lab / Estructura de tejidos Eten / humedales.

Maraton de diseño arquitectonico : 18 Maraton Apisek Lab / Merrcado Moshoqueque.

CUALIDADES

Mantengo un caracter y disposicion tranquila en cualquier situacion ; trabajo , vida social y privada. Me considero un diseñador puro , me encanta diseñar, proyectar y resolver cualquier problema que se presenta en algun proyecto. Me dedico netamente al diseño, pero domino varias facetas del proceso de diseño como renderizado, dibujo , maquetacion,etc. siemrpe busco una perfeccion en cada una de ellas es algo que me caracteriza y me ayuda a valorar mi trabajo y el de los demas. siemrpe trato de superar y superarme a mi mismo en cada proyecto que hago, siempre trazo metas cada vez mas altas, es algo que me mantiene siempre aprendiendo cosas nuevas tanto en mi carrera como fuera de ella. Busco siemrpe trabajar en equipo, para mi es necesario ya que puedo aprender y ver como trabajan otras personas.

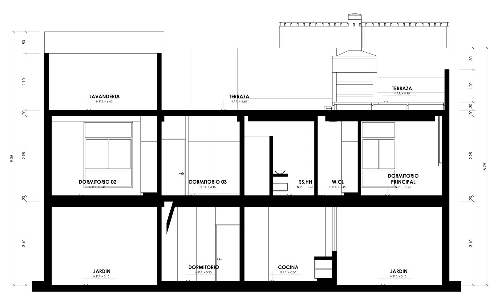
PÉREZ MULTIFAM. P ETEN

VIVIENDA H.S

Chiclayo (Peru)

Tipologia : Vivienda

Area de terreno: 255.00m2

Area construida: 287.36m2

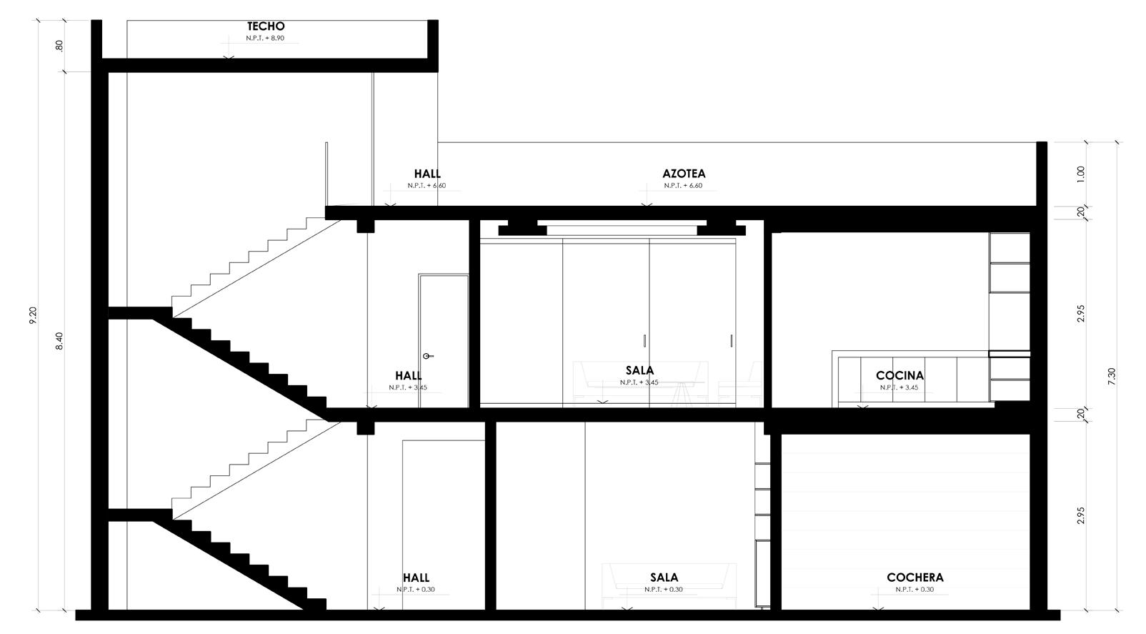
El proyecto H.S es una vivienda duplex, la cual repsonde a la necesidad de mantener dos viviendas dentro de un mismo predio, por consiguiente el planteamiento de diseño partio de establecer en un primer nivel una de las viviendas y en un segundo nivel otra vivienda.

La caracteristica principal del proyecto es el gran patio que bordea todo el habitat del primer nivel permitiendo iluminar y ventilar de manera confortable todo el proyecto.

6.

1. HALL DE INGRESO
2. SS.HH VISITA
3. SALA COMEDOR
4. COCINA
5. DORMITORIO
CLOSET 7. SS.HH
8. JARDÍN 9. COCHERA PRIMERA
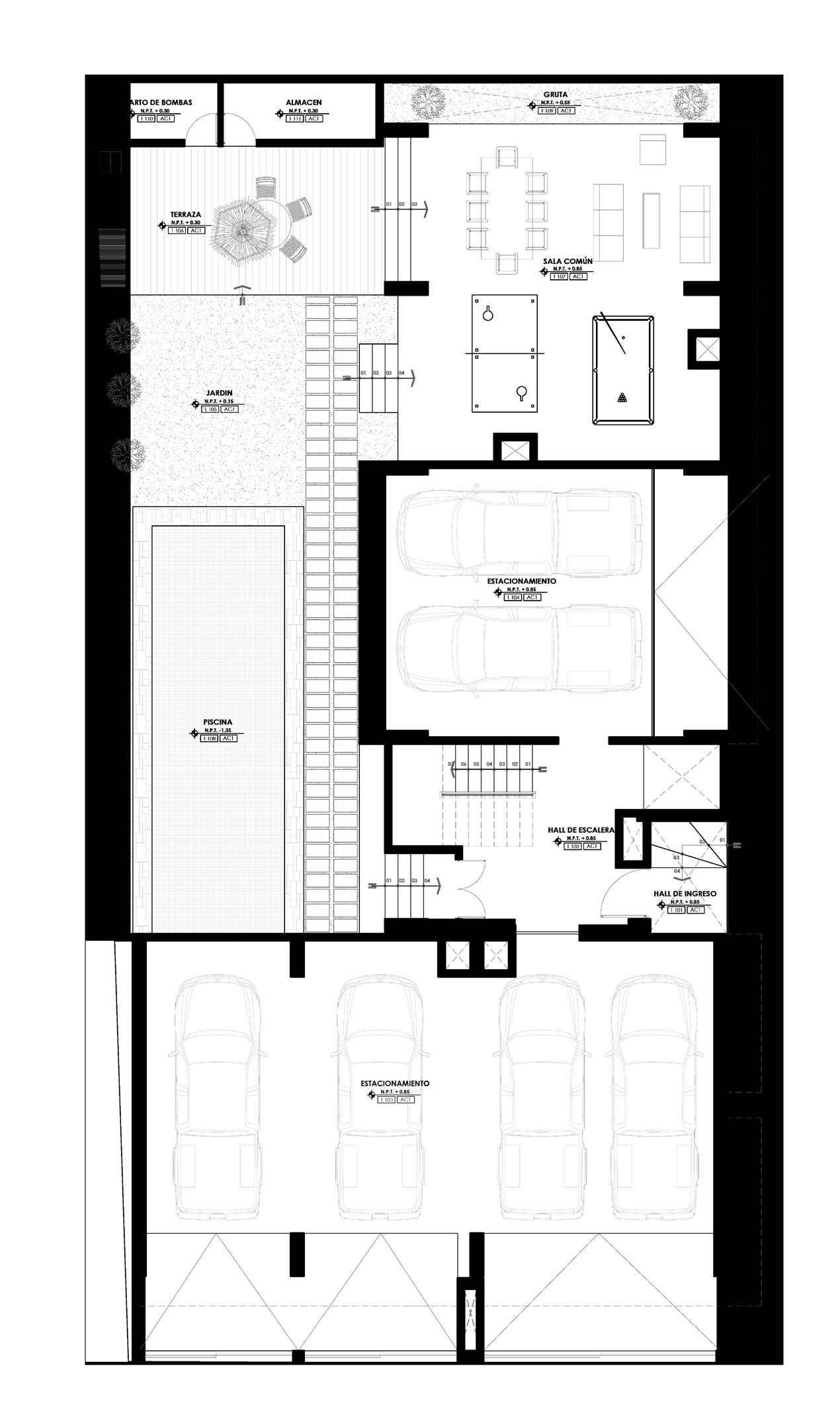
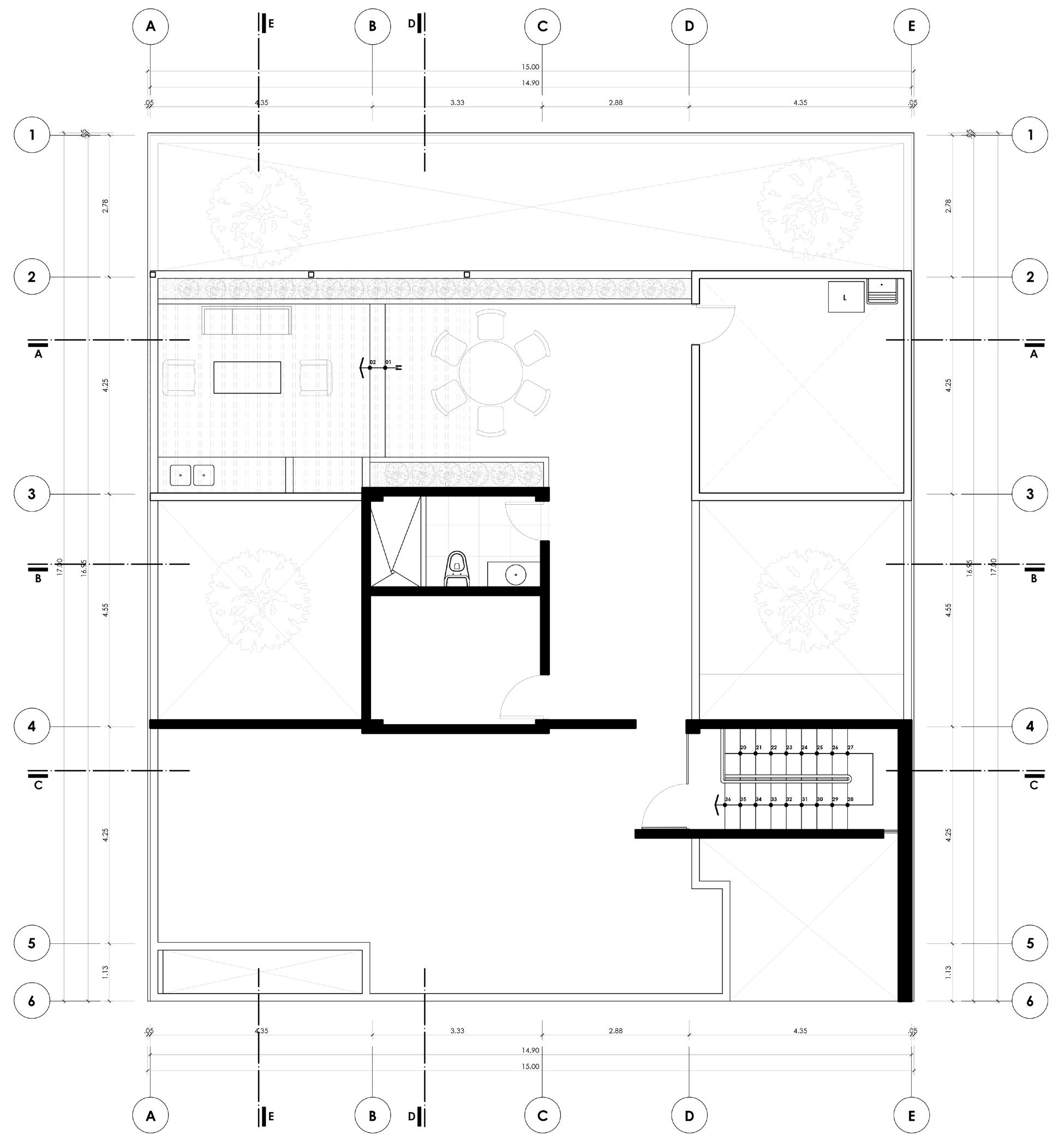
1. HALL
2. SS.HH VISITA
DEPÓSITO 4. SALA
COMEDOR
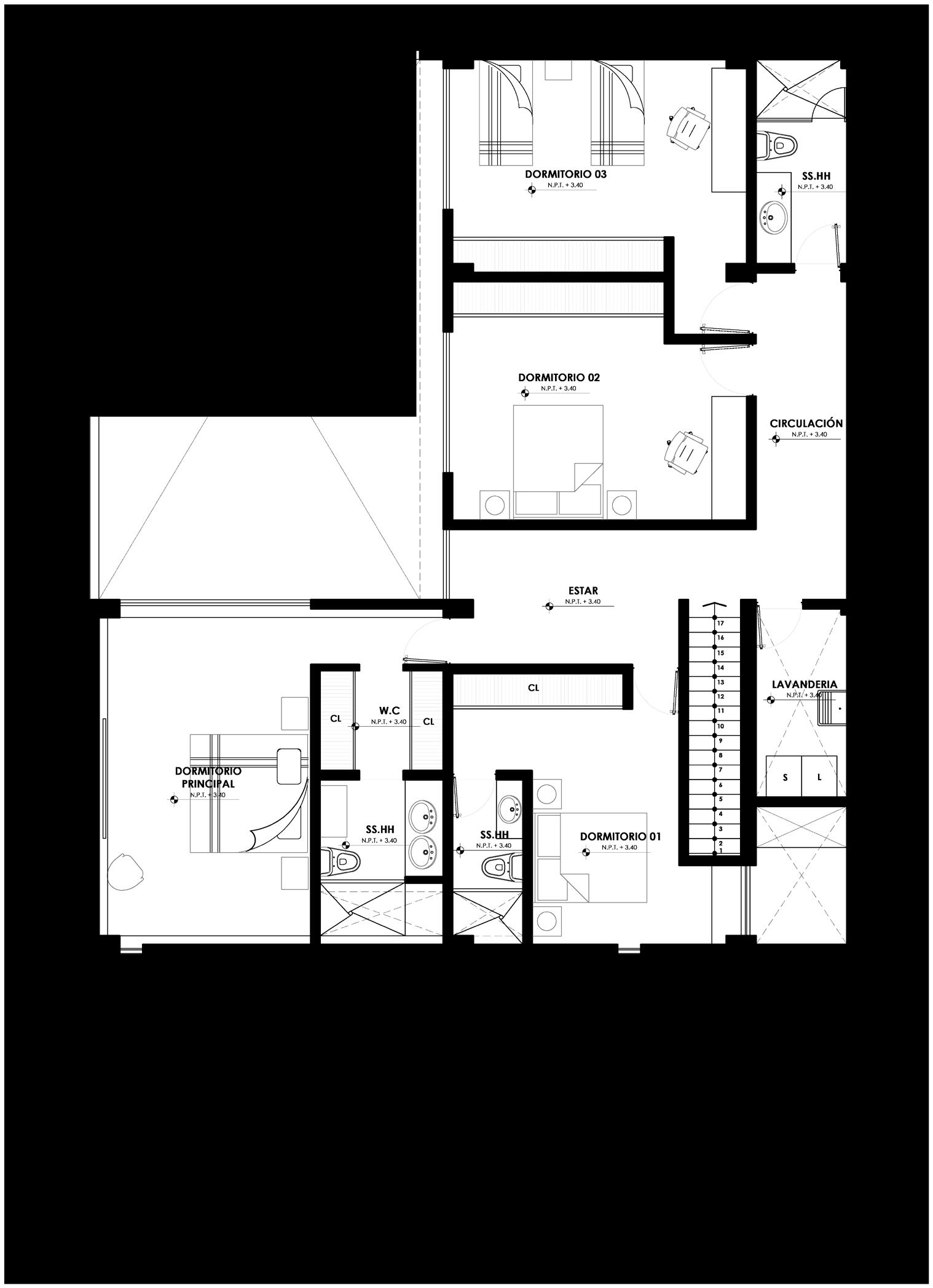
COCINA 7. DORMITORIO 01 8. DORMITORIO 02 9. DORMITORIO 03 10. DORMITORIO PRINCIPAL 11. CLOSET 12. SS.HH
SS.HH
SEGUNDA PLANTA
1. AZOTEA
2. DEPÓSITO
3. SS.HH
4. LAVANDERIA
5. TERRAZA
6. TERRAZA Y PARRILLA
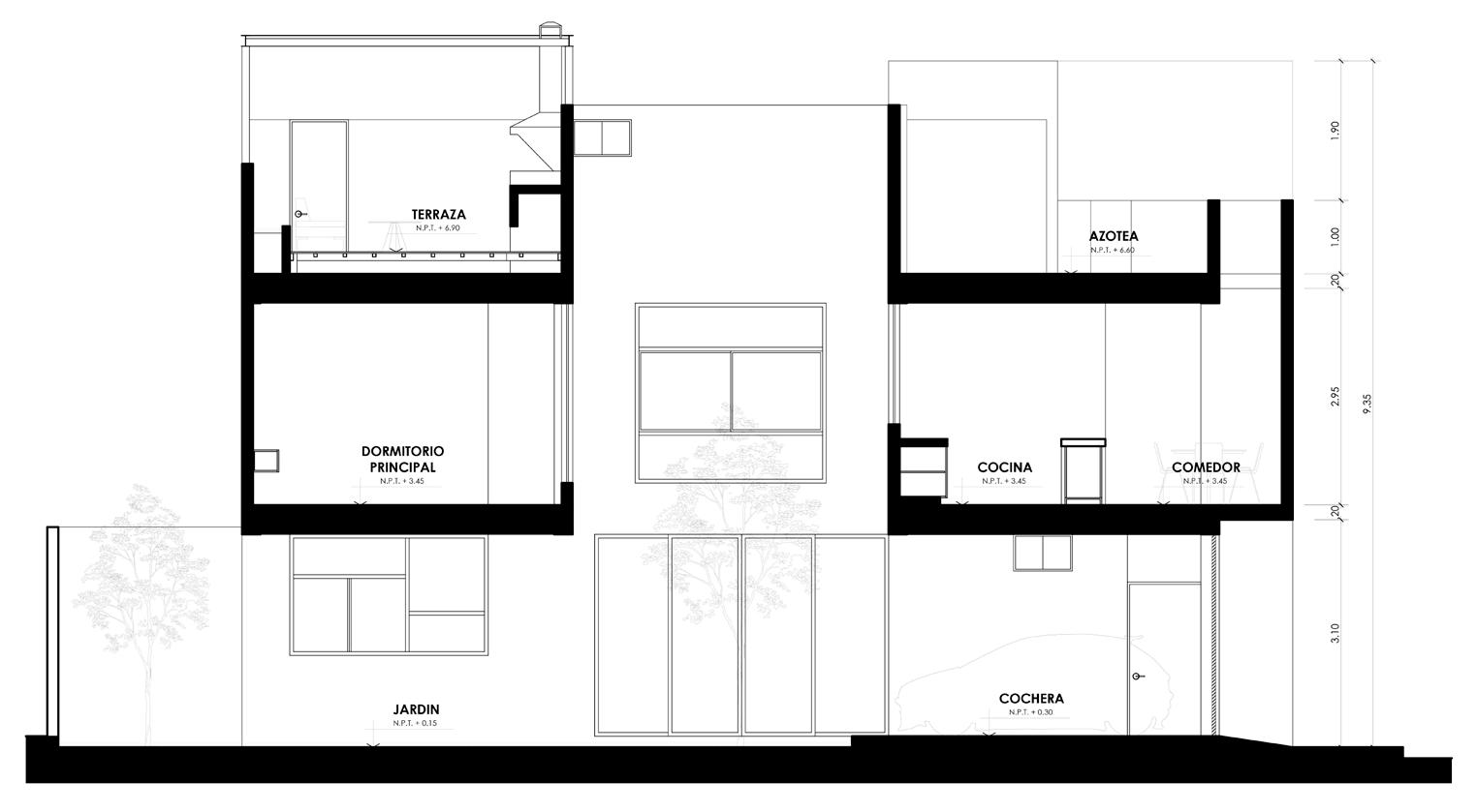
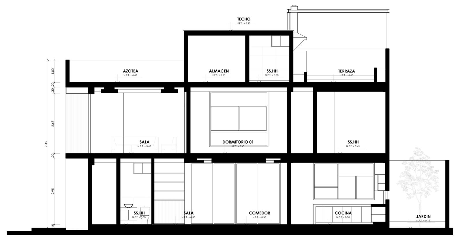
CORTE A-A
CORTE B-B
CORTE C-C

ELEVACIÓN PRINCIPAL

CORTE D-D
CORTE E-E

CASA A

Chiclayo (Peru)

Tipologia : Vivienda

Area de terreno: 140m2

Area construida: 186.80m2

El proyecto es una vivienda de dos niveles concebida para una familia de cuatro personas. El programa arquitectonico esta zonificado en área social y privada, utilizandose el primer nivel como área social ubicando la cochera, servicios higienicos, sala, comedor y cocina. En el segundo nivel se encuentra el área privada ubicando las habitaciones y servicios higienicos junto con la lavandería.

MULTIFAMILIAR VP

Puerto Eten (Peru)

Tipologia : Vivienda multifamiliar

Area de terreno: 470.14m2

Area construida: 2284.62m2

El proyecto es un edificio residencial el cual se compone de cuatro niveles, presenta dos fachadas permitiendo un mayor campo visual para los usuarios de la residencia.

El funcionamiento del edificio se establece mediante un primer nivel destinado a usos comunes donde se ubican los estacionamientos, hall principal, piscina, patio, terraza y sala comun. Los niveles 2, 3 y 4 se ubican los departamentos, siendo dos departamentos por piso.

La idea volumentrica del proyecto partio desde la necesidad de tener dos viviendas por nivel y un area común, desde ese punto se partio con la propuesta de dos volumenes grandes donde se albergaran las viviendas y estos se relacionaran mediante un tercer volumen en el centro.

PRIMERA

CASA PÉREZ

Chiclayo (Peru)

Tipologia : Vivienda

Area de terreno: 260.00m2

Area construida: 310.00m2

El proyecto se concibio como una vivieda introspectiva, donde las visuales e iluminacion son dadas por un gran patio interno, brindando asi una mayor privacidad a la familia que habita ra la vivienda.

La vivienda consta de dos niveles, del cual el primero ocupa el área social, como el estudio, sala, comero, cocina, terraza y patio. En el siguiente nivel se encuentra el área privada, con las habitaciones.

PRIMERA
SEGUNDA

MULTIFAMILIAR FM

Puerto Eten (Peru)

Tipologia : Vivienda Multifamiliar

Area de terreno: 437.45m2

Area construida: 310.00m2

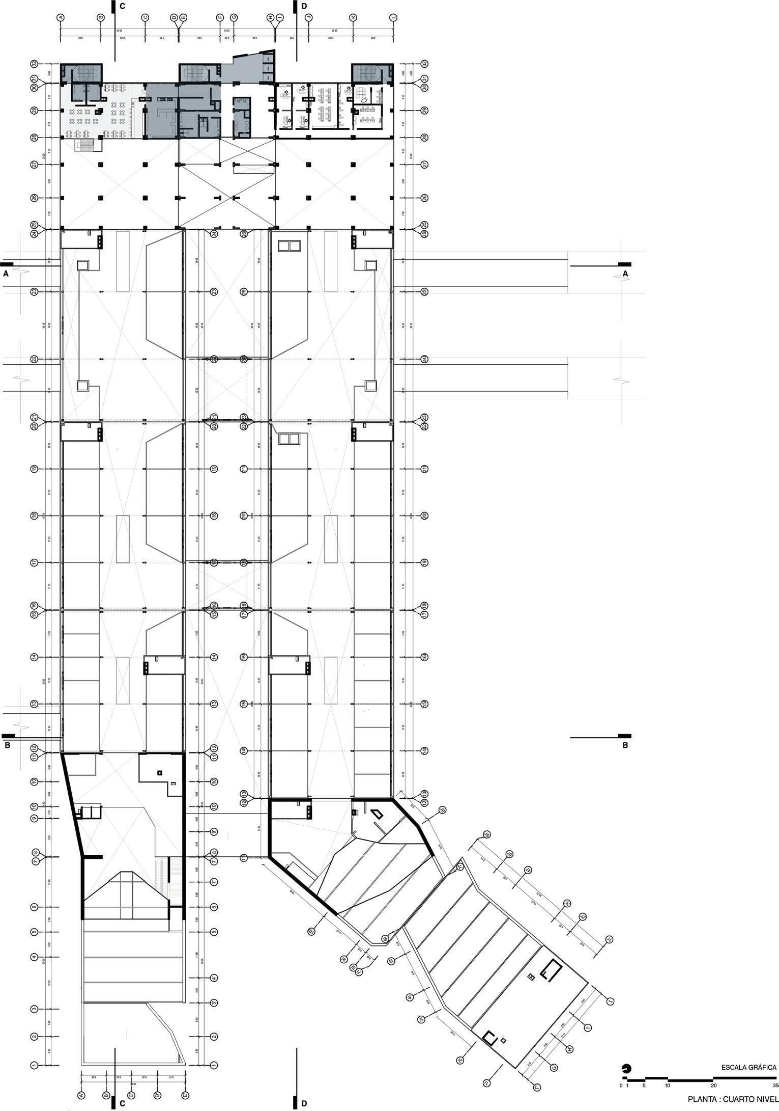
Este proyecto de un edificio multifamiliar ubicado en el distrito de Puerto Eten consta de 7 niveles donde por cada nivel hay dos departamentos.

El diseño partio de la necesidad de hacer 2 departamentos por piso, siendo un departamento del propietario y el otro para venta, la necesidad de espacios recreativos-social para el propietario e ingresos diferenciados entre ambos.

La idea para solucionar estas condiciones fue crear 2 volumenes grandes y paralelos entre si en donde el volumen derecho sean departamentos para la familia propietaria y el volumen izquierdo para departamentos en venta, y unidos ambos volumenes por un volumen central con circulaciones verticales que conecte a cada piso, de esta manera se soluciono la condicion. La distribucion volumetrica del proyecto genero 2 grandes patios que sirven como iluminacion para los departamentos como para areas sociales y recreativas, teniendo el patio principal una piscina y terraza, el segundo patio un area de descanso.

SEGUNDA

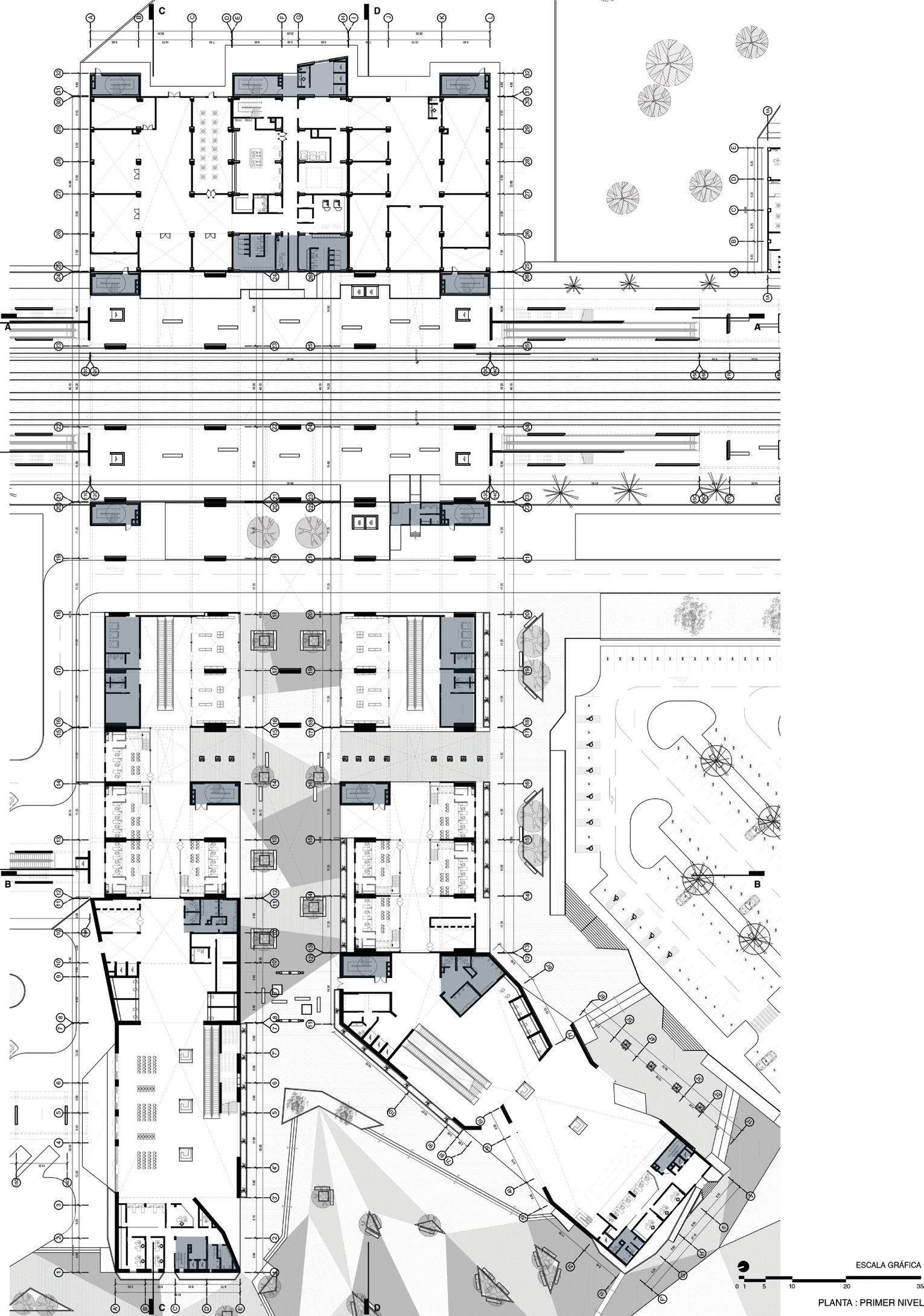
ESTACIÓN INTERMODAL

Chiclayo (Peru)

Tipologia : Transporte

Area de terreno: 366128.9804 m2

Area construida: 141577.02 m2

El proyecto parte desde una escala territorial hasta una escala de edificio bajo la premisa de la organización de los flujos. De esta manera el concepto a escala territorial de la propuesta parte desde la función de una infraestructura como eje organizador de flujos de transporte en dimensión nacional, interdistrital y metropolitana, de lo cual llevaría en una dirección de desarrollo a nivel social, económico y ambiental al transporte terrestre masivo de pasajeros. En relación a lo anterior el proyecto al ser una pieza estratégica en relación a la organización de los flujos de transporte a nivel metropolitano, interdistrital y nacional, se conceptualiza como edificio bajo el concepto arquitectónico de la fluidez de la circulación entre los espacios mediante la idea de una combinación de un criterio espacial, funcional y estructural, permitiendo encontrar una interacción fluida entre los usuarios y las zonas o espacios del edificio.

Ricardo Arias Villalobos Arquitecto

Turn static files into dynamic content formats.

Create a flipbook
Portafolio de Arquitectura by Ricardo Arias - Issuu