Portfolio 2025

Page 1


CURRICULUM VITAE

SELECTED PROJECTS

Water-based Framework for Hue Monument

Revitilizing Schevenegin 2072

Vision for UNSW at Canberra

Tourism Center of Kratie

Bến Bình Đông Post-industrial Regeneration

Bokor Hillside Residence

Peri-urban flood management

SREY SOKUNCHARIA

Architecture & urban design

Ph.D YR4 INTP-A

srey-sokuncharia.carrd.co/ issuu.com/riasokun

REFERENCE

Zoom Canva Google Doc, Sheet, Slides
Filmora

Nikken Sekkei

Student part-timer; 2025 Mar - Present

Seminar Teaching Assistant

Yaguchi Lab; 2022 Apr - Present

Lead, manage, & moderate discussionGive feedbacks on research -

Review & proofread thesis & papers -

Waseda Student Contributor

Commision-based part-time

Publish articles on Waseda student life, facilities, and research

Tomonokai Global Education

Commision-based part-time

Facilitator & ‘senior buddy’; 2021 - Present

Cultural & social exchnge with Japanese students of all ages

Support & meditate discussionFacilitate group activities -

Seminar-lecture

Norton University; 2024 Jun

Lecture & panel discussion on peri-urban development & flood management in Phnom Penh

Cambodian Students’

Association in Japan

Education committee advisor; 2024 Vice-president; 2023

Experience Sharing Webinar

CSAJ; 2022 Dec

Lecture on flood management techniques & research methodology

ULI Teaching Assistant

Urban Land Institute; 2022 Jun

Manage & moderate discussionGive feedbacks on projects -

Freelance Architect 2018 Mar - 2019 Mar

Mega Asset Management

Olympia City Construction; 2016 Oct Site check, survey, & plan modification

Sambo Prei Kuk Conservation

Wased University; 2016 Aug

Architectural survey of Sambo Prei Kuk N1

Angkor International Mission

Sophia University; 2025 Aug & 2016 Aug

Architectural survey of Angkor Wat temple

Japanese Government Scholarship

MEXT @ Waseda; 2019 - Present

Waseda Okuma Public Review

Student Council

Royal University of Fine Arts Treasurer; 2025 - 2016

HONOR & MERIT

Public review of selected Bachelor’s & Master’s graduation project & thesis; 2022 Feb

Shinnyo-en Financial Aid @ RUFA; 2014 - 2018

Cambodian Government Scholarship @ RUFA; 2013 - 2018

2025

D.Arch

Ph.D Candidate

Waseda University

2022 - Present

Inter-exchange research & workshop

Waseda, Tsukuba, & Hue University

2024 Dec - Present

Regional design & management focusing on historical & cultural heritage in Huong River Basin

Conference: poster presentation

Urban Transition; 2024 Nov

Integrating urban transport & planning, environment & health for healthier urban living

Conference: oral presentation

5th WPSC - 16th ASPA Congress 2022; 2022 Sept

Planning A Global Village: Inclusion, Innovation, & Disruption

Summer School for Planning & Design for the Just City

TU Delft; 2022 Jul

Sustainable & equitable development, strategic spatial planning, water management, & urban resilience

M.Arch

2022

2018

Media committe chair; 2021 2013

Virtual Joint Studio

Waseda University

2019 - 2022

Yaguchi Lab & UNSW UC Studio Vision for UNSW in Canberra

B.Arch

Royal University of Fine Arts (RUFA); 2013 - 2018

Street Life Studies

UNSW; 2017 Nov

Streetscape study & urban interventions

ASEAN Dual Cities Joint Workshop

Meiji University; 2017 Aug

Water front development, housing, and post-industrial regeneration in District 8 of Ho Chi Minh city

ASEAN Studio Workshop

‘Modern Architecture’

Chiang Mai University; 2016 Jan

Urban regeneration via the application of modern Khmer architecture

Place for Urban Coherent

KU Leuven; 2015 Nov

Follow-up workshop to 3rd ICPP student Seminar

High

Preah Sisowat High School

WATER-BASED FRAMEWORK FOR HUE MONUMENT

Agriculture and heritage integration for tourism development

THE AREA

Hue, Vietnam

• Thieu Tri, Tu Duc, Nguyen Lords tombs, &Hon Chen

• Huong river & Thuy

Tien Lake

THE COMPONENTS

Flow of water

Lowest terrain

Heritage sites

Waterbodies

Industrial fishery

Rice field

Heritage sites

• Separtely managed

Rice field

• Main source of income

• Impacted by climate

Industrial fish pond

• Toxin

• No filter

• Increasing tourism THE UNIQUENESS

• Heritage sites are connected by the rice fields

• Underlying waterway deeply links heritage sites and rice fields

• Rice field located in a deep, bowl-like terrain

Climate uncertainty

• Not enough water

• Flooding

Nam Giao

THE GUIDING CONCEPT

Holistic and integrative HERITAGE

MANAGEMENT via tourism development

HERITAGE as an ASSET in MANAGING WATER for climate resilient AGRICULTURAL practices

THE OBJECTIVES

• Diversify waterbodies and rice fields usage

• Integrate water, heritage, and rice field via tourism development

Tourism landscape

Productive landscape

Regulatory landscape

Flow of water

Culture & tourism

Scenic route through the monuments with an insight into local livelihood

TOURISM LANDSCAPE

PRODUCTIVE & REGULATORY LANDSCAPE

Synergistic nature-based solutions for water quality and food production

Fish pond → Community fishery

• Organic aquaculture

• Economical water

• Communal good Retention

• Water reserve

• Flood buffer Water treatment

• Inlet filter & aquatic plants treatment

Nam Giao
HuongRiver ThuyTienlake
Rice terrace

Balancing Scheveningen’s identity via:

• Nature & technology

• Urbanity & recreation

• Tradition & innovation

Catered towards:

• Growing family

• Aging population

Legend

• Tourists Community space

Green street

Ecological enhancement

Ecology & recreation CONNECTED

SEASIDE URBANITY

Parks & plazas

Spatial redevelopment Storm surge barrier islands

INNOVATIVE HARBOR

Water innovation, culture, & tourism

VISION FOR UNSW AT CANBERRA

THE LOCATION

Site

CBD

Parliament Nature reserve Green space

Education THE VISION Campus as productive

College

THE ISSUES

• Disconnected from greenery

• Busy road network & heavy traffic

• Excessive parking lot requirement

• Not pedestrian & cyclist friendly

THE OPPORTUNITY

• Adjacent to city center

• Next to green & public spaces

• Easy accessiblity

• Views & vistas

City Center

Military College, Duntroom Australian National University

Mountain Peninsula

Food x Education food as educational material

Food x Culture integratie Canberra’s culture & identity with campus ground

Food x Business connects the campus with the local businesses & other universities

Stimulate academic & research & partner with local businesses Open campus to all Integrated city’s space

Charles Stuart University

Federal Police College

College of Public Sector

Edmund’s College Canberra

Quads

- Additional green space for communal use

Mall configuration

- Optimizing space for greenfield

- Minimal shadows on greenfield

Optimizing view & connection

Campus core Integrated into Canberra’s urban corridor

Circular economy

Multi-party model of production & consumption

- Sustainable supply chain

- Product as a Service

- Reduce, reuse, recycle

- Recovery & regenerate

Rooftop garden

Greenfield, farm

Greenfield, Orchard

Greenfield, animal

Quads

Footpath

Study & research

Study & research Main building

Footbridge

GREENFIELD PALETTE CIRCULAR ECONOMY

& EDGE TREATMENT

TRAFFIC FRAMEWORK

THE SECTIONS

BIOFUEL FRAMEWORK

BIOWASTE FRAMEWORK

KAGURAZAKA: LIVELY NEIGHBORHOOD

Design F, M1

THE LOCATION

ROOFTOPS

ALLEYWAYS

Charming alleys

- Traditional buildings

- Secret & hidden spots

THE MASTERPLAN

Alleyway for leisure

THE APPROACH

Small-scale interventions, rethinking of existing places, and discovery of unused and unique spaces.

Renewing the Kagurazaka’s sphere of life and creating new places of exchange.`

Rooftop leisure

• Residents living in the alleys

• Groceries and daily necessities at the top of the slope create crowds

• Decline in urban vitality

• Visitors gather at the end of slope on the main street

• Crowding in famous local shops

• Lack tourists in the backalleys

• Lunch-time office workers flow in from Iidabashi

• Visiting shops and restarants after working hours

Ryokan sightseeing

Riverside entertainment

- Restaurant & cafe

- Boat ride

- Wedding & party

THE ISSUES

• Decrease in tourists and economic activities making local business experience difficulties

• The need for safe entertainment & socializing space and tourist experience

• The need for intersectional interactions between users

Pocket patio

Temporary installation

Canal cafe floating deck

CANAL CAFE

THE CONCEPT

Adaptive reuse:

- Repurposing the ryokan, alley, and the waterfront to encourage interactions between user groups and users with the alley and nature

Opening up:

- Kita-Kagurazaka: make the back alleys and northern part more accessible by connecting to Kagurazaka main street & Okubo street

- Ryokan: attract crowds into Kagurazaka’s charming alleys and create ‘tourist stops’, rather than just pass-through alleyways

- Waterfront: reclaiming the nature for the purpose of urban vitality

Preservation:

- Minimal, non-invasive interventions to preserve Kagurazaka’s charm

- Provide renewed purpose to existing structures while keeping existing activities alive

Open groundfloor

• Connect with Kagurazaka main street

• Open up the northen neighborhood

KAGURAZAKAMAINSTREET OKUBOSTREET

• Provide green space for the community

Multi-purpose

• Open & undefined

• Interaction between users, nature and alleyway

2nd floor

• Move existing restaurant up

• Create space for community facilities (supermarket, community hall, event space, etc.)

High water level
Low water level

CANAL CAFE FLOATING DECK

• Connects to the Kagurazaka main street

• Make the deck publicly available and open up the waterfront to users

• Adjustable platforms: accomadate to the river’s water level, forming different dynamic spaces

• Flexible space: can be used for pop-up shops, events, festivals, meals, plazas, etc.

RYOKAN SIGHSEEING

Multi-purpose and flexible

• Multifunctional

• Opportunity for the bustle to spill into the alleyway but still preserve the privacy

Moveable exterior

• Opportunity for shop-alleyway interaction

• Preserve the alleyway’s historical landscape Multi-purposes

• Open & undefined space.

• New spatial dynamic: interaction with users, passerby & the alleyway.

KAGURAZAKAMAINSTREET

Kagurazaka Stagione

ASEAN Dual City Joint Workshop 2017

THE LOCATION HOCHIMINH CITY

THE NEEDS

Education

THE FEATURES

Factory buidling (Many are unused & in disrepair)

THE FRAMEWORK

Structural resue Program Education Community Income

Sociality & recreation

Industry Technical school Pocket park Residence

REVITALZIED CONNECTEDNESS

THE MASTERPLAN

Technical School

- Faculty of Agriculture & Food

- Faculty of Engineering

Student Housings Food Research

Revitalizing unused factory buildings

UNDERGRAD GRADUATION PROJECT

THE INTENTION

Facilitate increasing local tourism

Encourage local & tourist interactions

• • 1km away from Mt. Sambok KRATIE 4km from dolphine habitat

THE LOCATION -

• 11km from Kratie city

THE PEOPLE

Predominantly farmers and fishers. Minimum wage of around 1USD.

THE MASTERPLAN

Hostel & Bungalow

To provide accommodation services for tourists

Camping Site

Utilization of existing trees and turn it into a local eco-tourism hotspot to generate income

Tourist Port

To provide maritime travel services in between destinations across the Mekong

Tourism management, research and development purposes

Exhibition and Library

A place where information on tourist attractions and the wonder of Kratie can be found

Biking Trial

To accommodate existing Mekong Trial

Community - Tourism Market

Serve as a platform where people come together to connect regardless of origin and utilize as a pseudo-community space

To connect the existing stream and pond

habitats to create a nocturnal natural and visual experience for tourists

THE BUILDING

COMMUNITY-TOURISM MARKET

THE PURPOSE:

• Formal infrastructure to support existing local economy

• Platform for local - tourist interactions

THE FLOORPLAN

THE CONCEPT

Thought to be extinct, the Cantor’s Giant Soft Shell Turtle was rediscovered in Cambodia’s Mekong river. This rediscovery is a reminder to persevere & preserve.

THE INSPIRATIONS

Preserving & learning from the local style & culture.

1st Floor
2nd Floor

Covered-market

a flexible space serving as a community market and a public space for communal events

Community-tourism market Canteen

space where the locals & tourists can interact & immerse in a cultural exchange through the process of buying & selling

catered towards tourists

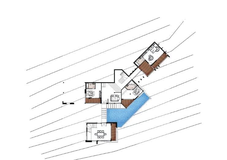
BOKOR HILLSIDE RESIDENCE

UNDERGRAD 2ND YEAR

TOP VIEW

Master & Grandparents

Garage & Bedroom

Main house Living room &

Ki Maid
Bokor Nature Reserve Rd.
Basement

Front view

THE LOCATION

Situated on a plot of land at the hip of mount Bokor, right beside Bokor Nature Reserved road, with a panoramic view of Kep beach and the surrounding nature.

THE RESIDENCE

Catered toward a family of generous inpool and mini-bars with a view of the beach and an open living room that overlook the hillside. Bedrooms are kept separated from each other to increase a sense of privacy.

Entrance

Right view

MASTER’S GRADUATION THESIS, 2022

PHNOM PENH

Conference: 5th WPSC and 16th APSA Congress, 2022

Paper:

STUDY AREA: BCE

THE ISSUES

- Inherently flood-prone + intense peri-urbanization

- Peri-urban is the main flood managaement tool

- In need of alternative flood protection measures

THE METHOD

Urban core

, 2023

Peri-urban delineation

Permanent waterbodies

Development nodes

Retention pond

Conserved for floodway

Canals & drainage

Pumping station

Flood gate Dike

Low rise residential

High rise residential

Medium rise residential School

CBD Mixed use

Wastewater treatment

THE HYPOTHESIS

Peri-urban land-use/land-cover (LULC) can be used as a flood protection tool for low-lying countries under intense development pressure

Scenario Modeling

The Case of Phnom Penh

Management in the Metropolitan area

Green building
Green building
Constructed wetland Wet
bioswale
Dry bioswale
Permeable pavement
Ripparian bu er
Permeable pavement
Detention pond
Permeable pavement

A Quick Study in Khmer Ornament, 2021

Osaka Castle, 2019
Into the Market, Phnom Penh, 2017
Family Stupa, 2018

Line Art Practice, 2019

A Quick Study in Khmer Ornament, 2023

The Alley Home, Phnom Penh, 2015
Frangipani, 2018

Turn static files into dynamic content formats.

Create a flipbook
Issuu converts static files into: digital portfolios, online yearbooks, online catalogs, digital photo albums and more. Sign up and create your flipbook.
Portfolio 2025 by Ria - Issuu