
[ important ] [ also important ] image making graphic design for educational purposes only

for educational purposes only
“if you’re focused on being an architect, in your work i would love to see it reference the 17 year old version of what you thought of a house as well as what you think of it is now...” - virgil abloh
The project finds its site in Stoke Newington, London, UK with a unique site being situated with neighboring buildings on all sides next to a cemetery. The client purchased the site a decade ago and decided to have a full time home, accommodating a family structure while also including a space that celebrates the individuals past achievements.
cemetery road
neighbor’s garden wall 8’ wall
buildings on all sides
cemetery walls 8’ tall
cobblestone alley
The imagined client for the project is artist, architect, and fashion designer Virgil Abloh. Seeking a family home in 2020 and to be closer to his London based research firmx. The project explores Abloh’s ideologies and beliefs throughout his career as a spatial experience. The home is a built environment of human-made nostalgia through a curation of our achievements displayed in ways that the individual can experience their former selves
for educational purposes only






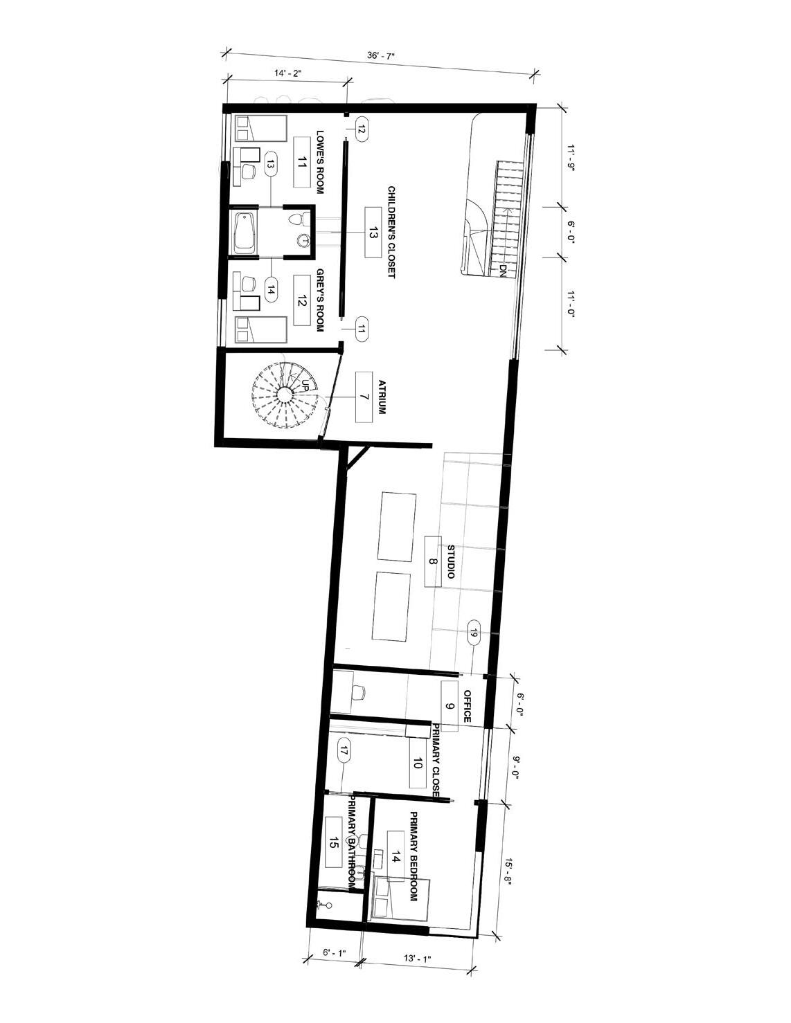
FIRST FLOOR PLAN

for educational purposes only


intended as an extension of the “FRAMING GRAY” furniture line, the studio work bench serves to store works in progress transparently, while working on newer works at the same time.

SECOND FLOOR
for educational purposes only


ROOF LEVEL
for educational purposes only


“practical study model” using the ideologies that were used to create spatial experiences, a t-shirt is created to explore the project further as its own study model. the t-shirt exists as an exploration of a fictional narrative of richmond, virginia based firm “acme architecture” collaborating with virgil abloh for the commission of his home.

[ image making ]
an ongoing search of the relationships between the self, others and space. the following is a preview of work, primarily expressed through digital and analogue lens based media.







[ graphic design ]
exploration of graphical skills involving through mixing analogue and digital techniques.














