Undergraduate ARCHITECTURAL PORTFOLIO

Page 1


-architectural portfolio-

1. S4 project 3- 10 RESIDENCE traditional kerala style NALLUKETTU

2. S5 project 1 1 - 14 SCHOOL

3. S6 project 15-20 HOSPITAL

4. group works 21-27

2019 - LANDSCAPE TROPHY 2018 - ANDC

5. other works 28-29

PHOTOGRAPHY - INTERIORS , POTRAITS , LANDSCAPE , MODEL MAKING

tropical traditional style ”

The project was to consruct a residence for a family in the middle of a rural area of Mukkola so taking concerns for their needs my plan was to create a tropical traditional NAALUKETTU residence with a open planning

r projectesidence

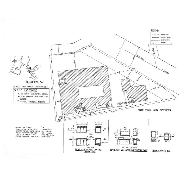
municipal drawing

the residence is designed in such a way it suits the tropical climate of Kerala. mainly trying to bring in natural ventilation , passive cooling techniques , natural lighting,

traditional roofing - clay tile rafters purlin
jalli
courtyard

“ Integrating people, spaces and nature”

The project was to create a public school comprising of classes (1 - 7) in the rural area of Nedumkuzhi

The task was to create an out of the usual government school with new teaching methodology creating a new option of more effective education in the rural community

interaction spaces are created between blocks for small entertainment programs like music art magic shows etc

sading

the corridoors are oriented so as to create a mutual
UP BLOCK LP BLOCK

“ creating harmony and easy accessibility to all ”

this project dealt with the design of a government hospital in the area of Kattakada

the project was to contain 4 OPDs and then with the emegency and surgical departments c o n n e c t

hospital study sheets

other works

- NASA landscape trophy

- NASA ANDC 2018

the brief of ths years trophy emphasized on converting an ignored degraded waste land into an effective fertile site useful for both humans and the eco-system A group of four was formed for the project.

The designed aimed to create a recreatonal area in the IT hub Infopark ., Kochi with watwater treatment fishing and to revitalize soil

Turn static files into dynamic content formats.

Create a flipbook
Issuu converts static files into: digital portfolios, online yearbooks, online catalogs, digital photo albums and more. Sign up and create your flipbook.
Undergraduate ARCHITECTURAL PORTFOLIO by REUBEN K THOMAS - Issuu