portfolio 2025 Relf

Page 1


Renee Relf Portfolio

Reneerelf@outlook.com

Sunflower School #46

US Department of Energy Solar Decathlon - 2nd Place Education Division 2024

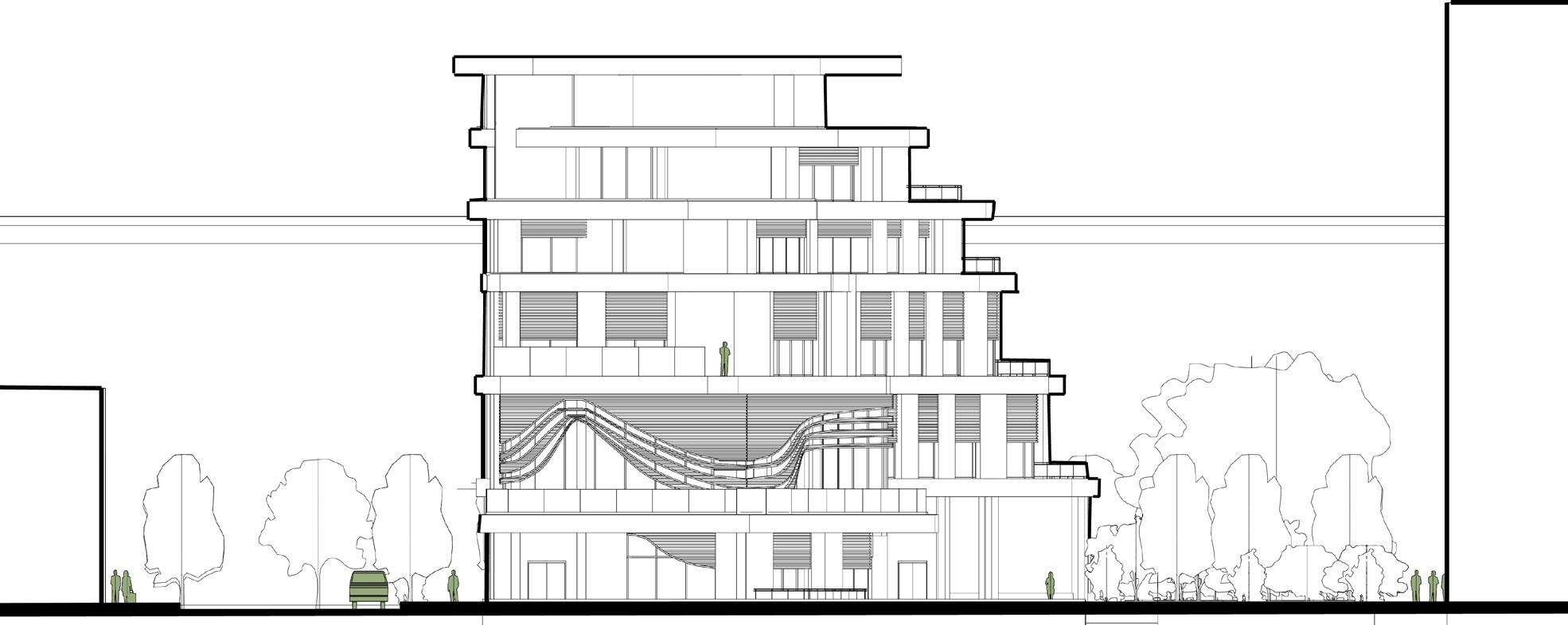
Sunflower School 46 is a net-zero K-12 school in Kharkiv, Ukraine that is dedicated to restoring the community devastated by the war between Ukraine and Russia. Our approach to regenerative design combines the adaptive use of the existing building and new construction of Mass-Timber classroom wings with appropriate technologies to respect traditional building systems. We have recycled the rubble from the shelling debris into thermal mass elements in the radiant floor slabs and sourced local Hempcrete bricks to create an environment reframed by the past while aspiring for the future.

Project Type Quick Facts

K-12 School

Project Location

Kharkiv, Ukraine

Professor

Ihab Elzeyadi

Software Used

Revit

IESVE

Tally LCA

Lumion

Photoshop

Grasshopper (Elk)
Team Members
Ben Michel
Quincey Dunlap
Isabelle Chew
Renee Relf

Existing Conditions

Preserving the old building saved 86 Million MBTU. We also deconstructed the destroyed building and reused rubble in floor slabs and planter boxes.

26 Million MBTU was saved by using sustainable materials such as fly ash concrete and mass timber.

If we had designed this as a traditional building the concrete use would make up 87% of the global warming potential, while the reuse of rubble our life cycle analysis shows the concrete only makes up 5% of the global warming potential

Living system effluent processing tanks

Old concrete structure bridign ginto timber atrium

Photovoltaics and solar hot water heaters

Shading system framework

Greenhouse classrooms

Steel I-beam supports shading system & PV’s

Photovoltaic array

Cable suspended terracotta tile shading system

11” soil layer r-10

Drainage layers, roof membrane

14” corn fiber insulation r-50

5-ply CLT r-9

3/4” mineral plaster finish

6” hempcrete nonstructural bricks r-15

3” concrete slab with radiant floor heating

2” air cavity r-1

1” rigid foam insulation r-6

11 1/2” corn fiber insulation r-38

5/8” gypsum wallboard r-0.45

1’ x 1’ GLT column

2’ GLT girder

Cable suspended shading system

Triple-pane r-7 windows with .5 SHGC

6” concrete slab with recycled rubble aggregate r-1

9” packed perlite r-28

4” rigid foam insulation r-24

10’

Roof Photovoltaics
Horizontal Louvers
Double Skin Facade Living Machine TM
South facing solar atrium and roof
Interior Courtyard space

Typical wetlant species remove the remaining nitrogen through root systems and convert them to harmelss nitrogen gas.

Aerated and supplied with bacteria, plants, algae, snails, insects, and fish. In these tanks ammonia and organic nitrogen are converted to nitrates. Each one is capable of handling 75% of the maximum daily flow.

Using mass timber to rebuild the new wind and solar atrium can reduce the embodied energy by 20-50% compared to concrete construction.

Using terracotta is beneficial for our building due to its mass production, long life cycle, low maintenance, and insulative properties.

Our Project: 254,409 kg CO2 eq

Full rebuild concrete mass timber hybrid: 2,112,932 kg CO2 eq

New Concrete Construction: 2,365,021 kg CO2 eq

Global Warming Potential: Comparing three scenarios

Viti Levu Veivuke Center

Located in Lami, Fiji, the Veti Levu Veivuke Center is built to withstand the impacts of climate change while incorporating traditional Fijian building techniques. During the day, it serves as a science research center and lab, with plenty of space for education and visitors. In the event of an emergency, such as a cyclone or flooding, the building transforms into an evacuation center. To support those in need, it includes a cache room stocked with food supplies and sleeping cots, ensuring families have a safe place to stay for several days if necessary.

Research Lab & Evacuation

Project Type Quick Facts Project Location

Ground source heat pump moves hot air into the ground and moves cool air in to the cache, morgue, and research lab

Rainwater is collected off of the roof into a 10,000 gallon tank. The tank can provide enough water for 2 months time. Runoff is filtered by rain gardens located at the concrete bases.

Greywater and Blackwater filtration system under the research lab and educational building.

Mesh with Bamboo above the concrete base for added protectionfrom debris during a storm
Electric heat pumps for hot showers during or after a calamity wil provide comfort for those in need.
Building is lifted off the ground per Fiji building code revolving around the increase in cyclone activity and flooding possibilities.
Wetland Restoration with outdoor classrooms

Double-Skin CBSW System

Bamboo lattice for traditional contrast to metal roofing
Bamboo Wall
Bamboo Sunscreen
Locally
Double skin CBSW system
Concrete pier foundation
Bolts, Nails, and Screws
Galvanized-steel mesh nailed to matrix Wall matrix of cane, small-diameter bamboo, or bamboo mats nailed to both sides of the frame
Timber sole plate
Large-diameter bamboo studs
Large-diameter bamboo bracing
Cement-mortar
Damp Proof Membrane
Upstand of reinforced concrete
Bolts, Nails, and Screws
Concrete Bamboo Shear Wall

Rose City Athaneum

The Rose City Athaneum is located at the north park blocks of Portland, Oregon. The current state is a parking lot, and the goal is to create a space that feels public and open to the ground level. The Athaneum is a space that also harbors the portland energy lab, and ultimately would be the place to go when you want to learn more about the history of architecture. We took a sustainability studio to help add to this studio class, and in the end we incorporated some of the concepts in to our Athaneum.

Quick Facts

Project Type

Athaneum

Project Location

Portland, Oregon

Professor

Michael Zaretsky

Stephen Duff

Software Used

Revit

Lumion

Photoshop

Burns Paiute Tribe Health & Wellness Center

Project Type Project Location

Gym + Vocational School

Professor

Burns, Oregon

Collaborators

Renee Relf

Giovanni Fazzare

Madison Young

Current Stage

Schematic Design & massing

Room study on one of the existing rooms of the exisiting Armory on site. This project is an

adaptive reuse project where the existing armory on site cannot be altered on the exterior.

No windows or doors may be added to keep the historic integrity.

Tools used: Andrew Marsh Tool, photoshop for graphic representation (pinup)

Roof form exploration. The goal is to provide an expressive roof on the interior and exterior that ties the Burns Paiute Tribe back to nature. We are trying to mimic the rolling hills and mountains of Burns.

Room study on one of the existing rooms of the exisiting Armory on site with different types of possible skylight installations.

Tools used: ClimateStudio

Ihab Elzeyadi

Room study diagram showing possible environmental strategies without changing the exterior facade and not adding any doors or windows.

Tools used: IESVE for climate design suggestions, Revit for room base, Illustrator post process

Existing building diagram showing possible environmental strategies for future massing. Orange buildings are existing armory & shed on site, which cannot be altered. Room that was studied in previous pages is outlined to show location on site.

Tools used: IESVE for climate design suggestions, Revit for base, Illustrator post process

Chesapeake Bay Foundation Tree Nursery & Planting volunteer

While I was still living in Maryland, I was volunteering with the Chesapeake Bay Foundation. We worked in the tree nursery during the spring and summer in order to get trees ready to be planted by the fall. These trees are planted in and near rural parts of Maryland, in order to increase soil health in farmlands and reduce the risk of flooding.

Not only was this a great volunteering experience to meet new people and spend time outside, I was able to give a presentation about how planting more trees in the surrounding Chesapeake Bay Watershed can also lower flood risks in cities like Baltimore, MD.

AISES Native American students in STEM outreach for the University of Oregon

I recently had the pleasure of attending the 2024 AISES National Conference in San Antonio, TX, with Sophia Hodgon, Olivia Iverson, and Clay Neal for the University of Oregon Architecture Department outreach and recruitment. It was an amazing opportunity to connect with Indigenous students and professionals from all over the US and even Canada, as well as those committed to increasing diversity in architecture and STEM.

During the conference, I was able to attend a variety of STEM and Indigenous-focused lectures, covering topics such as Sustainable Indigenous Designs with Mass Timber and Renewable Energy Education and Workforce Development.

Thank you!

Turn static files into dynamic content formats.

Create a flipbook
Issuu converts static files into: digital portfolios, online yearbooks, online catalogs, digital photo albums and more. Sign up and create your flipbook.
portfolio 2025 Relf by reneerelfarch - Issuu