ONE PARK ROW
NEW YORK

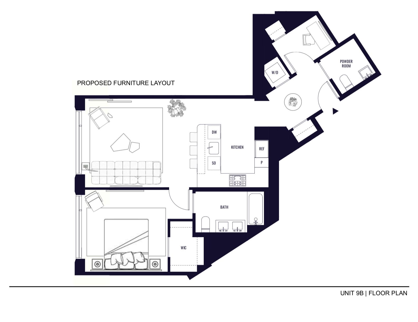
UNIT 9B
INTERIOR DESIGN STAGING
RENATO RADU STUDIOS
SEPTEMBER 2024

. 0 1

Inspiration




![]()
NEW YORK

UNIT 9B
RENATO RADU STUDIOS
SEPTEMBER 2024

. 0 1
































1 MARIOBELLINISOFA Tealvelvet
2 SLINGCHAIR Wheatleather
3.CONVEXANTIQUEDMIRROR MatteBrass&antiquedfinish
4 FAUXMAGNOLIATREE 92"h
5 FREEFORMMETALCOFFEETABLE Mattebrass
6 LOLOI | GRRAPHITE/PEBBLE c 9’ X 13’
7. IVORY RICE STONE TUSK Brass stand
8 STONE TEXTURED PLANTER I20w' x 29'h
9 LARGE ABRSTACT 60” X 80”
10. BLACK MINIMAL 40” X 60”
11.REGAN BARSTOOL Ivor leather and brass
12. MUSEUM PEDESTAL In black






FURNITURE | LIVING ROOM





















1 CHANNELVERTICALBEDWITH EXTENDEDHEADBOARD Blackvelvet
2 TMARBLESIDETABLE Blackmarble
3 BRONZETRIANGLETABLELAMP Bronzew/whiteshade
4.ABSTRACTWALLPAPER IncolorArctic
5 UPHOLSTEREDARMCHAIR Linen/cottonfabricinthecolorlinen
6 LOLOI | CREAM/SAND 8.6’ X 11.6’
7. HERMES BLANKE In tan
8. TIBETAN SHEEP PILLOW In black
9 GRAPHIC MOD ABSTRACT PAINTING | PRINT ON CANVAS
10. COTTON PERCALE WHITE BAND DUVET & SHEET SEET | KING In white
11.COTTON PERCALE BLACK BAND SHAM | KING
12 CROSBY IVOTY CHECK ALPACA WOOL BLANKET | KING








T MARBLE SIDE
TABLE IN BLAK
MARBLE

CHANNEL VERTICAL BED WITH EXTENDED HEADBOARD | BLACK VELVET



















GRAPHIC MOD ABSTRACT PAINTING | PRINT ON CANVAS




BEDDING | BEDROOM


























C ENTRY TABLE




FAUX LAPTOP & SIMPLE DESK ACCESSORIES



