Undergraduate Architecture Portfolio - Public Library

Page 1

REMUS IONESCU

UNDERGRADUATE ARCHITECTURE PORTFOLIO STUDIO V

SECTION AA SITE SECTION AA

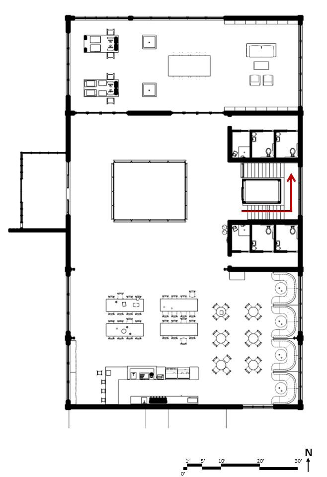
ACCESSIBILITY

ANALYSIS DRAWINGS PERTAINING TO THE SITE OR OTHER INFLUENCES

CONNECT AND RECHARGE

ENVIROMENTAL CONTROLS

FLEXIBILITY

PUBLIC SPACE VIEWS

BRANCH LIBRARY PROGRAM

ISOMETRIC VIEW
NEW DOG PARK
BOULDER ST ENTRANCE
LOWER LEVEL FLOOR PLAN UPPER LEVEL FLOOR PLAN BB BB

The main entrance of the library is located on Tejon Street. Serving the Highland community, the library specializes in collections of classic novels and intricate hardcovers. The library offers a coffee shop, meeting space, and new computers with fast internet access and printing capabilities. The master plan balances physical and programming needs; celebrates the diverse community and creates a “living room” for life and learning. I was interested in creating a library as a community living room which let to the furniture selections and arragements.

BUILDING SECTION - BB
SPECIALTY AREA - MAKER SPACE READER SPACE - LIVING ROOM
TEJON ST ENTRANCE LOBBY SPECIALTY AREA - COFFEE SHOP
READER SPACE - COMMUNAL TABLE BOULDER ST ENTRANCE
READER SPACE - LIVING ROOM
STAFF WORKSPACE

Turn static files into dynamic content formats.

Create a flipbook
Issuu converts static files into: digital portfolios, online yearbooks, online catalogs, digital photo albums and more. Sign up and create your flipbook.
Undergraduate Architecture Portfolio - Public Library by Remus Ionescu - Issuu