DESIGN PORTFOLIO
REBECCA LEPP
M.A. INTERIOR DESIGN
![]()
M.A. INTERIOR DESIGN
M.A. THESIS PROJECT
DRAWINGS AND RENDERS WITH REVIT AND ADOBE PRODUCTS
HANSABIBLIOTHEK IS A SMALL PUBLIC LIBRARY LOCATED IN BERLIN, GERMANY. THE LIBRARY WAS ORIGINALLY DESIGNED BY WERNER DUTTMANN IN 1956. ALONGSIDE DUTTMANNS DESIGN OF THE SHELL OF HANSBIBLIOTHEK, HE ALSO DESIGNED THE INTERIOR AND FURNITURE PIECES. TO PAY HOMAGE TO HIS CLASSIC DESIGN, MANY ASPECTS OF THE LIBRARY ARE PRESERVED AND CONTRASTED WITH DESIGN CHOICES THAT CHALLENGE THE RIGID AND STRUCTURED FORMS THAT DUTTMANN DESIGNED.
THE IDEA IS TO CREATE A CONVERSATION BETWEEN DUTTMANN AND I. THE CONVERSATION IS CENTERED AROUND ELEMENTS OF SOCIAL CONNECTIVITY AND THE DIGITAL AGE, LOOKING TOWARD A PUBLIC LIBRARY THAT SUPPORTS FUTURE GENERATIONS.


CURTAIN DESIGN INTERVENTIONS
DUTTMANN’S ORIGINAL FURNITURE DESIGNS
CUSTOM FURNITURE INTERVENTIONS

MAIN HALL
RECEPTION STUDY HALL
CAFE

MORNING FLOOR PLAN
THE HANSABIBLIOTHEK HAS THE POTENTIAL, THROUGH THE USE OF THE CURTAIN SYSTEM AND MOVABLE FURNITURE ELEMENTS, TO BECOME A SPACE THAT CHANGES OVERTIME, ALLOWING IT NOT ONLY TO BECOME A SPACE OF SECLUSION AND STUDY, BUT ALSO FOR CONNECTION AND COMMUNITY.
MAIN HALL
RECEPTION STUDY HALL
CAFE
CENTRAL GARDEN
HALL
RECEPTION STUDY HALL


EVENING FLOOR PLAN



NORTH ARROW
NEW INTERVENTION DUTTMANN’S DESIGN
MISC.

AFTERNOON FLOOR PLAN



NORTH ARROW
NEW INTERVENTION
DUTTMANN’S DESIGN
MISC.
CURTAIN













NEW INTERVENTION
DUTTMANN’S DESIGN
CAFE AFTERNOON 1:50 DETAIL PLAN (NTS)
MISC.
CURTAIN


CAFE AFTERNOON 1:50 SECTION (NTS)





KITCHEN 1:20 DETAIL (NTS)


KITCHEN 1:20 SECTION (NTS)

LIBRARY GO-ERS ARE ABLE TO ENJOY OUTDOOR SEATING THAT LOOKS AT THE MULTI-USE PAVILION. THIS GIVES USERS OPTIONS TO ENGAGE IN THE DIFFERENT ACTIVITIES THAT THE PAVILION HAS TO OFFER, OR UTILIZE THE OUTDOOR AMENITIES SUCH AS THE COMMUNITY SEED GARDEN.

HERE IS WHAT IT LOOKS LIKE WHEN ARCHITECTURE SPEAKS THE LANGUAGE OF A YOUNG ADULT/DRAMA BOOK GENRE.

IN THE AFTERNOON, THE STUDY SPACES BECOME AN OPPORTUNITY FOR USERS TO HAVE A COLLABORATIVE GROUP SPACE, WHETHER THAT MEANS USING THE PROJECTORS TO PRACTICE A PRESENTATION, OR TO GRAB A SMART TABLET FROM THE BOOKSHELF AND READ ON A DIGITAL PLATFORM.

HERE IS WHAT IT LOOKS LIKE WHEN ARCHITECTURE SPEAKS THE LANGUAGE OF A THRILLER BOOK GENRE.

IN THE EVENING, THE MAIN HALL CAN TRANSFORM INTO AN EVENT SPACE, WHERE THE PODCAST AND DJ SPACE OPENS UP AND BECOMES A DJ SETUP TO ENTERTAIN A CROWD. STILL, THE SPACE KEEPS THE ESSENCE OF THE BOOKS AS AN ACCESSORY TO THE VENUE.

HERE IS WHAT IT LOOKS LIKE WHEN ARCHITECTURE SPEAKS THE LANGUAGE OF A ROMANCE BOOK GENRE.
M.A. 3RD SEMESTER DESIGN PROJECT (CONSTRUCTING ARCHITECTURE ERASMUS PROGRAM)
IN COLLABORATION WITH IGOR PANKAU-BRODA, MARIA FRANCESCA PERCIACCANTE, ONA MAS
THE DONKEY REPUBLIC COMPANY IS LOOKING TO RELOCATE THEIR HEADQUARTERS TO CHRISTIANSHAVEN IN COPENHAGEN. A FIVE STORY HIGH RISE OFFICE BUILDING THAT SPANS OVER 3,800M2 IS REQUIRED TO HOUSE THE EMPLOYEES.
AS AN INDIVIDUAL COMPONENT, THE FACADE DESIGN IS HIGHLIGHTED AS A FOCAL PART OF THE BUILDINGS ARCHITECTURAL SYSTEM.






THE FACADE UTILIZES TRIPLE GLAZED GLASS ALONG WITH THE HANSEN UNIT AI SYSTEM. THE FACADE IS THEN COVERED WITH PERFORATED AND MATTE CORTEN STEEL OPTIONS THAT PICK UP THE COLORS FROM THE VERNACULAR OF THE SURROUNDING AREA.







14 WINDOW TYPES USED IN THE SHELL OF THE BUILDING.
GROUPED BY SIZE AND PERFORATION



M.A. 2ND SEMESTER DESIGN PROJECT II (WORK IN PROGRESS)
IN COLLABORATION WITH BERFIN GUNER , EMRIYE ASLAN, AND ASLI MUT
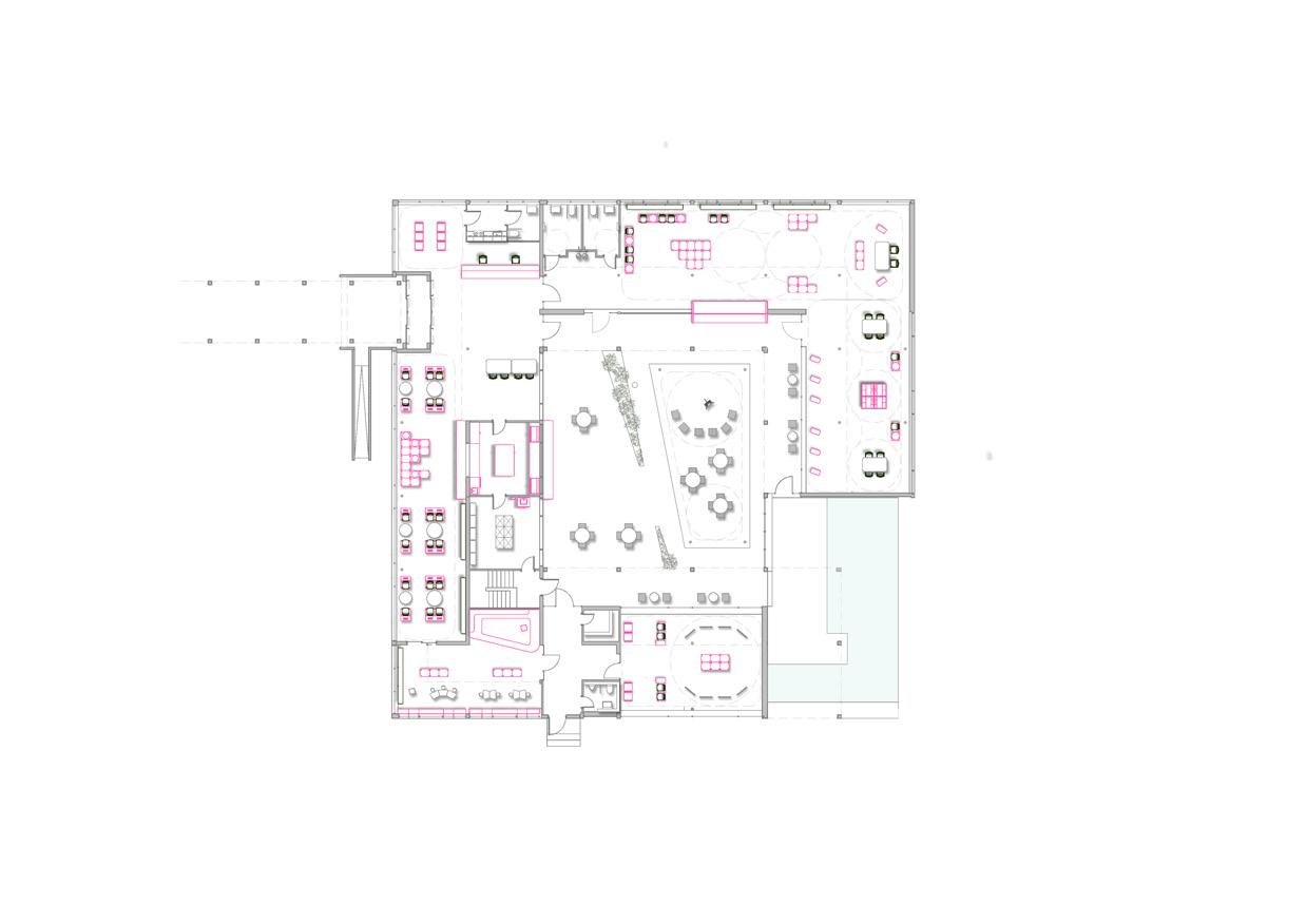
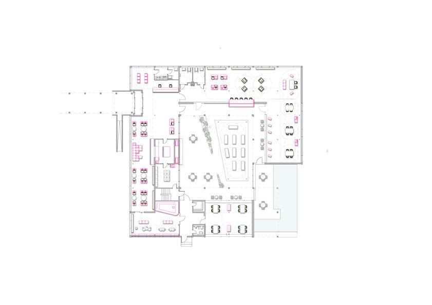
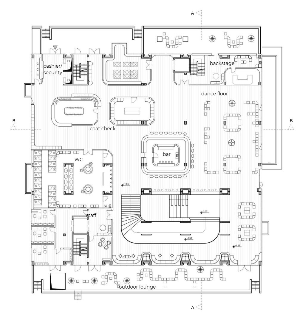
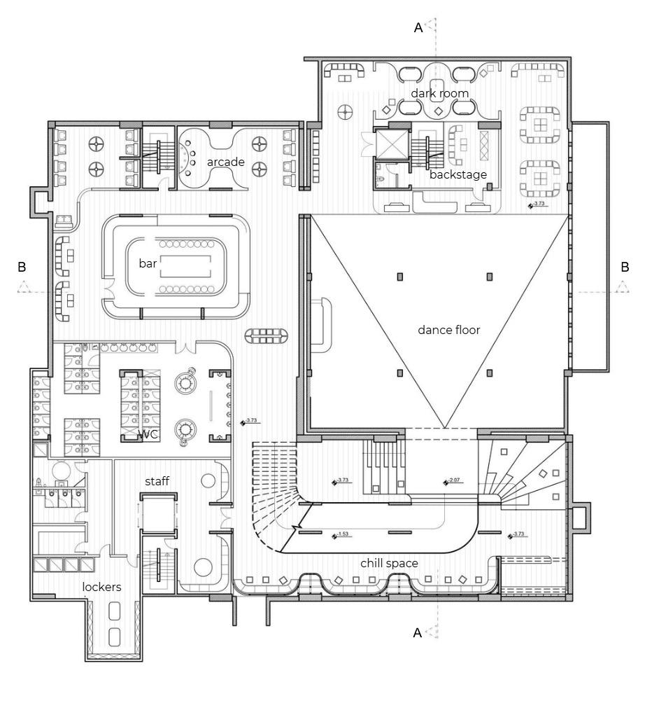
THE TEGEL AIRPORT IS LOOKING TO EXPAND FROM THE CURRENT BARREN STATE INTO A NIGHTCLUB. ARTIFACT DISCO LOOKS TO CREATE AN IMMERSIVE EXPERIENCE FOR USERS BY TAKING INFLUENCE FROM THE COLORS OF A SUNRISE, INDICATING A NEW LIFE AND BEGINNING FOR THE CLUB SPACE.

SHOWS THE GRADIENT AND COLOR PALETTE THAT INFLUENCES THE DESIGN AND LIGHTING OF THE SPACE.

THE CALM - CORRIDORS AND ENTRYWAY

THE SUSPENSE - LOUNGES, BACKSTAGE, AND BARS

THE AWAKENING - DANCE FLOORS AND EXHIBITION SPACES ENTRYWAY









CUSTOM FURNITURE ARRANGEMENTS THE USE OF THE ARC SHAPED SEAT AND SQUARE MESH SEATS CREATE A DYNAMIC AND FLEXIBLE USE OF SEATING OPTIONS WITHIN THE CLUB SPACE.




1:50 DETAIL WC (NTS) 1:50 FLOOR PLAN (NTS)












M.A. 1ST SEMESTER DESIGN PROJECT 1
AS A WAY TO REFORM AND RE IMAGINE KOPENICKER STRASSE 91, A SOLUTION UTILIZING FLEX SPACES WAS DEVELOPED TO CREATE A SUSTAINABLE SOCIAL HOUSING STRUCTURE IN THE CITY OF BERLIN.
KOPENICKER STRASSE 91 IS A TRADITIONAL BERLIN BLOCK APARTMENT COMPLEX THAT IS NOW LOOKING FOR A CHANGE IN SPATIAL ORIENTATION AND PURPOSE. WITH THE USE OF FLEX SPACES, A SUSTAINABLE APPROACH






THE FLEX UNITS ARE DESIGNED TO IMPLEMENT MULTIPURPOSE AND SUSTAINABLE ELEMENTS THAT AID IN FLEXIBILITY OF THE SPACE REGARDLESS OF ITS SMALL SIZE. DIFFERENT FEATURES HELP TO HIDE ELEMENTS THAT ARE NOT IN USE, EXTEND STORAGE OPTIONS, AND ADD TO THE LOW WASTE STATUS OF THE UNITS.
IN TERMS OF MATERIALITY, RECYCLED GLASS AND RECLAIMED WOOD ARE INTEGRATED TO ADD TO THE ECO-CONSCIOUS MATERIAL CHOICES.


M.A. 1ST SEMESTER DESIGN CHARETTE
IN COLLABORATION WITH DUSICA MATROVIC AND ZUZANNA PENDRASIK
WE DESIGNED A SAFE, INCLUSIVE ENVIRONMENT FOR CHILDREN OF ALL ABILITIES, ENSURING IT REMAINS FUN AND INSPIRING.
LOCATED IN WESTERN GERMANY, OUR SITE SPANS A COMPACT 36 SQUARE METERS, OFFERING A CREATIVE CHALLENGE AMIDST A BEAUTIFUL NATURAL SETTING, PERFECTLY SUITED FOR A PAVILION.




SIDE ENTRANCE
THE PAVILION WILL FEATURE DYNAMIC ELEVATIONS AND PROTRUDING ELEMENTS TO ADD EXCITEMENT AND FRESHNESS TO THE SPACE. DESIGNED TO ENGAGE ALL FIVE SENSES, IT WILL ENCOURAGE USERS TO EXPLORE AND CONNECT WITH THEIR SURROUNDINGS IN A FLUID AND MEANINGFUL WAY, FOSTERING A DEEPER APPRECIATION FOR THE WORLD AROUND THEM.




THE PAVILION INCLUDES VARIOUS PLACES OF PLAY SUCH AS: A PUZZLE WALL, A REVERSABLE CHALK BOARD, AND DIFFERENT NOOKS FOR COMFORT AND CLIMBING.

THE FRONT VIEW OF THE PAVILION SHOWCASES A DYNAMIC SPACE FOR CHILDREN TO EXPLORE VARIOUS ACTIVITIES. THE FAUX TREE CREATES A SEAMLESS CONNECTION BETWEEN THE OUTDOORS AND THE PAVILION, BLENDING BOTH EXPERIENCES.

THE SIDE ENTRANCES CONNECT TO FORM A SECONDARY PATHWAY THROUGH THE MORE ENCLOSED SPACES, LEADING INTO THE CENTRAL SEATING AREA. THIS DESIGN PROVIDES ADDITIONAL SIGHTLINES AND A SENSE OF “EXPLORATION” FOR USERS
THANK YOU.