portfólio de arquitetura

Page 1

Portfólio

RayaneM.deOliveira ArquiteturaeUrbanismo DesigndeInteriores 2017-2021

APARTAMENTO87

TCCTécnicoemDesigndeInteriores Equipe;BeatrizMagarottieRayane Morales 2017 Esteprojetofoiresultadodeestudos realizadosduranteocursodetécnico emdesigndeInteriores,e apresentadocomotrabalhode conclusãodecurso.

Apóstraçadooperfildocliente atravésdeumBriefing,foram adotadososestilosIndustriale Modernoparabuscadereferências eodesenvolvimentodoprojeto, tendocomoresultadoumamaquete 3Depranchasdeprojetoexecutivo.

Interiores

Interiores RENDERS Equipe:RayaneMorales 2019 Projetosautoraisfeitos paraefeitodeestudoe aprendizagemcomv-ray.

ANEXOÀOFICINALEMOS

DisciplinadeProjetoF 2020 Equipe:RayaneMorales, BrunaLudovico,Isabelle ContieiroeTiagoMateu

Intervençãonoprédioda OficinaLemosquese encontrainseridonopátio ferroviáriodaFepasa Campinas.

.

Anexocompostopordois blocos,partedeles subterrânealigadosporuma praça,criandorelaçãoentre novoeantigo.

Projetoe

Patrimonio

^
Desenhodo . Objeto CADEIRADE DESCANSO“QUARENTENA” DisciplinadeDesenhodoObjetob 2020 Equipe:RayaneMorales,Bruna Ludovico,IsabelleContieiro,Tiago MateueCaioRamos Propostadecadeiradedescanso, feitacomtábuasdemadeira maciça Pranchaemodeloemescala1:2.

PROJETOMIOLODEQUADRA

DisciplinadeProjetoH 2021 Equipe:RayaneMorales,Leonardo Cherbo,NatáliaSayeg

Estudorealizadosobaárea centraldeCampinas-SP, implantandonomiolodequadra umconjuntodeedifíciosdeuso misto,comtérreodeuso predominantementecomercial, alémdeserviçoeintuições.

.

Projetode

Arquitetura

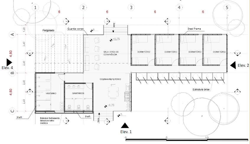
UNIDADEDE SAÚDEEMERGENCIAL

DisciplinaDeMateriase TécnicasB 2021 Equipe:RayaneMorales, LeonardoCherbo,AlineFonste eCaioRamos

Comoprogramapropostode umaunidadeemergencial, adaptávelaqualquerterreno, quecomportaeabrigaas pessoasemsituaçãode vulnerabilidade.Aunidadese encontrasuspensa,composta porpainéiswalldefácil montagemedesmontagem, podendoconsiderar facilmentesuamultiplicação.

.

Projetode

Arquitetura

UNIDADEDE HABITAÇÃOEMERGENCIAL

DisciplinaDeMateriase TécnicasB 2021 Equipe:RayaneMorales, LeonardoCherbo,AlineFonste eCaioRamos

Oprojetoconsistena produçãodeunidadesde habitaçãoemergenciais, sobretudoquepossamser construídasdeformarápidae eficiente,comumsistema construtivoutilizando-sede peçasindustriaismetálicas.

.

Projetode

Arquitetura

.

ESTÁGIO

2021 Imagens desenvolvidas duranteestágio supervisionadoem umescritóriode DesigndeInteriores emCampinas-SP

Projetode

Interiores

.

ESTÁGIO

2021 Imagens desenvolvidas duranteestágio supervisionadoem umescritóriode DesigndeInteriores emCampinas-SP

Projetode

Interiores

ESTÁGIO

2021 Imagens desenvolvidas duranteestágio supervisionadoem umescritóriode DesigndeInteriores emCampinas-SP

ProjetodeInteriores

Turn static files into dynamic content formats.

Create a flipbook
Issuu converts static files into: digital portfolios, online yearbooks, online catalogs, digital photo albums and more. Sign up and create your flipbook.
portfólio de arquitetura by Rayane Morales - Issuu