



![]()




Architecture Portfolio
ARCHITECTURAL DESIGNER


12-03-2001


9842255454
Coimbatore,Tamil Nadu

ranjithbalachandran12@gmail.com
I am Ranjith, a passionate architect and interior designer dedicated to crafting spaces that inspire andenhancelives.Withameticulouseyefordetail and a fair for innovative design, I strive to create environments that blend functionality, aesthetics, andsustainability.Myexperiencespansconceptual design,execution,andcollaboration,enablingme todeliverprojectsthatexceedexpectations.
I believe in breaking conventions, embracing challenges, and continuously learning to redefne the boundaries of architecture. With a focus on impactful design, I aim to contribute to societal progress by improving infrastructure and creating transformativespaces.
Drivenbydiscipline,creativity,andacommitment to excellence, I am eager to bring my expertise and fresh perspectives that meets the needs of the users.
2018-2023
BACHELORS IN ARCHITECTURE
AUTOCAD SKETCHUP
ENSCAPE
LUMION
PHOTOSHOP
CLASS 12
Class 10
MAY 2023MAY 2024 MAY 2023MAY 2024
JUN 2024DEC 2024 2017-2018 2016
INCEPT ARCHITECTS
ARCHITECTURE & INTERIORS
INTRADOS INTERIORS & ARCHITECTURAL DESIGN SERVICES
SHANTHI ILLAM - RESIDENTIAL INT & EXT (RENOVATION)
MS ESSENTIALS
REVIT
MANUAL DRAFTING RESEARCH & DOCUMENTATION
3D VISUALIZATION
DETAIL ORIENTED PRESENTATION
ADAPTABILITY
HOBBIES & INTEREST
SPORTS (BADMINTON & CRICKET) AQUASCAPING TRAVEL & EXPLORE




The project intends to bring a cluster of modern multifunctionalworldclasssportsfacilities.
The site is located in banglore with a plot area of 2700 sft (45*60)
The client looked for an 4bhk unit with home theatreandgymincludingterracegardenandtheinteriorsinmodernstyle.
SCHEMATIC FLOOR PLANS
The client looked for an 3bhk unit with home theatreandopenterracegarden.
Thoughtfully crafted to align with the project’s contemporarystyleandVasturequirements
The client looked for an modern luxury 5bhk unit withaninbuiltofficespace
The client looked for an 1bhk rental unit in the first floor and an 4bhk unit on the other floors for hisfamily.
The client looked for an 4bhk unit comprising of anofficespace,mediaroomwithslopedroofsin aclassicalstyleelevation.
The clients looked for a modern luxury interiors inaneutralcolourpallette.
The pathway is envisioned as a journey of peace and connection with nature.
Theclientisanusbasedclientsotheylookedfor more of an open spaces with cross ventilations and comfortable circulation spaces inside the house.
The client looked for a classical style elevation withslopedroofsandcornices
Year of Project
Duration of Project
Type of Project
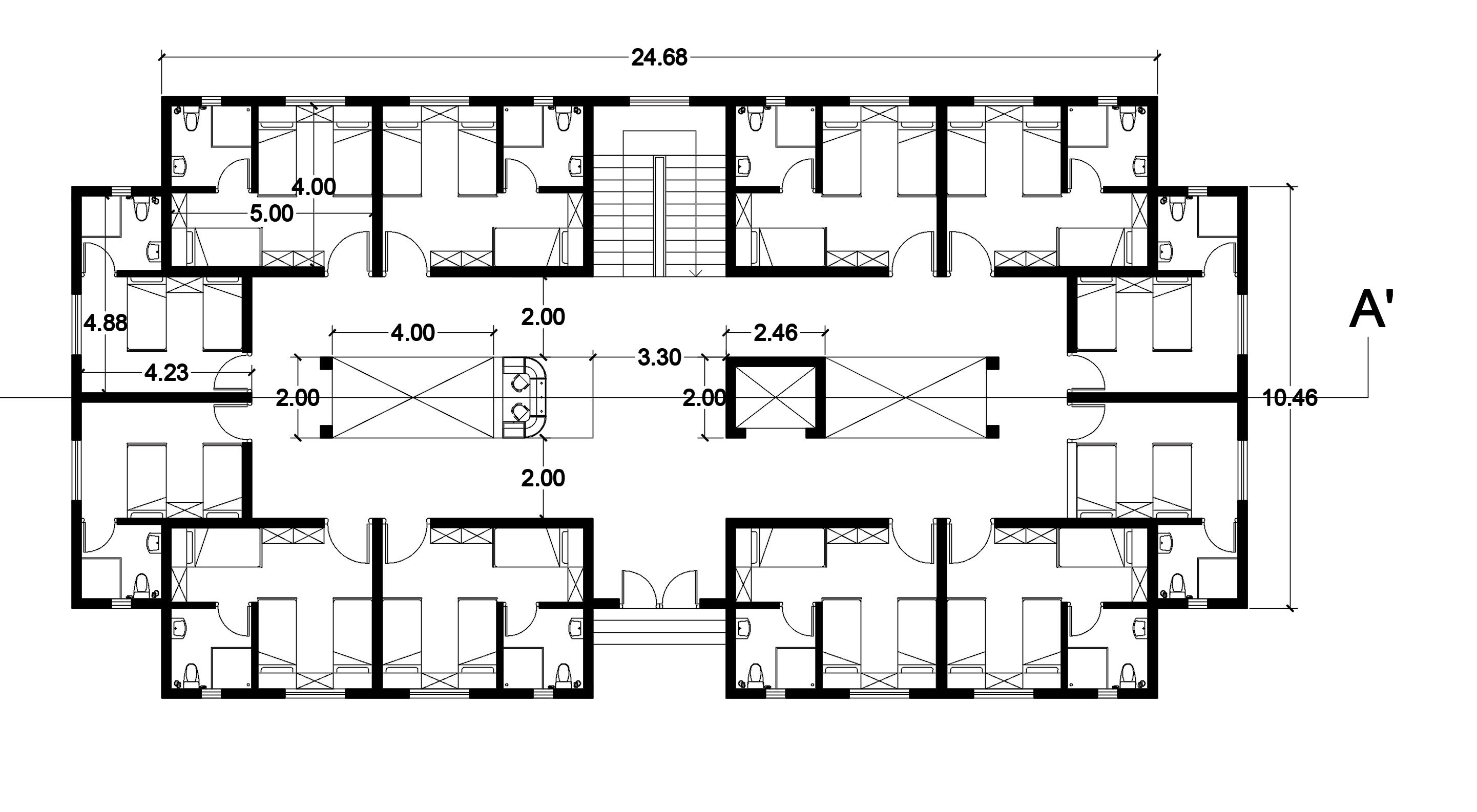
INTRODUCTION: The proposed project is a Sports Complex. This project has been selected considering the need for a sports complex building to attract more players. To promote socio-cultural and sports. To bring people from all age groups together and provide activities for all age people.
The project covers all the major issues and requirements of any sports complex building. It will contain different function and sizes of indoor games but also focuses on the entertainment, research, fun and recreational aspects.
OBJECTIVE: The project intends to bring a cluster of modern multifunctional world class sports facilities.
AIMS: To provide users an affordable,comfortable, and enjoyable experience. The design creates a relaxed and casual atmosphere. Creating a complex hideaway from urban life. To meet the needs of all age groups, children, adults and the elderly. Integration of built form with the landscape.











The site is along north south direction. Since the site is along northsouth direction, the eastern side of the site can be used to invite natural ventilation inside the building and the western side can be enclosed with massive facade to exclude the hot sun and simultaneously can have massive facade .
The present entrance for the site is from south. There is only one entrance for the site, on the south of the side. The site has a 5 star hotel Le Meridian and Decathlon sports accessories showroom building near which is around 1 km radius. The site area is covered with cogon grass, rye etc and the site has no vegetation in it.


The support facilities play a major role in the development of a sports complex. These facilities attract a lot of sports enthusiasts all around the world.
The administrative block plays a major role in the management of the sports complex. It holds spaces such as conference room, manager room, staff offces, security offce for monitoring and accountants offce.




Conceptual Drawing Admin Block Space Frame Truss

The Recreation block consists of spaces such as sports nutrition, sports psychology, sports physiotheraphy, sports science, yoga and library. These spaces act as a communal space between athletes, coaches, visitors and the public. There are academy conference rooms for individual sports which act a meeting space between the athletes and the academy offcials.

Aquatic Complex

Acomodation Block

Section 1

Section 2

Year of Project
Duration of Project
Client Details
Type of Project
The site is located in banglore with a plot area of 2700 sft(45*60) and the built up area is 3200 sft,which comprises of ground ,frst & terrace foor.The client looked for a modern contemprory elevation with exposed brick facade & travertine claddings with a touch of minimalism and the interiors should complement the contemprory style ( use of wooden fnishes & neutral colours) with an elegant approach.



The elevation features a modern design with an exposed brick facade and travertine claddings, blending texture and elegance. Soft ambient lighting enhances the cozy atmosphere, while focused lights add functionality.

The TV room refects a contemporary style with neutral tones, wooden fnishes, and sleek furniture for a minimalist yet elegant look.

Year of Project
Duration of Project
Client Details
Firm
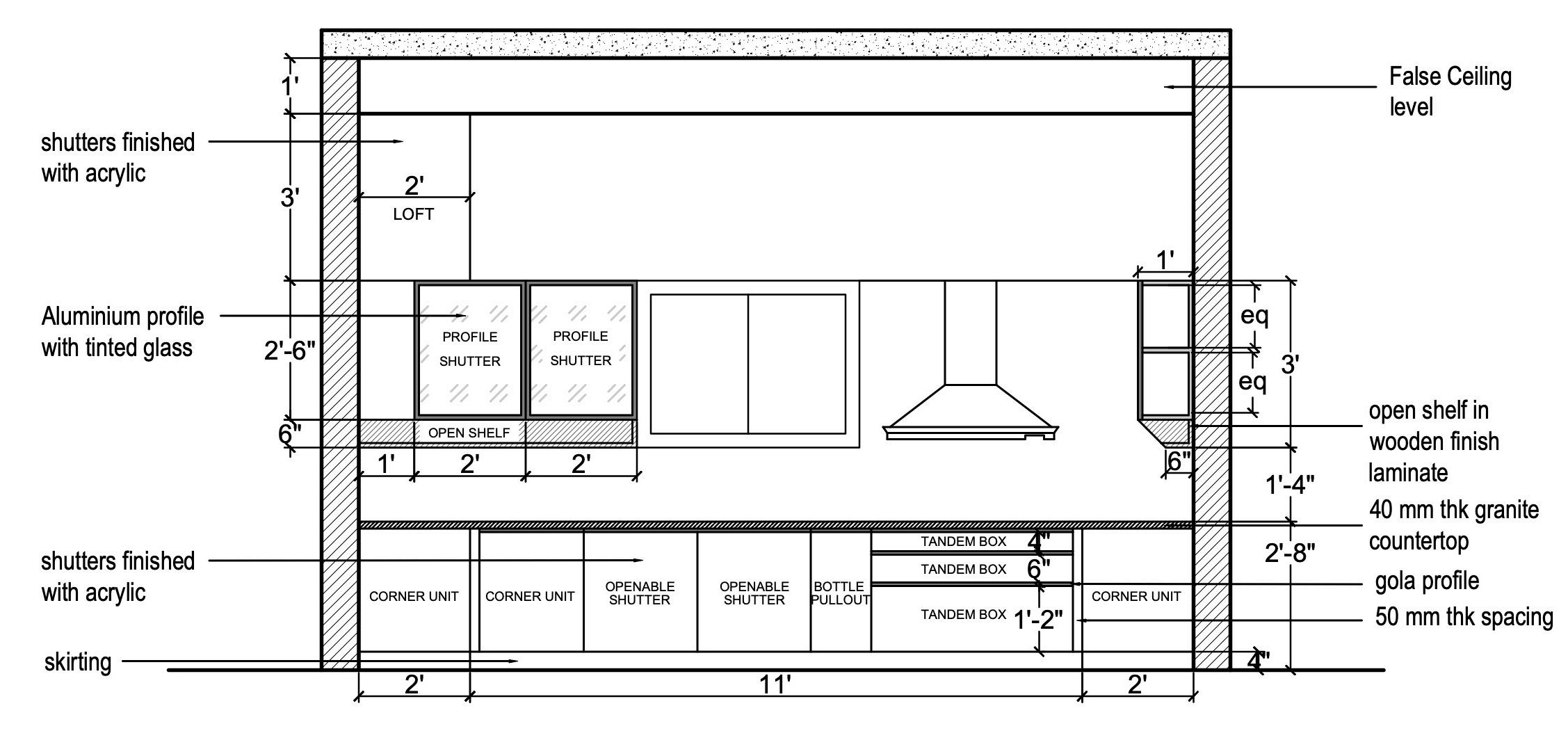
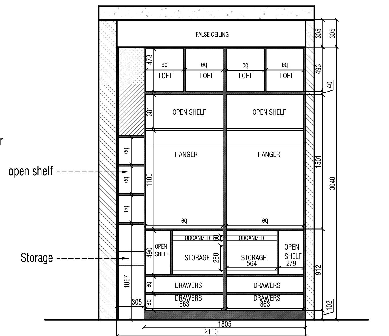
The site is located in banglore with a plot area of 2400 sft(40*60) and the built up area is 5090 sft,which comprises of ground ,frst,second & terrace foor.The client looked for an bhk unit with home theatre and gym including terrace garden and the interiors in modern style.The son wanted his bedroom in a warm feel with a touch of classical and wooden fnishes around him and the client wanted an handleless kitchen with latest inbuilt mechanisms from blum.





Bedroom Plan Kitchen Plan


Bedroom Elevation A Kitchen Elevation A
Year of Project
Duration of Project
Client Details
Firm
The site is located in chikka ala,banglore with a plot area of sft ) which comprises of ground ,frst,second & terrace foor.The client looked for an bhk unit with home theatre and open terrace garden.This is an east facing project with vastu re uirements.The client was very specifc on creating an open to sky space and an internal courtyard with me anine or double height structure.



The planning integrates a 3BHK layout with a home theatre and an open terrace garden, adhering to Vastu principles for the east-facing plot. It features an open-to-sky space and an internal courtyard, enhancing natural light and ventilation. A mezzanine or double-height structure is incorporated to create a sense of spaciousness and connectivity between foors.
Year of Project
Duration of Project
Client Details
Firm
The design of doors and windows plays a crucial role in enhancing both the functionality and aesthetics of the space. Thoughtfully crafted to align with the project’s contemporary style and Vastu requirements, the details focus on maximizing natural light, ventilation, and seamless indoor-outdoor connectivity. Materials, fnishes, and proportions are carefully chosen to ensure durability, elegance, and a harmonious integration with the overall architectural language.








The doors and windows are designed to refect a balance between modern aesthetics and functional requirements. For the doors, a mix of sleek wooden fnishes and minimalist hardware complements the contemporary interior style, while ensuring durability and privacy. The windows are strategically placed to optimize natural light and ventilation, featuring large openings with clear glass panels for an open and airy feel.
Incorporating sliding or bi-fold mechanisms for larger openings enhances the indoor-outdoor connection, while smaller windows with fxed or operable designs ensure comfort and privacy in specifc areas.
The choice of materials, such as aluminum or powder-coated frames, ensures weather resistance and longevity, blending seamlessly with the project’s overall design narrative.
Year of Project
Duration of Project
Client Details
Type of Project
The site is located in yelahanka,banglore with a plot area of 4000 sft(50*80) which is a g+5 structure.The client looked for an modern luxury bhk unit with an inbuilt offce space, home theatre ,terrace garden, gym and an party hall with bar counter. e was specifc in playing with levels and having an open to sky space with an internal courtyard and double height structure.The client expected for an luxury interiors which compliments the exteriors.





The G+5 residence blends modern luxury with functionality, featuring a 5BHK layout, inbuilt offce, home theatre, terrace garden, gym, and party hall with a bar. Open-to-sky spaces, an internal courtyard, and doubleheight areas enhance light, ventilation, and elegance. Premium materials like glass, stone, and wood ensure the interiors complement the sleek, modern exterior.


Dress Area



Year of Project
Duration of Project
Client Details
Firm
The site is located in banglore with a plot area of sft ) which is a g structure.The client looked for an bhk rental unit in the frst foor and an bhk unit on the other foors for his family. e looked for an modern ccontemprory elevation with latest materials available in the market. ome of the materials used in the elevation are brick alis,fbercement board panels,ms rafters,v columns,wpc rafters,c-sections ,stone marble claddings and neutral colours which helps in achieving the contemprory style.


This G+3 structure in Bangalore features a 1BHK rental unit and a modern 4BHK family home. The contemporary elevation incorporates brick jalis, fber cement panels, MS rafters, and stone marble claddings, with neutral tones for a sleek, modern aesthetic.
Year of Project
Duration of Project
Client Details
Firm
The site is located in yelahanka,banglore with a plot area of 4000 sft(50*80) which is a g+3 structure. The client looked for an bhk unit comprising of an offce space , media room with sloped roofs in a classical style elevation. He wanted a mixture of classical and contemprory style. The interiors is followed by an contemprory style design.

A balanced harmony between classical and contemporary styles, using a mix of traditional and modern materials. Exterior walls incorporate classical detailing such as columns and cornices, combined with sleek, minimal fnishes to give a timeless appeal.


The wall design for this G+3 residence blends classical and contemporary elements to align with the client’s vision. Exterior walls feature classical sloped roofs, intricate cornices, and pilasters paired with contemporary materials like neutral-toned plaster and textured fnishes.
Interior walls emphasize clean lines and modern aesthetics, using a combination of muted colors and premium materials such as wood paneling, stone cladding, and accent wallpapers to add depth and sophistication. The design ensures durability while creating a seamless connection between the classical exterior and the contemporary interiors.













Front Elevation


Year of Project
Duration of Project
Client Details
Firm
The site is located in banglore with a plot area of sft(55*60) which is a g+6 structure.The gf comprises of parking,the frst and second foor is typical rental units and the other three foors are occupied by the clients.The clients looked for a modern luxury interiors in a neutral colour pallette.


A modern luxury design with a neutral color palette for the interiors. The ground foor is dedicated to parking, while the frst and second foors consist of typical rental units. The remaining three foors are designed for the clients’ residence, emphasizing sleek, contemporary fnishes and open, spacious layouts.
Year of Project
Duration of Project
Client Details
Firm
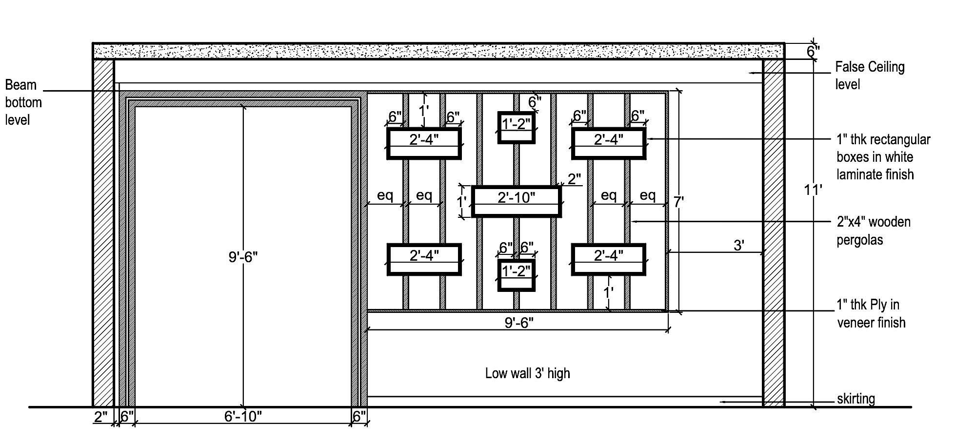
The pathway is envisioned as a journey of peace and connection with nature. At the viewpoint, a beautifully crafted Buddha statue serves as a focal point, promoting mindfulness and calmness. The pathway is surrounded by lush greenery, with the periphery lined with carefully selected plants and trees to enhance the sense of tranquility. The layout is designed to offer an immersive experience, allowing visitors to en oy the natural beauty while refecting on the peaceful presence of the Buddha.

The pathway is thoughtfully designed to create a serene and contemplative experience for the user, seamlessly integrating with the surrounding landscape. Its design allows for a smooth fow while offering a tranquil environment for refection and relaxation.

Year of Project
Duration of Project
Client Details
Firm
The site is located in banglore with a plot area of 3000 sft(60*50) with a built up area of sft which comprises of a bhk unit. t has foors and the client is an us based client so they looked for more of an open spaces with cross ventilations and comfortable circulation spaces inside the house.Since there were lot of clustered buildings around the site they wanted a garden space around the buildup area so they feel more connected to the enviromment.






Designed with a focus on open spaces, cross ventilation, and comfortable circulation to cater to the client’s preference for a free fowing, airy environment. To counter the surrounding clustered buildings, the design incorporates lush garden spaces around the built-up area, creating a strong connection with nature and offering a peaceful retreat.
The layout prioritizes natural light, seamless transitions between indoor and outdoor spaces, and a harmonious balance between privacy and openness, providing a serene and comfortable living experience.

Year of Project
Duration of Project
Client Details
Firm
The site is located in banglore with a plot area of 2000 sft(40*50) with a built up area of 2700 sft which comprises of a bhk unit g ). The client looked for a classical style elevation with sloped roofs and cornices and the interiors comprising of a double height and an internal courtyard spaces.


Ground Floor Working Plan

First Floor Plan
A classical style elevation, with elegant sloped roofs and intricate cornices, offering a timeless and stately appearance. The design prioritizes spaciousness with a double-height living area and an internal courtyard, allowing natural light to food the interiors and fostering a sense of openness.

First Floor Working Plan


Section Detail


The layout emphasizes both grandeur and intimacy, blending classical architectural elements with modern functionality to create a warm, inviting home that balances luxury with comfort.

