RANIA IKBAL OURIEMI
ARCHITECTE DE -
ARCHITECTE D’INTÉRIEUR

rania.ouriemi@gmail.com
+33656674570
Paris, ile de france
https://www.linkedin.com/in/rania-ikbal-ouriemi-/
Groupe MAXIAM
Alternance en Architecture d’Intérieur Présentation et élaboration des cahiers des charges pour les enseignes La Maison
Contemporaine, Les Experts Meubles, Maxi Literie, Love Literie, Dock du Meuble, Darty Literie.
Aménagement et optimisation des espaces de vente des magasins du groupe Maxiam, spécialisés dans l’ameublement.
Participation à la gestion de projets et le développement graphique des éléments du projet. Participation à la conception du stand du groupe pour le salon Esprit Meuble.
SCP BEGUIN & MACCHINI
Architecte Gilles Beguin
Réhabilitation de la Gare Saint-Lazare en musée d’art ludique transformation d’un site patrimonial en un espace culturel valorisant l’art contemporain et l’univers du divertissement
Conception de projets d’habitation en Corse intégration harmonieuse dans le paysage et respect de l’identité architecturale
Rénovation de la Fondation Avicenne (Cité Universitaire Internationale de Paris) modernisation des espaces dans le respect du patrimoine architectural, avec une intervention spécifique sur l’aménagement intérieur de la salle polyvalente.
Tartines & Chocolat
Réaménagement du Kids Club de l’Hôtel Abbaye des Vaux-de-Cernay (Paris) du groupe Paris Society conception d’un espace ludique, élégant et en harmonie avec l’univers de la marque
Participation à la direction artistique et la conception de plusieurs événements réalisés à Londres, Ibiza et Paris, notamment en collaboration avec Agnès B.
les différents intervenants géomètre, bureaux d’études techniques et architectes.
Participation active à la gestion du projet ( Communication avec les clients et les partenaires, Développement graphique des éléments du projet,Synthèse et intégration des données techniques et architecturales)
Coordination des maquettes Revit avec les différents bureaux d’études
Contribution à la mise en place de la charte Revit de l’agence harmonisation des pratiques et structuration des fichiers BIM.
VIP ROOM – Groupe LOUVRE :Études de faisabilité pour des projets d’aménagement
DA Concept Architecte Lamjed Dardour
Architecture & Aménagement intérieur
Conception d’une maison d’hôtes développement des plans, modélisation des volumes et ambainces
Conception intérieure de divers espaces: ( Clinique capillaire, Espaces commerciaux, Atelier de tissage, Villas de maître, Restaurants)
Suivi de chantier coordination avec les corps de métier, contrôle qualité, respect des délais et du cahier des charges.
DRAW LINK GROUP
Architecte Daousser chennoufi
stagiaire Projets hôteliers & résidentiels
Coordination et suivi de chantier pour l’Hôtel Nine et l’École Hôtelière Eight du Groupe
Seabel gestion des équipes, respect des délais et contrôle qualité sur site
Aménagement intérieur d’une villa à Gammarth conception sur mesure et suivi de l’exécution
STUDIO BELEM
Architecte EDOUARD BETTENCOURT
Projet TATI Barbès (8000 m²)
Préparation du Permis de Construire. Coordination des maquettes numériques entre
Élaboration du dossier de permis de construire pour un projet d’appart’hôtel à Gammarth prise en charge des démarches administratives et techniques
Réaménagement intérieur du Four Points Hotel à Tunis
Mastère en Architecture Intérieure & Scénographie
–
Formation & Certification Autodesk – Revit Architecture
Maîtrise
Diplôme National d’Architecte – École Nationale d’Architecture et d’Urbanisme de (Tunis)
Architetcure et Design : Ecole Privé Polytechnique Centrale Tunis
Baccalauréat en Section Technique - Lycée Technique Houmt Souk 1 Djerba.
COMPÉTENCES TECHNIQUES
COMPÉTENCES LINGUISTIQUES
SOMMAIRE
1- Kids Club Abbaye des vaux de Cernay Paris
2- Réamenagement d’une Villa de maitr, Gammarth ( Partie Salon )
3 -Réamenagement de la salle polyvalente fondation avicenne cité U de Paris
4 - Réaménagement d’un ancien habitat type houch Djerba
3 - Réaménagement du Restaurant Al Atik Djerba
4 -Hôtel The Nine Experience La Marsa
5 -Hammam Eight Seabel, La Marsa
6 - Réamenagement d’un Studio Paris
Kids Club Abbaye des vaux de Cernay, Paris

Kids Club Abbaye des vaux de Cernay

Le Kids Club de l’Abbaye de Vaux-de-Cernay, en collaboration avec Tartine et Chocolat, propose un espace intérieur soigneusement aménagé et divisé en trois sections distinctes, chacune offrant une expérience unique pour les enfants.









Le deuxième espace est consacré aux activités créatives et manuelles. Ici, les enfants peuvent participer à divers ateliers artistiques, comme le dessin, la peinture, la poterie, ou encore des travaux manuels.


Cet espace est équipé de tables et de chaises adaptées aux enfants, ainsi que de tout le matériel nécessaire pour qu’ils puissent exprimer leur créativité et développer de nouvelles compétences.




Cette première section est un espace immersif où les enfants peuvent jouer à divers rôles dans un petit village miniature. Il comprend une épicerie bien fournie, un fleuriste charmant, un vétérinaire où les enfants peuvent soigner des animaux en peluche, et une cafétéria.
Ce village encourage le jeu de rôle et stimule l’imagination des enfants, leur permettant d’explorer différentes professions de manière ludique.








3 La Salle de Jeux Le troisième espace est consacré à l’amusement et à l’activité physique. Cette salle est équipée d’un toboggan et d’un mur d’escalade, permettant aux enfants de se dépenser tout en s’amusant. Le toboggan offre des moments de plaisir glissant, tandis que le mur d’escalade stimule la motricité et le sens de l’aventure des petits. Cet espace sécurisé et stimulant est parfait pour que les enfants puissent se divertir et se dépenser dans un environnement ludique.















Réamenagement d’une Villa de maitre à Gammarth ( Partie Salon )




















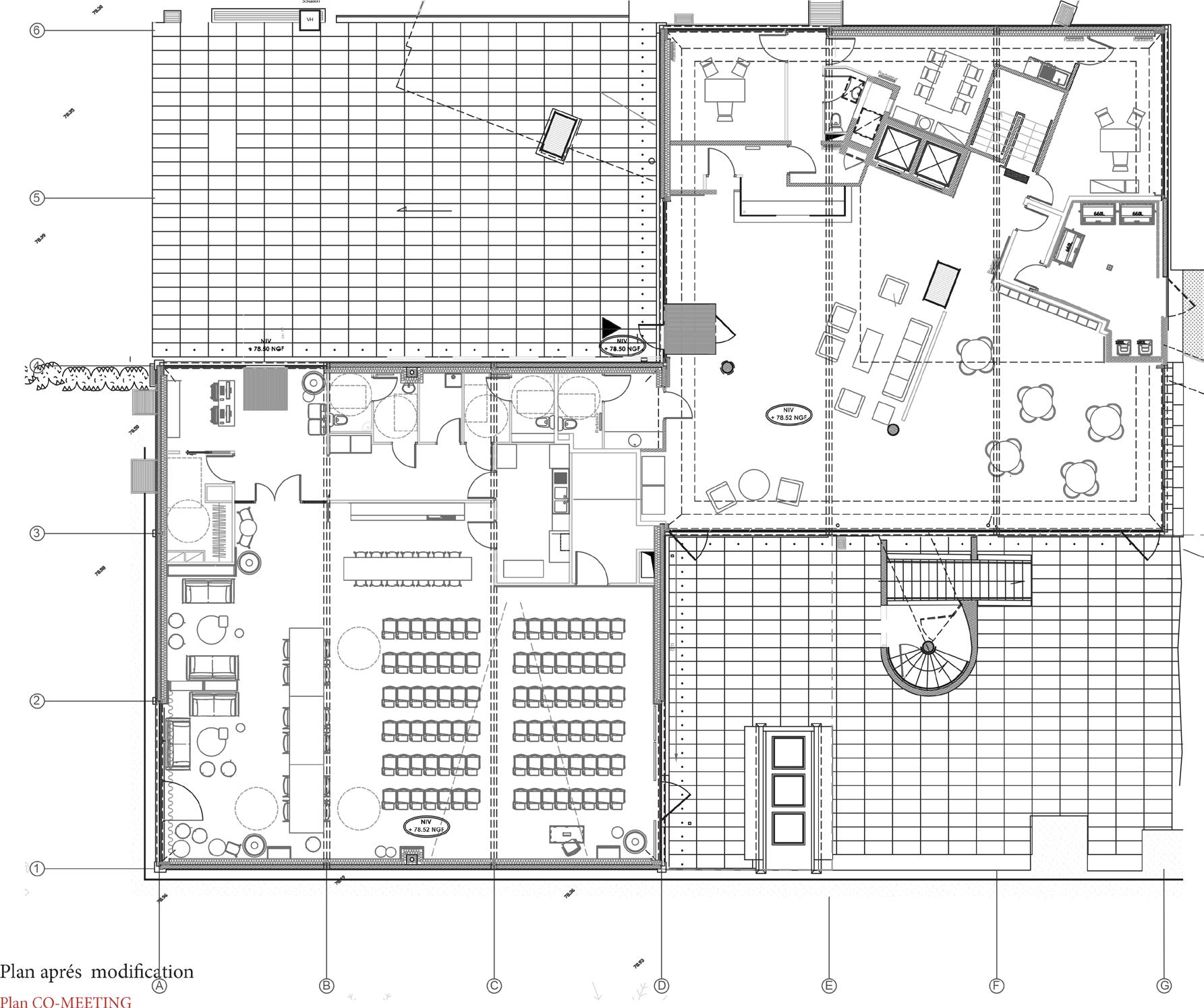
Réamenagement de la salle polyvalente de la fondation avicenne de la cité universitaire de Paris

Fondation Avicenne – Salle polyvalente (400 m²)



Fondation Avicenne – Salle polyvalente (400 m²)
Après trois ans de réhabilitation, la Fondation Avicenne rouvre ses portes avec, en plus des logements étudiants, une salle indépendante dédiée aux événements professionnels.
Fondation Avicenne – Salle polyvalente (400 m²)
Après trois ans de réhabilitation, la Fondation Avicenne rouvre ses portes avec, en plus des logements étudiants, une salle indépendante dédiée aux événements professionnels.
Baignée de lumière naturelle grâce à ses baies vitrées traversantes, elle offre une modularité totale
Baignée de lumière naturelle grâce à ses baies vitrées traversantes, elle offre une modularité totale
Espace conférence (jusqu’à 90 personnes) équipé d’un grand écran, vidéoprojecteur et sonorisation.
Espace conférence (jusqu’à 90 personnes) équipé d’un grand écran, vidéoprojecteur et sonorisation.
Zone atelier/réunion avec table modulable et écran tactile 75».
Zone atelier/réunion avec table modulable et écran tactile 75».
Coin lounge avec canapés, écran 65» et baby-foot.
Coin lounge avec canapés, écran 65» et baby-foot.
Cuisine/bar de 5,60 m offrant autonomie et convivialité.
Cuisine/bar de 5,60 m offrant autonomie et convivialité.









Le design contemporain allie bois clair, tons verts apaisants et assises jaunes dynamiques, créant une atmosphère propice au travail, à la créativité et à la convivialité.




Réaménagement d’un ancien habitat type houch, Djerba

Réaménagement d’un ancien habitat
Houch
Ce projet illustre la transformation complète d’une maison ancienne et délabrée, typique de l’architecture vernaculaire du sud tunisien, en une résidence contemporaine élégante et lumineuse.

Avant l’intervention
Les photos initiales témoignent de l’état d’abandon du lieu murs décrépis, sols sablonneux, absence de finitions, et cloisonnements vétustes. La structure d’origine, bien que solide, manquait d’ouvertures et de confort, rendant l’espace peu fonctionnel.












Après réaménagement : L’architecture a été repensée en respectant l’esprit traditionnel tout en intégrant des éléments de confort moderne
Interventions principales
Réorganisation spatiale complète, avec ouverture du plan pour créer un patio central, axe de ventilation naturelle et espace de vie extérieur.
Reprise des fondations et stabilisation structurelle, notamment au niveau des angles affaiblis.
Création de baies vitrées et portes traditionnelles pour améliorer l’éclairage naturel et la relation intérieur/extérieur.
Application d’un enduit chaux/sable pour respecter la nature respirante des murs, tout en apportant une finition lisse et lumineuse.
Intégration d’équipements modernes (réseaux, éclairage indirect, climatisation discrète) dans un respect strict de l’esthétique méditerranéenne.
Ajout d’un bassin et de mobilier intégré dans le patio pour renforcer la dimension bioclimatique du projet.









Une transformation complète dans le respect des principes d’architecture bioclimatique inertie thermique des murs conservée, ventilation traversante optimisée
Le projet illustre la capacité d’un bâti ancien à s’adapter aux standards contemporains tout en conservant son identité architecturale locale.








du

Restaurant Al Atik






L’aménagement retenu s’inspire de l’architecture traditionnelle djerbienne, avec une mise en valeur des éléments typiques tels que les voûtes, les arcs, les niches murales et l’usage de la blancheur éclatante des enduits à la chaux. J’ai également intégré des matériaux locaux comme la pierre, le bois brut et le fer forgé, afin de renforcer l’authenticité du lieu et créer une atmosphère chaleureuse et intemporelle.
Ce travail d’adaptation a permis d’offrir au restaurant une nouvelle identité, enracinée dans la culture architecturale de Djerba, tout en répondant aux exigences contemporaines en matière de confort et de fonctionnalité.
Réaménagement du restaurant El Atik – Inspiration de l’architecture djerbienne
Après une analyse approfondie du programme et une reconnaissance minutieuse du site, j’ai été chargée de concevoir plusieurs propositions d’aménagement pour le restaurant El Atik. Cette étape essentielle m’a permis d’explorer différentes configurations afin d’identifier celle qui répondrait le mieux aux besoins fonctionnels, esthétiques et symboliques du projet.










Hôtel The Nine Experience – La Marsa, Tunis

Hotel the nine experience La Marsa


Projet hôtelier contemporain & suivi de chantier des suites Contexte
Situé à La Marsa, «The Nine» est un hôtel lifestyle conçu comme un lieu hybride mêlant hospitalité, design, restauration et bien-être. Le projet incarne une architecture modulaire contemporaine, intégrant des matériaux nobles et une palette végétale en façade pour offrir une identité urbaine forte.







Façade vivante composée de modules géométriques et de lames métalliques verticales, combinée à une végétation intégrée pour créer un jeu de pleins et de vides.
Utilisation de matériaux locaux (pierre, bois, enduit brut) contrastés avec des éléments industriels (acier, verre, béton ciré).
Volumes intérieurs dynamiques hauteurs variées, ouvertures traversantes, éclairage indirect, textures murales et mobilier sur mesure.
Signalétique intérieure inspirée des ascenseurs industriels et du graphisme typographique, créant une signature visuelle forte et ludique.















































Les suites de l’hôtel The Nine Experience incarnent l’ADN du projet un univers contemporain, immersif et à forte identité graphique. Chaque chambre a été pensée comme une expérience singulière où design et confort dialoguent avec la narration spatiale.

L’esprit «Trendy Hotel» design urbain, confort compact & identité forte
Les suites de The Nine Experience traduisent l’essence du concept «trendy hotel» : un style jeune, graphique, vibrant et fonctionnel, qui s’adresse à une génération urbaine en quête de confort sans sacrifier le caractère.

Mur graphique signalétique avec des lettres rétroéclairées, créant un univers visuel fort et immersif dès l’entrée dans la chambre.
Optimisation de l’espace
Suites conçues pour être compactes mais ultra-fonctionnelles coin bureau intégré, rangements malins, salle de bain compacte en verre et carrelage graphique.

Ambiances lumineuses modulables (spots intégrés, veilleuses déco, éclairage zénithal).

Agencements pensés pour s’adapter aux séjours business, tourisme urbain ou escapades de week-end.


pour l’École Hôtelière Eight qui est en part fait de l’hotel nine un établissement formateur de l’hospitalité de demain, intégrant une expérience de bien-être authentique dans son parcours pédagogique.
Ce projet vise à revisiter l’expérience du hammam traditionnel tunisien en l’inscrivant dans un cadre contemporain et pédagogique. L’objectif principal était de créer un espace sensoriel alliant esthétique locale et fonctionnalité moderne, tout en respectant les codes architecturaux de l’héritage arabo-méditerranéen.









Ambiance & Matériaux
Voûtes et arches Inspirées de l’architecture islamique, elles apportent une impression de calme et de spiritualité.
Éclairage doux Créé par des luminaires encastrés et des lanternes, pour accentuer le caractère feutré et intime du lieu.
Palette naturelle Pierre beige, plâtre blanc, bois foncé et zelliges verts pour évoquer la terre, l’eau et la nature.
Mobilier sur mesure Chaises, tables basses et étagères conçues pour s’intégrer aux alcôves murales.







Réamenagement Studio au 16 eme arrondissement, Paris

Réamenagement Studio au 16 eme arrondissement, Paris







Ce projet consistait à optimiser l’espace d’un studio parisien situé dans le 16 arrondissement, en alliant élégance, fonctionnalité et luminosité.
L’aménagement a été repensé autour de la création d’un espace de vie ouvert mais structuré, grâce à l’intégration d’une verrière qui sépare délicatement la chambre du salon sans cloisonner visuellement. La palette de tons neutres et les matériaux choisis parquet en point de Hongrie, mobilier sur mesure, luminaires discrets.
Le mobilier multifonction, comme le canapé convertible et les rangements intégrés, maximise l’usage de l’espace sans compromettre le confort. L’espace cuisine a également été réorganisé pour une utilisation optimale, en intégrant discrètement les équipements électroménagers.
Ce réaménagement illustre une approche harmonieuse de l’architecture intérieure, où chaque détail est pensé pour valoriser les volumes tout en respectant le caractère parisien du lieu.



